SELECTED WORKS MAGGIE GRIFFIN
RESUME
Hornell, NY 14843 |maggiegriffin21@gmail.com|585-519-8702 linkedin.com/in/maggie-griffin21
Architectural Intern, August 2023 - May 2025, JHL Tecture, Bristol, RI 02809
- Assisted in design and development of architectural projects from concept through completion.
- Conducted site analysis, created preliminary designs and assisted with 3D modeling and CAD drawings.
- Collaborated with senior architects and project managers to ensure design accuracy.
- Participated in client meetings, contributing ideas for solutions and updates.
- Gained hands-on experience with AutoCAD, SketchUp, and Revit
- Strengthened project management and design skills through multiple concurrent projects.
Construction Inspector, Summer of 2022; 2023; 2024; 2025, Department of Transportation, Hornell, NY 14843
- Oversaw and inspect transportation construction projects, ensuring compliance with engineering plans, safety standards and government regulations.
- Monitored the project progress, assessed construction quality, and documented field observations through detailed reports and daily logs.
- Verified materials, measurements and project specifications to maintain quality control and identify any discrepancies.
- Collaborated with contractors, engineers, and project managers to resolve issues and keep the project on schedule.
- Utilized industry softwares for tracking project data and performing tests on materials.
Experience Education
Washington University in St. Louis, St. Louis MO, August 2025 - May 2027, 1st Year Pursuing Master in Architecture and Master in Construction Management Roger Williams University, Bristol RI, August 2021 - May 2025, Graduated Pursuing Bachelor of Science in Architecture with minors in Structural Engineering, Construction Management, and Art and Architectural History
Honors
Tau Sigma Delta Honor Society, Fall 2023, Honor Society in Architecture and Allied Arts Student Academic Showcase and Honors Nominee, Spring 2023, Multigenerational Housing Project Academic Excellence Award, Fall 2021 - Spring 2024, Roger Williams University
Design Competitions
Assisted Deborah Baronas and Greg Spiess, Fall 2023, Bristol Middle Passage Port Marker Project, Bristol, RI
- Developed a physical architectural model and created a detailed 3D digital model; rendered and visualized the project for presentation purposes.
Assisted Stephen Brigidi and Spencer Evans, Fall 2024, Bristol Middle Passage Port Marker Project, Bristol, RI
- Developed a physical architectural model of the project for presentation purposes.
Associations
American Institute of Architecture Students
Software Skills
- AutoCAD
- SketchUp
- Revit
American Society of Civil Engineers Elks Association - VRay - Lumion - TwinMotion
- Rhino
- Google Workspace
- Microsoft Office
- Adobe Creative Cloud
- ProCore - BlueBeam - SolidWorks
EAST HARLEM HOUSING
FALL 2025
PROFESSOR PETRA KEMPF
PAGES 2-5
PAGES 10-13 02 03
SIXTH INDUSTRY COMMUNITY CENTER
SPRING 2024
PROFESSOR JUNKO YAMAMOTO
PAGES 5-9
MULTIGENERATIONAL HOUSING
SPRING 2023
PROFESSOR NOEL CLARKE
DESIGN COMPETITION
FALL 2023
BRISTOL MIDDLE PASSAGE PORT MARKER COMPETITION PAGE 14 04
PROFESSIONAL WORK
2023 - 2025
JHL TECTURE ARCHITECTS & ENGINEERS PC PAGE 14
PHOTOGRAPHY & 2D ARTWORK PAGE 15





FALL 2025
PROFESSOR PETRA KEMPF
ARCH.6010 - HOUSING STUDIO



This project is based in East Harlem, NY. It is a co-living housing community with an emphasis on multigenerational living. The site sits within a dense urban fabric shaped by rich and diverse cultural histories. Its residents range from pairs of university students sharing a room and building community in a new place, to young families raising infants and children who seek an inviting, supportive environment around them.

The project began with a study of row-house typologies and the forms of co-living embedded within them. The concept emerges from mirroring the row house, aggregating those mirrored forms and using the stair as the central merging element. By anchoring the stair and then shifting it at an angle, the design highlights the constant life unfolding around it, encouraging residents to move through and engage with the communal spaces in their daily routines.
Climate mobilization is essential in today’s world, which led to the introduction of environmental features across the roofscape. The roof becomes an active surface, used by residents while also supporting solar panels, and areas of green roof.











SECTION PERSPECTIVE
SECOND FLOOR PLAN
FIRST FLOOR PLAN



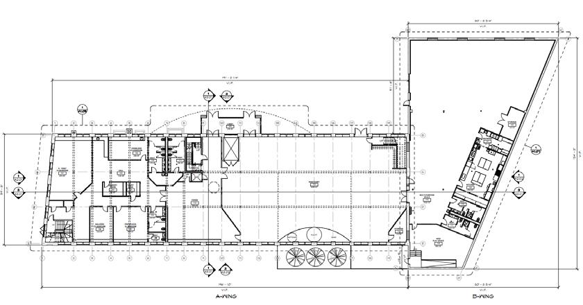
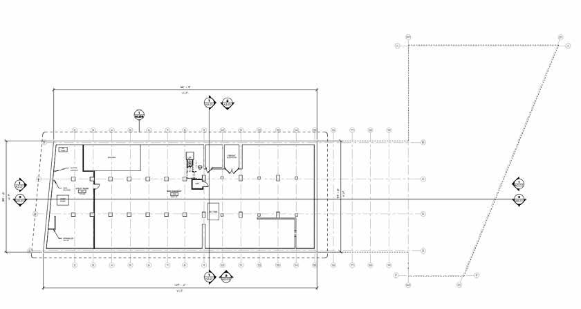
SIXTH INDUSTRY COMMUNITY CENTER
SPRING 2024
PROFESSOR JUNKO YAMAMOTO
ARCH.413 - ADVANCED STUDIO



This project is based in Tatebayashi City in Gunma Prefecture, it is a 6th industry building, therefore it must aid in the harvesting, processing, and selling of fish and crops. The site is located in Tataranuma Park where minimal structures exist other than the volunteer center which is located at the center of the park. The park has a dense tree line that separates itself from the city just across the street.


Drawing from the Japanese concept of fuchi-chiku, which emphasizes returning what’s taken from nature, the design features stepping wells and rice paddies along the water’s edge. The stepping wells are a direct interaction between my structure and the site it rests within.




LONGITUDINAL SECTION





The stepping wells are depressed into the landscape to give the occupants of the structure a new perspective on the site.
Within the stepping wells the occupants will be at eye level with the water of the marsh as well as the dense tree landscape.
These rice paddies are resting on top of the site, while a light wooden structure encases all of these aquaponic systems.
This light wooden structure consists of a series of columns that are more densely populated on the approach side of the structure and less populated on the waterside of the structure.










MULTIGENERATIONAL HOUSING
SPRING 2023



The Phoenix site presented a compelling contrast between predominantly single-family homes, low-rise apartments, and new mid-rise development emerging nearby. In response to this evolving urban fabric, the project strategically adopts increased height, unlocking expansive views from the third story upward and positions the building within the neighborhoods’ evolving scale. The sites’ existing courtyard patterns guided the decision to carve out a generous outdoor space, while the warm climate informed solid west-facing walls and exterior breezeways that support airflow and passive comfort.




This multigenerational housing complex is organized around a blend of private, shared, and community-oriented spaces that support residents across ages and lifestyles. The projects spatial strategy emphasizes interdependence, offering environments that foster both independence and casual social connection. By weaving together climate-responsive design with community-centered programming, the building becomes a flexible framework for multigenerational life in Phoenix.



The sunken courtyard becomes a shaded, thermally moderated outdoor space; its depressed ground plane and the surrounding buildings’ shade help regulate temperatures throughout the day.




























