PORTFOLIO 2023 ARQ.FER ALVAREZ

Page 1

FERNANDA ALVAREZ 2023

PORTAFOLIO maferalboni 2021
FACULTAD DE ARQUITECTURA 2016 - 2022

Los Cabos, BCS, México +52 222 513 3238

arq.maferalvarez@gmail.com

@maferalboni

Soy una arquitecta extrovertida, proactiva, ordenada y creativa, con interés en: sustentabilidad, urbanismo, intervención, restauración, arquitectura efímera e historia del arte. He tenido la oportunidad de conocer lugares en diferentes contextos que me han aportado experiencias que atribuyan a mi crecimiento personal, profesional y laboral con base a mis metas personales e intereses. Con fortalezas de adaptabilidad en nuevos entornos, alto pensamiento analítico para dar soluciones óptimas y entendimiento rápido de instrucciones y formas de trabajo.

MARÍA FERNANDA ALVAREZ BONILLA
LIC. EN ARQUITECTURA
maferalboni 2019

1.DUAL DEPARTAMENTOS

ÍNDICE

2.LAGUNA 67

3.CENTRO DEPORTIVO

4.PROYECTOS EN CAMPO

5.FOTOGRAFÍA (MX, USA, PRODUCTOS)

6. RENDERS Y GRÁFICOS

DUAL DPTOS.

PUEBLA, PUE. 2020-2022

Proyecto Terminal de la Lic. en Arquitectura.

Consta de un proyecto de integración en el Centro Histórico de Puebla. Tras la identificación de la problemática actual del sitio: la disminución de los residentes en el núcleo de la ciudad y la gentrificación del sitio. Se propuso un edifico de vivienda y comercio, como parte de un proyecto que busca la incorporación entre arquitectura histórica y contemporánea en un mismo sitio.

INTEGRACIÓN

Construir un todo con partes faltantes sin provocar una ruptura

ENCUENTRO

Coincidencia o reunión de dos o más personas en un mismo lugar

Proporción 8-13Zona a construirPartición volumen (Patio central)

Análisis confort

PROYECTO
1
maferalboni 2022

Departamentos

Terrazas

Circulación vertical

Patio Central

Patios Laterales

Acceso peatonal

Acceso vehicular

Restaurante-Bar

Acceso por Av. 7 Pte.

maferalboni 2022 maferalboni 2022 maferalboni 2022
maferalboni 2022
maferalboni 2022 maferalboni 2022

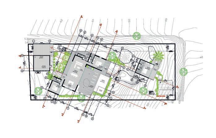
LAGU NA 67

SJC, BCS 2021-2022

Proyecto residencial, ubicado en Laguna, San José del Cabo.

El cliente, proveniente de Italia, requería un espacio con volúmenes conectados entre sí y un área común amplia para una convivencia agradable y relajada, dándole prioridad al área de cocina. Se optó por materiales sustentables, teniendo como principal: el muro de tierra compactada.

PROYECTO 2
maferalboni 2023

CENTRO DEPORTIVO

PUEBLA, PUE. 2019

Centro deportivo ubicado en Parque del Arte. Su objetivo es generar un espacio gratuito para los usuarios cercanos a la zona de ubicación, con el fin del aumentar la cantidad de visitas al parque y el nivel de actividad física en la población.

PROYECTO 3
maferalboni 2019

PROYECTOS EN CAMPO

I. REMODELACIÓN PATIO

PUEBLA, PUE | 2020

II. ESCALERAS 4-22

CHILENO, BCS | 2022-2023

PROYECTO 4

FOTO GRAFÍA

PROYECTO 5 maferalboni 2022 maferalboni 2020
PUEBLA 2020-2023
2023
maferalboni
maferalboni 2020
2020
maferalboni

FOTO GRAFÍA

BCS, MX 2022-2023

PROYECTO 5
maferalboni 2023 maferalboni 2022 maferalboni 2023 maferalboni 2023 maferalboni 2023
maferalboni 2021
OAXACA,
2021 PROYECTO 5 maferalboni 2021 maferalboni 2021 maferalboni 2021 maferalboni 2021
FOTO GRAFÍA
MX

FOTO GRAFÍA

TEXAS, USA

2019 PROYECTO 5 maferalboni 2019 maferalboni 2019 maferalboni 2019

FOTO GRAFÍA

PRODUCTOS Y OBJETOS

maferalboni 2023 maferalboni 2023
PROYECTO 5

FOTO GRAFÍA

PRODUCTOS Y OBJETOS

PROYECTO 5
maferalboni 2023 maferalboni 2023

RENDERS Y GRÁFICOS

PROGRAMAS:

SKETCHUP, 3DMAX, PS

PROYECTO 6 maferalboni 2019 maferalboni 2023
maferalboni 2023

Turn static files into dynamic content formats.

Create a flipbook
Issuu converts static files into: digital portfolios, online yearbooks, online catalogs, digital photo albums and more. Sign up and create your flipbook.