

MADHURITHA SAYANA
BELLEVUE COLLEGE 2024

![]()



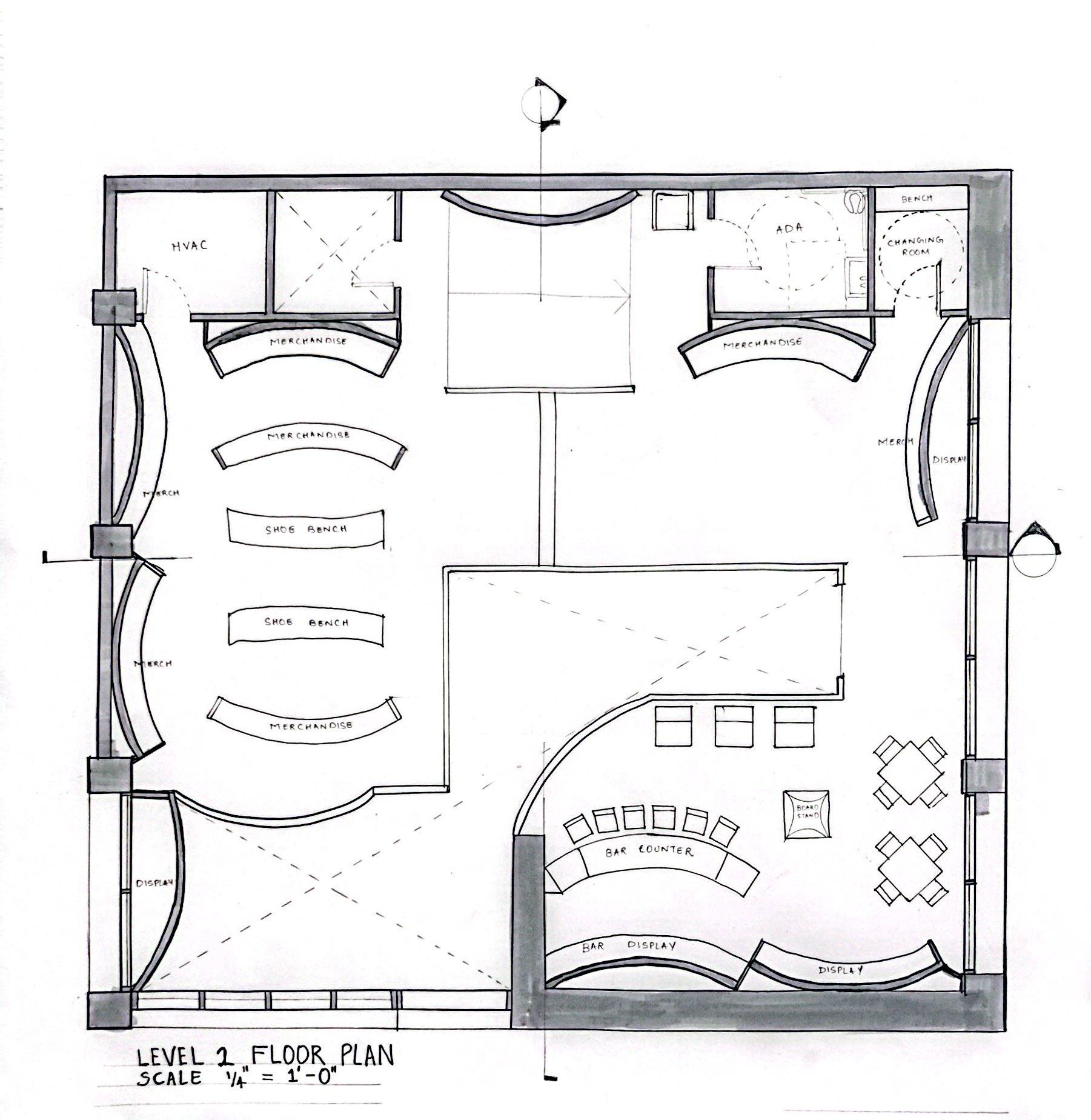
Burton Snowboards Store



• The Design concept is to give an illusion of shopping in a snow board pump track and give the illusion of pumping.
• The Concept goes well with the purpose of the brand and will be environmentally friendly and fun for the rider to shop.
• It needs to feel like you are set for snowboarding with some white shiny reflective surfaces to give the illusion of snow glittering in the sun on the mountain top.
• Other Fun elements is to add metal finishes where possible like railings to feel like rustic arches.


















































