

![]()






1 INTERNATIONAL HOUSING STUDIO: BERLIN, GERMANY
Contemporary Collective Housing in East Berlin
Intersection of Music, History, and Community
Where Nature Connects Generations
Athletic Facility Addition for Bryn Mawr College
Contemporary Collective Housing in East Berlin
Second Year Graduate Studio
Washington University in St. Louis
Sam Fox School of Design & Visual Arts
Instructor: Julie Bauer, Dipl.-Ing, Arch., ARB
Fall 2025

The International Housing Studio begins with rotations. The first two weeks of each rotation were spent studying and developing a threshold model image, which explores how architecture mediates between communal and private spaces. My first rotation focused on New York City, and my second rotation Berlin. The remainder of the semester was dedicated to developing a housing proposal in Berlin, engaging in the specific site conditions while challenging conventional models of living.



The threshold image is situated in a traditional New York City row home that was converted to multi-family unit. It explores the narrative of multigenerational families co-living within a Brooklyn apartment building. The cultural image emphasizes the importance of the rowhome and affordable housing.

Image

The threshold image is of the Berliner Zimmer within a corner unit apartment from the traditional Block typology. The Berliner Zimmer is a unique space that connects the front and side wings of the unit. The cultural image compares soviet housing in East Berlin with modern housing in West Berlin.





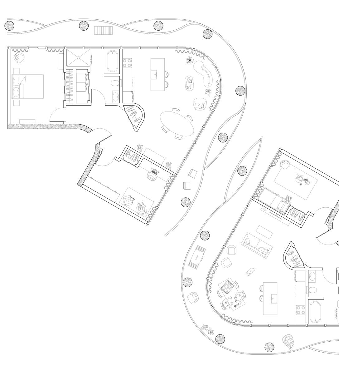
The site is along Karl-Marx-Allee in East Berlin, a socialist city plan and opposite the Berlin Block typology. After modeling a Berlin Block corner unit, I found the specific floor plan to be architecturally significant due to its potential to receive natural light, provide panoramic views of the city, connect residents to urban life, and encourage a relationship between interior and exterior spaces. Within my proposal, every resident receives a corner condition. The project is 12 stories tall, with public programing on the ground floor.



On the ground floor there are two public entrances and one private entrance, as well as a restaurant, bar and retail space. On the eastern side of the building is a plaza connecting the building to the Kino International Cinema.




There are three-unit types featuring a curved glass façade, which can open to the balcony that wraps the entire building to encourage living beyond the building envelope. Double-height communal spaces are placed between units when smaller sized units are aggregated together.

Aggregation Plan 1



Threshold Model Image View from Unit Corner Room
Scale: 1/2” = 1’0”
The balconies are wavy to allow the twofoot-wide columns to span one or two stories, creating a sense of weaving. The wall section cuts through the glass façade and concrete floor slabs, which are connected using Schöck Isokorb elements. By structurally separating the interior floor slab from the exterior façade support, these connections reduce thermal bridging at slab edges.




Intersection of Music, History, and Community
First Year Graduate Studio
Washington University in St. Louis
Sam Fox School of Design & Visual Arts
Instructors: Anna and Eugeni Bach, COAC, SAFA, ETSAB, EINA, AA
Spring 2025

The Lemp School of Jazz, located in St. Louis, MO on the site of the old Lemp Brewery Factory, represents an integral component of a broader revitalization effort aimed at uniting people, shops, and offices within a single complex.
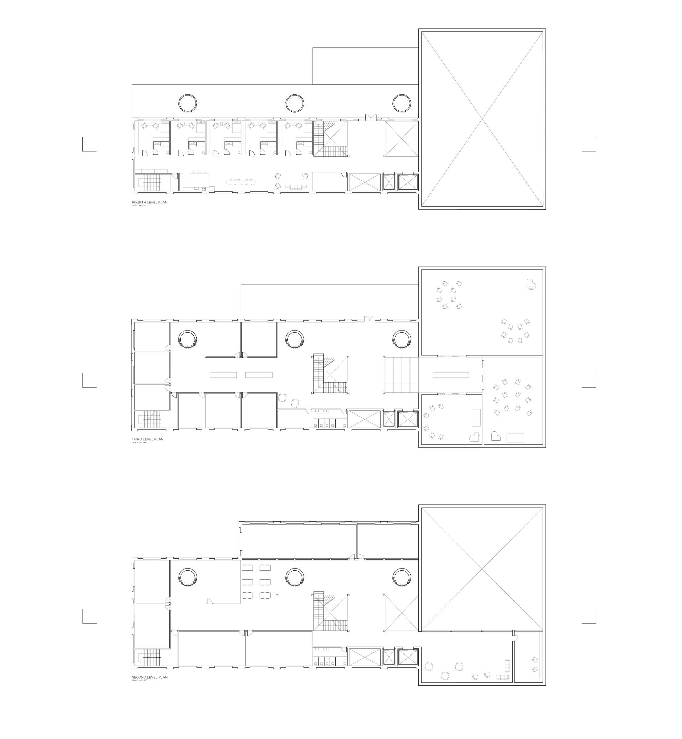
The building has four levels and a basement. As the levels increase the programs become more private. The ground level includes public amenities and administrative offices. The restaurant is located at the center and jets out to create a cantilevered entrance. There are three silos throughout the building that reference the existing silos on the site. On each floor the silos are individual rehearsal spaces, but on the ground floor they have a unique program, which includes a revolving door as the entrance, a bar in the restaurant, and a private meeting space next to the library. Visitors and students entering the building are greeted by a large staircase and entrance to the concert hall. The concert hall is a flexible space and can open its doors for guests to enjoy outdoor concerts.


Site Sections


Theory classes and the multifunctional space are located on the second floor. The third floor has classrooms for playing and large rehearsal spaces above the doubleheight concert hall. The fourth floor is residential with individual units and shared community space as well as a shared terrace.
The building’s narrowness was intentionally designed to maximize open space, encouraging social engagement and creating opportunities for outdoor seating, casual gathering, and public concerts. The building has a brick façade to honor the original brewery architecture.





and Welcoming Sunlight in the Winter

Where Nature Connects Generations
First Year Graduate Studio Washington University in St. Louis Sam Fox School of Design & Visual Arts Instructors: Bruce Lindsey and Bomin Kim, Assoc. AIA, CPHD, LEED AP
Fall 2024

Beneath the Canopy is a greenhouse where nature connects generations. The greenhouse is in Forest Park next to the Anne O’C. Albrecht Nature Playscape in St. Louis, MO. Beneath the Canopy partners with local nursing homes and assisted living facilities to provide a place for residents to connect with their loved ones through nature. The design was influenced by the work of Kengo Kuma, to facilitate exciting experiences and social interactions to reduce feelings of loneliness and improve quality of life for elderly visitors. Beneath the Canopy grows fruits, vegetables, herbs, and flowers that are gifted to partnered care facilities to help better residents’ physical and mental well-being.

Longitudinal Section


The greenhouse is accompanied by an auxiliary building which includes a community kitchen for families to cook and eat together using produce grown in the greenhouse. In between the auxiliary building and greenhouse is a shaded courtyard to encourage elderly residents to spend time outdoors and socialize with members of the St. Louis community.
The design started with a 25’ x 25’ bay structure which was extruded to 5 bays to create a 125’ x 25’ greenhouse. The bay structure acts as a giant trellis for climbing plants, such as the trumpet vine. Visitors’ meander underneath the trees’ canopies while taking in the beauty of the flowering plants grown at either wing. The welcome center and restrooms are on the lower level.





A Proposed Athletic Facility
Addition for Bryn Mawr College
Senior Design Thesis
Growth and Structure of Cities Bryn Mawr College
Advisors: Sam Olshin, FAIA and Dr. Jeffrey Cohen
Fall 2023

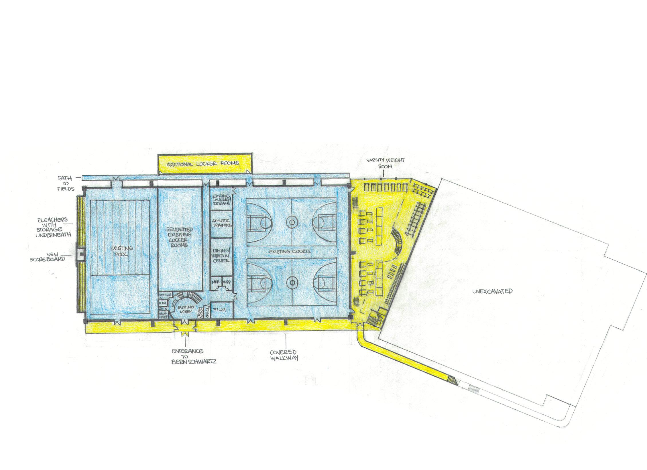
Bryn Mawr College has eleven sports teams that compete at the NCAA Division III level in the Centennial Conference. The existing 50,000 square foot Bern Schwartz Fitness and Athletic Center is used by athletes, athletic administration, faculty, students, and local residents. The facility does not meet the needs of current and future student athletes. The proposed design involved improving the overall athletic experience, while maintaining use for non-athletes, ensuring the building’s design integrates with the surrounding campus context.






The design process required consideration of site constraints, as the existing building sits at a lower topographic elevation than the adjacent parking lot and is surrounded by office and academic buildings. The facility needed to be brought up to Division III athletic facility standards. Bryn Mawr’s basketball, swimming, weightroom, athletic training room, and locker room facilities are too small. The swimming pool and basketball courts do not provide permanent spectator seating.
The locker rooms cannot accommodate all growing athletic teams and their sporting equipment. Due to the size of the athletic training room, it is often crowded which makes it hard for trainers to treat athletes. An improvement to these concerns will raise the standard for Bryn Mawr Athletics and improve recruitment, alumni support, and athletes’ performances.

The existing Bern Schwartz FAC will continue to function mainly as a space for intramural athletics, students, faculty, and locals to use. The addition will be for collegiate sport competition, training, and spectator viewing, attached to the northern end of the existing building. Spectators will be able to enter the addition from the existing athletics parking lot. Upon entering the building there will be an alumni room and trophy display in the lobby.
The building will include a gymnasium for basketball and volleyball competitions with bleacher seating, an Olympic sized swimming pool with bleacher seating, and separate locker rooms for each team. The athletic training room will be next to the multipurpose room and adjacent to the weightlifting center. There is also a nutrition center, athletic administration and coaches’ offices, and a theater style room for analyzing game film and hosting team meetings





cohen.m.j@wustl.