Skip to main content

Interior Portfolio

Page 1


https://issuu.com/madaraw/docs/interior_portfolio

madarawickremasinghe@gmail.com

+1 (515) 708 9727

Madara Wickremasinghe
Interior Designer
Madara.W
Interior Design Portfolio

ABOUT ME:

“Design is in everything we make, but it’s also between those things. It’s a mix of craft, science, storytelling, propaganda, and philosophy.”

As an Interior Designer, I’ve consistently been drawn to creating a wide range of commercial spaces through a hospitality-driven lens—whether designing a multifamily clubhouse, restaurant, or workplace environment. I focus on the details that elevate a space and give it a distinct narrative, always exploring ways to craft memorable experiences through custom elements and thoughtful combinations of color, material, and pattern.

Originally from Sri Lanka, I have 5 years of work experience in a range of projects in retail, residential, and hospitality sectors of Colombo, SL, and 2.5 years of work experience as a Commercial Interior Designer in the United States.

Madara. W

Design Persona

I offer,

- Initial mood boards to establish the desired ambiance

- Concept design and design development

- High-quality 3D renderings to visualize proposed designs

- Detailed construction drawings for contractor coordination

- Construction administration as per design intent

The Addison [Multifamily]

Boathouse [Multifamily]

Ca le [Hospitality]

Luxury Golf Club [Hospitality]

Beacon Rail District [Workplace]

Venture X [Workplace]

Bartillon Shelter [Community]

Park Street Gourmet [Retail]

Fairway Elements Apartment [Residential]

Art Cart [Retail]

Narrative Environments [Hospitality]

Lytton Savings [Historic Preservation]

Montecito Spec-house [Residential]

Pool House [Wellness]

Microhome [Residential]

Crafts [Other]

Veil [Hospitality]

Social Transformation [Community]

Settlers [Retail]

01 The Addison Multifamily

The Addison Phase 2

LOCATION:

2601 Esperanza Crossing, Austin, Texas, USA

The Addison Phase 2 was a multifamily project that I collaborated on while working at Maybeck Design. The space included a new design for their clubhouse, including a game room, lounge space, kitchen and a work from home area. All areas were designed with a hospitality approach that was both timeless and functional.

As the Interior Designer assigned to the project, my initial role was to model both the existing space and the new design in Revit, and create 3D renderings in Enscape to present to the Client. Later on, I also created the technical drawings for this project in Revit (Bid Set), and went on to make adjustments to the design manual and FF&E pricing sheet as needed.

5

Image 1, 2, 5, 6

Final 3D Render (Revit, Enscape, Photoshop)

Image 3

FF&E Package / Design Manual (Canva)

Image 4

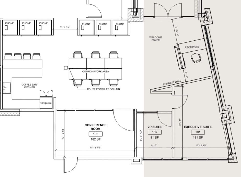
Floor Plan (Revit)

Image 7

Kitchen Elevation (Revit)

Note:

All 3D Renders featured were created by myself in Revit and Enscape.

BOATHOUSE CLUBHOUSE

LOCATION:

2875 Painted Lake Cir, The Colony, Texas, USA

CLIENT: Portico Property Management

Boathouse was a value-add multifamily project I worked on while at Maybeck Design.

As the Interior Designer assigned to this project, my role was to redesign the clubhouse with new lounge groupings, a gaming area, new fireplace finishes, and turn the existing kitchen counter into a bar area that encouraged gatherings next to the outdoor grill station. New lighting was also selected for the space and the ceiling was proposed to be painted white. I also prepared a detailed FF&E pricing sheet for all the furniture selections. The final renders for the space were created by the in-house Render Specialist.

Boathouse Multifamily

Image 8

Final Render [Fireplace & Bar]

Image 9

Final Render [Lounge & Gaming]

Image 10

Floor Plan (Revit)

Image 11, 12

FF&E Selections (Canva)

Image 13

Bar Finishes (Canva)

Image 14

Fireplace Finishes (Canva)

03 Ca lé Hospitality

CA LE

LOCATION: Chicago, Illinois, USA

Ca lé was a conceptual design project I worekd on while at Maybeck Design. The design carried an old-world Mediterranean flair, refined through modern taste and quiet confidence.

Great care was given to the guest experience— from the moment one enters the space. The bar was conceived as the initial “wow” moment, immediately capturing attention from the check-in and waiting area. Centrally located, it was intentionally designed to open seamlessly into both the drinks lounge and dining area, acting as the heart of the restaurant.

Breeze blocks and brick elements were used to create intricate feature walls, while soft curtains, a sculptural fall tree, and modern integrated lighting introduce warmth and balance throughout the space. Antique mirror was also used to discreetly disguise back-ofhouse areas, allowing them to blend effortlessly into a cohesive design experience.

Significant design features are,

1) Centrally located bar that opened both to the drinks lounge and dining area.

2) Intricate feature walls built from breeze blocks and brick elements.

3) Sculptural fall tree, Soft Curtains.

4) Antique mirror disguising BOH spaces.

5) Modern integrated lighting.

LOCATION: Wellington, Florida, USA

CLIENT: Confidential

This was a luxury golf club project I collaborated on, while working at Maybeck Design.

The project included designing the lounge spaces and finishes for the simulator bay area, virtual green putting area, hospitality bar area and conference room.

Key design features in the project included,

1) Integrated phone booths within the bay areas

2) Back wall feature with integrated grab & go smart coolers, and golf storage / display

3) Decorative lighting above the bar area

4) Custom plaid fabric that tied with the brand

Image 22

Final Render

[Simulation Bays]

Image 23

Final Render

[Hospitality Area, Conference Room]

Image 24

Floor Plan (Revit)

Image 25

Inspiration Images (Canva)

Image 26, 27

Design Manual (Canva)

Image 28

Color & Material Palette (Canva)

Beacon Rail District Workplace

BEACON RAIL DISTRICT LEASING OFFICE

LOCATION:

Rail District, Frisco, Texas, USA

CLIENT: CAP Multifamily

This was a multifamily leasing office I worked on, while at Maybeck Design.

The location was an eclectic neighborhood named after the railroad that once shaped its growth. As the Interior Designer assigned to the project, I was inspired by the historic charm and modern energy, and designed a contemporary leasing office rooted in the colors and grit of modern rail infrastructure.

A key feature proposed in the design was the custom wallcovering behind the reception that was instended to be an abstract map of the rail district showcasing all the multifamily properties owned by the Client within the zone.

Final Render

[Reception & Open Office]

Image 30

Final Render [Open Office, Kitchen & Phone Booths]

Image 31 Color & Material Palette

Image 32

Final Render [Conference Room]

Image 33, 34

Design Manual (Canva)

Image 35 Floor Plan (Revit)

LOCATION: Mansfield, Texas, USA

CLIENT: UFG Corp.

This was a workplace design proposal I collaborated on while working at Maybeck Design.

As the Interior Designer assigned for this project, my role was to come up with the inspiration and design elements for the reception and breakroom, and then work together with the in-house Render Specialist to visualize the design. I did the initial modelling of the interior space and the design elements in Revit before handing it off to the Render Specialist for further modification and final rendering.

The design itself showcased a rebranding of the Venture X brand and colors and was meant to be both modern and functional.

Venture X Workplace

Significant design features are,

1) Suspended ceiling feature with globe lights in Breakroom

2) Ceiling cut-out showing exposed ceiling in Breakroom & Reception

3) Built-in banquette along the windows in Breakroom

4) Painted window frames and built-in countertop in Breakroom

5) Reception back wall feature with greenery and angled panel design

Note: Final 3D Renders were done by in-house Render Specialist.

Bartillon Shelter Community

BARTILLON HOMELESS SHELTER

LOCATION:

1904, Bartillon Drive, Madison Wisconsin, USA

CLIENT: City of Madison - Dane County

The Bartillon Shelter is an on-going community project I worked on for the City of Madison, while working at Dimension IV Madison Design Group.

As the Interior Designer assigned to the project, I provided the interior vision for the project. This included designing the Glazed CMU pattern for the Interior, as well as selecting furniture pieces that coordinate with the CMU colors and the exterior colored glass windows. I did all the Interior Elevations for the building, Room Finish Schedules, Finish Plan & Lists, FF&E Package, as well as initial pricing for the furniture.

Note: All 3D Renders were done by me, the Interior Designer for the project.

Image 42, 43

Final 3D Render (Revit, Lumion, Photoshop)

Image 44, 45

Alternate Pattern (Revit, Lumion, Photoshop)

Image 46 Color Elevations & Legend (Revit)

Image 47

FF&E Selections (Bluebeam)

Image 48 First Floor Plan (Revit)

Glazed CMU

PARK STREET GOURMET

LOCATION:

Park Street, Colombo 2, Sri Lanka

CLIENT: Suren Mirchandani

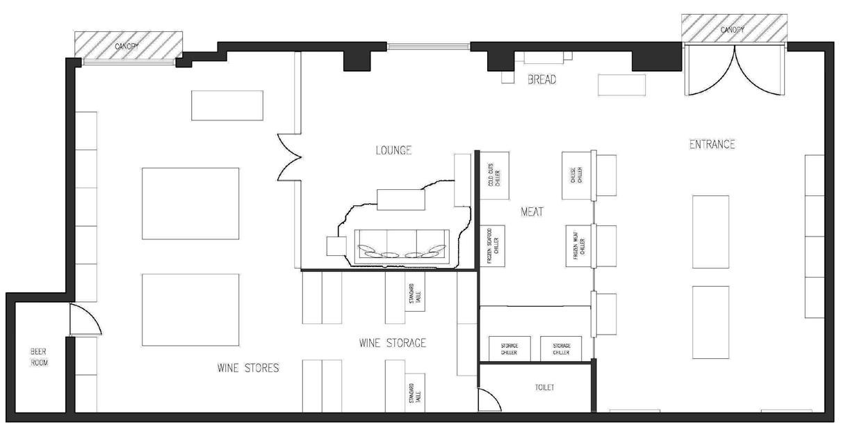
This was a meat and wine gourmet project I worked on while at Canvas Interior Design Studio, Sri Lanka.

As the Interior Designer assigned to the project, I provided the full Interior Design solution, completing the conceptual stages, detail drawings, project management and construction supervision till turn-key.

The captured photos of the final outcome shows,

1) The tea area

2) The wine store

Image 49

Photo of Final Outcome

[Tea Area]

Image 50 Floor Plan (Autocad)

Image 51

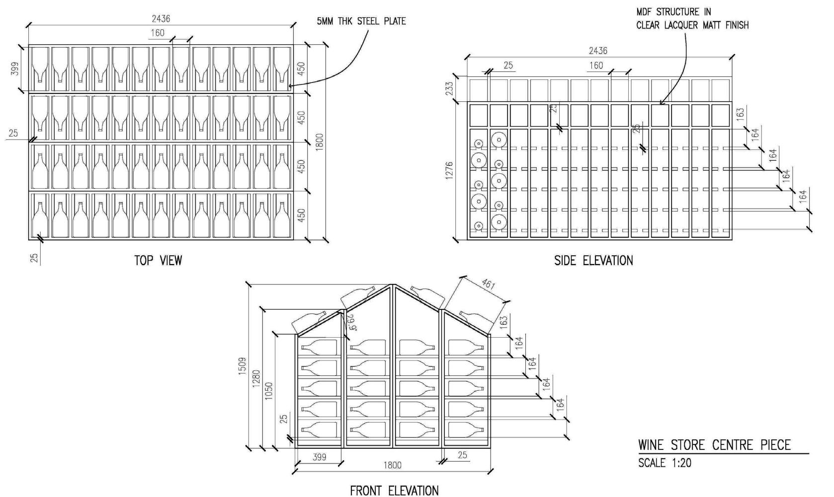
Details of Centerpiece Bottle Display (Autocad)

Image 52, 53

Outsourced 3D Renders

Image 54

Photo of Final Outcome [Wine Store]

Note: All 3D Renders were outsourced by the company, and are shown here only to reflect the design and process.

Significant design features are,

1) The tea wheel used as a wall-feature

2) The glass partition entrance to the wine store, that acts as a wine display

3) The centerpiece bottle display

4) Floor-to-ceiling bottle racks

5) Wine window display

6) Cashier table with a wine barrel for base

Fairway Elements Apt. Residential

28B FAIRWAY ELEMENTS APARTMENT

LOCATION:

Fairway Elements Apartment Complex, Rajagiriya, Sri Lanka

CLIENT: Ashen Appuhamy & Nikita Samarasinghe

This was an apartment project I worked on while at Canvas Interior Design Studio, Sri Lanka.

As the Interior Designer assigned to the project, I provided the full Interior Design solution, completing the conceptual stages, detail drawings, project management and construction supervision till turn-key.

The captured photos of the final outcome shows the,

1) Terrace area inclusive of a private home bar

2) The Living Room, Dining Room and the Terrace as seen from the entrance.

3) The Master Bedroom & Guest Bedroom

Image 55

Living & Dining Rooms]

Image 56

Image 57 Floor Plan

Photo of Final Outcome
[Terrace,
Photo of Final Outcome
[Terrace with Home Bar]
(Autocad)

Note: All 3D Renders were outsourced by the company, and are shown here only to reflect the design and process.

Narrative Environments in Hotel Design

Narrative Environments in Hotel Design was my Graduate Thesis and Creative Component. In Experiential Design, Narrative Environments refer to designed spaces that allow users to engage with the space’s storytelling and narrative. Users traverse a multidimensional process with 2D texts & images and 3D space & time changes that can induce critical thinking. My research investigated how narrative environments can be used in hotel design to revamp existing themed hotels - by subtly capturing the essence of a culture or situation through storytelling elements, rather than directly imitating a place that allows no deeper reflection.

The process included analyzing 6 themed hotel main lobbies in Las Vegas by applying narrative theories. The case studies and interviews with hotel staff led to the development of 8 guidelines for applying narrative environments to hotel lobbies.

Image 63, 65

Infographic [Photoshop,

Image 64, 66, 68 - 70

3D Render (Revit, Lumion, Photoshop)

Image 67

Enlarged Floor Plan [Revit]

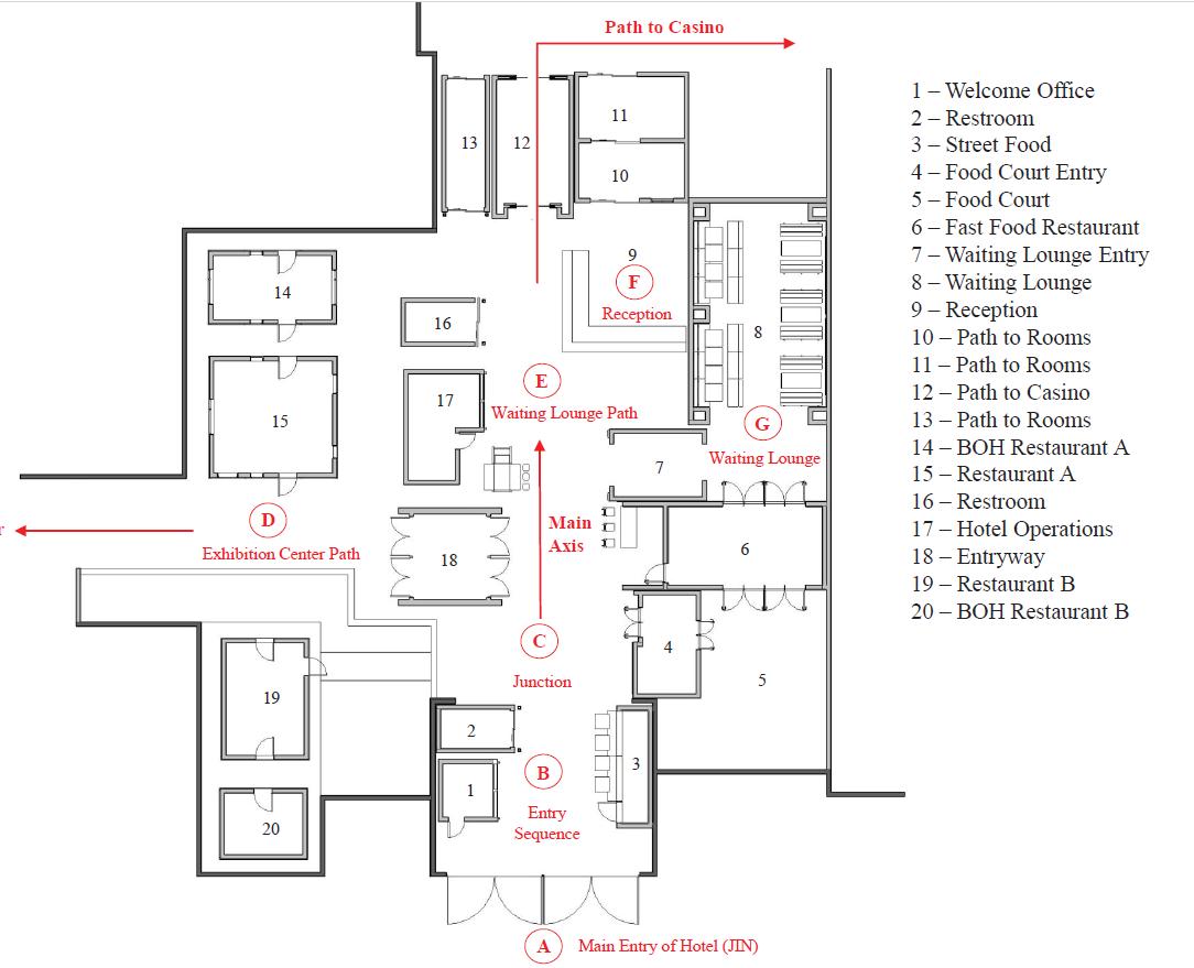
In a creative component, I applied those guidelines to a castle-themed casino hotel in the Midwest. I proposed a new theme for the hotel lobby, which focused on blending the nuances of Southeast Asian culture with the modernity of Western culture. The design aimed to reflect on the contrast between Western society’s preference for brightness and Eastern cultures’ appreciation for shadows and traces of light.

I introduced vibrant colors into dark spaces, experimenting with colors that infuse energy. Based on the theme, I further applied the Guidelines for developing the ‘story’ by establishing a recurrent context along the main axis, shifting the mood dramatically, and incorporating messages that invited guests to explore the narrative space. The journey included rising action, dramatic reveals, and turning points, to maintain a transformative experience until the user reached the reception.

Illustrator]

Lytton Building

LYTTON SAVINGS & LOANS BUILDING

LOCATION:

Sunset Boulevard, Los Angeles, California, USA

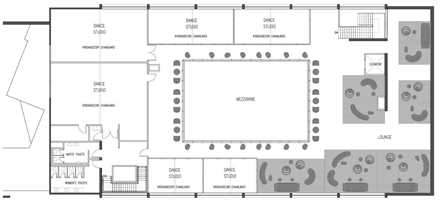
This was a Rehabilitation Design Proposal for the historic “Lytton Savings & Loans” Building (Now a Chase Bank). My proposal was to rehabilitate it as a Performance Center that operates as a Dance Studio during the days and holds Comedy Dance shows at night. In the proposed design, character-defining architectural elements were preserved, along with their material finishes, as is required in Historic Preservation. To hold comedy shows, a thrust stage was incorporated into the design with the “Darricarre” screen (a significant historic element of the original interior) as its backdrop. The existing glass partitioned spaces were utilized to create studio areas to hold dance classes during the day.

Some of the major characteristic features preserved are, (among others)

1) Zig-Zag folded concrete plate roof

2) Clerestory enamel windows & glazing

3) Cantilevered second floor

4) Bouque canyon wall

5) Stone travertine panels

6) Open plan with full-height lobby

7) Mezzanine with wooden railing

8) Roger Darricarrere screen

9) Original bank counter

Image 71, 74 - 76

3D Render (3DS Max, VRay)

Image 72

Second Floor Plan (Autocad)

Image 73 First Floor Plan (Autocad)

MONTECITO ULTRA-LUXURY SPEC-HOUSE

LOCATION:

850, San Ysidro Road, Montecito, California, USA

This was an ultra-luxury spec-house proposal for an empty lot located in Montecito. Since tropical architecture has a high demand in Montecito, my proposal was to introduce a new form of tropical design inspired by my own roots and heritage. Hence, the house was based on Sri Lankan Architecture, which has a rich history associated with Sinhalese royalty, infused with colonial influence.

A colorful twist was introduced to traditional design elements, where the residence incorporated Sri Lankan arts and crafts fit for luxury living.

The proposed design was a 3-bedroom spec-house of 5977 Sqft, with an accessory dwelling unit of 1298 Sqft.

Image 77 - 78, 3D Render

(3DS Max, VRay)

Image 79 Floor Plan (Autocad)

Image 80 - 82 3D Render (3DS Max, VRay)

Key Sri Lankan architectural elements in the design are,

1) Red tiled roof, courtyard with columns

2) Gabled roof and wooden rafters in ceiling

3) Cascading steps and a lotus pond

4) Antique and modern furniture from Sri Lanka

13 Pool House

Wellness

POOL HOUSE

LOCATION:

U.S. Ambassador’s Residence, Tokyo, Japan

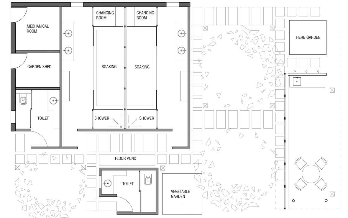
This was a Pool House Proposal done for the U.S. Ambassador’s Residence in Tokyo, Japan, as a pair project during my Masters studies at Iowa State University. At the request of the client, the pool house was to incorporate,

1. Two showers, two toilets, two changing rooms

2. A mechanical room and a garden shed

3. A small herb and vegtable garden

4. An area with a counter and outdoor furniture for small pool gatherings

5. A canopy for the pool

The design concept was to blend Japanese and Moorish elements to create a unique style. It was done as a nod to the original design of the U.S. Ambassadors Residence, which too was a mix of Japanese, Moorish and Classical styles, created at a whim of the architects involved. A key feature of the pool house was the handcrafted Kumiko screens used as a dividing wall between the compartments.

Image 83 Floor Plan (Autocad)

Image 84 - 87

3D Render (3DS Max, VRay)

Note: All 3D Renders were done by me during my Masters Studies.

MICROHOME

LOCATION:

Regent’s Canal, London, UK

The Microhome project was part of an Advanced Visualization class taken at Iowa State University. It was designed for a modern day couple that enjoys travelling and diving. They would spend their time living on water, travelling along the Regent’s Canal in London, UK. While diving is their passion, they can also use it to support the community. Each time they go under water, they can help remove the garbage in the canal and do good to the world.

The design was inspired by a whale rising from the water. The color scheme of blues and greys was inspired by the same. The total living space was 270 sqft, and included a kitchen, living room, bathroom, storage closet and a loft that acted as the bedroom. Other features included a deck around the home, a roof terrace partially covered by a canopy, and solar panels on the roof to supply electricity.

Image 91

First Floor Plan (Revit)

Image 92 Section (Revit, Photoshop)

Image 88 - 90, 93, 95

3D Render (Revit, Lumion, Photoshop)

Image 94

Concept Diagram (Illustrator)

Renders were done by

Concept Diagram

Art Cart Retail

ART CART

LOCATION: Battaramulla, Sri Lanka

CLIENT: Sumudu Hettiarachchi

This was a Retail project I undertook while working as a Freelance Interior Designer in Colombo, Sri Lanka.

The client brief was to design an elegant store with custom-made displays that fit their brand Art Cart and its products.

My scope was to provide the design and detail drawings. For this project, I outsourced the 3D Renders.

Note: For this project, I outsourced the 3D Renders. They are shown here only to reflect the design and process.

VEIL

“Veil” is a nightclub and bar project completed during my undergraduate studies.

My idea was to design a nightclub for conservative societies, where night life is not fully accepted. To balance out this situation through the design of the space, I came up with a concept that allowed people to be seen but not identified.

This was achieved by the usage of,

1) Colored dichroic filters that reflect two different colors to distract people.

2) Mirrors to disorient the view by reflecting and camouflaging with the background.

3) Sand-blasted glass to blur out the images of people.

17 Social Transformation Futuristic Community

SOCIAL TRANSFORMATION

“Social Transformation” was my Undergraduate research project. It was a futuristic project set 100 years in the future, where societal laws have allowed a positive transformation in the quality of life of convicted criminals. Currently, convicts experience a low quality of life and stunted personal growth, separated from human contact behind walls. In my design, I attempted to bring the society to them, rather than putting them back in the society, in a way that can enhance their quality of life, without endangering the security of the public.

This was achieved by locating the living spaces of convicts in an area that people regularly pass by, such as an underground subway station. The built-environments would have glass barriers around them to protect the public from the convicts. But they would also provide innovation facilities to help channel criminal obsessions to productive outputs, (art/ craft, books etc.) enabling fascinating topics for the passers-by to use as a conversation point.

Image 108

3D Render (SketchUp, Photoshop)

Image 109

Project Poster (SketchUp, Photoshop, InDesign)

Image 110

Rendered Plan (SketchUp, Photoshop)

Image 111

Rendered Section) (SketchUp, Photoshop)

Image 112

Spatial Model

Image 113

Project Proposal

SETTLERS

This was a retail store completed during my undergrad studies. My idea was to design an experiential board game store, that brought back an interest in board gaming.

This was achieved by creating a unique gaming experience with a larger board-gaming space, where human interaction was key-play.

The shapes, materials and color were inspired by the German game “Settlers of Catan”. Rising levels of gaming areas were introduced as an indication of the high competition and constant fluctuation of emotions often seen during board game play.

Image 114

Rendered Extruded Plan (SketchUp, Photoshop)

Image 115

3D Render Bird’s Eye View (SketchUp, Photoshop)

Image 116

Rendered Section (SketchUp, Photoshop)

Note: All 3D Renders were done by me

Crafts

Jewelry

Furniture

JEWELRY & FURNITURE DESIGN

During my Graduate studies at Iowa State University, I took an Advanced Furniture Design class and a Jewelry Design class. As part of the curriculum, I designed and built 3 pieces of life-size furniture inspired by my roots. These included a meditation stool, a mini-table and a 3-legged side table that utilized Sri Lankan furniture design techniques, as well as elements from Buddhist culture.

For the Jewelry Design class, I designed and handcrafted a Sweat Soldered Ring, inspired by the traditional demon masks of Sri Lanka - a craft that originated from an ancient belief that demons are capable of healing disesases found in man. The ring depicts 3 such demons with healing powers. Also included is the wedding ring I designed for my husband, which was an interpretation of “Madara”, a mythological flower that grows in heaven as per Sri Lankan folklore. Blended into the floral design are the letters for “Ma-da-ra”, in my native language “Sinhala”.

Madara.W

Thank You

My very first Interior Design model created in the College Admission Portfolio Program, representing the concept “Color”. My idea was to create a sensation within the observer that allows him to imagine being placed in the model itself, walking amongst the color and feeling the different moods and emotions that color has the ability to create.

Turn static files into dynamic content formats.

Create a flipbook