Rishi Tej Aritakula

Page 1

Co-living

A strategy for the present.

Thesis Statement:

This thesis will explore the Model of Co-Living in the Northside neighborhood as a response to increasing demand for housing. Mainly targeting young professional and students as the audience.

“ “

Architectural Problems

Shortage of campus housing at UC

Cincinnati Housing gap

1 2
3 4 Loneliness
Increased rents in Cincinnati
Site Northside

Potential Sites

Northside
Site Streets Setbacks
Ground floor vol First floor vol
Diagrams
Negative space Built up permit Total Built up Shared vs private spaces
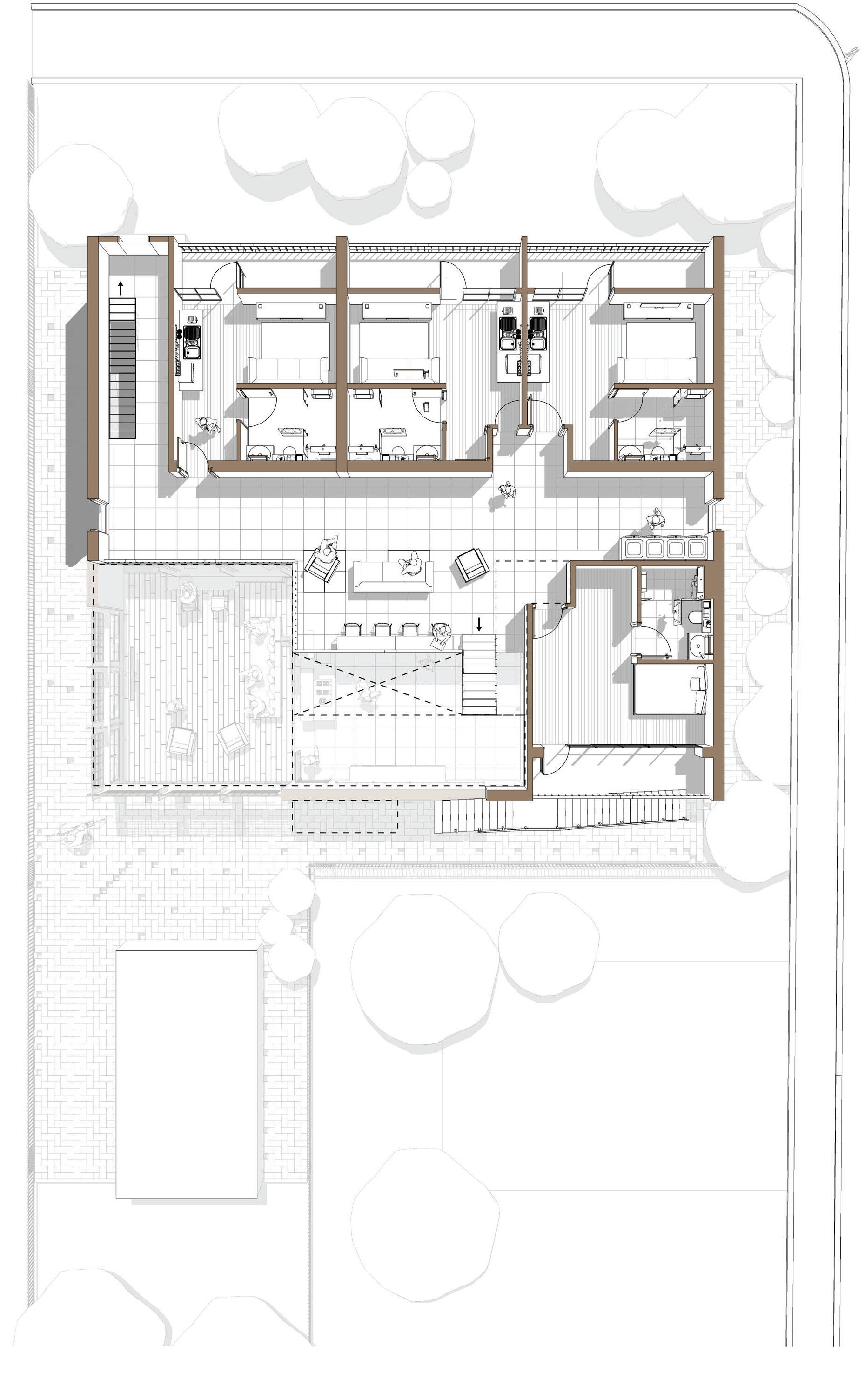
Ground floor plan A C B
First floor plan

Volumetric diagrams

1.5 floor plan
Site Plan
Module 1 Shared space ground floor Shared space First floor Module 2

Shared Space

Private Space

Combined Space

floor

Elevations

Section 2
Section3
Interior View Interior View
Interior View

Turn static files into dynamic content formats.

Create a flipbook
Issuu converts static files into: digital portfolios, online yearbooks, online catalogs, digital photo albums and more. Sign up and create your flipbook.
Rishi Tej Aritakula by DAAP | School of Architecture and Interior Design - Graduate School - Issuu