Zekun Liu | Cornell AAP | Architecture Portfolio

Page 1


Zekun Liu
Cornell University, M.S. Advanced Urban Design
Tongji University, Bachelor of Architecture

Phase I Reconstruction of Treatment Units

Site: Zhoupu Town, Pudong New District, Shanghai, China

Instructor: Chen Qin Individual work

Phase II : The Manifestation of Spillover Effects in Migratory Bird Conservation Areas

Site: Chenjia Town, Chongming District, Shanghai, China

Instructor: Chen Qin Individual work

Phase III Aging Adaptable Renovation of Elderly Street Blocks

Site: Kongjiang Community Yangpu District, Shanghai, China

Instructor: Yong Chen Individual work

Phase : Architectural Relics in Response to Urban Demand

Site: East Harlem, Manhattan, New York, New York States

Instructor: Shachi Pandey Group work

Phase II : Architectural Relics in Response to Urban Demand

Site: Sunnyside Yard, Queens, New York, New York States

Instructor: Vishaan Chakrabarti Individual work

Phase III Aging Adaptable Renovation of Elderly Street Blocks

Site: Flushing, Queens, New York, New York States

Instructor: Jae Shin & Damon Rich Group work

Phase IV Discussion on Architectural Relics serving as Urban Public Space

Site: Hefei Road Huangpu District, Shanghai, China

Instructor: Yiru Huang Individual work

CHAPTER I ARCHITECTURE DESIGN WORKS

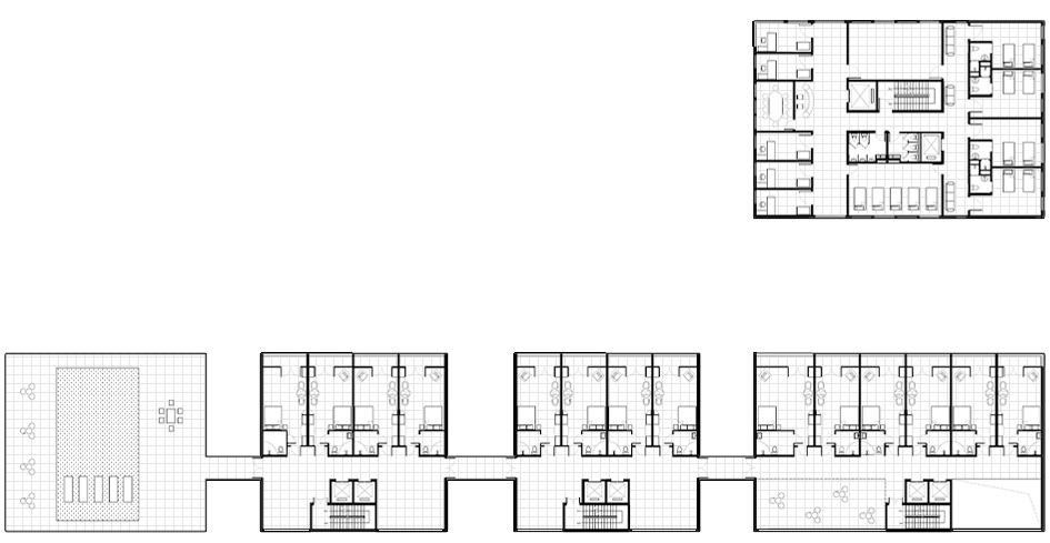
01 Criss and Cross

Phase I : Reconstruction of treatment units

Site: Zhoupu Town, Pudong New District, Shanghai, China

Individual work

Under the transformation of cities, the healing needs of citizens are undergoing a qualitative change. We need to trace the origin and structure of medical spaces, trace the development history of medical space models, and thus carry out the revival of medical spaces

We conducted typological research on medical spaces starting from the Hippocratic era, and based on this, based on the evolution process of medical spaces and abstract conceptual models, we determined a new organizational model for medical spaces, and returned the sunlight and wind that had disappeared in the evolution of medical spaces for nearly 2000 years to patients, To balance the quality of urban space and the economic benefits of development in urban development that maximizes highly measurable economic indicators, a citizen should take the necessary thinking and responsibility.

Discussion on Medical buildings Prototype

The prototype of the hospital can be traced back to monasteries, and the most important feature of the layout of monasteries is that all healing units are organized by a sunny courtyard in the center, forming a space full of sunshine and strong centripetal force. However, Medical innovation is currently developing rapidly; However, since the 1950s, the construction methods of hospitals have hardly changed.

TYPE INDUCTION LAYOUT

The Shanghai International Medical Park has excellent geographical conditions, which is very different from other existing medical comprehensive centers in the world. The construction of the surrounding environment in densely populated cities is often a problem. Instead, this medical park occupies a large area of the natural environment and is built to showcase how a comprehensive medical center can truly achieve the ideals of health and environmental protection.

The medical park has applied a development framework that organizes the circular radiation development of the entire park: arc-shaped forests, parks, lawns, fruit forests, gardens, and other natural landscapes have symbolic and functional significance, giving our healthy community a vivid symbiotic feature with nature. Just like the tree rings in the trunk, this green circular pattern serves as the framework for determining the expansion of the park, permanently linking our medical facilities with the beautiful nature. As a community that values healthy life, it is perfectly appropriate to describe it as a tree of life.

Reforming the doctor-patient relationship

Division

Public-Space

Spatial order

In order to reproduce the past sunny and vibrant medical space similar to a monastery style, but we also need to consider the limitations of the entire urban space and the economic costs that patients can bear. Therefore, we need to develop a new architectural prototype that can implant organic voids into the reinforced concrete forest. In the past, due to the limitations of productivity, it was difficult for buildings to achieve vertical breakthroughs in scale. However, after experiencing many leaps in productivity, the scale of buildings is no longer limited by height. However, in the pursuit of maximizing economic benefits, there are almost no gaps in height for buildings. Up to now, people's productivity has undergone a qualitative leap, and they are increasingly pursuing the quality of architectural space. Therefore, moving pleasant courtyards into the air is an exciting thing. In the past, technological and economic conditions were difficult to support the birth of aerial courtyards. The entire building follows a logic from individual units to the whole. In the process of deducing the architectural form, small wooden bars symbolize the most basic unit of the building and represent the simplest work unit. The bottom plate of the model represents the texture of the entire building in the urban space, reflecting its urban attributes. The overlapping and enclosure of the initial work units formed a small courtyard, establishing a larger level of cluster units, allowing for further expansion on this

Vertically overlapping boxes I
Vertically overlapping boxes II SECTION

Framework Construction

Manufacturing in a factory environment allows for better quality control. Each building component can be manufactured under controlled conditions, reducing uncertainty and variables that may occur on site.

Most prefabricated construction work is completed in a factory environment, which reduces the exposure time of workers in hazardous environments compared to traditional on-site construction, thus helping to improve construction safety.

Prefabricated buildings usually require a relatively short time for on-site assembly, reducing interference with the surrounding environment and residents, making them particularly suitable for construction in densely populated urban areas.

"Architecture is a living entity, and it should "spring and fall" like any living entity in nature, and be replaced by new ones when it Withers, and eventually the city will continue to exist like a forest."

Prefabricated CLT units

Healing Unit I: Hospitalization

User: Inpatient

Function: Hospitalization treatment

Requirement anchoring: meeting the customized needs of patients for inpatient treatment

Service life: expected to be ten years

Bacterial contamination level: high

Demand intensity: changing with urban development process

Research Unit I: Office+Research

User: Researchers

Function: research and analysis, medical seminars

Requirement anchoring: meeting the daily work needs of medical researchers

Service life: estimated to be ten years

Bacterial contamination level: low

Demand intensity: high

Research Unit II: Experimental+Surgical

User: Doctors and researchers

Function: Surgery, experimentation, research analysis

Requirement anchoring: Recording the process of each surgery in good condition for research purposes

Service life: Estimated to be ten years

Bacterial contamination level: Low

Demand intensity: high

Healing Unit II: Consultation+Treatment

User: Inquiring patients

Function: Disease diagnosis

Requirement anchoring: meeting the basic needs of patients for consultation

Service life: expected to be 20 years

Bacterial contamination level: high

Demand intensity: constant

The Flexibility of Terrace over time

02 SLOPES & NAILS

Phase II : The manifestation of spillover effects in migratory bird ecological conservation areas

Site: Chenjia Town, Chongming District, Shanghai, China

Individual work

The Chongming Dongtan Wetland is located on Chongming Island in Shanghai, China, and is one of the important channels for the migration of East Asian migratory birds. This is a resting place for many migratory birds during spring and autumn migration, providing them with a place to rest and replenish their energy. The abundant benthic animals and aquatic plants here provide a diverse source of food for birds, attracting nearly a million migratory birds to settle or transit here every year. In 2002, Chongming Dongtan was officially listed as an internationally important wetland and is recognized as an ecologically sensitive area with global significance. In recent years, Dongtan has received increasing attention and is currently applying for World Heritage How to better protect migratory birds will be a bigger issue for Chongming.

Migration Pathways of East Asian Migratory Birds

The East Asia Australasia fIight route is one of the greatest fIight routes in the world. At its northernmost point, it extends eastward from Russia's Taimyr Peninsula to Alaska. Its southern end includes Australia and New Zealand. Between these two extremes, the flight route covers most of East Asia, including China, Japan, South Korea, Southeast Asia, and the Western Pacific. During the migration process, water birds rely on a high-yield wetland system to rest and forage, accumulating enough energy for the next stage of their journey. The eastern coastal areas of China play an indispensable role in the migration of waterbirds as a transit station on the migration path of birds.

Important habitats

Normal Habitat

Migration pathways

Eastern migration line

OverfIow of habitat conservation areas

Longitude and latitude

Chongming Island Migratory Bird Activity Area

They inhabit lakes, ponds, andswamps in plain and semi desertareas,and sometimes also in coastalponds and saline alkali marshes. During migration, it often appears inrice paddies and fish ponds.In winterit mostly inhabits coastal andestuarine areas.

They inhabit inland lakes, ponds,estuaries, reedmarshes, rice paddies, coastal islands,and coastal reedmarshes

During the breeding period, it mainly inhabits open and remote plains, grasslands, and swamp areas, especially rivers, lakes, ponds with sparse tree growth, as well as riverbanks and swamps. Sometimes, it also inhabits and activities in remote residential areas and rice fields with shoreline trees.

During the breeding period, it mainly inhabits open lakes, ponds, swamps, slow-moving rivers, and adjacent tundra lowlands and tundra swamps. In winter, it mainly inhabits large lakes, reservoirs, ponds, and river bends where reeds, cattails, and other aquatic plants are abundant. It also appears in wet grasslands, flooded plains, swamps, beaches, and estuaries.

Platalea minor

Cygnus columbianus

Recurvirostra avosetta

Ecological benefits overflow area

Ecological wetland forest

Recurvirostra avosetta

Migratory bird circulation

Rivers and water bodies

As the temperature drops, more migratory birds come to Shanghai, but some have to leave to find a more suitable environment for winter. For example, the number of Oriental white storks in the Dongtan Nature Reserve has decreased to more than ten in recent days, while the rest have flown away. The number of black faced spoonbill, a national first-class protected animal, reached its peak in the Dongtan Nature Reserve in early October, and then gradually flew south. They mainly spend their winter in Hainan and other places. Little swans mainly spend winter in Poyang Lake, so they also have to leave Shanghai after a period of time. Of course, there are also some migratory birds who will stay in Shanghai for the winter. For example, the second level protected animal, the white spoonbill, winters in the middle and lower reaches of the Yangtze River, and the white headed crane stays in the Dongtan Nature Reserve for the winter until March next year.

"Statistics show that a bird released in Australia will lose half its body weight when it flies to Shanghai. But compared to those who die during the migration, this is the greatest luck."

Ciconia boyciana
Chongming Dongtan wetland
Hainan Ecological Protection Area
Guangdong Wetland Protection Area
Southern Fujian Wetland Group
Bohai Bay Wetland

Ecological Protection Spillover Effect of Dongtan Wetland

At present, the forest resources and mudflat resources of Chongming Island have soared, and the ecological resources of the island account for about 30% of the city's total area; The functions of water conservation and biodiversity maintenance account for about 80% of the city's total, and the supply of ecosystem services such as air purification, carbon sequestration and oxygen release, and heat island mitigation exceeds 50% of the city's total. As an internationally important wetland and a must pass destination for international migratory birds, Chongming Ecological Island accounts for over 1% of the global population, with 11 species of waterbirds.

Land properties in the vicinity of migratory bird activities

Ecological Cycle Analysis of Migratory Bird Protection Wetland Forest

The migration route is the result of years and is generally not easily changed. During this process, they briefly stay to store energy. The ecological environment is beautiful, and the shallow beaches and wetlands along the lakeside contain abundant food, so migratory birds are willing to come. Especially after the successful application for the World Heritage Site of Dongtan Wetland on Chongming Island, the 100 square kilometers of wetland area has provided migratory birds with more food choices.

Scirpus× mariqueter Tang et Wang Calamus
Freshwater Fish
Crustaceans
Rhododendron
Bird 's Footprint
Bird 's

Conceptual Narrative

Wetland forests are poetry. Starting from the source of ancient Chinese poetry, the Book of Songs, it has possessed the beauty and rhyme of poetry, and linked the expectations of poetic and picturesque feelings with migratory birds, presenting a harmonious and beautiful picture. As a outpost for bird migration research, it needs to convey both the relationship between bird migration and wetlands and appropriately express the fIuctuations of human emotions.

I- Multidimensional Narrative

II- Weaving between regions while setting boundaries

III- From soil to rammed earth walls

Ecological Protection Spillover Effect of Dongtan Wetland

The emotional connection between wetlands and migratory birds is prominent, conveying not only the relationship between migratory birds and wetlands, but also appropriately expressing the fluctuations of human emotions. Wetlands are poetry, and as a building, outposts possess the beauty and rhyme of poetry, and are associated with migratory birds with poetic and picturesque expectations, presenting a harmonious and beautiful picture with people.

General Layout

Compared to materials such as wood and stone, rammed earth has a longer history as a building material. With the development of the times, the urbanization process has made it difficult for people to see the use of rammed earth materials and understand their advantages. As a highly breathable building material, the effective adsorption of dust particles endows it with unique environmental improvement properties, and the "breathing" performance of rammed earth is also derived from this. Rammed earth materials have low thermal conductivity, good thermal stability, and strong heat storage capacity, and are endowed with the function of regulating warmth in winter and coolness in summer. Even if rammed earth buildings face demolition in the future, rammed earth can still return to the soil without generating construction waste, achieving a closed loop of recycling.

They build their houses out of earth,From nature and back to nature
Atrium
Comparison of carbon footprint with concrete production process
The carbon footprint of rammed earth walls

In the hearts of ancient Chinese poets, the silent wetlands were cleverly connected to the migratory birds, connecting various subtle and rich emotions such as homesickness and faint sorrow, making them constantly sublimated and more abundant. The imagery of migratory birds migrating is closely linked to the alternation of seasons, the passage of time, the expression of wanderers, and the longing for women leaning against railings, making the bond between borderless migratory birds and dynamic wetlands more vivid and emotional, and adding a deeper and more resolute fIavor to the difficulties of migration. Therefore, it is our human responsibility to protect such lovely birds.

Birds cannot recognize the difference between the physical object and the mirror image, so reducing the use of glass can help birds better identify the difference between obstacles and the environment, thereby reducing casualties. Therefore, all glass in this project is small, sky facing patterned glass, minimizing reflection while meeting lighting conditions.

Bird friendly architectural details handling
Anti-collision patio
Branches-imitating columns

By 2050, 44% of the world's population will live in countries with higher levels of aging (at least 20% of the population will be aged 60 and above),one quarter of the population will live in countries where the proportion of people aged 60 and above exceeds 30%.

——The Great Population Reversal

03 The elderly

Phase 3 Aging Adaptable Renovation of Elderly Street Blocks Site: Kongjiang Community Yangpu District, Shanghai, China

Individual work

In China, "family elderly care" is deeply rooted in traditional Chinese beliefs. Even in situations where there is a severe shortage of elderly housing, most elderly people are still distributed in self occupied housing rather than concentrated elderly housing (or nursing homes). Self occupied housing is distributed throughout cities, and with the growth of the aging population in the future, the spatial distribution of the elderly population will expand, occupying various corners of the city. However, neither the existing community nor living conditions can meet the needs of the elderly. Lack of in-depth material and spiritual thinking will make elderly people a burden on their families, unable to live independently and participate in community communication, and thus excluded from society. Therefore, in recent years, more and more urban managers and designers have been committed to exploring new residential models, aiming to improve the housing problems of the elderly before the arrival of the silver wave

Urban landscape and population structure evolution

In the process of aging in Shanghai, the population structure is

and

Social Structure of Self-Sufficient Communities

systems. In the highly aging society in the future, it will be inevitable for the elderly to assume a certain social division of labor. If the elderly can assume part of the social division of labor within their own residential areas, it will reduce a lot of burdens or pressures for both the residential areas and the society. Therefore, the establishment of a self-sufficient elderly community will be a very good solution to the problem of future elderly overpopulation, which is one of the best choices for the city.

Vision of the self-sufficient community

The pedestrian flow is introduced into the building through large steps, and various zones are entered on the connected platform on the second floor. The canyons in the building allow light and wind to enter the interior of the cluster, and finally form a spatial center of gravity with a square.

Crowd flow and time period

The activity time of the elderly and young people is relatively scattered, but they can form a relatively rich range of activity content from 18:00 to 22:00 in the evening, which is evenly distributed in various areas and reflects the vitality of the community.

We extracted features such as "arches - horizontal spatial extension" from traditional alleys, and highlighted this spatial form through abstract simplification. Through vertical repetition and deduction, we restored the spatial texture of the original alleys through the repetition and array of arches. Finally, fine-tuning was made within the grid based on functionality, resulting in the final architectural form. Line and Arch Transformation Repetition and Subdivision Functionalization

The elderly and middle-aged can form a good complementary relationship in time and space. The working hours of middleaged people can serve the rest time of the elderly, and the elderly can provide them with the help they can during their rest.

These different activities occur at different times and in the same place, which can maintain the sustained vitality of the community.

Establishing spatial order
Vocabulary extraction of "lane"

Flexibility of residential units

The whole building relies on columns and walls to bear weight, while part of the wall panels do not have load-bearing functions, so they can be disassembled for unit reorganization. Therefore, with the change of time and the change of residents, the residential complex can always adjust the scale and merge the rooms according to the residents.

Aging friendly furniture

When considering the aging design of the apartment interior, it is very necessary to carry out multi-dimensional aging. First of all, it is necessary to ensure that there is a very easy to touch alarm system in the apartment so that the elderly can send a notification signal in the first time when an emergency occurs; Secondly, the layout of the moving lines inside the apartment should fully consider the activity radius of the elderly and the possible radius of the wheelchair. At the same time, the interior of the apartment needs a complete and continuous handrail system to facilitate the elderly to support their bodies; In addition, the anti-collision anti-slip details of the ordinary area of activity need to be considered in place.

A quiet and lively neighborhood

The old people will have their favorite activity space at all times, whether it is private or public, noisy or quiet, full of sunshine or quiet and dim, the old people can always find a place that belongs to them. In these places they are not the old, quiet old people we usually recognize, they are the protagonists of these places, and the protagonists of this community. It is very important for the sensitive elderly to construct a fine-differentiated public space network from low energy to high energy.

Flexibility of residential units

On the one hand, the block faces the bustling modern city and on the other hand, the historic district with strong life atmosphere. Therefore, the block plays the role of an urban metronome. It softens and diverts the surging energy from the city so that it can flow like a trickle into the quiet living block. At the same time, he also amplifies the vitality of the living block and the fireworks, channeling the trickling vitality of the inner block into the steel forest. Therefore, it is not only a metronome, but also a megaphone, which plays a role in completing the missing scale between the city and the block, establishing a bridge of communication between the urban space and the street space, and improving the amenity of the urban public space system.

The installation of double Windows can effectively shut out the noise. The air layer between the two layers of glass absorbs and mitigates sound transmission.

The ventilation glass and lighting glass are separated, and the lighting is carried out through the large floor-to-ceiling Windows, so that the elderly can ensure four hours of sun every day whether it is the winter solstice or the summer solstice. At the same time, there is also a completely outdoor balcony in the apartment for the elderly to fully contact with the sun and air.

Thermal

The thermal bridge effect is reduced by vacuum treatment at the junction of materials with different thermal conductivity. At the same time, because there is a large number of glass directly in contact with the outdoor air, it is also necessary to deal with the details of the thermal insulation effect of glass, and we need to use a three-glass two-cavity window structure for thermal insulation. Thus, it can reduce the building can be good and create a uniform and constant indoor space for the elderly, reduce the risk of infection of the elderly and ensure the health of the elderly.

04 The revival of lanes

Phase IV Architectural Relics in Response to Urban Demand Site: Hefei Road Huangpu District, Shanghai, China

Individual work

In the discussion of Shanghai's urban culture, urban life and urban redevelopment, "the preservation and waste of Shikumen Alley" has become an important issue that must be answered. Shikumen Lialley is closely related to the natural and social environment before urbanization. With the continuous evolution and enrichment of urban housing types and the formation of internal differences in urban space, Shikumen Lialley has gradually degraded from a popular living space to a social marginal space in the sense of contemporary urban redevelopment. As a cultural heritage and popular living space, the "survival" and "waste" of Shikumen Lanes depend on the consensus and cooperation of historical preservation and other urban affairs in "promoting community development". Only by empowering Shikumen architecture and exploring its new social responsibility in the new era can we protect it in its true sense.

Reflection on Shanghai Shikumen Lilong Rehabilitation -- Liu Gang

The historical texture inside the block Research on Protecting Buildings

In 1900-1910, the road network was basically completed, incorporated into the urban map, and housing construction began. From 1910 to 1930, it was built on a large scale and basically fixed the urban spatial appearance. From 1937 to 1949, the construction slowed down and the historical neighborhood pattern of the 1930s was retained. After entering the 21st century, the spatial texture of the surrounding cities has almost completely changed, forming a relatively isolated historical texture zone.

Among the service facilities within the 15-minute living circle around the base, there is an obvious lack of community-level public service facility land, the distribution of convenient businesses is small, the elderly lack of activity places, and the youth lack of culture-related places.

For Shikumen Linong as a cultural heritage and popular living space, the realization of its regeneration needs to focus historical preservation and other urban affairs from their original focus to the common problem of "promoting urban community development". Many aspects of urban problems in contemporary China are derived from the disconnection between urban development and community development, as well as the resulting single mode of spatial reproduction, insufficient innovation in spatial forms, short-sighted utilization of spatial resources, and unreasonable distribution of spatial benefits. Cities must recognize that a shift to respect for civil rights, social security, and cultural freedom in the economic growth that comes with community development is the inevitable path to linking a city's success to the happiness of more people.

Hongningli No.1 Residence City

Distinctive element of the block

Block generation

According to Kevin Lynch's five elements of urban cognition, neighborhoods need to be recognized by people through new relationships. Plan two paths within the block that serve different groups of people, with a small pocket square as the Landmark to attract people's attention, and the historical texture of the plot as the edge of the space, ultimately forming nodes within the space through the dimensionality of historical buildings. After the establishment of multidimensional urban spatial intentions, people will have a clear understanding of the space within the plot.

I. New and old blocks

Establishing street facades through new and old blocks, squeezing out internal paths

Response on Block Segmentation

Sections

CHAPTER II URBAN DESIGN WORKS

01 Under the viaducts

Phase : Architectural Relics in Response to Urban Demand Site: East Harlem, Manhattan, New York, New York States

Group Work

The Transit team's approach entailed the restructuring of the East Harlem's disorganised Harlem–125th Street Station into a cohesive nexus. This was achieved by closing a section of Park Avenue to vehicular traffic, repurposing the space beneath the viaduct for community utilisation, and establishing adaptable commercial and transportation infrastructure. The proposal entails the reintegration of various transportation modes, while concomitantly addressing concerns regarding heat vulnerability and social inequity.

Background Report

East Harlem brings together Metro-North, subway, bus, andtaxi systems, but remains fragmented. The Harlem-125th StreetStation has failed as a gateway due to disconnected infrastructureand degraded street conditions marked by trash, drug use, andvacancy. At night, poor lighting and inactive storefronts worsen theenvironment Development along Park Avenue has stalled, hindered by splitownership between DOT and MTA. The viaduct, while dividing theneighborhood, also offers 540,000 square feet of shaded space -vital in NYC's most heat-vunerable area.

We propose closing Park Avenue to cars between 1'4th and 125thStreets, leveling the ground for a unified pedestrian zone. Threeindoor programs activate the viaduct: a retrofitted comfort stationfor food prep, commuter kiosks in the north bay, and a communitykitchen with an event plaza in the south bay.Former curb lanes become retail stalls using low-cost, participatoryscaffolding structures. Residents help construct these through workshops.

On 125th Street, we extend the Mobility Lab's downgrade conceptadapting scaffolding for bus shelters. When the Q Line Phase2 opens, this reimagined node will offer a dignified, connectecexperience for commuters and locals alike.

TO BUILD A WELCOMING GATEWAY IN EAST HARLEM

TO BUILD A WELCOMING GATEWAY IN EAST HARLEM

Day View Axon under Park Venue Viaduct
Day Perspective under Park Avenue Viaduct
Day Perspective under Park Avenue Viaduct
Neight View Axon on 125th Street
Neight View Perspective on 125th Street
Day View Axon under Park Venue Viaduct
Neight View Axon on 125th Street
Neight View Perspective on 125th Street

02 Reinventing the Sunnyside

Phase V : Architectural Relics in Response to Urban Demand Site: Sunnyside Yard, Queens, New York, New York States

Individual work

Public space in Western Queens is not only a powerful tool for resisting capitalist sprawl, it is also a key link to social cohesion. It provides cultural, ecological and social support for residents by bridging community divisions and balancing the distribution of resources At the same time, the Sunnyside Yard plan represents a model that prioritizes the public interest through multi-stakeholder collaboration and community engagement, reshaping urban equity, inspiring a sense of regional identity, and promoting more inclusive and sustainable urban development.

Site Analysis

Sunnyside Yard, covering nearly 180 acres in western Queens, stands as one of the largest undeveloped sites in New York City — a massive vacancy within the urban core. By comparison, Vienna’s Karl-Marx-Hof occupies only about 25 acres, and Shanghai’s Hongqiao Terminal around 65 acres. Sunnyside Yard is almost three times the size of Hongqiao and seven times that of Karl-Marx-Hof, yet it remains an inaccessible infrastructural void. Its sheer scale reveals how extraordinary it is for such emptiness to exist in the middle of a dense metropolis.

Deconstruction of Public Space Activity Prototypes

Reshaping Queens' Public Space System

Sunnyside Yard, nearly 180 acres in size, is a rare urban void in the heart of Queens. Its scale offers a unique chance to rebuild the borough’s public space network — linking Astoria, Hunters Point, and the wider Queens landscape into one continuous civic system.

Reshaping Queens' Public Space System

Within the plot, there are streets with different energy levels, including powerful external streets and quiet internal streets. Through the gradual degradation of energy from the outside to the inside, a sufficiently segmented public space system is created, covering the needs of all citizens.

03 Flushing Urban Design Process

Phase III : Architectural Relics in Response to Urban Demand Site: Willets Point & Flushing, Queens, New York, New York States Group Work

New York City is currently facing a massive and worsening housing crisis with the issue particularly acute in rapidly growing areas like Queens. The vacant land on both sides of the Flushing Creek estuary has lain idle for years due to flood risks and property ownership disputes. Its development potential could offer an opportunity to alleviate housing pressures. We aim to undertake an in-depth design process starting from the development phase, encompassing the entire workflow from institutional design to spatial design This approach seeks to strike a practical balance between addressing local flood risks, constructing sufficient affordable housing, and restoring the local wetland ecosystem.

Urban Development System Speculation

The site is located at the mouth of Flushing Creek in Queens, featuring a narrow, elongated parcel that spans both sides of

It exhibits significant variations from

to

with distinct differences between individual blocks. Development of the waterfront parcels has been on hold for 20 years due to

ownership

and flood concerns. The western side of the area is dominated by temporary structures, predominantly auto repair shops, resulting in significant pollution. On the eastern side of Flushing Creek, the plots are mostly mixed-use commercial and residential, featuring diverse but disorganized business types with considerable development potential. Street traffic primarily flows east-west, with minimal north-south movement; the

design holds significant potential for improvement.

Urban Design Framework

Establish a bio group at Flushing Creek to establish its ecological flood control core.

Centered around this core, develop a circular, radiating public space system and affordable residential area. The vitality of this public space system further spreads through two distinct corridors, permeating into Flushing's core area. This creates a connection from Willet Point to Flushing, stimulating the spatial vitality of the entire region.

Water-front Design

04 Other Works

My Work: Participated in overall design design, diagram and presentation layout, responsible for drawing analysis charts
My Work: Participated in overall design design, diagram and presentation layout, responsible for drawing analysis charts
Tongji Architectural Design (Group) Co., Ltd.
PANDSCAPE Architecture Firm
Internship I
Internship II

Turn static files into dynamic content formats.

Create a flipbook
Issuu converts static files into: digital portfolios, online yearbooks, online catalogs, digital photo albums and more. Sign up and create your flipbook.