PORTAFOLIO

Page 1


EDUCACIÓN

Abil 2006-Agosto 2011 Bachiller Académico con enfoque en matemáticas y computación INEM Jorge isaacs

Noviembre 2012-Abril 2016 Tecnólogo en desarrollo gráfico para proyectos de ingeniería y arquitectura SENA centro de la construcción

LUIS SANTA

Hola, Soy Luis Fernando, Arquitecto y desarrollador gráfico egresado de la Universidad del valle, tengo 30 años y soy de la ciudad de Cali - Colombia.

Soy una persona proactiva y me gusta trabajar en equipo, con capacidad de adaptarse a los diferentes retos que implican la arquitectura, me apasionan el diseño y la construcción en la misma medida ya que me permite ser una persona con conocimiento integral por mi profesión y me permite abrirme a distintos horizontes en el entorno profesional.

Me desempeño en el diseño modelado 2D y 3D de proyectos arquitectónicos y me gusta siempre estar actualizado en los nuevos enfoques de desarrollo por lo que de manera empírica adquiero conocimientos de distintos software de diseño y construcción, por lo que siempre estoy con la mente abierta para aprender y mejorar en todo lo que implica esta maravillosa profesión.

Junio 2017-Diciembre 2023 Arquitecto Universidad del valle

EXPERIENCIA LABORAL

Octubre 2014-Octubre 2015 Dibujante Arquitectónico Gomez Mejia Arquitectos

Enero 2016-Febrero 2017 Dibujante Arquitectónico Marvis Constructora S.A.S

Diciembre 2023-Marzo 2024

Diseñador y modelador 3D de redes de gas G&G Ingeniería y construcción S.A.S

Diciembre 2023-Marzo 2024 Diseñador y modelador 3D de redes de gas G&G Ingeniería y construcción S.A.S

Julio 2024-Agosto 2024 Diseñador y modelador 3D de redes de gas Comservicios AYG S.A.S

CONCURSOS

MANEJO DE SOFTWARES

Autocad Revit
Sketchup
Enscape
Photoshop
Ilustrator
InDesign Office

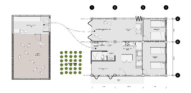
VIVIENDA CAMPESINA SOSTENIBLE 01

CONCEPTO

Proyecto de vivienda colectiva la cual se adapta a las necesidades de sus habitantes y genera espacios de trabajo desde casa de acuerdo a las nuevas formas de habitar a consecuencia de los efectos de la pandemia.

Propuesta urbana y de vivienda para el desarrollo de la vivienda campesina en el corregimiento del Cabuyal

Centro de la Cultura CAM 02

CONCEPTO

El proyecto logra generar un espacio de transición entre el parque Simon Bolivar y el centro de la ciudad, generando una estancia que permita contemplar la belleza del sector preservando lo natural. por medio de patios y zaguanes que invite al ciudadano a deambular en el proyecto, no solo viéndolo desde un orden utilitario sino también como unespacio en el cual se puede permanecer y recorrer con total libertad, contemplando la naturaleza y generando vínculos entre los visitantes.

Propuesta de Equipamiento para la recuperación de las artes y la cultura en el corazón de la ciudad de Cali

Edificio educativo

Corredor interior

Patio interior

Corredor Exterior

EDIFICIO RESIDENCIAL CONVIVIR 03

Propuesta de desarrollo para Viviendas colectivas basadas en las formas de habitar después de la pandemia.

CONCEPTO

Proyecto de vivienda colectiva la cual se adapta a las necesidades de sus habitantes y genera espacios de trabajo desde casa de acuerdo a las nuevas formas de habitar a consecuencia de los efectos de la pandemia.

PROYECTO

El proyecto se implanta en un terreno medianero inclinado ubicado en el corazón del Parque Del Perro, siendo una propuesta que busca adaptarse a las condiciones de trabajo en casa y el habitar de forma colectiva, se genera un primer piso comercial y a partir del segundo piso una propuesta de vivienda que se adapta a las distintas formas de habitar de las personas, permitiendo que los espacios flexibles con sistemas de construcción liviano genere diferentes espacios de acuerdo a la necesitad del habitante.

Piso 4

Visuales del proyecto

Acceso a torres
coworking
Apartamento

CASA NL 04

Propuesta de de vivienda - comercio para una familia con condiciones específicas

CONCEPTO

Proyecto de vivienda colectiva la cual se adapta a las necesidades de sus habitantes y genera espacios de trabajo desde casa de acuerdo a las nuevas formas de habitar a consecuencia de los efectos de la pandemia.

ISOMETRÍA

SECCIONES

Visuales del proyecto

Cocina - Comedor
Sala de estar
Taller de Costura
Local Comercial

COMUNIDAD ECO-PRODUCTIVA NAVARRO 05

Propuesta de desarrollo para Viviendas colectivas basadas en las formas de habitar después de la pandemia.

CONCEPTO

El proyecto busca generar una propuesta para el reasentamiento de familias ubicadas en la zona del Jarillón en navarro, mano, done el paisaje, lo natural y el trabajo en comunidad son factores indispensables para su desarrollo, a partir del reconocimiento básica de interés social con posibilidad de futuro desarrollo que mezcla las costumbres y los ritos en las zonas rurales, dinámica con la ciudad de Cali y sus alrededores.

navarro, con énfasis en la vivienda rural, siendo un entorno donde el habitar y producir van de la reconocimiento de estos elementos se genera un proyecto integral basado en una vivienda con elementos de diseño y construcciones actuales permitiendo que se integre de forma

PROYECTO

El lote en forma alargada permite conectar el jarillon rio cauca con el parque del agua por medio de un corredor central ambiental, el cual cumple la función hilo conductor entre las zonas comunes, las zonas verdes y los equipamientos.

la coformación del proyecto busca fortalecer el trabajo en comunidad a generando espacios de intercambio y capacitación sobre métodos de producción y aprovechamiento de los recursos de la zona.

La vivienda Vivivenda primera etapa
Vivienda completa

Turn static files into dynamic content formats.

Create a flipbook
Issuu converts static files into: digital portfolios, online yearbooks, online catalogs, digital photo albums and more. Sign up and create your flipbook.