LLE_Portfolio 2025

Page 1


CONTENTS

In its 18th year, DLAB 2023 explores the themes of generative design, material computation, and large-scale fabrication and assembly technologies. The task is the design and production of a 1:1 scale structure in the outdoor area of AA London. This will be investigated by focusing on a combination of structural, morphological, and contextual factors which the design intervention was expected to respond in order to differentiate its material and geometrical organization.

The FLEX project emerged from a vision to merge the increasing interest in sustainable natural materials with the innovative potential of robotic fabrication. Rattan reeds, being biodegradable and renewable, were identified as a promising material for exploring sustainable construction possibilities. Robotic fabrication, with its precision and capability, especially in bending and bundling, enabled more precise and inventive approaches.

The project aimed to discover new ways to achieve architectural form and structural stability by combining the natural qualities of materials with advanced robotic techniques.

Type

Location

Year

Team

Role

Research, Design-Build London 2023

DLAB 2023

Participant

Rattan’s flexibility, in particular, allowed for experimentation with "active bending," resulting in unique structural and aesthetic outcomes that leveraged both the material's inherent properties and robotic precision.

Simulation methods were central to our design approach, particularly active bending simulations of bundled rattan canes of varying lengths and quantities. This helped us to assess the rattan’s resistance to bending and what structural effects this behaviour produced. Concurrently, we performed load testing on the material to validate that the digital simulations aligned with real-world behavior, allowing us to refine simulation parameters for greater accuracy.

In addition, we conducted in-depth analysis to understand the balance between structural performance and form using “Finite Element Analysis”, which was crucial for the form-finding process. FEA enabled us to evaluate stress and load distribution in specific parts of the design, providing valuable insights that informed our design decisions.

Rattan reeds offer unique advantages over traditional materials: they are sustainably renewable, naturally biodegradable, and have a low carbon footprint due to their minimal energy needs in production and transport. Additionally, their flexibility and lightness allow for creative, innovative approaches in construction and design.

Single Bundle (B1):

Consisted of bundling single rattan canes into groups of seven which allowed stability of the module without jeopardising the material strength and flexibility.

A1

E = 8 - 12 GPa

L = 2m

E = 21 - 48 GPa

L = 2m

Bundles of Three (B3):

Three bundles of seven canes are bundled together. This served a structural purpose by the need to obtain greater stability and load-bearing capacity for the base modules.

E = 30 - 52 GPa

L = 2m

Additional rings of single bundles (C1 & C2) aid in retaining the overall form.

Once the ring modules are assembled, they are set aside for later use in the modules A & B assembly.

C1 L= 1.5m

C2 L= 2m

1. The module is positioned at a flat surface.

2. Each module is composed of 6 bundled rods tied together at specific anchor points to achieve the final form by the act of bending the rods.

1. Each opposing end of the module is bent in an upward/downward motion

1. Each opposing end of the module is pushed inward to meet with additional rings providing extra support for "fixing" the overall form.

1. The resulted modules is an actively bent structure.

B1
C1
B3
C1
B3

Assembled Modules

Bundled, Twisted, Bended Rattan Reeds

The FLEX project also offers inspiration for largerscale construction in several important ways. Material innovation was one of the project’s main focuses; by utilizing sustainable materials such as rattan reeds, we achieved structural and aesthetic outcomes comparable to those of conventional materials.

In addition, FLEX demonstrates the integration of advanced technology with renewable materials. The successful integration of robotic fabrication and digital simulation methods with natural materials reveals new ways of combining emerging technological tools with natural materials.

Lastly, FLEX exemplifies that sustainability and aesthetics can coexist. The project shows that it is possible to create innovative and visually appealing structures that also minimize environmental impact.

In these ways, the FLEX project provides a forward-looking approach to material selection, design methodology, production techniques, and sustainability. Its unique attributes offer a model for crafting large-scale structures that are as environmentally responsible as they are visually inspiring.

Photos: Samanta Martinez

HANGING GARDENS

San Juan, Puerto Rico

Individual Project

In this project I explored the integration of Artificial Intelligence (AI) tools in architectural design, following a structured workflow that connected conceptual design, parametric and BIM modeling, and detailed rendering. The goal was to gain practical insights into incorporating AI technologies across various stages of the design process.

The workflow began with AI pre-concept generation using Midjourney, where methods for generating 2D visual concepts were explored. This phase involved crafting prompts, iterating on image-designs, and refining outputs to develop architectural ideas through AI-generated imagery.

Subsequently, the resulted images where analyzed to further explore the concept. From this spatial and functional analysis, follows the parametric modelling. An iterative process was created between the 3D modeling and the 2D AI generations to explore alternative design variations –wether general or specific.

Furthermore, the parametric model was connected to a BIM platform for further design development. Spatial and functional analyses were incorporated to ensure compliance with the program’s requirements.

For further materials and details explorations, images from the 3D model and renders were re-introduced in LookX and Krea –along with descriptive prompts–for AI detailing alternatives. The results provided valuable insight to possible applications for refining the design, exploring alternative materials, detailing, and enhancing visualizations. This phase adressed detailing techniques, lighting, and rendering to create realistic presentations and design alternatives for the project.

The project demonstrates an AI-mediated, parametric, and BIM modeling approach through an iterative process, showcasing the potential of integrating these technologies across design phases and providing a foundation for their application in professional architectural practice.

- ITERATIVE PROCESS

Base Geometry

“Seed” Points

PARAMETRIC LOGIC

Seed Referenced

Cantilivered Slabs

Base Form Result

GENERAL FORM VARIATIONS

2D-(AI)-3D
Tapered Square Tapered Hexagon
Tapered Square Tapered Hexagon
Tapered Octagon
Krea Detail Upscale
LookX IIterations
3D Model

DAGUAO

In response to the devastation caused by Hurricane Maria in 2017 and recent earthquakes in Puerto Rico, a communitybased preschool was redesigned to enhance resilience and sustainability. The facility was transformed into an Emergency Hub to provide essential services such as water, food, communication, cooking, laundry, social services, and mental health support during natural disasters.

To achieve this, non-compliant structures were demolished, remaining buildings were renovated, and a new addition redefined the central courtyard and playground. The design incorporated passive conservation strategies, solar energy generation, rainwater harvesting, and waste recycling, ensuring the facility’s flexibility to function as both an educational center and emergency shelter when needed.

At the Daguao Head Start Center, I explored design options for the building’s facade using Grasshopper, alongside a parametric consultant. I supported design strategies and conceptualization by incorporating passive conservation methods and material strategies that responded effectively to the project’s environmental and social context. Additionally, my colleagues and I contributed to site

Type

Location

Year

Team

Role

Institutional

Maunabo, Puerto Rico

2021

Diaz Paunetto Arquitectos

Project Architect, BIM Manager

analysis, ensured compliance with codes and regulations, and assisted with design documentation. I also generated BIM coordination protocols for my colleagues and consultants, ensuring efficient collaboration. This involvement not only enriched the creative process but also ensured that the evolving design effectively responded to the project’s environmental and social context.

The new building, which reorganizes the overall site layout, serves as a symbolic reference to the aftermath of Hurricane Maria and the earthquakes. Its facade, inspired by the scattered debris left in the wake of these disasters, is composed of diverse scrap aluminum profiles cut and welded at different angles, forming metal stripes interlocked between three distinct layered compositions. These elements are arranged to create a cohesive and functional order. The system not only provides shading and reduces heat transfer but also minimizes reliance on artificial lighting. By integrating these elements, the design achieves a balance between resilience, environmental performance, and a strong visual identity that resonates with the surrounding

Rectangle Hollow Aluminum Profile 1 1/2”x1”

Square Hollow Aluminum Profile 1 1/2”x1 1/2”

Interlocking Strategy Between Layers Aluminum C Profile 4 1/2”x1 1/2”

Facade Assembly Strategy & Composition

AMPHIBIANSCAPE

Conceptual

San Juan, Puerto Rico

2023

Individual Project

In this project, I employed parametric and CAD modeling techniques using Rhinoceros and Grasshopper to conceptualize an outdoor sculptural urban space, drawing inspiration from nature’s ecosystems—specifically the intricate structures of mangroves and coral formations. These biological systems served as a foundation for developing a spatial framework that promotes dynamic interaction, adaptability, and communal engagement. The outcome is a multi-aquatic sports and leisure public space, seamlessly integrated into the fluid dynamics of a lagoon, creating a harmonious relationship between form, function, and environment.

At its core, the design fosters a sense of community, identity, and connection. Spaces for play, sports, rest, and social engagement are interwoven to create a network of interactions that promote movement, creativity, and collaboration. The spatial arrangement balances moments of activity with areas for pause and reflection. By addressing multiple scales—from intimate gathering spaces

to expansive public environments—the project aspires to cultivate a dynamic yet harmonious experience.

The final design is defined by parametric complexity and sculptural dynamism, which incorporates fluid geometries, vibrant waterscapes, and multifunctional urban spaces. Sinuous, colorful forms introduce intrigue and playfulness into the urban scenario, encouraging communal interaction and reimagining the possibilities of public space.

Grasshopper 3D played a crucial role in generating and refining these dynamic forms, enabling iterative experimentation and optimization for specific design constraints. Visualization, rendering, and post-production were also essential in effectively communicating the project’s vision. The result is an immersive and adaptable urban environment that seamlessly blends functionality with imagination, demonstrating the potential of computational design in shaping public spaces.

Conception

Corals
Mangrove Synthesis
Bezier Curves
Variable Piping / Volume Intersection
Spherical Substraction

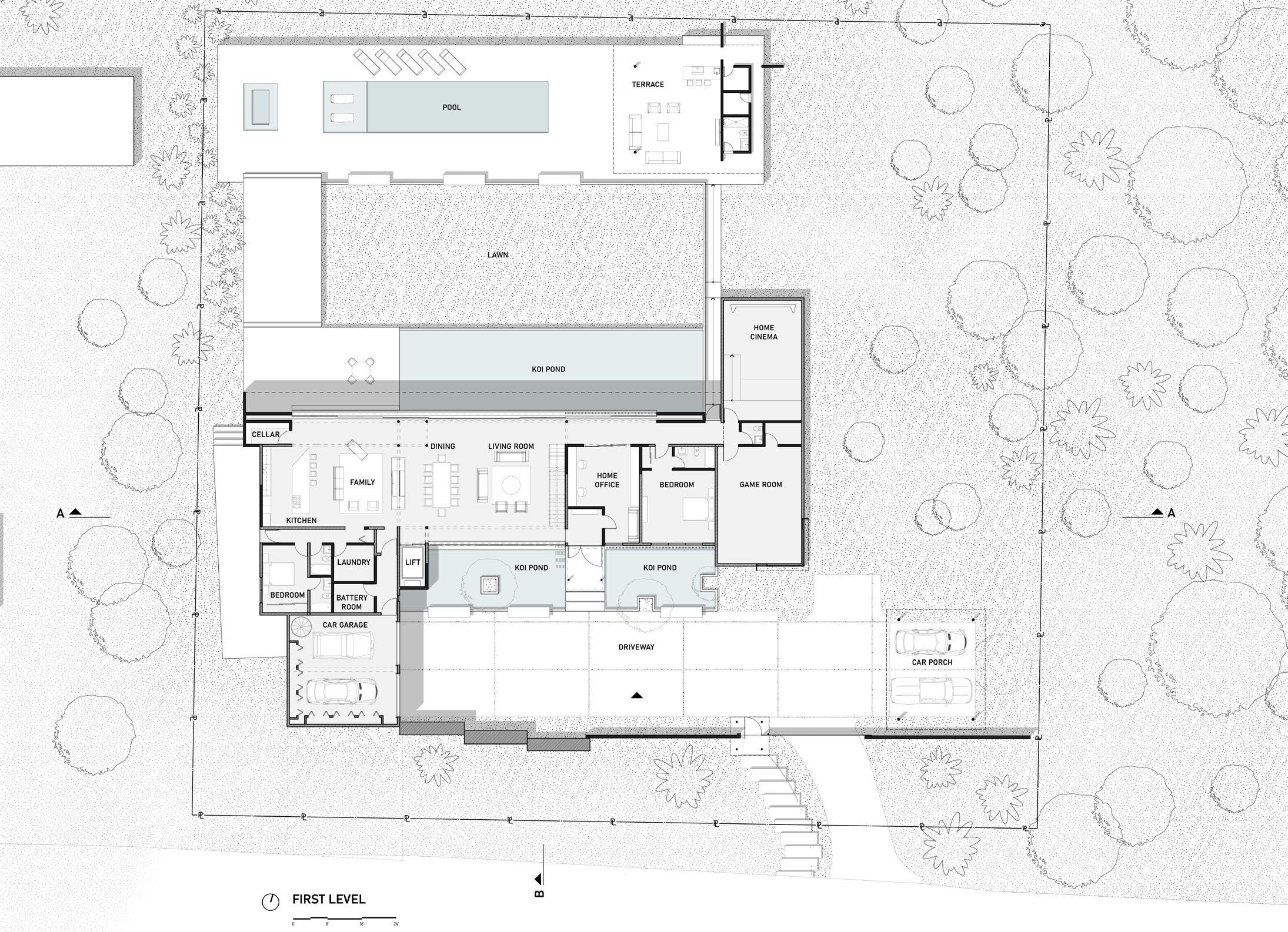
VALLE ESCONDIDO

A family of four acquired a home with multiple design challenges, including obstructed views, poor cross-ventilation, inefficient space distribution, lack of privacy, and shallow overhangs that provided little protection. Situated on a 3,429-square-meter lot one floor below street level, the house originally had bedrooms and a staircase fully exposed to the street while corridors faced the northern views. To enhance privacy, comfort, and spatial efficiency, the layout was reversed—relocating bedrooms to the north for privacy and views while positioning the corridor to the south as a buffer against the street and sun. A vertical wood-veneered aluminum sunscreen was incorporated to provide additional shading and privacy.

Public spaces were reconfigured with sliding glass walls to create seamless indoor-outdoor connections, integrating koi ponds, fountains, and tropical vegetation

Type

Residential

Guaynabo, Puerto Rico

2022

Diaz Paunetto Arquitectos

Project Architect, BIM Manager

to enhance the sense of place. The existing staircase was partially removed and replaced with an elevator, while a sculptural stair, illuminated by a skylight, became a focal point in the double-height public space. Sustainability was a key design driver, with passive and active conservation strategies, including solar PV panels for energy efficiency and rainwater harvesting for irrigation and maintenance.

As part of my responsibilities, I contributed to the design process by incorporating passive conservation strategies and material selections. Alongside my colleagues, I ensured compliance with codes and regulations and assisted in documenting the design from the schematic phase through design development. Additionally, I took charge of generating BIM coordination protocols, facilitating efficient collaboration within the office and among consultants.

Existing First Level

Existing Second Level

INVEST PR

The project involved the interior design of a 5,000-square-foot space on the 4th floor of the Parking Annex building for the Puerto Rico Sheraton Hotel & Casino in San Juan. Overlooking the Convention Center and offering panoramic views of Condado, Puerta de Tierra, and Old San Juan, the design prioritized natural lighting, visibility, sound reduction, and simplicity, all within a limited budget. A key design objective was to democratize the workspace, moving away from traditional hierarchical office layouts. Executive offices were placed at the farthest point from the exterior windows, separated from the open work area by a frameless glass wall, allowing natural light and visual transparency— symbolizing the client’s commitment to fiscal transparency.

To address acoustics in the open workspace, a seamless monolithic acoustic plaster was applied to the ceiling and select walls. Its porous structure

Interiors Renovation, Built

San Juan, Puerto Rico 2019

Diaz Paunetto Arquitectos

Junior Architect, BIM Manager

allowed sound to be absorbed into a panel core beyond, improving noise control. Cost-effective strategies included polishing the existing concrete floor, eliminating baseboards, and leaving the main corridor ceiling exposed with black-painted infrastructure and strategically placed strip lighting to define circulation.

As part of my role, I contributed to design strategies and space planning, ensuring efficient spatial organization. Alongside my colleagues, I supported the application of codes and regulations and participated in design documentation from schematic design to construction drawings. I was also responsible for developing BIM coordination protocols to enhance collaboration within the office and with consultants. Additionally, I conducted site visits during the construction phase to verify that the execution aligned with the construction Type

Existing Interior Mass
BIM Model
Office Layout
Proposed Office Layout
Section A
Section D Section C

BACK PERSPECTIVE

Turn static files into dynamic content formats.

Create a flipbook
Issuu converts static files into: digital portfolios, online yearbooks, online catalogs, digital photo albums and more. Sign up and create your flipbook.