PORTFOLIO.




About Me.

Luis Fernando Montenegro
“Hello, my name is Luis Fernando Montenegro, a recent architecture graduate from the Gerald D. Hines College of Architecture and Design at the University of Houston. I am passionate about innovative, sustainable, and communitydriven design, with a focus on renovation, urban environments, and recreational spaces.
CONTACT
Email: Mobile:
(832)508-9648
luisfmont97@gmail.com


2012 - 2015 North Shore Senior High School; Houston, TX.
Degree obtained : High school diploma 2015 - 2020 San Jacinto Community College - North Campus; Houston, TX.
Degree obtained : General Studies, Associate of Arts
2020 - 2025 Gerald D. Hines College of Architecture and Design - University of Houston; Houston, TX.
Degree obtained: Bachelor of Architecture PERSONAL SKILLS Team










Contents.
Cloverleaf Community Gateway Urban Design / Public Realm
Cloverleaf Community Gateway
Urban Design / Public Realm



Location : Freeport st ,Cloverleaf ,TX
Located along Freeport Street in Cloverleaf, TX, this proposed urban-design intervention creates a welcoming entry gateway that enhances pedestrian comfort, strengthens community identity, and welcoming arrival experience. Cloverleaf, TX, a dense 2.3-square-mile East Harris County community of nearly 29,000 residents—now predominantly Hispanic—shaped by decades of growth since the 1930s and facing ongoing needs for safer, more connected streets. Based on the Houston–Galveston Area Council (H-GAC) and Project Management Team (PMT) study concept report, which identifies Cloverleaf’s community-driven goals and priorities, I applied its insights to develop design strategies that support local residents, reinforce neighborhood identity, enhance pedestrian comfort, and foster a more welcoming and connected environment.

Cloverleaf Master Site Plan





















































































BULLDOG STADIUM




PROJECT SUMMARY
STADIUM

Location : 600 Ashley Wilson Rd ,Sweeny,TX 77480
Bulldog Stadium, originally built in the early 1980’s and well past its lifetime, is to be demolished and reconstructed to today’s contemporary needs. The district stadium will have a minimum 5,000 occupant capacity and will be designed to serve a devoted home fan base capacity of approximately 3,500 occupants. This will be achieved with a steel reinforced elevated aluminum bleacher system. The new stadium will be supported with new sports field lighting, LED video scoreboard and a distributed sound reinforced system. A new 2,400-square-foot press box equipped with game monitoring/broadcasting capabilities for home and visitor’s coaching staff will include dedicated equipment and filming platforms. The stadium design will be enhanced by additional improvements through various track & field site elements, and an extensive pedestrian entry plaza.
FIELD HOUSE
In support of the new Bulldog Stadium, the school district will be constructing a new two-story 30,000-square-foot field house. Housing a 4,500-square-foot open concept weight room, locker room facilities equipped with showers for girls and boys athletic teams, and athletic offices for high school staff members. The field house will be designed with a contemporary touch while complementing the design and material use of the existing high school campus design.
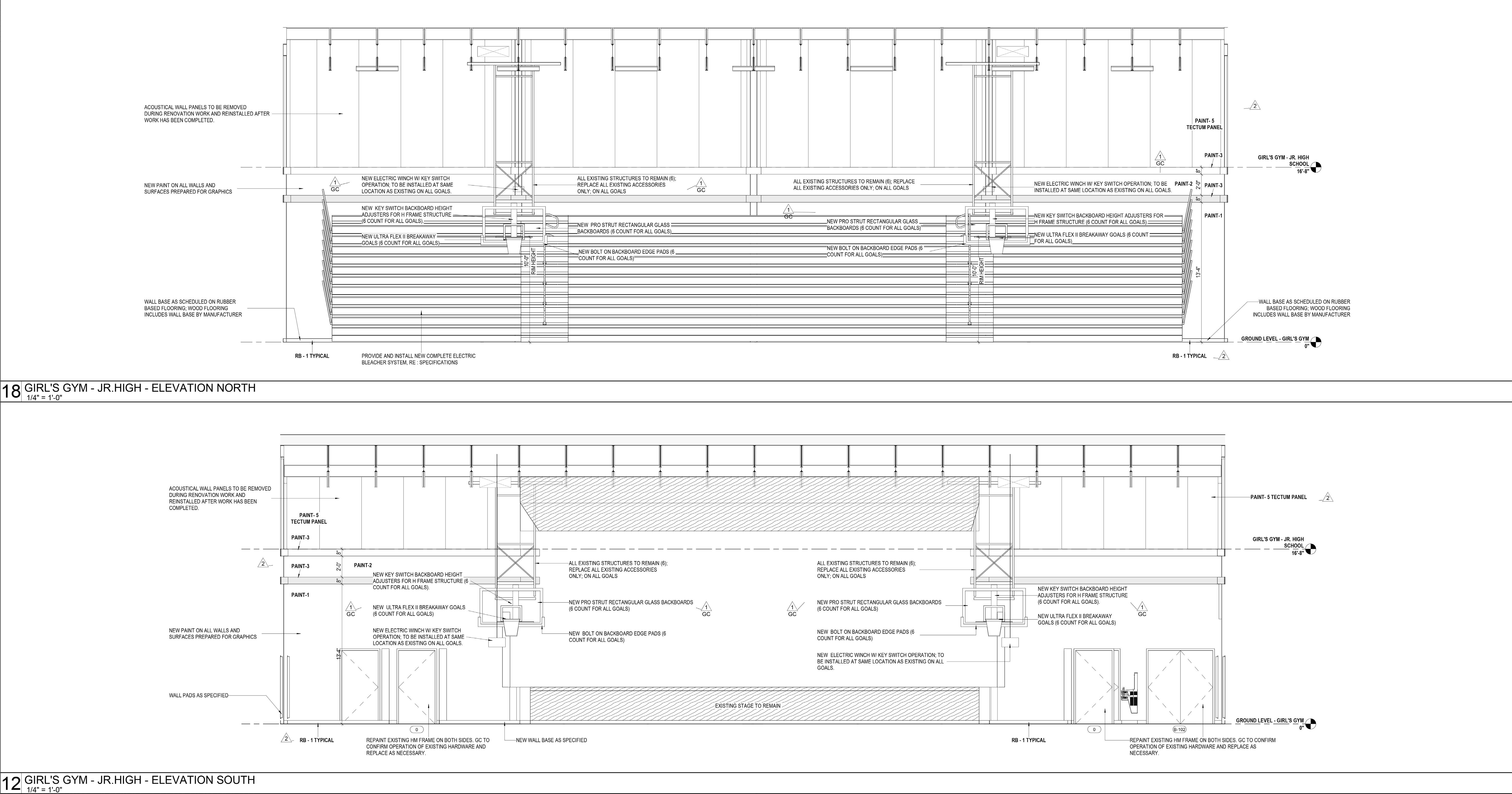
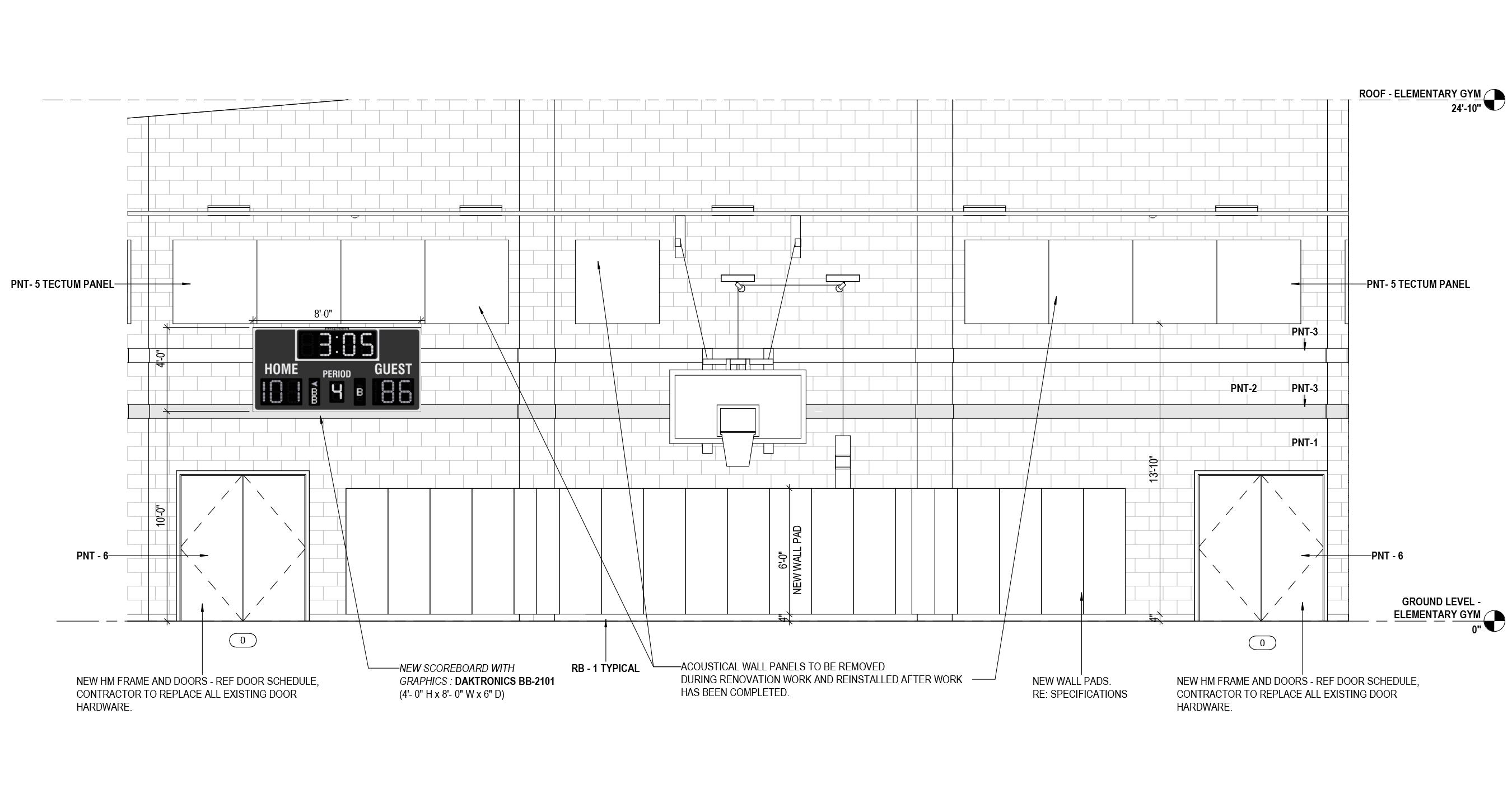
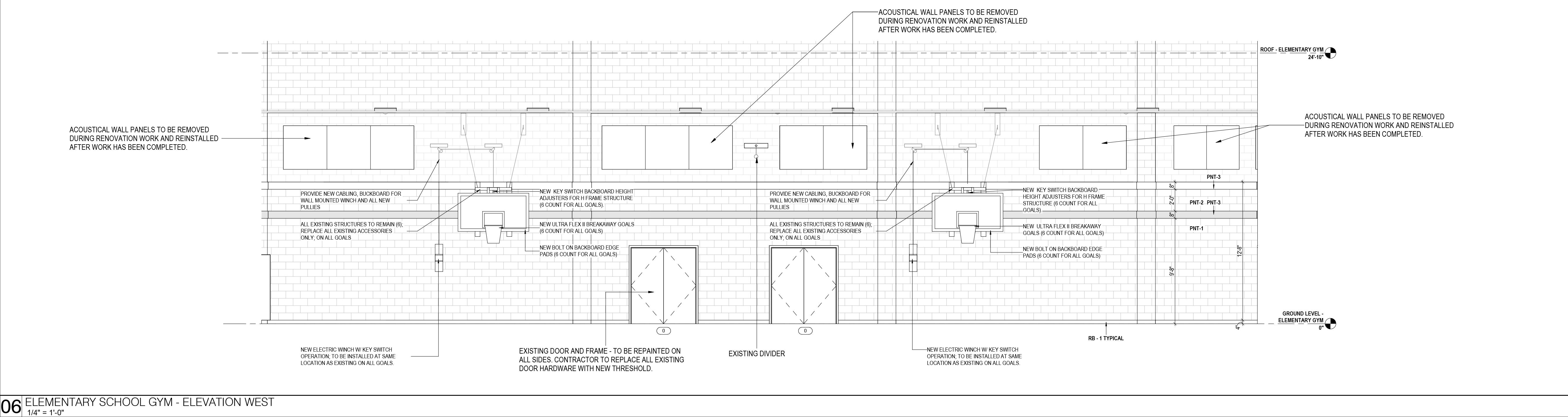
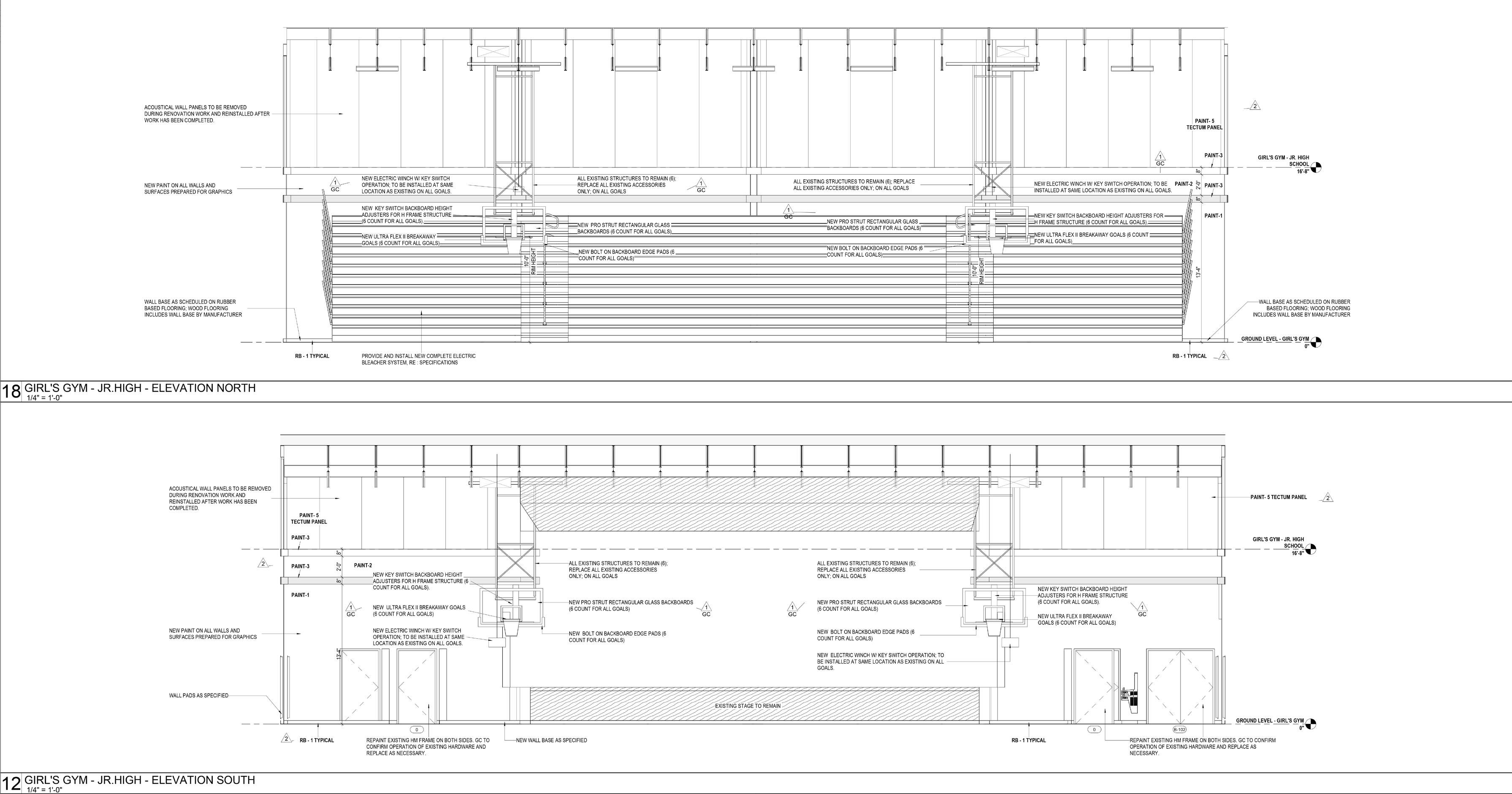
CAMPUS RENOVATIONS
Sweeny ISD proposes interior renovations to multiple campus gymnasiums and support spaces to promote a better and safer environment for their student population. Amongst the various improvements targeted for the elementary, junior high and high school campuses include: repair or replacement of gymnasium flooring, replacement of existing basketball equipment, replacement of safety wall padding, possible upgrades to low energy consumption lighting, and renovation of existing student locker rooms.

EXISTING HIGH SCHOOL BUILDING
PROJECT LOCATION
EXISTING ELEMENTARY SCHOOL BUILDING
PROJECT LOCATION
EXISTING JR.HIGH SCHOOL BUILDING
PROJECT LOCATION



ROOM FINISH SCHEDULES + DETAILS












BASKETBALL



























SWEENEY ELEMENTARY SCHOOL - ELEMENTARY GYM COURT





