

ADMINISTRACIÓN Y GESTIÓN DE PROYECTOS 1
CUANTIFICACIÓN - PRESUPUESTACIÓN - PROGRAMACIÓN



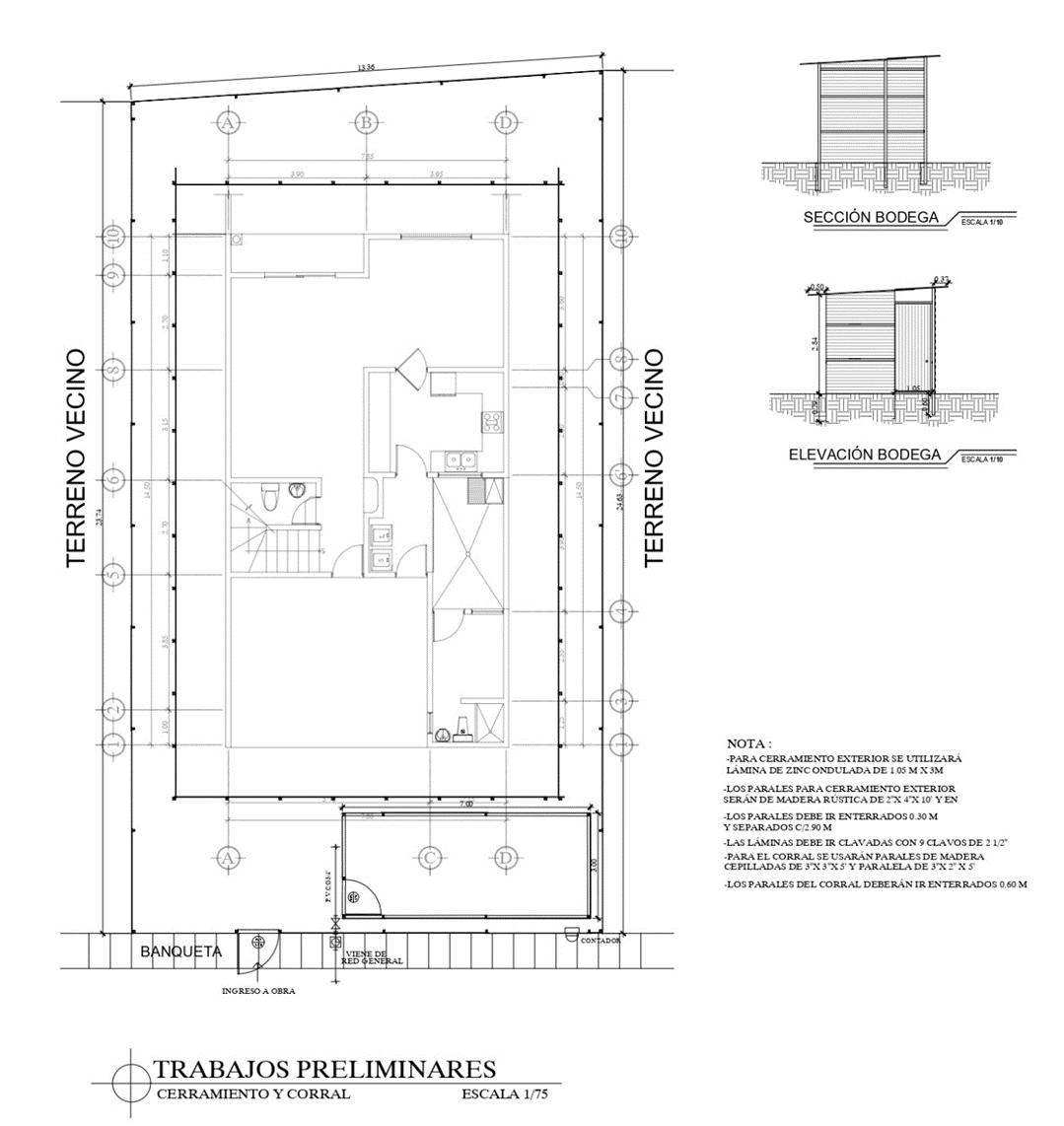
Trabajos Preliminares

![]()


CUANTIFICACIÓN - PRESUPUESTACIÓN - PROGRAMACIÓN




o topografía o destronque, chapeo, limpieza o demolición de estructuras existentes o movimiento de tierras (nivelación): - corte - relleno o instalaciones provisionales: - guardianía, bodega, oficina - sanitario portátil / letrina - instalación provisional de agua potable - instalación provisional de aguas negras - instalación provisional de electricidad - cerramiento perimetral terreno o estaqueado-puentes, corral y trazo o herramientas resumen cuantificación trabajos preliminares







bodega

pozo absorción Ø 1m x 4-6 m profundidad







Tanque cisterna temporal de mampostería
Llenado con pipa de agua (capacidad de 5,000 a 10,000 litros)

Tanque cisterna temporal prefabricado de polietileno (capacidad de 2,5000 a 10,000 litros)
Llenado con pipa de agua



cerca perimetral


Paral 2”x3”xL’
enterrado 0.40 m
1 saco cal hidratada


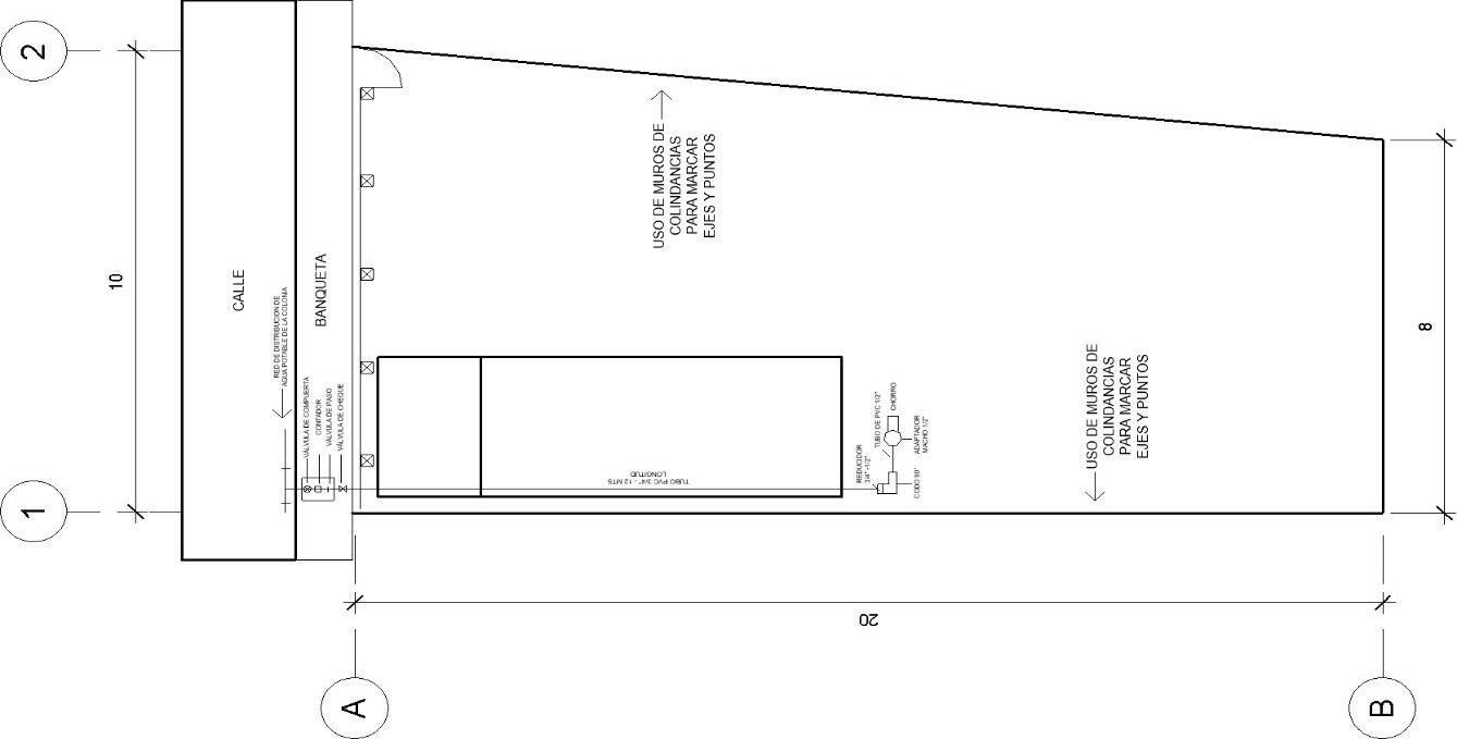
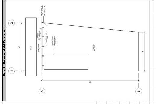
corral / trazo








o personal - maestro de obra > 1 - albañiles > 20 - ayudantes > 10 - guardián > 1 - bodeguero > 1
o tiempo de obra - 10 meses
trabajadores




NOTA: los parales estarán enterrados 1 pie para su cuantificación
planta guardianía + bodega





guardianía corral cerramiento

NOTA:
Configuración y ubicación de acuerdo a las condiciones de la obra
planta bodega + corral + cerramiento perímetro


1 lámina









colindancia (construcción)
colindancia (construcción)




corral
ejes verticales (x 2) (ancho cimiento - muro)
ejes horizontales (x 2) (ancho cimiento - muro)


• Hierro (6m)
• Tubería hidráulica (6m)
• Tubería eléctrica (3m)
• Accesorios hidráulicos y eléctricos
• Sacos cemento y cal
• Embolsados (levantado, pisos, azulejos)
• Herramientas


arranque parales y láminas
bodega
lámina sentido horizontal


traslape láminas
0.10 m
distribución final parales y láminas
bodega

separación parales de acuerdo a largo de lámina
bodega

elevación:
bodega

sección:
bodega

costaneras de techo

traslape láminas
0.20 m

bodega
sección

medidas costaneras de techo
22 láminas de 8’ de largo

bodega lámina: ancho total = 0.82 ancho útil = 0.70 techo





Pie Tabla = Ancho (“) x Alto (“) x Largo (‘) 12
NOTAS:
* CLAVO PARA FORMALETA = 1 LIBRA / 22.5 PT
* CLAVO PARA LÁMINA = 0.015 LIBRA / PIE DE LÁMINA
* ALAMBRE DE AMARRE PARA FORMALETA = 0.5 LIBRA X M2 DE FORMALETA
* 1 LIBRA DE ALAMBRE DE AMARRE No. 16 CONTIENE 27.5 ml DE ALAMBRE
TABLA 1 x12
1 1/2 x12
2 x12
(PILAR)
* LONGITUDES COMERCIALES = 6' A 16'
Ejemplo: Si se requiere comprar 13 tablas de pino rústico de 10 pies de largo. 12” x 1” x 10’ = 10 pt. 12 10 pt. x 13 u = 130 pie tabla x Q. 7.00/pt. = Q.910.00

1”x12”x10’
NOTAS:
* TRASLAPE LONGITUDINAL = 0.20 m
* TRASLAPE TRANSVERSAL = 1 ONDA
* ANCHO NOMINAL = 0.81 m (32")
* CLAVO
Cálculo clavo de 3” para lámina : Opción 1 >> 6.5 clavos por lámina
Son 22 láminas de techo (del ejemplo anterior).
22 láminas x 6.5 clavos/lámina = 143 clavos (incluye traslapes)
Opción 2 >> Según tabla 0.015 libra / pie de lámina
Son 22 láminas de 8’ = 176’
0.015 libra x 176’ = 2.64 >> 3 libras
Según tabla 1 libra de clavo 3” = 46 u. 3 libras x 46 u = 138 clavos p/lámina de 3”
Cuál se escoge ??
tablas para cálculo

