TEMA 11 Instalaciones 2 ADMINISTRACIÓN Y GESTIÓN 1 URL 2023

Page 1

. Arq. Luis Fernando Ruano Paz

Instalaciones 2 Agua Pluvial Iluminación y Fuerza Especiales
2
Facultad Arquitectura y Diseño ADMINISTRACIÓN Y GESTIÓN 1 CUANTIFICACIÓN Y PRESUPUESTACIÓN
0 2 3

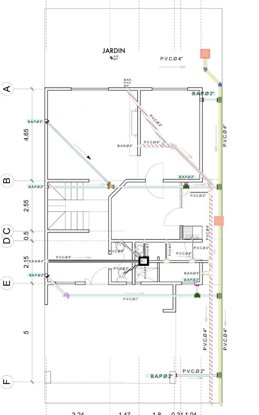
INSTALACIONES HIDRÁULICAS: AGUA PLUVIAL

3
MGTR. ARQ. LUIS FERNANDO RUANO PAZ

ISOMÉTRICO

TRAZO Y ZANJEO

M3= 0.40m (ancho) x 0.40m (profundidad, dependiendo de cota invert) x 43.5 (mts lineales) X 1.25

Zanja = 8.70 m3

RELLENO Y COMPACTACIÓN DE ZANJAS

• M3= 0.40m (ancho) x 0.40m (profundidad, dependiendo de cota invert) x 43.5 (mts lineales)

• Relleno Zanja = 6.96 m3

CUANTIFICACIÓN DE MATERIALES PARA TUBERÍA

• Tubo de 2” de diámetro

Horizontal

Suma mts lineales

(4.54+0.84+3.04+3.54+1.54+1.34+6.64+1+2.29+0.54)= 25.31mts

Vertical

# bajadas * (altura de muro + 0.40 m de zanja)

7 bajadas * 5.90 altura total = 41.3mts

25.31 + 41.3 = 66.61mts / 6 = 11.10 tubos = 12 tubos

• Tubo de 4” de diámetro

Horizontal

Suma mts lineales

(0.54+1.04+0.54+4.29+1.54+3.54+3.79+1.25)= 16.53 mts

16.53 / 6 = 2.75 tubos = 3 tubos

CUANTIFICACIÓN DE ACCESORIOS

• Codos a 90° diámetro 2" 7 unidades

• Codos a 45° diámetro 2" 1 unidad

• Codos a 45° diámetro 4“ 2 unidades

• Reducidores 4 unidades

• Yee diámetro 2“ 1 unidad

• Tee diámetro 2“ 1 unidad

• Tee diámetro 4" 4 unidades

• Cajas de Unión 2 unidades

• Pegamento PVC 1 libras (453.59g)

TABLA GENERAL DE CUANTIFICACIÓN

1. CUANTIFICACIÓN DE AGUA PLUVIAL

• 1.1 Acometida y Desfogue

• 1.2 Trazo y Excavación

• 1.3 Relleno y Compactación

• 1.4 Formaleta y Armado

• 1.5 Fundición

• 1.6 Accesorios

• 1.7 Cajas

• Piso

• Levantado de Muros

• Tapadera

• Acabados

• 1.8 Sistema de Tratamiento de Agua Pluvial

• Tanque de Reserva

1.1 Acometida y Desfogue

PASO 1

UBICAR SI EXISTE ACOMETIDA Y DESFOGUE DE AGUA PLUVIAL

DIAGRAMA DE RELLENO

1.2 Trazo y

1.3 Relleno

DIAGRAMA DE CAJA DE UNIÓN
EXCAVACIÓN
DE RELLENO EXCAVACIÓNY RELLENO COMPACTADO PARA CAJAS DE UNIÓN EXCAVACIÓN DE CAJA DE UNIÓN 0.89 m X 0.89 m X 3(UNIDADES)= 2.38 m3 RELLENO DE CAJA DE UNIÓN 0.15 m X 0.46 m X 0.89 m X 2LADOS X 3(UNIDADES)= 0.37 m3
DIAGRAMA DE
DIAGRAMA
Excavación
Compactado

DIAGRAMA DE EXCAVACIÓN

EXCAVACIÓNY RELLENO COMPACTADO PARA ZANJAS EXCAVACIÓN DE ZANJA PARATUBERÍA

0.60 m X 0.35 m X 39.70 = 8.34 m3

RELLENO DE ZANJA PARATUBERÍA

0.60 m X 0.35 m X 39.70 = 8.34 m3

DIAGRAMA DE EXCAVACIÓN

1.4 Formaleta y Armado:

FORMALETA:

(2 Caras x 2.40 x 3.28pie/ m x 6 u) / 3 usos= 31.50 pies

(12” x1”x 5.25”)/ 12 = 31.50 pt.

31.50 / 10 = 3.15 > 4 tablas de 1” x12”x 10”

ARMADO:

4 varillas no.2 + est. @ 0.20

6 m ( longitud de varilla ) / 2.40 = 2.50 > 3 pedazos de varilla

(4 varillas x 6 Unidades) / 3 pedazos por varilla = 8 varillas No.

2 Estribos:

2.40 / 0.20 = 12 estribos x 6 unidades =72 estribos

6m / 0.42 = 14.29 > 15 estribos por varilla

72 estribos / 15 estribos por varilla = 4 .8 > 5 varillas No.2

0.14 0.08 0.14 0.08 0.42

1.5 Fundición

ARMADO:

0.14 x 0.14 x 2.40 = 0.047 m3

3” ( diámetro del tubo) > 7.5 cms = 0.30

0.075 = (0.0375)2 x π x 2.40 = 0.011 m3 VOLUMEN

NEGATIVO

VOLUMEN NETO = 0.036 m3 x 6 unidades = 0.216 m3

Proporción: 1 : 2 : 2

9.80 = 2.11 > 3 sacos de Cemento

0.55= 0.12 m3 Arena

0.555 = 0.12 m3 Piedrín

1.6 Cuantificación de Accesorios

ACCESORIOS A UTILIZAR

• TUBO PVC 3¨

• TUBO PVC 4¨

• CODOS 90 GRADOS

• YEE 45 GRADOS

• CODO 45 GRADOS

• REDUCTORES

• REJILLAS METALICAS

DIAGRAMA DE RELLENO

ACCESORIOS A UTILIZAR •

CODOS 90 GRADOS

CANT: 5 UNIDADES

ACCESORIOS A

UTILIZAR

REJILLAS METALICAS

CANT: 5 UNIDADES

ACCESORIOS A

UTILIZAR

• YEE 45 GRADOS

CANT: 2 UNIDADES

ACCESORIOS A

UTILIZAR

• CODO 45 GRADOS

CANT: 3 UNIDADES

ACCESORIOS A UTILIZAR

• REDUCIDORES

CANT: 5 UNIDADES

ACCESORIOS A UTILIZAR

• TUBO PVC 3¨

CALCULO:

5 (UNIDADES BAP) X ALTURA DE CASA (AGREGAR ESPESOR DE LOSA Y PROFUNDIDAD DE

TUBO EN EL SUELO ) =

2.40m + 0.15m + 0.35m= 2.90m

5 un x 2.90m= 14.50 ml

TUBOS A UTILIZAR

14.50 / 6 m= 2.41 aprox

2 tubos de 6 m y 1 tubo de 3 m

ACCESORIOS A UTILIZAR

• TUBO PVC 4¨

CALCULO:

SUMAR LOS TOTALES DE CADA COTA

EN EL PLANO + (AGREGAR 0.26 GROSOR DE

CAJA AMBOS LADOS ) =

0.28+9.62+0.65+0.87+10.40+8.43+0.94+6.4

4+3.03+1.50+2.34+3.89+0.31= 48.66 ml

Cajas a utilizar

5 un x 0.26 = 1.30 ml

Suma ml 1.30+48.66= 49.96 ml

TUBOS A UTILIZAR

49.96 / 6 m= 8.32 aprox

8 tubos de 6 m y 1 tubo de 3 m

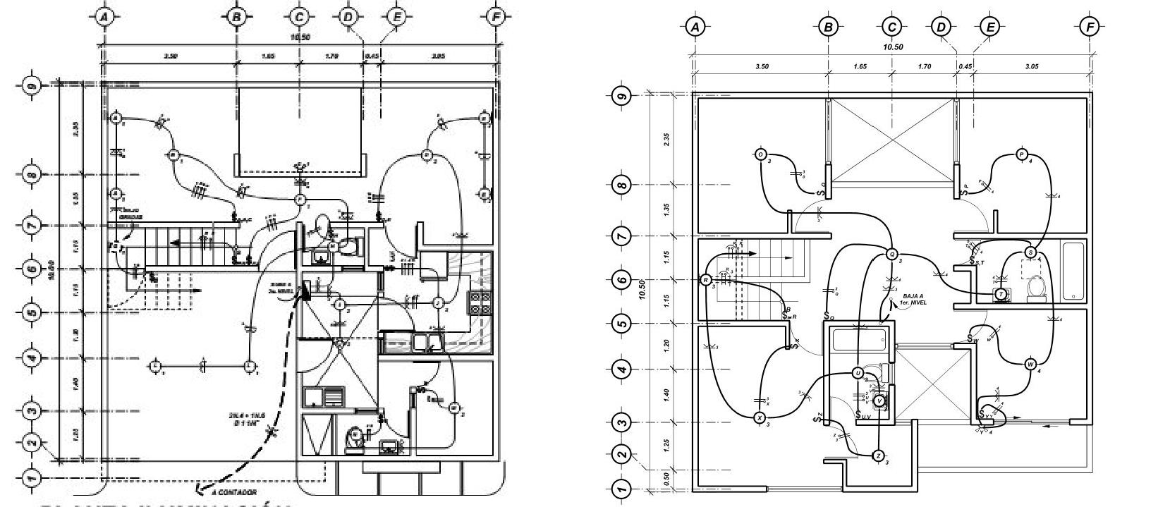
INSTALACIONES ELÉCTRICAS: ILUMINACIÓN Y FUERZA

4
MGTR. ARQ. LUIS FERNANDO RUANO PAZ

Planta Arquitectonica

TABLERO DE DISTRIBUCIÓN

TABLERO DE DISTRIBUCIÓN

INSTALACIONES DE CONEXIÓN A TIERRA

Al momento de cuantificar y calcular alturas para realizar una conexión a tierra en viviendas, es necesario establecer el lugar donde se llevara a cabo la instalación, ya que las alturas son fijas según reglamentos de la empresa eléctrica.

Consideremos una vivienda en la ciudad de Guatemala, en la cual el tablero se encuentra dentro de la casa, el cual debe ir conectado a la caja Socket para contador .

Materiales a y medidas según normas de la empresa eléctrica.: CABLE

Cable cobre calibre 6 (desde la caja socket al piso 2mt).

De esos 2mt podemos aumentar o disminuir 10mt (dependiendo la ubicacion del socket)

Perno o mordaza

➔ Varilla de cobre (2mt)

Esta varilla es la que va sumergida en la tierra

➔ Cinta de aislar vulcanizada

MATERIALES

➔ LISTA DE PRECIOS

CABLES Y TUBERÍAS A UTILIZAR

CUANTIFICACIÓN CABLESY TUBERÍAS

CAJAS

Propiedades:

Fabricada por proceso de corte, embutido y troquelado

Para usar en instalaciones eléctricas generales.

Características:

-

Cuantificación cajas

Cuantificación de cajas:

Fácil de manipulación en acometidas eléctricas.

- Perforaciones para salida y entrada de tubería de ½ y ¾

- Recomendados en cualquier sistema de construcción por su resistencia.

-

Conteo por unidad de cajas en cada tomacorriente, salida de teléfono, lámpara, reflector, interruptor, uniones, entre otros.

- Se divide en dos, Iluminación y Fuerza para tener un mejor control.

-

Cuantificación de Cajas

TOMACORRIENTES e INTERRUPTORES

Los tomacorrientes de uso general pueden ser dobles. Con terminales de tornillo apropiados para recibir cables No. 12 y 14, con herrajes, tornillos y placas.

Cuantificación de tomacorrientes e interruptores

CONECTORESY ABRAZADERAS

PARA CUANTIFICAR CONECTORESY ABRAZADERAS:

*SACAR METRAJE LINEAL DE TUBERÍA

*DIVIDIR EN SECCIONES DE 0.5 A 2M PARA SABER LA CANTIDAD DE UNIDADES QUE SE UTILIZARAN DE ABRAZADERAS

*PARA CONECTORES SI LAS TUBERIAS EXCEDEN LOS 3M SE COLOCAN

CONECTORES

*SE MULTIPLICA EL PRECIO UNITARIO POR LA CANTIDAD PARA SABER

EL TOTAL A GASTAR EN LA CONSTRUCCIÓN.

Mano de Obra

Resumen General

INSTALACIONES ELÉCTRICAS: ESPECIALES

TELÉFONO - CABLE/TV–INTERNET-INTERCOMUNICADOR

MGTR. ARQ. LUIS FERNANDO RUANO PAZ
5

DETALLE DE ACOMETIDA

CUANTIFICACIÓN DEACOMETIDA

ELECTRICO

TUBERÍAS

 Para este tipo de instalaciones existen diversos tipos de tubería:

 Poliducto

 Tubo ducto PVC

 Para la tubería es necesario saber de donde va a partir la acometida ya sea aérea o subterránea.

 Tubo PVC flexible

 A partir de esto se miden las alturas de piso a la instalación a requerida (teléfono,cableTV,cable internet) y se van sumando.

 La altura más común para las instalaciones telefónicas y de internet es de aproximadamente entre 0.30 y 0.35 mts.

 Y para las instalaciones de cable deTV es de aproximadamente 1.70 mts.

ACCESORIOS

COPLA DUCTO PVC

VUELTA DUCTO PVC ¾”

CONECTOR PARA PVC

TUBOS PVC ¾”

CAJA ELÉCTRICA

FLIPONES

CAJA RH

TRAZO, EXCAVACIÓN Y RELLENO DE ZANJAS

Ancho Mínimo: 0.1cm

Profundidad:0.2m – 0.4m

 Cable,Teléfono e Internet pueden estar en un mismo tubo.Dependerá de si utiliza el servicio de solo una compañía o no.

 Normalmente la zanja se realiza solamente desde la Acometida hasta cierto punto de la casa.

(Normalmente la Sala o el Estudio)

25.45m x 0.1m x 0.3m x 1.25 = 0.95m3

Relleno = 0.76m3

ML xAncho x Profundidad = Excavación

TUBERÍA

ML +Altura = Metraje de tubo

25.45m + 0.60m = 26.05 ML

Metraje de tubo / 3 m (longitud de un tubo) = Cantidad de tubos

8.68 => 9 tubos de ¾″

 AireAcondicionado  Salidas deTeléfono e internet,las cajas miden 2’’ x 4’’  Salidas de sonido

http://www.construccionviaweb.com.ar/Calculador

DE ACCESORIOS CÁLCULO DE PEGAMENTO
CUANTIFICACIÓN
a-PVC.html

Turn static files into dynamic content formats.

Create a flipbook
Issuu converts static files into: digital portfolios, online yearbooks, online catalogs, digital photo albums and more. Sign up and create your flipbook.
TEMA 11 Instalaciones 2 ADMINISTRACIÓN Y GESTIÓN 1 URL 2023 by Arq. Luis Fernando Ruano Paz - Issuu