TEMA 11 Instalaciones 1 ADMINISTRACIÓN Y GESTIÓN 1 URL 2023

Page 1

2 0 2 3 Facultad Arquitectura y Diseño

ADMINISTRACIÓN Y GESTIÓN 1 CUANTIFICACIÓN Y PRESUPUESTACIÓN

. Arq. Luis Fernando Ruano Paz

1
Potable F + C
Negras
Instalaciones
Agua
Aguas

MGTR. ARQ. LUIS FERNANDO RUANO PAZ

CUANTIFICACIÓN

I N S T A L A C I O N E S

INSTALACIONES HIDRÁULICAS: AGUA POTABLE FRÍA Y CALIENTE

1
MGTR. ARQ. LUIS FERNANDO RUANO PAZ

Trazo y zanjeo

 Se procede a hacer el zanjeado de aproximadamente 0.30m de ancho y de 0.20m de profundidad.

 El cálculo del zanjeo se realiza de la siguiente manera:

 Metros lineales de tubería = 46metros lineales

 Dimensiones de zanja = 0.30m (ancho) x 0.20m (profundidad)

0.30m x 0.20m x 46m lineales x 1.25 = 3.45 m3 de excavación para la tubería de agua fría y caliente.

- Considerar 0.20m de separación entre tuberías PVC y CPVC.

0.20m

0.30m

Zanjeo

 Caso 1

 Tuberías paralelas a 0.20m de separación.

 Caso 2

 Tuberías a más de 0.20m de separación.

 Considerar cada zanja individualmente o en conjunto.

Se calcula de la misma manera, considerando el cambio de dimensiones de la zanja.

Relleno y Compactación de Zanjas

 Por el método conocido. 0.30m

Cálculo de tubería y pegamento

 Se debe de tomar en cuenta los metros lineales de tubería por diámetro para dividirlo dentro de los tamaños comerciales de tubería (6.00ml)

 Se obvian las uniones.

 Se debe de tomar en cuenta también las alturas de salida de los artefactos.

 TEFLÓN:

 Al utilizar teflón se considera comúnmente 8 vueltas(1mm de espesor) por cada unión.

 Equivalente a 8cms por vuelta ó 50cms aproximados por extremo.

 Se divide dentro de los tamaños comerciales (5.00m - 10.00m).

 PEGAMENTO:

Para tubería de PVC y CPVC se considera comprar por galón para evitar que haga falta al momento de la instalación. Investigar sobre “rendimientos del pegamento”

Fuente:http://www.amanco.cr/descargas/PegadoTuberias.pdf

de calculo de adhesivos para tubería:
Calculadora-PVC.html
También se pueden utilizar los siguientes recursos: Pagina
http://www.construccionviaweb.com.ar/

ACCESORIOS

Calculo de accesorios

Para el cálculo de los accesorios, se realizará un conteo de accesorios, tipos de caja, etc.

Se debe de tomar en cuenta que para la instalación de algunos artefactos, hay accesorios que no se ven en planta, por la tanto se debe de prever dichos accesorios.

Válvulas

Cálculo de accesorios

Cálculo del suministro y colocación de todos los mecanismos o elementos que cierran o regulan el paso de agua, conocidos como llaves o válvulas.

La unidad de medida que se utilizará es pieza (pz).

La sumatoria de elementos se realizará por la cantidad de piezas, agrupadas por tipo y diámetro.

INSTALACIONES HIDRÁULICAS: AGUAS NEGRAS

2
MGTR. ARQ. LUIS FERNANDO RUANO PAZ

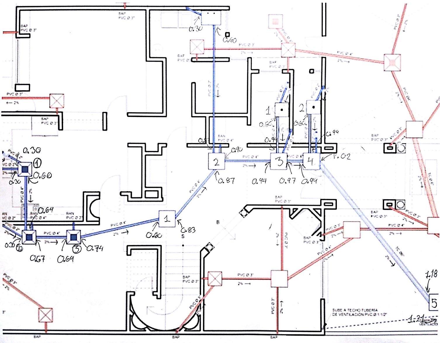
DRENAJE SANITARIO – AGUAS NEGRAS

ISOMÉTRICO AGUAS NEGRAS PLANTA

Zanjeo

Se deben de excavar las zanjas con la amplitud necesaria debe de ser mas ancha en donde se ubiquen las cajas de registro , tiene que tener el 2 % de inclinación es decir 2 cm por cada metro.

FASE 1: Conformación de la capa de apoyo sobre la que se extenderá el tubo. Debe compactarse uniformemente en toda su longitud

FASE 2: Se continua el relleno vertiendo material en capas de espesor menor o igual15 cm hasta la coronación del tubo y con un grado de compactación similar al de la capa de apoyo

FASE 3: se continua el relleno hasta 30 cm por encima de la coronación . En esta fase se debe de usar suelo seleccionado, pudiéndose utilizar también para este fin al mismo material que se uso para el hecho.

FASE 4 : continuación del relleno hasta la coronación de la zanja , en espesor menor e igual a 20 cm

1 2 3 4
Se suma por unidad los tubos con sus distancias y por cada artefacto.

Excavación y relleno

CAJAS

1. Cotas invert: Son las medidas dadas

desde el nivel del piso terminando 0.00 m. hacia abajo

2. Pendientes: Aguas negras 2%

Calculo de cotas invert

Calculo de zanjeo para TUBERIA

Volumen excavación = lado a X lado b X altura(cota invert de salida)

Ejemplo

Volumen de excavación caja receptora AN 1

V = 0.59X0.59X(0.60cota invert de salida)

V = 0.226m3

NOTA: Al tener un zanjeo mayor a 1m. el ancho de la zanja deberá aumentar al menos 1m. para la colocación de la tubería de manera apropiada.

Total de excavaciónCajas

Caja Receptora AN 2

Caja Receptora AN 3

Caja Unificadora 1

Caja Unificadora 2

Caja Unificadora 3

Caja Unificadora 4

Caja Unificadora 5

Caja Sifón Pila

Caja Receptora

Inodoro 1

Caja Receptora

Inodoro 2

Total 6.49

Número de caja Lado A (m) +0.20 Lado B (m) +0.20 Altura (cota invert) Volumen (m3) Caja Receptora AN 1 0.79 0.79 0.60 0.36

Calculo de relleno para cajas

Volumen caja = (lado a X lado b X altura)

Ejemplo

Volumen caja receptora AN 1

V = 0.59X0.59X0.475

V = 0.17m3

Volumen total de relleno =

Volumen de excavación – volumen de caja

Caja Unificadora 2

Caja Unificadora 3

Caja Unificadora 4

Caja Unificadora 5

Caja Sifón Pila

Caja Receptora Inodoro 1

Número de caja Lado A (m) Lado B (m) Altura (m) Volumen Caja (m3) Volumen total (m3) Volumen excavación – volumen caja Caja Receptora AN 1 0.59 0.59 0.475 0.17 0.19
Receptora AN 2
Caja
Caja Receptora AN 3
Caja Unificadora 1
Caja Receptora Inodoro 2 Total 4.07 Total de Relleno y compactaciónCajas

Cajas

Bajada de aguas negras

NOTAS

• Las cajas de registro se fabricarán de la ladrillo

tayuyo de 0.065 x 0.11 x 0.23 m

• Las orillas de los tubos que entrarán a las cajas de registro saldrán 2 cms desde el rostro del alisado.

Caja receptora de inodoro

Caja sifón para pila

Caja sifón para pila

Caja para reposadera

Caja trampa de grasa

Caja unificadora

Cálculo de concreto:

SUELO:

0.83 x 0.83 x 0.05 = 0.034 m3

TAPA: = 0.069 m3

0.83 x 0.83 x 0.05 = 0.034 m3

0.069 x 1.05 = 0.072x 9.80 = 0.71 >> 1 saco de cemento

0.072x 0.55 = 0.04 m3 de arena

0.072x 0.55 = 0.04 m3 de piedrín

Cálculo de hierro:

TAPADERA: Ref. 6 No. 2 ambos sentidos

0.78m largo x 6 = 4.68m

0.78m largo x 6 = 4.68m

4.68 + 4.68 = 9.36m / 6m (largo de varilla) = 1.56 >> 2 varillas de Ø 1/4”

LADRILLO:

12 ladrillos emplantillados

x 6 ladrillos de altura

72 LADRILLOS TOTALES

MORTERO PARA LEVANTADO de muros de cajas:

Para el levantado de muros de cajas de drenaje se usará ladrillo tayuyo de 0.065 x 0.11 x 0.23. El factor de mortero para levantado es de 0.025286 el cual incluye el 25% de desperdicio.

Ejemplo:

0.61 x 0.49 = 0.2989 x 4 (paredes)= 1.1956 m2 x 0.025286= 0.030 m3

12 sacos x 0.030 = 0.36 >> 1 sacos de cemento

1.33 m3 x 0.030 = 0.04 m3 de arena de río.

Sabieta para cajas:

PAREDES

0.61 X 0.49 = 0.2989 X 4 (PAREDES)= 1.1956 M2 X 0.025286= 0.030 M3

SUELO 0.61 x 0.61 = 1.22 m2 x 0.025286= 0.030 m3

0.030 + 0.030 = 0.06 m3

15.54 sacos x 0.060 = 0.93 >> 1 sacos de cemento 1.32 m3 x 0.060 = 0.08 m3 de arena de río.

Turn static files into dynamic content formats.

Create a flipbook
Issuu converts static files into: digital portfolios, online yearbooks, online catalogs, digital photo albums and more. Sign up and create your flipbook.
TEMA 11 Instalaciones 1 ADMINISTRACIÓN Y GESTIÓN 1 URL 2023 by Arq. Luis Fernando Ruano Paz - Issuu