Skip to main content

CLASE 8 > CHIMENEAS > DISEÑO DE INSTALACIONES ESPECIALES 2026

Page 1


2 0 2 6

P R O Y E C T O S

D I S E Ñ O D E

I N S T A L A C I O N E S

E S P E C I A L E S

C H I M E N E A S

Mgtr.Arq. Luis Fernando Ruano Paz

4 marzo

• Tema 4: Climatización interior > Chimenea de leña.

• Asignación Entrega No. 4

• Cálculo chimenea de ambiente asignado.

chimeneas

Generalidades

La chimenea es un elemento que genera calor gracias a la combustión de una materia prima (leña).

Gracias a este proceso químico, proporciona un clima cálido y hogareño.

Cuenta con dos partes: el hogar, donde se realiza todo el proceso de combustión, y el conducto vertical (tiro), dedicado a dar salida a todos los humos y residuos fruto del proceso de la combustión.

Generalidades >> tipos

1. Chimenea de leña

• Genera gran cantidad de residuos, principalmente cenizas.

• Necesita espacio para almacenar leña.

• La temperatura es difícilmente regulable.

• Es obligatoria la salida de humos a cubierta.

• El fuego debe ser alimentado a menudo para mantenerlo vivo.

• Su rendimiento energético es muy bajo.

La mayor parte del calor generado se pierde por el tiro.

Generalidades >> tipos

2. Chimenea de gas

• No genera residuos, no genera humo, ocupa poco espacio.

• Es muy eficiente, se enciende instantáneamente (incluso con mando a distancia) y son regulables.

• Necesita un tiro menor y se vale colocar un tubo galvanizado.

• Es necesario contar con instalación de gas.

• Las llamas son estáticas, es decir, que son siempre iguales.

Generalidades >> tipos

3. Chimenea de bioetanol

• Tiene un rendimiento energético del 100%, ya que al no tener tiro, todo el calor generado se queda en la estancia en la que esté la chimenea.

• No requiere de instalación (chimenea portátil).

• Posee poder calorífico, con llama real, con regulación y sin ninguna instalación.

• El bioetanol no es fácil de encontrar.

• Una chimenea mediana de unos 1.5 litros de capacidad puede mantener las llamas encendidas durante aproximadamente 5 horas.

• Puede emitir olores.

Generalidades >> tipos

4. Chimenea eléctrica

• Elemento meramente decorativo, es imitación de una chimenea real.

• Genera calor, a través de una resistencia eléctrica, lo que supone un gasto enorme si se quiere calentar, por ejemplo, un salón entero.

• Al no tener fuego de verdad, son 100% seguras, no hay humos, ni residuos, ni combustibles, ni mantenimiento, ni limpieza y por supuesto, tampoco es necesario un tiro.

• Es una pantalla con imágenes de fuego y en algunos casos incluye leña falsa que simula también con luz, estar quemándose.

Generalidades Las chimeneas de leña, deben reunir por lo menos tres condiciones para que puedan funcionar adecuadamente:

1. Buena combustión.

2. Máxima irradiación del calor hacia el interior del ambiente.

3. Fácil eliminación de los gases de combustión.

Hogar Garganta
Ducto (tiro)
Sombrero
Campana
Repisa
Base
Pulmón
Forro (cuerpo)
Base
Hogar
Garganta 4. Repisa
5. Pulmón
6. Campana
7. Ducto / Tiro
8. Forro / Cuerpo
9. Sombrero

Construcción

Construcción

Construcción

Acabados

Acabados

Construcción

Construcción

Construcción

Acabados

Acabados

Tipo campana metálica

Bajo tiraje

El sombrero: Todas las chimeneas tradicionales, requieren en su extremidad superior el emplazamiento de un sombrero, que tiene la función de proteger las paredes internas o el conducto de la chimenea de la acción de las intemperies. Si no está bien concebido puede resultar una especie de tapón que puede hacer lenta la salida de los humos.

El sombrero debe ser construido de manera de reducir el efecto negativo de los vientos desfavorables y aprovechar el efecto positivo de los favorables.

Bajo tiraje

El sombrero: El sombrero mostrado en la imagen es un antiviento basado en el efecto Venturi, en grado de aumentar ligeramente la depresión de la chimenea hasta con la presencia de vientos descendientes.

El sombrero

chimeneas

Zona de reflujo

El efecto del viento sobre los techos, crea zonas de sobrepresión y depresión, que pueden influenciar el correcto funcionamiento del sombrero.

La amplitud de estas zonas llamadas zonas de reflujo, varía en razón de la conformación y pendiente de los techos.

El último tramo de la chimenea debe ser construido o adaptado, de manera que el sombrero se ubique más allá de la zona de reflujo.

Los esquemas muestran alturas y distancias para un normal funcionamiento del sombrero.

Zona de reflujo

Zona de reflujo

Zona de reflujo

Zona de reflujo

0.50 m
0.80 m

Zona de reflujo

2.10 m
1.50 m

Zona de reflujo

Distancias de seguridad

Distancias de seguridad

Instalación

chimeneas Instalación

chimeneas Instalación

Hogar

Garganta aerodinámica

Una garganta suave promueve una corriente de aire fuerte sin afectar los gases de combustión.

Una garganta convencional crea turbulencias que pueden reducir las corrientes de aire y perturbar el fuego.

Una cámara de combustión Rumford maximizará la energía radiante del fuego debido a su poca profundidad y lados en ángulo óptimo

Una cámara de combustión convencional permite que salga una fracción del calor radiante debido a la profundidad y al ángulo de las paredes.

El flujo de aire laminar minimiza la mezcla de gases de combustión

La mezcla turbulenta de aire y gases de la habitación interrumpe la corriente de aire

La parte posterior poco profunda y los lados con ángulos pronunciados irradian calor a la habitación.

La cámara de combustión profunda y los lados con ángulos poco profundos irradian menos calor a la habitación.

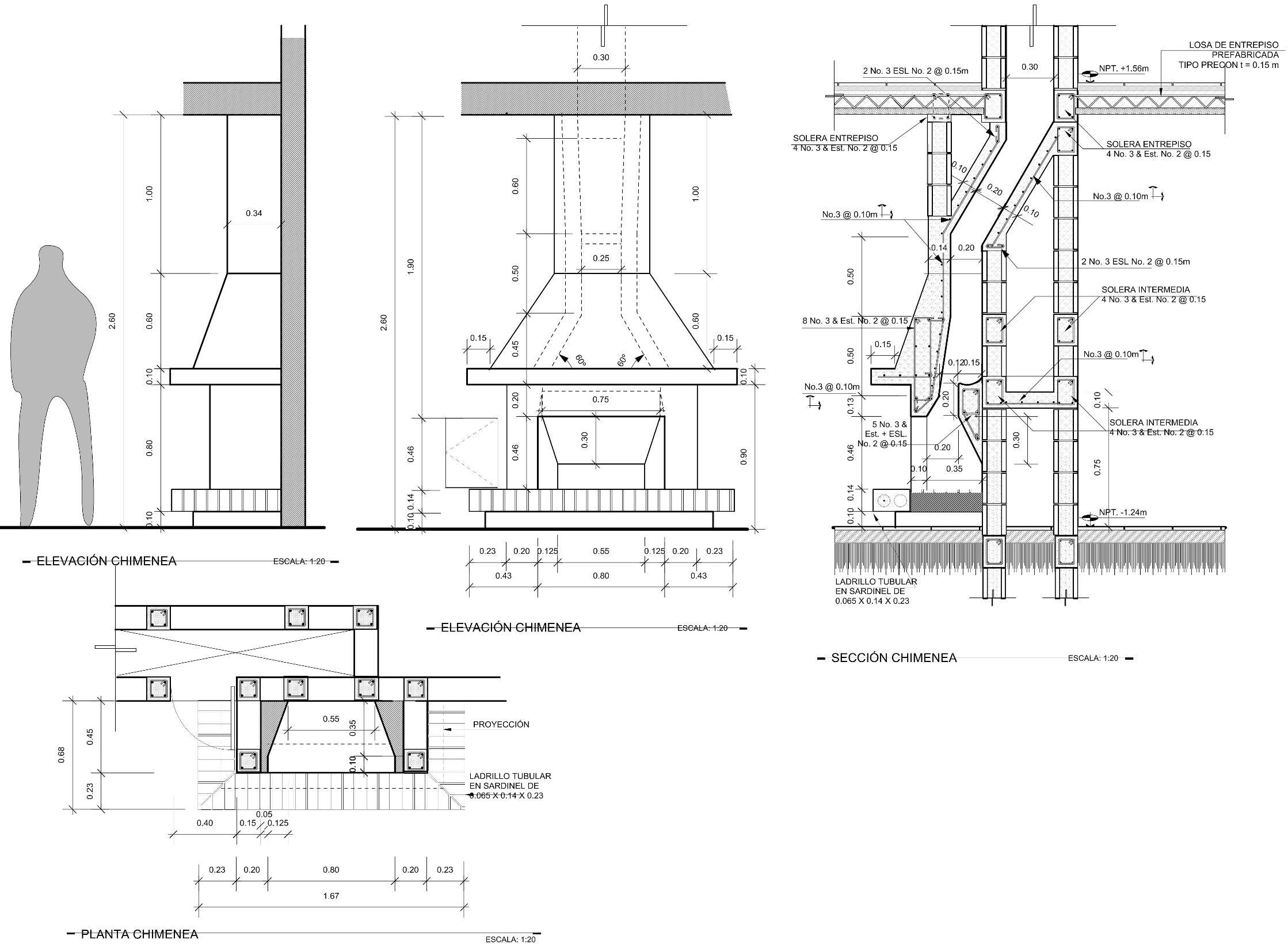
Cálculo

Parte inferior conducto de humos

ALTURA DEL CONDUCTO DE HUMOS

Centro del hogar

Cálculo

Cálculo ejemplo

Volumen 1: 7.0 x 5.0 x 3.0 m = 105.00 m3

Volumen 2: 2.5 x 2.5 x 7.0 m = 43.75 m3

Volumen total = 148.75 m3

Como la altura de 5.93 m es menor a 8 m, habrá que aumentar la sección del conducto de humos en 25% = 0.375 x 0.375

http://el-manitas.blogspot.com/2011/09/tutorial-de-chimenea-completo.html

chimeneas

chimeneas

chimeneas

chimeneas

2. Maqueta virtual

Modelo 3D

chimeneas

chimeneas

Altura de techo Ø
1 m
Planta 2 AGUAS
Planta 4 AGUAS
Planta 3 AGUAS

1. MODELOS 3D RENDERIZADOS

• Planta acotada

• Sección

• Elevación frontal

• Elevación lateral

• Renders

• Cálculos

2. PODCAST (audio + video)

• “Video creativo”

• Duración entre 3 y 6 minutos

• Cada integrante del grupo deberá participar y verse en el mismo

Filmora 9

GRATIS PARA HACER VIDEOS

Genially
Wix
Openshot
Shotcut
Lightworks
Hitfilm express
Davinci resolve
Loom
Canva
CapCut

Ejemplo Videopodcast

Ejemplo de Entrega

C L A S E

Turn static files into dynamic content formats.

Create a flipbook
CLASE 8 > CHIMENEAS > DISEÑO DE INSTALACIONES ESPECIALES 2026 by Arq. Luis Fernando Ruano Paz - Issuu