TEMA 8 Análisis de Costos e Integración de Precio Unitario ADMINISTRACIÓN Y GESTIÓN 1 URL 2023

Page 1

2 0 2 3 Facultad Arquitectura y Diseño

ADMINISTRACIÓN Y GESTIÓN 1

CUANTIFICACIÓN Y PRESUPUESTACIÓN

. Arq. Luis Fernando Ruano Paz

Análisis de Costos
Integración
Precio
e
de
Unitario

análisis de costos

arq. luis fernando ruano paz

costo directo / indirecto

integración de precio unitario

o costo directo:

- materiales - mano de obra y prestaciones laborales

- herramienta y equipo o costo indirecto:

- gastos generales

- imprevistos

- utilidad o costo integrado

contenido análisis
costos
de

análisis de costos

1. ANÁLISIS DE COSTOS

Son todas las actividades que se realizan dentro del proceso de planificación y ejecución del proyecto, con el objeto de conocer:

• costos directos

• costos indirectos

• costos integrados

Para la elaboración de:

• antepresupuestos (presupuestos aproximados)

• presupuestos detallados

• análisis de financiamiento

• control de costos

• liquidaciones, etc.

COSTO DIRECTO:

Son todos los gastos ocasionados para la ejecución de la obra, que pueden ser cargados totalmente a uno o varios renglones de trabajo:

• materiales

• mano de obra y prestaciones laborales

• herramienta y equipo

Materiales: El costo de los materiales esta determinado por:

• costo de adquisición

• transporte

• la cantidad del mismo, que se desperdicia al ser integrado a la obra. análisis de costos costos directos

Mano de obra y Prestaciones Laborales:

El costo de la mano de obra incluye la preparación de los materiales y su integración a la obra.

La mano de obra comprende el pago de:

• días de asueto y feriados

• 4 horas los sábados

• días domingo (7° día)

• bonificación incentivo

Las prestaciones laborales son las que por ley del país, se conceden a los trabajadores, y comprenden el pago de:

• vacaciones

• bono 14

• aguinaldo

• seguro social análisis de costos costos directos

• indemnización

análisis de costos

Días de asueto y feriados:

Corresponde a todos los días de descanso en los cuales el trabajador devenga salarios.

fecha días festividad

1º enero 1 año nuevo

costos directos

semana santa 3 (jueves, viernes y sábado santo)

1º mayo 1 día del trabajo

30 junio 1 día del ejército

15 agosto 1 fiesta patronal (feriado)

15 septiembre 1 aniversario de la independencia patria

20 octubre 1 conmemoración de la revolución de 1944

1º noviembre 1 día de todos los santos

24 diciembre 1/2 noche buena (a partir de las 12 horas)

25 diciembre 1 navidad

31 diciembre 1/2 fin de año (a partir de las 12 horas) total 12

Día sábado (4 horas):

Los días sábados los trabajadores laboran 4 horas y el patrono está obligado a pagarle 8 horas, por jornada de trabajo, siempre y cuando el trabajador haya laborado la semana completa.

Días domingo (séptimo):

Los días domingo son días de descanso, en los cuales los trabajadores devengan una cantidad equivalente al promedio por día devengado durante la semana.

Período de prueba:

Pasados 60 días después de la contratación de personal, los trabajadores adquieren el derecho a vacaciones, aguinaldo e indemnización.

análisis de costos costos directos

Jornada laboral ordinaria de trabajadores:

8 horas diarias de lunes a viernes = 40 horas

4 horas de sábado = 4 horas

Total horas a la semana = 44 horas

Días NO laborales:

• Feriados = 12 días

• Sábados por la tarde (4 horas) = 26 días

• Domingos = 52 días

• Vacaciones = 15 días Total = 105 días

Días efectivos laborales:

• 365 días / año – 105 días = 260 días

costos costos directos
análisis de

Formas de pago para los albañiles:

Por trato: se cuantifica y se hace un reporte de trabajo realizado por la persona en un período de tiempo. A este personal se le paga por lo que hizo regularmente en el transcurso de una quincena. El problema de esta forma de pago es que el personal en ocasiones hace el trabajo a la carrera y no lo hace bien, por lo que necesita supervisión constante.

Por día: se le asignan tareas al personal en un período de tiempo definido por el supervisor. A este personal se le paga los días trabajados pero se tiene que tener mucho control con este personal ya que pierde tiempo en tareas no importantes.

El encargado, ayudantes, guardián, bodeguero, se les paga por día.

análisis de costos costos directos

Mano de obra:

• Mano de obra directa:

Albañil Ayudante

• Mano de obra indirecta:

Maestro de obras

Guardián

Planillero

Bodeguero Operador de equipo

análisis
costos costos directos
de

Pagos diarios aproximados de mano de obra 2023:

• Maestro de obras: Q. 190.00 - Q. 300.00

• Albañil: Q. 145.00 – Q. 150.00

• Ayudante: Q. 112.32

• Guardián Q. 112.32

• Planillero Q. 130.00

• Bodeguero Q. 130.00

* Incluye bonificación incentivo

análisis
de costos costos directos

Vacaciones:

Para los trabajadores de la construcción el período de descanso anual, que les corresponde, es de 15 días hábiles, durante los cuales no laboran y continúan devengando su salario ordinario. El trabajador adquiere el derecho de gozar de vacaciones después de 150 días de trabajo.

Bono 14:

En el mes de julio (primera quincena) de cada año, se paga a los trabajadores, en concepto de la Bonificación Anual para Trabajadores del Sector Privado y Público (Bono 14), el equivalente al 100% del sueldo o salario ordinario mensual que estos devenguen por un año de servicios continuos o su proporción. Se calcula del 1 de julio al 30 de junio del próximo año. análisis de costos costos directos

Aguinaldo:

En el mes de diciembre de cada año, se paga a los trabajadores, en concepto de Aguinaldo (Bono 13), el equivalente al 100% del sueldo o salario ordinario mensual que estos devenguen por un año de servicios continuos o su proporción.

Deberá pagarse el 50% en la primera quincena del mes de diciembre y el 50% restante en la segunda quincena del mes de enero.

Se calcula del 1 de diciembre al 30 de noviembre del próximo año.

Indemnización:

Es la cantidad que se le cancela a cada trabajador por despido o finalización de trabajo, equivalente al salario total (ordinario + extraordinario) de 1 mes/año.

análisis de costos costos directos

Seguro Social (IGSS):

El Instituto Guatemalteco de Seguridad Social, es una institución pública, cuyos servicios son prestados a todos los trabajadores afiliados, por medio de diversos programas de salud en todo el país.

Las Leyes del seguro social, obligan a los patronos a inscribir a sus trabajadores de la construcción, cuando cuentan con 1 o más trabajadores.

Los pagos al Seguro Social se hacen sobre el total de los salarios pagados, sin incluir la Bonificación Incentivo; desglosándose de la siguiente manera:

análisis de costos costos directos

Pagos al IGSS:

análisis
patronal
IGSS Enfermedad Maternidad Accidente (EMA) 10.67% 4.83% Invalidez Vejez Sobrevivencia (IVS) INTECAP Instituto Técnico de Capacitación y Productividad 1% IRTRA Instituto de Recreación de los Trabajadores del Sector Privado 1% total 12.67% 4.83%
de costos concepto programas cuota
cuota trabajadores
costos directos Jubilación: 60 años 240 cuotas (20 años) Máximo 80% del salario Hasta Q.15,000.00

Trabajadores IGSS 4.83% Q. 268.85

IGSS 10.67% Q. 593.93

Patrono

INTECAP 1.00% Q. 55.66

IRTRA 1.00% Q. 55.66 Q. 974.10 Total

análisis
costos directos
de costos Pagos al IGSS:

Bonificación Incentivo:

Se paga con el objeto de estimular y aumentar la productividad y eficiencia del trabajador.

Se tiene la obligación de pagar una bonificación incentivo de Q. 250.00 mensuales a cada empleado, según la Ley de Bonificación Incentivo para los Trabajadores del Sector Privado (Decreto 78-89).

Esta bonificación no está afecta al pago de prestaciones laborales ni al pago de las cuotas patronales ni laborales del IGSS e INTECAP.

análisis de costos costos directos

Salario mínimo:

Es el autorizado cada año por el Gobierno de Guatemala, el cual es modificado año con año, para ajustarlo al nivel de precios que existe en el país.

Salario mínimo 2023 = Q.3,416.38

2019 > Q.2,992.37

2020 > Q.3,075.10

2021 > Q.3,075.10

2022 > Q.3,209.24

Determinación del Salario Mensual: Salario Diario X Días Año / 12 Meses (SDx365/12)

https://www.mintrabajo.gob.gt/index.php/dgt/salario-minimo

análisis de costos costos directos

Herramienta y Equipo:

Todos los gastos ocasionados por la adquisición de herramientas para la ejecución del proyecto, debe considerarse como costo directo.

El equipo puede ser mecánico o manual como por ejemplo parales metálicos, prensas, andamios modulares, vigas extensoras, formaletas metálicas, moldes, etc.

Cuando se hace necesario la compra de maquinaria y/o equipo deberá cargarse a los gastos del proyecto en forma proporcional, tomando en cuenta el tiempo de ejecución; lo correspondiente a su adquisición y transporte así como los gastos de mantenimiento, combustible, operador etc.

análisis de costos costos directos

Herramienta y Equipo:

Cuando el equipo pertenece a la empresa los costos de adquisición se eliminan y únicamente se le carga su depreciación.

Según la Ley del Impuesto sobre la Renta y su Decreto 04-2012, los porcentajes máximos de depreciación anual son los siguientes:

análisis de
concepto % depreciación Mobiliario y equipo de oficina 20% Maquinaria de construcción 20% Vehículos en general 20% Herramientas 25% costos directos
costos

Son todos los gastos que la ejecución del proyecto ocasionan al contratista y que no pueden ser incluidos entre los costos directos.

Se caracterizan porque son gastos que no pueden identificarse físicamente en la obra, ni cargarse particularmente a alguno de los renglones de trabajo, pero han hecho posible su ejecución.

Se calculan en función de los costos directos, como un porcentaje de incremento que se carga proporcionalmente a cada renglón de trabajo.

Se incluye:

• gastos generales • imprevistos • utilidad

COSTO INDIRECTO:
análisis de costos costos indirectos

Gastos Generales:

Son todos aquellos ocasionados por la administración, así como todos los gastos ocasionados por la realización de actividades de apoyo a la obra, como:

• gastos de oficina

Alquileres (oficina, bodegas, etc), teléfono, electricidad, agua potable, salario de secretaria, salario de contador, papelería y útiles de escritorio, mantenimiento y conserjería, seguridad, depreciación de mobiliario y equipo de oficina, depreciación de vehículos.

• gastos de contratación

Honorarios notariales (contrato), impuesto del timbre, timbres de arquitectura e ingeniería, fianzas, trámites generales, permisos, etc.

análisis de costos costos indirectos

Gastos Generales:

• gastos de supervisión

Sueldos varios + prestaciones, delegado residente (honorarios profesionales), viáticos, combustible, mantenimiento y depreciación de vehículos utilizados particularmente en la obra.

• gastos varios

Pruebas de laboratorio, ensayos, copias planos, fotocopias, otros.

Los gastos de oficina se cargan proporcionalmente entre las diversas obras que la empresa está ejecutando simultáneamente.

Los gastos de contratación, supervisión y gastos varios, son particulares por cada proyecto u obra.

análisis de costos costos indirectos

Imprevistos:

Durante la ejecución del proyecto se suscitan circunstancias que afectan el costo de la obra, y las cuales no pueden predecirse con exactitud en la etapa de planificación del proyecto, porque son situaciones fuera del control del planificador, como por ejemplo:

• existencia de roca en la excavación

• existencia de agua subterránea

• pérdidas de tiempo en el suministro de materiales

• pérdidas de tiempo por lluvia

• fallas mecánicas de equipo y maquinaria

• reparaciones varias

• desecho de materiales defectuosos

• sobreprecios, emergencias, etc.

Los imprevistos pueden incrementar el costo directo entre un 5% y 10%

análisis de costos costos indirectos

Utilidad:

Se entiende por utilidad a la ganancia que obtendrá la empresa si se llevan desde el principio los controles necesarios para construir el proyecto en el tiempo pactado y con el costo mínimo sin sacrificar la calidad de la obra.

La utilidad se calcula de acuerdo a la magnitud del proyecto, como un porcentaje de incremento al costo directo de la obra. Como promedio se puede considerar un 10% de utilidad.

La utilidad al igual que todos los gastos generales e imprevistos forman parte de los costos indirectos de la obra, que al integrarse (directo + indirecto) dan el costo total de la obra a ejecutarse (costo integrado)

análisis de costos costos indirectos

Honorarios Profesionales:

Se entiende por honorarios profesionales a la compensación económica que recibe un profesional liberal, por la prestación de servicios.

En el caso del arquitecto, lo que percibirá por la planificación y ejecución de un proyecto.

análisis de costos costos indirectos

análisis de costos

plantasrepetitivasparaoficinasousosdiversos,quenoincluyen apartamentosdevivienda.

repetitivos,conventos,casasparroquiales,clínicas,bibliotecas,edificios públicosydeservicios,laboratorios.

DIRECCIÓNTÉCNICAY ADMINISTRACIÓNDEL PROYECTOCOMPLETO

DIRECCIÓNTÉCNICA

DELOSASPECTOS ARQUITECTÓNICOS

fijosyespeciales,equipamientosespeciales(espaciosparaferiasy exposiciones)

diseño delasviviendasounidadeshabitacionales.

Diseñosespecialesdeviviendasunifamiliares,dúplex,edificiosy conjuntos,axial comoedificioscomerciales,losqueel clienteutilizara masdeunavezdebidoaquelosmismosseconsiderantípicos,como supermercados,gasolineras,etc.

CASO1: Deunasolarepetición,secobraráel 15%adicional delos honorariospactadosporunaunidad.

CASO2: Dedosacincorepeticiones,secobraráel 20%adiciona de loshonorariospactadosporunaunidad.

CASO3: Decincoadiezrepeticiones,secobraráel 25%adicional de loshonorariospactadosporunaunidad.

CASO4: Demásdediezrepeticiones,secobraráel 30%adicional de loshonorariospactadosporunaunidad.

Estaráacargoyseráresponsabledetodaslasactividades correspondientesalaejecucióndelaconstrucción. Sirvedeagentedecomprasdel propietario,así comorepresentantedel mismoenlacontratacióndel personal necesario.

Participaenlaconstruccióncomoasesordel propietario Supervisaal profesional queestéacargodelaconstrucción,enlos aspectosexclusivamenterelacionadosconlaarquitecturadel proyecto.

SUPERVISIÓNDELA CONSTRUCCIÓN

Participaenlaconstruccióncomoasesordel propietario. Supervisael constructorentodoslosaspectosdelaobra,siendo responsabledeinformaral propietariosobreloserroresydefectosque observe.

Recomiendaal propietariolaformaderesolverlosyexigeal constructor queserealicesegúnlaindicación.

honorariossereferirán parael primeredificioo vivienda,deacuerdo conlosindicadosen losgrupos1a5.

15%

GRUPOS CLASIFICADOS DESCRIPCIÓN PORCENTAJE MÍNIMODEL COSTOTOTAL GRUPOI Edificiosparafábricas,talleresgenerales,bodegasydeporte,edificiosde
6% GRUPOII Edificiosparabancos,teatros,auditorios,templos,clubes,edificiosno
7% GRUPOIII Residenciasprivadasnorepetitivas,mausoleos,monumentos,museosy
8% GRUPOIV Diseñoderemodelacióndeviviendasyedificios,deinteriores,muebles
10% GRUPOV Urbanizaciones,diseñodeconjuntoshabitacionalessinincluirel
5%
hoteles.
Enestoscasos,los
2%
GRUPOVI PLANIFICACIÓN CONSTRUCCIÓN ARANCELDEHONORARIOSPROFESIONALES COLEGIODEARQUITECTOSDEGUATEMALA costos indirectos
5%

GRUPO I

Edificios para fábricas, talleres generales, bodegas y deporte, edificios de plantas repetitivas para oficinas o usos diversos, que no incluyen apartamentos de vivienda.

ARANCEL DE HONORARIOS PROFESIONALES COLEGIO DE ARQUITECTOS DE GUATEMALA

6%

GRUPO II

GRUPOS CLASIFICADOS DESCRIPCIÓN

GRUPO III

Edificios para bancos, teatros, auditorios, templos, clubes, edificios no repetitivos, conventos, casas parroquiales, clínicas, bibliotecas, edificios públicos y de servicios, laboratorios.

Residencias privadas no repetitivas, mausoleos, monumentos, museos y hoteles.

GRUPO I

GRUPO IV

Edificios para fábricas, talleres generales, bodegas y deporte, edificios de plantas repetitivas para oficinas o usos diversos, que no incluyen apartamentos de vivienda.

Diseño de remodelación de viviendas y edificios, de interiores, muebles fijos y especiales, equipamientos especiales (espacios para ferias y exposiciones)

7%

MÍNIMO DEL COSTO TOTAL

8%

6%

10%

GRUPO II

GRUPO V

GRUPO III

GRUPO IV

GRUPO V

GRUPO VI

GRUPO VI

Urbanizaciones, diseño de conjuntos habitacionales sin incluir el diseño de las viviendas o unidades habitacionales.

Edificios para bancos, teatros, auditorios, templos, clubes, edificios no repetitivos, conventos, casas parroquiales, clínicas, bibliotecas, edificios públicos y de servicios, laboratorios.

Residencias privadas no repetitivas, mausoleos, monumentos, museos y hoteles.

Diseños especiales de viviendas unifamiliares, dúplex, edificios y conjuntos, axial como edificios comerciales, los que el cliente utilizara mas de una vez debido a que los mismos se consideran típicos, como supermercados, gasolineras, etc.

Diseño de remodelación de viviendas y edificios, de interiores, muebles fijos y especiales, equipamientos especiales (espacios para ferias y exposiciones)

Urbanizaciones, diseño de conjuntos habitacionales sin incluir el diseño de las viviendas o unidades habitacionales.

CASO 1: De una sola repetición, se cobrará el 15% adicional de los honorarios pactados por una unidad.

CASO 2: De dos a cinco repeticiones, se cobrará el 20% adicional de los honorarios pactados por una unidad.

Diseños especiales de viviendas unifamiliares, dúplex, edificios y conjuntos, axial como edificios comerciales, los que el cliente utilizara mas de una vez debido a que los mismos se consideran típicos, como supermercados, gasolineras, etc.

CASO 3: De cinco a diez repeticiones, se cobrará el 25% adicional de los honorarios pactados por una unidad.

CASO 4: De más de diez repeticiones, se cobrará el 30% adicional de los honorarios pactados por una unidad.

CASO 1: De una sola repetición, se cobrará el 15% adicional de los honorarios pactados por una unidad.

5%

7%

8%

10%

En estos casos, los honorarios se referirán para el primer edificio o vivienda, de acuerdo con los indicados en los grupos 1 a 5.

5%

En estos casos, los honorarios se referirán para el primer edificio o vivienda, de acuerdo con los indicados en los grupos 1 a 5.

PORCENTAJE
PLANIFICACIÓN
PLANIFICACIÓN análisis de costos costos indirectos

CASO 2: De dos a cinco repeticiones, se cobrará el 20% adicional de los honorarios pactados por una unidad.

ARANCEL DE HONORARIOS PROFESIONALES COLEGIO DE ARQUITECTOS DE GUATEMALA

CASO 3: De cinco a diez repeticiones, se cobrará el 25% adicional de los honorarios pactados por una unidad.

CASO 4: De más de diez repeticiones, se cobrará el 30% adicional de los honorarios pactados por una unidad.

I

DIRECCIÓN TÉCNICA Y ADMINISTRACIÓN DEL PROYECTO COMPLETO

GRUPO II

DIRECCIÓN TÉCNICA DE LOS ASPECTOS ARQUITECTÓNICOS

GRUPO III

GRUPO IV

SUPERVISIÓN DE LA CONSTRUCCIÓN

GRUPO V

Edificios para fábricas, talleres generales, bodegas y deporte, edificios de plantas repetitivas para oficinas o usos diversos, que no incluyen apartamentos de vivienda.

Estará a cargo y será responsable de todas las actividades correspondientes a la ejecución de la construcción.

Sirve de agente de compras del propietario, así como representante del mismo en la contratación del personal necesario.

Edificios para bancos, teatros, auditorios, templos, clubes, edificios no repetitivos, conventos, casas parroquiales, clínicas, bibliotecas, edificios públicos y de servicios, laboratorios.

Participa en la construcción como asesor del propietario Supervisa al profesional que esté a cargo de la construcción, en los aspectos exclusivamente relacionados con la arquitectura del proyecto.

Residencias privadas no repetitivas, mausoleos, monumentos, museos y hoteles.

6%

15%

7%

2%

8%

Diseño de remodelación de viviendas y edificios, de interiores, muebles fijos y especiales, equipamientos especiales (espacios para ferias y exposiciones)

Participa en la construcción como asesor del propietario. Supervisa el constructor en todos los aspectos de la obra, siendo responsable de informar al propietario sobre los errores y defectos que observe.

10%

5%

Recomienda al propietario la forma de resolverlos y exige al constructor que se realice según la indicación.

Urbanizaciones, diseño de conjuntos habitacionales sin incluir el diseño de las viviendas o unidades habitacionales.

5%

Diseños especiales de viviendas unifamiliares, dúplex, edificios y conjuntos, axial como edificios comerciales, los que el cliente utilizara mas de una vez debido a que los mismos se consideran típicos, como supermercados, gasolineras, etc.

En estos casos, los honorarios se referirán para el primer edificio o vivienda, de acuerdo con los indicados en los grupos 1 a 5.

CASO 1: De una sola repetición, se cobrará el 15% adicional de los honorarios pactados por una unidad.

CONSTRUCCIÓN
DESCRIPCIÓN PORCENTAJE MÍNIMO
GRUPOS CLASIFICADOS
DEL COSTO TOTAL GRUPO
GRUPO VI PLANIFICACIÓN
análisis de costos costos indirectos

PROYECTO ARQUITECTÓNICO

1. PLANIFICACIÓN: 5% al 10% del costo total del proyecto

1.1 Antecedentes: 5%

- Visita al terreno

- Plano del terreno

- Programa de arquitectura

1.2 Anteproyecto: 30%

- Diseño arquitectónico

1.3 Proyecto: 60%

- Desarrollo y cálculo de planos constructivos

1.4 Presupuesto estimativo 5%

2. CONSTRUCCIÓN: 15% al 20% del costo total del proyecto

- Supervisión y Administración de la obra

análisis de costos honorarios profesionales

PROYECTO ARQUITECTÓNICO

EJEMPLO:

• Diseño y construcción de Casa con un área de 400 m2 de construcción

• Costo x m2 de construcción +/- Q. 3,000.00

• Valor aproximado de construcción = 400 m2 x Q. 3,000.00 / m2 = Q. 1,200,000.00

• Planificación 7% = Q. 84,000.00

Antecedentes 5% = Q. 4,200.00

Anteproyecto 30% = Q. 25,200.00

Proyecto 60% = Q. 50,400.00

Presupuesto estimativo 5% = Q. 4,200.00

• Construcción 17% = Q. 204,000.00

análisis de costos honorarios profesionales

PROYECTO ARQUITECTÓNICO

EJEMPLO:

• Honorarios Profesionales percibidos por el Diseño y construcción de la Casa = Q. 288,000.00

• Del Proyecto 60% = Q. 50,400.00 se desglosan:

> Arquitectura 45% = Q. 22,680.00

> Estructuras 30% = Q. 15,120.00

* Los ingenieros estructurales cobran +/- $ 5.00/m2 de estructura >> 400 m2 x $ 5.00/m2 = $ 2,000.00 >> Q. 15,600.00

> Instalaciones eléctricas 15% = Q. 7,560.00

> Instalaciones hidráulicas y sanitarias 10% = Q. 5,040.00

análisis de costos honorarios profesionales

integrado

análisis de costos costo directo costo indirecto costo

integración de precio unitario

o integraciones

- integración de precio unitario

> factor de prestaciones laborales

> factor de indirectos

> factor de ayudante

- integración general

- integración renglones con sub renglones

- integración por materiales

- planos y detalles de apoyo

!! VINCULACIÓN DE HOJAS EXCEL !!

o listado de precios

- materiales

- maquinaria y equipo

- mano de obra

- presupuesto de subcontratos

contenido integración precio unitario
integración precio unitario prestaciones
JORNADA ORDINARIA Días efectivos de trabajo 260 días Días no laborales 105 días (incluye vacaciones) Total de días en un año 365 días
laborales 1.
RELACIÓN DE PORCENTAJES Días no laborales 105/365 28.77% Indemnización 30/365 8.22% Bono 14 30/365 8.22% Aguinaldo 30/365 8.22% Suma de porcentajes 53.43%
AFILIACIONES IGSS cuota patronal 10.67% IRTRA 1% INTECAP 1% Suma de afiliaciones 12.67% 66.10% 55.08% TOTAL PRESTACIONES LABORALES (12 MESES)
2.
3.
TOTAL PRESTACIONES LABORALES (10 MESES)
PRESTACIONES LABORALES
AFILIACIONES IGSS cuota patronal 10.67% IRTRA 1% INTECAP 1% Suma de afiliaciones 12.67% 66.10% 55.08% TOTAL PRESTACIONES LABORALES (12 MESES) TOTAL PRESTACIONES LABORALES (10 MESES)
3.

https://www.mintrabajo.gob.gt/index.php/igt/calculo-de-prestaciones

integración precio unitario prestaciones laborales

factor de indirectos

integración precio unitario
Imprevistos 5.00% Gastos fijos 6.00% Administración 5.00% Suma de Gastos Generales 16.00% 2. UTILIDAD Ganancia Empresa 10.00% Suma de Utilidad 10.00% 26.00% Se cobran por separado FACTOR DE INDIRECTOS FACTOR DE INDIRECTOS
1. GASTOS GENERALES (costos por operación)
Gastos fijos 6.00% Administración 5.00% Suma de Gastos Generales 11.00%
UTILIDAD Ganancia Empresa 10.00% Suma de Utilidad 10.00% 21.00%
DE INDIRECTOS
DE INDIRECTOS
1. GASTOS GENERALES (costos por operación)
2.
FACTOR
FACTOR

FACTOR DE AYUDANTE

FACTOR DE AYUDANTE

factor de ayudante

integración precio unitario
1. CASO 1 2 Albañiles Q300.00 1 Ayudante Q112.32 Relación ayudante / albañil (112.32 / 300.00) 37.44% 2. CASO 2 1 Albañil Q150.00 1 Ayudante Q112.32 Relación ayudante / albañil (112.32 / 150.00) 74.88%
DETERMINAR EL FACTOR DEL AYUDANTE Factor = 37.44% + 74.88% 56.16% 2 56.16%
3.
FACTOR DE AYUDANTE Salario por día Salario por día Q150.00 Q112.32 Q150.00 Q112.32 2 56.16%
FACTOR DE AYUDANTE Relación ayudante / albañil (112.32 / 300.00) Q112.32 Salario por día Q112.32

GENERAL • M2 de construcción = 200 m2

• Costo / m2 de construcción = Q.3,450.61

integración precio unitario
No . RENGLÓN CANTIDAD UNIDAD COSTO TOTAL 1 TRABAJOS PRELIMINARES 1 Global Q6,325.00 2 CIMENTACIÓN 1 Global Q48,753.00 3 MUROS 1 Global Q61,325.00 4 VIGAS Y LOSAS 1 Global Q78,923.00 5 DETALLES CONSTRUCTIVOS 1 Global Q12,369.00 6 INSTALACIONES HIDRÁULICAS 1 Global Q15,127.00 7 INSTALACIONES ELÉCTRICAS 1 Global Q8,398.00 8 ACABADOS 1 Global Q35,127.00 PRECIO TOTAL Q690,122.00
integración general
INTEGRACIÓN

1.05

No . RENGLÓN CANTIDAD UNIDAD COSTO UNITARIO COSTO TOTAL 1 TRABAJOS PRELIMINARES
Limpia y chapeo m2
Trazo y estaqueado ml
Bodega y guardianía global
Letrina unidad
1.01
1.02
1.03
1.04
Instalación provisional de electricidad global
Instalación provisional de agua global 2 CIMENTACIÓN 2.01 Excavación m3 2.02 Relleno compactado m3 2.03 Cimiento corrido ml 2.04 Zapatas unidad 3 MUROS 3.01 Columnas y pines ml 3.02 Solera hidrófuga ml 3.03 Solera intermedia ml 3.04 Solera final ml 3.05 Sillares ml 3.06 Dinteles ml 3.07 Muro mampostería m2 4 VIGAS Y LOSAS 4.01 Vigas ml 4.02 Cenefas ml 4.03 Losa m2 5 DETALLES CONSTRUCTIVOS 5.01 Gradas unidad 5.02 Chimenea unidad 5.03 Pérgola unidad 5.04 Domos / tragaluces unidad INTEGRACIÓN RENGLONES CON SUBRENGLONES integración precio unitario integración renglones/subrenglones
1.06

No. Renglón

Cantidad Unidad Costo unitario Costo total 1 Concreto Cemento 598 sacos Arena 40 m3 Piedrín 54 m3 Agua 17,087 lt 2 Madera Parales de 4"x4"x10' 12 Pieza Parales de 4"x4"x9' 5 Pieza Parales de 4"x4"x9' 9 Pieza Piezas 3"x4"x10' 10 Pieza Piezas 3"x4"x9' 10 Pieza Pieza 2"x 3 1/2"x 12' 3 Pieza Pieza 2" x3 1/2" x 9' 6 Pieza Parales 1" x 3" x 10' 2 Pieza Parales 1" x 3" x 8' 2 Pieza 3 Lámina galvanizada Lamina Galvanizada 10' 40 Unidad Lamina Galvanizada 5' 3 Unidad 4 Clavos Clavo para Madera de 3" c/cabeza (libra) 17 lb Clavo para Lamina de 2 1/2" plg 5 lb 5 Hierro Varillas No. 2 87 Varilla Varillas No. 3 53 Varilla Varillas No. 4 21 Varilla 6 Alambre de Amarre 4lbs/qq de hierro de refuerzo 96 lbs Integración por Materiales integración precio unitario integración por materiales
integración precio unitario
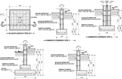
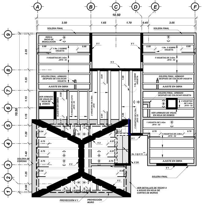
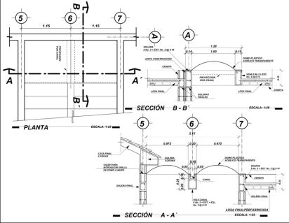
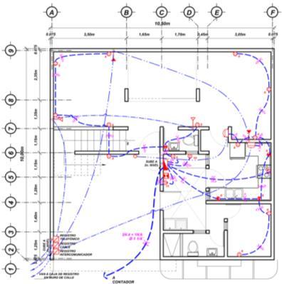
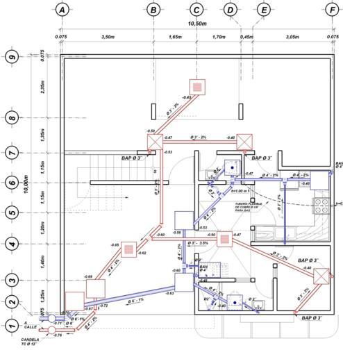
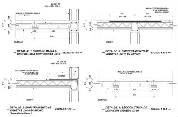
planos y detalles

Turn static files into dynamic content formats.

Create a flipbook
Issuu converts static files into: digital portfolios, online yearbooks, online catalogs, digital photo albums and more. Sign up and create your flipbook.
TEMA 8 Análisis de Costos e Integración de Precio Unitario ADMINISTRACIÓN Y GESTIÓN 1 URL 2023 by Arq. Luis Fernando Ruano Paz - Issuu