



Columnas +


![]()







o columnas: - refuerzo longitudinal - refuerzo transversal - alambre de amarre - concreto
o muros: - mampostería - mortero de pega








levantado hasta solera humedad

selecto + cemento

suelo cemento

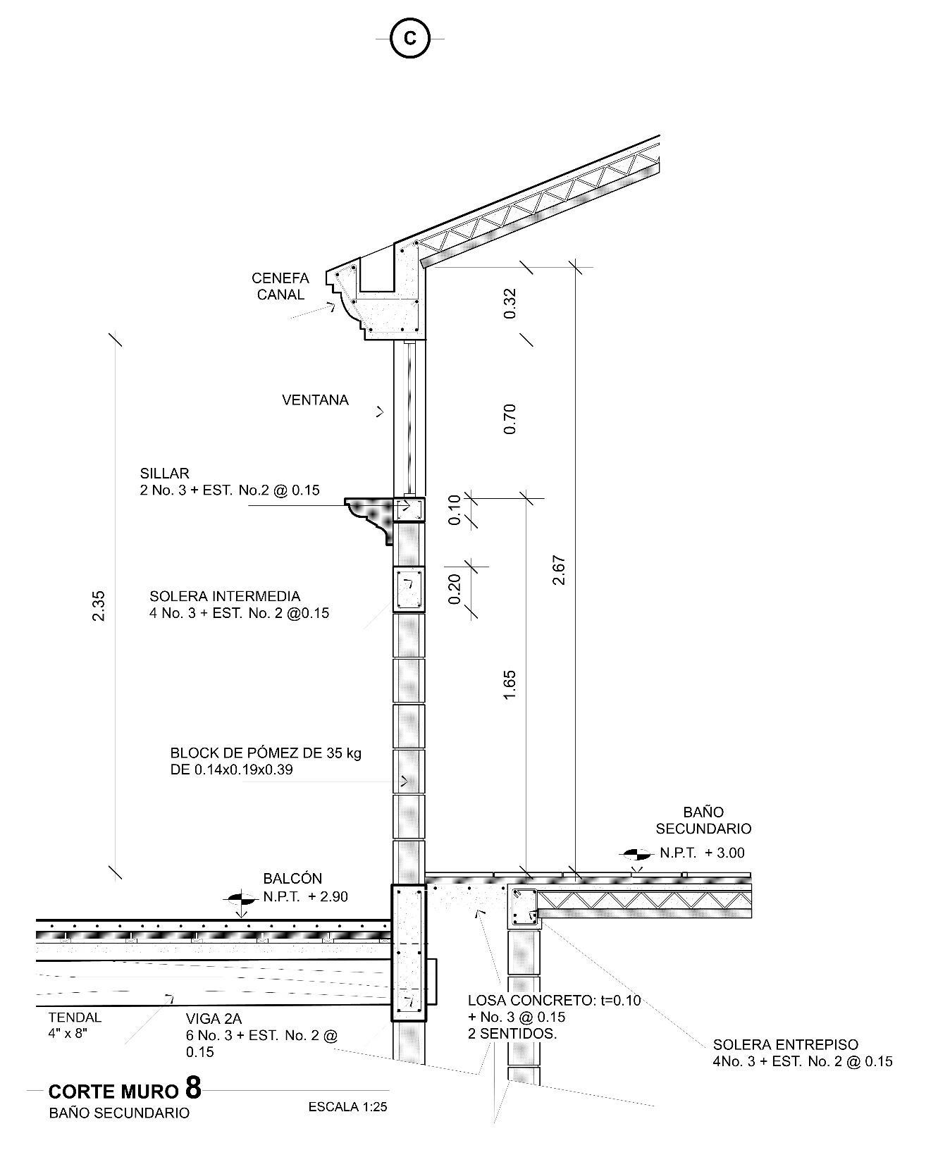
block u
levantado hasta sillares

levantado hasta sillares





levantado hasta solera entrepiso

levantado hasta solera entrepiso


fundición losa, solera y tuberías

fundición losa, solera y tuberías

levantado muros 2do. nivel

levantado muros 2do. nivel

levantado muros 2do. nivel

levantado muros 2do. nivel






8 unidades

15 unidades

20 unidades





Tipo A: 1.25 m + 2.80 m (altura pap) + 0.40 (doblez pata) – 0.076 (rec) = 4.375 m
Tipo B y C: 1.00 m + 2.80 m (altura pap) + 0.30 (doblez pata) – 0.076 (rec) = 4.024 m

Tipo A 4 No. 4 + estribo No. 2 @ 0.20
Tipo B 4 No. 3 + estribo No. 2 @ 0.20
Tipo C 2 No. 3 + eslabón No. 2 @ 0.20
1.1.1 Corridos: ** Considerar 0.10 m de traslape por cada octavo de hierro
Tipo A
4.375 m x 4 hierros x 8 u = 25.00 >> 25 varillas Ø 1/2”
5.60 m (largo varilla – 0.40 m de traslape)
Tipo B 4.024 m x 4 hierros x 15 u = 42.36 >> 43 varillas Ø 3/8”
5.70 m (largo varilla – 0.30 m de traslape)
Tipo C
4.024 m x 2 hierros x 20 u = 28.24 >> 29 varillas Ø 3/8”
5.70 m (largo varilla – 0.30 m de traslape)
columnas, muros,
Tipo A 4 No. 4 + estribo No. 2 @ 0.20
Tipo B 4 No. 3 + estribo No. 2 @ 0.20
Tipo C 2 No. 3 + eslabón No. 2 @ 0.20
Tipo A



4.375 m / 0.20 m (separación) x 8 u = 175 espacios + 1 = 176 estribos
6 m / 0.60 (largo estribo) = 10 estribos por varilla
176 estribos / 10 estribos por varilla = 17.6 >> 18 varillas Ø 1/4”
Tipo B
4.024 m / 0.20 m (separación) x 15 u = 302 espacios + 1 = 303 estribos
6 m / 0.50 (largo estribo) = 12 estribos por varilla
303 estribos / 12 estribos por varilla = 25.25 >> 26 varillas Ø 1/4”
Tipo C
4.024 m / 0.20 m (separación) x 20 u = 403 espacios + 1 = 404 eslabones
6 m / 0.20 (largo eslabón) = 30 eslabones por varilla
404 eslabones / 30 eslabones por varilla = 13.47 >> 14 varillas Ø 1/4”
1.2 ALAMBRE DE AMARRE: Considerar 4 lbs. / qq de hierro de refuerzo.
Según tabla 1 qq Ø 1/4” = 30 varillas
1 qq Ø 3/8” = 13 varillas
1 qq Ø 1/2” = 7 varillas
Total Ø 1/4” = 18 + 26 + 14 = 58 varillas
Total Ø 3/8” = 43 + 29 = 72 varillas
Total Ø 1/2” = 25 varillas
58 varillas = 1.93 qq x 4 lbs / qq = 7.73 lbs.
30 varillas / qq
72 varillas = 5.54 qq x 4 lbs / qq = 22.15 lbs.
13 varillas / qq
25 varillas = 3.57 qq x 4 lbs / qq = 14.29 lbs.
7 varillas / qq
Total alambre amarre = 44.17 lbs.
1.3 CONCRETO: (5% desperdicio)
Tipo A = 0.20 x 0.15 x (4.375 – 0.45 (C.C.+Z)) x 8 u x 1.05 = 0.99 m3
Tipo B = 0.15 x 0.15 x (4.024 – 0.20 (C.C.)) x 15 u x 1.05 = 1.36 m3
Tipo C = 0.10 x 0.15 x (4. 024 – 0.20 (C.C.)) x 20 u x 1.05 = 1.20 m3
Total concreto = 3.55 m3
Según Tabla: Tipo 1, Proporción volumétrica 1:1.5:1.5
Cemento: 12.60 sacos / m3 x 3.55 m3 = 45 sacos
Arena: 0.53 m3 / m3 x 3.55 m3 = 1.88 m3
Piedrín: 0.55 m3 / m3 x 3.55 m3 = 1.95 m3
Agua: 226 litros/m3 de concreto x 3.55 m3 = 802 lts.

Desde emplantillado hasta solera hidrófuga Primer y segundo nivel


COGUANOR NTG 41054
GREMIAL DE BLOQUEROS
AGIES NSE 7.4

levantado tipo “soga” (encadenado)
block de 0.14 x 0.19 x 0.39 m
cisa = 1 cm
block normado
m 1.00 m
por M2 incluyendo cisa

12.5 blocks por M2
blocks por M2 incluyendo cisa
0.20 x 0.40 = 0.08 m2 / unidad de mampostería
1 m2 / 0.08 m2 / unidad de mampostería = 12.5 unidades de block
** Contemplar 10% de desperdicio









2.1 ÁREA DE MUROS DE BLOCK:
55.70 m x 5.80 m de alto = 323.06 m2
2.2 ÁREA DE COLUMNAS:
Tipo A = 0.20 m x 8u x 5.80 m = 9.28 m2
Tipo B = 0.15 m x 15u x 5.80 m = 13.05 m2
Tipo C = 0.10 m x 20u x 5.80 m = 11.60 m2
Total área columnas = 33.93 m2
2.3 ÁREA DE VANOS DE PUERTAS Y VENTANAS:
5 puertas de 2.10 m x 1.00 m = 10.5 m2
8 ventanas de 1.50 m x 2.00 m = 24.00 m2
Total área vanos = 34.50 m2



2.4 ÁREA DE SOLERAS:
Solera hidrófuga = 75 m x 0.20 m = 15 m2
Solera intermedia nivel 1 = 54 m x 0.20 m = 10.80 m2
Solera de entrepiso = no se contempla
Solera intermedia nivel 2 = 37 m x 0.20 m = 7.40 m2
Solera final = no se contempla
Sillares ventanas = 16 m x 0.10 m = 1.60 m2
Dinteles puertas y ventanas = 21 m x 0.15 m = 3.15 m2
Total área soleras, sillares, dinteles = 37.95 m2
2.5 ÁREA FINAL MURO DE BLOCK:
Área de block = 323.06 m2
Área de columnas, vanos y soleras = 106.38 m2
2.6 CANTIDAD DE UNIDADES DE BLOCK: 216.68 m2 x 12.5 u / m2 x 1.10 (10% desperdicio) = 2,980 u



Forma de poner el mortero de pega entre hiladas.
Hay dos formas de colocar el mortero de pega entre las unidades de mampostería:

columnas, muros,
Forma de poner el mortero entre hiladas.
• Aplicando el mortero sobre toda la superficie de contacto entre blocks; esto se llama “Mortero de Lecho Completo”. >> MLC

• El levantado con Lecho Completo es más robusto, entre 10% y 15% más eficaz. (Norma AGIES)
EJEMPLO: ejemplo para una pared de 216.68 m2
ya incluye 25% desperdicio
216.68 m2 x 0.009294 m3/m2 x 12 sacos = 24 sacos cemento 216.68 m2 x 0.009294 m3/m2 x 1.33 m3 = 2.68 m3 arena río
EJEMPLO: ejemplo para una pared de 216.68 m2
Morteros premezclados:
• Compuesto de arena caliza, cemento y cal hidratada.
• Agua: 7.5 - 8.5 litros / bolsa
• Rendimiento: 2.5 m2 / bolsa de 50 kg aplicado a 10 mm de espesor.
216.68 m2 / 2.5 m2/bolsa = 87 bolsas







