
C

L A S E 4

2 0 2 6

P R O Y E C T O S
D I S E Ñ O D E

I N S T A L A C I O N E S



E S P E C I A L E S

A S C E N S O R E S


Mgtr.Arq. Luis Fernando Ruano Paz







• Tema 2: Elevadores, Gradas y Rampas electromecánicas. • Asignación Entrega No. 2 4 febrero


![]()


L A S E 4

2 0 2 6

P R O Y E C T O S
D I S E Ñ O D E

I N S T A L A C I O N E S



E S P E C I A L E S

A S C E N S O R E S


Mgtr.Arq. Luis Fernando Ruano Paz







• Tema 2: Elevadores, Gradas y Rampas electromecánicas. • Asignación Entrega No. 2 4 febrero



Un ascensor está formado por dos partes:
• El bastidor o chasis (elemento portante del sistema)
• La caja o cabina (transporta a los usuarios)







Control
El control de los sistemas de ascensores funciona por medio de sistemas electrónicos, que hacen funcionar la dirección de movimiento de la cabina y de seleccionar los pisos en los que esta deba detenerse.







La seguridad del sistema es un elemento clave en los ascensores. Para maximizarla se emplean varios dispositivos específicos:
• Enclavamiento electromecánico de las puertas
• Paracaídas de rotura o desequilibrio de cables de tracción
• Limitador de velocidad
• Finales de carrera (detienen cabina por defecto en funcionamiento del recorrido)
• Dispositivo de parada de emergencia
• Timbre de alarma
• Luz de emergencia
• Sistema de pesacargas (evita que el ascensor se desplace con mayor peso del debido)
• Tracción con cuarto de máquinas • Tracción sin cuarto de máquinas • Hidráulico • Magnéticos























Video Thyssenkrupp

https://youtu.be/9jwLDI8ziqg?si=E4Equ7kE9-SmlTl8










Video UJU Parqueo Inteligente Vivo zona 4 > 310 parqueos > 4 elevadores > 7 sótanos
https://youtu.be/X246SwFTdEY?si=gUbx0p6yZbaTWUGf





Mgtr.Arq. Luis Fernando Ruano Paz

1. Análisis de tráfico Es conveniente realizar el análisis de tráfico en el período más crítico, que debe ser satisfecho por una batería de ascensores.
Ese tiempo en general se establece en 5 minutos (300 segundos), determinándose entonces, el % de población a transportar en ese lapso.
Pico de tráfico de 5 minutos

Porcentaje de tráfico estimado en 5 minutos
Tipo de edificio % tráfico en 5 minutos
Viviendas 8 a 10%
Escuelas 30 %
Hoteles 10%
Oficinas 15% (entidad única) 12% (varias entidades)
Hospitales 8% (servicio) 12% (pacientes)
Centros comerciales 10%

Capacidad estimada de personas en edificio
Tipo de uso de edificio Cantidad de personas
Hospitales 1.3 personas por dormitorio
Hoteles 2 personas por dormitorio
Edificios de oficinas 5 a 10 m2 por persona
Edificios de apartamentos 2 personas por dormitorio
Escuelas 1.1 persona por asiento
Bancos 5 m2 por persona
Comercio 8 m2 por persona

3. Determinación del número de personas a trasladar en 5 minutos
Conociendo la cantidad de personas del edificio y aplicando el porcentaje de tráfico indicado, se puede determinar la cantidad de personas a trasladar en 5 minutos.

4. Velocidad del ascensor
Se fija en función del tipo de edificio, su categoría y fundamentalmente del costo de la instalación.
Velocidades recomendadas en función del número de pisos
Número de niveles
Velocidades recomendadas
5. Determinación del tiempo total del viaje
TT = Tiempo total mínimo de duración total del viaje (seg)
TT = t1 + t2 + t3 + t4
t1 = 2h/v Tiempo de duración del viaje, ida y vuelta del ascensor a la velocidad fijada (seg) h: altura total del edificio (m) v: velocidad del ascensor (m/seg)


t2 = 2 seg x No. paradas
Tiempo mínimo invertido en paradas, por ajustes, maniobras y reducción de velocidad (se consideran 2 seg)
t3 = 3 seg x No. paradas
Tiempo mínimo de puerta abierta, para permitir la entrada y salida de cada pasajero (se consideran 3 seg)
t4 = 4 seg x No. paradas
Tiempo mínimo invertido en la apertura y cierre de puertas (se consideran 4 seg)

No. de ascensores = No. P (5 min) x TT
P (cabina) x 300 seg
No. P (5 min) = Número de personas o población a trasladar en el pico de 5 minutos
TT = Tiempo total del viaje (seg)
P (cabina) = Número de pasajeros de la cabina preseleccionada

En la práctica se ha demostrado, que los tiempos de espera que pueden llegar a aceptarse son:
• Oficinas = 30 a 45 seg
• Apartamentos = 60 a 90 seg
• Hoteles = 45 seg
Para reducir estos períodos que originan disconformidad e impaciencia, se pueden instalar más ascensores o disminuirse el tiempo total del viaje, utilizando unidades de más velocidad.


Te = TT No. asc
Te = Tiempo de espera (seg)
TT = Tiempo total del viaje (seg)
No. asc = Número de ascensores

Calcular la cantidad de ascensores para un edificio de uso mixto, de acuerdo a las siguientes necesidades:
• Número de niveles = 10 pisos servidos
• Recorrido vertical h = 38 m (3 y 4 m de altura por nivel)
• Porcentaje de personas a trasladar en el pico de 5 minutos a% = 15%
• Tiempo de espera máximo admitido Te = 30 – 45 seg

Para este cálculo es necesario consultar en un catálogo de elevadores, la capacidad y características del modelo que se requiere: Thyssenkrupp, Otis, Mitsubishi, Schindler, Hyundai, etc.
Se fijan de acuerdo al tipo de edificio, las siguientes características de los ascensores:
• Velocidad v = 90 m/min (1.5 m/seg)
• Capacidad de cabina = 11 personas







• Número de personas a trasladar en 5 minutos

No. P (5 min) = No. personas x a% a trasladar en 5 min
No. P (5 min) = 426 personas x 15% = 64 personas
= t1 + t2 + t3 + t4
t1 = 2h/v = 2 x 38 m / 1.5 m/seg = 51 seg
t2 = 2 seg x 10 paradas = 20 seg
t3 = 3 seg x 10 paradas = 30 seg
t4 = 4 seg x 10 paradas = 40 seg 141 seg

• Número de ascensores
No. asc = No. P (5 min) x TT P (cabina) x 300 seg
No. asc = 64 personas x 141 seg = 2.73 ≈ 3 ascensores
11 personas X 300 seg
• Verificación del tiempo de espera
Te = TT / No. asc = 141 seg / 3 asc = 47 seg
Te = TT / No. asc = 141 seg / 4 asc = 35 seg ok!
El tiempo de espera calculado, se ajusta al establecido de 30 – 45 seg para esta instalación.



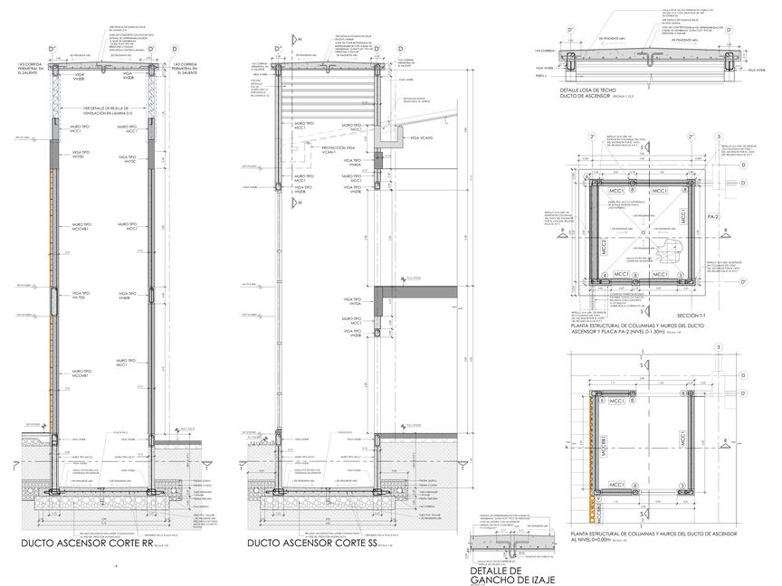
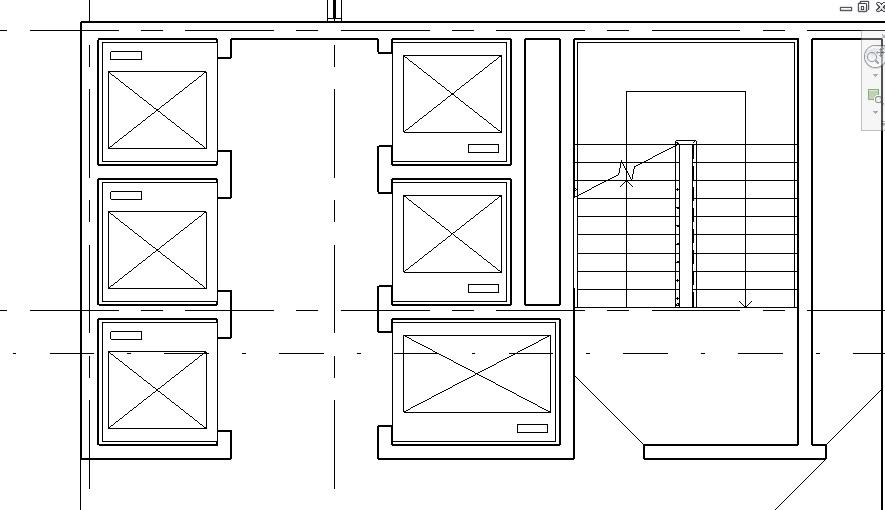
Hay 2 parámetros para diseñar los vestíbulos de los elevadores de un edificio.
1. El área mínima debe de ser de 1 m² por persona de la capacidad total de los elevadores.
Para este ejemplo: 2 elevadores de 11 pasajeros, requieren de un área mínima de 22 m².

2. El área debe de tener las siguientes proporciones:
La distancia lateral (A) debe ser igual al ancho del ducto.
El ancho del lobby debe ser 2
veces la profundidad del ducto (B).

2. El área debe de tener las siguientes proporciones:
La distancia lateral (A) debe ser igual al ancho del ducto.
El ancho del lobby debe ser 2
veces la profundidad del ducto (B).

Cálculo: Ducto cabina 1.10x1.40m
Área Lobby = 18.50 m².

18.50 m2










