TEMA 2b Trabajos Preliminares ADMINISTRACIÓN Y GESTIÓN 1 URL 2023

Page 1

2 0 2 3

ADMINISTRACIÓN Y GESTIÓN 1

CUANTIFICACIÓN Y PRESUPUESTACIÓN

Facultad Arquitectura y Diseño

. Arq. Luis Fernando Ruano Paz

Trabajos Preliminares

o destronque, chapeo, limpieza o demolición de estructuras existentes o movimiento de tierras (nivelación): - corte - relleno o instalaciones provisionales: - guardianía, bodega, oficina - sanitario portátil / letrina - instalación provisional de agua potable - instalación provisional de aguas negras - instalación provisional de electricidad - cerramiento perimetral terreno o estaqueado-puentes, corral y trazo o herramientas resumen

o topografía
cuantificación trabajos preliminares
cuantificación trabajos preliminares
topografía
cuantificación trabajos preliminares
destronque
cuantificación trabajos preliminares
demoliciones
corte / relleno cuantificación trabajos preliminares

guardianía + bodega + oficina

cuantificación trabajos preliminares
cuantificación trabajos preliminares
oficina
cuantificación trabajos preliminares
bodega

pozo absorción Ø

1m x 4-6 m profundidad

cuantificación trabajos preliminares
cuantificación trabajos preliminares
letrina

sanitario portátil

cuantificación trabajos preliminares
cuantificación trabajos preliminares
agua potab. provisional

Tanque cisterna temporal de mampostería

Llenado con pipa de agua

(capacidad de 5,000 a 10,000 litros)

cuantificación trabajos preliminares
agua potab. provisional

Tanque cisterna temporal prefabricado de polietileno (capacidad de 2,5000 a 10,000 litros)

Llenado con pipa de agua

cuantificación trabajos preliminares
agua potab. provisional

eléctricas provisionales

cuantificación trabajos preliminares
corral cuantificación trabajos preliminares Paral 2”x3”xL’ enterrado 0.40 m Corral 2”x3”x6’ Nivelado

1 saco cal hidratada

corral / trazo cuantificación trabajos preliminares
cuantificación trabajos preliminares
herramientas albañil
cuantificación trabajos preliminares
herramientas obra

o personal

- maestro de obra > 1

- albañiles > 20

- ayudantes > 10

- guardián > 1

- bodeguero > 1 o tiempo de obra

- 10 meses

trabajadores

cuantificación trabajos preliminares

NOTA: los parales estarán enterrados 1 pie para su cuantificación

cuantificación trabajos preliminares
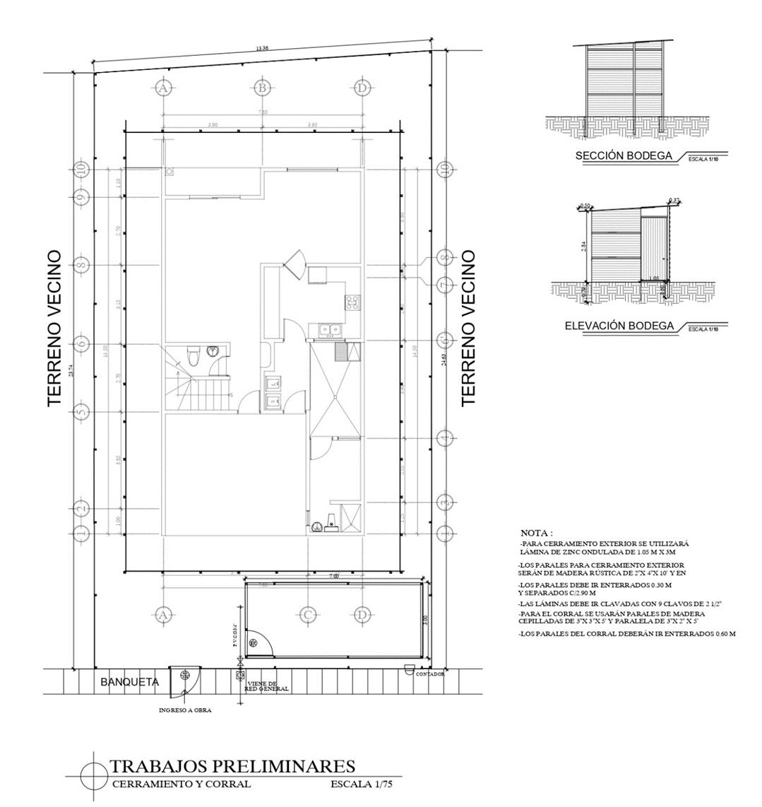
planta guardianía + bodega
cuantificación trabajos preliminares
planta guardianía + bodega

NOTA: Configuración y ubicación de acuerdo a las condiciones de la obra guardianía

planta bodega + corral +

perímetro

cuantificación trabajos preliminares
cerramiento
corral cerramiento
cuantificación trabajos preliminares
planta guardianía + bodega
6.5 clavos de 3” por lámina 2 láminas en adelante 1 lámina
cuantificación trabajos preliminares
planta guardianía + bodega
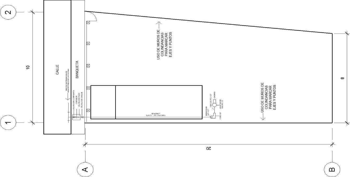
cuantificación trabajos preliminares provisional agua potable
cuantificación trabajos preliminares provisional agua potable
cuantificación trabajos preliminares provisional electricidad
cuantificación trabajos preliminares provisional electricidad

colindancia (construcción)

colindancia (construcción)

cuantificación trabajos preliminares
planta cerramiento terreno
cuantificación trabajos preliminares planta cerramiento terreno
cuantificación trabajos preliminares planta cerramiento terreno

corral

ejes verticales (x 2) (ancho cimiento - muro)

ejes horizontales (x 2) (ancho cimiento - muro)

planta trazo

cuantificación trabajos preliminares

• Hierro (6m)

• Tubería hidráulica (6m)

• Tubería eléctrica (3m)

• Accesorios hidráulicos y eléctricos

• Sacos cemento y cal

• Embolsados (levantado, pisos, azulejos)

• Herramientas

dimensiones sugeridas

bodega

cuantificación trabajos preliminares

arranque parales y láminas

cuantificación trabajos preliminares
bodega

traslape láminas 0.10 m

distribución final parales y láminas

cuantificación trabajos preliminares
bodega
lámina
sentido horizontal

separación parales de acuerdo a largo de lámina

bodega

cuantificación trabajos preliminares

elevación: distribución de láminas

bodega

cuantificación trabajos preliminares

sección: distribución de láminas

bodega

cuantificación trabajos preliminares

costaneras de techo

cuantificación trabajos preliminares
bodega

traslape láminas

0.20 m

bodega

sección

cuantificación trabajos preliminares

medidas costaneras de techo

cuantificación trabajos preliminares
bodega

lámina: ancho total = 0.82 ancho útil = 0.70

22 láminas de 8’ de largo

techo

bodega

cuantificación trabajos preliminares
cuantificación trabajos preliminares
hoja excel

tablas para cálculo

cuantificación trabajos preliminares

MADERA

TAMAÑOS COMERCIALES

Pie Tabla = Ancho (“) x Alto (“) x Largo (‘) 12

Ejemplo: Si se requiere comprar 13 tablas de pino rústico de 10 pies de largo. 12” x 1” x 10’ = 10 pt. 12

10 pt. x 13 u = 130 pie tabla x Q. 7.00/pt. = Q.910.00 1”x12”x10’

NOTAS:

* CLAVO PARA LÁMINA = 0.015 LIBRA / PIE DE LÁMINA * ALAMBRE DE AMARRE PARA FORMALETA =

tablas para cálculo

x12
1/2 x12 TABLÓN 2 x12 LISTÓN 1 x2 2 x3 2 x4 COSTANERA 3 x4 3 x3 3 x4 4 x4 4 x6 6 x6 8 x8 3 x8 4 x7 4 x8 5 x8 NOTAS: * LONGITUDES COMERCIALES = 6' A 16'
TABLA 1
TABLONCILLO 1
REGLA PARAL COLUMNA (PILAR) VIGAS DENOMINACIÓN DIMENSIONES ( " ) 1 560 1 1/4 420 1 1/2 315 1 3/4 262 2 245 2 1/4 176 2 1/2 80 3 60 3 1/2 49 4 22 4 1/2 20 5 17 5 1/2 11 6 13 7 10 8 7 9 6 Clavo lámina 46
0.5
M2 DE FORMALETA * 1 LIBRA DE ALAMBRE DE AMARRE No. 16 CONTIENE 27.5 ml DE ALAMBRE LONGITUD ( " ) No. UNIDADES / LIBRA CLAVOS HG CON CABEZA
cuantificación trabajos preliminares
LIBRA X
* CLAVO PARA FORMALETA = 1 LIBRA / 22.5 PT

LÁMINA GALVANIZADA CAL. 24, 26, 28

Cálculo clavo de 3” para lámina :

Opción 1 >> 6.5 clavos por lámina

Son 22 láminas de techo (del ejemplo anterior).

22 láminas x 6.5 clavos/lámina = 143

clavos (incluye traslapes)

Opción 2 >>

Según tabla 0.015 libra / pie de lámina

Son 22 láminas de 8’ = 176’

NOTAS:

* TRASLAPE LONGITUDINAL = 0.20 m

* TRASLAPE TRANSVERSAL = 1 ONDA

* ANCHO NOMINAL = 0.81 m (32")

* CLAVO PARA LÁMINA = 0.015 LIBRA

0.015 libra x 176’ = 2.64 >> 3 libras

Según tabla 1 libra de clavo 3” = 46 u.

3 libras x 46 u = 138 clavos p/lámina de 3”

Cuál se escoge ??

tablas para cálculo

PIES METROS ANCHO LARGO 6 1.829 0.70 1.63 7 2.134 0.70 1.93 8 2.438 0.70 2.24 9 2.743 0.70 2.54 10 3.048 0.70 2.85 12 3.658 0.70 3.46
PIE
LÁMINA LONGITUD DIMENSIONES ÚTILES
cuantificación trabajos preliminares
/
DE
integración cuantificación trabajos preliminares
integración cuantificación trabajos preliminares

Turn static files into dynamic content formats.

Create a flipbook
Issuu converts static files into: digital portfolios, online yearbooks, online catalogs, digital photo albums and more. Sign up and create your flipbook.
TEMA 2b Trabajos Preliminares ADMINISTRACIÓN Y GESTIÓN 1 URL 2023 by Arq. Luis Fernando Ruano Paz - Issuu