

ADMINISTRACIÓN Y GESTIÓN DE PROYECTOS 1
CUANTIFICACIÓN - PRESUPUESTACIÓN - PROGRAMACIÓN


2 0 2 5

. Arq. Luis Fernando Ruano Paz Facultad Arquitectura y Diseño
MGTR.
![]()


CUANTIFICACIÓN - PRESUPUESTACIÓN - PROGRAMACIÓN


2 0 2 5

. Arq. Luis Fernando Ruano Paz Facultad Arquitectura y Diseño
MGTR.




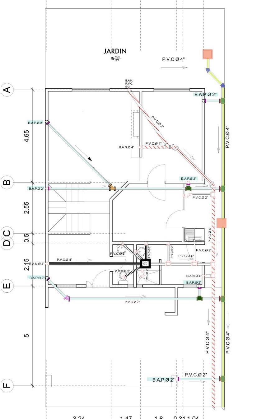
M3= 0.40m (ancho) x 0.40m (profundidad, dependiendo de cota invert) x 43.5 (mts lineales) X 1.25
Zanja = 8.70 m3
• M3= 0.40m (ancho) x 0.40m (profundidad, dependiendo de cota invert) x 43.5 (mts lineales)
• Relleno Zanja = 6.96 m3



• Tubo de 2” de diámetro
Horizontal
Suma mts lineales
(4.54+0.84+3.04+3.54+1.54+1.34+6.64+1+2.29+0.54)= 25.31mts
Vertical # bajadas * (altura de muro + 0.40 m de zanja)
7 bajadas * 5.90 altura total = 41.3mts
25.31 + 41.3 = 66.61mts / 6 = 11.10 tubos = 12 tubos
• Tubo de 4” de diámetro
Horizontal
Suma mts lineales
(0.54+1.04+0.54+4.29+1.54+3.54+3.79+1.25)= 16.53 mts
16.53 / 6 = 2.75 tubos = 3 tubos

• Codos a 90° diámetro 2" 7 unidades
• Codos a 45° diámetro 2" 1 unidad
• Codos a 45° diámetro 4“ 2 unidades
• Reducidores 4 unidades
• Yee diámetro 2“ 1 unidad
• Tee diámetro 2“ 1 unidad
• Tee diámetro 4" 4 unidades
• Cajas de Unión 2 unidades
• Pegamento PVC 1 libras (453.59g)



• 1.1 Acometida y Desfogue
• 1.2 Trazo y Excavación
• 1.3 Relleno y Compactación
• 1.4 Formaleta y Armado
• 1.5 Fundición
• 1.6 Accesorios
• 1.7 Cajas
• Piso
• Levantado de Muros
• Tapadera
• Acabados
• 1.8 Sistema de Tratamiento de Agua Pluvial
• Tanque de Reserva
UBICAR SI EXISTE ACOMETIDA Y DESFOGUE DE AGUA PLUVIAL

1.2 Trazo y Excavación 1.3 Relleno Compactado

DIAGRAMA DE CAJA DE UNIÓN
EXCAVACIÓNY RELLENO COMPACTADO
PARA CAJAS DE UNIÓN
EXCAVACIÓN DE CAJA DE UNIÓN
0.89 m X 0.89 m X 3(UNIDADES)= 2.38 m3
RELLENO DE CAJA DE UNIÓN


DIAGRAMA DE EXCAVACIÓN


DIAGRAMA DE RELLENO

EXCAVACIÓNY RELLENO COMPACTADO PARA
ZANJAS
EXCAVACIÓN DE ZANJA PARATUBERÍA
0.60 m X 0.35 m X 39.70 = 8.34 m3
RELLENO DE ZANJA PARATUBERÍA
0.60 m X 0.35 m X 39.70 = 8.34 m3

DIAGRAMA DE

DIAGRAMA DE EXCAVACIÓN

(2 Caras x 2.40 x 3.28pie/ m x 6 u) / 3 usos= 31.50 pies
(12” x1”x 5.25”)/ 12 = 31.50 pt.
31.50 / 10 = 3.15 > 4 tablas de 1” x12”x 10”
ARMADO:
4 varillas no.2 + est. @ 0.20
6 m ( longitud de varilla ) / 2.40 = 2.50 > 3 pedazos de varilla
(4 varillas x 6 Unidades) / 3 pedazos por varilla = 8 varillas No.
2
Estribos:
2.40 / 0.20 = 12 estribos x 6 unidades =72 estribos
6m / 0.42 = 14.29 > 15 estribos por varilla
72 estribos / 15 estribos por varilla = 4 .8 > 5 varillas No.2

ARMADO:
0.14 x 0.14 x 2.40 = 0.047 m3
3” ( diámetro del tubo) > 7.5 cms = 0.30
0.075 = (0.0375)2 x π x 2.40 = 0.011 m3 VOLUMEN
VOLUMEN NETO = 0.036 m3 x 6 unidades = 0.216 m3
Proporción: 1 : 2 : 2
9.80 = 2.11 > 3 sacos de Cemento
0.55= 0.12 m3 Arena
0.555 = 0.12 m3 Piedrín
• TUBO PVC 3¨
• TUBO PVC 4¨
• CODOS 90 GRADOS
• YEE 45 GRADOS
• CODO 45 GRADOS
• REDUCTORES
• REJILLAS METALICAS

DIAGRAMA DE RELLENO
• CODOS 90 GRADOS
CANT: 5 UNIDADES

• REJILLAS METALICAS
CANT: 5 UNIDADES

UTILIZAR
• YEE 45 GRADOS
CANT: 2 UNIDADES

UTILIZAR
• CODO 45 GRADOS
CANT: 3 UNIDADES

• REDUCIDORES
CANT: 5 UNIDADES

• TUBO PVC 3¨
CALCULO:
5 (UNIDADES BAP) X ALTURA DE CASA (AGREGAR ESPESOR DE LOSA Y PROFUNDIDAD DE
TUBO EN EL SUELO ) =
2.40m + 0.15m + 0.35m= 2.90m
5 un x 2.90m= 14.50 ml
TUBOS A UTILIZAR
14.50 / 6 m= 2.41 aprox
2 tubos de 6 m y 1 tubo de 3 m

• TUBO PVC 4¨
CALCULO:
SUMAR LOS TOTALES DE CADA COTA
EN EL PLANO + (AGREGAR 0.26 GROSOR DE
CAJA AMBOS LADOS ) =
0.28+9.62+0.65+0.87+10.40+8.43+0.94+6.4
4+3.03+1.50+2.34+3.89+0.31= 48.66 ml
Cajas a utilizar
5 un x 0.26 = 1.30 ml
Suma ml
1.30+48.66= 49.96 ml
TUBOS A UTILIZAR
49.96 / 6 m= 8.32 aprox
8 tubos de 6 m y 1 tubo de 3 m

MGTR. ARQ. LUIS FERNANDO RUANO PAZ







Al momento de cuantificar y calcular alturas para realizar una conexión a tierra en viviendas, es necesario establecer el lugar donde se llevara a cabo la instalación, ya que las alturas son fijas según reglamentos de la empresa eléctrica.

Consideremos una vivienda en la ciudad de Guatemala, en la cual el tablero se encuentra dentro de la casa, el cual debe ir conectado a la caja Socket para contador .

Materiales a y medidas según normas de la empresa eléctrica.:
Cable cobre calibre 6 (desde la caja socket al piso 2mt).
De esos 2mt podemos aumentar o disminuir 10mt (dependiendo la ubicacion del socket)


➔ Varilla de cobre (2mt)
Esta
varilla
es la que va sumergida en la tierra
➔ Cinta de aislar vulcanizada









Propiedades:
Fabricada por proceso de corte, embutido y troquelado
Para usar en instalaciones eléctricas generales.
Características:
Cuantificación de cajas:
- Conteo por unidad de cajas en cada tomacorriente, salida de teléfono, lámpara, reflector, interruptor, uniones, entre otros.
-
- Fácil de manipulación en acometidas eléctricas.
- Perforaciones para salida y entrada de tubería de ½ y ¾
- Recomendados en cualquier sistema de construcción por su resistencia.

- Se divide en dos, Iluminación y Fuerza para tener un mejor control.



Los tomacorrientes de uso general pueden ser dobles. Con terminales de tornillo apropiados para recibir cables No. 12 y 14, con herrajes, tornillos y placas.




PARA CUANTIFICAR CONECTORESY ABRAZADERAS:
*SACAR METRAJE LINEAL DE TUBERÍA
*DIVIDIR EN SECCIONES DE 0.5 A 2M PARA SABER LA CANTIDAD DE
UNIDADES QUE SE UTILIZARAN DE ABRAZADERAS
*PARA CONECTORES SI LAS TUBERIAS EXCEDEN LOS 3M SE COLOCAN
CONECTORES
*SE MULTIPLICA EL PRECIO UNITARIO POR LA CANTIDAD PARA SABER
EL TOTAL A GASTAR EN LA CONSTRUCCIÓN.



MGTR. ARQ. LUIS FERNANDO RUANO PAZ


TELÉFONO - CABLE/TV–INTERNET-INTERCOMUNICADOR



Para este tipo de instalaciones existen diversos tipos de tubería:
Poliducto
Tubo ducto PVC
Tubo PVC flexible



Para la tubería es necesario saber de donde va a partir la acometida ya sea aérea o subterránea.
A partir de esto se miden las alturas de piso a la instalación a requerida (teléfono,cableTV,cable internet) y se van sumando.
La altura más común para las instalaciones telefónicas y de internet es de aproximadamente entre 0.30 y 0.35 mts.
Y para las instalaciones de cable deTV es de aproximadamente 1.70 mts.







Ancho Mínimo: 0.1cm
Profundidad:0.2m – 0.4m
Cable,Teléfono e Internet pueden estar en un mismo tubo.Dependerá de si utiliza el servicio de solo una compañía o no.
Normalmente la zanja se realiza solamente desde la Acometida hasta cierto punto de la casa. (Normalmente la Sala o el Estudio)

ML xAncho x Profundidad = Excavación
25.45m x 0.1m x 0.3m x 1.25 = 0.95m3
Relleno = 0.76m3



ML +Altura = Metraje de tubo
25.45m + 0.60m = 26.05 ML
Metraje de tubo / 3 m (longitud de un tubo) = Cantidad de tubos
8.68 => 9 tubos de ¾″




Salidas deTeléfono
e internet,las cajas miden 2’’ x 4’’


http://www.construccionviaweb.com.ar/Calculador





