






![]()








Normal:
Concreto > 4,000 psi
Acero > 40 a 60,000 psi
Pretensada:
Concreto > 5,000 psi
Acero preesfuerzo > 250 a 270,000 psi
Cordón superior > 70,000 psi




Cables preesfuerzo
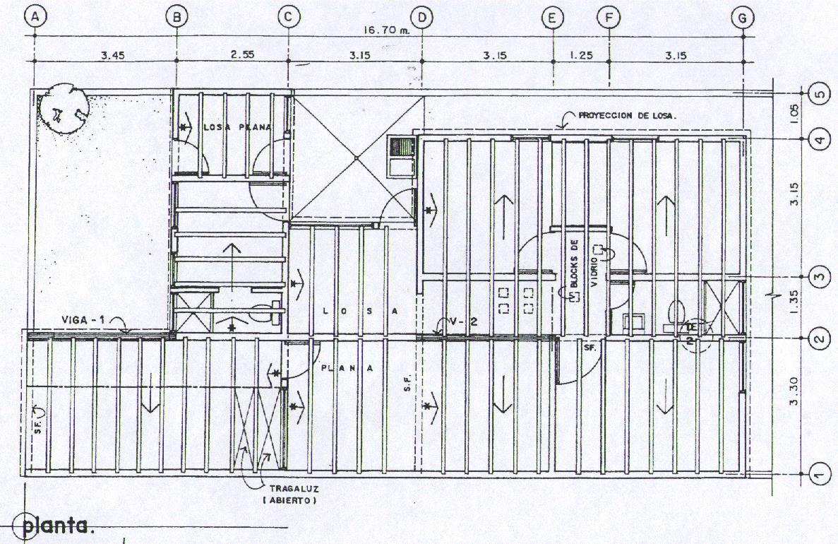
t=0.10 m



t=0.15 m

t=0.20 m









* Apoyo en sentido corto
Viguetas Prefabricadas (montadas 4 cms)
Vigas
Bastones (@ vigueta y L/4)
















Fundición de concreto de 0.05 de espesor:
Vigueta de 0.10 hasta 5.00 m. de luz
espesor t= 0.15
Vigueta de 0.15 de 5.00 m. – 7.50 m. de luz
espesor t= 0.20
Vigueta de 0.20 de 7.50 m. – 10.00 m. de luz
espesor t= 0.25

> A partir de los 4.00 m. se debe de colocar viga rigidizante a L/2
> Opciones de armado: - Sección 0.10 x 0.15 >> 2 no. 3 + esl. no. 2 @ 0.20 - Sección 0.15 x 0.15 >> 4 no. 3 + est. no. 2 @ 0.20
RIGIDIZANTE
(perpendicular a viguetas)











La
1. Peso de la bovedilla

2. Peso de la capa de compresión






























Casas: > 10/10 y 9/9
Edificios: > 7/7 y 6/6
Electromalla:
> 6.00 m de largo x 2.35 m de ancho
> 14.10 m² de área bruta
> Traslape por temperatura 0.15 m
Electromalla:
> 11.68 ≈ 12 m² de área útil
> Cuadros de 15 x 15 cm. (6” x 6”)
> Fabricada con varilla de acero Grado 70
Aplicaciones Sugeridas
• 10/10 Banquetas delgadas, cenefas, planchas prefabricadas.
• 9/9 Refuerzo para losas prefabricadas 5-6 cms. Prefabricados en general. Pisos: tráfico liviano hasta 5cms.
• 8/8 Refuerzo para losas prefabricadas 5-6 cms. Tabiques de concreto. Pisos: 7-8 cms.
• 7/7 Refuerzo para losas prefabricadas 7-8 cms. Paredes de tabique y carga. Pisos: tráfico liviano 8-9 cms.
• 6/6 Refuerzo para fundiciones de 9 . Paredes de Carga. Losas de techo (chequear diseño). Pisos tráfico medio 10 cms. Paredes de piscinas y cisternas. Seguridad techos de bodegas, balcones y rejas.
• 4.5/4.5 Refuerzo estructural para fundiciones de 10 a 12 . Losas de techo (chequear diseño). Pisos tráfico semipesado 12-15 cms
• NOTA: Para espesores mayores a 12 electromalla: Espesores: 15 cms. = 2 mallas 7/7 >> . = 2 mallas 4.5/4.5
• Traslapes: Se traslapa según se indica en las figuras siguientes: (ACI 318 11, Sección 12.7)






> Electromalla 6”x6” 9/9 > Bastones Ø 1/2“ x L/4 @ vigueta











Permite adherencia entre ensabietado y losa prefabricada, evitando grietas


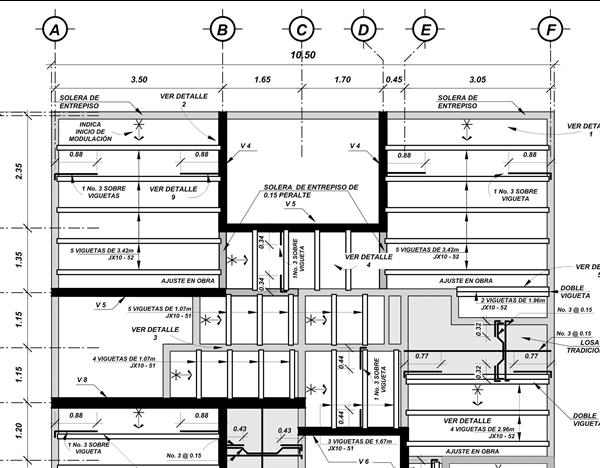
4.75 m x 7.50 m (ejes)

Separación entre viguetas:
@ 0.65 según detalle (a ejes)


Longitud = 7.75 m - 0.15 m (muros) = 7.60 m
7.60 m / 0.65 m (separación entre viguetas) = 11.69 ≈ 11 viguetas
Largo vigueta:
4.75 m + 0.08 m (0.04 m c/lado apoyo vigueta en extremos en solera) - 0.15 m (muros) = 4.68 m
11 viguetas de 4.68 m


0.24 X 0.55 X 0.10 m
En el sentido de los 4.75 m:
4.75 m - 0.15 m (muros) / 0.24 (ancho bovedilla ) = 19.17 ≈ 20 bovedillas por c/espacio.
20 bovedillas por c/espacio x 12 espacios = 240 bovedillas
* Del total se deberán ajustar (cortar) 31 bovedillas


Longitud bastón:
4.75 m / 4 = 1.19 m
1.19 m + 0.075 m (mitad muro) + 0.138 (doblez) = 1.40 ml longitud total
11 viguetas x 2 lados x 1.40 m = 30.81 ml
30.81 m / 5.60 m (traslape) = 5.50 ≈ 6 varillas

1/2“

* Cuantificación hierro y concreto por método conocido


6.
6 m x 2.35 m > 6” x 6” > 9/9
Área útil: 6 m x 2.35 m - 0.15 m (traslape por temperatura en todos los sentidos) =
5.70 m x 2.05 m = 11.685 m2
Área interior del ambiente: 7.35 m x 4.60 m = 33.81 m2
33.81 m2 / 11.685 m2 = 2.89 ≈ 3 electromallas
Silletas: 33.81 m2 x 3u / m2 = 102 u


Rendimiento = 0.070 m3/m2

Área = 4.60 m x 7.35 m = 33.81 m2
33.81 m2 x 0.070 m3/m2 = 2.37 m3
* Cuantificación materiales concreto por método conocido

* Cuantificación materiales: formaleta, hierro, alambre y concreto por método conocido
* Cuantificación materiales: formaleta, hierro, alambre y concreto por método conocido




