CLASE 14 > ISÓPTICA & ACÚSTICA > DISEÑO DE INSTALACIONES ESPECIALES 2025

Page 1


P R O Y E C T O S

D I S E Ñ O D E

I N S T A L A C I O N E S

E S P E C I A L E S

I S Ó P T I C A & A C Ú S T I C A

Mgtr.Arq. Luis Fernando Ruano Paz 2 0 2 5

23 abril agenda

• Impresiones visita MODO

• Tema 7: Cálculo y diseño isóptica y acústica

• Asignación Entrega No. 6

• Asesoría A/C unidad central

ISÓPTICA & ACÚSTICA

Mgtr. Arq. Luis Fernando Ruano Paz

ISÓPTICA

“ IGUAL VISTA “

ISÓPTICA VERTICAL ISÓPTICA HORIZONTAL

https://pdf.archiexpo.es/pdf-en/fercoseating-systems-m-sdn-bhd/ferco-seatingcinema-brochure/157673-354351.html#open

BUTACAS

BUTACAS

BUTACAS

BUTACAS

BUTACAS

Escenario CÁLCULO

Escenario CÁLCULO

Escenario CÁLCULO

Escenario

CÁLCULO

Área para butacas

Escenario

CURVA IS ÓPTICA

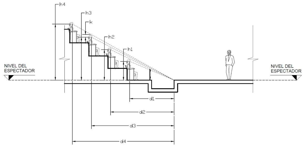
El cálculo de la isóptica define la curva ascendente que da origen al escalonamiento del piso entre las filas de espectadores para permitir condiciones aceptables de visibilidad.

Dicha curva es el resultado de la unión de los puntos de ubicación de los ojos de los espectadores de las diferentes filas con el punto observado a partir de una constante k, que es la medida promedio que hay entre el nivel de los ojos y el de la parte superior de la cabeza del espectador. Esta constante tendrá una dimensión mínima de 0.12 m. Para calcular el nivel de piso en cada fila de espectadores, se considerará que la distancia entre los ojos y el piso es de 1.10 m tratándose de espectadores sentados y de 1.55 m si se trata de espectadores de pie.

Se trazan las visuales tangentes a las cabezas, determinadas por un circulo de 12 cm de radio cuyo centro esta a una altura de 1.10 m sobre el nivel de piso

Se trazan las visuales determinadas por un círculo de 24 o 30 cm de radio cuyo centro se mantiene a la altura de 1.10 m sobre el nivel de piso

FÓRMULA:

ISÓPTICA VERTICAL

h2= [d2 (h1 + k)] d1

h2= Altura del 2do. espectador a calcular

d2= Distancia horizontal de orilla de escenario (foco) a 2do. espectador (sale de cálculo de isóptica horizontal (d1) + manual de butacas (1m. en este ejemplo))

h1= Altura de visión del primer espectador sentado =1.10 m.

d1= Distancia horizontal de orilla de escenario (foco) a 1er. espectador (sale de cálculo de isóptica horizontal)

k = Constante = 0.12 m (medida entre el nivel de los ojos y la parte superior de la cabeza)

CÁLCULO

ISÓPTICA VERTICAL

CÁLCULO Escenario sin tarima

ISÓPTICA VERTICAL

1 . 0 5 h'

3.8 d'

2.1 Escenario

2.6 d

0 . 6 h

CÁLCULO

ISÓPTICA VERTICAL

Ejemplo

CÁLCULO ISÓPTICA VERTICAL

Ejemplo

CÁLCULO ISÓPTICA VERTICAL

Ejemplo

CÁLCULO ISÓPTICA VERTICAL

Ejemplo

CÁLCULO ISÓPTICA VERTICAL

Ejemplo

CÁLCULO ISÓPTICA VERTICAL

Ejemplo

Porqué es IMPORTANTE la ISÓPTICA ??

ACÚSTICA

Características sonoras de un local, relativas a la emisión, transmisión, recepción, control y audición de los

sonidos.

TRANSMISIÓN Y RECEPCIÓN

https://www.youtube.com/watch?v=gfwpMw-pPhs

MATERIALES ACÚSTICOS

Poliuretano

Geotextil ▪ Lanas de roca o fibra de vidrio ▪ Planchas asfálticas

MATERIALES ACÚSTICOS

AISLAMIENTO Y ABSORCIÓN

MATERIALES ACÚSTICOS

¿AISLAMIENTO O ABSORCIÓN?

MATERIALES ACÚSTICOS

MATERIALES ACÚSTICOS

MATERIALES ACÚSTICOS

MATERIALES ACÚSTICOS

https://grupoumwelt.com/

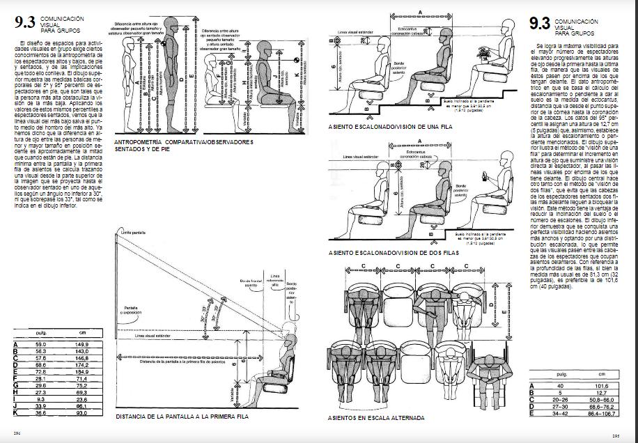
https://www.espaciosescenicos.org/es/proyecto-deinvestigacion/esquema-funcional/limites-visuales-y-auditivos/74

https://issuu.com/biancabelu/docs/_______julius_panero__las_dimensio_87ea5b697f98eb

EJEMPLO paneles acústicos

EJEMPLO paneles acústicos

C L A S E

Turn static files into dynamic content formats.

Create a flipbook
Issuu converts static files into: digital portfolios, online yearbooks, online catalogs, digital photo albums and more. Sign up and create your flipbook.