CLASE 12 > AIRE ACONDICIONADO - UNIDAD CENTRAL > DISEÑO DE INSTALACIONES ESPECIALES 2025

Page 1


L A S E

2 0 2 5

P R O Y E C T O S

D I S E Ñ O D E

I N S T A L A C I O N E S

E S P E C I A L E S

A I R E A C O N D I C I O N A D O

UNIDAD CENTRAL

Mgtr. Arq. Luis Fernando Ruano Paz

2 abril

• Tema 5: Climatización interior > Aire Acondicionado.

Parte 2: Unidad Central

• Asesoría A/C mini y multisplits

Cálculo de Unidad Central

Para este cálculo si es necesario tomar en cuenta no solo el área del ambiente a climatizar, sino también todos los factores que influyen en una buena climatización. Estos factores son:

 La cantidad de personas que ocupan de forma rutinaria el ambiente. Cada persona genera cerca de 600 BTU’s / h. adicionales.

 La cantidad de metros cuadrados de ventanas expuestas al sol. Cada 1.40 m² de ventana generan 1,000 BTU’s / h. adicionales.

 Determinar la cantidad de watts que generan los equipos eléctricos (computadoras, lámparas, copiadoras, impresoras, etc.). Cada 1,000 watts generan cerca de 3,414 BTU’s / h. adicionales.

Cálculo de Unidad Central

 Si existiera una cocina o cocineta hay que agregar el área nuevamente, es decir, es adicional al cálculo de área inicial. A cada 10 m² de cocina se deberá agregar 4,000 BTU’s / h al cálculo original de m².

 De acuerdo a la posición del ambiente, se debe determinar si está expuesto o no al sol. Si lo está, deberá sumarse un 10% al resultado de la suma de los renglones anteriores.

Tablas para cálculo de Unidad Central

1. ÁREA DEL AMBIENTE:

Medir ancho y largo del ambiente a enfriar y determinar el área en M2.

2. EXPOSICIÓN DEL AMBIENTE:

Determinar si las paredes exteriores con o sin aberturas, están expuestas al oeste o al sur, y el área de las paredes multiplicar por el valor indicado (este y norte quedan igual).

3. VENTANAS

EXPUESTAS AL SOL:

Multiplicar ancho por altura de cada ventana, y determinar el área en M2. Si no existen ventanas, seguir al próximo paso.

Tablas para cálculo de Unidad Central

4. SI EL AMBIENTE ES UNA COCINA O COCINETA:

Agregar los BTU¨s de acuerdo al área de la cocina.

5. PERSONAS:

Número de personas que ocupan el ambiente de forma rutinaria.

6. EQUIPO ELECTRÓNICO:

Determinar la cantidad de vatios generados por los equipos electrónicos (lámparas, PC´s, fotocopiadoras, impresoras, etc.). Si no existe equipo electrónico, seguir al próximo paso.

Tablas para cálculo de Unidad Central

7. BTU/h REQUERIDOS POR AMBIENTE:

Obtenida la cantidad total de BTU's /h, dividir entre 12,000 para obtener la cantidad de toneladas de refrigeración (TR).

R E S U M E N

AMBIENTE:

DESCRIPCIÓN

1. ÁREA DEL AMBIENTE

2. EXPOSICIÓN PAREDES EXTERIORES

OESTE Y SUR DEL AMBIENTE X 1.1

3. VENTANAS EXPUESTAS AL SOL

4. COCINA O COCINETA

5. PERSONAS

6. EQUIPO ELECTRÓNICO

TOTAL BTU/h REQUERIDOS TONELADAS DE REFRIGERACIÓN

ÁREA (M2) PERSONAS (U) VATIOS

BTU/h

Con el dato anterior, se consulta en un catálogo como el siguiente y se escoge el equipo a utilizar:

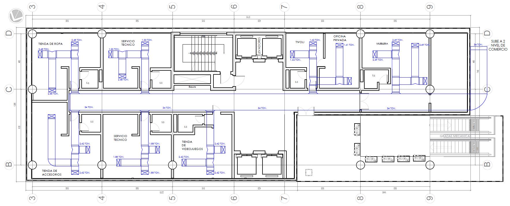
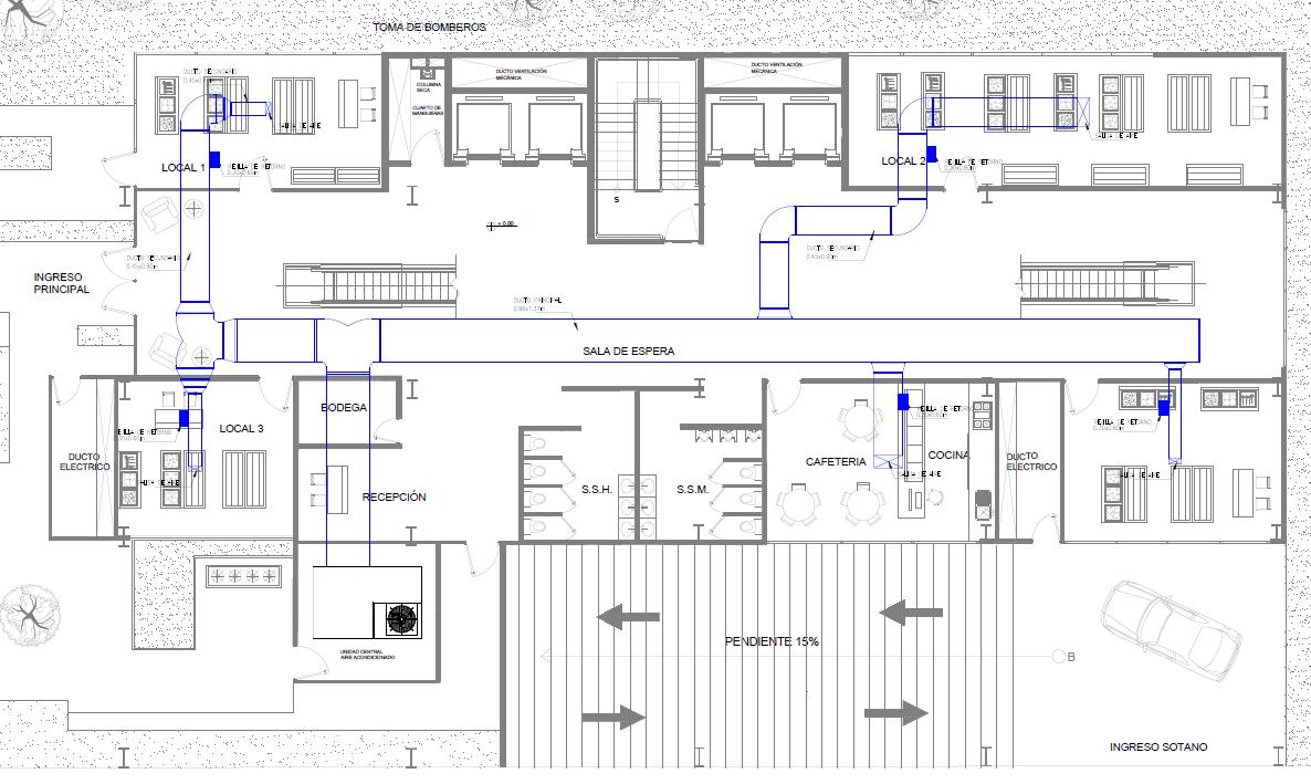
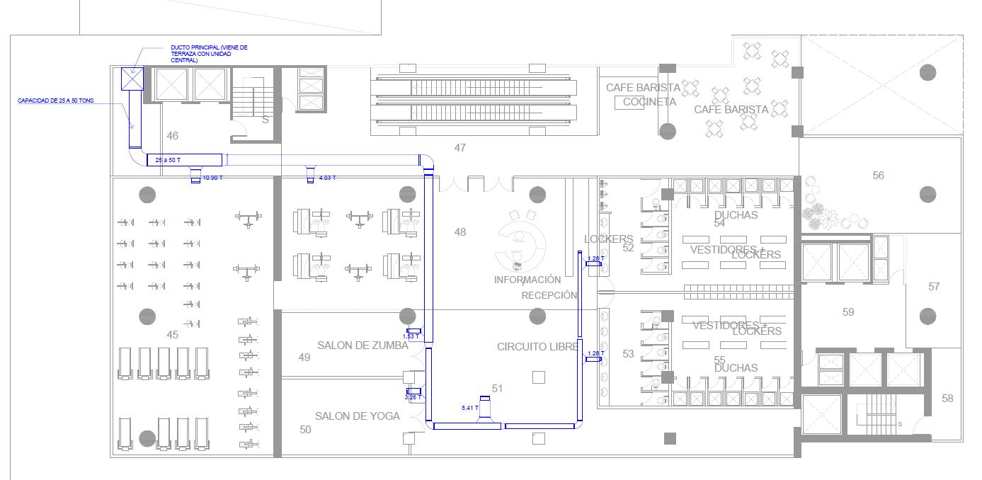
DUCTOS PARAAIRE ACONDICIONADO CENTRAL

El sistema de Unidad Central de aire Acondicionado requiere de una red de ductos para que el aire llegue a los distintos ambientes. Estos ductos pueden ser metálicos (debidamente aislados), de fibra mineral o fibra sintética.

DUCTOS PARAAIRE ACONDICIONADO CENTRAL

Del equipo central sale el conducto principal de inyección de A/C, del que según diseño, van derivando ramales con la correspondiente reducción de sección hasta llegar a los ambientes más alejados con la mínima sección.

Sistema de redes de inyecciónA/ C

DUCTOS PARAAIRE ACONDICIONADO CENTRAL

La red de ductos de retorno acompaña a la de inyección, pero no es tan extensa (en realidad es menos ramificada), ya que hay ambientes donde no recibe directamente el aire a recuperar (por ejemplo baños, cocinas, etc.) para no incorporar al reciclado olores inc

El aire de retorno (caliente) es empujado a salir por el mismo aire inyectado (frío). El aire caliente ocupará el área de arriba dejando espacio para el aire frío.

DUCTOS PARAAIRE ACONDICIONADO CENTRAL

Todos los ductos se sujetan a losas, mampostería, estructuras de cubiertas de madera o acero, etc., por soportes tipo correas (planchuelas de acero o varillas fijadas a la construcción) o ménsulas.

Son en general de sección rectangular tratando de no superar la relación de 1 a 2, ya que el aire que 'circula' deja los ángulos interiores sin trabajar y, al ser muy rectos, queda un área de la sección inutilizada.

Soportes

Área inutilizada

DUCTOS PARAAIRE ACONDICIONADO CENTRAL

Si se trata de ubicar un ramal sobre un pasillo con una necesidad de por ejemplo 0.20 m2 requiere un ducto de 50 cm. de diámetro o uno de 45 x 45 cm., que pierde igual los ángulos o en su defecto, un rectangular de 34 x 60 cm. lo que ahorra 16 cm. en la altura del cielo falso con respecto a lo requerido por el circular.

Eficiencia de la sección

DUCTOS PARAAIRE ACONDICIONADO CENTRAL

Los ambientes utilizados a diario, trabajan con el termostato automático, que se corta al lograr la temperatura elegida y hace arrancar el equipo cuando ésta asciende a la seleccionada para ello.

Termostato o controlador de temperatura

Sistema automático de “dámperes

DUCTOS PARAAIRE ACONDICIONADO CENTRAL

Detalles de ductos y uniones

Detalle de la Manejadora (Unidad Central) DUCTOS

PARAAIRE ACONDICIONADO CENTRAL

DUCTOS PARAAIRE ACONDICIONADO CENTRAL

Diseño aproximado de ductos

Actores

 El caudal promedio por norma de la unidad podría andar alrededor de los 400 p3/ton x min. (6 ton = 2,400 p3/min. ó 1 ton = 400 p3/min.)

 La velocidad promedio del aire para no molestar (ruido): de 800 a 1,100 p/min.

 El área promedio del ducto será de: A = Q / V

Desarrollo de la ecuación

• A = 2,400 p3/min / 1,000 p/min (promedio)

• A = 2.4 p2

* VOLUMEN TOTAL REQUERIDO DE REFRIGERACIÓN.

DUCTOS PARAAIRE ACONDICIONADO CENTRAL

Diseño aproximado de ductos

 Si se asume un ducto de 1.5 pies de alto (18plg.) el ancho del ducto será de: 2.4 p2 / 1.5 p = 1.5 pies

 El ducto principal será de 18 plg. x 18 plg.

 Se dividirá en los ramales que sean necesarios de acuerdo al tonelaje de los ambientes.

DUCTOS PARAAIRE ACONDICIONADO CENTRAL

Diseño aproximado de ductos

Ramales Secundarios

 Para estos ramales se considera aproximadamente 400 p3/ton x min. de caudal secundario de aire, (1 ton = 400 p3/min.).

 Esto conduce a aproximadamente 850 p/min. de velocidad de confort (sin ruido).

• A = Q / V = 400 p3/min / 850 p/min = 0.47 ~ 0.5 p2

* VOLUMEN REQUERIDO DE REFRIGERACIÓN,

EN EL AMBIENTE SECUNDARIO.

Diseño aproximado de ductos

Ramales Secundarios

Resolviendo la ecuación:

• Área = base x altura >> Altura = área / base

 Asumimos una base = 0.5 p (6 plg.)

 La altura sería = 0.5 p2 / 0.5 p = 1 p (12 plg.)

 El ducto secundario puede mantener una sección de: 6 plg. x 12 plg. y puede ir colocado en el sentido horizontal para evitar altura.

DUCTOS

DUCTOS PARAAIRE ACONDICIONADO CENTRAL

Equipo de 6 toneladas para 72,000 BTU

6” x 12”

Tipo de ambiente: of, call center, etc.

Ramales secundarios en 400 p3/min., 1 tonelada por ambiente, 850 p/min. velocidad media. (6”x12”)

18” x 18”

DUCTOS PARAAIRE ACONDICIONADO CENTRAL

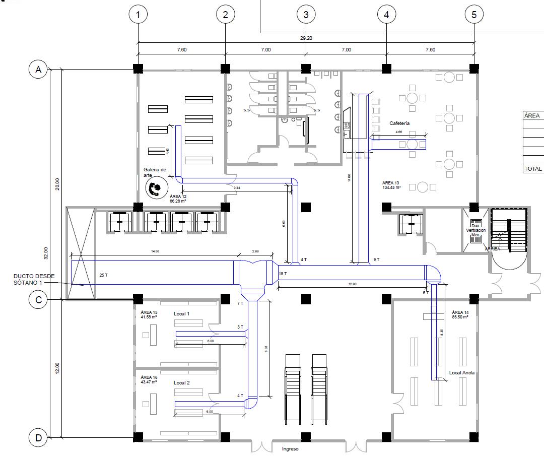
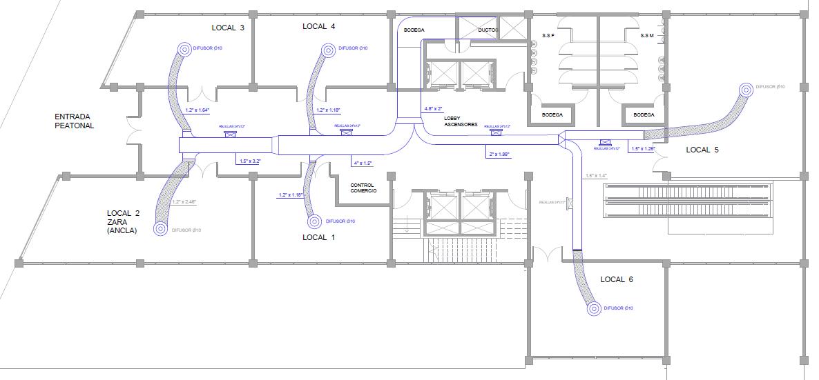
Representación gráfica

DUCTOS PARAAIRE

ACONDICIONADO CENTRAL

Representación gráfica

10 – 15 m2 por rejilla

1. 86.70 m2 / 12.50 m2 por rejilla = 7u

2. 25.74 m2 / 12.50 m2 por rejilla = 2u

3. 14.79 m2 / 12.50 m2 por rejilla = 1u

4. 14.64 m2 / 12.50 m2 por rejilla = 1u

Reducción

ductos

Ductos flexibles

Ductos flexibles

I R E A CO

CONCLUSIONES

Sobre el equipo

• Es más fácil partir en unidades más pequeñas por el consumo de energía.

• De caudal de aire frío es razonable tener por norma

ASHRAE (American Society of Heating, Refrigerating and Air Conditioning Engineers) 400 p3/Ton.

• Y unas velocidades medias que oscilen entre 800 y 1,100 p/min.

Sobre los ductos

• Siguen la ecuación normal de fluidos:

Q = A x V

• Los ductos secundario son más pequeños que los principales y los rige la misma fórmula.

• Se pueden utilizar compuertas regulables de velocidad.

• El ducto de retorno es del mismo tamaño y se colocará cerca del equipo.

https://www.lennox.com/ https://www.bigassfans.com/es/ https://www.greenheck.com/

Mitsubishi

Lennox

Carrier

I R E A CO

C L A S E 12

Turn static files into dynamic content formats.

Create a flipbook
Issuu converts static files into: digital portfolios, online yearbooks, online catalogs, digital photo albums and more. Sign up and create your flipbook.