CLASE 10 > ARQUITECTURA DE REACCIÓN > CONSTRUCCIÓN EN ACERO 2025

Page 1


P R O Y E C T O S

C O N S T R U C C Ó N E N A C E R O

E N V O L V E N T E

Mgtr.Arq. Luis Fernando Ruano Paz 2 0 2 5

A R Q U I T E C T U R A D E R E A C C Ó N

Edificio Corporativo de Oficinas del Centro Tecnológico de Hispasat / Herreros Arquitectos

http://img4.adsttc.com/media/images/512a/c9e4/b3fc/4b11/a700/a1ba/ large_jpg/1307520581-test-hispasat-a-47.jpg?1361758693

A C C I

SOCIAL

CULTURAL

NATURAL

POLÌTICO

ECONÒMICO

CLIMA

NATURAL MATERIALIDAD

LATITUD
LONGITUD
ALTITUD
LUGAR

ANÀLISIS GRÀFICO SOLAR

ESQUEMA ESPACIO INTEIOR

ESQUEMA CAPA EXTERIOR

EQUINOCCIO DE PRIMAVERA

SOLSTICIO DE INVIERNO

SOLSTICIO DE VERANO

C A S A C H I L P A Y T L

CARLOS GALVEZ /RICARDO GARCIA

F A C H A D A S

ENVOLVENTE

SISTEMAS ACTIVOS

SISTEMAS PASIVOS

L a envolvente arquitectónica puede considerarse como elemento vital de una obra por su relevancia estética y técnica dentro del diseño, siendo contenedor espacial y habitable. Dicho elemento establece el limite exterior/interior siendo el encargado de integrar y comunicar los espacios habitables con el entorno que los rodean. En aspectos de espacio, forma y confort térmico la envolvente ha evolucionado ,a través del tiempo y movimientos arquitectónicos , redefiniéndose para responder eficientemente a las necesidades implícitas a dicho componente afectado por el tiempo y orientación cardinal . Siendo un elemento tan complejo e importante, la envolvente no solo debe cumplir “hacia adentro” sino también “ hacia fuera” donde el edificio comunica y transmite a través de la plasticidad y acabados.

O R I G E N E S

http://img4.adsttc.com/media/images/512a/c9e4/b3fc/4b11/a700/a1ba/large_jpg/1307520581-test-hispasat-a-47.jpg?1361758693

/

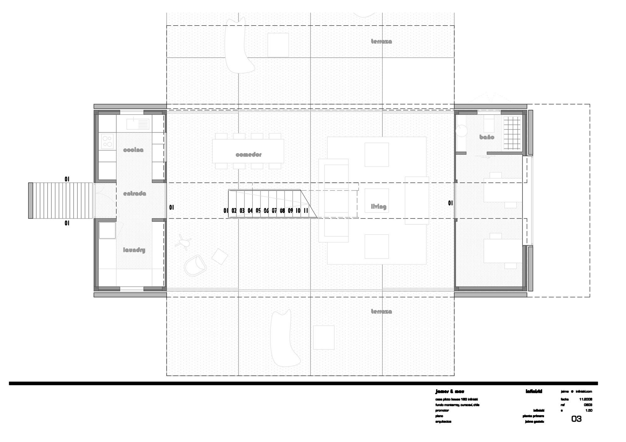
http://www.plataformaarquitectura.cl/cl/02-31691/casa-manifesto-estudio-de-arquitectura-james-and-mau-para-infiniski

Casa Manifesto
Estudio de arquitectura James and Mau, para Infiniski

http://www.plataformaarquitectura.cl/cl/02-75791/cubo-naranjo-jakob-macfarlane-architects

Cubo naranjo / Jakob + Macfarlane Architects

http://www.plataformaarquitectura.cl/cl/02-71008/fachadas-homeostaticas-para-edificios-verdes

http://dpasse.blogspot.com/2012/07/high-tech-audi.html

Al Bahar Towers Responsive Facade / Aedas

Adaptative Fa[CA]de : Fachadas Inteligentes

http://www.plataformaarquitectura.cl/cl/02-39427/adaptative-facade-fachadas-inteligentes

Turn static files into dynamic content formats.

Create a flipbook
Issuu converts static files into: digital portfolios, online yearbooks, online catalogs, digital photo albums and more. Sign up and create your flipbook.
CLASE 10 > ARQUITECTURA DE REACCIÓN > CONSTRUCCIÓN EN ACERO 2025 by Arq. Luis Fernando Ruano Paz - Issuu