007 TERRAZA ESPAÑOLA + PÉRGOLAS - SISTEMAS CONSTRUCTIVOS 4 2C2022

Page 1

P R O Y E C T O SS I S T E M A S C O N S T R U C T I V O S 4 T E R R A Z A E S PA Ñ O LA Y P É R G O LA S Mgtr.Arq. Luis Fernando Ruano Paz C L A S E 7

PÉRGOLAS

TERRAZA ESPAÑOLA Y
TERRAZA ESPAÑOLA
TERRAZA ESPAÑOLA

de techos

Planta
TERRAZA ESPAÑOLA
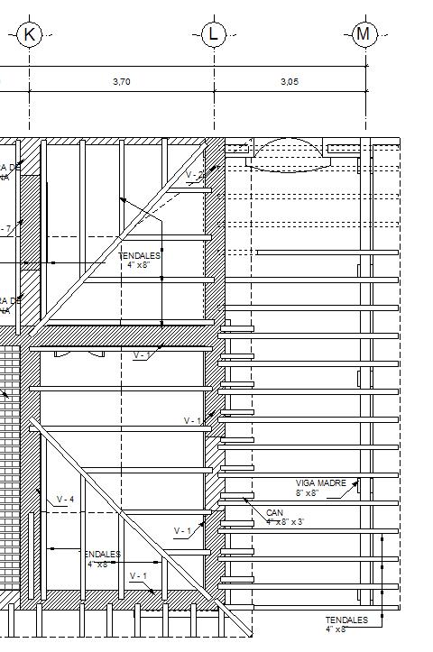
Estructura de pilares, viga madre y tendales TERRAZA ESPAÑOLA
1. Basas >> 0.30x0.30x0.60m 2. Pilares >> Ø 9” 3. Capiteles >> 16”x16”x2” 4. Zapatas >> 8”x8”x3’ 5. Viga madre >> 8”x8”x L 6. Tendales >> 4”x8”x L @ 0.56m 7. Listones >> 2”x1”x L @ 0.28m 8. Baldosa de barro >> 0.28x0.28x0.02m 9. Refuerzo por temperatura >> electromalla 6”x6” 9/9 10. Losa de concreto >> t=0.07 11. Mezclón + alisado >> t=0.05 Partes de la terraza española TERRAZA ESPAÑOLA
TERRAZA ESPAÑOLA 1. Basas >> 0.30x0.30x0.60m 2. Pilares >> Ø 9” 3. Capiteles >> 16”x16”x2” 4. Zapatas >> 8”x8”x3’ 5. Viga madre >> 8”x8”x L 6. Tendales >> 4”x8”x L @ 0.56m 7. Listones >> 2”x1”x L @ 0.28m 8. Baldosa de barro >> 0.28x0.28x0.02m 9. Refuerzo por temperatura >> electromalla 6”x6” 9/9 10. Losa de concreto >> t=0.07 11. Mezclón + alisado >> t=0.05 Partes de la terraza española Altavista, San José Pinula

Elevación

Altavista, San José Pinula
TERRAZA ESPAÑOLA
Sección TERRAZA ESPAÑOLA
Tallado TERRAZA ESPAÑOLA

Moldura en pilares

TERRAZA ESPAÑOLA

Moldura en pilares

TERRAZA ESPAÑOLA

Moldura en zapatas y tendales

TERRAZA ESPAÑOLA

ESPAÑOLA

Curado (pentaclorofenol por inmersión)

Antañonas, Antigua Guatemala

TERRAZA
Las

Agujeros en muro para empotramiento de tendales

TERRAZA ESPAÑOLA Foresta Cayalá

TERRAZA

Altavista, San José Pinula
Cimentación
ESPAÑOLA
Cimentación Basas de piedra 0.30x0.30x0.60 y 1.00 m TERRAZA ESPAÑOLA Altavista, San José Pinula
Anclaje a entrepiso TERRAZA ESPAÑOLA Fundición de concreto y acabado martelinado Foresta Cayalá
Colocación de pilares & capiteles TERRAZA ESPAÑOLA Las Antañonas, Antigua Guatemala
Altavista, San José Pinula
Colocación de zapatas, viga madre & tendales TERRAZA ESPAÑOLA
Altavista, San José Pinula
Colocación de zapatas, viga madre & tendales TERRAZA ESPAÑOLA
Colocación de zapatas, viga madre & tendales TERRAZA ESPAÑOLA Foresta Cayalá

Colocación de zapatas, viga madre & tendales

Foresta Cayalá
TERRAZA ESPAÑOLA

Colocación de listones

Antañonas, Antigua Guatemala

TERRAZA ESPAÑOLA Las
Colocación de baldosa, ensabietado, electromalla & fundición de concreto TERRAZA ESPAÑOLA Altavista, San José Pinula

Moldura de

TERRAZA ESPAÑOLA Colocación de baldosa, ensabietado, electromalla & fundición de concreto
poliestireno tipo pecho de paloma Altavista, San José Pinula
TERRAZA ESPAÑOLA Refuerzo de platina de acero corrida (escondida) > 1/4" x 7” Foresta Cayalá

TERRAZA

Altavista, San José Pinula
ESPAÑOLA

TERRAZA ESPAÑOLA

Altavista, San José Pinula Altavista, San José Pinula
Gárgola (cerámica vidriada) TERRAZA ESPAÑOLA
Altavista, San José Pinula
TERRAZA ESPAÑOLA
Altavista, San José Pinula
TERRAZA ESPAÑOLA

TERRAZA ESPAÑOLA

Altavista, San José Pinula Altavista, San José Pinula
TERRAZA ESPAÑOLA
TERRAZA ESPAÑOLA Las Antañonas, Antigua Guatemala
TERRAZA ESPAÑOLA Las Antañonas, Antigua Guatemala
TERRAZA ESPAÑOLA Las Antañonas, Antigua Guatemala
TERRAZA ESPAÑOLA Las Antañonas, Antigua Guatemala

TERRAZA

ESPAÑOLA San Juan del Obispo
TERRAZA ESPAÑOLA San Juan del Obispo
San Juan del Obispo
TERRAZA ESPAÑOLA
TERRAZA ESPAÑOLA San Juan del Obispo
San Juan Obispo
TERRAZA ESPAÑOLA
del
0 30 0 3 0 PLANTA BASE DE PIEDRA TERRAZA ESPAÑOLA ESC 1 5 Ø 0.27 AGUJERO 3" x 3" x 5" 0 0 2 5 0 0 1 5 0 1 0 0 0 2 5 0 0 5 0 0 2 5 0 0 1 5CAPITEL 8" x 2 " x 16" 8" x 8 " x 4" DETALLE CAPITEL TERRAZA ESPAÑOLA ESC 1: 5 0 1 0 0 1 0 0 0 5 DETALLE BASE COLUMNA DE PIEDRA TERRAZA ESPAÑOLA ESC 1 5 1 " 1 " 2 " 0.30m 0.23m 0 275m 0 30m 1 2 1 4 5 1 3 7 1 / 2 " 3" 9" 6 1/2" 1 2 1 4 1 3 5 4 5 5 4 33" " 8" 9" 6 1/2" 8" 9" 3" 9" 33" " ESPIGA 3" x 3" x5" 9" x 9" x4" Ø 8" Ø 6 1 2" Ø 9" FUSTE REDONDO ENSANCHADO 9" x 9" x7 1 2" ESPIGA 3" x 3" x5" 9" x 9" x4" Ø 8" Ø 6 1 2" Ø 9" ELEVACIÓN FUSTE 18 UND. TERRAZA ESPAÑOLA ESC 1 5 C C' TERRAZA ESPAÑOLA Detalles

SECCIÓN A A' FUSTE TERRAZA ESPAÑOLA

PLANTA ZAPATA TERRAZA ESPAÑOLA

ZAPATA

PLANTA CAPITEL TERRAZA ESPA

ELEVACIÓN ZAPATA 18 UND. TERRAZA ESPAÑOLA

ELEVACIÓN CAPITEL 18 UND. TERRAZA

26" 3" 3' 2 1 / 2 " 3 " 2 1 / 2 " 8 " PROYECCIÓN AGUJERO PARA ESPIGA 3" x 3" x 3"
8" x 8" x3
ESC 1: 5 26" ZAPATA 8" x 8" x 3 1 " 3 " 1 " 3 " 8 3" 3" 1" 7"
ESC 1: 5 33"1" " 7" 22" 3 9 1/2" 3" 9 1/2" 3 " PROYECCIÓN AGUJERO PARA ESPIGA 3" x 3" x 3" 1 / 2 1 1 / 2 2 " 1" 1/2" 1 1/2" 16" 11" /2" 1 1/2" 5" 3" 5" 13"
ESPAÑOLA ESC 1: 5 CAPITEL 8" x 2" x16" PROYECCIÓN AGUJERO PARA ESPIGA 3" x 3" 6 1/2" 3" 6 1/2" 16" 2 1 / 2 " 3 " 2 1 / 2 " 8 " AGUJERO PARA ESP GA 3" x 3" CAPITEL 8" x 2" x16"
ÑOLA ESC 1: 5 Ø 9" Ø 8" Ø 6 1/2" 3" 3" 3" 9" 3 " 3 " 3 " 9
ESC 1: 5 ESPIGA 3" x 3" x5" TERRAZA ESPAÑOLA Detalles
DETALLE DE CAN 2 1/2' - 152 UND. ESC. 1:10 23 1/2" 6" 2 1/2 8 CAN DE 4" x 8" x 2 11/2' 1 / 2 " 2 1 / 2 " 1 " 3 " 1" 2 1/2" 3" 17 1/2" MURO 6 1/2" DETALLE DE CAN 3 1/2' - 4 UND. ESC. 1:10 35 1/2" 6" 3 1/2 8 " CAN DE 4" x 8" x 3 1/2'1 1 / 2 " 2 1 / 2 " 1 " 3 " 1" 2 1/2" 3" 29 1/2" MURO 6 1/2" MURO TENDAL 4" x 8" x 8 11" 1 " 3 " 1 " 3 " 8 " 33"1" " 7" 7 8" 8' 11" DETALLE DE TENDAL 8 ' 11" 26 UND. TERRAZA ESPAÑOLA ESC. 1:10 8" 8' 4" MURO TENDAL 4" x 8" x 12' 3 33"1" " 7" 10 9" 12' DETALLE DE TENDAL 12' - 36 UND. TERRAZA ESPAÑOLA ESC. 1:10 8" 11 5" TERRAZA ESPAÑOLA Detalles
PÉRGOLAS
PÉRGOLAS
PÉRGOLAS
PÉRGOLAS
PÉRGOLAS
PÉRGOLAS
Antes y después PÉRGOLAS
Antes y después PÉRGOLAS
PÉRGOLAS
PÉRGOLAS

Madera tratada

Lignum (pino)

del sur

Marina
PÉRGOLAS

R A C I A

G
S

Turn static files into dynamic content formats.

Create a flipbook
Issuu converts static files into: digital portfolios, online yearbooks, online catalogs, digital photo albums and more. Sign up and create your flipbook.
007 TERRAZA ESPAÑOLA + PÉRGOLAS - SISTEMAS CONSTRUCTIVOS 4 2C2022 by Arq. Luis Fernando Ruano Paz - Issuu