

![]()


















SAN ANTONIO, TX
OVERLAND PARTNERS
2023 - UNDER CONSTRUCTION
33000 SQFT
The Trinity University Welcome Center will serve as a “front door” to the campus, complementing the modernist architecture of O’Neill Ford. The project includes two buildings —Welcome Center and Event Hall—linked by a new plaza.
A connection to the existing library creates a campus loop itinerary for visitors, students and staff.
CONTRIBUTION:
- Actively contributed to Concept Design with Principals.
- Coordinated with Structural, Landscape, Lighting, and Civil during SD, DD, and CD phases.
- Led interior material selection and custom millwork design.
- Assisted with internal team management and Construction Administration.
- Contributed to LEED accreditation, focusing on MR credits.






WELCOME CENTER

BREEZEWAY
BREEZEWAY



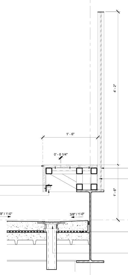
CENTER - WALL SECTION
1. Exterior natural Wood Panel, on furring channel, on metal framing.
2. Glazed aluminum curtain wall
3. Decorative concrete topping slab, on drainage mat, on vapor barrier, on pour-in-place concrete, on metal deck.
4. Epoxy painted Steel railing.
5. Aluminum composite panel, on high temp underlay, on 5/8” cover board, on tapered insulation, on metal framing fully in-filled with batt insulation.
6. Exterior natural wood panel, on furring channel, on fluid applied membrane air barrier on 5/8” gypsumsheating, on metal framing with cavity filled batt insulation R-30 min.







EVENING RENDER OUTSOURCED
CONSTRUCTION PROGRESS VARIOUS





PATTERN LAYOUT
CMU (FOR TESTING ATTACHMENT METHOD OF METAL LATH)
XPS INSULATION (FOR TESTING ATTACHMENT METHOD OF METAL LATH)
METAL LATH
MORTAR BED
LEVELING COAT, AS REQUIRED
TILE ON CURVE TO MATCH RADIUS OF ORIENTATION ROOM
MOCK UP DETAIL VARIOUS



CUSTOM TILE DESIGN
R 21'- 3 2/4"
SCHLUTER FINIC (ALSO ON SOFFIT HORIZONTAL CONDITION ABOVE


SAN ANTONIO, TX
OVERLAND PARTNERS
2018 - UNDER CONSTRUCTION
27075 SF
This project consists of a new Science and Technology Building for Alamo Colleges in San Antonio, Texas. The structure primarily utilizes Structural Insulated Panels (SIPs) and features two wings that integrate with the surrounding natural landscape.
CONTRIBUTION:
- Assisted with Construction Documentation in 2019.
- Main point of contact in Construction Administration in 2024-2025. Reviews submittals and responds to RFI’s.
- Architect’s representative in OAC’s and consultants coordination.
- Visits site and produces field reports.

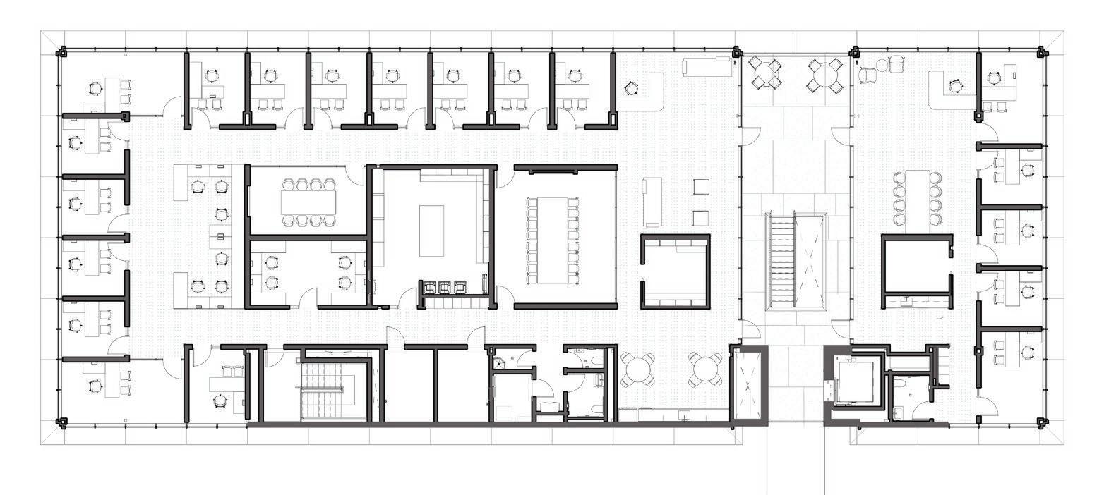
PROJECT SCOPE

SITE PLAN
FUTURE EXPANSION





01. COMPUTER CLASSROOM
02. GENERAL CLASSROOM
03. RESTROOMS
04. TUTORING COMPUTER LAB
05. STUDENT LOUNGE
06. OUTSIDE MAIN ENTRANCE/LOUNGE
07. OPEN OFFICE
08. DPS OFFICE

09. STAFF OFFICE
10. STAFF OFFICE
11. PRIVATE CONSULTATION
12. MDF
13. BREAK ROOM
14. LACTATION ROOM
15. ADA RESTROOM

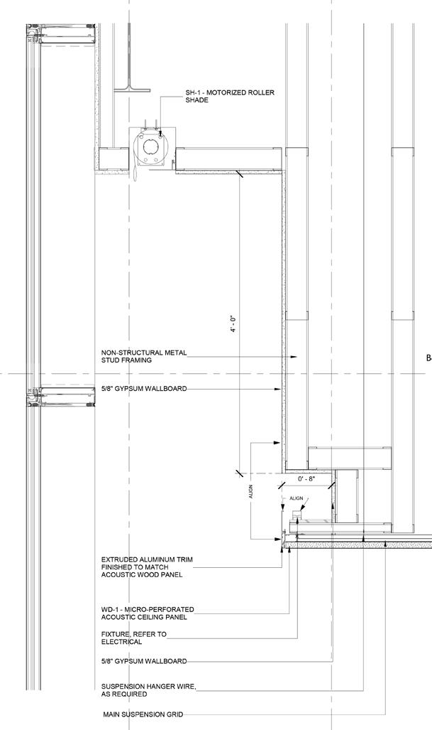
SECTION VARIOUS REFLECTED CEILING PLAN - LEVEL 1 VARIOUS

BREEZEWAY

CONSTRUCTION PROGRESS VARIOUS


TYP. EAVE DETAIL VARIOUS



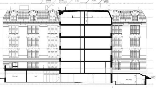
NATAL, BRAZIL
COMPETITION - FIRST PRIZE COLLABORATIVE PROJECT WITH INDEPENDENT BRAZILIAN ARCHITECTS
2024 - CURRENTLY FUNDRAISING.
The “Nós” Sports Center, located in Felipe Camarão, Natal/ RN, is a dynamic sports complex inspired by the ribbons from the “Auto do Boi de Reis,” symbolizing unity and cultural ties. The facility aims to strengthen local identity through its comprehensive sports amenities, including a multi-purpose court, recreational spaces, and administrative areas. The theme of “nós” (meaning “we” or “us”) embodies community connection, reflected in the organic flow of the design. With flexible architecture for future growth and sustainable solutions tailored to the local climate, the project preserves cultural heritage while fostering positive community transformation.
ROLE:
- Lead Designer. - Produced all renders.


01. ENTRANCE I
02. TECHNICAL AREA
03. LOCKER ROOM 1
04. LOCKER ROOM 2
05. STORAGE
06. MAIN COURT
07. ENTRANCE II
08. MULTIPUPORSE I
09. MULTIPUPORSE II
10. ADMIN 11. ADMIN 12. STORAGE
13. ADA RESTROOM 14. BREAK ROOM

AREA : 1.259,13m²
1.574,23m²

RuaMiraMangue


ROOFING
1. Corrugated metal roof 460 mm x 210 mm, Fixed on L Metal Profile, with 8 mm Galvanized Sealed Steel Screws.
2. L Metal Profile
3. Support for L Metal Profile
4. Metal Beam and Pillar
1. Corrugated metal roof 460 mm x 210 mm, Fixed on L Metal Profile, with 8 mm Galvanized sealed Steel Screws
2. L Metal Profile
3. Support for L Metal Profile
4. Metal Beam and Pillar

COLUMN CONNECTION
1. Steel Column on Metal Plate
2. Support Base, Reinforced Concrete.
3. Sealed concrete floor finish - 2 cm
4. Mortar Layer - 1 cm
6. Reinforced Concrete Slab - 20 cm
7. Vapor retarder
8. Sand Layer - 5 cm
9. Gravel Layer - 20 cm
DETAILS
DEVELOPED BY THE TEAM
DRAWN BY ALINE SATTLER
TYP. WALL
1. Concrete Block 29 x 14 x 19 cm
2. Brasilit Maxiplac Tile 460 mm x 210 mm, Fixed on Wooden Purlins with a minimum Section of 5 cm x 5 cm using 8 mm Galvanized Steel Screws and Elastic Sealing
3. Reinforced Concrete Base









LIJIANG, CHINA
OVERLAND PARTNERS
2019 - SCHEMATIC DESIGN
Stone Island is a key element of a larger development in Lijiang, China, designed to harness the region’s natural resources to stimulate local energy and attract tourism. The island features a central plaza that seamlessly blends diverse hospitality experiences, including Heritage, Conservatory, and Water hotels. This dynamic plaza also hosts a range of food and beverage offerings, retail spaces, and leisure facilities.
CONTRIBUTION:
- Actively participated in the conceptual design of the Water Hotel segment.
- Created detailed 3D models for the buildings and facades.
- Coordinated and finalized renderings.
- Conducted extensive research on global hotel experiences and developed a comprehensive taxonomy of room units.

HOTEL EXPERIENCES

绿苑石林酒店 THE CONSERVATORY HOTEL
历史酒店 HERITAGE HOTEL 水主题酒店 WATER HOTEL
港湾 HARBOR A A A B B B

北岛 NORTH ISLAND

水院 WATER GARDEN
南岛 SOUTH ISLAND

市场 MARKET

WINTER SOLSTICE
DEC. 21ST, 9 AM

CHINESE NEW YEAR FEB. 5TH, 9 AM

SUN IN COURTYARDS
SUMMER SOLSTICE
JUNE 21ST, 9 AM

SUN SHADING
WELLNESS
F&B
CULTURAL LOBBY
CIRCULATION CORE
HOTEL RETAIL


SITE SECTION VARIOUS








FALL 2021/COLUMBIA GSAPP
SOUTH BRONX, NY
CORE 3
INSTRUCTOR: GALIA SOLOMONOFF/ PARTNERSHIP WITH: MICHAEL LAU
Ongoing gentrification in the South Bronx has led to diminished local pride. This housing proposal aims to help reversing this by creating a hub that fosters a democratic economy and strengthens local identity.
The design was conceived from the ground up. The ground floor is destined for community resources and local commerces that are linked to anchor institutions in the Bronx. The shophouse typology allows the owners of small businesses to live in the complex. Finally, The massing creates density in mound-shaped volumes, allowing less shadow projection area onto the facade, and maximizing the number of units with access to sunlight and ventilation.

PERSPECTIVE













THE GROUND AND TOPOGRAPHY



PLAN - RESIDENTIAL TYP. FLOOR






The units range from a studio to three bedrooms. Where the volume is linear, they follow typical designed layouts. In the ‘mounds’, the units become customized, changing per floor. Where there is a switch on corridor paths, the adjacent rooms become community rooms, such as art rooms, computer, and laundry rooms.










SPRING 2023/COLUMBIA GSAPP
NEW YORK, NY
ADV VI/ INSTRUCTOR: KARLA ROTHSTEIN IN PARTNERSHIP WITH: AMITI SINGH
This project seeks to transform Hart Island, a mass burial site in the Bronx, into a sanctuary for remembrance and healing. The site, vulnerable to sea-level rise, will reimagine burial practices both ecologically and spiritually. Drawing on ancient burial mound techniques, we will elevate the mass burials while extending the island’s resilience against the water. The mounds will shift over time, responding to grief, loss, and the cycles of life and death. Ultimately, the project aims to redefine Hart Island as a public sanctuary.




CYCLES OF RECONCILIATION, ABOVE AND UNDER LUCAS PEREIRA, AMITI SINGH
Grief and decomposition create a cyclical process of life and death, akin to the Ouroboros, an ancient symbol of time’s endless cycle of destruction and rebirth. Hart Island, near the Bronx and city, embodies this concept in an unconventional form.
- Used for mass burials since 1869.
- Received more than 2000 bodies during Covid-19.
- Over the last 150 years, over 1 million people have been buried on the island.
- The majority burried in the island are unclaimed.



SITE PLAN
LUCAS PEREIRA, AMITI SINGH

MOUND CLUSTER
LUCAS PEREIRA, AMITI SINGH






the site enacts a performance of decomposition, procession, and landscape which is varying and constantly changing with time.




The structure provides opportunities for programs to be inserted into the mounds.
Structurally, the construction debris and soil from repurposed from nyc soil banks can allow these structural systems to be reinforced without compromising on the efficacy of microbes to decompose the bodies.


THE MOUNDS TRHOUGH SEASONS
The mounds will react to the increase in the timeline of the island and the reconciling bodies submerging back in the water and ultimately give itself back to the water culminating itself within the cycle of life and death.




STRUCTURE AND TIME


GEOMETRY STUDY - CREATING THE SYSTEM




SPRING 2021/COLUMBIA GSAPP
NEW YORK, NY
CORE 2/ INSTRUCTOR: LINDY ROY INDIVIDUAL PROJECT
This project introduces a new pedagogy to the school based on Montessori education, focusing on the individuality of the student and sensorial sensitivity. Operating with an outside-in approach, new topological structures were strategically introduced to the current building. They create new field conditions, taking into consideration light, movement, and accumulation. Overall, the new P.S. 64 should create a ludic and stimulating environment that embodies diversity and praises the complexity of our human neural system.





The organic cells, embedded in the existing building, create varied experiences for students. Hosting specific school programs, they feature different materials to control sensory stimuli. The cells interact with the structure in diverse ways based on the program.






The classrooms are imagined to read as “small worlds” with different sensorial experiences. Each classroom has one maker space, a space for standard activities and lectures, a library, and a group workspace.











CELL - STRUCTURE

THE CELL - DETAIL SECTION





ICON 3D PRINTED HOUSE
TEXAS
2019
OVERLAND PARTNERS
- PART OF 3-PERSON DESIGN TEAM.
3RD PLACE IN INTERNAL COMPETITON.
- DESIGN IS BEING USED AS BASE TO A DIFFERENT LOCATION.
MACAIBA RESIDENCE
NATAL, BRASIL 2018 LOT STUDIO (CO-FOUNDER)
- CO-LED DESIGN.
- PRIMARY CONTACT WITH CLIENT.
- DEVELOPED PROJECT THROUGH CD.
BRASILIA HOUSING
BRASILIA, BRASIL
2018
IDEPENDENT COLLABORATION
PROFESSIONAL COMPETITION
FINALIST
- CO-LED DESIGN.



LIJIANG SILK ROAD DREAMS TOWN
LIJIANG, CHINA
2018
OVERLAND PARTNERS
- HELPED ON 3D MODELING OF THE SITE.
- ASSISTED ON CONCEPT DESIGN OF HOSPITALITY ISLAND.
LADY OF FATIMA PARISH
NATAL, BRASIL 2017
IDEPENDENT COLLABORATION
PROFESSIONAL COMPETITION
2ND PRIZE
- CO-LED DESIGN.
UIA RIO STAND
BRASIL
2017
IDEPENDENT COLLABORATION
PROFESSIONAL COMPETITION
2ND PRIZE
- CO-LED DESIGN.