Healthcare by Design | Ambulatory Surgery Centers

Page 1


HEALTHCARE BY DESIGN

AMBULATORY SURGERY CENTERS

MUSC NORTH CHARLESTON PEDIATRIC AMBULATORY CAMPUS
CHARLESTON, SC

Scan to read LS3P’s research paper, The Future of Healthcare in the Southeast

PREFACE

Outpatient care is reshaping the healthcare landscape — and LS3P is helping lead the way.

The shift toward ambulatory care is not a future trend—it’s a present reality reshaping the healthcare ecosystem. Across LS3P’s healthcare portfolio, our team is witnessing a decisive move away from legacy hospital campuses and centralized medical centers toward more distributed, patient-centric models of care. This transformation is evident in the rise of strategic master plans, mid-sized medical office buildings (MOBs), and the rapid expansion of Ambulatory Surgery Centers (ASCs).

Today, more than 4,000 procedures are authorized—and increasingly encouraged—by Centers for Medicare and Medicaid Services (CMS) on the Approved Procedures List for ASCs. As outlined in LS3P’s research paper, The Future of Healthcare in the Southeast, this evolution is driving the design of more complex outpatient facilities. These MOBs are not only accommodating advanced diagnostic and treatment capabilities but are also contributing to a more holistic and humanized approach to patient care.

LS3P is also seeing a surge in ambulatory care centers tailored to single specialties or service lines. Often branded under the umbrella of leading healthcare systems, these centers deliver focused, comprehensive care in settings that are more accessible and less congested than traditional hospital campuses. This decentralization of services underscores the critical need for visionary planning and strategic collaboration—areas where LS3P is actively partnering with clients to adapt, innovate, and lead in a rapidly evolving healthcare landscape.

ON THE COVER WAKEMED NORTH RALEIGH SURGERY CENTER

WAKEMED NORTH RALEIGH SURGERY CENTER RALEIGH, NC

ADVISING OUR CLIENTS

Understanding LS3P client’s strategic and business drivers is critical to help them make informed key planning decisions that affect the overall size and cost.

PLANNING DECISIONS THAT MATTER

Budget expectations need to be set early in the process. That requires careful consideration of key planning variables. The overall square footage of an Ambulatory Surgery Center can range from 3,000 DGSF* per Operating Room (OR) to as much as 5,500 DGSF* per Operating Room.

KEY DRIVERS OF SPACE

• Operating room size can vary from 450 to 600 net SF, based on type of cases.

• Ratio of beds per Operating Room can range from a minimum of 1 per OR to 4 or more per OR, based on the expected speed of throughput, and the length of stay in recovery.

• Prep/Recovery beds can be in curtained bays, walled cubicles, or private rooms. Privacy affects space requirements.

• New construction or renovation affects space requirements, because fitting into an existing shape always results in less efficient planning.

*Departmental Gross Square Feet

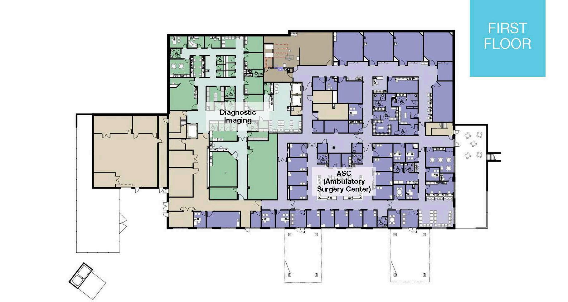
MUSC CHILDREN’S HEALTH R. KEITH SUMMEY PAVILION NORTH CHALRESTON, SC
UNC PANTHER CREEK MOB 1 & ASC CARY, NC

THE SPATIAL METRICS

LS3P tracks the spatial metrics of our ASC projects and uses our database to help our clients evaluate options against benchmark standards. FGI Guidelines sets the baseline minimum standards for the required spaces and their size (*NC, SC, GA, FL all use the latest edition). Increases beyond minimums need to be based on value judgments.

Family Waiting separate from check-in and registration waiting can add value for family members and care givers waiting for patients during surgery and recovery.

The Key Planning Unit of course is the Operating Room. Size varies from the FGI minimum 400 SF up to 600 SF.

Prep and Recovery ratio varies from the FGI minimum of 1 bed per OR, up to 4 beds per OR. Getting the right number of beds per OR is a critical planning decision to match the business model, especially in the case of high-throughput service lines like orthopedics and ophthalmology.

Short Stay Center is a new section in the 2026 FGI Guidelines, providing minimum standards for ASCs that choose to provide post-surgical care for a maximum of 16 patients for up to 72 hours. This is generally applicable to private-pay, “boutique” surgery centers.

PEDIATRIC SURGERY

ORTHOPEDIC SURGERY

24,637 DGSF

619 SF / OR

6 KPU

4,106 DGSF / KPU

18,607 DGSF

480 SF / OR KPU

4,651 DGSF / KPU

TYPICAL MOB + ASC DESIGN

Not all Ambulatory Surgery Centers (ASCs) are created equal. In LS3P’s experience planning and designing ASCs, tailoring the facility to the client’s specific needs is essential. For new, freestanding ASCs, key planning metrics typically range from 3,000 to 4,500 DGSF per operating room. In renovation projects—such as fitting an ASC into an existing Medical Office Building (MOB)—metrics can rise to 4,500 to 5,000 DGSF per operating room due to constraints like floor plate shape and core element locations. However, this larger area is often offset by the lower construction cost per square foot compared to new construction.

In new construction, the building’s proportions can be optimized for ideal ASC adjacencies and flow. In contrast, integrating an ASC into a typical MOB can lead to awkward and inefficient layouts that increase square footage. Typical MOBs range from 60,000 to 100,000 SF and may include four to six operating rooms along with a mix of primary and specialty care clinics. The ASC can be located on the ground floor, an intermediate floor, or even the top floor, depending on the building’s design and operational strategy.

UNC PANTHER CREEK MOB 1 & ASC CARY, NC

THE CORE OF THE MATTER

ASC IN A TYPICAL MOB WITH INTERNAL CORE

MOBs are often developed as a tenant in a typical ‘office building’ layout that has an elevator/stair core in the center of the building with a corridor system that serves office/clinic space on each side of the building. ASCs that are planned in this kind of layout tend to get ‘wrapped around’ the core and the flow and adjacencies become spread out and less efficient.

ASC IN A TYPICAL MOB WITH PERIMETER CORE

In MOBs that are developed with an ASC as a primary program in new construction, we place the stair and elevator service core at the perimeter of the floor plate, ideally at the corner to provide that maximum flexibility for the program layout and flows. The results in highly legible and efficient spatial layouts.

CAPE FEAR HARNETT CANCER CENTER LILLINGTON, NC

INTERNAL CORE

HEALTH MOB WITH ASC / DSC

PERIMETER CORE

INNOVATION BASED ON RESEARCH

LS3P participated in an AHRQ-funded research project in collaboration with Clemson University’s Architecture + Health program. The study focused on Operating Room layout and found that an angled operating table supports flexible room orientation, allows for a dedicated anesthesia corner, and accommodates in-room stretcher storage. Additionally, the inclusion of three induction rooms located across from the operating room was shown to reduce patient turnover time and increase family time with pediatric patients OPERATING ROOM

OPERATING ROOM

INDUCTION ROOM

DAYLIGHT OPPORTUNITIES

One of the tangible benefits of the ambulatory shift is moving diagnostic and treatment services out of dense hospital environments. Smaller ambulatory buildings with smaller footprints bring the opportunity to introduce more daylight into clinical areas that traditionally have been hidden away in the internal spaces of large hospital floor plates. This is especially true for the ASC.

The example of WakeMed North Raleigh Surgery Center illustrates how daylight opportunities were thoughtfully incorporated into the project’s design and construction. Natural light was introduced throughout the building, with windows and openings strategically placed around the perimeter to bring daylight into various areas of patient care and staff workspaces. In both Medical Office Buildings (MOBs) and Ambulatory Surgery Centers (ASCs), daylight plays a critical role in enhancing the healing environment. Exposure to natural light has been shown to improve patient outcomes, reduce stress, and support circadian rhythms. For staff, daylight contributes to improved mood, reduced fatigue, and increased productivity. Integrating daylight into healthcare design not only elevates the aesthetic and experiential quality of the space but also supports the overall well-being of its occupants.

“With a projected 21% increase in ASC volume by 2034, reaching 44 million procedures annually, design trends are changing rapidly to meet the growing demand for convenience, safety, and personalized care.”

Surgery Center Design Trends / Skytron 2025

“Surgical patient volume in many specialties continues to migrate safely and appropriately to an ambulatory approach in both ASCs and hospitals…electively focusing on growing volumes in specialties moving out of acute care can make sense for the revenue, productivity and utilization of the ASC.“

Jennifer Misajet, RN, Interim Chief Nursing Officer, Fresno, CA Saint Agnes Medical Center (Becker’s ASC Review March 6, 2024).

Located within an existing Professional Office Pavilion on the WakeMed North Hospital campus in Raleigh, NC, this Ambulatory Surgery Center offers a therapeutic and safe environment for both patients and clinical staff. The center features large (570 SF) OR/Procedure rooms, with generous daylighting that enhances the overall quality of the space.

The project involved renovating one floor of a building originally constructed in 2006 as a Business occupancy and previously used by various medical clinic practices. The renovated surgery center includes 4 OR/Procedure Rooms, 16 Prep and Recovery beds, and supporting facilities, totaling 16,540 SF. The scope also included extensive fireproofing and the installation of independent HVAC and backup electrical systems, providing clear separation from adjacent areas in the building.

CASE STUDY

MUSC Children’s Health

R. Keith Summey Medical Pavilion NORTH CHARLESTON, SC

R. Keith Summey pediatric pavilion was designed to colocate many pediatric multi-specialists into one place to provide holistic and collaborative care for their patients in a convenient location away from the urban hospital. The concept of patient and family-centered care drove the entire design process for this pediatric ambulatory center, informing decisions from site selection through the final finishes. This bright, welcoming facility reduces the stress associated with a clinical visit while paving the way for new models of healthcare delivery.

Multi-Specialty Team Collaboration: Since its opening, the pavilion has been transformational for the clinical practices and the families’ experience. Collaboration between physicians and clinicians has significantly increased with the design of the clinical pods that allow staff from different specialties to work together in teams and create a holistic patient plan. Likewise, the staff move to the patient allowing the patient to remain in one exam room for their visit rather than relocating to see different specialists.

Technology: LS3P transformed the clinic registration and waiting process and design. Check-in kiosks direct families to the open, welcoming clinic concourse where animal icons identify their clinic-for-the-day. Post occupancy tracking found this has shaved off over 5 minutes of wait time for patients and their family members using technology, revised operational procedures, and the design and location of the registration and waiting concourse.

Creating the OR of the Future: A joint research study between MUSC and Clemson University’s Center for Health Systems Testing and Design on the Operating room of the future coincided with the early stages of design for the project.

As a result, the design team was integral in creating the operating room of the future while incorporating emerging research on room orientation, size, the optimal location of the operating room table, position of the anesthesiologist, daylight, and finishes. Strategies included the use of induction rooms outside of the restricted corridor to reduce stress for patients by allowing families to bypass the gowning and gloving process to stay together until the procedure begins. This has proven extremely effective and we have gotten positive feedback from the staff about how much the families appreciate being able to accompany their child into induction.

Urgent Care: On the ground floor, an orthopedic clinic transitions to an urgent care in the evening providing reassurance to families who often are traveling from distant communities and staying overnight in nearby hotels between appointments.

CASE STUDY

UNC Health Care Panther Creek Medical Campus

CARY, NC

LS3P provided master planning, architectural, and interior design services for this multispecialty 99,900 SF medical office building and orthopaedic surgery center. The facility provides clinical space for family medicine, pediatrics, OB/GYN, orthopedics, internal medicine, nuclear medicine, neurology, digestive health, and heart and vascular care. Clinics on the upper floors provide services in a collaborative model with centralized patient check-in and staff support spaces. Clinic layouts are based on Lean design principles, with dualentry exam rooms and care team work areas separated from patient areas. The facility also includes an imaging center which offers CT, MRI, mammography, ultrasound, bone densitometry, and X-ray.

The Orthopaedic Surgery Center of Panther Creek, a joint venture between a large hospital system and a leading private orthopedic practice group, includes three operating rooms, 13 universal prep/recovery rooms, and a dedicated sterile processing department in a footprint designed to accommodate expansion.

This complex project was completed within a 16-month construction period using concrete tilt-up construction.

WakeMed Medical Park of Cary Medical Office Building & Ambulatory Surgery Center

The master planning and design for this medical office building/ambulatory surgical center focused on creating beautiful, welcoming, cost-conscious facilities for patients and staff. The lean, efficient model for the developerdriven project fit within a tight footprint; Phase 1 is a five-story, 122,900 GSF facility and 470-space parking deck as part of the overall masterplan for the site.

LS3P designed the MOB core and shell for Healthcare Trust of America as a Design-Bid-Build project, and also completed the CON for the fifthfloor ASC. LS3P also provide tenant upfits for Wake Med, including the four OR ambulatory surgery center, clinical spaces for cardiology, imaging, pharmacy, general surgery, vascular, thoracic, urology, urogynecology, OB/ GYN, and maternal fetal medicine.

The project required significant expertise with code compliance and very strict exterior design standards in the Town of Cary. LS3P has earned a reputation for being “regulatory wizards” who are adept at creating innovative, collaborative design solutions to regulatory challenges.

built for healing, designed with heart.
UNC PANTHER CREEK MOB 1 & ASC CARY, NC

RON SMITH

AIA, ACHA, ACHE, LEED AP Lead Author Director of Medical Planning

ronsmith@ls3p.com

919.829.2790 (DIR.)

713.252.20 (MOB.)

STEVE FREYALDENHOVEN

AIA, NCARB

V ice President | Principal I nterim Healthcare Practice Leader

stevefrey@ls3p.com

336.579.5367 (DIR.)

336.908.3101 (MOB.)

Turn static files into dynamic content formats.

Create a flipbook
Issuu converts static files into: digital portfolios, online yearbooks, online catalogs, digital photo albums and more. Sign up and create your flipbook.
Healthcare by Design | Ambulatory Surgery Centers by LS3P - Issuu