

PORT FOLIO
L O R E N A S O A R E S

Sobre mim:
Sou estudante de Arquitetura e Urbanismo, cursando o 9º período. Durante minha trajetória acadêmica, tive a oportunidade de estagiar em escritórios como Thaís
Borges Arquitetura e Studio Ideia, e atualmente faço parte da equipe da Kátia Lima Arquitetura. Nessas experiências, fui me aprofundando na área de interiores, tanto residencial quanto comercial.
Meu objetivo é oferecer serviços que otimizem seu fluxo de trabalho, garantindo qualidade e eficiência em cada entrega.



Serviços oferecidos
MODELAGEM 3D 1.
Desenvolvo modelagens detalhadas e precisas para auxiliar na visualização do projeto, garantindo que cada detalhe seja representado de forma fiel.

Projeto de estudo. A loja Unique Parfum é um convite para explorar o universo dos perfumes importados. Um espaço pensado na exclusividade, elegância e experiência única.

Na prancha (ou em mais de uma, se for necessário) contém:
Elevação 3D portas/gavetas fechadas e portas/gavetas abertas
Vista Superior
Elevação Frontal
Planta Nível (quantidade a depender do projeto)
Corte (quantidade a depender do projeto)
Detalhes específicos (puxadores, cavas de iluminação, etc)
Serviços oferecidos
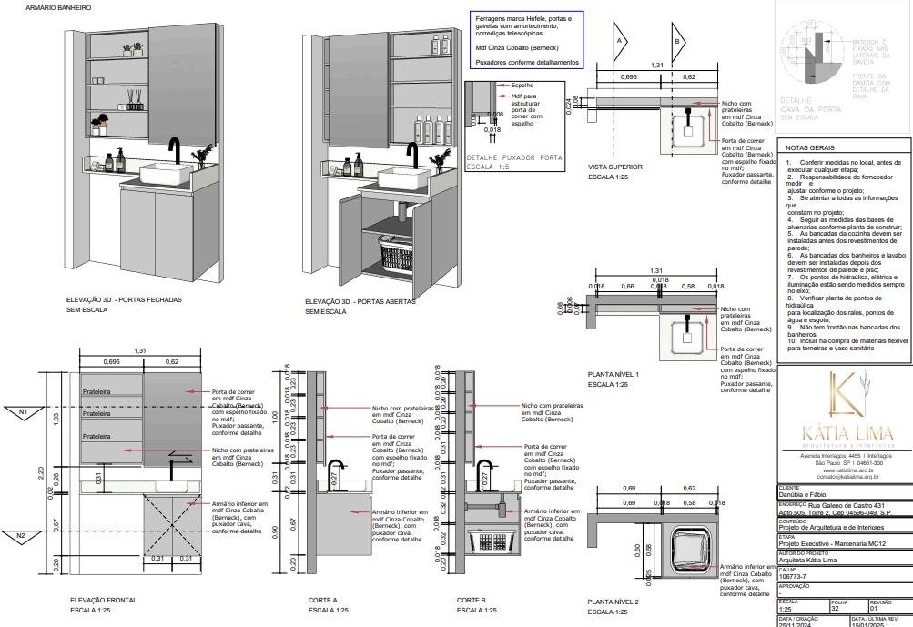
2. DETALHAMENTO
DE MARCENARIA
Produzo detalhamentos técnicos claros e organizados para facilitar a execução e comunicação com fornecedores.
Os detalhamentos são produzidos em folha A3 e na escala de 1:25. Sujeito a alteração, caso necessário.

Na prancha (ou em mais de uma, se for necessário) contém:
Elevação 3D portas/gavetas fechadas e portas/gavetas abertas
Vista Superior
Elevação Frontal
Planta Nível (quantidade a depender do projeto)
Corte (quantidade a depender do projeto)
Detalhes específicos (puxadores, cavas de iluminação, etc)
Serviços oferecidos
2. DETALHAMENTO
DE MARCENARIA
Produzo detalhamentos técnicos claros e organizados para facilitar a execução e comunicação com fornecedores.
Os detalhamentos são produzidos em folha A3 e na escala de 1:25. Sujeito a alteração, caso necessário.

Na prancha (ou em mais de uma, se for necessário) contém:
Elevação 3D
Vista Superior
Vista Superior com recorte (se necessário)
Elevação Frontal
Corte (quantidade a depender do projeto)
Detalhes específicos (recorte de cooktop, cuba, detalhe de tampo, etc)
Serviços oferecidos
3. DETALHAMENTO
DE MARMORARIA
Produzo detalhamentos técnicos claros e organizados para facilitar a execução e comunicação com fornecedores.
Os detalhamentos são produzidos em folha A3 e na escala de 1:25. Sujeito a alteração, caso necessário.

Na prancha (ou em mais de uma, se for necessário) contém:
Elevação 3D
Vista Superior
Vista Superior com recorte (se necessário)
Elevação Frontal
Corte (quantidade a depender do projeto)
Detalhes específicos (recorte de cooktop, cuba, detalhe de tampo, etc)
Serviços oferecidos
3. DETALHAMENTO
DE MARMORARIA
Produzo detalhamentos técnicos claros e organizados para facilitar a execução e comunicação com fornecedores.
Os detalhamentos são produzidos em folha A3 e na escala de 1:25. Sujeito a alteração, caso necessário.



Serviços oferecidos
4. RENDER BÁSICO
Dependendo da necessidade do projeto, posso ajudar com renders iniciais e ajustes específicos para ganhar tempo.
Ideal para apresentações ao cliente. Posso humanizar, de acordo com a necessidade.
Tabela de valores:
Modelagem 3D
Ambiente Valor
Pequeno (Banheiro, Hall, Quarto compacto)
Médio (Quarto grande, sala, área gourmet)
R$ 100,00
2. Detalhamento de Marcenaria e Marmoraria
Tipo Valor
Peças individuais (bancada, painel, armário, etc)
R$ 60,00
Grande (Cozinha, loja completa)
R$ 150,00
Mobiliário completo de um ambiente
R$ 180,00
R$ 200,00
Pacote fechado (projeto de marcenaria completo, de todos os ambientes escolhidos)
R$ 500,00 (pode variar, de acordo com o projeto)
3. Render
Valor Por cena R$ 40,00
Tabela de valores:
Observações:
Para o primeiro serviço, você receberá 10% de desconto.
Para modelagem 3D, entrega em até 7 dias úteis, conforme a complexidade do projeto.
Para detalhamentos, entrega em até 5 dias úteis
Pacote de 3 a 5 imagens R$ 150,00
Para render, entrega em até 10 dias úteis, considerando ajustes após feedback.
Caso precise de um prazo menor, há um acréscimo de 20% sobre o valor total.
Atenção:
Antes de iniciar qualquer trabalho, agendamos uma reunião de briefing para entender detalhadamente suas necessidades, preferências e objetivos do projeto. A reunião pode ser presencial ou virtual.



L O R E N A S O A R E S