ORDENACIÓN DEL TERRITORIO
EQUILIBRIO TERRITORIAL Ese es uno de los objetivos que se marca la Junta con la ampliación, mejora dotacional y reordenación de diferentes espacios industriales

![]()
EQUILIBRIO TERRITORIAL Ese es uno de los objetivos que se marca la Junta con la ampliación, mejora dotacional y reordenación de diferentes espacios industriales

ESTEFANÍA
NIÑO
LEÓN El impulso de la actividad industrial y su desarrollo en los entornos rurales, desde una perspectiva que tiene en consideración la necesidad de equilibrio territorial, se encuentra entre los objetivos estratégicos de la comunidad autónoma de Castilla y León, desarrollados durante los últimos años. Más concretamente desde que en mayo de 2022 la Consejería Medio Ambiente, Vivienda y Ordenación del Territorio tiene la competencia plena en la materia de ordenación del territorioentendiendo por plena la que comprende tanto la relativa a los instrumentos de planificación territorial (Ley de Ordenación del Territorio, LOT) como la referida al gobierno del terri-
torio (LORSERGO)- ha centrado su acción en la planificación de la ejecución desarrollos industriales y de equipamientos que han sido declarados esenciales para el desarrollo de la Comunidad, normalmente a través de su inclusión en Planes Territoriales de Fomento o a través de su declaración como proyectos industriales prioritarios. a través de instrumentos como el II Plan de Promoción Industrial de Castilla y León.
El suelo industrial es uno de los ejes fundamentales para el impulso de la actividad industrial y también para lograr un mejor equilibrio territorial. Para su desarrollo, la Consejería de Economía y Hacienda, con la intervención de la de Medio Ambiente, Vi-
vienda y Ordenación del Territorio, ha puesto en marcha un programa para desarrollar en los próximos años más
Un programa para desarrollar más de 14 millones de m2 de nuevo suelo industrial
Plantea una inversión de 180 millones y una decena de actuaciones en las 9 provincias
de 14 millones de m2 de nuevo suelo industrial en la comunidad. Para ello ha utilizado como instrumento de gestión los Planes y Proyectos Regionales que establece la Ley de Ordenación del Territorio que conlleva un tratamiento integral urbanístico y ambiental que confiere a las iniciativas una reducción de plazos y una concentración de trámites.
Este programa plantea una decena de actuaciones en las 9 provincias y prevé una inversión de 180 millones de euros, entre las que destacan por la Ampliación del polígono de Villadangos, en León; el polígono de los Hitales, en Burgos; el polígono Escaparate, en Medina del Campo; o el de Monfarracinos, en Zamora.
EN LA PROVINCIA Ampliación y mejora de los polígonos de Villadangos, el Parque Tecnológico, y ‘El Bayo’ en Cubillos

El consejero Juan Carlos Suárez-Quiñones visitó recientemente e l polígono de Villadangos. LNC
ESTEFANÍA NIÑO
LEÓN. En la provincia de León, esta iniciativa de mejorar superficies industriales como una herramienta clave de futuro y desarrollo, se centra en tres zonas, concretamente en los polígonos de Villadangos el Páramo, el Parque Tecnológico de León, y la ampliación del polígono ‘El Bayo’ en Cubillos del Sil. Juntas, estas actuaciones suponen una inversión global de unos 74 millones de euros que impulsarán el crecimiento económico y social en la región.
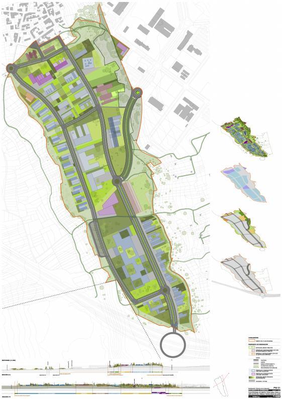
POLÍGONO INDUSTRIAL DE VILLADANGOS DEL PÁRAMO
En el año 2001 la Junta de Castilla y León inició el desarrollo del Polígono Industrial de Villadangos, en el término municipal de Villadangos del Páramo (León), por considerarse una ubicación idónea para el establecimiento de una importante superficie industrial. El tiempo ha demostrado el acierto de esta previsión y hoy puede afirmarse que el Polígono Industrial de Villadangos del Páramo, con un elevado grado de consolidación como es-
pacio productivo y logístico, resulta un ejemplo de éxito en el campo de las actuaciones de carácter industrial en Castilla y León.
El polígono industrial de Villadangos del Páramo tiene una consideración de enclave productivo estratégico para la comunidad autónoma, como avalan los Programas Territoriales de Fomento y las declaraciones de interés prioritario de varios de los programas empresariales localizados en su ámbito.
Próximo a la capital leonesa (19 km) y muy bien conectado, junto a la N120 y a la Autovía AP-71 León – Astorga y el aeropuerto de León, bien dotado y con una infraestructura intermodal en ejecución – mediante un Proyecto Regional para la derivación particular para el acceso a la red ferroviaria-, hacen de este ámbito el lugar idóneo para el desarrollo de actividades de logística y distribución.
Para poder llevar a cabo la ampliación del polígono industrial, el 26 de enero de 2023 se aprobó por Decreto 1/2023, (Bocyl 30 de enero de 2023) el Plan Regional de Ámbito Territorial para la ampliación del Polígono Indus-
de gestión correspondientes a un Proyecto de Actuación, conteniendo las determinaciones completas sobre reparcelación y las determinaciones básicas sobre urbanización.
El proyecto fue aprobado por ORDEN MAV/371/2023, de 22 de marzo, y las obras han sido iniciadas. Se estima una inversión e impacto económico de 44 millones de euros, y duplicando la superficie actual del polígono, sumando 184,1 hectáreas.
Recientemente se ha aprobado la ORDEN MAV/517/2024, de 27 de mayo, que realiza ajustes puntuales en la ordenación detallada la ordenación detallada con el objeto, por un lado, de impulsar la implantación de plataformas logísticas vinculadas a la distribución alimentaria para lo que ha sido necesario unir dos parcelas, y por otro, replantear el trazado de la conducción de agua denominada Canal de Velilla, que abastece a la ciudad de León.
El Parque Tecnológico de León se ubica al suroeste de la ciudad, en la carretera N-120, entre Oteruelo de la Valdoncina y Armunia. Posee una sólida infraestructura de comunicaciones y un fácil acceso a la autopista de Astorga y las autovías de Benavente y Burgos. Con una superficie de 32 hectáreas totalmente urbanizadas, el parque está diseñado para albergar empresas innovadoras, con instalaciones tecnológicas, equipamiento y amplias áreas verdes.
trial de Villadangos del Páramo en León promovido por la Sociedad Pública de Infraestructuras y Medio Ambiente de Castilla y León (Somacyl), que define un nuevo sector de suelo urbanizable de 184,102 hectáreas de superficie, y de uso predominante industrial, contiguo al existente.
El Plan Regional de Ámbito Territorial estableció la ordenación urbanística completa, general y detallada, del ámbito, así como las condiciones
Mejorar superficies industriales como una herramienta de futuro y desarrollo Estos proyectos impulsarán el crecimiento económico y social en la región
Desde su establecimiento, el parque ha experimentado un crecimiento constante en la creación de empleo, con 1,952 puestos de trabajo en 41 empresas de sectores como tecnologías de la información, química-farmacéutica, ingeniería y consultoría. Aunque el 77 % de la superficie neta está ocupada, el 23 % restante podría resultar insuficiente para satisfacer la creciente demanda o proyectos de gran envergadura.
En noviembre de 2021, se firmó un protocolo entre la Junta y el Ayuntamiento de León para impulsar una segunda fase del Parque Tecnológico, con el objetivo de fomentar sectores generadores de riqueza y ofrecer suelo urbanizado de calidad para nuevas empresas. La aprobación del Plan Regional para la ampliación del Parque Tecnológico de León establece las disposiciones de planificación, ordenación y conexión con la infraestructura existente, así como los mecanismos de gestión necesarios para obtener los terrenos y llevar a cabo las obras de ampliación. Este desarrollo permitirá crear hasta 285,641.85 metros cuadrados de nuevo suelo, con una edificabilidad de 314,215.80 metros cuadrados, destinado a actividades productivas e innovadoras. Somacyl, dependiente de la Consejería de Medio Ambiente, Vivienda y Ordenación del
Territorio, será responsable de estas acciones. El presupuesto total estimado para estas inversiones es de 12 millones de euros, IVA incluido, destinado a proyectos, expropiación de terrenos y urbanización del nuevo parque empresarial.
El Consejo de Gobierno aprobó el 15 de junio de 2023 el Decreto por el que se aprueba el Plan Regional de ámbito territorial para la ampliación del Parque Tecnológico de León, promovido por Somacyl, que define un nuevo sector de suelo urbanizable contiguo al actual parque, con una superficie bruta de más de 53 hectáreas, de uso predominante industrial para actividades productivas y empresariales.
El día 6 de junio finaliza el levantamiento de las Actas Previas a la Ocupación de los bienes afectados por la ejecución del Plan Regional, lo que permitirá aprobar el proyecto de urbanización y de reparcelación, para poder iniciar las obras de urbanización.
En este caso, el ámbito del plan regional es de 523.693 m² y la inversión e impacto económico estimado se cifra en 10 millones de euros.
POLÍGONO INDUSTRIAL “EL BAYO” EN CUBILLOS DEL SIL
Mediante la resolución de 13 de marzo de 2024, de la Dirección General de Vivienda, Arquitectura, Ordenación del Territorio y Urbanismo, se ha iniciado el procedimiento de aprobación del Plan Regional de ámbito territorial para la ampliación del polígono industrial El Bayo en Cubillos del Sil (León).
El objeto principal del Plan Regional de ámbito territorial atiende al interés general, que ya motivó la promoción del actual Polígono Industrial de “El Bayo”, de disponer en el entorno del municipio de Ponferrada de una oferta de suelo público para su destino a actividades productivas y empresariales, atendiendo además a los particulares requerimientos de algunas empresas de interés prioritario para la comunidad, como es el caso de TVITEC System Glass S.L.
Para ello, se aborda, por una parte, la reordenación parcial del actual Polígono Industrial de “El Bayo”, adecuando la ordenación y configuración parcelaria de la denominada fase 3ª del área industrial, a las necesidades de implantación de las actividades productivas previstas; por otra parte, se acomete la creación de una nueva oferta de suelo público con destino a actividades productivas, colindante y vinculada al polígono existente. Complementariamente, se establecen los mecanismos necesarios para proveer al área industrial de mejoras en las infraestructuras de acceso y de tratamiento de aguas residuales.
Las actuaciones sobre la fase 3ª del Polígono Industrial “El Bayo” se acotan a un ajuste de la ordenación detallada, reorganizando una estruc-

tura parcelaria inicialmente prevista, que incluía numerosas parcelas de pequeña dimensión que son agrupadas para conformar dos únicas parcelas de gran dimensión, sin modificar las edificabilidades o aprovechamientos previstos en la ordenación inicial. La modificación habilita asimismo independizar el desarrollo de este ámbito de las dos fases ya desarrolladas, con condición
fáctica de suelo urbano, recalculando las cargas de urbanización previstas de acuerdo con la nueva ordenación.
Por otra parte, se delimita un nuevo ámbito de suelo urbanizable de uso predominante industrial localizado en terrenos colindantes al actual polígono de “El Bayo”, entre estos y la carretera CL-631. El nuevo sector, con una superficie de 54,2
ha y unas condiciones de ordenación análogas a las del área industrial existente, permitirá mantener en el municipio una oferta de suelo público con destino a usos productivos. La delimitación del sector permite, asimismo, al integrarlo parcialmente dentro de su ámbito, abordar la mejora de la accesibilidad al área industrial mediante la ejecución de un nuevo enlace viario con la carretera autonómica. El nuevo sector se delimita mayoritariamente sobre terrenos actualmente clasificados como suelo rústico, cuya clasificación se modifica, e incorpora adicionalmente dos parcelas de carácter dotacional público (cesiones E-6 y L-3) ya pertenecientes al sector urbanizable “El Bayo” (fase 1ª y fase 2ª). La incorporación de estas dos parcelas, ya urbanizadas en el marco del desarrollo del sector “El Bayo”, posibilitará la articulación entre el polígono existente y su ampliación y la reorganización de las reservas dotacionales para mejorar su accesibilidad (la actual parcela L-3 no cuenta con acceso directo desde viario público) y funcionalidad, garantizándose en la ordenación propuesta el mantenimiento de las cuantías dotacionales actuales.
La Junta de Castilla y León, a través de Somacyl, asumirá las inversiones necesarias para el desarrollo de las operaciones de ordenación, gestión y urbanización de los suelos delimitados por este Plan Regional. Finalizado el periodo de información pública, este Plan Regional se somete a dictamen del Consejo de Medio Ambiente, Urbanismo y Ordenación del Territorio de Castilla y León cuya reunión tendrá lugar el día 5 de septiembre de 2024.
En el caso del polígono industrial El Bayo, la superficie del ámbito total del Plan Regional es de 1.442.837 m², y la inversión e impacto económico estimado es de unos 20,3 millones.

ESTEFANÍA NIÑO
LEÓN. Además de las tres intervenciones previstas para León, la hoja de ruta de la Consejería Medio Ambiente, Vivienda y Ordenación del Territorio contempla ocho actuaciones en todas las provincias de la comunidad. Concretamente una en Ávila (Vicolozano II), otra en Burgos (Polígono Industrial El Parralejo, Melgar de Fernamental), una en Salamanca (Polígono Las Viñas, Ciudad Rodrigo), dos en Segovia (ampliación de Complejo Asistencial y la ampliación del polígono industrial “Los Hitales” en Bernuy de Porreros), una en Soria (Proyecto Regional del Parque Empresarial del Medio Ambiente en Garray), otra en Valladolid (industrialización en Medina del Campo), y otro más en Zamora (desarrollo industrial Zamora Norte en Monfarracinos). En Á Ávila, el proyecto se centra en el interés general de incrementar la disponibilidad de suelo público para su destino a actividades productivas y empresariales en la provincia y, por extensión, en el suroeste de la comunidad autónoma. Se propone la reconsideración de las condiciones de ordenación urbanística de la Unidad de Actuación UA 3 del sector PP19 V Vicolozano II, del Plan General de Ordenación Urbana de Ávila, con el objeto de generar una oferta de suelo público con destino a la implantación de actividades industriales y logísticas, que incremente la capacidad del ya colmatado polígono Vicolozano I y de las dos unidades de actuación ya urbanizadas de Vicolozano II. El Proyecto de Urbanización y el convenio urbanístico de gestión, por el sistema de concierto fue aprobado por ORDEN MAV/700/2024, de 11 de julio. El ámbito del Plan Regional abarca una superficie en suelo urbanizable de 1.128.575,90 m² y se prevé una inversión de 16,87 millones.
En la provincia de B Burgos, entre los ámbitos de interés para la creación de nuevos polos de desarrollo industrial se encuentra el municipio de Melgar de Fernamental, que cuenta con un Polígono Industrial “El Parralejo” promovido a través del “Consorcio para la Gestión Urbanística del P Polígono Industrial El Parralejo”, iniciativa que fue parcialmente desarrollada, al incluir la ordenación detallada del sector de suelo urbanizable de uso industrial denominado SU-1 “El Parralejo” en el propio instrumento de las Normas Urbanísticas Municipales,
aprobadas definitivamente el 19 de diciembre de 2008. Posteriormente se desarrollaron un Proyecto de Actuación, por el sistema de expropiación y el Proyecto de Urbanización. En la actualidad el ámbito se encuentra parcialmente urbanizado, con las obras de ejecución paralizadas. El Plan Regional de Ámbito Territorial abordará la reordenación completa del área correspondiente al sector de polígono “El Parralejo”, así como los refuerzos externos de infraestructuras. Una actuación urbanizadora que recuperará y hará operativa una iniciativa paralizada, corrigiendo además las problemáticas sobrevenidas por el abandono de las obras de urbanización no concluidas. La superficie total del ámbito del Plan Regional en este caso es de 557.658,42 m² y una inversión de 11,3 millones de euros.


En el caso de S Salamanca, los planes se centran en la ampliación del Polígono Industrial “ “Las Viñas I” en Ciudad Rodrigo. El objetivo es delimitar un nuevo sector de suelo urbanizable de uso industrial que integra un conjunto de suelos rústicos que perimetran el actual polígono, así como los incluidos en el sector urbanizable residencial S30a por el que ya se produce el acceso al mismo, promoviendo la reordenación conjunta de todos los terrenos, con cerca de 600.000 metros cuadrados y una inversión de 15 millones de euros.
En la provincia de S Segovia se contemplan dos actuaciones: la ampliación de Complejo Asistencial Educativo de Segovia y la ampliación del polígono industrial “Los Hitales” en Bernuy de Porreros. El Hoospital General de Segovia es un equipamiento general público que asume funciones de rango provincial cuyas instalaciones, situadas a las afueras de la ciudad, precisan una ampliación y mejora que implican la extensión del complejo fuera de su actual parcela, ya muy colmatada. Desde la Gerencia Regional de Salud se formuló una propuesta de plan funcional para un nuevo edificio con una reserva para, al menos, 20.000 m² de edificabilidad. Paralelamente a esta demanda surgió la necesidad de impulsar una nueva Escuela de Enfermería, planteando su deseable integración en ese ampliado Complejo Sanitario. El ámbito de

actuación se extiende sobre una superficie total de 119.892,82 m2 con una inversión total de 54,6 millones de euros. Por otro lado, en 2023 la Junta de Castilla y León inició la ampliación del p polígono industrial “Los Hitales” en Bernuy de Porreros con la idea de ampliar la oferta de suelo productivo disponible, con unas condiciones aptas para acoger la demanda existente. Se busca, por una parte, el desarrollo completo del sector de suelo urbanizable ya existente,y por otra parte, la creación de un nuevo sector adyacente, para el que se propondrá la ordenación detallada completa y las conexiones exteriores y con el sector existente necesarias para su viabilidad. La inversión total prevista asciende a 20 millones de euros y con
su ejecución se obtendrán más de 750.000 metros cuadrados de nuevas parcelas.
El Proyecto Regional del Parque Empresarial del Medio Ambiente en Garray, S Soria, comenzaba en 2015 como un instrumento de ordenación del territorio que abordó la adecuación y encuadre dentro del marco urbanístico vigente de los terrenos urbanizados de la antigua Ciudad del Medio Ambiente. En los ocho años transcurridos desde la aprobación del Proyecto Regional, han sido varias las actividades e iniciativas empresariales que han manifestado su interés en implantarse en el «Parque Empresarial del Medio Ambiente», algunas de ellas con demandas de superficie y condiciones de establecimiento que, aunque coherentes con los principios y objetivos que guiaron el Proyecto Regional, no fueron en su momento tenidas en consideración al establecer la ordenación detallada de los terrenos. Ello ha supuesto la necesidad de abordar actuaciones adicionales.
En V Valladolid se trabaja en la industrialización en Medina del Campo para la potenciación de la actividad industrial en dicho municipio mejorando la oferta de suelo industrial disponible al objeto de permitir la consolidación de las actividades existentes y la atracción de nuevas iniciativas. Uno de estos sectores es el agroalimentario, que en los últimos años ha ido consolidándose gracias a la implantación de diferentes iniciativas productivas en el entorno de la carretera autonómica CL602 (el denominado « «Polígono Escaparate»), en directa conexión además con la autovía A-6. Un ámbito cuya consolidación y ordenación ya preveía el vigente Plan General de Ordenación Urbana (2008) que definió en este entorno un ámbito de suelo urbanizable no delimitado, así como la denominada «Área de Transportes». El PRAT desarrollará una superficie de 1.719.740 m², con 1.657.943 m² de suelo industrial en dos sectores: uno de consolidación de actividades existentes (987.000 m²) y otro de ampliación con nuevas parcelas industriales (670.000 m²).
Finalmente, en la provincia de Z Zamora la Junta iniciaba en 2023 la Junta de Castilla y León inició el desarrollo industrial Zamora Norte en el término municipal de M Monfarracinos (Zamora). El objetivo es incrementar la disponibilidad de suelo público para la ejecución de un nuevo complejo industrial de carácter público. Aprovechando la confluencia de dos infraestructuras estratégicas de transporte como son el Corredor del Duero y la Vía de la Plata, se crea un nuevo ámbito para la implantación de actividades industriales, con una nueva oferta de suelo con ventajas competitivas desde el punto de vista de su dotación y accesibilidad, que permita la atracción de actividades económicas a la zona. El Plan Regional que lo desarrolla, con una inversión de 17 millones de euros.