Architecture Portfolio 2025

Page 1


Professional Works

Beijing Mediatheque

Museum of Antarctic Animals

Airship of Theseus

A Porous Community

Madison, WI, USA

Beijing, China

Shanghai, China

Ushuaia, Argentina

Selected Works

Qitong Liu

Manifesto

01 - 04 Professional Works

UW-Madison College of Engineering

UW-Stout Innovation Hub

Jinwan Sci & Tech Hub

Xirang Hotel

05 Winding Life with Media

06 A Porous Community

Architecture is encoded social purposes.

Even before the architecture is designed, numerous social purposes have been attached upon it, by the context, by the ever-changing interplay between people and the society, and by the interminable extension of cultural signs. We, architects, attempt to encode this societal significance in physical, semiotic or even sentimental approaches. Societal meanings might be encoded by the interweaving between different spaces, by the dialog between the building and its surroundings, or by the projection of psychological cognition onto the architecture. Once we finally symbolize every facet of these interlaced social intentions, we will conceive the architecture yet to be created as well. We will ultimately comprehend how the facade of the building welcome or refuse visitors, how floors, slopes and stairs extend under our feet, and how the details of it fit subtle feelings within our hearts.

In other words, architecture is a projection of all relevent social intentions. It is not only the product of social purposes, but also a medium for our society to narrate itself.

Shelter Designs

Individual academic work. Beijing Mediatheque as a reconstruction proposal of Beijing Books Building 07 The Ice-Melting Journey

Individual academic work Museum of Antarctic animals, an architectural transcription of documentary March of the Penguins.

Works

University of Wisconsin-Madison

Phillip A. Levy Engineering Center

Type: Higher Education, Professional Work

Location: Madison, WI, USA

Time: August, 2025

Parteners: SmithGroup, Madison Office

Role in Team: Created interior detail drawings and renderings for Phillip A. Levy Gallery and Multi-Donor Wall Project Leader: Lana Zoet

Stage: Under Construction (Sept. 2025)

Channel Glass Wall Detail:
Channel Glass Wall Detail:
Glass channel

University of Wisconsin-Stout

Innovation

Hub

Type: Higher Education, Professional Work

Location: Menomonie, WI, USA

Time: August, 2025

Parteners: SmithGroup, Madison Office

Role in Team: Created digital models and renderings of 3 design proposals

Stage: Schematic Design (Sept. 2025)

The Innovation Hub at the University of Wisconsin–Stout is conceived as a dynamic center for science and collaboration. We proposed 3 options——High-Bay, Courtyard and Ellipse. These design options integrate open courtyards, linked green spaces, and transparent edges to extend campus networks, balancing long-term stability with programmatic flexibility, creating a forward-looking academic landmark.

High Bay Space
Design Options
Design Option A: Courtyard
Design Option A: Courtyard
Entrance

Option B:

building

Very strong interior - exterior link from 10th to north courtyard.

Design Option C: Ellipse

corners blend quads, courtyards, streetscapes and sightlines creating a highly linked campus node.

Similar to campus context in height.

Highly unique, iconic identity.

Open
Design
High-Bay Plaza extends 10th pedestrian streetscape onto the site & into the building.
Larger
footprint at lower levels. Smaller height closer to campus context.

Jinwan

Sci & Tech Park

Type: Office, Professional Work

Location: Pudong New District, Shanghai, China

Time: August, 2023

Parteners: HPP Architekten GmbH, in a Team of 12 Role in Team: Provided All Elevation Drawings, Revised Plans, Sections and Renderings Project Leader: Xinyu Ding

Stage: Under Construction (Sept. 2025)

© HPP Architekten GmbH

Jinwan Science & Technology Park (Innovation Dock) is located in the core area of Jinwan, Pudong, and positioned as a future hub for the health industry. This international competitionwinning proposal introduces the concept of a “layered scientific cluster,” integrating science and poetry to reflect the values of publicity, diversity, and specialization.

← Conceptual Diagram

↙ Massing Strategy

↓ First Floor Plan 1:900

The design is organized into three spatial layers: the ground layer , a landscaped social and recreational zone with dining, reading, and fitness facilities; the body layer , hosting conference, exhibition, and incubation spaces interconnected by public corridors; and the canopy layer , featuring flexible lab spaces including CRO platforms, digital twin labs, and academician workstations, forming a vertical network linking research and industry.

"Industrial Rainforest"
"Layered Science Clusters"

The park is composed of high-rise towers to the north and low-rise standalone office buildings to the south, forming a dynamic south–north gradient that aligns with the adjacent green space. Interlocking volumes create an elevated east–west pedestrian axis that links the main entrance with the ecological green belt along Caojia Canal. The gently descending circulation activates the space and seamlessly connects the city to the riverfront.

Xirang Hotel 04

Type: Hospitality, Professional Work

Location: Wuxi, Jiangsu Province, China

Time: July, 2022

Parteners: Vector Architects, in a Team of 12

Project Leader: Xu Yan

Stage: Constructed (July, 2025)

Role in Team: Created Renderings and Interior

Construction Drawings

© Copyright 2008-2020 | Vector Architects

Nestled between Lake Taihu, Zhushan Mountain, and the riverside community, the hotel is organized as a cluster of courtyards, each with its own function and atmosphere. Linked by outdoor corridors and subtle terrain shifts, the brick volumes dissolve into the landscape, culminating in a 24-meter glass light tower by the water. Framed views, changing light, and layered circulation create a spatial montage that evokes the spirit of the local setting.

Natural light filters into the western courtyards, forming a series of intimate-scale gardens at ground level. At the heart of the complex, the Rain Pavilion connects multiple courtyards beneath a 16-meter-tall space topped with a circular bronze rain collector. The largest courtyard, Camphor Water Garden, opens eastward to Lake Tai and is framed by double-height guestroom walkways wrapped in bronze mesh. On the riverbank, a 24-meter glass brick Light Tower reflects the shifting sky, echoing the presence of the lake.

Together, these elements create a layered spatial experience where light, water, and circulation converge—blending intimate gardens, monumental forms, and shifting atmospheres into a cohesive architectural narrative rooted in the surrounding landscape.

↓ Section 1:500
→ Light Tower
①. Western Courtyards
②. Rain Pavilion ③. Camphor Water Garden
Light Tower

05

Winding Life with Media

Beijing Mediatheque

(as Reconstruction of Beijing Books Building)

Type: Individual Academic Work

Location: Xicheng District, Beijing, China

Time: June, 2022

Level: Junior Year Project, 8-week Workload

Supervisor: Martijn de Geus

E-mail: mdegeus@mail.tsinghua.edu.cn

Beijing Mediatheque

The project reconstructs Beijing Books Building , which locates on Chang'an Avenue, the grandest street across the center of the ancient capital city. Our project aims to create a public center of media resources on Chang’an Avenue, providing a contemporary extension to the street that represents the political power of China.

How does the Mediatheque work?

With the rise of digital media, people no longer take reading books as a necessity. Instead, as knowledge is now carried by multiple vehicles, the action of gaining knowledge is now deeply merged with our life. Unfortunately, most people are still unaware of this tendency and fail to imbibe information in their daily life.

Thus, the mediatheque calls for not only a sacred space for books, but also a tender attitude for public life. To encourage citizens to rediscover the meaning of books and other media of information in daily life, we need to incorporate various social events into our complex. Hence, we propose the project to entwine media and life.

Site Analysis

In front of the site, Chang'an Avenue is the grandest street across the center of Beijing. As a symbol of the national power, buildings facing the street are unified by massive and regular facade. However, behind the site, there remains the texture of the ancient city, whereas houses and "Hutongs" (alleyways) extend in small scale. The contradiction in scale exists in the context, combined with consequent social significance, has been a central issue of our design.

①. Center of Political Power

②. Polarization in Scale

③. Uniform Facades

④. Commercial Context

⑤. Underground Connections

Existing Building

Incorporate Social Activities

Interweave Media with Life

Merge Media and Life

Concept Diagram

The previos Beijing Books Building remained a scared space for books, irrelevant to everyday life. In contrast, our building kindly invites social activities into the building and immerses it into reading spaces, to showcase the connection between daily life and study.

Winding Life with Media

Flows of people in the area

Form of the floor invites and shape the flow of people

Incoporate Social Activities

Covergence of the flows

Manipulation of the facade makes it open to the public

Entwine Life and Media

There are two routes winding in the building.

Flows of people control the form of our the building. Convergence of people becomes public space and clustered incoming people result in the routes leading up to the building. The form of floor goes with the flow. In this way, people can wander aound the site and naturally go inside the building.

The ORANGE route of information refers to the main space for media and reading. This route aims to inspire unlimited thirst for knowledge in a continuous and hence infinite space.

The GREEN route of life gathers people from the public area of parks, subway, and streets, bringing landscape and social activities into the building. It connects public spaces scattered inside the building as well.

Design Purpose:

Two routes are interweaved and merged one another. There is no absolute boundary between two systems but a soft transition.

The Dichotomy of Facades

The façade facing Chang’an street matches the scale of other buildings along Chang’an Street. In contrast, the north façade flows towards the “Hutongs” (alleyways) and soothe the tension of difference in scale. The façades consist of two skins. While the flowing outer skin invites people to enter the building, the skin inside functions as a window to present public events inside.

South Facade within the Urban Context
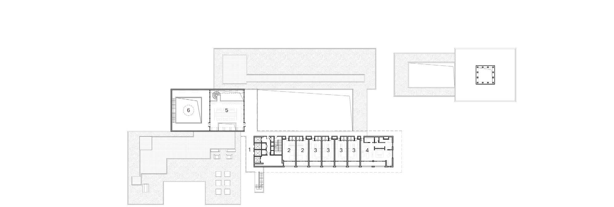
5F Media Collection & Reading
4F Media Collection & Reading
3F Media Collection & Reading Indoor Gardens
2F Indoor Gardens Mezzanine
1F Market and Shops
B1
B2 Underground Parking
* Rendering created by my partener, Haoran Zhang.

①. media collection and reading

②. indoor winter garden

③. market and shops

④. community park

⑤. underground parking

Section

EPFE membrane 80mm Aluminium extrusion assembly

15o×24mm steel tube 40mm steel bolt

Stainless steel connecter

Cast joint with threads

300×25mm steel beam

Casted joint with the tree pillar 30mm steel cable

300×25mm

What does the New Mediatheque Bring?

We merged the space of daily life with space of knowledge acquisition and provided intertwining routes to trigger social events. The circulation on the site is now flowing as a whole. People can now wander between life and media, always sensing the opposite parts of daily life or knowledge acquisition.

A Porous Community

Urban Design around Metro Station

Type: Individual Academic Work

Location: Haidian District, Beijing, China

Time: November, 2022.

Level: Junior Year Project, 8-week Workload

Supervisor: Dr. Lai Yuan

E-mail: yuanlai@mit.edu

"A City Divided"

An interesting phenomenon is observed recurring in many Chinese Cities. When an urban area is partially divided by railway, highway or other element, the obstacle not only separates its two sides, but also brings inequity in development to its surroundings. For example, slums with bad living conditions and dearth of infrastructures emerge in one area. Meanwhile, traffic and commerce overcrowd another, causing traffic congestions and paralyzing the public transportation. This disparity will remain even after the obstacle is demolished.

Will there be a way to eliminate this disparity and bring further development to the area?This project serves as an investigation on such architectural strategies, focusing on Wudaokou metro station region as an instance.

Site Analysis

The site sprawls around the level-crossing of Chengfu road and B-Z railway. An elevated metro line extends parallel to the railway while its station locates next to the crossing. The railway has been abandoned since 2016, however, its deep impact on the urban structure remains.

1950s:

The region was at edge of the city, filled with bungalows. The old railway crossed the site.

2003:

Commercial complexes and traffic facilities are built around the new metro station where flows of people converge. The road therefore becomes more crowded.

Polarization in Built Environment

Sites along Chengfu road are filled with commercial complexes, shops and traffic facilities. Meanwhile, next to the railway, slums and shanties form a belt. The two constitute a cruciform.

Polarization in Connectivity

The inequity in development is correspondent to the difference of accessibility. As the only throughfare across the railway nearby, Chengfu road becomes extraordinarily busy. In contrast, the belt blocked behind the railway became less accessible.

1960s:

After the railway was relocated, the belt on the east of the railway became hard to access, which would be neglected by new real estate developments.

2016:

The railway was abandoned and transformed into a linear park. However, the barrier around the railway still remains and the park is not satisfying as expected.

Status quo

Commuters, local residents and customers converge along Chengfu road.

Design Goal

Separate corridors for commuters, consumers and residences are created.

Meawhile, the old railway strings a series of active spaces.

Strategy

The inequality and consequent problems within the region can be eliminated through “re-connecting and re-defining” strategy.

Commuters Residents Customers

Status quo

As mentioned before, commuters, local residents and customers converge along Chengfu road.

Pathes for Residents

Re-definition

The new corridors will be respectively re-defined as rapid passageway for transfer, new commercial street and playground for local residents. The barrier before becomes a porous community now.

Demolition

Shanty Houses -11347m2

Parking Lots -06162m2

Parking Lots -01600m2

The shanty belt, which has evolved into a dense barrier itself, is removed. The parking lots are demolished as well.

Activity Plot

Playground

Commuters Residents Customers

Re-connection

Several new corridors crossing through the site of the railway are created, integrating the wounded road network. These corridors also provide a spectrum of connectivity, which accommodates overflow of traffic and relocates commercial activities.

+11220m2 Retail

+ 8500m2 Community Service

+ 2500m2 Parking Lots

+ 6000 m2 Underground Parking

Intersection

Meanwhile, the site of the railway will not be obliterated. Instead , it can be transformed into a positive linear space with new activities embedded. Energetic nodes will emerge when the linear space intersects the corridors.

Social Housing +24500m2

Social Housing

Building volumes on the top will be created according to the urban texture. The new established buildings will be enough to embed new activites, former shanty dwellers, and even provide more social housing to the neighborhood.

SiteDesignAxometric Differentactivitiesare organizedto different routes.

Street Market Commercial Street Metro Station Complex

TypeA:Apartment

1F:Retails

1-2F:Communityservices(etc.clinic,kindergarten.)

2F:Communitygreenfield

3-8F:Apartmentsandsoho lofts.

TypeB:Retail

0-1F:Retailshops

3-4F:Restaurants, exclusiveshops

TypeA+B

1-2F:CommunityMarket

3-4F:Tenementhouses

MetroStationExtension

2-3F:Bicycleparkinglot andconvenientshops.

3F:Newstationhalloverpasstherailway.

The Ice-Melting Journey

Museum of Antarctic Animals

Type: Individual Academic Work

Location: Ushuaia, Tierra del Fuego Province, Argentina

Time: November, 2023

Level: Fifth-year Project, 16-week Workload

Supervisor: Lu Fan

E-mail: fanlu@tsinghua.edu.cn

March of the Penguins

Global warming and human activities have been the major threat to polar animals. Among Antarctic animal species, the emperor penguin is the most famous and significant, whose images frequently propagated to voice concern on Antarctic animal protection. In breeding seasons, these penguins migrate toughly between their breeding ground and habitat. Penguin parents forage and feed their offsprings alternately. Yet, climate change may deteriorate their living condition.

Museum of Antarctic Animals

A metaphor is embedded in the building as an Antarctic animal museum, which is itself translated from the docunmentary La Marche de l'Empereur. The visitor route of the museum keeps isomorphic to the march of the penguins, which allows visitors to relate to farewells and reunions within the emperor penguin community. Meanwhile, landscapes along the journey are employed as spatial archetypes in the building in order to create an on-the-scene space perception for the visitors. Important nodes in the building reflect essential scenes in the film, which leaves deep emotional touch to the visitors. Hence, not only the contents of the building, but the architecture itself calls for actions to protect the Antarctic ecosystem.

Located in Ushuaia, the south most settlement of human, the massing and facades of the museum resemble an iceberg abstractly, in which transparent ice massing is covered by translucent snow cover. Thus, the museum itself showcases underlysing natural forces, holding a tinder attitude towards the environment.

* All photographic materials in this project are cited from La Marche de l'Empereur, Luc Jacquet et al. 2005.

March of Emperor Penguins

In breeding seasons, the penguins march nearly 40 miles from their habitat to the breeding ground. After that, penguin parents travel back to forage alternately, while the other takes care of the baby.

Reunions always followed by farewells in their life. Following diagram demonstrates the spatial and temporal movement of penguin parents and babies.

The Narrative Circulation

Mirroring the movement of penguins, circulations in the museum aims to make visitors relate to frequent farewells and reunions in penguin community.

Penguins Penguin Offspring

The

End points of the march are translated into stagnation points in the circulation, which are exhibition halls.

Meanwhile, their farewells and reunions take place in public space.

↗ Correspondently, the circulations are aligned with two axis: the shoreline and its vertical. Building entrance is determined by the urban context.

→ Shape of circulations are adjusted to embody public spaces around them.

①. Enclosed Exhabition Halls

②. Semi-Open Public Space

③. Vertical Connection

④. Seashore

⑤. Atrium

⑥. Entrance Hall

Visual connections are correspondent to the day-night cycles in the march of penguins. Locations representing events during polar days have broad horizons.

⑦. Visual Connection to the Habour

⑧. Visual Connection to the Airport

⑨. Visual Connection to the Town

Ice-Melting Journey
Habitat
Seashore
Gental Slope
Breeding Ground

Morphology of Iceberg

A study of mechanisms in iceberg evolution inspires the morphology of the museum.

Interplay of Two Narratives

A tension between penguins and the nature is manifested. The museum is co-shaped by morphology of icebergs and the narrative circulation.

①. Ice Cracks Aligning with Circulations ②. Public Space inbetween Building Volumes

Five abstracted archetypes are embodied along the circulation, leading to fine adjustments of building volumes.

Accumulated snow and melting of ice shape a soft form. The contrast between transparent ice and white snow cap inspires the facade design.

The Ice-Melting Journey 54
①. Snow Cap
②. Transparent Ice

With design methodolodies aforementioned, the museum not only manifests spectacular natural power, but also showcases the dialetic of penguins and the nature. Architecture can be used as a medium to instill social concepts including preserving polar environments in the hearts and minds of the visitors.

The Ice-Melting Journey
The Museum of Antarctic Animals

Episode 1: the Long March

Lining up ashore here, the penguins start their journey. The space is designed as a shallow valley with a linear visitor circuation.

* Character materials downloaded form the internet

Episode 2: the Ceremony

The wedding ceremony of penguins takes place here. The space is designed to emphasize dignity and symmetry.

Episode 3: the Shelter

Female penguins separate from thier parteners to forage. This space stands for the breeding ground of penguins, where centrality and enclosure are manifested.

The Ice-Melting Journey

Episode 4: Intersection

After a short reunion, penguin parents will separate again. This episode could be depicted by creating random encounters between visitor circulations

Penguin babies finally grow in to independent adolescents. The end point of visitor routes expresses a sense of freedom.

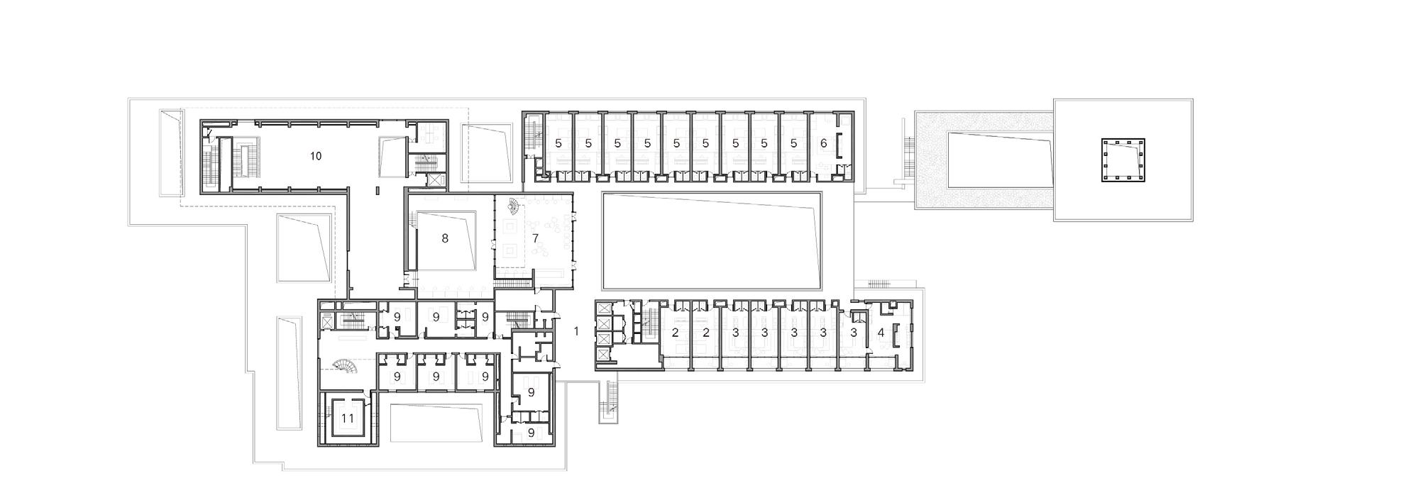
First Floor Plan 1:1000

①. Entrance hall ②. Cinema

③. Temporary exhibition hall ④. Cafe

Epilogue
59 The Ice-Melting Journey
The Ice-Melting Journey | 60

①. wire mesh

②. aluminium profile flange

③. 120×12mm aluminium tube

④. 300×24mm steel tube beam

⑤. 60mm steel cable

⑥. aluminium profile

⑦. window: double layer thermal glazing glass with aluminumium frame

⑧. 240×240×24mm rectangular steel beam

⑨. 240×240×30mm steel H-beam

⑩. 30×30×2mm steel RHS

⑪. perforated panel

①. wire mesh curtain skin

②. load-bearing cantilever beams

③. wind-resistent cables and brace rods

④. reinforced concrete structure

⑤. suspended ceiling

⑥. curtain wall

⑦. raft foundation

①. 300×200×10mm angle steel profile

②. reinforced concrete structure

③. aluminium profile

④. double layer thermal glazing glass with aluminumium frame

⑤. 240×90mm steel facade post

⑥. 20mm steel rod

⑦. 2mm steel U-shaped profile

⑧. 30×30×2mm steel RHS

⑨. gypsum board

The Ice-Melting Journey

08

Shelter Designs

To Facilitate Hikers along the Qhapac Ñan

Type:Individual Academic Work

Location: Huaraz, Peru

Time: June, 2024

Level: Thesis Project

Supervisor: Martijn de Geus

E-mail: mdegeus@mail.tsinghua.edu.cn

In Andes Mountains in Peru, a picturesque hiking route extends over 70 km along the Qhapac Ñan, ancient Inca trial.However, due to the lack of infrastructures, the route was only suitable for heavy backpacking. To promote local sustainable tourism, this proposal developed a system of shelters which will create a more inclusive hiking trail along the Qhapac Ñan.

↗ Long Sections 1:120

↗ Short Section 1:120

→ Detail Drawings 1:30

Digital Paintings

Type: Individual Creative Work

Metalwork

Blade with Wooden Handle and Sheath

Type: Individual Creative Work

Material: Tool Steel, Walnut, Maple, Brass

Time: June, 2021

11

Pavilion Construction

Type: Academic Group Work

Location: Haidian District, Beijing, China

Time: October, 2020

Parteners: 30 Classmates in Arch 91 Class, Tsinghua Univ.

Role in Team: As Team Leader, Selected Materials, Organized Construction Process

Supervisor: Dr. Jiang Yong

E-mail: Jyong2000@163.com

Turn static files into dynamic content formats.

Create a flipbook
Issuu converts static files into: digital portfolios, online yearbooks, online catalogs, digital photo albums and more. Sign up and create your flipbook.