Portafolio de Proyectos Litzy de Paz

Page 1


ARCHITECTURE PORTFOLIO 2024

Litzy Antonio

My vision centers on generating positive change in people’s lives through architecture. I believe in harnessing the transformative power of design to create spaces that not only serve practical needs but also uplift communities, inspire connections, and foster well-being. By integrating innovative design, and a deep understanding of societal needs, my goal is to generate environments that leave a lasting impact, enriching lives and contributing to a better world through the art and science of architecture.

Contact:

Architect engineer Litzy Liliana Antonio de Paz

Professional ID: 13602599

litzy.liliana@gmail.com

5520898800

Mexico City

English (FIRST certification)

Education: Work experience:

ESCUELA SUPERIOR DE INGENIERÍA Y ARQUITECTURA

“UNIDAD TECAMACHALCO”

Grade: UNIVERSITY

Graduate with a degree in “Architect engineer”

CENTRO DE ESTUDIOS CIENTIFICOS Y TECNOLÓGICOS NO. 13

“RICARDO FLORES MAGÓN”

Grade: HIGH SCHOOL

Graduate with a degree in “Tourism Business Administration”

Colaboration

January 2023 – Now

Area Comun - Development of conceptualization, design, architectural planning, and execution of public spaces, emphasizing parks, museums, design signs, boulevards and schools.

MyArke - Architecural design of residential houses.

Placio de Hierro - Development of executive project, architectural plans, and installation criteria, for Palacio de Hierro services, which includes travel area, insurance, customer service, and click and collect.

ON ARCHITECTURE AND INTERIORISM

January 2022 – January 2023

Execution of architectural, executive plans, and 3D representation for residential houses. Interior design AA, creation of construction specifications, budget orders, and coordination with suppliers.

BULAU ARCHITECTURE AND DESIGN (Professional practices)

August 2021 – February 2022 (6 months)

BIM Modeler for architectural projects. Design and graphic representation for international competitions.

GENERAL DIRECTION OF URBAN SERVICES (Social service)

March 2021 – September2021 (6 months)

Supervision and review of public tenders for repaving, pothole repair, and horizontal and vertical signaling on various main avenues in Mexico City.

Professional abilities:

-Extensive experience using industry-standard software for creating detailed and realistic architectural models.

-Demonstrated expertise in Building Information Modeling (BIM) methodologies

Courses and Training Sessions

Certification “BIM, Autodesk” 101 hours

Course “REVIT + 3ds MAX, Autodesk” 50 hours

-Experience in conceptualizing, developing, and refining architectural designs.

-Proficiency in creating technical drawings, construction documents, and detailed specifications necessary for project execution

Softwares:

Intensive Academic English At University of Manitoba, Canada

Course– XI International Vertical Certification University La Gran Colombia – Bogota. Colombia

CANACERO National Competition 13th Edition

Third Place

Cerfitication in Building with Energy Efficiency and Adaptive Comfort.

UNAM 120 hours

Abilities:

-Proficient in working within multidisciplinary teams, contributing positively to collective project goals.

-Excellent communication skills to convey ideas.

-Ability to adapt swiftly to evolving project requirements and diverse team dynamics

-Strong attention to detail in design development, documentation, and coordination

-Effective organizational abilities to manage multiple tasks.

-Demonstrated potential for leadership roles through proactive involvement

-Strong interpersonal skills for collaborating with clients, stakeholders, and team members.

-Ability to create professional presentation boards and visual materials to effectively communicate design concepts

Office package
Neodata
AutoCad
STAAD Pro
Sketchup
Lumion
Photoshop
Revit Architecture
Revit MEP
Illustrator
V-Ray In Design

01 02 03 04

Curriculum

Gómez Pedraza 43

Vitae Housing Development. Agronomic Research Centre

NEVADI high school

05 06 07 08 Eco Hotel Urban desing of Madero Park Urban design of Canal Nacional

Housing Development:

The residential development under consideration falls within the Medium category owing to the socio-economic status of the inhabitants in the Santa Fe area of Toluca. Given the demographic growth of Toluca city and the low construction density of housing, a proposed action plan aims to develop available zones within the city to counter urban and population saturation. The objective is not solely to expand as a city, but to do so purposefully and conscientiously, respecting and reciprocating nature’s gifts in a sustainable and environmentally-friendly manner.

Year: 2020

Type: Mixed-use residential

Location: Toluca-State of Mexico

Gómez Pedraza 43:

With a strategic location, the 1,684m2 project creates a formal volumetry of three levels with 16 residences divided into 3 different typologies and 50 parking spaces. It features a 30% open area, following an orthogonal concept that respects existing vegetation and incorporates it into the lighting and ventilation of each apartment. The project, owned by BulAu Architects, was modeled in Revit Architecture, with graphic representation done in Photoshop.

Year: 2020

Type: Residential

Location: Mexico City

Facade
Section 02
Section 01

Plan 101 191.5m2

View

Isometric

Agronomic Research Centre:

The Agricultural Research Center aims not only to generate and provide studies for the improvement and incentivization of crop areas to enhance their potential and generate more resources for the surrounding population, thereby increasing the income of families in the area, but also to redouble efforts to protect and safeguard the cultural and natural heritage of the world. Therefore, a master plan is presented that fulfills Objective 11 of the Sustainable Development Goals, creating green public areas such as inclusive parks for different ages and preferences, zones dedicated to recreation and sports, tourism, and above all, spaces that will improve the quality of life for the local users.

Year: 2019

Type: Canacero 13th Edition

Competition

Location: Chalco, State of Mexico

Axonometric View

Design of Street

Section
Portafolio - Litzy Liliana Antonio De Paz - 17

Eco-hotel nature:

Physical, Geographic, Socioeconomic, and Urban Aspects

The general objective is to recover, dredge, and rescue green areas, and to transform the canal into a public space, while not neglecting the integration with the urban context it belongs to. This involves reclaiming the spaces that still have bodies of water in the city, giving them the importance they deserve and revitalizing their hierarchy within the city. This improvement contributes to better water resource management. Furthermore, there will be a boost in the tourism aspect, as the canal spans three boroughs: Iztapalapa, Xochimilco, and Coyoacán, fostering openness and communication among established areas where such activities take place. In essence, it connects busy and visited locations within any of the three boroughs through the canal until reaching the intervention point.

Year: 2021

Type: Hospitality

Location: Mexico City

Study of Connections and Highways

Proposal for Change of Land Use

Urban Analysis:

Concept:

The aim is to create a mixed-use hotel property that not only serves as accommodation and privacy for guests seeking a place to stay but also provides an opportunity to foster connections among local residents through a dedicated space for Mexican gastronomic and cultural commerce. All of this amidst an ecosystem designed and envisioned to endure over the years, encouraging the arrival of wildlife to the site and providing an opportunity for a connection with nature.

Elevation of room volumes based on a structural module of 6.00 x 2.00 (considering 2 bays with a corridor in between).

Zoning:

Reception and Service Area

Modification of the main volume adapting to secondary axes that define spatial continuity.

Placement of remaining volumes and elevation according to minimum heights.

Section cut of the commercial volume and rotation of the recreational volume.

and Business Rooms

and Commercial Corridor

Areas

Recreational
Gastronomic
Recreational

Proyect:

Service Area

Commercial and Guest Parking

Service Parking

Laundry and Linen Room

Administrative Area

Reception and Waiting Area

Accommodation Area

102 Single Business Rooms

63 Single Recreational Rooms

20 Double Recreational Rooms

Commerce Zone

14 Gastronomic Outlets

11 Craft Outlets

Amenities Zone

SPA Gym

Swimming Pools and Wading Pools

Nightclub

Viewpoint

Amphitheater

Business Area

Convention Halls

Event Halls

Conference Rooms

Cafeteria

Green Areas

Thematic Gardens

Artificial Rivers and Lakes

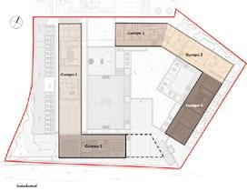
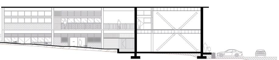
NEVADI High School

The NEVADI Ixtapan de la Sal Secondary and Preparatory School Project is an educational complex comprising classrooms for middle and upper secondary education. The conceptualization process begins from the perimeter of the site, considering an average separation of 5 meters to allow for cross ventilation and direct and indirect natural lighting. This is done to free the view between the new and existing complexes, while respecting the layout of the secondary building. As depicted in the image, this is where the compositional axes of the project originate. Additionally, one of the most important aspects of the conceptualization was to create a central courtyard for social interaction, encouraging students to engage in moments of relaxation and socialization.

Year: 2024

Type: Educational

Location: Toluca-State of Mexico

Propierty of Area Comun

Conceptualization

Isometric view

Urban design of Canal Nacional:

The general objective is to reclaim, dredge, and rescue green areas, transforming the canal into a public space while integrating it with the urban context it belongs to. This initiative aims to recover spaces that still have bodies of water within the city, giving them the importance they deserve and revitalizing their hierarchy within the city. By doing so, it will enhance water resource management. Additionally, there will be a boost in tourism, as the canal traverses three boroughs: Iztapalapa, Xochimilco, and Coyoacán. This will create an opening and communication between established areas where such activities already take place. In essence, it will connect bustling and visited areas of any of the three boroughs through the canal until reaching the intervention point.

Year: 2022

Type: Integration of the National Canal into an Innately Cultural and Unexplored Mexico - University Level

Location: Mexico City

street

Section of
Vegetal Palette

Base facade

Damages and deterioration

Solution

Photographic images

Urban design of Madero Park

The residential development under consideration falls within the Medium category owing to the socio-economic status of the inhabitants in the Santa Fe area of Toluca. Given the demographic growth of Toluca city and the low construction density of housing, a proposed action plan aims to develop available zones within the city to counter urban and population saturation. The objective is not solely to expand as a city, but to do so purposefully and conscientiously, respecting and reciprocating nature’s gifts in a sustainable and environmentally-friendly manner.

Year: 2020

Type: Mixed-use residential

Location: Toluca-State of Mexico

Propierty of Area Comun

Park in 2023 - Acoustic Shell
Park in 2023 - Playful Landscape
Park in 2023 - Agora
Project design - Acoustic Shell
Project design - Playful Landscape - Colaboration with Omosphe
Project design - Agora - Colaboration with Omosphe
Plan - Acoustic Shell
Plan - Playful Landscape
Plan - Agora

La Moraleja

Proposal for interior design intervention in various areas within the residential space. Redesign of space, fixed furniture, and layout according to the client’s needs with a finish palette featuring a style of light tones and combinations of wood, black lacquer, and marble.

Year: 2023

Type: Residential

Location: Pachuca, México

Propierty of ON Arquitectura

Bookshelf
Bar - Option 01
Dining Room
Bar - Option 02
Bedroom

Digital images

Propierty of Area Comun

ARCHITECTURE PORTFOLIO 2024

Litzy Antonio

Turn static files into dynamic content formats.

Create a flipbook
Issuu converts static files into: digital portfolios, online yearbooks, online catalogs, digital photo albums and more. Sign up and create your flipbook.
Portafolio de Proyectos Litzy de Paz by LitzyLiliana - Issuu