The Garden City News (5/24/24)

Page 1

Rec Comm to diversify membership

During its May 9th meeting, the Garden City Village Board approved a resolution amending the local law on the establishment of the municipality’s Board of Commissioners of Recreational and Cultural Affairs (the village Rec. Commission), addressing composition, powers, duties, and responsibilities. This item appeared on the May 9 meeting agenda under new business.

The changes to the law are meant to encourage participation on the commission by residents from all sections of the village.

Mayor Mary Carter Flanagan explained, “Notably, the change we are making is that while Rec. Commission positions are now (existing) at-large, we will aspire to fill them with representatives of the four sections of the village.”

The village trustees unanimously approved the amendment which states, “Such Board (Rec. Commission) shall consist of a chairman and no less than five (5) and no more than eight (8) members who shall be appointed by the mayor and village, subject to approval of the Board of Trustees. While the members are at-large, the Board of Trustees will aspire to have one resident from each section of the village. The chairman may reside within the county in which the village is located or in a county within the state contiguous to the county in which the vilSee page 34

MEMORIAL DAY

The Cathedral of the Incarnation will be holding a Memorial Day service on Monday at 9 am to remember the fallen. The American Legion William Bradford Turner Post 265 will conduct its annual parade starting at 10 am. Marchers will assemble on the east corner of 10th Street and Franklin Avenue, and then march south on Franklin to Seventh Street, west on Seventh to the Veterans Memorial near the Library. Above, at a prior year’s service, Dean of the Cathedral Very Rev. Dr. Michael Sniffen, left, with members of the Cathedral’s BSA Pack 55. See page 20.

School budget approved, new trustee elected

On Tuesday, May 21st, the Garden City Board of Education met at the high school to tally the results of the school budget and board election and discuss remaining district updates.

Voters passed the $133,987,366 budget for the 2024-25 school year with 1,125 votes in favor and 311 votes against. School Board President Joseph Sileo, an incumbent who was running unopposed, was re-elected. Kristen Pappas beat Carl Oliveri for the second seat, replacing Tom Pinou after over 10 years of service.

In other news, the District announced that it received preliminary notice of a $2.39 million UPK grant. If and once finalized, it would allow for expanded pre-kindergarten services, bumped up from a $5,000 cap per student last year to $10,000 cap per student this year.

“This was a big issue last year,” said Sileo. “The cost per student we received was less than what the cost per student actually was, so there was a supplement off the general school budget.”

Administrators are now confident that the expanded grant will provide enough to offer every child on the waiting list a seat. RFPs are now out to schools, prioritizing those within the community. No bus transportation will be provided.

The Board president also spoke up in response to a letter to the editor in the Garden City News last week. The letter referred to unspoken troubles between special education students, parents and the District.

“There were some insinuations that things being done in the administration were either improper or illegal. We reiterate the importance of bringing specific allegations or concerns directly to the board for investigation. We have talked to counsel and the administration and have not seen anything that backs up those allegations.”

An action plan has been developed based on Special Education Advisory Committee recommendations from

See page 40

Spring cleaning underway in Village PAGE 6 Day of Service: Rotary plants the seeds PAGE 28
$1 Friday, May 24, 2024 FOUNDED 1923 n LOCALLY OWNED AND EDITED n Beach Boys PAGE 30 n Soccer Sisters PAGE 46 Vol. 101, No. 21 Tsui Ying (Judy) Hsu Lic. Assoc. R. E. Broker O 516.307.9406 | M tsuiying.hsu@elliman.com516.695.8024 elliman.com Your Realtor Next Door Garden City Office 130 7th Street © 2024 DOUGLAS ELLIMAN REAL ESTATE. EQUAL HOUSING OPPORTUNITY. 110 WALT WHITMAN ROAD, HUNTINGTON STATION, NY 11746. 631.549.7401.

Memorial Day 2024

In the heart of a small town like Garden City, Memorial Day stands as a poignant reminder of the sacrifices made by countless men and women in service to our nation. Amid the quiet streets and serene parks, this day is dedicated to honoring those who gave their lives so that we may live in freedom.

On Monday, the community will gather at the Cathedral for a service and sing patriotic hymns, before marching along the village’s main streets to the war memorial near the Library, where the war dead will be remembered.

The community will gather where flags flutter in the breeze and the scent of blooming flowers mingles with the somber atmosphere.

Memorial Day in a small town isn’t just about remembrance; it’s about the enduring spirit of community and the shared commitment to honor those who gave their all for the freedoms we cherish. It’s a day where history, sacrifice, and togetherness intertwine, reminding us all of the true cost of liberty.

This day in a small town is not just a tradition; it is a profound expression of gratitude and respect for the war dead. It is a day where the community comes together to honor the legacy of those who paid the highest price for our freedoms, ensuring their sacrifices are never forgotten.

All gave some. Some gave all. Remember their sacrifice.

The Baymack Team

516.537.3050

Inaccuracies in letter

To the Editor:

In response to the letter “Unspoken Trouble in Schools,” I would like to clarify some inaccuracies and refute the claim that our district is “at war” with special education students and parents.

First, it is essential to recognize the dedication and hard work of our educators, administrators, and staff who strive daily to support all students, including those with special needs. The assertion that our District lacks sufficient programs to identify children with special needs early on does not reflect the comprehensive efforts already in place. Our district employs a variety of assessments, screenings, and interventions aimed at early identification and support for students requiring special education services. These efforts are in line with legal requirements and best practices, and we continually review and update them to ensure their effectiveness.

Regarding the claim that the District administration dissuades parents from seeking independent evaluations, it is important to note that the District has qualified professionals who conduct thorough evaluations and assessments to determine students’ needs. This process includes consultations with student’s current and former teachers, a review of the student’s assessments, reports, progress notes, and all data, as well as meetings with the family. If, after considering all the information obtained from various sources, our educational team or the family believes further testing is needed, an independent evaluation at the District’s expense is approved.

The notion that many students do not receive the mandated services they need to succeed once a disability is identified is a serious charge. It is our District’s legal and ethical responsibility to provide students identified with disabilities the necessary services while ensuring the greatest possible access to their general education peers. We strive to place students in the least restrictive

environment where their goals can be met.

It is also crucial to distinguish between school-based, educational services and medically or clinically-based therapies, the latter of which are sometimes requested by parents. We understand this may lead to some frustration by parents, but staff cannot provide services that are medical in nature.

Finally, the assertion that school officials gather important student information but limit what is shared with parents is completely false. A student’s entire record is available for parent review at any time upon request.

In conclusion, while we, as a District, recognize there is always room for improvement, we also must address inaccurate assertions.  Constructive dialogue and collaboration between the District and families are key to ensuring the best outcomes for all students. Rather than focusing on divisive rhetoric, let us work together to build a supportive and inclusive educational environment.

Dr. Kusum Sinha, Superintendent of Schools, Garden City Public Schools

Not an “overwhelming mandate”

To the Editor:

I shouldn’t be surprised that after decades of Garden City Board of Trustees meetings the discussion of the future of St Paul’s still commands the center of attention. Trustee Muldoon for one did not want to go “back to rehash the October 2023 vote” and perhaps for good reason. Given the numbers just how strong was that vote? Their effort now appears to be focused solely on a complete restoration of the building, whereas the October Proposal #1 that passed read “Preservation of some parts of the building or the entire Building”. The Board appears to have abandoned part of this “mandate” as they like to call it.

Going back to that October vote, Trustee Finneran wants to “build sup-

2 Friday, May 24, 2024 The Garden City News
Please contact us for a complimentary and confidential market analysis. We are happy to assist with any of your real estate needs! 516.216.0244 Stephen Baymack Licensed
RE
stephen.baymack@compass.com M:
Laura
Licensed
The Baymack Team is a team of real estate agents affiliated with Compass. Compass is a licensed real estate broker and abides by Equal Housing Opportunity laws. Garden City Office. 516.408.2231 The Garden City News Published every Friday by Litmor Publishing Corp. Entered as Periodical Matter in the Post Office at Garden City, N.Y. 11530 - USPS 213-580 Robert L. Morgan, Publisher 1974-1994 • Mary J. Morgan, Publisher 1994 • Meg Morgan Norris, Publisher and Editor • Edward O. Norris, General Manager GARDEN CITY NEWS PHONE 294-8900 821 FRANKLIN AVE., GARDEN CITY, N.Y. 11530 Postmaster: Send Address Change to Garden City News 821 Franklin Ave., Garden City, Suite 208, N.Y. 11530 * Please add $10 per year for delivery out of Nassau County Send To: The Garden City News 821 Franklin Ave., Suite 208 Garden City, N.Y. 11530 ☐ ☐ ☐ 1 yr $4000 2 yr $6900 3 yr $9500 ☐ Visa ☐ Mastercard ☐ Check enclosed CVC # Exp. Date / Card # Name on card Name Address City Zip Phone E-mail Yes! Y I want to subscribe to A WORD FROM THE PUBLISHER
Associate
Broker
516.216.0244
Baymack
RE Salesperson laura.baymack@compass.com M:
LETTERS TO THE EDITOR Email: Editor@GCNews.com See page 32

Village awards $3 million bid for water main project

The Garden City Village Board of Trustees, at their Thursday, May 9 meeting, approved multiple bond resolutions for capital projects and village infrastructure investments. The largest of these was a $3.3 million bond resolution for the Clinton Road Water Main Replacement project, spanning from Old Country Road to Osborne Road. The trustees awarded the bid for this project to Islip-based Bancker Construction Corp., the second-lowest bidder, with a bid of $2,888,305.

Funding for the village capital project is subject to a permissive referendum. The resolution, approved on May 9, will take effect 30 days after its adoption.

H2M Architects and Engineers of Melville, the longtime water system consultants to the Village of Garden City, reviewed all the water main project bids and specifications. The Village Board also voted to reject the bid from the lowest bidder, Pioneer Landscaping and Asphalt Paving, Inc., for not meeting bid specifications.

Superintendent of Public Works John Borroni commented, “Due to the aging

infrastructure, this section of water main was previously identified as needing replacement, and it was planned to be replaced in the near future. The village is coordinating this work with the Nassau County resurfacing project for Clinton Road, which reduced the overall cost of restoring the road on this project.”

Village Treasurer Irene Woo presented the bond resolutions, including $900,000 for the HVAC at the Garden City Water Works Building, $2,780,000 for road and paving repairs, $1,550,000 for DPW vehicles and equipment, $1,130,000 for street lighting system improvements, $1,110,000 for parking lot paving, and $505,000 for village curbs and sidewalks. Each resolution was approved by the trustees.

Woo explained that although the Board approved the resolution for the Water Works HVAC at its April 1 meeting, a delay in publishing a notice for the bond project in the newspaper set it back for approval with the other resolutions last week.

All of the projects, except for the Clinton Road Water Main Replacement,

See page 34

Tax settlements approved, Board reviews projects

At its meeting on Thursday, May 9, the Village Board of Trustees unanimously approved a resolution to transfer unpaid municipal water bills to the village’s tax rolls (the annual tax levy).

Village Treasurer Irene Woo noted that as of May 9, the amount being assessed, including penalties for the outstanding bills, is $236,017, representing 786 water accounts.

Deputy Mayor Bruce Chester asked Woo for further clarification. She told the Board that a year ago, the amount outstanding and added to the tax rolls was $288,177, which included “a lot more unpaid water accounts.”

Another resolution approved by the Board places unpaid commercial sanitation charges of $286, from only one account, onto the village’s tax roll. No unpaid accounts were recorded in 2023.

Board approves tax settlements

Several tax certiorari settlements appeared on the May 9 Board agenda, as outlined by Village Attorney Gary Fishberg. All the settlements were unanimously approved by the Board.

The settlements include:

• Mall Center LLC for the office building at 100 Ring Road (38,402 square feet), resulting in a refund of $65,000 for tax years 2017-2018 through 2023-2024 and a new assessment value of $105,000 effective for 2024-2025.

• TL Franklin Company for its office buildings at 1205, 1305, 1225, and 1325 Franklin Avenue (446,906 square feet of above-ground office space, 57,739 square feet of lower-level office space, and 8,000 square feet of storage space), resulting in a refund of $75,000 for tax years 2018-2019 through 2023-2024 and a new assessment of $1,085,800 effective for 2024-2025.

• Thorne Enterprises for their manufacturing building at 161 Railroad Avenue (5,580 square feet), resulting in a refund of $20,000 for tax years 2017-2018 through 2023-2024 and a new assessment of $11,000 effective for the 2024-2025 tax year.

• Narula Real Estate (doing business as New Hampton Realty) for its warehouse at 1 Commercial Avenue (18,556 square feet), resulting in a refund of $7,500 for tax years 2018-2019 through 2024-2025 and a new assessment of

See page 35

Spend Your Summer Here

Open House By Appointment

Sunday & Monday, May 26th & 27th

One of the finest and most admired properties in the village, this once in a lifetime opportunity awaits the most discerning buyers. Nestled in the heart of the most prestigious location in town, this iconic colonial is the epitome of luxury living. Boasting a generous 1.5 acres of meticulously manicured grounds with in-ground pool, hot tub and tennis/pickleball court, this property is a true oasis of tranquility with the sophistication and craftsmanship of a bygone era.

Offered at $4,399,000

3 Friday, May 24, 2024 The Garden City News
Garden City Office | 116 Seventh Street, Garden City NY 11530 | 516.746.5511 Jayne McGratty Licensed RE Salesperson Mobile: 516.286.2831 jarmstrong@coachrealtors.com

Home Happens Here

Chic and Spacious Center Hall Colonial

Stunning renovated (2022) colonial home on a spacious 111x100 lot.

•4 over-sized bedrooms

•2.5 baths

•Grand 9-foot ceilings

•Chef’s dream kitchen with Sub-zero fridge, Thermador gas grill/oven, dishwasher, white cabinetry, quartz countertops, large center island

•Oversized banquet-style dining room

•Spacious den with wood burning fireplace

•Open floor plan with great flow

•Luxurious primary suite with walk-in closet and ensuite bath

•Basement for recreation and storage

•Gas heat and central air

•Private yard with paved patio and basketball hoop

•Lush landscaping throughout

Offered at $1,899,000

4 Friday, May 24, 2024 The Garden City News We take a personal interest in the well-being of our clients and peers. Garden City Office | 116 Seventh Street, Garden City NY 11530 | 516.746.5511 Westbury 5 BR, 5 Baths, great room w/ Living Rm & Kitchen, Garage, Pool, W. Tresper Clarke Schools. $1,899,000 Open House Saturday, May 25th 11am1pm, 231 Pershing Pkwy., Mineola Mrs. Clean lives here. Meticulous 3 br, 2 full bath cape-cod style home on 45x100 property $699,000 Oceanside Summer ready 3 Bedroom 2.5 bath townhouse living near the Beach! $645,000 Renovated (2022) Col 111x100 lot Grand entry, high ceilings, chef’s kit, spacious den, 4 lrg br, 2.5 ba, luxurious primary ste. $1,899,000 Dana Eaton Kate Crofton Denise Donlon Patricia
Liz
Barbara
Arlene
Roberta Clark
Julie
Jill
Aprigliano Susan Bashian Andrea Bharucha Suzanne Blair
Breslin
Chmil Deirdre Albertson
Conigliaro Jasmin Burgos
Colleen Ciullo Cheryl Adams McAuliffe Maribeth Quinn Sean R. McCoyd Jayne McGratty Armstrong Roseanne McMahon Barbara Moore Patricia O'Grady
O’Neill Rita Paiewonsky Louisa Pironi
Palmeri
Featured Home Village of Mineola 4 Bedroom/2 Bath Mint Cape on 60x100 Split Ductless AC units, Owned Solar Panels $749,000 Floral Park 2 family home 3BRs/2 full ba, full basement in lower unit. Upper unit - 2BR/1 full ba, EIK & LR $1,349,000
Tony Leondis Sue Lupia George Kyriazis
5 Friday, May 24 , 2024 The Garden City News Open House Saturday, May 25th 1-3pm, 46 Washington Ave. A private oasis welcomes you in this Expanded Ranch with beautiful 100 x 200 grounds & 16 X 32 in-ground pool. $1,599,000
Fedor,
Tara Iori
Lisa
Laura Fitzgerald Nancy Giannone Pamela Goeller Monica Kiely Laura Giacini Bill
Jim Georgakis Rental 2 Bedroom 2 Bath Hampshire House Available 7/1/24. Open concept floor plan w/ hardwood floors throughout $4,900/mo Fabulous colonial up on the hill. Pool and tennis court, large property $4,399,000 Miller Place Gardeners’ Delight! Sprawling 3 BR 2 Bath Ranch w/2 fireplaces & potential for M/D apt. $578,000 Rental Stunning Hampshire House: 2BR/2ba, In unit laundry, doorman, elevator bldg. Prime Garden City Village Location $4,800/mo Expansive 5BR, 2.5ba, 90x100 lot. Formal LR & DR, spacious EIK, cozy family room. 1st floor Laundry $1,499,000 Wyndham West Lovely updated 2 BR 2.5 Bath duplex w/private patio & garden view $1,100,000 Rental New Hampshire House Renovated 2 bedroom, New EIK Kit w/quartz counter, 2 Brand New full bathrooms!! $4,750/mo coachrealtors.com
Not
Pictured: William Breslin, Michael
Robert McMahon, Tara Rice
Atticka Ellis
Fedor
Eckel
Mary
Theanne Ricci Laura Rich Elise Ronzetti John H Russo
Angela Linda
Simbus
Patricia
Savella
Vivian Tener
Weille
exclusive affiliations provide our home owners access to services and property marketing they cannot receive from other real estate brokerages. Anny Ko 1st Floor 1 BR w/ CAC and in-unit laundry conv to Mineola LIRR $299,000 3BR, 3 full bath Wyndham with panoramic south west views of the Garden City Golf club, Middle school and Cathedral. $1,750,000 5-BR, 4.5BA estate, Grand 2-story entry, 3 fpls, chef's kit, LR/DR, fam rm, fin bsmt, private yard, sought-after neighborhood $3,199,000 5 bedrooms, 4.5 bathrooms of ultimate comfort $3,198,000 In Contract
Sharon Redmond
Cathleen Fennessy Whelan Howard Hanna|Coach Realtors’

Spring cleaning underway in the Village

The Village is buzzing with annual spring cleaning activities.

The downtown sidewalk pavers are getting a much-needed scrubbing, street light poles, garbage receptacles and bollards are getting a fresh coat of paint, roadway re-striping is underway and parking lots are getting a closer cleaning wherever sweepers can’t reach.

It’s an all hands on deck movement with crews from the Public Works Department leading the charge. These tasks are performed every year around this time, oftentimes in the early morning hours. In fact, Metro Express Services power washed the sidewalk pavers on Seventh Street beginning at 3:30 a.m. most days.

Trustee Vinny Muldoon, liaison to the business district, is excited about the progress and beautification of the Village. “It’s a great team effort,” he said.

6 F riday, May 24, 2024 The Garden City News
DPW crews re-striping the east side of 7th Street. An after view of the newly power washed sidewalk pavers on 7th Street. Metro Express Services power washing Franklin Avenue sidewalk pavers.
Garden City O ce | 1116 Seventh St Garden City, NY 11530 | coachrealtors.com | 516.746.5511 Curious about what your home’s worth? Scan this QR code to see your home’s value in today’s market. Nancy Giannone Licensed Real Estate Salesperson Mobile: 516.865.2448 | Email: ngiannone@coachrealtors.com

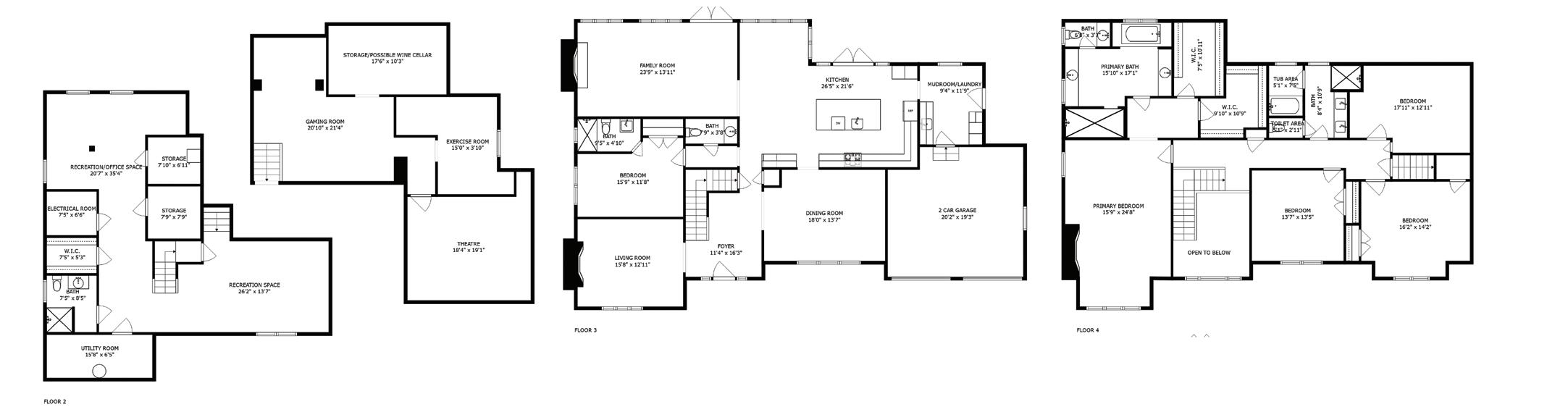
Exquisite Home Showcases Superior Craftsmanship and Lavish Amenities

Experience the grandeur of this stunning 5-bedroom, 4 ½-bath estate spanning over 4,250 square feet on two floors, boasting 9-foot ceilings. A majestic 2-story entry foyer sets the tone for the luxurious living throughout.

Entertain effortlessly in this spacious colonial home featuring three fireplaces, custom woodwork, and expansive 7-foot doors. The elegant foyer leads to a formal living room with a gas fireplace and a banquet-sized dining room.

The chef’s kitchen is a highlight, offering a large center island, warm cream-toned cabinetry, and top-of-the-line appliances including a gas Thermador oven/6 burner stove, Sub-Zero refrigerator, and wine refrigerator. A separate breakfast dining area and a family room with a stone wood-burning fireplace complete the ensemble.

Upstairs, discover the lavish primary suite with a marble-finished ensuite bathroom, along with three additional bedrooms and a full hall bath.

The finished basement provides ample entertainment options, including a movie theater, gym, and kids gaming area. Outside, relax in the private yard with mature landscaping and a bluestone patio.

Additional features include Pella Architect Series Casement Windows, copper gutters, hydronic radiant floor heating, a security system, in-ground sprinklers, and app-controlled lighting. This home offers the ultimate in refined living in a prestigious neighborhood.

at $3,199,000

Friday, May 24, 2024 The Garden City News 7 Garden City Office | 116 Seventh Street, Garden City NY 11530 | 516.746.5511
Gem!
Coveted St. Paul’s
Nancy Giannone Licensed RE Salesperson, CBR Mobile: 516.865.2448 ngiannone@coachrealtors.com
Offered
FLOOR 1 FLOOR 3 FLOOR 4 FLOOR 2 Call for a private appointment 516-865-2448
516-416-4264 | 910 FRANKLIN AVENUE, GARDEN CITY | WWW.PRIMEHOUSEGARDENCITY.COM 516-416-4264 | WWW.PRIMEHOUSEGARDENCITY.COM LUNCH LUNCH CATERING CATERING IT’S PARTY SEASON! IT’S PARTY SEASON! Experience the difference of a Experience the difference of a PRIMEHOUSE PRIMEHOUSE Private Event! Private Event! MONDAY-FRIDAY MONDAY-FRIDAY 12 PM - 3 PM 12 PM - 3 PM TWO COURSE TWO COURSE POWER LUNCH POWER LUNCH $26.95 $26.95 CHOICE DATES STILL CHOICE DATES STILL AVAILABLE AVAILABLE PRIVATE ROOMS PRIVATE ROOMS AVAILABLE AVAILABLE

OPEN HOUSE — SATURDAY MAY 25th 1-3 PM

Welcome to your private oasis! This Expanded Ranch, set on beautifully landscaped and secluded 100 X 200 grounds, o ers the perfect backdrop for relaxation and recreation. Enjoy the sparkling 16 X 32 in-ground pool with adjacent covered eating area and outdoor kitchen with natural gas BBQ, cooktop and fridge ideal for summer fun. Meticulously maintained, this home o ers a exible oor plan with foyer, living room with wood burning replace, dining room, family room, eat-in-kitchen and 3 bedrooms and 2 baths including a primary en suite on the main level. The 2nd story boasts a sanctuary-style principle bedroom suite complete with sitting area, spa-like bath and walk-in closet. The basement is huge, with a recreation room, billiards area, o ce, 1/2 bath and separate laundry & mechanical room. An oversized, heated 2 car garage with loft is conveniently attached via the family room plus all the bells and whistles including 2 zone CAC, 4 zone heat, IGS, security system etc. - walk to LIRR.. O ered at $1,599,000 Taxes $20,774 Or call us for a private appointment. We would love to open the door for you!

Mary Weille

Licensed RE Associate Broker Mobile: 516.384.8833

maryweille@gmail.com

McAuli e Licensed RE Salesperson

516.383.4316 cmcauli e01@gmail.com

Friday, May 24, 2024 The Garden City News 9 46 Washington Avenue
Garden City O ce | 116 Seventh Street, Garden City, NY 11530 | 516.746.5511
Cheryl
Mobile:
Our Newest Exclusive Listing

Garden City Real Estate Market Information

72 Willow Street

RECENT REAL ESTATE SALES IN GARDEN CITY

The information about the homes and the photos were obtained through the Multiple Listing Services of Long Island. The homes presented were selected based solely on the fact that they were recently sold. Mortgage Rates this week from www.nerdwallet.com

Long Island Sales Data From One Key MLS

Date: 05/16/2024

Sold price: $1,300,000

4 beds, 2 full baths, 1 half bath

Architectural Style: Colonial

Property size: .14 acres

Annual taxes: $17,900

MLS number: 3534588

The Seller’s Team: Lisa Fedor, Howard Hanna Coach

The Buyer’s Team: Jiang Zhang, Lin Pan Realty Group

Move right into this immaculate 4-bedroom Colonial boasting loads of smart features and lavish amenities. Walk right into the entry foyer that leads to the expansive living room - picturesque windows with automated blinds and is perfect for entertaining. The chef’s kitchen includes a breakfast nook, stainless steel appliances, granite countertops, custom cabinetry, beverage station and pantry. Full Dining Room sits adjacent to the eat in kitchen. A large sunlit family room with gas fireplace and oversized windows overlooks the backyard. A powder room completes the first floor. The highlight of the second floor is the huge private ensuite featuring a spa shower, towel heater, and radiant heat. Extended landing with three additional large bedrooms, laundry and hall bath with radiant heat. . The basement features rec room, wine cellar, perfect for storing and displaying your prized collection. For the handy homeowner, there’s also a workshop where you can pursue your hobbies or tackle DIY projects. Adding to the allure of this home are the smart house features. Experience the convenience of controlling your home’s climate, lighting, blinds and security system with a simple tap on your smartphone or voice command. Embrace the future of living with these cutting-edge features.

111 Cherry Valley Ave Unit M4

Date: 05/20/2024

Sold price: $750,000

2 bedrooms, 2 full baths, 1 half bath

Architectural Style: Condominium

Monthly charges: $1831

Annual taxes: $6989

MLS number: 3531784

The Seller’s Team: Patricia Dickson and Linda Mulrooney, Daniel Gale Sothebys Intl Realty

The Buyer’s Team: Cathleen Whelan, Howard Hanna Coach

This spacious 2-bedroom, 2.5-bath duplex unit boasts over 1,465 interior square feet in the luxurious Wyndham complex. The 1st floor features an L-shaped living/dining area, updated kitchen, powder room and storage. Both the LR & DR have doors opening to a 268 sq ft private patio. The 2nd floor has a secondary entrance & consists of two bedroom both with full en-suite bathrooms. The primary suite provides ample closet space & features a luxurious marble bathroom with soaking tub. The laundry room is also conveniently located on the 2nd floor. Unit features new hard wood floors thru out.The Common Charges include Lowel Level Storage & one valet parking space. 5-Star amenities include a 24-hour doorman, concierge, elevator, indoor pool, fitness center, sauna, resident lounge, outdoor BBQ and seating area, gazebos, a pond all situated on beautifully landscaped grounds. Conveniently located in the heart of Garden City, minutes to shops, restaurants and the LIRR.

100 Hilton Avenue Unit 308

Date: 5/20/2024

Sold price: $728,000

1 bedroom, 1 full bath, 1 half bath

Architectural style: Condominium

Monthly charges: $1463

Annual taxes: $5,935

MLS number: 3540624

The Seller’s Team: Cathleen Whelan, Howard Hanna Coach

The Buyer’s Team: Stephanie Marchan, Daniel Gale Sothebys Intl Realty

Lovely, 1 BR 1.5 Bath condo has been freshly painted and features terrace access from LR and BR, 9ft ceilings, custom moldings, new flooring, updated HVAC units, in-unit laundry and lots of closets plus storage unit in basement. Common charge includes fee for 1 garage parking spot. The Wyndham is set on over 12 acres of magnificently landscaped grounds. Residents enjoy luxury resort lifestyle with doorman/24 hour concierge/valet parking/club house/salt water pool/gym, sauna, walking paths, outdoor BBQ & more. Located near LIRR, library, shops & dining.

10 Friday, May 24, 2024 The Garden City News Put This Sign On Your Property And Work With 110 WALT WHITMAN ROAD, HUNTINGTON STATION, NEW YORK, 11746. 631.549.7401 © 2024 DOUGLAS ELLIMAN REAL ESTATE. ALL MATERIAL PRESENTED HEREIN IS INTENDED FOR INFORMATION PURPOSES ONLY. EQUAL HOUSING OPPORTUNITY. *SOURCE: MULTIPLE LISTING SERVICE OF LI. ©2023. BASED ON SOLD RESIDENTIAL, CONDO/COOP, LAND AND COMMERCIAL UNITS CLOSED IN NASSAU, SUFFOLK AND QUEENS WITH A TITLE DATE OF JANUARY 1, 2023 TO DECEMBER 31, 2023 IN A COMPARISON OF INDEPENDENTLY-OWNED AND OPERATED REAL ESTATE COMPANIES. Garden City Office | 516.307.9406 130 7th Street | elliman.com Long Island’s #1 Real Estate Company* Houses featured on this page were sold by various real estate agencies This informational page is sponsored by Douglas Elliman Real Estate
30-year fixed 6.840% 6.914% 15-year fixed 6.017% 6.134% 5/1 ARM 6.838% 7.768%
Nassau
Median
Month Current Year Prior Year % Change Apr-2024 $765,000 $679,000 12.7% Mar-2024 $730,000 $672,500 8.6 Feb-2024 $752,000 $650,000 15.7 Jan-2024 $735,000 $675,000 8.9 Dec-2023 $701,200 $650,000 8.5 Nov - 2023 $710,000 $665,000 6.8 Oct - 2023 $725,000 $675,000 7.4 Sept - 2023 $735,000 $699,000 5.2 Aug - 2023 $727,500 $700,000 3.9 July-2023 $725,000 $720,000 0.7 June-2023 $690,000 $716,000 -3.6
County
Sale Price
Friday, May 24, 2024 The Garden City News 11
elliman.com 110 WALT WHITMAN ROAD, HUNTINGTON STATION, NY 11746. 631.549.7401. © 2024 DOUGLAS ELLIMAN REAL ESTATE. ALL MATERIAL PRESENTED HEREIN IS INTENDED FOR INFORMATION PURPOSES ONLY. WHILE THIS INFORMATION IS BELIEVED TO BE CORRECT, IT IS REPRESENTED SUBJECT TO ERRORS, OMISSIONS, CHANGES OR WITHDRAWAL WITHOUT NOTICE. ALL PROPERTY INFORMATION, INCLUDING, BUT NOT LIMITED TO SQUARE FOOTAGE, ROOM COUNT, NUMBER OF BEDROOMS AND THE SCHOOL DISTRICT IN PROPERTY LISTINGS SHOULD BE VERIFIED BY YOUR OWN ATTORNEY, ARCHITECT OR ZONING EXPERT. EQUAL HOUSING OPPORTUNITY. $299,000 | 1 BR, 1 BA | Co-Op | Web# 3526918 Veronica Costabile: M 516.554.7638 Under Contract | Garden City Michelle McArdle: M 516.306.4134 Helen Montane-Achury: M 516.850.7076 $979,000 | 2 BR, 2 BA | Condo | Web# 3531509
Make Your Next Move Exceptional
Roosevelt Way | Westbury Rented Price: $6,000/month | 3 BR, 2 BA, 1 HALF BA Web# 3546169 Michelle McArdle: M 516.306.4134 Rented | Garden City Garden City Office | 130 7th Street | 516.307.9406 Kevin Kim: M 516.578.2787 $1,190,000 | 4 BR, 2 BA, 1 HALF BA | Web# 3534180 Under Contract | Garden City $1,203,115 | 3 BR, 2 BA, 1 HALF BA | Web# 3523635 Sold | Garden City Michelle McArdle: M 516.306.4134 Sold Price: $960,001 | 3 BR, 3 BA | Web# 3487050 Sold | Garden City Brian Pryke: M 516.286.8536 Erin Fleischmann: M 516.864.1977 $725,000 | 3 BR, 1 BA | Web# 3547742 Under Contract | Stewart Manor Michelle McArdle: M 516.306.4134 $3,300/monthly rent | 1 BR, 1 BA | Condo Web# 3539927 111 7th Street, Unit 307 | Garden City Marianna Psihudakis: M 917.693.9029 Lara Munoz-Corredor: M 917.846.2808 Open House Saturday 5/25 from 12 – 2pm $1,838,888 | 4 BR, 4 BA | Web# 3550562 76 Bayberry Avenue | Garden City
1183

Update: Library building projects

Temporary units are being brought in and connected to cool the building during the project.

Several Library building projects are in progress or about to kick off. The roof replacement project, which entailed restoration of the masonry and removal of the previous roof, including asbestos abatement, is winding down. The staging area is being disassembled, site cleanup is ongoing and inspections are pending. As that

project wraps up, the Library’s HVAC project will begin shortly. A staging area has been set up in the parking lot near the railroad tracks. The cooling tower has been fenced in for replacement and temporary units are being brought in and connected to cool the building while the project is ongoing.

12 F riday, May 24, 2024 The Garden City News Women ’ s Health&Aesth e tic Event Giveaways & Special Promotional Pricing At The Event For Aesthetic Treatments! Hors d’oeuvres and Bubbly will be Served Limited Seating. Use the QR code to Register Today on Eventbrite! June 5th 5:00-8:00 PM Come Join Us For An Evening Dedicated To Women’s Health And Beauty 960 Franklin Ave Ste 200 Garden City, NY 11530 516-240-1547 FEATURING Advanced Minimally Invasive Treatments for Uterine Fibroids, Adenomyosis, Varicose and Spider Veins. Opus Plasma Skin Resurfacing for All Skin Types-TED for Hair Loss Prevention & Restoration-Morpheus8 RF Microneedling for Wrinkles, Skin Laxity, and Contouring-Lumecca IPL for Dark Spots & Redness-Laser Vein & Hair Removal ayurinterventionalandvascularcare.com Jen Sullivan is an individual real estate agent affiliated with Compass. Compass is a licensed real estate broker and abides by equal housing opportunity laws. Garden City Office. 516.408.2231 Jen Sullivan
Real Estate Salesperson
Agent of Long Island Member of the Luxury Division jennifer.sullivan@compass.com
516.361.7190 Are you thinking of selling your home? Let Jen Sullivan Guide you. Whether you are downsizing, or searching for your dream home, allow Jen’s experience, passion, and results to work for you. Reach out any time. 516.361.7190 A staging area has been set up and the cooling tower has been fenced in for replacement.
Licensed
Founding
M:
Friday, May 24, 2024 The Garden City News 13

Garden City real estate, reimagined.

Jennifer Sullivan

RE Salesperson

516.361.7190

Kerry Flynn

RE Salesperson

Laura Carroll Team

914.772.6169

Adrienne McDougal

516.662.3872

Catherine Anatra

Menoudakos Team

Lauren Canner

516.987.4886

Mairéad Garry

516.375.8434

516.476.7825

Denice Giacometti

RE Salesperson

Daniel Niebler

14 Friday, May 24, 2024 The Garden City News
182 Seventh Street Garden City, NY 11530 All professionals above are real estate licensees affiliated with Compass. Compass is a licensed real estate broker and abides by Equal Housing Opportunity laws. Karen Guendjoian Lic. RE Salesperson Principal Agent M: 516.578.8395
Baymack Lic. Assoc. RE Broker Principal Agent M:
Baymack Lic. RE Salesperson Principal Agent M:
Laura Carroll Lic. RE Salesperson Founding Agent M: 917.370.5354
Stephen
516.216.0244 Laura
516.537.3050
Lagarde Lic. RE Salesperson Founding Agent M: 516.850.7812 Alexandra Parisi Lic. Assoc. RE Broker Founding Agent M: 516.427.6878 Athena Menoudakos Lic. RE Salesperson Founding Agent M: 516.316.4955
M. McCooey Lic. Assoc. RE Broker Founding Agent M: 516.236.4287 Alexander G. Olivieri Lic. RE Salesperson Founding Agent M: 516.306.7738
Sica Lic. Assoc. RE Broker Principal Agent M: 347.922.8947 Chelsea Costello Lic. RE Salesperson The Laura Carroll Team M: 516.509.7961
Maureen
Patrick
Salvatore
Lic.
The
M:
Lic.
RE Salesperson McCooey Olivieri Team M:
Lic.
McCooey
M:
Lic. RE
The Jen
M:
Olivieri Team
516.398.7468 Susan Gillin
Salesperson
Sullivan Team
516.655.5662
Lic.
The
M:
Christina Hirschfield
RE Salesperson
Laura Carroll Team
516.805.0703
Lic.
The
M:
Ryan
Lic.
The
M:
Lic.
The
M:
RE Salesperson
Laura Carroll Team
Mullins
RE Salesperson
Jen Sullivan Team
516.359.6339 Julie Whicher
RE Salesperson
Laura Carroll Team
516.698.3975
Lic.
The
M:
RE Salesperson
Baymack Team
516.592.0976
Lic.
Founding
Agent M:
Lic.
Athena
M:
RE Salesperson
Lic.
The
M:
Lic.
Principal
M:
RE Salesperson
Laura Carroll Team
516.650.7474 Kathy Thornton
RE Salesperson
Agent

7

8

5

Friday, May 24, 2024 The Garden City News 15
#1 brokerage
All material presented herein is intended for informational purposes only. Information is compiled from sources deemed reliable but is subject to errors, omissions, changes in price, condition, sale, or withdrawal without notice. No statement is made as to the accuracy of any description. All measurements and square footages are approximate. This is not intended to solicit property already listed. Nothing herein shall be construed as legal, accounting or other professional advice outside the realm of real estate brokerage. *Source: 2023 Closed Sales Volume, U.S., RealTrends 500. 43 Nassau Boulevard, Garden City 6 BD | 4 BA | 1 HB | $3,350,000 Laura Carroll | M: 917.370.5354
List this spring with the
in the United States.* Reach out to connect to a Garden City agent.
Carteret Place, Garden City
BD | 7 BA | 2 HB | $4,200,000 Stephen & Laura Baymack | M: 516.216.0244 111 Cherry Valley Avenue, M34, Garden City 3 BD | 3 BA | $1,300,000 Laura Carroll | M: 917.370.5354 194 Whitehall Boulevard, Garden City 4 BD | 2 BA | 1 HB | $2,599,000 Laura Carroll | M: 917.370.5354 23 Ring Neck Road, Remsenburg 4 BD | 4 BA | 2 HB | $2,899,000 Kathy Thornton | M: 516.987.4886 Karen Guendjoian | M: 516.578.8395 191 Wickham Road, Garden City
BD | 1 BA | 1 HB | $1,299,000 Maureen Lagarde | M: 516.850.7812 18 Euston Road, Garden City 3 BD | 2 BA | 1 HB | $1,279,000 Adrienne McDougal | M: 516.662.3872 135 Adams Street, Garden City 3 BD | 1 BA | $995,000 Stephen & Laura Baymack | M: 516.216.0244 UNDER CONTRACT 301 Franklin Avenue, Garden City 2 BD | 2 BA | $885,000 Stephen & Laura Baymack | M: 516.216.0244 UNDER CONTRACT 5 Brixton Road, Garden City 3 BD | 2 BA | $985,000 Stephen & Laura Baymack | M: 516.216.0244 UNDER CONTRACT 144 Kensington Road, Garden City 5 BD | 2 BA | 1 HB | $1,699,000 Cathy Anatra | M: 516.476.7825 164 Kildare Road, Garden City
4
BD | 4 BA | 1 HB | $2,449,000 Stephen & Laura Baymack | M: 516.216.0244 UNDER CONTRACT OUT OF TOWN

Women’s Health Care of Garden City committed to personalized care

John L. Gomes, MD, founded Women’s Health Care of Garden City in 1995. It has remained an independent private practice, providing personalized obstetrical and gynecological services.

He employs the technical advances of conventional medicine with an integrative approach to navigate women through difficult pregnancies into the menopausal years. He treats a wide variety of OB/GYN conditions and is dedicated to providing the highest quality of care.

All tests are conveniently done on the premises, and a dedicated, compassionate staff is on call 24/7.

He is committed to excellence in patient communication, education and support, as many patients come with anxiety associated with past experiences and future concerns.

Dr. Gomes received his undergraduate degree from Brown University, and his Doctor of Medicine from Columbia University.

He is both Board Certified and a Fellow of the American College of Obstetrics and Gynecology.

Women’s Health Care of Garden City is located at 1000 Franklin Avenue, Suite 200, Garden City.

The Andy Foundation Yard Sale a big success

On Saturday, May 12, The Andy Foundation held its  20th yard sale at St Pauls field house in Garden City.  Although this is a huge sale utilizing every inch of the field house people are always commenting on how smooth things run.  This  is due to the wonderful volunteers that show up every year to ensure its success.  Many of them have been helping since the Andy Foundation’s first yard sale in Kathleen Donnelly O’Brien’s back yard, 20 years ago!

They all come together and it goes seamlessly….. although we don’t bounce back as fast as we used to!

Another ingredient to the Andy Foundation’s success is the generosity of its donors, Garden City residents who are  so generous. Everyone always marvels at the quality and quantity of the donations received year after year.

The set up the day prior to the sale would not be accomplished without the help of Jeremy Cotty and his crew.  They spent the day doing pick ups, ensuring that none of the awesome donations were missed.   Jeremy is the owner of Homecraft Contracting, he has been a supporter of The Andy Foundation since its inception.  Many projects would not have come about without him and his crew.  He was instrumental  in getting the two playgrounds that the Foundation sponsored built, as well as the house the Foundation rebuilt in Breezy Point after Sandy .   All the work he does for the Foundation is donated, saving  thousands of dollars and giving peace of mind that the job is getting done right.

Another local business the Foundation wants to thank is Garden City Pizza.  Greg, the owner, has supplied all the food for the volunteers on the day of the sale for decades and never accepted a dime, not even a tip for the delivery person.  We have not experienced that level of generosity with any other food vendor.  As a side note Garden City Pizza has outstanding catered food in addition to their pizza.

The success of the sale has allowed the Foundation to help 11-year-old Jacob, who is on the spectrum and diagnosed with epilepsy, get the a service dog to help him. The Foundation will be paying for the training for his new puppy.

The Foundation also will be making a generous donation to Long Beach Waterfront Warriors, this non-profit brings wounded service members and their families to Long Beach for a week long vacation during the summer months.  Surf lessons, fishing excursions, BBQs are just some of the amazing activities these families get to participate in.

Third, the Foundation will be helping  a local non profit, Enriching Special Adults with a donation.  This group provides a number of social events throughout the year to provide a sense of community and for these young people.

If you know of a family or cause that The Andy Foundation might be able to help please reach out at: info@theandyfoundation.org. or call    516-739-1717. You can also message through instagram @andyfoundation_ yard_sale_shop.

16 F riday, May 24, 2024 The Garden City News
Call 516-222-8883 or visit online at DrGomes.com
Friday, May 24, 2024 The Garden City News 17
is a team of real estate agents affiliated with Compass. Compass is a licensed real estate broker and abides by Equal Housing Opportunity laws. All material presented herein is intended for informational purposes only. Information is compiled from sources deemed reliable but is subject to errors, omissions, changes in price, condition, sale, or withdrawal without notice. No statement is made as to the accuracy of any description. All measurements and square footages are approximate. This is not intended to solicit property already listed. Nothing herein shall be construed as legal, accounting or other professional advice outside the realm of real estate brokerage. O: 516.517.4751 Nestled on a serene street lined with mature trees and picturesque homes, this classic English Center Hall Colonial residence epitomizes elegance and charm. Five bedrooms and four baths. Backyard is an entertainer’s paradise and situated on a generous 75 x 150 lot with a pool. GARDEN CITY, NY 29 Locust Street 5 BD | 4 BA | $2,199,000 Matthew Heaney The Colombos-Dooley Team Licensed RE Salesperson matthew.heaney@compass.com M: 516.241.2648 Ann Heaney The Colombos-Dooley Team Compass Sports & Entertainment Division Licensed Assoc. R.E. Broker ann.heaney@compass.com M: 516.647.4388 Please call Ann or Matt for a private showing. OPEN HOUSE | Sunday, May 26th, 12:00-2:00 PM
The Colombos-Dooley Team

Seventh Street flags honor veterans

German is for Everyone at: German American School

Flags were installed on 7th Street, stretching from Hilton Avenue to Cathedral Avenue, to honor some of Garden City’s veterans.

Garden City High School junior Kiera O’Leary’s vision of honoring local veterans in their hometown became a reality.

In April, O’Leary requested the Village’s permission to hang veterans flags along 7th Street from Memorial Day through Veterans Day. The double-sided brackets were installed on five light poles on the south side of 7th Street this week, stretching from Hilton Avenue to Cathedral Avenue, near the Garden City Public Library. CJ Flag & Son, Inc. did the installation. The flags include a photo of local veterans and their dates of service.

“I am so happy to see this idea finally come to life. Honoring veterans holds a special place in my heart,” Kiera said.

O’Leary’s Girl Scout Gold Award

project was met with enthusiasm. “This is a wonderful project you are doing, thank you,” Mayor Mary Carter Flanagan said. Village Administrator Ralph Suozzi added his gratitude, noting the City of Glen Cove has been hanging such flags for the past three years, including a flag for his father, a U.S. Army veteran. Likewise, Deputy Mayor Bruce Chester praised the project too, also noting that his father has been honored on a flag in nearby Carle Place. The Garden City resident, who will be walking with the American Legion in Monday’s Memorial Day parade, has also started a Veterans Club at the school where local veterans are invited to basketball games to be recognized during halftime with a bouquet of flowers, thanking them for their service.

18 F riday, May 24, 2024 The Garden City News
German lessons since 1897 • Low tuition
No previous German necessary • Minimum age: 6 years Locations: • Manhattan East Side on Mondays • Garden
Tuesdays & Fridays NY State Accredited Language Program Welcome to our after-school program Classes start second week in September inquiries to: kidslearngerman@aol.com or www.german-american-school.org Each office is independently owned and operated. Claudia Galvin Associate Real Estate Broker Gold Circle of Excellence claudiagalvin@danielgale.com c.516.972.8389 Matthew Minardi Real Estate Salesperson Gold Circle of Excellence matthewminardi@danielgale.com c.516.456.3091 Garden City Office 102 7th Street, Garden City, NY 516.248.6655 | danielgale.com We bring a unique perspective to the table, blending traditional values with modern expertise. Whether you’re a first-time buyer or a seasoned investor, we are dedicated to providing personalized service tailored to your needs. When you choose our Mother/Son team, you gain a partner who truly understands the importance of long-term success and building a legacy for generations to come. Do you have a ser vice to adver tise? Our Service Directory is sure to bring results. Call 516-294-8900 for rates and information.
City LI

Doctors Ruth and Tony Randi

Mary Jane and Jerry Keegan

Jim and Sue Sweeney

Eileen and Steven Spinola

Broadway Bound, Debbie Tavernese

George and Marina Pappas

April and Norman Wenk

Joe and Vicki Stanco

Brooke and Kevin English

Casey and Matt Statford

Mary Jane and Tom Poole

BK Sweeney’s

Pat and Jim Costello

Donna and Rick Fortney

Mary and Bob Sena

For All Who Fight Foundation, The Rix Family

Kristen Woody

Marilyn Gannon

Carol and John Finnerty

I’m Not Done Yet Foundation

Herb and Barbara Singer

Mary Anne and Les Taufen

Christine Harrington

Pyramid Jewelers

Friday, May 24, 2024 The Garden City News 19 J

Memorial Day at the Cathedral of the Incarnation

On Memorial Day, we gather in reverence and gratitude, reflecting on the profound words of Jesus; "No one has greater love than this, to lay down one’s life for one’s friends." (John 15:13). This teaching encapsulates the essence of sacrificial love, a love that transcends self-interest and reaches the very heart of the Christian faith.

As we honor the courageous men and women who have given their lives in service to our country, we remember that their sacrifice is a testament to this greatest love. They laid down their lives not just for friends they knew, but for generations of people they would never meet, embodying a spirit of unity and selflessness that mirrors the love Christ exemplified.

In this spirit of remembrance, we commit to living out this radical love in our daily lives. We strive to build a world where peace prevails over conflict, where justice replaces oppression, and where we extend compassion to all, especially the marginalized and

the forgotten.

As we remember the fallen with prayers, parades and tributes, we also honor them by working tirelessly for a future where such sacrifices are no longer necessary. On Memorial Day, we embrace our sacred duty to carry forward their legacy of love, courage, and selfless service.

Join us in a long tradition of ecumenical prayers in the Carhedral before the Garden City Memorial Day Parade. The service which includes patriotic hymns begins at 9am and concludes at 9:30am.

The cathedral’s long tradition of national service in war and peace time includes the current clergy. The 13th Dean of the Cathedral, The Very Rev. Dr. Michael Sniffen, serves concurrently as Command Chaplain of two United States Marine Corps battalions; the Empire Battalion and the 6th Communications Battalion headquartered at Floyd Bennet Field, Brooklyn. He is a Lieutenant in the United States Navy Chaplain Corps.

20 F riday, May 24, 2024 The Garden City News
The dean with members of the Cathedral's BSA Pack 55 and leaders. Dean Sniffen marches with American Legion Auxiliary William Bradford Turner Unit 265. The dean with members American Legion Auxiliary William Bradford Turner Unit 265.
Subscribe Today! Get the scoop on what’s happening in your community every week! Contact us today at 516.294.8900 or visit us online at www.gcnews.com
Friday, May 24, 2024 The Garden City News 21

The A.T. Stewart Exchange Consignment and Gift Shop

It’s Memorial Day weekend! Backyard barbecues and beautiful, balmy beaches are on the agenda. Remember: our Shop will be closed on Monday in observance.

I’m sure many of you read of Kris Harder’s passing just a few weeks ago. And most of us, in remembering her (and her husband Frank), are aware that she was an extremely active and respected member of the Garden City community, both in private and professional circles. I first met her almost 40 years ago, when I was dating my husband, and the one word that always comes to mind in describing Mrs. Harder is “classy!” But she was more than that. Smart (often winning many tricks at bridge) … great sense of humor … impeccable taste … keen business sense. These are just a few adjectives that I would use to describe her.

Many of us fondly recall the Pear Tree and the Garden Bench, both being shops where you could find the best in home décor and for gift-giving. What some of you may not know is that the Exchange was established on September 15, 2007, by Kris Harder. A long-time trustee of The Garden City Historical Society (TGCHS), Kris envisioned the Exchange as a means to generate income for the Society. She also wanted to create awareness of the Society and its mission to serve the Garden City community. She brought her business expertise, knowledge, and commitment to this task.

Those who frequented the Shop in the early years may recall the large rectangular desk in the center of the shop. It was the focal point where consignors would bring their items for assessment, pricing and entry into a ledger. Kris and Jill Mayer managed the Shop, consigning and selling a variety of items, including antiques, china, crystal, furniture, jewelry, mirrors, lamps silver and artwork/prints.  Before I worked at the Shop, I was a customer and remember well that table, which now serves as our desk. Continuing in the example set by Kris, we have tried to grow our business to make the Shop not just a place of consignment, but a gift-giving destination. To that end, we now sell new gift items, purchased through the NY Gift Show.

Once again, the Women’s Auxiliary of the American Legion will be participating in our A.T. Stewart Market on Saturday, June 15, from 11:00 a.m. –4:00 p.m. on the front lawn of The Garden City Historical Society (TGCHS) Museum. They will be encouraging people to become members and handing out poppies. The perennial favorite — The Town of Hempstead Animal Shelter — is com -

ing with its adoption vehicle! Donate your used (but clean) towels, sheets, and blankets to the shelter so they can keep the animals warm. Other vendors include:

• Hawkgirl Photography –Kelli, the photographer, has been passionate about landscape and nature photography since her dad gave her a Nikon camera more than 35 years ago.

• Pat Schweitzer and her decorative painted small pieces of furniture, hats, towels and canvases

• Christine’s Garden Ornaments – Hand-crafted ornaments made from vintage crystal and china

• Lexi Costello , découpage clam shells

• Diamond Jewelers – Diane Whalen has wonderful sterling and gold pieces

• Banana Bread Baking Co –Lenore Rust makes cuties which you really must try!

• Carol Khairallah of The Local Batch – Locally milled and organic chocolate cookies.

• Rob DeMarco’s Wood Gifts –Hand-carved pens, cutting boards and charcuterie boards.

• The Andy Foundation will have jewelry.

• Eva Vitale will be selling her canvases to support cancer research at Memorial Sloan Kettering.

• Margaret O’Rourke –makes jewelry in sterling and has matted photographs (taken by her).

• Several vendors with vintage items (furniture, tabletop, jewelry) .

• Vendor who makes American Girl doll clothes.

Our latest addition is face painting!!  The Garden City High School year will have several art students!  What fun! So bring your kids! (or, like me, channel your inner kid)

“Cornelia’s Courtyard Sale” will be going on in the courtyard, where you’re sure to find some excellent bargains – cut glass, china, furniture, jewelry, etc.

Once again, we are coupling the Market with a Food Drive to benefit The INN, now thru June 14. Please bring in non-perishable food items to help your needy neighbors. With food prices still very high, places like The INN play a vital role in less fortunate communities. Even your smallest gesture can help to put a meal on the table.

About Us:

• The Exchange Consignment Shop is housed in The Garden City Historical Society (TGCHS) Museum on 109 Eleventh Street (at the rear of the yellow Victorian house).

• All the proceeds from the

Shop sales directly benefit TGCHS.

• Shop 24/7 online at atstewartexchange.org and pick up your purchases at the Exchange.

• Follow and Like Us on the AT Stewart Exchange Facebook and on the AT Stewart Exchange Instagram pages. We sure do get around!

Consigning:

• Our best sellers – jewelry (costume and fine), lamps, mirrors, and crystal (Waterford, Baccarat, Tiffany)

• We take/accept silver, pocketbooks, fine china, furniture, artwork, and collectibles. All items are in new or nearly new condition.

• Consignments are done Wednesday through Friday 11:00 a.m. –2:00 p.m. by appointment ONLY. Appointments keep down the numbers of people in the Shop and reduce wait-times to consign.

• Please call (516)746-8900 to set up an appointment.

• Unsure if your items are appropriate to consign? Email photos to store@atstewartexchange.org and

be sure to include sizing info. You will generally receive a response the same day.

Can I Donate?

Yes! We love donations! Please don’t leave donated items outside the shop when we are closed. We want your items, but we don’t want them to get ruined, especially during inclement weather. Email us at store@atstewartexchange.org and I will work with you to arrange a dropoff time. I check the email every day, even when we’re closed.

Remember:  all the profits from the Consignment Shop support the maintenance and upkeep of TGCHS Museum. Thanks to your generous support, work on the outside façade of the Museum is almost complete. The shop is located at 109 Eleventh Street.

Shop Hours: Mon – Fri: 10–4 p.m., (Wednesday until 6 p.m.) Saturday 12 noon–4 p.m. For more information, please call (516) 746-8900.

22 F riday, May 24, 2024 The Garden City News
The A.T. Stewart Exchange Consignment and Gift Shop features this lovely inlaid table.

Event at GC Hotel to help children housed at Belmont

It will be a great day at the Garden City Hotel on Thursday June 6th, as hundreds of people will come together to support the Belmont Childcare Organization. The event, entitled the ‘Spring Fling Hat Luncheon,’ will hold a luncheon, boutique, silent auction and luxury raffle to help raise funds for the education of children of the workers at Belmont Park.

Joanne Adams, Executive Director of the Belmont Childcare Association (BCCA) nonprofit organization, said the event will help benefit the early childhood education program for the young children of the horse and stable-workers at Belmont.

“Our main mission is to provide a safe, supportive and academically inspiring environment for the children of parents working in the thoroughbred racing backstretch area located at the historic Belmont Park, Aqueduct Racetrack and Saratoga Park in upstate New York,” said Adams. “Our philosophy is based on the First Five Years initiative, an early childhood education program that incorporates STEAM based curriculum to prepare the children for elementary school and beyond.”

She said the program is integrated for children from infancy to five-years old and incorporates the main subjects as well as art, music and dance classes into the curriculum.

“Our program offers free after school lessons and tutoring to help children graduate and make their way into the

public school system,” said Adams. “We provide a path for these children to a better future and continue to track them through their scholastic and college years.”

Susan Lucci

The BCCA hires out an external education company, Bright Horizons, to provide an early childhood educational and development program. Many of the families involved in the program receive subsidies from the Department of Social Services (DSS) due to their low income.

Community Honoree

Emmy Award-Winning Actress

All of the programs take place in the AnnaHouse

Adams gave the example of two students who have excelled in the program thus far.

“We have student who is attending Northeastern University and another student who is currently attending SUNY Purchase and majoring in communications,” said Adams.

The ‘Spring Fling Hat Luncheon’ will take place at 11:30am in the Hotel ballroom area.

The event will be emceed by celebrity guest, Antoinette Biordi, a News 12 anchorwoman.

There will be two main honorees at the event. They include Emmy award winning actress, Susan Lucci, (Community Honoree) and Cate Masterson (Thoroughbred Industry Honoree,) who is the Director of the National Museum of Racing and Hall of Fame.

To find out more information go to the website, belmontchildcare.org

Community

Sanitation collections -

Memorial Day week

Residents are reminded that there will be no garbage pickup on Monday, May 27, 2024.

The holiday week collection schedule will be as follows: Western half of the village (west of Rockaway Avenue): Garbage - Tuesday and Friday; Rubbish - Thursday, May 30. Eastern half of the village (east of Rockaway Avenue): Garbage - Wednesday and Saturday; Rubbish - Thursday, May 30.

Residents scheduled for recycling on Monday, May 27, are asked to put their recyclables out on Monday, June 3.

Spring Fling Recognizing

HONORING

Spring Fling

Recognizing

June 6, 2024

Cluttered?

Place an ad in our Classifieds for reasonable rates and prompt results. Call our main office today 294-8900 for more information.

23 Friday, May 24, 2024 The Garden City News
Susan Lucci
Cate Thoroughbred Director, National 2024 Spring Fling to benefit 10th Anniversary Hats Off to the 10th Anniversary of Spring Fling! Hats Off to the 10th Anniversary of Spring Fling!
Garden City Hotel Hats Off to the 10th Annual Spring Fling! Spring Fling Recognizing
Lucci
Honoree Winning Actress 2024 Spring Fling to benefit BELMONT CHILD CARE ASSOCIATION, INC. 10th Anniversary Hats Off to the 10th Anniversary of Spring Fling! Hats Off to the 10th Anniversary of Spring The Garden City Hotel June 6, 2024 Hats Off to the 10th Annual Spring Fling! Spring
Recognizing Susan Lucci Community Honoree Winning Actress Cate
Thoroughbred Industry Honoree Director, National Museum of Racing & Hall of Fame 2024 Spring Fling to benefit BELMONT CHILD CARE ASSOCIATION, INC. th10 Anniversary Hats Off to the th10 Anniversary of Spring Fling! Hats Off to the th10 Anniversary of Spring Fling! The
2024 Hats Off to the th10 Annual Spring Fling! Recognizing
Honoree Emmy Award-Winning Actress
The
Susan
Community
Fling
Masterson
Garden City Hotel June 6,
Cate Masterson Thoroughbred Director, National Museum Spring Fling to benefit BELMONT CHILD CARE ASSOCIATION, INC. 10th Anniversary Hats Off to the 10th Anniversary of Spring Fling! Hats Off to the 10th Anniversary of Spring Fling!
Hats Off to the 10th Annual Spring Fling! Belmont Child Care Association, Inc.
The Garden City Hotel June 6, 2024
the QR code to visit the Spring Fling website for info on the event, to
tickets or buy a sponsorship.
Presents Scan
purchase
Susan
Emmy Award-Winning Actress Thoroughbred
2024
Fling BELMONT CHILD CARE ASSOCIATION, INC. 10 Anniversary Anniversary of Spring AnniversaryFling!of Spring Fling!
Garden City Hotel
6, 2024 Annual Spring Fling! COMMUNITY HONOREE EMMY AWARD-WINNING ACTRESS
Susan Lucci
Honoree Emmy Award-Winning Actress Cate Masterson Thoroughbred Industry Honoree Director, National Museum of Racing & Hall of Fame 2024 Spring Fling to benefit BELMONT CHILD CARE ASSOCIATION, INC. Hats Off to the 10th Anniversary of Spring Fling! Hats Off to the 10th Anniversary of Spring Fling!
Garden City
Lucci Community Honoree
Director,
Spring
The
June
Spring Fling Recognizing
Community
The
Hotel
Hats Off to the 10
Recognizing
June 6, 2024
Spring Fling
Susan Lucci
Emmy Award-Winning Actress Cate Masterson Thoroughbred Industry Honoree Director, National Museum of Racing & Hall of Fame 2024 Spring Fling BELMONT CHILD CARE ASSOCIATION, INC. Hats Off to the 10 Hats Off to the 10th Anniversary of Spring Fling! The
Community Honoree
Garden City Hotel
Hats Off to the 10 DIRECTOR, NATIONAL MUSEUM OF RACING & HALL OF FAME THOROUGHBRED INDUSTRY HONOREE Spring Fling Recognizing
Emmy Award
Winning Actress Director, 2024 Spring Fling to benefit BELMONT CHILD CARE ASSOCIATION, INC. 10th Anniversary Hats Off to the 10 Anniversary of Spring Fling! Hats Off to the 10th Anniversary of Spring Fling! The Garden City Hotel June 6, 2024 Hats Off to the 10th Annual Spring Fling!
Susan Lucci Community Honoree
-

Old World Quality Corp.

Old World Quality Corp. www.oldworldqualitycorp.com

Old World Quality Corp. www.oldworldqualitycorp.com

Vinny Muldoon - Owner and Garden City Resident

mcarterflanagan@gardencityny.net

Renovations, Roofing, Painting, Kitchens, Plumbing, Heating Conditioning, Custom Spaces, much project too OWQC!

Vinny Muldoon - Owner and Garden City Resident

Vinny Muldoon - Owner and Garden City Resident

Custom Homes, Renovations, Extensions, Roofing, Painting, Bathrooms, Kitchens, Mudrooms, Plumbing, Heating and Air Conditioning, Custom Mill Work, Exterior Spaces, Masonry Work, and much more. There is no project too big or too small for OWQC!

Custom Homes, Renovations, Extensions, Roofing, Painting, Bathrooms, Kitchens, Mudrooms, Plumbing, Heating and Air Conditioning, Custom Mill Work, Exterior Spaces, Masonry Work, and much more. There is no project too big or too small for OWQC!

Instagram and Facebook: @Oldworldqualitycorp

Office: (516) 741-8226

Office: (516) 741-8226

136 Cherry Valley Ave, West Hempstead 11550

(516) 741-8226

136 Cherry Valley Ave, West Hempstead 11550

136 Cherry Valley Ave, West Hempstead 11550

Vinny Muldoon - Owner and Garden City Resident

We are a full service General Contractor providing everything from small repairs through full house builds, with meticulous attention to detail no matter what size your project is.

We are a full service General Contractor providing everything from small repairs through full house builds, with meticulous attention to detail no matter what size your project is.

As summer begins, I look forward to seeing many of you at the Memorial Day Parade and ceremony on Monday where we come together to honor those who have given their lives serving our country.

Thank you to all the residents who attended the Brandstetter Carroll Kick Off Meeting last week, and have been following the progress in the newspaper and online.

I am committed to supporting the efforts of Brandstetter Carroll, the firm hired with a unanimous vote of the Board of Trustees, as they develop a recreation master plan that includes St Paul’s. I support the gathering of comprehensive data that is representative of all residents. This will allow the Village, along with Brandstetter Carroll, to leverage data on the needs, wants and desires specific to the St. Paul’s Main Building to develop a master plan that includes preserving part or all of the St. Paul’s Main Building. I am committed to being transparent in sharing all information gathered from Brandstetter Carroll regarding St. Paul’s, and I am excited to work with the entire Board on this important undertaking that has never been done before.

2023 Drinking Water Quality Report

Veterans Memorial, where a ceremony will take place at 11:00 a.m.

Poppies

Ladies of Unit 265 and Veterans of Post 265 have been distributing poppies throughout the month of May. The poppy is the flower of remembrance in tribute to the heroes of the armed forces who died in the service of our country. May 24th is annual poppy day. All donations are allocated for needy veterans and their families.

Much of the service is conducted through the VA hospital facility in Northport. Donations may be sent toALA Unit 265 at PO Box 8, Garden City, NY, 11530. Veterans interested in joining Post 265 may contact Jim Michalak, Post Membership Chairman at (646) 438-0139. Ladies interested in joining the Auxiliary may call Donna Armieri, Auxiliary Vice President at (516) 314-4552.

Veterans Flags on 7th Street

Custom Homes, Renovations, Extensions, Roofing, Painting, Bathrooms, Kitchens, Mudrooms, Plumbing, Heating and Air Conditioning, Custom Mill Work, Exterior Spaces, Masonry Work, and much more. There is no project too big or too small for OWQC!

We are a full service General Contractor providing everything from small repairs through full house builds, with meticulous attention to detail no matter what size your project is.

Instagram and Facebook: @Oldworldqualitycorp

Instagram and Facebook: @Oldworldqualitycorp

Office: (516) 741-8226

Email: Jenn@oldworldqualitycorp.com

Email: Jenn@oldworldqualitycorp.com

136 Cherry Valley Ave, West Hempstead 11550

We are a full service General Contractor providing everything from small repairs through full house builds, with meticulous attention to detail no matter what size your project is.

The Village of Garden City is pleased to present to you the 2023 Water Quality Report. The report is required to be delivered to all residents of our Village in compliance with Federal and State regulations and is designed to inform you about the quality water and services we deliver to you on a daily basis. It is important to the Village that our residents are familiar with the efforts that are taken to protect our water resources and to continually improve the water treatment process. Our goal is to deliver the highest quality water to your home.

Memorial Day 2024

Instagram and Facebook: @Oldworldqualitycorp

Email: Jenn@oldworldqualitycorp.com

William Bradford Turner Post, No. 265 will conduct its Memorial Day Parade on Monday, May 27, 2024, beginning with a 9:00 a.m. Memorial Service at the Cathedral of the Incarnation, followed by 10:00 a.m. parade assembly at the parking lot on the east corner of 10th Street and Franklin Avenue, where the parade steps off. The parade route is as follows: southbound Franklin Avenue, westbound 7th Street to the

On behalf of the Village, I’d like to personally thank Garden City High School junior Kiera O’Leary for her Girl Scout Gold Award project. The flags on 7th Street are a beautiful way to honor our local veterans. If you haven’t seen them yet, they were installed on light poles between Hilton Avenue and Cathedral Avenue and will hang now through Veterans Day. Flag & Son, Inc. did the installation. The flags include a photo of local veterans and their dates of service. Kiera, who will be walking with the American Legion in Monday’s Memorial Day parade, has also started a Veterans Club at the school where local veterans are invited to basketball games to be recognized during halftime with a bouquet of flowers, thanking them for their service.

Sanitation Collection: Memorial Day 2024

Residents are reminded that there will be no garbage or recycling pickup on Monday, May 27, 2024. The Holiday Week Collection Schedule will be as follows:

Garbage

Western Half of Village: Tuesday and Friday

Eastern Half of Village: Wednesday and Saturday

Rubbish

Entire Village: Thursday, May 30th

See page 45

24 Friday, May 24, 2024 The Garden City News General small house Resident World Quality Corp. www.oldworldqualitycorp.com We are a full service General Contractor providing everything from small repairs through full house Owner and Garden City Resident Renovations, Painting, Heating Old World Quality Corp. www.oldworldqualitycorp.com 136 Cherry Valley Ave, West Hempstead 11550 Office: (516) 741-8226 We are a full service General Contractor providing everything from small repairs through full house builds, with meticulous attention to detail no matter what size your project is. Vinny Muldoon - Owner and Garden City Resident Email: Jenn@oldworldqualitycorp.com Instagram and Facebook: @Oldworldqualitycorp Custom Homes, Renovations, Extensions, Roofing, Painting, Bathrooms, Kitchens, Mudrooms, Plumbing, Heating and Air Conditioning, Custom Mill Work, Exterior Spaces, Masonry Work, and much more. There is no project too big or too small for OWQC! World Quality Corp. www.oldworldqualitycorp.com Valley Ave, Hempstead 11550 741-8226 We are a full service General Contractor providing everything from small repairs through full house builds, with meticulous attention to detail no matter what size your project is. Muldoon - Owner and Garden City Resident Email: Jenn@oldworldqualitycorp.com
Old World Quality Corp. www.oldworldqualitycorp.com
Old World Quality
www.oldworldqualitycorp.com
Corp.
Office:
Custom Homes, Renovations, Extensions, Roofing, Painting, Bathrooms, Kitchens,
Air Conditioning, Custom Mill Work,
Spaces,
Work,
more. There is no project too big or too small for
World Quality Corp. www.oldworldqualitycorp.com
Email: Jenn@oldworldqualitycorp.com Instagram and Facebook: @Oldworldqualitycorp
Mudrooms, Plumbing, Heating and
Exterior
Masonry
and much
OWQC!
City Resident Established
1994
Providing Expert Craftsmen, Highest Product Quality,
Lifetime of Service
are a full service general contractor providing everything from small repairs to full house builds, with meticulous attention to detail no matter what size your project is. WE OFFER: Custom Homes • Renovations • Extensions Roofing • Painting • Bathrooms • Kitchens • Masonry Mudrooms • Plumbing • Heating Air Conditioning Custom Mill Work • Exterior Spaces • MUCH MORE! There is no project too big or too small for OWQC! Office: (516) 741-8226 136 Cherry Valley Ave.,West Hempstead, NY 11550 www.oldworldqualitycorp.com Email: Jenn@oldworldqualitycorp.com Instagram/Facebook: @Oldworldqualitycorp THE MAYOR’S UPDATE
Vinny Muldoon – Owner and Garden
in
and
We
Mayor Mary Carter Flanagan

Business fraud

On May 15th a business reported that a company paid them with three fraudulent checks totaling $24,000 for services provided. Another business states that the same company paid them a fraudulent $9,000 check for services provided.

Overheated HVAC

On May 15th Garden City Police and Firefighters responded to a residence for a possible fire. Firefighters found a heavy smoke condition caused by an overheated HVAC system. They disconnected the system and vented the residence.

Hit and run

A vehicle reportedly left the scene after crashing into another vehicle on Stewart Avenue on May 15th.

Alarm errors

Garden City Police and Firefighters responded to two fire alarms set in error on May 15th.

Drivers charged

A Clinton Road motorist was charged with driving with a suspended license and excessive speed on May 15th. Another Clinton Road motorist was charged with excessive speed and unregistered vehicle.

Overweight truck

On May 15th a Cathedral Avenue motorist was charged with driving a truck that was 28,000 pounds overweight.

Unlicensed operation

A Rockaway Avenue motorist was charged with unlicensed operation and excessive speed.

Arrest for identity theft

On May 15th a victim’s credit card information was used online without authorization to purchase two items. The items were shipped to the victim’s residence and picked up by a female subject who fled the scene. On May 16th Garden City Detectives arrested the same subject, a 20-year-old female, for allegedly attempting to pick up another package bought with the victim’s stolen credit card information. She was charged with Grand Larceny, Identity Theft, and Attempted Petit Larceny.

Stolen vehicle found

An GCPD officers patrolling Hilton Avenue on May 16th discovered a recently reported stolen vehicle from Hempstead.

False alarm

GCFD and GCPD responded to a residential fire alarm on May 16th and determined the cause to be a faulty

detector.

Tree troubles

On May 16th a Garden City Police officer discovered a tree branch block ing 5th Street and noti fied the Parks Department for removal. An officer also respond ed to the Nassau Boulevard RR Station’s vicinity, removed a tree limb from near the tracks, and notified the Parks Department of a low-hanging tree limb in the same vicinity.

Set in error

GCFD and GCPD responded to Adelphi University for a fire alarm on May 16th and determined it was set in error.

Smoke, no fire

Upon investigation of reports of excess smoke in the village on May 16th, it was determined that it resulted from a fire in Mineola.

Arrest in car theft

A 35-year-old man was arrested on May 17th in New Hyde Park after allegedly stealing a vehicle from a New Hyde Park Road Service Station. He was charged with Grand Larceny.

Suspended registration

An Old Country Road motorist was charged with driving with a suspended registration and an unregistered vehicle on May 17th.

Tree down

Garden City Police responded to Whitehall Boulevard on May 17th for a fallen tree limb and safeguarded the roadway.

Excessive speed

A Clinton Road motorist was charged with unlicensed operation, excessive speed, and unregistered auto on May 17th.

Two more false alarms

On May 17th the GCFD and GCPD responded to two locations for fire alarms that were determined to be false alarms.

Unlicensed operation

A Franklin Avenue motorist was charged with unlicensed operation, unregistered vehicle, and altered license plates on May 17th.

Damaged vehicle

Garden City Police received a report that a male subject damaged a vehicle parked on Meadow Street on May 1st.

Driving while impaired

On May 18th Garden City Police arrested a 28-year-old male for allegedly driving while impaired by alcohol, excessive speed, and driving a commercial truck on Clinton Road during prohibited hours.

Demonstration

Garden City Police were assigned to traffic and safety details for a demonstration held on Franklin Avenue on May 18th.

Credit cards stolen

Credit cards were reported stolen from a Franklin Avenue gym locker on May 18th and subsequently used to make unauthorized purchases.

Sticker patrol

Officers removed unauthorized stickers from multiple traffic light boxes on May 18th.

A

trifecta

On May 18th a 11th Street motorist was charged with unregistered vehi-

cle, uninsured vehicle, and improper license plates.

System malfunction

GCFD and GCPD responded to two locations with fire alarms set in error and another with a fire alarm activated due to a system malfunction on May 18th.

DWI arrest

As a result of a traffic stop investigation on Clinton Road, Officers arrested a 43-year-old motorist for DWI, excessive speed, and tinted windows on May 18th.

Possible larceny

On May 19th Garden City Police investigated a report of a possible larceny of property from a residence over a three-month period.

Multiple violations

A Clinton Road motorist was charged with multiple violations, including speeding, unsafe lane use, and uninsured vehicle on May 19th.

Shower alarm

GCFD and GCPD responded to a residence for a fire alarm on May 19th, but determined it was activated by

See page 45

25 Friday, May 24, 2024 The Garden City News FOR ALL YOUR SECURITY NEEDS FOR ALL YOUR SECURITY NEEDS CALL 516-486-5484 CALL 516-486-5484 SERVING GARDEN CITY FOR 40 YEARS Magnum Security Systems, Inc State-of-the-art security solutions tailored to your needs 24/7 monitoring for constant vigilance Customized security plans to fit your budget Easy integration and remote control accessibility Free consultation for personalized recommendations FOR ALL YOUR SECURITY NEEDS FOR ALL YOUR SECURITY NEEDS CALL 516-486-5484 CALL 516-486-5484 SERVING GARDEN CITY FOR 40 YEARS Magnum Security Systems, Inc State-of-the-art security solutions tailored to your needs 24/7 monitoring for constant vigilance Customized security plans to fit your budget Easy integration and remote control accessibility Free consultation for personalized recommendations FOR ALL YOUR SECURITY NEEDS FOR ALL YOUR SECURITY NEEDS CALL 516-486-5484 CALL 516-486-5484 SERVING GARDEN CITY FOR 40 YEARS Magnum Security Systems, Inc agnum Sys e s, State-of-the-art security solutions tailored to your needs 24/7 monitoring for constant vigilance Customized security plans to fit your budget Easy integration and remote control accessibility Free consultation for personalized recommendations ALL YOUR SECURITY NEEDS ALL YOUR SECURITY NEEDS CALL 516-486-5484 CALL 516-486-5484 SERVING GARDEN CITY FOR 40 YEARS mu ytiruceS ,smetsyS cnI tr ytiruces der ot ruoy gn rof tnatsnoc ytiruc snalp ot t no dna etomer ytilibi noi rof snoi FOR ALL YOUR SECURITY NEEDS FOR ALL YOUR SECURITY NEEDS CALL 516-486-5484 CALL 516-486-5484 SERVING GARDEN CITY FOR 40 YEARS Magnum Security Systems, Inc State-of-the-art security solutions tailored to your needs 24/7 monitoring for constant vigilance Customized security plans to fit your budget Easy integration and remote control accessibility Free consultation for personalized recommendations FOR ALL YOUR SECURITY NEEDS FOR ALL YOUR SECURITY NEEDS CALL 516-486-5484 CALL 516-486-5484 SERVING GARDEN CITY FOR 40 YEARS Magnum Security Systems, Inc State-of-the-art security solutions tailored to your needs 24/7 monitoring for constant vigilance Customized security plans to fit your budget Easy integration and remote control accessibility Free consultation for personalized recommendations FOR ALL YOUR SECURITY NEEDS FOR ALL YOUR SECURITY NEEDS CALL 516-486-5484 CALL 516-486-5484 SERVING GARDEN CITY FOR 40 YEARS Magnum Security Systems, Inc State-of-the-art security solutions tailored to your needs 24/7 monitoring for constant vigilance Customized security plans to fit your budget Easy integration and remote control accessibility Free consultation for personalized recommendations FOR ALL YOUR SECURITY NEEDS FOR ALL YOUR SECURITY NEEDS CALL 516-486-5484 CALL 516-486-5484 SERVING GARDEN CITY FOR 40 YEARS Magnum Security Systems, Inc State-of-the-art security solutions tailored to your needs 24/7 monitoring for constant vigilance Customized security plans to fit your budget Easy integration and remote control accessibility Free consultation for personalized recommendations FOR ALL YOUR SECURITY NEEDS FOR ALL YOUR SECURITY NEEDS CALL 516-486-5484 CALL 516-486-5484 SERVING GARDEN CITY FOR 40 YEARS Magnum Security Systems, Inc State-of-the-art security solutions tailored to your needs 24/7 monitoring for constant vigilance Customized security plans to fit your budget Easy integration and remote control accessibility Free consultation for personalized recommendations FOR ALL YOUR SECURITY NEEDS FOR ALL YOUR SECURITY NEEDS CALL 516-486-5484 CALL 516-486-5484 SERVING GARDEN CITY FOR 40 YEARS Magnum Security Systems, Inc State-of-the-art security solutions tailored to your needs 24/7 monitoring for constant vigilance Customized security plans to fit your budget Easy integration and remote control accessibility Free consultation for personalized recommendations
THE OFFICE CAT

Count the flowers in the Garden City Public Library

How many flowers are in the jar?

There are flowers in the library!  How many do you think are in the Guessing Game Jar? Stop by the library before May 31 and take a guess, prizes will be awarded. The Guessing Game Jar is on the Friends of the GCPL book sale shelves (behind the circulation desk).  You can write your guess on the form provided.

The number of flowers in the jar – and the winner — will be announced on Friday, May 31, in front of the Friends’ Book Sale shelves at 4 p.m.  We hope to see you there!

For information on the Friends of the Garden City Public Library, please see gardencitypl.org/ friends

GCHS senior named

US Presidential Scholar

Garden City High School senior Elaine Wang has been named a U.S. Presidential Scholar, one of the nation's highest honors for high school students. Elaine, one of only four Long Islanders selected, is the school’s salutatorian with a 102 GPA and plans to attend Cornell University’s College of Engineering.

Elaine expressed her excitement, saying, “It’s such a great honor to be a U.S. Presidential Scholar.” The U.S. Presidential Scholars Program, established in 1964, recognizes outstanding high school seniors for their academic, artistic and technical excellence, as well as community service and leadership.

Elaine’s recognition as a U.S. Presidential Scholar underscores her outstanding academic achievements and dedication. The announcement was made by Dr. Miguel Cardona, U.S. secretary of education, who noted, “The 161 high school seniors selected for the 60th anniversary of the U.S. Presidential Scholars represent the best of our nation’s schools and inspire hope in the bright future of this country.”

Elaine Wang

Additionally, Garden City High School congratulates Kathryn Sheil on being named a Distinguished Teacher as part of the U.S. Presidential Scholars program.

FOR SENIORS fyi

Garden City’s Senior Center is open. Please visit the Senior Center Monday through Friday, 9 a.m. to 4:30 p.m. for further information on activities and events!

Classic Broadway Show Music Thursday, May 30

On Thursday, May 30 from 2 p.m. to 4 p.m. at the Senior Center, disc jockey George Salem, will present recordings of some favorite songs from classical Broadway musicals. They will be mostly from the bygone days of the ‘50s, ‘60s, and ‘70s. Featured will be soundtracks of shows like “Oklahoma,” “The King and I,” “My Fair Lady” and “South Pacific.” All Garden City residents are invited.

Flag Day Luncheon

Friday, June 14

Celebrate Flag Day by wearing your favorite red, white and blue items, and enjoying a luncheon at the Senior Center on June 14 at 12 noon. Sandwiches, coleslaw, potato salad, soda, coffee, tea and dessert will be served. $15 per person. Please register at the Senior Center front desk, cash only, by June 7.

Chess 4 Community

New monthly program, Play and Learn, open to all levels and ages, beginner to more experienced players. Fridays, April 26, June 28, July 26 and August 30, from 3–4 p.m.

Monday Night Bridge Results

The winners of the Monday, May 20, games:

North/South:

1st Place: Athena Philippides and Carol Cook

2nd Place: Pat Fontaine and Ellen Moynahan

East/West:

1st Place (Tie): Joan Cowie and Grace Basile; and Tommie Dodge and Terry Schoenig

2nd Place: Joan Kiernan and Claire Burns

Happy Memorial Day -  No bridge Monday, May 27.

Photos from the Village Archives

A selection from the extensive Village Archives located in the Stewart Room at the Library. Others can be seen at www.NYHeritage.org - click on Organizations, G, and Garden City Public Library.

The firehouse located on Stewart Ave. at Edgemere Rd. soon after it was built in 1930. The three center doors were later modified to accommodate wider engines. A fire horn is located at the top of the hose drying tower.In the days before pagers and cell phones it was used to sound a numeric code to alert volunteer firemen to the location of an alarm in the Village. After some very snowy nights it was also used to sound five blasts at 7AM to alert children delighted that schools would be closed that day. Archiver identifier: psf04

26 F riday, May 24, 2024 The Garden City News

Garden City PTA News

Check Out What

Your PTA Has Been Up To

It’s been a busy year for the Garden City PTA, thanks to the support of all our members! Check out the highlights from all seven schools in our year-end wrap up video. Watch it on our website using the QR code.

Sun Safety Initiative Kicks Off Across Schools

As we enter the summer months, the PTA Health & Safety Committee has partnered with the Mollie Biggane Foundation to spread information and resources on the importance of sun safety in every school. Look out in the buildings for easy-tofollow tips as well as new sunscreen dispensers in the High School. And there’s more to come!

PTA Super Saturday: June 1

Did you order school supply kits or sportswear from the spring sales? Be sure to come to the GCMS Cafeteria on Saturday, June 1, from 9 a.m.–12 p.m. to pick up your orders.

Limited Spots Still Available for Annual K–5 Bike Rodeo

Register today for a bike safety event targeting students in Grades K-5 who already know how to ride a bicycle. The session is designed to teach children about NYS Bicycle Safety Laws, familiarize them with bicycle safety equipment, teach hand signals, bicycle maintenance, and how to safely share the road with cars and pedestrians. Participants must bring their own bicycle and helmet! Trained volunteers will conduct a helmet fitting to check that a properly sized and secured helmet is being used. The bicycle will be checked for both condition and child & bike fit. Riding drills will teach different skills and an obstacle course is typically the final aspect of the program. The link to sign up can be found on our PTA website at www. gardencitypta.org

Mark Your Calendars

Grab your calendar to mark down these important upcoming dates & deadlines from across the school district. You can keep an eye on the PTA website and the GCUFSD website “Events” page for even more detail on what’s happening across all seven schools.

• May 24 – School is IN SESSION (snow day replacement)

• May 27–28 – School is CLOSED (Memorial Day weekend)

• June 1 – School Supply & Sportswear Order Pickup, 9 a.m.–12 p.m.

Your Membership Matters!

Please take a minute today to visit www.gardencitypta.org to rejoin for the 2023–24 school year. While there, click the “Get Involved” tab to see the many volunteer opportunities with the PTA overall, and with your child’s specific schools. We can’t wait to work with you this year!

Let’s Connect @GardenCityPTA

Website: www.gardencitypta.org

To Get Real Time InformationTurn on Notifications

Facebook: Facebook.com/ GardenCityPTA

Instagram: Instagram.com/ GardenCityPTA

Twitter: Twitter.com/ GardenCityPTA

ESA plans mini golf outing

Enriching Special Adults, a Garden City nonprofit organization supporting special adults, is sponsoring a meetup at the Garden City Mini Golf Course, Wednesday, June 5, from 5:00-6:30 p.m. The group looks forward to seeing old friends and making new friends. ESA will provide admission and pizza.

Please respond to enrichingspecialadults@gmail.com as soon as possible to join this fun afternoon.  Spots are limited, so be sure to plan on joining us.

Also, please come with a responsible adult as there will not be any staff to supervise this activity.

27 F riday, May 24, 2024 The Garden City News

Rotarians Althea Robinson, Joanne Meyer-Jendras, Meg Norris and Tina O’Keef display Rotary banner.

Day of Service: Rotary Plants the Seeds

This past Saturday, May 18, MineolaGarden City Rotary joined 57 District Rotary Clubs participating in various service projects to commemorate Rotary’s annual Service Day.

Mineola-Garden City volunteers brought shovels and garden tools for the 3-hours weeding and planting of native plants and flowers to spruce up the Celebration Garden on the grounds behind the Ethical Humanist Society of

Long Island (EHSLI). The native plants were co-sponsored by the MineolaGarden City Club and the Long Island Volunteer center with plants secured from ReWild Long Island.

A non-profit organization based in Garden City at 38 Old Country Road, the Ethical Humanist Society brings together people from all races, creeds and backgrounds interested in doing their best to create a better world.  Its Celebration Garden will provide a peaceful atmosphere for EHSLI members, organizations housed there and visitors to EHSLI.

28 Friday, May 24, 2024 The Garden City News THI S WEEK AT ROTARY
Meg Norris, Mineola-Garden City Club president; volunteer Tom, Lorraine ZellerAgostino, EHSLI Garden chair and board member; Stacy Leon, Garden Committee and Rotarian Althea Robinson.
Celebration
Rotarian Joanne Meyer-Jendras, volunteer Vinny Drzewucki of the EHSLI Garden Committee and Garden Chair Lorraine Zeller-Agostino. Garden sign at Ethical Humanist Society of Long Island. Rotarians Ann Paulson (left) and Anita Frey (right) serve out snacks along with volunteer Vinny.
Friday, May 24, 2024 The Garden City News 29 S:8.83"
T:9.83"
S:10.3"
T:11.3"

These are the Beach Boys! From upper left clockwise: Mike Love, Brian Wilson, Carl Wilson, Dennis Wilson and Al Jardine, circa 1964. The Wilson brothers, their first cousin Mike Love and Brian’s high school classmate Al Jardine became the most successful American band in history. They sold millions of albums and singles and had 37 top 40 hits and were the only band to compete with the Beatles in the 1960s.

The Beach Boys are an American institution. Their music speaks a universal language of freedom, youth and good times. They have carried their uniquely American message to every corner of the world in sold out concerts for decades.

From their humble beginnings as teenagers in a garage in southern California in the early 1960s to world-wide fame, their songs about cars, the beach and girls have transcended generations.

So, join me next Saturday, June 1st at the Garden City Public Library - lower level from 2 to 4 p.m. for “The Story of the Beach Boys.” I will be giving a lecture and showing some rare concert and TV footage of their early performances. Mark your calendars, there is no charge and you do not have to be a Garden City resident to attend. Just bring your friends and enjoy an “endless summer” experience.

Golf outing to raise funds to fight poverty

Council 1869, a local charitable group, will be hosting a Golf Outing at the Cherry Valley Club on Monday, July 22. Funds raised will be used to provide opportunities to families living in poverty. Foursomes, sponsorship opportunities and dinner reception tickets are available online at https://www.council1869.org/ Sponsors include: AON, Hallen, Dr. Denise L. Emma, Baldor, and the I’m Not Done Yet Foundation.

Are you a professional?

Our Professional Guide is sure to bring results. Call 294-8900 for rates and information.

30 F riday, May 24, 2024 The Garden City News
history
PhotograPhy
The Kordes K orner

The 2024 Vice Presidential Candidates

For a number of reasons, the vice presidential nominees will likely play an outsized role in the 2024 presidential election.

There are several reasons for this heightened importance of the number two role. Assuming that the presidential nominees are in fact, former president Donald Trump for the Republicans and President Joe Biden for the Democrats, neither will be constitutionally eligible to succeed themselves in 2028. Accordingly, an incumbent vice president, as a recognized national figure, could well have a clear shot to becoming the front runner for his or her party’s nomination. And in addition, because Mr. Trump and Mr. Biden are elderly compared to previous nominees, there is (unfortunately) an unusually high possibility of the vice president assuming the presidency because of death or disability.

Barring a surprise development, the extremely likely Democratic vice presidential nominee is the incumbent, Kamala Harris. Ms. Harris has lackluster approval ratings and seems to have a lower profile than many recent vice presidents. Her appointment by Mr. Biden as “border czar” early in his presidency did not seem to result in an improvement in unchecked illegal immigration. On the other hand, she is well liked by many Democratic base voters and her removal from the ticket would seem highly problematic.

Obviously, however, since the Democratic slate seems pretty set, there is much more focus on the potential Republican vice presidential candidate.

Given the personality of the presumptive GOP nominee, you have to rule out a few otherwise plausible nominees. Mr. Trump absolutely will not accept, for example, Mike Pence, the man who served as Vice President during Mr. Trump’s Presidential term. Although Mr. Pence was generally regarded as a good choice in appealing to centrist elements of the party, Mr. Trump resents Mr. Pence’s (courageous) refusal to play an aggressive role in the January 6, 2021 count of presidential electors. Another unlikely, but actually strong, potential nominee, is Nikki Haley. Ms. Haley attract-

ed a significant amount of moderate support during the presidential primary season, but so far has declined to endorse Mr. Trump, and there seems to be a distinct lack of chemistry between the two. Mr. Trump announced last week that she was not under consideration.

I also do not believe that Mr. Trump, now a Florida resident, is likely to pick a running mate from Florida like Ron DeSantis or Mario Rubio. This would test the Constitutional prohibition against electors voting for presidential and vice presidential candidates of the same state. Yes, it might be possible for the vice presidential candidate to claim residency in another state, but this would add another complication to the race.

So who should Mr. Trump pick?  There are different ways of  thinking  about this selection.  He could select a strong MAGA ally like Sen. J.D. Vance of Ohio, or a wild card like Vivek Ramaswamy, but my guess is that he will make an effort to reach out to more traditional parts of the party.

If Mr. Trump desires a wellknown figure with a compelling personal story, Sen. Tim Scott of South Carolina is a strong choice. Mr. Scott overcame poverty and became the first African American senator elected from the South since Reconstruction.  Mr. Scott is a likeable figure with an upbeat message who could help the GOP broaden its demographic base.

If Mr. Trump is looking for executive experience, he might look to North Dakota governor Doug Burgum.  As a presidential candidate, Mr. Burgum looked quite plausible on the debate stage.  In some ways he would appeal to similar constituencies as Mike Pence.

Finally, if the desire is a nominee with a strong foreign policy background, Mike Pompeo, a West Point graduate, former secretary of state and head of the Central Intelligence Agency, would be a strong choice.  He would also be a talented debater against Ms. Harris.

In any event the vice presidency will be quite important, not only for the candidates but for the country.

31 F riday, May 24, 2024 The Garden City News THE VIEW FROM HERE
Advertise in our papers! If you own a business or have a service to provide, we’ll create professional advertisements to promote it and help you be seen by thousands of local readers! Call 1-516-294-8900 to inquire!
1257386

The

Friday, May 24, 2024

From page 2

port within the community for a project to come about, recognizing the 61% overwhelming majority that voted last October”. Firstly, that vote drew a total of 4,339 residents out of an entire voter community of approximately 16,800 (or 25.8%). Further, those voting for Proposal 1 numbered 2,635 or 61% of those voting but that was only 15.7% of the entire voting population. These numbers in a business environment would not be considered statistically insignificant. Not exactly warranting the “mandate” attribute being applied except perhaps in political debates! In fact, there is no mandate label that could reasonably be applied to these numbers.

So again, a lot of public funds will be expended pursuing this total re-build objective under the banner of the “overwhelming mandate” effort. These are powerful attributes that have yet to be demonstrated. But in the end, the voters who did not show up for the October Opinion vote will eventually show up when the cost of this mandate is revealed in the bond issue. Now that vote might just be the overwhelming welcome to reality.

Request for apology

The following letter was addressed to the Garden City Board of Trustees and is shared with our readers at the request of the author:

To the Garden City Board of Trustees:

This letter is written to demand a formal apology for and retraction of an online GCN statement made by Trustee “Vinnie” Muldoon.  Specifically, Trustee Muldoon called me a liar in commenting  online to on my recent letter in the GCN. (See pg. 26). While everyone, certainly including a Trustee, is entitled to  vigorously hold an opinion, a personally denigrating slur is beyond the pale.

In addition Trustee Muldoon labeled me  “keyboard warrior”  insinuating I was too cowardly to appear at a Board meeting. Mr. Muldoon’s blanket statement I am a liar is an irresponsible. If he made such a statement within the scope of his duties as a Trustee the Board also bears responsibility for his remarks. Perhaps Mr. Muldoon is unfamiliar with the customs of the Board of Trustees about refraining from directing derogatory ad hominem remarks to residents (I have resided in GC since 2/4/77).

I do know Mr. Muldoon appreciates the gravity of his remarks because in the GCN Feb. 9 issue, a piece entitled “Vinny Muldoon: The Ultimate American Dream” appeared p. 3 & 49. On page 49 Mr. Muldoon as candidate, wrote in the third column:  “I will listen and work with everyone to successfully run the Village regardless of our dif-

LETTERS TO THE EDITOR

ferent viewpoints and personalities.” and “There will be no negative personal attacks.”

It appears now Trustee Mr. Muldoon has not only forgotten his campaign promises but thinks it is fine to attack a resident. I regret it is unlikely I will be able to attend the 5/23 Board meet to discuss this matter because, only 57 hours earlier, I have a mandatory invasive test scheduled at NYU Langone.  So this letter may have to suffice.

I also want to address Trustee Muldoon’s implied insinuation that I am a “keyboard” coward. How many board meetings did Trustee Muldoon attend before April 2024? Physical fitness is not a necessary qualifier  to be heard whether one is a senior or not. I frequently attended Board of Trustee meetings until last Nov. when on Nov. 13, I underwent surgery for cancer. After recuperation I commenced a 4 cycle course of chemotherapy shortened by a Mar. 20, 3:00 AM ambulance ride and necessitating additional urgent repair surgery  back at NYU Langone. (Pardon the details- when you get called a liar, it is upsetting).

During this interval and since, needless to say, my activities have been limited and attendance at a crowded Board room for several hours is ill advised. Previous breaks in treatment did allow me to attend the WPOA meeting last February,  one Advisory Committee meeting 3/16/24 and the Brandsetter events (a short “come and go” Kickoff and an only seven person 50 min. meet with Brandsetter.)

A senior keyboarder can be a productive; it was the aforesaid ambulance ride that led this “keyboard warrior” to email Trustee Finneran about certain issues. To illustrate :

1. Poor road conditions on Edgemere Rd. caused my ambulance rerouting to NYU Mineola.

2. Ambulance personnel complaining that many houses without street number signs making it more difficult to promptly locate and assist the  home of person in need. In addition the female EMTs feared that when searching for the street number their safety could be at risk from a neighbor suspecting an intruder.

3. Illumination of speed bumps to alert ambulance drivers of them. Provide ambulance personnel with maps of streets depicting location of speed bumps. Contrary to Mr. Muldoon, Trustee E. T. Finneran, clearly comfortable with various modalities of communication, rapidly responded to my email and brought Dpt. of Public Works, Dpt. of Buildings and GCPD  into the email mix.  Related to his email suggestion,  I suggested to Mr. Borroni and the other email mail recipients luminescent paint be considered as a practical solution. (Note: I did not make Trustee Finneran

or others aware of my diagnosis or treatment because it was not relevant to my suggestions).

I have engaged with both Trustees and Village Dept. heads in the past via email;  safer signage and road marking at one way exit ramp from pool; lack of sidewalks at various locations:  re vigilance of employees to check matching the person against card picture at pool; No. 2 firehouse issues: condition of refuse receptacles at NHP LIRR pick up circle at Greenwich Ave. ; dialogue with entire Board by email re: ice cream trucks at parks this summer: Promenade safety concerns for seniors.

Never was I attacked during a personal appearance before the Board or otherwise by a Trustee , never was the credibility of my emails questioned by Trustees or Department heads.

These are not lies. I would allow Village Attorney Fishberg to review my My Chart to verify my diagnosis and course of treatment and emails re aforementioned Village topics if requested by the Board. Trustee Finneran can confirm my emails about my above expressed recent Village concerns. I welcome any update on topics 1, 2 & 3 above.

G. Gorray

Thanks for support

To the Editor:

I am profoundly honored and deeply grateful for the trust you have placed in me by electing me as a trustee on the Garden City Board of Education. This opportunity to serve our community and contribute to the success and well-being of our students is a privilege I hold in the highest regard.

This is only the beginning of a conversation and, most importantly, a partnership—not only between myself and the community, but in collaboration with the other members of the Board of Education. I look forward to hearing your thoughts, ideas, and concerns as we work together to enhance our educational programs and address the challenges ahead. It is through our collective efforts that we can make a meaningful and lasting impact on the future of our students and our community.

Thank you once again for your faith in my leadership. Let’s embark on this journey together with optimism, dedication, and a shared commitment to excellence in education.

Kristen Pappas

Leave building as is

To the Editor:

Last week’s edition of The GC News headlined “Asking for Input re: St. Paul’s.”

Here is my input. Leave the building as it is and continue lighting it at night. It’s a majestic and unique structure and sight. Make sure, for reasons of safety,

no one can enter the building. Cease and desist all the ludicrous studies that have assiduously resulted in nothing; then slowly start to refund the town’s taxpayers some of the millions of dollars they have unwittingly paid toward the risible nonsense the town’s government continues to pursue toward this pleasant link to the past. And btw, just who has profited from study after study? Certainly not the town folk!

Anthony Parks

Thank you

To the Editor:

The Mollie Biggane Melanoma Foundation would like to thank the Garden City High School Class of ‘73 for their $1,203.62 donation.

We sincerely appreciate the generosity of all the classmates. Special thanks to Larry Nedelka and Mary Frost Mahoney for coordinating this gift. Jack Biggane ‘64

China an integral part of USA

To the Editor:

China, our archenemy and greatest trading partner simultaneously, is confronting us left and right.  There is hardly anything they don’t have their hands in.  Just look at how viciously they attack the USA from all kinds of corners.

----They are indoctrinating our kids via TikTok, brainwashing our students and creating turmoil at our colleges and universities, killing our youth with fentanyl being sneaked in via Mexico into our land, buying  farmland next to military installations (384,000 acres), surveilling our infrastructure via spy balloons, stealing patents and know-how, sending thousands of military-aged men through our Southern Border with specific jobs assigned to execute (24,214 apprehended in 2024 alone), and even infiltrating our automobile, solar panel and pharmaceutical industries and financial systems, just to mention a few sections of our country’s fabric.

And now, seeing what’s going on, you would expect that our top politicians and business leaders would stand up to counterattack their behavior.  Unfortunately, just the opposite is the case. Quite a few members of our higher echelons are doing  business with China privately and enriching themselves. They abstain from fixing the situation and they look the other way.

Names pop up, like Biden, Blinken, Kerry, Pelosi, McConnell, Schiff, Newsom, Zuckerberg, Bezos, Gates, and Spielberg, just to mention a few.

It would almost take a miracle to change the course of our country regarding China.  Is anybody out there ready to shift the helm?

Heinz Mayer

32
Garden City News
Email: Editor@GCNews.com

High Performing in Ten Areas of Care

mountsinai.org/southnassau

Friday, May 24, 2024 The Garden City News 33 The Best on Nassau County’s South Shore. Three Years in a Row.

The

Friday, May 24,

Recreation Commission to diversify membership

From page 1

lage is located.” This allows the Garden City Rec. Commission chairperson to reside in Nassau County, or in Queens or Suffolk Counties.

Board & commission appointments

Following the resolution’s approval, another item under “New Business” addressed membership on municipal boards and commissions. Mayor Carter Flanagan’s new appointees on volunteer municipal boards for the ensuing official village year were noted. Separately, some Commission appointments made by the mayor for 2024-25 and beyond were confirmed following Board of Trustees’ votes of approval.

Mayor Carter Flanagan has added one historian to the longstanding village historian position. William Bellmer is now joined by Patricia Siler, and they will serve as the Village of Garden City’s officially appointed co-historians. According to the Association of Public Historians of New York State (APHNYS), under New York State law every county and municipality is required to have an appointed historian to document, preserve, interpret, and share the history of the community they serve. Garden City now has two. Bellmer has served in the position

solo until now, and he was preceded by former Western section resident and former Garden City Historical Society trustee Suzie Alvey.

For the aforementioned Rec. Commission, Mayor Carter Flanagan announced that Jonathan Debrich will be a new member, filling a seat held by Judy Courtney for many years.

Courtney was elected as a village trustee in March. Her Rec. Commission term had one year left, through early April 2025, with Debrich filling that position.

In addition, Mayor Carter Flanagan announced two more appointments to the Rec. Commission on May 9. Lynn Meyer will fill the spot left vacant after Tim Stapleford’s resignation, with a term through early April of 2028.

Kristina Russo’s former position on the Rec. Commission will be filled by John Sardelis, also until April 2028.

Environmental Board set to expand

On the village’s Environmental Advisory Board (EAB), the new member is Amanda Shore, replacing Molly Przetzycki Fieldler, with a term expiring in April 2028. Longtime EAB member Evelyn Fasano has also been reappointed for a new term, expiring in early April 2028.

Mayor Carter Flanagan chaired

the EAB until this April, and its new co-chairs, as set at the April 1 Reorganization meeting, are Trustees Michele Harrington and Jessica Tai. The mayor noted that the EAB is a proactive, engaging, and growing village volunteer board, with high interest in serving from many in the Garden City community.

She noted that there could be up to three more EAB members appointed in the near future. “There are three additional volunteers who will be reached out to by the EAB co-chairs. They’re excited to include three additional members who bring us their expertise on its subcommittees.”

Civic Beautification team grows

Expansion for Garden City’s Civic Beautification Committee for 2024-2025 was relayed, as Mayor Carter Flanagan announced the appointments of five new members: Monica Kiely, Chris Broder, Betsy Andromidas, Kate Schmidt, and William Kuhl.

The three returning members of the Civic Beautification Committee are co-chair Althea Robinson, Kathy Auro, and Maureen Lyons.

“The Committee has done magnificent work over many years and beautification is something that is so important

to our village, as you hear from trustees on the efforts quite frequently. We did have a lot of interest for positions on the committee – one area we saw particular interest in from several residents was on trees. Some of the new members will be focused on particular groups and tasks as I have appointed a few chairs to lead efforts in different areas, including flowers, trees, and village landscaping,” the mayor commented.

Kiely and Broder are among the new co-chairs Mayor Carter Flanagan mentioned, with Robinson maintaining her role as a co-chair.

On the Architectural Design Review Board (ADRB), Jeanne Madelmayer will be filling the vacancy created by former member Donald Hickey’s resignation.

Two weeks ago, the mayor explained Garden City’s continuing community spirit for volunteerism. Though many positions have been filled, the mayor and Board are still eager to welcome more ambitious and talented people to the municipal volunteer roster.

“We had a great outpouring of interest from residents, and we are still filling positions. Thank you to everyone who expressed their interest. When we fill the positions, we will make sure that letters go out to everyone.”

Village awards $3 million bid for water main project

From page 3

were budgeted for fiscal year 2023-2024.

Deputy Mayor Bruce Chester confirmed that multiple village roads would be addressed within the Road and Paving Repairs capital project, noting that some costs are being offset by funds from the Long Island Rail Road/MTA.

New capital project for street lighting

Following the introduction by Superintendent Borroni, the Board of Trustees approved the creation of a new village capital project with a corresponding transfer of $160,000 in funds. The “Street Lighting System Improvements on Clinton Road” project was created and funded at the meeting.

The goal is to address street light fixtures and enhance roadway lighting ahead of Nassau County’s roadway reconstruction for Clinton Road.

Borroni explained, “This funding is required to install new street lighting along the Clinton Road corridor, from Commercial Avenue to Meadow Street, ahead of the county’s reconstruction work. We are using the capital project account to be created at the start of the new fiscal year (2024-2025, beginning on June 1, 2024) to upgrade street lighting on our roads in conjunction with our road paving projects.”

Trustee Ed Finneran asked if the

new lighting for Clinton Road was on track to be done before the Clinton Road resurfacing project by Nassau County.

Superintendent Borroni confirmed this and mentioned that the scope of work includes coordination with National Grid.

As the bonds went before the Board for approval, Borroni provided details and project status updates. Some trustees asked questions before the series of bond resolutions were formally approved.

The Board of Trustees approved a maintenance bond for the Village Hall HVAC renovation project, completed by Intricate Tech Solutions, LTD.

The maintenance bond amounting to $816,923 was approved on May 9, guaranteeing the work completed at Village Hall for the next 18 months. Village Counsel Gary Fishberg reviewed and approved the maintenance bond.

The Board also approved two Public Works’ change orders for the Water Works Building Roof Replacement project, totaling over $30,000 for contractor Statewide Roofing Inc. The first change order, for $12,757, covers the installation of a new roof hatch and aluminum access ladder in a new location. The second change order, for $18,677.33, is for new LITSCO aluminum wall panels along the wall separating the lower

and upper roof. Funding is available in the Water Works Building Roof capital account. The project’s bond resolution, originally approved by the Board of Trustees on October 19, 2023, was for an amount not to exceed $800,000.

Another Public Works’ change order approved on May 9 was for Philip Ross Industries of Melville, for their work on the Clinton Road Blower Replacement project. The change order for $42,262.50 was approved to cover the costs of furnishing and installing an additional control panel for the two new blowers. Funds are available in the account “Clinton Emergency Blowers and Buildings.”

Superintendent Borroni told the trustees, “The new control panel is needed to update the existing safety electrical control panel to make it compatible with the new blower units.”

In addition to the project bonds on the agenda, Borroni spoke about the need for a transfer of $21,104 for hydrogen peroxide supply used in the water system’s AOP treatment process and to create a purchase order for U.S. Peroxide, LLC for the remaining invoices. The Board later approved the transfer into the ‘Materials and Supplies’ account from ‘Purification – Regular Salary.’

Another transfer approved by the

Board on May 9, for $21,002 from the village’s Contingent fund into the ‘Building - Maintenance of Plant’ account, will cover costs for some renovations at the former Garden City Chamber of Commerce headquarters, the old Long Island Motor Parkway Toll Lodge building on East Seventh Street. Funding from the transfer was needed for immediate repairs and related purchases through May 31.

Borroni noted, “The cost includes replacement of existing interior and exterior lights with new LED lights; the installation of three new line-voltage smoke and carbon monoxide detectors – as required by Village Code and the Building Department – and the complete maintenance service of the building’s HVAC system. Our HVAC vendor found vermin living inside the outside condenser unit, and they also found wires that had been chewed through, damaged, and in need of repair.”

Finally, the Board approved a transfer of $12,775 from the Contingent account into the village’s “Central Garage - Maintenance of Plant” account. This funding allows Handa Industries to perform repairs on the parapet wall and lintels at the base of the Village Yard and Parks Department Garage.

34
2024
Garden City News

Thunder alumnus launches equipment drive for kids in need

Local sixth-grader Peter Hamilton is a Thunder alumnus and plays football year-round with a local club team called the PST Lions. After playing with teammates from all over Long Island, he noticed that many of them didn’t have proper equipment, and some didn’t have any equipment at all. So, he decided to ask his former Thunder teammates if they had any old helmets or shoulder pads lying around so he could recondition and repaint them for his PST teammates.

Teammates from Uniondale, Hempstead, Roosevelt and across Long Island are already putting the donated equipment to good use. Other local teams have also reached out asking for help. So now, Peter is asking for help from any Thunder families past and present who may have old helmets and pads lying around collecting dust.

To donate your equipment, please call or text Peter’s dad at (845) 464-1833. With proper reconditioning, helmets and shoulder pads are good for up to 10 years.

Subscribe Today!

Get the scoop on what’s happening in your community every week! Contact us today 516.294.8900 or visit us online www.gcnews.com

Garden City sixth-grader, Peter Hamilton, shown collecting used football helmets and shoulder pads to recondition and give to local players who can’t afford them. Reach out by phone or text to 845-464-1833 to arrange for a pickup.

Tax settlements approved, Board reviews projects

From page 3

$23,500 effective for the 2025-2026 year. The case was settled through the village’s 2024-2025 tax year, and the property’s full taxes of 2024-2025 must be paid to the village to satisfy the refund indicated.

• New York Community Bank (now Flagstar Bank) for its retail bank building at 108-110 Seventh Street (4,200 square feet), resulting in a refund of $17,400 for tax years 2019-2020 through 2023-2024 and a new assessment of $15,875 effective for 2023-2024.

Commissioner presents April statistics

During the meeting, GCPD Commissioner Kenneth Jackson provided updates on departmental and law enforcement activities in Garden City.

In April 2024, the GCPD responded to 2,126 calls, carried out 13 arrests, conducted 49 case investigations, impounded nine vehicles, and responded to 151 medical aid incidents. There were 73 automobile accidents reported, and GCPD staff issued 2,025 parking tickets, 1,097 traffic violation tickets, and six tickets requiring a court appearance.

Trustee Vinny Muldoon commended Commissioner Jackson and the GCPD, noting that overall in the village and on Seventh Street, they are doing a great job, and the public has complimented the police for their efforts. He asked that Jackson and his department consider more foot patrols in the business

district to increase law enforcement presence on the streets and sidewalks.

“I am sure you have it covered, and I probably have missed seeing it, but I believe one officer walking up and down Seventh Street often will make a big difference – just with the GCPD walking versus driving,” Muldoon said.

Trustee Bruce Torino spoke about the GCPD patrols, sharing that his observations on Seventh Street differ from Muldoon’s. Torino, the appointed Board of Trustees’ member police commissioner, praised the “double up” dual-coverage provided by officers in squad cars and the police “recorder” walking on Seventh Street.

“The frequency of being able to address any situation is much higher. Likewise, to share information with the general public – Commissioner Jackson and I have an email exchange every morning with reports on police activities (daily). What village residents may not or probably do not know about are the many other activities the GCPD is involved in, such as assisting people who lock their car keys inside their cars or who have left other things. There are many other activities that the police department is tasked with that the public may never see. Whatever you think you will need help with, our police department is there – thank you to Commissioner Jackson and all the officers for all that they do,” Torino said.

Trustee Muldoon also advised Jackson to increase checks on truck and large vehicle traffic along Clinton Road, particularly at night. Muldoon said that the road reconstruction project and village attention to Clinton Road’s condition is an opportune time to ensure safety in that frequently traveled corridor.

“For all the people that live on Clinton Road and neighbors in the East like myself, who live a little bit further from it, the roadway has become a ruckus – if the police can continue to do as much as possible to check on traffic safety there, it will help, especially enforcement is needed due to all the truckers,” he said.

Progress on Fire Station drawings

Two weeks ago, Garden City Department of Building Superintendent Giuseppe Giovanniello reported progress on the GCFD Fire Station No. 2 project (Stewart Avenue and Edgemere Road). He and the fire chief have corresponded with architects on revised and updated plans, which will be 90% completed by the second week in June. “It’s progressing and hopefully we will be moving forward on that soon,” he explained.

Deputy Mayor Chester sought more information on the work being done to revise mechanical, electrical, and plumbing plans and drawings. Giovanniello confirmed that this will be part of the “90% submission” expected in a few weeks, after which village staff,

professionals, and officials can advise on any necessary changes. “The next phase after that is the 100% completed drawings with the project specifications and the cost estimate,” he told the Board.

Dance Showcase at Adelphi

Also at the meeting, the trustees approved the license agreement between Adelphi University and the Village of Garden City for the use of the Olmsted Theatre/Performing Arts Center (AUPAC) for the Rec. Department’s annual Dance Showcase event. A rehearsal date of Wednesday, May 29, and two performance dates of Friday, May 31, and Saturday, June 1, were established in the agreement, with a cost of $2,955. Village counsel approved the agreement, and funding was allocated from the Recreation budget’s Special Activities account.

Superintendent of Recreation and Parks Paul Blake noted that the $2,955 is a reduced rate, covering Adelphi’s staffing costs for the three days of events, including the Olmstead Theater A/V staff and technicians. Trustee Judy Courtney questioned the fee, suggesting that the village negotiate for a better rate given past difficulties with Adelphi University paying for village facilities they use. Deputy Mayor Chester agreed with Courtney’s idea. Blake acknowledged the concerns and said cost considerations will be followed up with Adelphi.

35 Friday, May 24, 2024 The Garden City News

News from the Garden City Public Library

Monday Movies

Monday Movies presented by the Friends of the Garden City Library at 1:30 p.m.: June  2024

June 3 - “Oblivion,” 2013, 125  minutes

June 10 - “Chariots of Fire,” 1981, 124 minutes

June 17 - “Father of the Bride,” 1991, 105 minutes

Spring/Summer  Programs

John Ellis Kordes Presents The Story of the Beach Boys

Saturday, June 1, from 2 – 4 p.m. in the Large Meeting Room

Join John Ellis Kordes as he presents the story of “America’s Band.”  From their humble beginnings as teenagers in a garage in Southern California in the 1960’s to world-wide fame.  Their songs about cars, the beach and girls have transcended generations.

Some rare concert and television footage of their performances will be shown.  Come and enjoy the “endless summer” experience!

No registration required.

Program is sponsored by The Friends of the Garden City Public Library Crafts & Games Programs for Adults with Developmental Disabilities

Small Meeting Room

Saturday,  June 1, from 11 a.m.–12 p.m. Friday, July 12, from 11 a.m.–12 p.m. Tuesday, August 6, from 7 p.m.–8 p.m.

Each session will feature a different craft, game or activity.  The activity will be determined closer to the date of each event.  Day Habs & Special Needs Groups are welcome with prior registration.   Individuals can also register to participate.

Registration is required on Eventkeeper (www.gardencitypl.org).

If you would like your special needs group to participate, please register for only ONE of the five dates listed above.  You can register for an additional date if there is still room one week prior to the start of that program.  When registering please indicate the name of your Day Hab, how many special needs adults will be attending, and how many caregivers will also be attending.

If you are registering as an individual not associated with a Day Hab or special needs group, you can register for all five sessions!

Program is sponsored by The Friends of the Garden City Public Library.

Empire Safety Council

Defensive Driving   - 2 Parts

Part 1 - Wednesday, June 12, from 5:45 p.m.–8:45 p.m.        Part 2 - Thursday, June 13,

from 5:45 p.m.–8:45 p.m.

Large Meeting Room

Receive 10% reduction on automobile/liability insurance and qualify for a licensed point reduction!

Registration is required in person at the Reference Desk.  A separate registration is required for each person and proper ID is needed when registering an absentee party.

Checks should be made payable to Empire Safety Council in the amount of  $33.

Bring your valid New York State driver’s license and a pen to class.

Contact Reference Desk - (516)7428405 x 5236 or email: Speakingofbooks@ gardencitypl.org.

St. Francis Outreach Bus

Friday, June 14, from 10 a.m. to 2 p.m. in the Library Parking Lot

The St. Francis Outreach Bus will be at the Garden City Public Library for free health screenings — including:  Brief cardiac history, blood pressure, and a finger stick blood test for cholesterol and diabetes.  No registration is necessary.   The bus will be located outside of the Library in the parking lot.

Chess4Community: Play & Learn!

Fridays from 10–11 a.m. in the First Floor Reference Area

Friday, June 28 Friday, July 26 Friday, August 30

Chess4Community is launching engaging chess sessions designed to bring together players from diverse ages and skill levels. Participants will be thoughtfully paired based on their playing experience, ensuring a balanced and competitive environment.

Throughout these sessions, players will face off against equally matched opponents and receive valuable instruction, offering tailored advice and teaching new strategies and skills. Registration is required.  You must register separately for each session you want to attend. Registration is online via Eventkeeper (www.gardencitypl.org).  Please note that registration ends two days before each program.

Museum Pass Update

Print From Home for Some Passes!

Through the generosity of the Friends of the Garden City Public Library, the Library offers free passes to select museums and cultural institutions. You can make a reservation to borrow a Museum Pass from one of the member institutions in our Museum Pass Program.

Some museum passes are now available to print from home.  If you

do not have access to a printer, the library will be happy to print the pass for you. These passes will be good for one day only. Passes may be printed at home for these museums:

• Cradle of Aviation Museum, Garden City (2 adults & 2 children);

• Guggenheim Museum, NYC (2 adults & 2 children);

• The Intrepid Museum, NYC (6 visitors);

• Michael P. Murphy Navy Seal Museum, West Sayville, NY (2 adults & 4 children);

• Nassau County Firefighters Museum, Garden City (4 visitors);

• Nassau County Museum of Art, Roslyn Harbor, NY (2 adults & 4 children); and

• Old Westbury Gardens, Old Westbury (2 adults & 2 children under 18 years old).

Please note that not all museums participate. Passes for the following museums still need to be picked up at the Library:

• 9/11 Memorial & Museum, NYC (2 adults & 2 children);

• Empire Pass

• Long Island Children’s Museum, Garden City (2 adults & 2 children);

• MoMA (the Museum of Modern Art), NYC (5 visitors)

• Old Bethpage Village Restoration, Old Bethpage; The following Library Museum Pass rules remain in effect.

• Museum passes are available only to Garden City Public Library cardholders in good standing who have signed the Museum Pass User Agreement. Museum passes may be reserved in advance and must be checked out by an adult (18 years and older) family member.

• Reservations will be taken up to one month in advance of the desired date, subject to availability on a firstcome, first-served basis. Reservations can be done in person at the Reference Desk or over the phone at 516-742-8405 x5236.

• Only one pass may be borrowed at a time.

• Only one pass per museum may be borrowed per household within a six-month period.

• Passes that are picked up at the Library may be borrowed for three days and must be returned by one hour before the Library closes on the day the pass is due. The day the pass is picked up is considered the first day.

• Museum passes that are picked up at the Library must be returned to the Reference Desk during Library operating hours.

• Late charges are $10 per day.

• Any user who loses a pass will be charged the replacement cost of that museum pass.

Each museum reserves the right to determine the rules and regulations governing the use of the museum pass.

See

what’s happening at your library!

Check this paper each week for fun and informative all-ages activities, like classes, lectures, concerts, movie screenings, and more, all for free or cheap!

36 F riday, May 24, 2024 The Garden City News
W H AT ’S NE W AT T H E GA R DEN CI T Y PUBL IC L I BR A RY

News from the Children’s Room

Spring 2024 Programming

Crafting With Friends

Saturday, June  8, at 10 a.m.

Children ages 2–5 (not yet in kindergarten) and their caregivers can join Mary Maguire and make Fathers Day Cards. Online registration on Eventkeeper (www.gardencitypl.org) with a Library card is required. You must do a separate registration for each child you wish to attend this program. This program is sponsored by the Friends of the Garden City Library.  Registration is ongoing.

Crafting With Friends

Saturday, June 8, at 11:15 a.m.

Children in Grades K-5 can join Mary Maguire and make Fathers Day cards.  Online registration on Eventkeeper (www.gardencitypl.org) with a Library card is required. You must do a separate registration for each child you wish to attend. This program is sponsored by the Friends of the Garden City Library. Registration is ongoing.

Adventure Begins At Your Library: Art Contest

Children entering Grades 4 and 5 can get creative this summer by entering our Creative Art Contest! There will be two categories for the Contest: Writing and Art. Participants’ work should relate to the “Adventure Begins at Your Library” theme. Only children entering Grades 4 and 5 in Fall 2024 can participate. Only one submission per category is allowed. Entries should be created between June 10 – August 2 and should be submitted in person in the Children’s Room and must include the Contest Submission Form, which can be picked up at theLibrary. There will be one winner for each category,    with prizes Amazon gift cards. The win-

ners will be announced on Wednesday August 14 at the Summer Reading Club Finale. You do not have to be present to win. Winners will have until Friday September 13, to pick up their prizes. Prizes will not be held past September 13. We might share your artwork or writing on our Facebook Page: Registration begins Monday, June 10, through Monday, August 12.

Adventure Begins At Your Library:

The Travelers Grades K–5

Sign-up with a Library Card on Eventkeeper (www.gardencitypl.org) and become A Traveler! Once you sign up, come to the Library and get your Summer Reading Club bag (while supplies last) filled with treats and activity sheets explaining how you can earn up to 2 prizes. You can also start to drop off book review cards for each book you read, so you can be part of our Grand Prize Raffle. There will be one grand raffle for children entering Grades K-2 (in Fall 2024) and one for children entering Grades 3-5 (in Fall 2024). Children entering Grades K-5 in Fall 2024 who submit one raffle entry will have a chance to win a raffle prize. But the more you read and the more review cards you submit, the better your chance of winning! All books must be at the appropriate reading level and reviewed between June 10 and August 12. Registration is ongoing until Monday, August 12.

Registration begins Monday, June 10, through Monday, August 12.

Adventure Begins At Your Library:

The Little Explorers

Sign-up with a Library Card on Eventkeeper (www.gardencitypl.org) and become A Little Explorer! Once you sign up, come to the Library and get your Summer Reading Club bag (while supplies last) filled with treats and activity sheets explaining how you

can earn up to 2 prizes. Registrants can also start Monday, June 10, to drop off book review cards for each book you read, or is read to them, so they can be part of our Grand Prize Raffle. There will be one grand raffle prize for ages 2–5 (not entering kindergarten in Fall 2024). Preschool age children who submit one raffle entry will have a chance to win a raffle prize. But the more books read or are read-to, and the more review cards you submit, the better your chance of winning! All books must be at the  appropriate reading level and reviewed between June 10 and August 12. Registration is ongoing until  Registration begins Monday, June 10, through Monday, August 12.

Craft for 3 and 4-Year-Olds

Wednesday, June 26, at 10:30 a.m.

Children ages 3 and 4 and their adult caregiver will come and do a simple craft with a Librarian. This is a 30-minute program. Online registration on Eventkeeper (www.gardencitypl.org) with a Library card is required. You must do a separate registration for each child you wish to attend this program. This program has been funded by the Friends of thePublic Library.

Registration begins June 18 at 10:00 a.m.

Grades K–5 BINGO

Wednesday, June 26, at 4:00 p.m.

Children in grades K–5 in Fall 2024 can celebrate the start of their summer by coming to the Library to play BINGO and maybe winning a small prize. Online registration on Eventkeeper (www.gardencitypl.org) with a Library card is required. You must do a separate registration for each child you wish to attend this program. This program has been funded by the Friends of the Public Library.

Registration begins  June 18 at 10:00 a.m.

Mother Goose Storytime

This fun 30-minute storytime is for children ages birth–2 and their caregivers. Join a Librarian and enjoy sto-

ries, music and rhymes and books. No Registration is required. First Come - First Served.

*****No Storytimes On July 16*****

• Tuesday, June 25, at 10:30 a.m.

• Tuesday, July 2, at 10:30 a.m.

• Tuesday, July 9, at 10:30 a.m.

• Tuesday, July 23, at 10:30 a.m.

• Tuesday, July 30, at 10:30 a.m.

• Tuesday, Aug. 6, at 10:30 a.m.

Preschool Storytime

This 30-minute program is for children ages 2–5 (not in kindergarten) and their caregivers. Join a Librarian and enjoy stories, music and movement. No Registration is required. First ComeFirst Served.

• Tuesday, June 25, at 11:30 a.m.

• Tuesday, July 2, at 11:30 a.m.

• Tuesday, July 9, at 11:30 a.m.

• Tuesday, July 23, at 11:30 a.m.

• Tuesday, July 30, at 11:30 a.m.

• Tuesday, Aug. 6, at 11:30 a.m.

Registration for the Summer Read to me Club (Little Explorers) and Summer Reading Club (The Travelers) begins Monday, June 10, at 10:00 a.m.

Additional Summer Programming Details Coming Soon.

Library Policy

It is Library policy that all children under age ten must be accompanied by a parent or designated responsible person while in the Library. Also, if the young child is attending a Library program, we require the parent or designated responsible person to remain in the Library throughout the program and meet the child upon completion of the program.

Each program requires a separate registration on Eventkeeper (www.gardencitypl.org).

A separate registration is required for each child you wish to attend these programs.

Please do not register additional children in the comment box as they are not counted by Eventkeeper, and there may not be sufficient room or materials for participants.

Library hours for Memorial Day weekend

The Garden City Public Library will have the following hours for Memorial Day weekend: Saturday, May 25: Open 9:30 a.m. – 5:00 p.m. Sunday, May 26: Closed Monday, May 27: Closed

37 F riday, May 24, 2024 The Garden City News W H AT ’S NE W AT T H E GA R DEN CI T Y PUBL IC L I BR A RY
www.gcnews.com • 516-294-8900 Call or go online to browse, buy, or sell! Litmor Publishing Corp. The Classifieds: Your Ticket to Local Finds

May 24,

Chess Wizards Summer Camp

Garden City Recreation and Parks has again partnered with the very popular “Chess Wizards” to offer after school programs for Garden City children ages 5 through 12 who want to learn the game of chess!

Chess Wizards is a fun way to have kids experience the excitement of chess. Kids will play in mini tournaments, have interactive lessons with chess pros and play cool chess variants like bug house. It is proven that chess enhances cognitive development in children, improves both verbal and mathematical skills, and increases all levels of academic performance! Playing chess stimulates the mind and helps children strengthen skills such as focusing, visualizing goals, abstract thinking, and forming concrete opinions.

Instructors (who are called “Wizards”) provide all the materials necessary for your child to participate in the class and no additional purchase is required to attend. All students will receive a trophy, puzzle folder and wizards t-shirt. Come join the fun!!!

This camp will be offered:

• August 5–9 from 9 a.m. to noon OR noon to 3 p.m.

• August 19–23 from 9 a.m. to noon OR noon to 3 p.m.

Classes will be held in St. Paul’s Cottages.

The cost of each 5 day, 3 hour camp is $225.

Your child may register for a full day and bring lunch at a cost of $325.

To register for this program please visit the Chess Wizards website at www. chesswizards.com.

Adult Art Class Continuation

The Garden City’s Department of Recreation and Parks will offer a spring continuation adult art class.  This four class program will teach the beginner as well as the advanced student the art of painting portraits and landscapes/stilllife in pastel from photographs.  Arleen Rueth Urban, the instructor for this program, is a signature member of the Pastel Society of America.

Classes will be held Fridays from 9 to 11:30 a.m. The cost of this program will be $50. This class is open to adult residents who reside in the Inc. Village of Garden City.  Classes are held in St. Paul’s Cluett Hall beginning Friday, May 31.

To register for this session please visit the Recreation and Parks office at 108 Rockaway Avenue. If you have a password, you may register online at gcreconline.gardencityny.net.

Incrediflix Filmaking Camps for Ages 7–13

Incrediflix is back! This very popular film making camp guides children through the aspects of this great hobby. Children will work in age-appropriate

groups to create and make their own short film. Topics are listed below. Lunch supervision is included for any child who would like to stay for both sessions of that week’s camp. All flix will be professionally edited and will be downloadable within a month after camp ends.

Where: Cottage 110 (next to the Recreation Office at 108 Rockaway Ave.)

Cost: $205 for each ½ day session, or  $385 if you register for both sessions in the same week, bring your lunch, stay for two classes.

Our topics are:

Week of July 8–11

Animation Flix

9:00 a.m. to 12:00 p.m.

In this fast-paced class, you'll create up to four new stop motion movies using different medium each day! Animate cars, film with green screen, and new for 2024 you create a 2D Mario movie, and more! *$35 Production fee included in the price of the camp. Flix emailed within a month after camp ends.

Action Stop Motion Flix

1:00 to 4:00 p.m.

Use stop motion tricks to create fires, explosions, and even floods as your characters battle it out or work together to save the day in the action packed stop motion class. You will work in small groups to storyboard, create the action and film these exciting movies.

Animation & Action Stop Motion Flix- FULL DAY

9:00 a.m.–4:00 p.m.

Join us for the full day combo for a discount plus free lunch supervision! Please see both half day descriptions. Bring snacks, lunch, and drink. *$70 Production fee is included in the price for the camp. Flix emailed within a month after camp ends.

Week of August 5 – August 8

Live Action Flix

9:00 am to noon

Discover your filmmaking talents!

You don’t have to be an actor to take part, as we'll guide you through the Hollywood process to create, direct, film, act, and more. You won’t just make an incredible movie, you’ll have the skills to make your own movies with friends.

Lego Flix

1:00 to 4:00 p.m.

Bring Lego worlds to life! We provide Legos. You provide your imagination. Work in groups to create a Lego set with Lego characters for a stop-motion movie you'll storyboard, shoot, and add voiceover too. *$35 Production fee included in the price of the camp. Flix emailed within a month after camp ends.

Live Action & Lego Flix- FULL DAY

9:00 a.m.–4:00 p.m.

Join us for the full day combo for a discount plus free lunch supervision! Please see both half day descriptions. Bring snacks, lunch, and drink. *$70 Production fee is included in the price

for the camp. Flix emailed within a month after camp ends.

To register, please visit the Recreation and Parks Office at 108 Rockaway Avenue. Checks only please, made payable to Incrediflix.

Gear Up for a Fun Filled Summer at the Garden City Pool

Garden City Recreation and Parks is thrilled for another exciting summer at the Garden City Pool! We are now accepting pool applications at the Recreation office at 108 Rockaway Ave. Applications can be found at the Rec Office or online at www.gardencityrecreation.org.

Get a Jump on the Summer with USA Support Group

US Sports and Garden City Recreation have again joined up to run our very popular summer sports programs at Community Park and St. Paul’s.  Weekly summer programs include soccer, multisport, flag football, field hockey, lacrosse, and golf. They also offer Parent and Me classes as well as 3 to 5 year old squirt programs!

These programs are open to Village residents ages 2 to 11 years.  To see what is offered and to register, please visit US Sports website at www.usasportgroup. com and look for Garden City.

The

Upcycle

Academy Summer Camp  SUMMER 2024 NEW!!

The Upcycle Academy - FASHION CAMP Do you have a passion for fashion? Do you like being creative? How about having FUN with friends while you make something AWESOME!!

Join The Upcycle Academy for our Fashion Camp this Summer. In this very special enrichment camp, we guide you through the design process for creating your very own upcycled designs. Our camps are both educational & FUN. Sketch your ideas. Shop the Upcycle Shop. DIY - Design It Yourself!

All upcycling materials and recycled apparel are provided (bring your own if you want to make it extra special).

Brought to you by fashion industry professionals, fashion university educators & current fashion university students. We teach all things fashion … ColorFashion Illustration - Silhouette /  Shape / Proportion - Trend Spotting ConceptDesign - Upcycling - Sustainability in Fashion - Styling and more! Share your designs on the last day of camp in the lookbook photoshoot and fashion show especially for friends and family.

All upcycle materials and recycled apparel provided. Keep your designs at the end of camp!

July 8 – August 9, 5 one-week sessions offered. Monday – Friday, 9 a.m. – 12 p.m. Age 8 – 14, Fee: $345

Lacrosse Clinic Presented by Pioneer Sports

Join us this spring for a six-week

Lacrosse Clinic sponsored by Pioneer Sports in partnership with Garden City Recreation and Parks. This special program introduces girls and boys, kindergarten through fifth grade, to the game of lacrosse in a non-competitive, instructional clinic.  *Please bring your own lacrosse stick*

This clinic will be held on Tuesdays on St. Paul’s Fields from April 16 through June 4 according to the following schedule:

Grades K–5  from 6 –7:00 p.m

The cost of this program will be $150, Space is limited.

Garden City Recreation Children’s Tennis Lessons – Spring 2024

The Garden City Department of Recreation and Parks is pleased to announce the start of the SPRING children’s tennis program. Registration is ongoing and classes begin on Monday, April 1. All classes are held at the Community Park indoor tennis center and are available to Garden City residents ages 4 through 16 years old. How to register:

• In person at the Recreation Office (108 Rockaway Ave). The recreation office is open M – F from 8:30am to 4:30 p.m. You can download a registration form at our website: gardencityrecreation.org

• By Mail: Mail in your registration form and check to the Recreation Office

• Register online at www. gcreconline.gardencityny.net .You need a password to register online.  If you do not have a password please go to the Recreation office, with proof of residency, to receive one.

If paying by check, please make check payable to Inc. Village of Garden City

If paying by credit card please use: Mastercard, Visa or Discover. We do not accept American Express at this time.

For more information, call the Recreation Office at 516 465-4075

***Non-resident children who attend Garden City Public Schools can register for tennis lessons beginning April 15th.   Registration must be done by mail or in person at the Recreation Office. Those who would like to register for our tennis program must prove they attend one of the Garden City Public Schools.  Proof must accompany registration.  An additional $50 fee will pertain to anyone in this category.  Make checks payable to the “Inc. Village of Garden City.”

Lil Athletes Core 4 Summer Camp

Lil Athletes will be running a 3-day multi-sport camp featuring our “Core 4”sports Soccer, Baseball, Lacrosse, and Football.

July 1–3: $120 for the 3 days 9 a.m.–12 p.m. (Ages 3–5).

Children will learn specific sports skills in a fun and engaging environment. Each day children will rotate

38 Friday,
2024 The Garden City News GARDEN CITY RECREATION AND PARK NEWS

through different sports stations as well as participating in fun obstacle course play. All children must bring a drink and snack (no peanuts of any kind please).

LI Steam Group Camps for Summer 2024

Garden City Recreation and Parks is excited to have LI Steam Group back for another fun filled summer of camps! The Summer 2024 schedule is as follows:

July 8 – July 12

9 a.m. to 12 p.m.: Motion MadnessScience and engineering go hand-inhand as our campers discover what machines and nature have in common. Campers will build various structures like bridges and domes, and run a crazy obstacle course with the help of simple machines. Learn the Fun-damental Forces that affect motion. Check out motion on the Molecular level and see how motion pictures work. (For children entering grades 1-5).

12 p.m. to 1 p.m.: Lunchtime CareOptional lunchtime supervision for campers looking to stay for the p.m. camp.

1 p.m. to 4 p.m.: Crayola® Legends & Lore: Unleashing Creativity Through Myths and Mystery - From sea creatures of the deep to phoenixes in the sky, every society has its legends and lore. We’ll tell their stories through paintings, sculptures, and other works of art. These legends may inspire awe, curiosity, or surprise, but they all inspire our imaginations! Kids experiment with different art techniques using Crayola® supplies to bring their ideas to life. Each camp day is all about designing a one-of-a-kind mythical creature. (For children entering grades 1–6)

July 15 – July 19

9 a.m. to 12 p.m.: Flight AcademyBirds, kites, planes, and rockets! If it flies Mad Science Camp covers it! Investigate the science of aerodynamics. All week long, campers will build various flying machines, explore space and apply Newton’s Laws of motion as we take daily flights of discovery! Learn about natural fliers and build your own Mad Science Model Rocket! (For children entering grades 1-5)

12 p.m. to 1 p.m.: Lunchtime CareOptional lunchtime supervision for campers looking to stay for the p.m. camp.

1 p.m. to 4 p.m.: Brixology - Using LEGO® bricks, kids build a different engineering-themed project in each class. They explore different engineering fields, including mechanical, structural, aerospace, nautical, and bioen-

GARDEN CITY RECREATION AND PARK NEWS

gineering. They use critical thinking, and creative problem-solving to test and improve their creations. (For children entering grades 2–6).

July 22 – July 26

9 a.m. to 12 p.m.: NASA Academy of Future Space Explorers - Discover the frontiers of space with this handson camp! Campers explore our Earth’s atmosphere to the outer reaches of our solar system! Comets, planets, stars and more are all waiting to be discovered. Learn about the four forces of flight, the challenges of space travel, and participate in a rocket launch! (For children entering grades 1-5)

12 p.m. to 1 p.m.: Lunchtime CareOptional lunchtime supervision for campers looking to stay for the p.m. camp.

1 p.m. to 4 p.m.: Crayola® Artist’s Passport Travel The World Through Art - Embark on an around-the-world cultural adventure - explore far-off places and learn about the people who live there, from the Americas to the Ivory Coast, from the cosmopolitan to the countryside. Experiment with Crayola® products, while trying art techniques developed by local artists and artisans. Make a different masterpiece each day, including a dot art canvas, a mini-Pakistani bus, a mud art painting on fabric, and an imperial Russian egg! Bring the unique creations home and build a globally inspired art gallery. (For children entering grades 1–6)

July 29 – August 2

9 a.m. to 12 p.m.: Detective ScienceThis program features fun-filled, hands-on, secret agent-themed science activities that allow kids to play detective, sharpen their surveillance skills, and crack encrypted messages. Kids become super sleuths! (For children entering grades 2–6)

August 5 – August 9

9 a.m. to 12 p.m.: Robot EngineersJoin us for a week of fun with amazing robots! In this robot-centered camp, children will learn about the uses of robots in our world, discover the science of circuits and how robots use their components to explore and react to what is around them. Use your skills to build your very own working robot that you will take home at the end of the week! (For children entering grades 3-6)

12 p.m. to 1 p.m.: Lunchtime CareOptional lunchtime supervision for campers looking to stay for the p.m. camp.

1 p.m. to 4 p.m.: Crayola®

Wild World Wildlife and Habitat Conservation - Kids explore the wonder of the animal kingdom and discover nature in a way that inspires empathy, curiosity, and creativity. They learn about many different animals and how wildlife conservationists are working to protect species around the globe. They experiment with art techniques and use Crayola® art materials to create frog paintings, ink-diffusion jellyfish, polar bear sculptures, and more! (For children entering grades 1–6)

August 12 – August 16

9 a.m. to 12 p.m.: Bots LabExplore the fields of robotics in this amazing hands-on camp. This will be a unique camp experience for the young robot builders! Campers take home awesome daily science projects. Throughout the week, they will complete a robot that they’ll keep! (For children entering grades 2–5)

12 p.m. to 1 p.m.: Lunchtime CareOptional lunchtime supervision for campers looking to stay for the p.m. camp.

1 p.m. to 4 p.m.: BrixologyUsing LEGO® bricks, kids build a different engineering-themed project in each class. They explore different engineering fields, including mechanical, structural, aerospace, nautical, and bioengineering. They use critical thinking, and creative problem-solving to test and improve their creations. (For children entering grades 2–6)

August 19 – August 23

9 a.m. to 12 p.m. : Advanced RoboticsA robotics camp for the accomplished robot builder! Campers will build their own Robotic Arm throughout the week and take it home at the end of camp! The building of this robot is rather involved, so previous experience and fine motor skills are recommended. (For children entering grades 3-6)

12 p.m. to 1 p.m.: Lunchtime CareOptional lunchtime supervision for campers looking to stay for the p.m. camp.

1 p.m. to 4 p.m.: Crayola® World of Design Think it! Draw it! Make it! - This camp that takes kids on a journey to the edges of their imagination – and beyond! They learn about Mars, the rainforest, and cities of the future, and get engaged in the creative design process to solve real-world problems. Each camp day focuses on a specific field of design, and our young architects, illustrators and graphic designers develop their ideas from

concept, to sketch, to finished product. They bring their concepts to life by experimenting with Crayola® products, and exploring art techniques like sculpting, storyboarding, mixed media, and collage. Combining art, design, fun active games, and inspiring themes from around the world, this camp is designed to inspire! (For children entering grades 1–6)

August 26 – August 30

9 a.m. to 12 p.m.: Ready to RobotExplore the fields of robotics in this amazing hands-on camp. This will be a unique camp experience for the young robot builders! Campers take home awesome daily science projects. Throughout the week, they will complete a robot that they’ll keep! (For children entering grades 2–5)

2024 Garden City Pool

Membership applications are now available at gardencityrecreation.org Go to gardencityrecreation.org for a pool brochure and an application. We’re getting ready for you…are you getting ready for us! Don’t miss out!  Join today!

Pool Season 2024 highlights include:

• Wacky Inflatable Night: August 10th, beginning at Members and guests are allowed to bring in inflatable floats for  one  special night in the big pool.    Poolside DJ by Musicflex

• Arts and Crafts for the Kids: Wednesdays at 10:30 a.m. in Snack Bar area, begins July 3

• B-I-N-G-O: Bingo for prizes and lots of fun in the picnic area on Thursdays at 2 p.m. beginning July 11.

• Party Under the Stars Night: Saturday, July 27, with live music from  the  “Audio Replay” Band.  Poolside bar, delicious specialty foods and traditional BBQ fare for purchase at reasonable Fun begins at 5:30 p.m.

• Senior Citizen Days: Monday, July 8, and Monday. August 5; Pool opens at 10 a.m. for senior pool members.  Music by Johnny Whimple.  Snack Bar specials.

• Movie Nights: Featuring first run family entertainment films

• Jester Jim Juggling show: July 14 at 2 p.m.

• Magic of Amore: July 21  at 1 p.m.

• Middle School Night: Monday, July 22, at 7:30 p.m.

• See the SPLASH brochure for the full details of the 2024 season, available for download at gardencityrecreation.org

About to hit a milestone?

Share your life accomplishments with your neighbors! Put your engagement, wedding, or baby announcement in the paper. It's free of charge for subscribers! Email editor@gcnews.com

Friday, May 24, 2024 The Garden City News 39

NASSAU COUNTY

NASSAU COUNTY

NOTICE OF SALE

One ad can go so far...

NOTICE OF FORMATION OF A LIMITED LIABILITY COMPANY

NASSAU COUNTY BIDS

Notice of Formation of Me Tay Co LLC. Articles of Organization filed with Secretary of State of NY (SSNY) on 04/25/2024. Office location: Nassau. SSNY designated as agent of Limited Liability Company (LLC) upon whom process against it may be served. SSNY should mail process to Eric D Tran: 514 Hempstead Turnpike STE 101, West Hempstead, NY 11552. Purpose: Any lawful purpose.

Advertise your services in our Professional Guide or Service Directory today and be seen in these five newspapers:

SUPREME COURT OF THE STATE OF NEW YORK COUNTY OF NASSAU U.S. BANK NATIONAL ASSOCIATION, AS TRUSTEE, ON BEHALF OF THE HOLDERS OF THE CSFB MORTGAGE PASS-THROUGH CERTIFICATES, SERIES 2005CF1, -againstCOLLEEN TRETTIEN, ET AL. NOTICE OF SALE

Sealed bids MUST be RECEIVED BY AND DELIVERED TO:

PURCHASING DIVISION

Inc. Village of Garden City 351 Stewart Avenue Garden City, NY 11530 between the hours of 8:30 AM and 4:30 PM, UNTIL 11:00 AM EDT

Subscribe to our newspaper by calling 516-294-8900, or visit issuu.com and search for Litmor Publishing to find digital editions of each issue.

School budget approved

THURSDAY, JUNE 6, 2024 at which time they will be publicly opened and read aloud, for furnishing the following:

POWER WASHING VARIOUS LOCATIONS VILLAGE WIDE

NASSAU COUNTY FORECLOSURE NOTICE

Call 516-294-8900 today to learn more!

NOTICE OF SALE SUPREME COURT NASSAU COUNTY FEDERAL NATIONAL MORTGAGE ASSOCIATION, Plaintiff against DORIS TOWE, et al Defendant(s) Attorney for Plaintiff(s) Fein Such & Crane, LLP, 28 East Main Street, Suite 1800, Rochester, NY 14614.

Pursuant to a Judgment of Foreclosure and Sale entered December 10, 2019, and Amended on December 22, 2021 I will sell at public auction to the highest bidder at North Side Steps of the Nassau County Supreme Court at 100 Supreme Court Drive, Mineola, NY 11501 on June 18, 2024 at 2:00 PM. Premises known as 1023 Smith Street, Uniondale, NY 11553. Sec 50 Block 372 Lot 76. All that certain plot, piece or parcel of land, with the buildings and improvements thereon erected, situate, lying and being at Uniondale, in the Town of Hempstead, County of Nassau and State of New York. Approximate Amount of Judgment is $615,821.96 plus interest, fees, and costs. Premises will be sold subject to provisions of filed Judgment Index No 012455/2011. The foreclosure sale will be conducted in accordance with 10th Judicial District's Covid-19 Policies and foreclosure auction rules. The Referee shall enforce any rules in place regarding facial coverings and social distancing. If proper social distancing cannot be maintained or there are other health or safety concerns, then the Court Appointed Referee shall cancel the foreclosure auction. Foreclosure Auctions will be held "Rain or Shine." Rita Kohn Solomon, Esq., Referee File # AYSJN072

NOTICE IS HEREBY GIVEN pursuant to a Final Judgment of Foreclosure entered in the Office of the Clerk of the County of Nassau on February 22, 2017, wherein U.S. BANK NATIONAL ASSOCIATION, AS TRUSTEE, ON BEHALF OF THE HOLDERS OF THE CSFB MORTGAGE

PASS-THROUGH CERTIFICATES, SERIES 2005CF1 is the Plaintiff and COLLEEN TRETTIEN, ET AL. are the Defendant(s).  I, the undersigned Referee will sell at public auction RAIN OR SHINE at the NASSAU COUNTY SUPREME COURT, NORTH SIDE STEPS, 100 SUPREME COURT DRIVE, MINEOLA, NY 11501, on June 25, 2024 at 2:00PM, premises known as 162 MEADOW ST, GARDEN CITY, NY 11530; and the following tax map identification:  34-546-32 & 39.

ALL THAT CERTAIN PLOT, PIECE OR PARCEL OF LAND, SITUATE, LYING AND BEING IN THE INCORPORATED VILLAGE OF GARDEN CITY, TOWN OF HEMPSTEAD, COUNTY OF NASSAU AND STATE OF NEW YORK

Premises will be sold subject to provisions of filed Judgment Index No.: 000801/2015. Mark Ricciardi, Esq. - Referee. Robertson, Anschutz, Schneid, Crane & Partners, PLLC 900 Merchants Concourse, Suite 310, Westbury, New York 11590, Attorneys for Plaintiff. All foreclosure sales will be conducted in accordance with Covid-19 guidelines including, but not limited to, social distancing and mask wearing. *LOCATION OF SALE SUBJECT TO CHANGE DAY

Specifications, Form of Bid, and other information may be obtained from the office of the Purchasing Division at the above address or you may download the bid specifications from the New York State Contract Reporter website at the following web address: https://www.nyscr.ny.gov/ contracts.cfm

This bid specification will be listed under the Agency Name of:

Inc. Village of Garden City

Catherine Reynolds Purchasing Agent Dated:5/24/24

NASSAU COUNTY BIDS

Sealed bids MUST be RECEIVED BY AND DELIVERED TO:

PURCHASING DIVISION

Inc. Village of Garden City 351 Stewart Avenue Garden City, NY 11530 between the hours of 8:30 AM and 4:30 PM, UNTIL 11:00 AM EDT

THURSDAY, JUNE 20, 2024 at which time they will be publicly opened and read aloud, for furnishing the following:

GARDEN CITY TOLL HOUSE REHABILITATION

Specifications, Form of Bid, and other information may be obtained from the office of the Purchasing Division at the above address or you may download the bid specifications from the New York State Contract Reporter website at the following web address: https://www.nyscr.ny.gov/ contracts.cfm

This bid specification will be listed under the Agency Name of:

Inc. Village of Garden City

Catherine Reynolds Purchasing Agent Dated:5/24/24

(Pursuant to Section 1428 of the Real Property Tax Law, State of New York)  2024 Tax 1st Half Due and Payable June 1, 2024 (Second half may be paid at same time) 2nd Half Due and Payable December 1, 2024 NOTICE IS HEREBY GIVEN that the undersigned, Clerk of   the Incorporated Village of Garden City, New York, has received the tax roll and warrant for the collection of taxes for  the current year and will attend at the Village office, 351 Stewart Avenue in said Village, on each day during the period June 1 to July 1, 2024 from 8:30 o’clock in the forenoon until 4:30 o’clock in the afternoon (Saturday, Sundays and legal holidays excepted), for the purpose of receiving the taxes assessed on said roll. Taxes for the first half-year become due and payable June 1, 2024. (Taxes for the second half-year may be paid at the same time). Taxes for the second half-year become due and payable December 1, 2024. A discount of 1% will be allowed on the second half of the tax, providing payment of both the first and second halves is made not later than June 30, 2024. No discount will be allowed after June 30, 2024. To all taxes for the first half remaining unpaid after July 1, 2024, and for the second half remaining unpaid after December 31, 2024, five per centum (5%) will be added for the first month or fraction, thereof, and one per centum (1%) for each month or fraction thereof thereafter until date of Tax Sale is determined. Thereafter, Tax Sale expense and additional interest will be added.

AVOID PENALTIES BY PAYING YOUR TAXES PROMPTLY

When requesting tax bills, please give the lot and block numbers and map designation, account number or description and location of property. Kelly Galanek, Village Clerk Dated: May 23, 2024 Garden City, New York

last week, and progress has and will continue to be shared on its landing page of the district’s website. The board recommended all community members visit this page periodically as a resource and way to stay actively involved.

Trustee Gnecco added, “To everyone, with any issue that you have now or in the future, please do not feel you need to wait until every second Tuesday to bring it up. Email the board. That way we can come prepared to address the situation together.”

The treasurer’s report, covering the financial status of the school district, disclosed a closing balance of $44,328,380 as of March 2024. Plus, administrators shared that initial planning meetings have started taking place for upcoming bond projects.

Schools will be closed on Monday and Tuesday for the Memorial Day holiday. The next Board of Education work session will take place June 4, 2024 at the high school beginning at 8:15 p.m.

40 Friday,
2024 The Garden City News
May 24,
Subscribe to our newspaper by calling 516-294-8900, or visit issuu.com and search for Litmor Publishing to find digital editions of each issue.
NOTICES
LEGAL
From
We Fetch You More …and deliver it all to your door! From thought-provoking editorials and current events coverage to restaurant reviews, puzzles
more, we deliver the quality reporting that keeps you informed
the playful features
keep you entertained. 516-294-8900 Subscribe Today with our most fetching offer yet!
page 1
and
and
that

Bethpage Memorial Day Weekend Airshow at Jones Beach Kicks off Long Island Summer

BY KAREN RUBIN TRAVEL FEATURES SYNDICATE GOINGPLACESFARANDNEAR.COM

One of the best airshows in the world happens right in our own backyard each Memorial Day weekend: the Bethpage Jones Beach Air Show, celebrating its 20th anniversary this year, cannot be beat for spectacular aeronautical feats amidst the ambiance of Jones Beach, where you see the action right in front of you, just above the ocean and stretching to the horizon. The intense action is so close, you often can see the pilots in the cockpits, and so fast and daring, it takes your breath away. The event takes place from 10 am to 4 pm on Saturday, May 25 and Sunday, May 26 (insiders tip: there is a rehearsal/ practice run on Friday).

The show this year is headlined and climaxed by the U.S. Navy Blue Angels – a team of six performing their heart-stopping maneuvers in their F/A-18 Super Hornets. They are famous for the Diamond formation, when they fly as close as 18 inches apart, but what most excites me is when the two solos fly extraordinary maneuvers, including coming at each other at 300 mph. The airshow traditionally opens with the United States Army Golden Knights Parachute Team, who launch out of a plane some 25,000 feet high, stream down at 200 mph, and float down into the crowd on the beach carrying the American and POW flags. The Golden Knights portray the image of being the most formidable parachuting competitors and demonstrators in the world today

US Navy Blue Angels in their F/A-18 Super Hornets demonstrate their legendary precision at the Bethpage Air Show at Jones Beach State Park, Long Island, over Memorial Day weekend © Karen Rubin/goingplacesfarandnear.com

American Airpower Museum Warbirds , flying vintage WWII fighters and patrol planes, pay homage to Long Island’s historic role as the nation’s arsenal of democracy. Republic Aviation, the complex in Farmingdale where the AAM stands now, produced over 9,000 P-47 Thunderbolts, and today the museum’s collection preserves the heritage and history. The Warbird performance will conclude with a precision aerobatic demonstration of one of the museum’s legendary WWII Fighters.

U.S. Navy F-35C Lightning II Demonstration Team and Legacy Flight shows off the capabilities of this 5th Generation fighter that combines advanced stealth with fighter speed and agility, fully fused sensor information, network-enabled operations, and advanced sustain-

ment. The F-35C is the world’s most advanced multi-role fighter. With a top speed of 1,200 mph, the F-35C is even capable of setting off sonic booms.

U.S. Air Force A-10C Thunderbolt II Demonstration Team and Heritage Flight showcases the combat capabilities of the A-10 “Warthog” by performing precision aerial maneuvers. Additionally, the team brings attention to the Air Force’s history by flying formations with historical aircraft in the Air Force Heritage Flight.

Long Island’s own David Windmiller, who began flying when he was just 14 years old, soloing for the first time on his 16th birthday, performs aerobatics in his Zivko Edge 540, thrilling spectators with seemingly impossible feats. Equipped with a custom built project engine of

Teledyne, thrust to weight ratio over 1:1, Windmiller’s plane has a climb rate of 3,700 feet per minute, and a rote rate of 420 degrees per minute, making his plane the ideal aircraft for aerobatic flight.

Mike Goulian’s signature air show performance combines the heart-stopping gyroscopic tumbling of modern display flying with the crisp, aggressive, demands of precision competition aerobatics.

Warbird Thunder features the North American SNJ Texan, an aircraft used to train “The Greatest Generation” for WWII and Korean Conflict. The performance features two SNJs, performing formation aerobatics offering a great spectator experience due to the aircraft’s large physical size, beautiful radial engine sound and fantastic smoke presentation. The SNJ was nicknamed “Ol Growler” because of its distinct deep and throaty roar. Warbird Thunder’s formation aerobatic routine is fast paced and entertaining. The two aircrafts perform formation loops, aileron rolls, barrel rolls, and Cuban Eights and thrilling opposing aerobatics.

The Skytypers – my personal favorite – is a flight squadron of vintage WWII era U.S. Navy SNJ-2 trainers that perform low-altitude precision-formation maneuver mimicking the tactics and maneuvers utilized during WWII air battles. The Skytypers may be most famous for their skytyped messages in the sky which can be seen for nearly 400 square miles.

Farmingdale State College Aviation Center students demonstrate the prowess learned at the May 24, 2024

Continued on next page

PLACES NEAR AND FAR
GOING
1 Friday,May 24, 2024 Discovery

GOING PLACES, NEAR & FAR....

Bethpage Memorial Day Weekend Airshow at Jones Beach

Continued from previous page

largest collegiate flight school in the Northeast region.

106th Rescue Wing, NY Air National Guard HC – 130 / HH 60

Formation provides a demonstration of how it provides combat search and rescue coverage for U.S. and allied forces worldwide.

Take advantage of the Bethpage Air Show Mobile App. Text ‘Airshow’ to

516-842-4400 to download the app for performer and sponsor information, a site map, helpful FAQs.(Available from the App Store and Google Play.)

The event has drawn as many as 444,000, and last year attendance totaled

351,000, so arrive early (parking fee is $10).

© 2024 Travel Features Syndicate, a division of Workstyles, Inc. All rights reserved. Visit goingplacesfarandnear.com

American Airpower Museum Offers Close-Up Views, Activities During Memorial Day Weekend Jones Beach Air Show

Farmingdale – Memorial Day Weekend kicks off American Airpower Museum’s summer with its “Legends of Airpower WWII Warbirds” performing in the Bethpage Jones Beach Air Show, on Long Island, with activities that begin on May 24 (practice day) and continue through the festival weekend May 25-26.

AAM’s legendary warbirds including the WWII B-25 Mitchell bomber, North American P-51D Mustang, Grumman TBM-3E Avenger Torpedo Bomber, and Curtiss P-40M Warhawk “Flying Tiger,” will take to the skies over Republic Airport on Friday, May 24th, (practice day) plus Saturday to Sunday, May 25th/26th, for the Jones Beach Air Show.  Additional aircraft will be in the air including AAM’s WWII North American AT-6 Trainers, Vietnam era AT-28D Nomad and our Cold War era L-39 Jet Fighter/Trainers.

Military aviation enthusiasts can share AAM’s WWII C-47 80th Anniversary

D-Day Living History Experience, when WWII Airborne reenactors interact with visitors on Saturday, May 25th.

Flight experiences are also available each day on one of AAM’s AT-6 Texans, plus its red WACO Biplane.

Watch AAM’s aircraft take off to perform practice flybys over Republic all day Friday, May 24.  Get up close and personal with these historic bombers and fighters.  Come to AAM to catch more aerial action Saturday and Sunday as AAM’s warbirds lift off to perform in the air show.

Throughout the weekend, visitors will be enthralled as US Navy Blue Angels, USAF A-10 “Warthog” and the everpopular Skytypers, take off and return at Republic Airport. Blue Angels practice on May 24th.  You can witness the museum’s Warbirds and US military aircraft take off and land from its flight line on Saturday and Sunday for the Jones Beach Airshow.

The A-10 takes off from the American Airpower Museum for the Bethpage Air Show at Jones Beach © Karen Rubin/goingplacesfarandnear.com

Visitors to AAM will also have opportunities to meet members of the USAF A-10 Demo Team. The team is appearing at the Jones Beach Air Show for the last time this year before being disbanded, as A-10s are retired from the USAF inventory.

Summer on Long Island

The Jones Beach Airshow is Long Island’s kick-off to summer.

Jones Beach State Park is a worldclass beach destination, with 6.5 miles ofwhite-sand beach, oceanfront, mileslong boardwalk for biking and walking, 2,400 acres of maritime environment. Eat at the Boardwalk Café and at the Gatsby on the Ocean Restaurant and ice cream shop; swim in the pool, enjoy the new WildPlay Adventure Park with zip lines (https://wildplay.com/jones-beach/, 800668-7771); )

Other stellar Long Island attractions and events this summer:

Cradle of Aviation Museum was established to commemorate Long Island’s part in the history of aviation and offers 75 air and space craft and galleries chronicling 100 years of aviation on Long Island. a digital planetarium and theater, films (“Superhuman Body” and “Cities of the Future”). Charles Lindbergh Blvd, Garden City, NY 11530, 516-572-4111, www.cradleofaviation.org

Long Island Children’s Museum offers 14 interactive exhibits plus live theater, art spaces and daily activities to provide hours of exploration, engagement, and enchantment for children. Also enjoy the historic Nunley’s Carousel. (Long Island

Children’s Museum, 11 Davis Ave., Garden City, NY 11530, 516-224-5800, www.licm.org)

Old Bethpage Village Restoration, one of my favorite places in the world, is a living history museum, where costumed interpreters and artisans and every home and structure tell a story. 1303 Round Swamp Road, Old Bethpage, New York, 11804, 516-572-8409, Email: oldbethpagevillagerestoration@nassaucountyny.gov).

Long Island Music and Entertainment Hall of Fame is where you can see and appreciate the artistic accomplishments and heritage that have come from Nassau, Suffolk, Queens and Brooklyn, through permanent collection and special exhibits at its first permanent location in Stony Brook.  (97 Main St., Stony Brook, NY 11790, info@limusichalloffame.org,  631-689-5888, www. LIMEHOF.org)

Adventureland, Long Island’s destination amusement park since 1962, offers 30 adult and kiddie rides, including FireBall, North America’s first and only rollerball coaster, and Turbulence, Long Island’s only spinning roller coaster, and a couple of water rides. Two new rides were unveiled this 2024 season: Moon Chaser and the Jr. Pirate

Ship. (2245 Broad Hollow Road (RT. 110), Farmingdale, NY 11735, 631-694-6868, Email: GuestRelations@Adventureland. us, https://adventureland.us/).

Splish Splash, with 96 acres, is the largest waterpark in the tri-state area, offering 20 water slides including highspeed slides like Bombs Away, Riptide Racer, and Bootlegger’s Run, the first water coaster in New York with breathtaking drops), two wave pools, a large Kiddie Area, lazy river (Located just off the Long Island Expressway, Exit 72 West, Calverton, www.splishsplash. com).

For more summer adventure: Long Island’s Wine Country with more than 75 wine producers along the North Fork, South Fork, and western Suffolk County; Montauk Point, the Hamptons, Fire Island, plus Long Island’s historic lighthouses and mansions.

More ideas from Discover Long Island, 330 Motor Parkway, Suite 203, Hauppauge, NY 11788, 877-386-6654, Email: tourism@discoverlongisland.com, DiscoverLongIsland.com.

© 2024 Travel Features Syndicate, a division of Workstyles, Inc. All rights reserved. Visit goingplacesfarandnear.com

Of historical significance is that these Warthogs will be operating from the very grounds they were developed and built on – and with this final performance, they honor the legacy of all those from Long Island who worked at Fairchild Republic. Park for FREE in AAM’s lot or along New Highway. Food and Ice Cream trucks are available onsite.  AAM is also open Monday, Memorial Day, closing at 4:00 p.m.

Museum hours are 10 a.m. to 5 p.m. (Monday 4 p.m.). Tickets and preregistration not required.  Regular admission is $15 for Adults, $12 for Seniors and Veterans and $10 for children ages 3 to 12.

American Airpower Museum at Republic Airport, Hangar 3, 1230 New Highway, Farmingdale, NY 11735, (631) 2936398,  www.americanairpowermuseum. org

© 2024 Travel Features Syndicate, a division of Workstyles, Inc. All rights reserved. Visit goingplacesfarandnear.com

2 Discovery Friday, May 24, 2024
Crossword
Answers

The perfect family reunion of the future

My sisters and I were talking recently and all of a sudden the topic became family reunions. “Wouldn’t it be great if we could have another family reunion?” Susan asked and Michelle and I had to agree that it would be great.

We knew that getting everyone in my large extended family wouldn’t be easy but it could be done. All it would take would be lots of emails alerting everyone to the date and a lot of planning on our part for the next perfect family reunion to come together.

Usually summertime is the best time to have this type of party. That’s when many people have time off for vacation and for the rest of us who are retired, we’ve got plenty of flexibility.

Susan, Michelle and I knew that if we could coordinate this our three brothers would go along with our plans. The first question we had was location. Why does it always seem to come down to location, location, location? We laughed about it but the fact was we needed an outdoor space that had indoor capability - just in case it rained. Summer downpours weren’t unusual and we had to be prepared.

When we counted siblings, cousins, nieces, nephews, spouses and grandchildren, we were talking about 50 - 60 people. Not everyone could attend but if everyone could, we had to be ready. After we sent the email telling everyone that the next family reunion was on the horizon plus where and when it would be, we started getting responses. Most people could come but some had other commitments such as weddings.

Susan, Michelle and I talked about what had worked in the past and what would be good this time. One year our family reunion was at Lido Beach Park and that worked out great. Everyone brought their favorite dish of food and their home recipes were delicious.

That year my mother’s cousin, Molly, and her two adult children came. Molly and my mother saw each other often in Brooklyn but once Molly married she relocated near Spokane, Washington,

where her husband’s family was from. I’d never met her before but Molly was a retired physical education teacher. She was a young retired energetic PE teacher who still loved to play softball so in short order Molly had a peppy game of softball going with a few of us relatives.

First Molly had us do some stretching and warmups, naturally, then we started the actual game. She and her kids had brought softballs, bats and gloves in their car so I had to admit I was super impressed at how organized they were. Or did they always travel this way?

After a good softball game - I was on the winning side of it - we family reunioners all had hearty appetites for dinner so my brother, Phil, grilled some hot dogs, hamburgers and chicken for the group. Susan had brought some potato salad which stayed well chilled and Michelle had brought enough ears of corn to sink a ship. She’d cooked them ahead of time and wrapped them in foil so they just had to be warmed on the grill and viola! It was the perfect addition to the meal.

Under the summer skies of Lido Beach, the food tasted delicious. It hit the spot and so did the cool cups of iced tea and I couldn’t help but notice as everyone chatted happily that reuniting after being apart for several months was indeed a very good idea. Phone calls, emails and Zoom are all fine but nothing beats getting together in person.

The newest addition to the family was my niece’s daughter, Betsy. I had met her once but others hadn’t so it was fun watching my relatives ooh-ing and ahhh-ing over the baby who was eight months old at the time. And some of the young kids had never met certain relatives so the reunion was productive in many ways. We had fun, we reconnected and in spite of ourselves we got to exercise, also.

After dinner several of the teenagers started playing a game of Jenga. The adults watched each person remove a block and with each move I noticed

that the adults held their breaths. “Who would topple the tower?” they wondered and eventually it fell.

That reunion was hard to beat but there have been times when we’ve met at a restaurant or in a smaller local park. The restaurant idea was tossed around for this year then Michelle said she’d spoken to Peter, our oldest brother, on the phone recently and he’d mentioned having the next family reunion at his house. He and his wife, Patty, have a large house that could accommodate everyone plus there was plenty of room for parking.

Michelle told us about that idea when she, Susan and I got together for lunch at our favorite hangout. Over cobb salads we had a chance to discuss the details of the family reunion such as the best time to meet, etc. The fact that Peter and Patty were opening their home and back yard to us simplified things.

Their house is accessible off the parkway so we just hoped everyone attending the family reunion would be prompt. As Susan, Michelle and I talked about the welcoming committee, the food committee and the cleanup committee we agreed on all the details. And we had a feeling that everyone would be good sports about whatever committees they were assigned to.

Our family reunion date is coming up during the summer months and I think Peter and Patty’s house is a perfect place for it. After everyone meets and the party gets going I’m sure Peter will thank everyone for coming then give a toast to our great, big family.

“To good luck, good health and good cheer!” Peter will say in true Peter form and we will clink our glasses or red Solo cups together and hope for good times until our next super duper family reunion.

WRITER’S CORNER 3 Friday, May 24, 2024 Discovery
N.Y.S. Licensed Professionals can add our weekly Professional Guide to their advertising plans Are You a Professional? Call our Garden City office at 294-8900 for rates and information

You Must Pay In To Get Something Out

More than a few people are just bound and determined to believe the worst about the government in general and about the Social Security system in particular.

Here is one example of that. In my recent survey of the services provided by the Social Security Administration, hundreds of my readers praised the agency and gave it an average rating of 4.5 stars (out of 5). But borrowing a phrase from former Vice President Spiro Agnew, more than a few “nattering nabobs of negatism” also piped up with comments similar to this one: “We all know the government can’t do anything right. And the SSA gets one star because it can’t do anything right, either.” Another person said this: “I give the SSA one star. Even though I’ve never been to a Social Security office, I can only imagine it’s 10 times worse than your typical driver’s license bureau!”

First, let me say a word in defense of the much-maligned driver’s license bureaus. I recently had occasion to renew my license. I made an appointment online. I showed up at the bureau’s office in my city at the prescribed time. The office was clean and modern and well-organized. Places were clearly marked where those of us with appointments could wait. Within a few minutes, my name was called, and a friendly agent took care of me. The entire process took about 10 minutes. (I know that obviously driver’s license bureaus can change from state to state and even from city to city. I’m just relaying my experience. 5 stars!)

Anyway, back to Social Security. I think a big reason for all the “negatism” about Social Security has to do with the many unfounded myths and rumors that are out there, mostly in the online world, about the program. And then those rumors get spread from one naive and uninformed “nattering nabob” to another.

In fact, there are so many myths, I devoted an entire book to them. It’s called “Social Security: 100 Myths and 100 Facts.” You can get the book at Amazon.com and other booksellers.

In today’s column, I’m going to deal with one of those myths. It usually goes something like this: “I’ll tell you what’s wrong with Social Security. It’s all those people getting benefits who never put a dime into the system! There are millions of them!”

Let me start by saying this: There isn’t a single soul getting a Social Security check who hasn’t worked and paid into the system or who isn’t a spouse or child of someone who has worked and paid into the system.

I had a recent email exchange about this with a reader. He said that it’s those spouses and children that he is talking about. He wanted to know how many of those kinds of folks there are.

I answered his question, but first, I asked: “So what’s your point? Should these people be kicked out of the program?” And surprisingly, he said: “Yes. In

my view, if you yourself haven’t worked and paid Social Security taxes, you should not get a Social Security benefit.”

I don’t think I need to tell most of my readers that is an extreme and misguided view of how a social insurance system should work. If his ideas became reality, I think I would put him in charge of contacting each widow personally and saying something like this: “I’m sorry, ma’am, even though your husband worked for 50 years paying Social Security taxes before he died, because you never paid into the system yourself, we are going to have to cut off your Social Security checks.”

And I’d also have him call all the children of a deceased parent and tell them: “I’m sorry, little one. I know your dad died and you’re getting some Social Security on his account. But because you haven’t worked, I’m afraid we’re going to have to stop your checks. Good luck!”

I sure am glad that guy, and guys like him, aren’t running the country. What a mean and heartless place it would be. Anyway, he still insisted that I tell him how many spouses and children were getting benefits. Here are numbers for the roughly 66 million Social Security beneficiaries:

-- Retired workers: 48.5 million, or 74% of all beneficiaries

-- Spouse and children of retirees: 2.7 million, or 4%

-- Disabled workers: 7.6 million, or 12%

-- Spouse and children of disabled workers: 1.2 million, or 2%

-- Widows(ers) and children of deceased workers: 5.8 million, or 8%

Someone could look at those numbers and say that about 9.7 million people, or roughly 14% of all Social Security beneficiaries, are getting Social Security checks even though they themselves haven’t paid into the system.

But it’s not quite that simple. Many of those getting benefits as a spouse or widow are what is known as “dually entitled.” That means they are getting some benefits on their own record, and then they are getting some extra benefits from a spouse’s Social Security account. In other words, even though they are getting supplemental “dependent” benefits, they have worked and paid into the system.

Another reader sent me an email about “those people on disability who are getting benefits they never worked for.” That gullible guy has bought into the myth that people getting disability benefits are deadbeats who are somehow ripping off the taxpayers.

So let me make this very clear: You cannot get Social Security disability benefits unless you have worked and paid Social Security taxes.

I think I know where these rumors get started. There is a program with a confusing name called Supplemental Security Income. The program is managed by the Social Security Administration, and it sounds like it is some kind of Social Security supplement. It is not. It is a federal welfare program that, even though it

is run by the SSA, is paid for out of general revenues, not Social Security taxes. SSI pays a small monthly stipend (rarely more than about $900) to poor people who are over age 65 or who are disabled. There may be people on SSI who have never worked and paid taxes. But again, this program has nothing to do with Social Security.

If you have a Social Security question, Tom

Margenau has two books with all the answers. One is called “Social Security -- Simple and Smart: 10 Easy-to-Understand Fact Sheets That Will Answer All Your Questions About Social Security.” The other is “Social Security: 100 Myths and 100 Facts.” You can find the books at Amazon.com or other book outlets. Or you can send him an email at thomas.margenau@comcast.net. .

COPYRIGHT 2024 CREATORS.COM

SECURITY AND YOU
SOCIAL
Answers on page 2 CROSSWORD PUZZLE
4 Discovery Friday, May 24, 2024

REAL ESTATE WATCH

Can’t buy a home? There are other ways to build wealth

Millennials, GenZ, and GenX are struggling to be 1st-time homeowners. But due to severe student loans, credit card debt, and most jobs, not allowing them to save enough for a down payment, let alone pay back the money they owe. This has become particularly challenging over the last 10 years as the COVID-19 pandemic has caused a paradigm shift not ever seen before. People were leaving large populated and crowded cities to escape being near other humans, to reduce the possibility of becoming infected. Those who could exit probably were in much better financial shape than most. They began gobbling up the available housing stock, on Long Island and across the U.S., causing prices to spike and escalate at an abnormal rate. So as inventory was reduced year over year over the last 4 years, prices went in the opposite direction, up and up and up.

What also fueled this volatile environment were rates that were reduced to never-before-seen lows of 2.5%, as my daughter and son-in-law were lucky to take advantage of purchasing a new home. As they say, luck is timing and that’s all it is. Sometimes being in the right place or knowing how to be in that right place at the right time creates your luck. To add insult to injury there was the physical and digital creation of excessive sums of currency by our government out of thin air, (not backed by anything but the good faith of the U.S. Government) providing lifelines or what I would call “giveaways” to so many, who may or may not have needed that capital. It surely created a perfect storm for our inflation problems. Everyone appeared to be flush

Want to make a simple change that will help you have a healthier diet? Eat more fiber. Most of us simply aren’t eating enough. A recent five-year study presented at the American Society for Nutrition’s annual conference found just 7.4% of U.S. adults met the Institute of Medicine’s recommended daily intake of 14 grams of fiber for every 1,000 calories. Fourteen grams of fiber per 1,000 calories translates to 25 to 35 grams per day.

Researchers analyzed data from 14,640 adult participants in the National Health and Nutrition Examination Survey from 2013 to 2018. The research was led by Derek Miketinas, an assistant professor of nutrition and food sciences at Texas Woman’s University in Houston.

Research showed women consumed more fiber than men, and participants

with spendable dollars, and there began the supply chain issues of too many purchasers with money chasing a limited availability of goods.

So many were no longer in the employment arena, thereby not producing or handling goods and services; so everything began snowballing and spiraling out of control into an extremely destructive and chaotic situation. Supply shortages occurred not only here in the U.S. but globally. People stopped working for a time and driving and traveling less and less. I remember reading in July 2020, that West Texas Crude went to $0 and sellers had to pay the buyers to take it off their hands as there was nowhere to store it. Moreover, I also remember purchasing gas out on the North Fork of Long Island for $1.97 per gallon and I am sure some of you did too. Things sure did look quite bleak. But today with everyone back out driving, flying, and traveling all over, crude oil is approaching $80 per barrel and who knows what the price will be by the time you read my column. It’s always about supply-demand economics. High demand with a lack of supply raises prices; low demand and excess supply lowers prices.

There are other paths that Millennials, GenZ, and GenX can take under the current economic conditions to increase their future without purchasing a home, condo, or coop. Look at other assets that are much less costly and will be a future hedge against

inflation and the potential devaluation of the dollar going forward. Hard assets are the name of the game. Educating oneself to have a solid safety net for your current dollars would be a very prudent course of action. Throughout history, Gold, Silver, and other precious metals have been an excellent hedge against inflation. They have increasingly been used in the industrial production of cars; and in their catalytic converters, computers, and many other components and processes. However, we now have cryptocurrencies such as Bitcoin, Ethereum, and other digital assets that appear to be taking hold not only locally in the U.S. but also around the Globe. China has outlawed Bitcoin, as I believe that it was a threat to their Renminbi (RMB) which is the official currency of China called the Yuan, which is the principle unit of account for that currency. Doing your research and gaining the education and knowledge, will go a long way in ascertaining and determining where to invest your additional dollars compared to letting it sit in your bank, gaining very negligible interest. With our current rate of inflation of 3.9% (closer to 8%+ when you factor in shelter, energy, and food costs into the equation), your loss is about 7.5% of purchasing power just this past year. Not only that, you are paying income taxes on the measly interest that you are receiving, so you are in a losing position as your money continues to lose its’ value year in and year out.

Even quality stocks that pay dividends will outshine your bank interest rates. By diversifying, there hopefully will be a day, when your future wealth will continue to accumulate to a point, where homeownership will become a reality. More importantly, are you aware that if you have sufficient funds in your Roth or regular IRA or Pension Plan, as a first-time purchaser you can use that money to buy a home, also for continuing education and medical purposes. You should seek out your financial planner or CPA to further discuss your options and some may be in a much stronger position to purchase. Lastly, some sellers will provide financing, to reduce and defer their capital gains taxes on the sale of their home. Some variables have to be considered as a seller, such as current and future income, which will come into play and have a major effect on the capital gains taxes that will be owed. Current rates are from 0-20% maximum. If you need any assistance or advice or need recommendations for a CPA or CFP (Certified Financial Planner), call me for a consultation.

Philip A. Raices is the owner/Broker of Turn Key Real Estate at 3 Grace Ave Suite 180 in Great Neck. For a free 15-minute consultation, value analysis of your home, or to answer any of your questions or concerns he can be reached by cell: (516) 647-4289 or by email: Phil@ TurnKeyRealEstate.Com or via https:// WWW.Li-RealEstate.Com

with diabetes ate more fiber than those without diabetes.

But overall, we all need more. If you’ve had a colonoscopy, it’s likely your doctor recommended more fiber -- even if you got a clean report.

Here’s the latest research on fiber’s benefits:

-- A recent study in the journal Endocrinology showed that a higher dietary fiber intake may decrease the risk for depression among pre-menopausal women.

-- Adherence to a high-fiber diet may aid in mediating systemic inflammation and decrease the risk for respiratory morbidity, including asthma, according to study results published in the Annals of the American Thoracic Society.

-- High fiber consumption appeared to be associated with reduced risk for breast cancer, according to the results of a me-

ta-analysis of prospective observational studies published in Cancer.

-- Ischemic stroke risk was inversely associated with the consumption of dietary fiber, fruit, vegetables and dairy foods such as milk and cheese, according to a study published in the European Heart Journal.

So what foods are high in fiber to choose more often? You can’t go wrong with any fruit, vegetable or whole grain. But specific high-fiber foods (according to the U.S. Department of Agriculture National Nutrient Database) include raspberries, pears, apples, green peas, broccoli, Brussels sprouts, potatoes (with skin), whole wheat spaghetti, barley, bran flakes, quinoa, split peas, lentils, black beans, baked beans, chia seeds, almonds and pistachios.

Q and A

Q: Is there something I can eat to

have healthier skin?

A: Our skin is the body’s largest organ and first line of defense. And yes, the skin needs nutrients to stay strong and healthy. No single nutrient can maintain healthy skin (despite the advertisements). Variety and eating a colorful diet are key. Think about choosing a rainbow of fruits and vegetables, such as avocadoes, carrots, tomatoes, watermelon, kiwi, leafy greens and sweet potatoes. It’s also beneficial for your skin to avoid refined sugars, such as those added to items like ice cream, soda, pastries and processed foods.

Charlyn Fargo is a registered dietitian with SIU School of Medicine in Springfield, Illinois, and the current president of the Illinois Academy of Nutrition and Dietetics. . COPYRIGHT 2024 CREATORS.COM

5 Friday, May 24, 2024 Discovery Fiber Benefits
NEWS
NUTRITION

Secrets of Stress-Free Vacations with Kids

Family vacations can be either delightful or disastrous -- it depends greatly on your attitude and the care you devote to research and planning.

But first, a few basic guidelines ...

ADJUST YOUR ATTITUDE. Here is the first rule of family vacations: Parents on vacation really aren’t. If you can unload personal expectations that you will be relaxed and refreshed when it’s over, you won’t be disappointed when you’re not. And if you do get a little R&R along the way, consider it an unexpected bonus.

BE REALISTIC ABOUT THE COST. Decide ahead of time how much cash you have for this vacation. If you have, say, a family of five and $500 to spend, don’t even think about a couple of days at Walt Disney World. Always consider the money you have first, then design a vacation that will realistically fit within that financial boundary.

BE REALISTIC ABOUT TIME Don’t try to stretch your available cash to cover the maximum time you have to be away from home. Divide what you can spend by a reasonable daily budget to determine how many days you can be

gone. Carefully consider all the costs, not only the admission fees and overnight accommodations. Instead of full weeks, consider day trips or a weekend vacation. When it comes to family vacations, quality is considerably more important than quantity.

SINGLE PARENTS. It is really tough to go it alone. If you have more than one child, full vacation responsibility can be overwhelming. You need help, so consider staying with relatives or traveling with a group. Sharing the trip with another single-parent family with kids the same age can reduce costs significantly. It will relieve your anxiety and stress, too.

INVOLVE THE KIDS. If everyone is involved in making the plans and saving the money, you will prevent lots of problems. Let the kids have a say in where you will go. Talk about how much money you can spend. Show the kids what it costs to eat in a restaurant, spend the night in a hotel or buy tickets for the amusement park. In many locations, Groupon is your friend! Look at travel guides to find the best bargains for the amenities you agree on. Encourage everyone in the family to think of ways to cut back to allow more money for activities or what you have decided is top priority.

ENVELOPE METHOD. There’s nothing like a good visual to keep a vacation based in reality. Large colorful envelopes are ideal, one for each day to hold that day’s allotted cash. Design the outside for the spending record so you can keep track of where the money is going.

LIVING HISTORY MUSEUMS. There are hundreds of living history museums around the country where the past seems as real as the present and learning is a joyous adventure. Spring and summer are the best times to visit because of the many special children’s programs and family events. Many can be seen in an afternoon, while others might require the entire weekend. Start with a virtual tour of wonderful places like the Jamestown Settlement in Williamsburg, Virginia, The Henry Ford Museum in Dearborn, Michigan, and Conner Prairie in Fishers, Indiana, to name just a few. You can find hours of operation, entrance fees and programs they offer currently. Whether you will travel this summer or design a stay-at-home vacation, it’s not too early to start planning. Besides, half the fun is the anticipation!

Mary invites you to visit her at EverydayCheapskate.com, where this column is archived complete with links and resources for all recommended products and services. Mary invites questions and comments at https://www.everydaycheapskate.com/contact/, “Ask Mary.” This column will answer questions of general interest, but letters cannot be answered individually. Mary Hunt is the founder of EverydayCheapskate.com, a frugal living blog, and the author of the book “DebtProof Living.”

COPYRIGHT 2024 CREATORS.COM

How to Beat Inflation at the Supermarket

Could you handle a big announcement that overnight food costs in the United States have miraculously dropped by 20%? That you will see this miracle in your local grocery or supermarket on your next visit? You can if you pay attention and then heed what you’re about to read. Know this: There’s not one single way to reduce your family’s food costs. The key is to use a combination of strategies.

EAT THE SALES. Build your grocery list from the sale ads. If it’s not on sale, don’t buy it, at least not this week. Every supermarket and grocery store -- even the discount outlets -- have weekly sales. In fact, over a 12-week period, something in every department of that store will be on sale, and I’m talking about an authentic, fabulous sale!

LOSS LEADERS. Loss leader means the store is willing to let you buy the item

at a crazy sale price that is even lower than its cost -- just to get you through the door. They know that once you’re in, you will end up paying full price for so many other things, you’ll willingly make up for its loss many times over. But don’t fall for that! Beat them at their own game. Load up on those loss leaders if they’re items you and your family will eat and you have room to store in the pantry or freezer. Now you won’t need to rebuy until the next sale.

KNOW YOUR PRICES. Supermarkets routinely drop prices by 20% or more for loss-leader sales. That’s the time to buy. Devise a system that will keep you current on the shelf price versus a “sale” price of food items you buy on a regular basis. It might be a small notebook you carry with you or a spreadsheet you maintain in your device. Marketing campaigns take advantage of the ignorance of the buying public. You need to be smart enough to know real deals and counterfeits when you see them. It’s difficult to not find the humor in a sign that announces “Two for $5” unless you know the regular price is $2.29 each. Think I’m kidding? No! It happens all the time where I shop, and I get a good laugh every time.

USE COUPONS. These days you’re more apt to see digital coupons than paper, but the strategy still stands. Make sure you are signed up with the store you’re shopping at, then consider every coupon (paper or digital) it offers. How-

ever, just because that digital coupon will give you 25% off does not mean it deserves a place in your shopping cart! Anticipate and plan ahead. If your family doesn’t need that item, or it’s something you will never find a way to use, walk on by.

SHOP ALDI. This is a discount grocery retailer specializing in its own private-label products. ALDI prices are so low it’s like having a double coupon on everything. Instead of managing 25,000 different items like a mega-supermarket, ALDI carries just 1,300 of the most needed food products, including produce and meat. As I write, ALDI operates stores in more over 20 countries, with 2,372 locations in the U.S. (Sadly, none currently in Colorado, where I live). To find a complete list of locations, go to aldifoods.com, or call ALDI headquarters in Batavia, Illinois, at 630-879-8100.

THINK SEASONAL. Pound for pound, fresh produce can be much cheaper and more nutritional than fast food, chips, cookies, candy, soda or pre-packaged, pre-processed convenience items. But there is a catch: You have to buy what’s in season. If it’s $4.99 a pound, it’s not in season. When apples are two pounds for 99 cents, bananas 49 cents per pound and flame seedless grapes 99 cents per pound, you know they’re in season. There’s a glut on the market; this retailer needs to move those items now! There are always bargains in the produce department. Adjust your tastes accordingly.

SET LIMITS. This is the fun part. Example: I don’t spend more than $2 for a box of cereal. It’s not always available at that price, but when it’s on sale or I have coupons to match, I stock up. My personal limit for boneless skinless chicken breasts is $1.97 per pound; $2 for 16 ounces of salad dressing and so on.

CONTROL PORTIONS. Dr. Dean Edell, author of “Eat, Drink, & Be Merry,” says the healthiest diet is not one that is low on fat or high on carbs. The healthiest way to eat is to eat less -- small amounts of a large variety of foods. Rather than serving dinner family style (passing the food around the table), try restaurant style: Plate the food in the kitchen. Now the cook controls portion sizes -- a great first step to reversing overconsumption.

Mary invites you to visit her at EverydayCheapskate.com, where this column is archived complete with links and resources for all recommended products and services. Mary invites questions and comments at https://www.everydaycheapskate.com/contact/, “Ask Mary.” This column will answer questions of general interest, but letters cannot be answered individually. Mary Hunt is the founder of EverydayCheapskate.com, a frugal living blog, and the author of the book “DebtProof Living.”

COPYRIGHT 2024 CREATORS.COM

6 Discovery Friday, May 24, 2024 EVERYDAY CHEAPSKATE

Week of May 26 -- June 1, 2024

Bees are pretty remarkable creatures. Each has five eyes and six legs, and their two pairs of wings beat more than 11,000 times per minute. One hive can contain as many as 50,000 bees, and in one year some can produce a hundred pounds of honey.

Bees have populated our planet for some 30 million years, but in the nighttime sky we can see a beehive that’s been around more than 20 times longer. It’s known as ... well, the Beehive, and it can be found among the stars of the faint constellation Cancer.

Astronomers know the Beehive as an open star cluster, and it’s visible every spring night if you’ve got some patience, along with a nice clear, dark sky.

High in the western sky after dark, look for the bright star Regulus, part of the constellation Leo. It marks the bottom of a backward question mark of stars that might be imagined to outline the lion’s head. Lower in the west lie two nearly equally bright stars known as Castor and Pollux. These mark the heads of the twin brothers of ancient Greek mythology: Gemini.

This star cluster lies about one-third of the way between Pollux and Regulus. It appears as a faint, hazy smudge of light to the unaided eye -- assuming, of

“Oh no!” I cried from the bathroom.

“Honey,” my husband said, “what’s wrong? Are you OK?” He ran into the room, wondering, I’m sure, what kind of tragedy could have transpired with only me, the sink and the toilet present.

“I’ve made a terrible mistake,” I said, looking at him forlornly.

“What?!” he asked.

“I used my night cream instead of my day cream, and it’s daytime.”

He stared at me blankly.

“What do you think is going to happen?” I asked him.

“I guess your face is going to fall asleep,” he replied and left the room.

I knew my husband thought it was ridiculous that one person needed so many creams. I have my day cream and my night cream, which is heavier than my day cream because apparently one needs more moisture on their face when they sleep. I have night eye cream and day eye cream for the same reason.

STARGAZERS

The Celestial Beehive

course, your sky is dark and clear, and you have good eyesight. If not, check out the area with binoculars, and you’ll be sure to find it.

The Beehive has been known at least as far back as the ancient Greek writer Aratos in 260 B.C. Some 130 years later, Hipparchus listed it in his star catalog as “Little Cloud” or “Cloudy Star.” Makes sense, as that’s exactly how it looks.

But ancient sky watchers didn’t just catalog this sight; they used it to forecast the weather. Both ancient philosophers Aratos and Pliny wrote that when it was visible the skies would be fair, but when it wasn’t, a storm was on its way. Makes one wonder just how a cluster of stars more than three thousand trillion miles from us could foretell weather on Earth, but in a strange way, it can help. It works fairly well because high, thin cirrus clouds (which may be invisible at night) often precede a storm and can easily obscure this faint cluster while leaving the brighter stars seemingly unaffected.

When astronomers turned the newly invented telescope toward this “cloudy star” in the 17th century, they learned its true nature. Today, even binoculars show this smudge as a beautiful cluster of hundreds of stars that inspire its proper name: the Praesepe or Beehive, perhaps because, through a telescope,

it appears as a mass of bees swarming around their hive.

We now know the Beehive lies some 577 light years from us, meaning its light we see tonight began its long journey toward our eyes in the year 1447.

If you view the sky from a dark location far from the blinding lights of

a city, you’ll discover the Beehive isn’t that tough to find. I hope you’ll get out one night soon to enjoy our little apian friends glistening in the heavens!

Visit Dennis Mammana at dennismammana.com.

COPYRIGHT 2024 CREATORS.COM

LOST IN SUBURBIA

The Cream of the Crop

These are for the fine lines under my eyes which, apparently, are not moisturized enough by the other creams I put on my face. I have something called a retinol which I’m told is necessary because I’m in my 50s and the retinol helps speed up the regeneration of my skin cells, which must be dying off at the same rate as the aged eggs in my ovaries.

Then I have a neck cream (for the delicate neck area) that feels suspiciously like the day and night creams I already use. I’ve been told the neck creams have different anti-aging and tightening properties which, it would seem, could easily and less expensively be handled by wearing a turtleneck instead. Then there are the moisturizers with sunscreen built in, the primers with sunscreen built in, and the really expensive, really tiny jar of cream that smells like seaweed because it’s made of seaweed and has extra-special firming properties. I have no idea if they work because, honestly, who wants their face

to smell like fish?

When I was in college, I was a moisturizer virgin and really had no idea what, if any, lotions or creams I needed to maintain my perfect, 20-year-old skin. Every night, my roommate routinely slathered this stuff, which quite possibly smelled worse than the seaweed cream they make today, on her face. I haven’t seen her in 30 years, so I can’t tell you if the stuff worked, but I assume the smell of her moisturizer was so offensive the smell alone would have caused any aging skin cells she might have had to jump ship.

Naturally, I’ve tried to cut down on the number of creams I use mainly because:

A) They’re costly.

B) They take up a lot of room in my medicine chest.

C) I have to explain this whole thing all over again to the Transportation Security Administration agents every time I travel, and they wonder why I have so many creams and lotions for

one person who has only one face and is only going away for three-day trip. But when I explain the lotions have multiple uses and can also be used as bug repellent, hoof and mane cream for horses, and motor oil, I usually sail right through.

Knowing that all of this was pretty ludicrous, I decided it made sense to pare down all the creams to what was absolutely necessary.

I was just about to do this when I realized the night cream had just kicked in, and I had to take a nap because my face had fallen asleep.

Tracy Beckerman is the author of the Amazon Bestseller, “Barking at the Moon: A Story of Life, Love, and Kibble,” available on Amazon and Barnes and Noble online! You can visit her at www. tracybeckerman.com.

COPYRIGHT 2024 CREATORS.COM

7 Friday, May 24, 2024 Discovery
The Beehive Cluster can be seen within the constellation Cancer.

ONE CALL TO 516-294-8900 AND YOUR AD WILL APPEAR IN 11 LOCAL NEWSPAPERS. CALL TODAY FOR OUR VERY LOW RATES. www.gcnews.com

Garden City News • Mid Island Times • Bethpage Newsgram

Syosset Advance • Jericho News Journal Williston Times - Mineola Edition

New Hyde Park Herald Courier • Manhasset Times

Roslyn Times • Port Washington Times • Great Neck News

DEADLINE FOR CLASSIFIED ADS IS TUESDAY AT 1:00PM.

2 EASY WAYS TO PLACE ADS:

1) Directly on website: gcnews.com & click on “Classified Order”

2) Email Nancy@gcnews.com

EMPLOYMENT

HELP WANTED

BOOKKEEPER WANTED

Twice a month-6 hours daily. $18p/h. Comfortable with numbers. Will train. Please call 917-705-7564. Leave message.

SITUATION WANTED

A HOME AIDE/CAREGIVER

EMPLOYMENT

SITUATION WANTED

AIDE/CARE GIVER: Caring, Efficient, Reliable. Available FT Live In, Nights, Overnights & Weekends to care for your sick or elderly loved one. Cooking, tidy up, personal grooming, administer medications. 15 years experience. References available. Fully Vaccinated. Please Call 516-951-8083

CNA / HOME HEALTH AIDE MATURE LADY SEEKS employment as CNA. Home health aide, very reliable, hard working, willing to do background checks, 15 yrs nursing home experience. Please call: 516-514-9442 or 516-410-1892

We are looking for energetic applicants who love working with children! Looking to fill multiple Director, Assistant Director, Group Leader and Substitute positions. All positions are part time and can accommodate flexible schedules. Competitive Wages • Signing Bonus Referral Bonus • Scholarship Program

Please call Renee Mercer at 631-360-0800 ext. 149 or send a resume to cc@scopeonline.us

THERAPY USERS! Discover Oxygen Therapy That Moves with You with Inogen Portable Oxygen Concentrators. FREE information kit. Call 1-855-399-2719

GET BOOST INFINITE! Unlimited Talk, Text and Data For Just $25/mo! The Power Of 3 5G Networks, One Low Price! Call Today and Get The Latest iPhone Every Year On Us! 844-329-9391

HEARING AIDS!! High-quality rechargeable, powerful Audien hearing aids priced 90% less than competitors. Tiny and NEARLY INVISIBLE! 45day money back guarantee! 855-598-5898

EMPLOYMENT BUSINESS OPPORTUNITIES ANNOUNCEMENTS ATTENTION OXYGEN
get results. Call 294.8900
CLASSIFIEDS ...a sure way to
8 Friday, May 24, 2024 Classifieds HHAs, LPNs, Nurse’s Aides, Childcare, Housekeeping & Day Workers SERVING THE COMMUNITY FOR OVER 20 YEARS EVON’S SERVICES 516-505-5510 No Fee to Employers WE HAVE THE HELP YOU NEED! A MESSAGE FROM SUPERVISOR JENNIFER DeSENA & THE NORTH HEMPSTEAD TOWN BOARD LIFEGUARDS WANTED FOR OUR POOLS AND BEACH STARTING AT $18 PER HOUR
15 YEARS OLD (MINIMUM) • CURRENT LIFEGUARD CERTIFICATION
CURRENT CPR/AED FOR THE PROFESSIONAL RESCUER • COMPETITIVE STARTING PAY
GREAT SUMMER HOURS
LEARN TEAMWORK
BUILD LEADERSHIP SKILLS REQUIREMENTS HOW TO APPLY: FOR MORE INFORMATION: BENEFITS VISIT MICHAEL J. TULLY PARK: 1801 EVERGREEN AVE. NEW HYDE PARK 11040 TO PICK UP AN APPLICATION A VALID DRIVER’S LICENSE, SOCIAL SECURITY CARD AND/OR PASSPORT, WORKING PAPERS (IF UNDER 18 YEARS OLD), LIFEGUARD CERTIFICATION, AND CPR CERTIFICATION IS REQUIRED TO SUBMIT APPLICATION CALL 311 OR (516) 869-6311 Email Parks@northhempsteadny.gov TULLY FRONT DESK (516) 739-3055 OR (516) 739-8055 EMPLOYMENT HELP WANTED Work For A Company That Rewards Your Experience EDUCATIONAL BUS TRANSPORTATION 516.454.2300 Positions available for Nassau & Suffolk Positions available for mechanics and bus attendants Don’t miss an opportunity for a great job where you can serve your community and make good money too. • Training provided to obtain your commercial drivers license NEW STARTING SALARIES • BUS: $28.15 hr •VAN: $25.76 hr Equal Opportunity Employer WE OFFER: • Flexible hours • 401K plans with matching funds • Health & Life insurance • Emergency family leave • Safety and attendance bonus twice a year RETIREES WELCOME! We Have Openings for School Bus & Van Drivers SIGN ON BONUS $2,500 FOR CDL DRIVERS Bus & Van $500 For Non CDL Drivers Will train qualified applicants We guarantee 30 hours per week EMPLOYMENT HELP WANTED SCOPE Education Services is now hiring for the
located in
Elementary Schools!
2024–2025 school year in all of the Before and After School Programs
the Garden City
EMPLOYMENT HELP WANTED Advertise your services in our Classifieds section for guaranteed customers! Call 294-8900 for rates/info.

MARKETPLACE

A.T. STEWART EXCHANGE CONSIGNMENT SHOP

516-746-8900

Antiques-FurnitureJewelry-Silver-MirrorsLamps-Artwork

Come to Consign & Stay to Shop

Visit....

Our Shop

109 Eleventh St.

Garden City

Mon-Fri 10-4 (Wed till 6) Saturday 12-4

Shop Our Online Store ATStewartExchange.org

Items to Consign?

Email photos (with sizing info) to: store@atstewartexchange.org

All proceeds benefit The Garden City Historical Society

Like us on Facebook & Instagram

INVITED ESTATE SALES

BY TRACY

is doing VIRTUAL TAG SALES and ONLINE AUCTIONS now! Sell the contents of an entire house or sell just a few things! You can host your own sale on invitedsales.com and Facebook and Instagram or we can do it for you. We can photograph, advertise and handle the win ning pickups for you within a week! Don’t worry about your closing date, we can get your house ready on time! We are a one stop service for all your needs when you are moving or selling a property! Selling, donating, discarding and clean ing out services can be done to meet your time frame with minimal stress.

Contact info@invitedsales.com for more information or call 516-279-6378 to schedule a consultation or receive more information.

Visit us at www.invitedsales. com for a listing of our upcoming Virtual Tag Sales and Weekly Auctions!

MARKETPLACE

AUCTIONS

INVESTMENT OPPORTUNITY ONLINE AUCTION: 5/15/31 Bar & Grill with Brewery Equipment. 126 N. 3rd Street, Douglas, Wyoming. 10,900 SF Retail, TURN-KEY OPERATION! Sale Info: 800-5361401, x.401 AuctionsInternational.com Promo code: WESTBID24

WANTED TO BUY

LOOKING TO BUY!

Estates, Oriental items, Gold, Silver, Costume Jewelry, Dishes, Flatware, Watches, Clothing, Old Photos, Coins, Stamps, Records, Toys, Action Figures, Comics, Art and Furniture. Immediate Cash Paid Call George 917-775-3048 or 718-386-1104

AUTOMOTIVE AUTOS WANTED ***AAA*** AUTO BUYERS $Highest$ Ca$h Paid$ All Years /Conditions! WE VISIT YOU! Or Donate, Tax Deduct Ca$h. DMV ID#1303199 Call LUKE 516-VAN-CARS 516-297-2277 9 Friday, May 24, 2024 Classifieds CLASSIFIEDS Call 294.8900 $2500 OFF. Get your dream kitchen remodel today and take 855.281.6439 Up to 10-15% O maintenance-free cabinet door collections. Cannot be combined with any other o ers. O er valid during initial consultation only. Does not apply to prior purchases. Homeowner must complete their free design consultation by 6/30/2024 to qualify for this promotion. NYLicense#Nassau:H1759490000 Su olk:16183H NY/Rockland:5642. CALL NOW 855.564.2680 YOUR BATHROOM. YOUR WAY. IN AS LITTLE AS ONE DAY SPECIAL OFFER Waiving All Installation Costs Add’l terms apply. Offer subject to change and vary by dealer. Expires 6/30/2024. DENTAL Insurance Physicians Mutual Insurance Company A less expensive way to help get the dental care you deserve! FREE Information Kit 1-855-225-1434 Visit us online at www.dental50plus.com/nypress Get help paying dental bills and keep more money in your pocket This is real dental insurance — NOT just a discount plan You can get coverage before your next checkup CALL NOW! 1-855-225-1434 Don’t wait! Call now and we’ll rush you a FREE Information Kit with all the details. Product not available in all states. Acceptance is guaranteed for one insurance policy/certificate of this type. This specific offer is not available in CO: call 1-800-969-4781 for a similar offer. For complete details about this solicitation of insurance, please contact us. Certificate C250A (ID: C250E; PA: C250Q); Insurance Policy P150 (GA: P150GA; NY: P150NY; OK: P150OK; TN: P150TN) 6129-1118 One time use only. Cannot be used in conjunction with any other coupon or offer. Valid for any new service except subscription fees. Must coupon at the time of sale. 1-877-482-8771 SCHEDULE YOUR APPOINTMENT TODAY! *Special price is for first Lawn service only. Requires purchase of annual plan, for new residential EasyPay, MonthlyPay, or PrePay customers only. Valid at participating TruGreen locations. Availability of services and/or products may vary by geography. Not to be combined with or used in conjunction with any other offer or discount. Additional restrictions may apply. Consumer responsible for all sales tax. ◆Guarantee applies to annual plan customers only. BBB accredited since 07/01/2012. ©2024 TruGreen Limited Partnership. All rights reserved. In Connecticut, B-0153, B-1380, B-0127, B-0200, B-0151. Your First Application 50% OFF* Save now with Get the most out of your lawn this spring. We’re looking for writers in our community to compose articles on local topics, opinions, reviews, worthy places to visit on Long Island, and even pieces of fiction. We aim to feature at least one new article and writer each week in our Discovery magazine section. Love to write? Email submissions: editor@gcnews.com • Attach article and any photos (1MB), along with your name and contact info. • Articles must be between 1,500 – 3,000 words. • Each writer will be reimbursed a stipend of $25.⁰⁰ 126 N. 3rd Street, Douglas, Wyoming Investment Opportunity 10,900 SF Retail Bar & Grill with Brewery Equip. TURN-KEY OPERATION Online Auction May 1-31 BID FREE w/ auctionsinternational.com Sale info: 800-536-1401 *INTERESTED IN BECOMING A SALES REP? 800-536-1401 X 401 Bid FREE w/ Promo WESTBID24

APARTMENT FOR

GARDEN CITY

APARTMENT FOR RENT

Garden City Luxury Apartment, 3.5 rooms. 1 BR, EIK, High Hats, Wood Floors. Parking included.

Available June 1. $3,400 / monthly Garden City Properties 516-313-8504

OFFICE SPACE

WILLISTON PARK PROFESSIONAL OFFICE

Space for rent. Beautifully shared Office Space. Partially Furnished-2 Exec. Offices. Reception Area, Main Floor, Private Parking. $1900-p/m. Please call 516-248-4080

VACATION RENTAL

MATTITUCK, 2 Bayfront Homes For Rent.

One 3 BR, 2 BTH, One 2 BR, 1 1/2 BTH House. Available the weeks of June and July. 3 BR House $2100-per week. 2 BR House $1900-per week. IDEAL FAMILY VACATION Call 516-434-8430

REAL ESTATE WANTED

APARTMENT WANTED

APARTMENT WANTED

Wanted 2 Bedroom Apartment. Mint condition. Phone- John Koerner 516-269-9107.

SERVICES

INJURED IN AN ACCIDENT?

Don’t Accept the insurance company’s first offer. Many injured parties are entitled to major cash settlements. Get a free evaluation to see what your case is really worth. 100% Free Evaluation. Call Now: 1-888-454-4717. Be ready with your zip code to connect with the closest provider

JACK’S CUSTOM FRAMING We can frame anything! Quality Care & Workmanship

Thousands of frames to choose from!!

Over 30 years in business! 92 Covert Ave, Stewart Manor 516-775-9495

SAVE ON YOUR TRAVEL PLANS! Up to 75% More than

and 300,000

TELS across the world. Let us do the research for you for FREE! Call: 877 988 7277

CLASSIFIEDS Call 294.8900 10 Friday, May 24, 2024 Classifieds One touch of a button sends help fast, 24/7. alone I’m never Life Alert® is always here for me. I’ve fallen and I can’t get up! Help at Home with GPS! Help On-the-Go For a FREE brochure call: 1-800-404-9776 Saving a Life EVERY 11 MINUTES Batteries Never Need Charging. Do you have a ser vice to adver tise? Our Service Directory is sure to bring results. Call 516-294-8900 for rates and information. REAL ESTATE FOR RENT
RENT
FINANCING AVAILABLE WITH APPROVED CREDIT Call today and receive a FREE SHOWER PACKAGE PLUS $1600 OFF With purchase of a new Safe Step Walk-In Tub. Not applicable with any previous walk-in tub purchase. Offer available while supplies last. No cash value. Must present offer at time of purchase. CSLB 1082165 NSCB 0082999 0083445 1-855-916-5473 Receive a free 5-year warranty with qualifying purchase* - valued at $535. Call 877-516-1160 to schedule your free quote! Offer expires 8/31/2024. Not valid with other offers or prior purchases. Buy one (1) window or entry/patio door, get one (1) window or entry/patio door 40% off, and 12 months no money down, no monthly payments, no interest when you purchase four (4) or more windows or entry/patio doors between 5/1/2024 and 8/31/2024. Additional $100 off your purchase, minimum purchase taken after initial discount(s), when you purchase by 8/31/2024. 40% off windows and entry/patio doors are less than or equal to lowest cost window or entry/patio door in the order. Subject credit approval. Interest billed during the promotional period, but all interest waived the purchase amount paid before the expiration the promotional period. Financing for GreenSky® consumer loan programs provided by federally insured, federal and state chartered financial institutions without regard to age, race, color, religion, national origin, gender, familial status. Savings comparison based on purchase single unit at list price. Available at participating locations and offer applies throughout the service area. See your local Renewal by Andersen location for details. CA License CLSB #1050316. Central CA License #1096271. License #RCE-50303. OR License #198571. WA License #RENEWAP877BM. WA License #RENEWAW856K6, FL License #CGC1527613. All other license numbers available upon request. Some Renewal by Andersen locations are independently owned and operated. “Renewal by Andersen" and all other marks where denoted are trademarks their respective owners. © 2024 Andersen Corporation. All rights reserved. RBA13669 Save on Windows and Doors! Minimum purchase of – interest accrues from the date of purchase but is waived if paid in full within 12 months. Affordable Financing! NO Money Down, NO Monthly Payments, NO Interest for 12 months 40%OFF Buy One, Get One YOUR ENTIRE PURCHASE Take an Extra $100 OFF AND AND ALL WINDOWS AND DOORS 888-610-7738 Call by August 31 to schedule your FREE consultation. + See Representative for full warranty details. *One coupon per household. No obligation estimate valid for 1 year. 1Subject to credit approval. Call for details AR #0366920922, CA #1035795, CT #HIC.0649905, FL #CBC056678, IA #C127230, ID #RCE-51604, LA #559544, MA #176447, MD #MHIC148329, MI # 2102212986, #262000022, #262000403, #2106212946, MN #IR731804, MT #226192, ND 47304, NE #50145-22, NJ #13VH09953900, NM #408693, NV #86990, NY #H-19114, H-52229, OR #218294, PA #PA069383, RI #GC-41354, TN #7656, UT #10783658-5501, VA #2705169445, WA #LEAFFNW822JZ, WV #WV056912 20 10 % % OFF OFF Your Entire Purchase* Seniors + Military ++ We o er financing that fits your budget!1 1-855-478-9473 CALL TODAY FOR A FREE INSPECTION! Make the smart and ONLY CHOICE when tackling your roof! Before After New orders only. Does not include material costs. Cannot be combined with any other offer. Minimum purchase required. Other restrictions may apply. This is an advertisement placed on behalf of Erie Construction Mid-West, Inc (“Erie”). Offer terms and conditions may apply and the offer may not available in your area. If you call the number provided, you consent to being contacted by telephone, SMS text message, email, pre-recorded messages by Erie or its affiliates and service providers using automated technologies notwithstanding if you are on a DO NOT CALL list or register. Please review our Privacy Policy and Terms of Use on homeservicescompliance. com. All rights reserved. License numbers available at eriehome.com/erie-licenses/ 1.855.492.6084 FREE ESTIMATE LIMITED TIME OFFER! SAVE! UP TO 50% INSTALLATION OFF MADE IN THE U.S.A. Expires 7/31/2024
500 AIRLINES
HO-

CLASSIFIEDS Call 294.8900

SERVICES

ATTORNEY

STEPHANIE A.

D’ANGELO, ESQ.

Elder Law, Wills & Trusts

Asset Preservation, Estate Planning, Probate & Estate Administration/Litigation 901 Stewart Ave, Ste 230 Garden City, NY 11530 516-222-1122 www.dangelolawassociates. com

HOME IMPROVEMENTS

ALARM SYSTEMS

FIRST CALL SECURITY

Serving Garden City & Surrounding areas for over 20 years.

Free Switchovers

We Service All Brands Installation, Expert Service Control Your Alarm With Your Smartphone No Phone Line, No Problem! Call Now For Free Estimate... 516-747-9111

AQUATEC LAWN SPRINKLERS

SPRING TURN ONS

Backflow Device Tests Free Estimates Installation Service/Repairs

Joe Barbato 516-775-1199

BEAUTIFUL BATH UPDATES in as little as ONE DAY! Superior quality bath and shower systems at AFFORDABLE PRICES! Lifetime warranty & professional installs. Call Now! 1-855-399-2076

DO YOU NEED A ROOF OR ENERGY EFFICIENT WINDOWS & HELP PAYING FOR IT? YOU MAY QUALIFY THROUGH NEW RELIEF PROGRAMS (800) 944-9393 or visit NYProgramFunding.org to qualify. Approved applications will have the work completed by a repair crew provided by: HOMEOWNER FUNDING. Not affiliated with State or Gov Programs.

HOME IMPROVEMENTS

LITO REMODELING & CONSTRUCTION

Retaining Walls, Concrete Work, Brick Work, Foundations, Sidewalks, Bathrooms, Floor Tiles, Stoops, Blacktop Retouching, Blacktop Painting. Demolition. Licensed & Insured.

Call 516-376-9365 or 516-435-7007

Please leave message

SERVICES

HOME IMPROVEMENTS

MADE IN THE SHADE CUSTOM WINDOW TREATMENTS

Blinds, Shades, Shutters, Draperies

Top Brands at Discount Prices! Family owned & operated www.madeintheshadensli. com

516-426-2890

MASONRY

All types of stonework

Pavers, Retaining Walls, Belgium Block Patios, Foundations, Seal coating, Concrete and Asphalt driveways, Sidewalks, Steps. Free Estimates

Fully Licensed & Insured #H2219010000

Boceski Masonry Louie 516-850-4886

PAULIE THE ROOFER STOPPING LEAKS IS MY SPECIALTY!

Slate & Tile Specialists

All types of Roofing Local References Licensed & Insured 516-621-3869

HEALTH SERVICES

FAMILY CARE CONNECTIONS, LLC

Dr. Ann Marie D’Angelo PMHCNS-BC

Doctor of Nursing Practice

Advanced Practice Nurse Care Manager

Assistance with Aging at Home /Care Coordintion

Nursing Home & Assisted Living Placement

PRI / Screens / Mini Mental Status Exams

Medicaid Eligibility and Apllications 516-248-9323 www.familycareconnections.com 901 Stewart Ave, Ste 230 Garden City, NY 11530

FREEDOMCARE. Let your loved ones care for you and get paid! Paid by Medicaid. Choose family or friends as your paid caregiver. Check your eligibility today! Call FreedomCare now! 1-855-385-7556

PAINTING & PAPERHANGING

INTERIOR & EXTERIOR PAINTING

Plastering, Taping, Sheetrock Skim Cutting, Old Wood Refinish, Staining, Wallpaper Removal & Hanging, Paint Removal, Power Washing, Wood Replacement JOHN MIGLIACCIO Licensed & Insured #80422100000 Call John anytime: 516-901-9398 (Cell) 516-483-3669 (Office)

Slide these sandwiches into meal plans

Pork Sliders with Horseradish Aioli

Sliders are pint-sized sandwiches that pack a wallop of flavor into each bite. There are different stories regarding how sliders came to be. Some posit that the name came from the fact that sliders being so small can easily “slide down the throat,” a concept attributed to hungry American sailors during WWII. The burger chain White Castle also lays claim to the slider name, having built its brand upon these modest burgers.

Although sliders are most often associated with hamburgers, modern recipes utilize different types of fillings between the buns. Because they’re small, sliders also are great for sampling different flavors, with two or more sliders being paired together on a dish. Those who want to try something different with their sliders can opt for “Rosemary Pork Sliders with Horseradish Aioli” from “Cooking Light: Dinner’s Ready” (Oxmoor House) from the Cooking Light Kitchens.

Makes 24

1 1½-pound boneless pork loin roast, trimmed ½ teaspoon freshly ground black pepper Cooking spray

1 cup water

1. Sprinkle pork with pepper. Heat a large skillet over medium-high heat. Add pork; cook 3 minutes on each side or until browned. Transfer pork to a 3-quart slow cooker coated with cooking spray. Add 1 cup water and next four ingredients to slow cooker. Cover and cook on low for 8 hours or until tender.

1 cup fat-free, lower-sodium chicken broth

1⁄2 cup vertically sliced shallots (2 large)

1 tablespoon chopped fresh rosemary

4 garlic cloves, minced

2. Remove pork from slow cooker; place in a bowl. Shred pork with 2 forks. Pour cooking liquid through a sieve into a bowl, reserving shallots and garlic. Add ¾ cup of strained cooking liquid, shallots and garlic to pork; toss well. Discard remaining cooking liquid.

3. Combine mayonnaise and

¾ cup canola mayonnaise

2 teaspoons prepared horseradish

24 wheat slider buns, split and toasted

2 cups arugula

horseradish in a small bowl. Spoon about 2 tablespoons pork mixture on bottom half of each bun. Top evenly with arugula. Spread 1½ teaspoons mayonnaise mixture on cut side of each bun top. Cover sliders with bun tops.

PAINTING & PAPERHANGING

JV PAINTING

INTERIOR / EXTERIOR PAINTING. HANDYMAN. We can help with most jobs. Licensed and Insured. Call John 516-732-8937

Getting married?

Email editor@gcnews.com to put your engagement or wedding announcement in this paper.

PARTY HELP

LADIES & GENTLEMEN

RELAX & ENJOY

Your Next Party! Catering and Experienced Professional Services for Assisting with Preparation, Serving and Clean Up Before, During and After Your Party Bartenders Available. Call Kate at 516-248-1545

AFFORDABLE TV & INTER-

Termite,

SERVICES
SERVICES
SERVICES SERVICES
NET.
service,
11 Friday, May 24, 2024 Classifieds
If you are overpaying for your
call now for a free quote and see how much you can save! 1-855-399-2803 PEST CONTROL: PROTECT YOUR HOME from pests safely and affordably. Roaches, Bed Bugs, Rodent,
Spiders and other pests. Locally owned and affordable. Call for service or an inspection today! 1-866-448-8311 Have zip code of property ready when calling!
CLASSIFIEDS Call 294.8900 12 Friday, May 24, 2024 Classifieds About to hit a milestone? Share your life accomplishments with your neighbors! Put your engagement, wedding, or baby announcement in the paper. It’s free of charge for subscribers! Email editor@gcnews.com
SERVICE DIRECTORY Call 294.8900 FAMILY OWNED & OPERATED MASONRY • PAVING • CONCRETE FREE ESTIMATES LOU: 516 850-4886 LIC: #H2219010000 FULLY INSURED Contracting LLC DRIVEWAYS & PARKING LOTS RETAINING WALLS FOUNDATIONS DRYWELL WATER DRAINAGE WATER PROOFING SIDEWALKS PATIOS / PAVERS BRICK / BLOCK BLUE STONE STEPS / STOOPS BELGIUM BLOCK CULTURED STONE MASONRY ANTIQUES $$ Top Cash Paid $$ HIGH END ANTIQUES HIGH CASH PAiD Damaged Quality Pieces also wanted Oil Paintings,Mid-Century Accessories 1950s/60s, Porcelain,Costume Jewelry,Sterling Silver,Gold, Furniture,Objects of Art,etc. • 1 Pc.or entire estates • CALL JOSEPHOR R UTH 718-598-3045 or 516-270-2128 AntiqueAssets.com Buying and Selling over 40 Years / Member New England Appraisers Association Family Business for over 40 years Premium prices paid for Tiffany, Meissen Porcelain,Bronzes, Marble,etc. CARPENTRY Sweeney Custom Carpentry and PAINTING 516-884-4016 Lic# H0454870000 Crown Molding Window Molding Base Molding Picture Frame Molding New Doors Old Plaster Removed New Drywall Installed Rotted Wood Replaced SECURITY SPECIALISTS (516) 747-9111 ALARM SYSTEMS • Free Switchovers • We Service All Brands • Installations, Expert Service • Control Your Alarm With Your Smartphone • No Phone Line, No Problem! firstcallsecurity.com Serving Garden City & The SurroundingAreas For Over 25 Years JUNK CAR BUYERS WE BUY JUNK CARS & TRUCKS FREE SAME DAYREMOVAL • 7-DAY/ 24 HOUR • FREE PICK-UP CALLOR TEXT NOW (516) 497-8898 TOP$$ PAID FOR YOUR CAR OR TRUCK WWW.JUNKCARBUCKS.COM NO KEYS! NO TITLE! NO PROBLEM! 41 Friday, May 24, 2024 The Garden City News CUSTOM FRAMING JACK’S CUSTOM FRAMING We can frame anything! 516-775-9495 Over 30 Years in Business Quality Care & Workmanship Thousands of frames to choose from 92 Covert Ave., Stewart Manor HOURS: Tuesday - Saturday 10-5 @jacks_custom_framing jackmccullough@me.com WINDOW TREATMENTS *CUSTOM WINDOW TREATMENTS TOP BRANDS AT DISCOUNT PRICES* WE BRING THE SHOWROOM TO YOU FREE CONSULTATION 516-426-2890 WWW.MADEINTHESHADENSLI.COM FAMILY OWNED & OPERATED ROOFING ALL RENOVATIONS, EXPERT LEAK REPAIRS 516-428-5777 Liability, Disability & W/C Ins FREE ESTIMATES Licensed & Insured / Lic.# H18C6020000 EXPERTS IN LEAK REPAIRS CJM CONTRACTING INC. CHRIS MULLIN • Fire flood and mold remediation • Dormers & Extensions • Bathrooms • Roofing • Attics • Brickwork • Stoops • Waterproofing • Painting • Windows • Power Washing • Plumbing • Electric 20%OFF We Specialize in Residential and Commercial Roofing. Flat roofing, Shingle, Roller, Granule, Silicone, Seal coating, Flashing,Chimneys, Pointing, Brick work, Stucco work, Waterproofing and complete stoops and repairs. Advertising on this page is only open to N.Y.S. Licensed Professionals. Call 294-8900 and let us begin listing you in our Professional Guide and Professional Services pages. Deadline is Monday, 12 Noon
SERVICE DIRECTORY Call 294.8900 PAINTING/POWER WASHING • INTERIOR / EXTERIOR • B. Moore Paints • Power Washing • Dustless Sanding Vacuum System • Taping • Spackling • Plaster Removed • New Drywall Sweeney Custom Painting and CARPENTRY 516-884-4016 Lic# H0454870000 JUNK REMOVAL www.1866WEJUNKIT.com 516-541-1557 ALL PHASES OF RUBBISH REMOVAL & DEMOLITION • Residential • Commercial Construction Sites Kitchens • Bathrooms Clean-Ups • Attics Basements • Flood/Fire Bob Cat Service DEMOLITION AND JUNK REMOVAL DEMOLITION AND JUNK REMOVAL SERVICES We Rip-Out or Remove Anything & Everything! We Clean It Up & Take It Away! Residential & Commercial 516-538-1125 FREE ESTIMATES STRONG ARM CONTRACTING INC. TREE SERVICE OLD VILLAGE TREE SERVICE 24 HOUR EMERGENCY SERVICE Owner Operated Since 1989 516-466-9220 Licensed & Insured FREE ESTIMATES Member L.I. Arborist Assoc. LAWN SPRINKLERS • System Turn-Ons • Backflow Device Tests • Free Estimates • Installation • Service/Repairs Joe Barbato (516) 775-1199 42 Friday, May 24, 2024 The Garden City News ROOFING About to hit a milestone? Share your accomplishments with our readership! Put your engagement, wedding, baby announcement, or more in ou paper. It's free of charge for subscribers! Email editor@gcnews.com ADVERTISE YOUR SERVICE HERE Call 294.8900 For Rates and Information
HOME IMPROVEMENT ALL RENOVATIONS, EXPERT LEAK REPAIRS 516-428-5777 Liability, Disability & W/C Ins FREE ESTIMATES Licensed & Insured / Lic.# H18C6020000 SMALL JOBS WELCOME Having Hardships? We’ll Help and Bring Hope CJM CONTRACTING INC. CHRIS MULLIN Specializing in General Contracting Including Churches & Cathedrals • Fire flood and mold remediation • Dormers & Extensions • Bathrooms • Roofing • Attics • Brickwork • Stoops • Waterproofing • Painting • Windows • Power Washing • Plumbing • Electric 20% OFF HANDICAPPED HOUSE MODIFICATIONS, WALK IN TUBS, WALK-IN SHOWERS, RAMPS, ELEVATORS, HANDICAP BARS. WE INSTALL HANDICAP BATHROOMS ANYWHERE IN YOUR HOUSE 20%OFF SERVICE DIRECTORY Call 294.8900 HOME IMPROVEMENT EXPERT BATHROOM REPAIRS OPPORTUNITY KNOCKS... Each week, Litmor Publications publishes the ads of providers in our Classifieds, Professional Guide and Service Directory. A 6-week agreement brings your specialty or service to the attention of the community in a public service format. LET US BEGIN LISTING YOU IN OUR NEXT ISSUE. For More Information and Rates, Call Nancy 516.294.8900 Email: Nancy@gcnews.com Include name, daytime phone number, address and email. Deadline for Professional Guide or Service Directory is Monday, 12 Noon. Deadline for Classified is Tuesday, 1pm Advertising in the Professional Guide is only open to N.Y.S. Licensed Professionals. 43 Friday, May 24, 2024 The Garden City News #1 PAINTER IN YOUR NEIGHBORHOOD FREE ESTIMATES CALL: 718-709-7000 FAMILY OWNED AND OPERATED SINCE 1985  Highly Professional & Trained Painters  Locally Owned & Operated  Fully Licensed & Insured For Your Peace Of Mind  We Use Only The Highest Industry Standard Preparation & Materials ✔ Exterior Painting ✔ Interior Painting ✔ Wallpaper Removal & Installation ✔ Hardwood Floor Refinishing ✔ Powerwashing ✔ Carpentry 10% OFF ANY INTERIOR OR EXTERIOR PAINTING JOB WHY CHOOSE US? www.silvaspainting.com PAINTING/POWER WASHING Interior and Exterior • Plaster/Spackle Light Carpentry • Decorative Moldings Power Washing www.MpaintingCo.com PAINTING & WALLPAPER est. 1978 516-385-3132 New Hyde Park 516-328-7499 Licensed & Insured

LIFHA Field Hockey registration

Calling all rising third grade girls! The Long Island Field Hockey Association (LIFHA) is registering players for the 2024 season. LIFHA is a learning league for players in third–sixth grade, currently in its 21st year. Games are scheduled to be played on Sundays in the

fall against other clubs from Nassau & Suffolk Counties, both home and away, beginning September 15 and running through the end of October.

Join the fun! Garden City girls can send registration through June 21.  The registration form can be found on the

website, www.lifha.com. Print it out to send with payment to the address below. A USAFH membership is also required for insurance purposes. Print out a copy of proof of membership from the website; www.teamusa.org. (The proof must show the player will be current through November 2024.)  Drop off or mail these three items to: Diana Mitchell, 170 Sackville Road, Garden City, NY 11530. Any questions, please email Dianawmitchell@aol.com.

Call

44 F riday, May 24, 2024 The Garden City News PROFESSIONAL GUIDE Call 294.8900 D’Angelo Law Associates, PC Stephanie A. D’Angelo, Esq. Your Trusts & Estates Attorney • Wills & Trusts • Estate Administration • Estate Planning • Asset Protection • Elder Law • Probate • Real Estate 901 Stewart Ave., Ste 230 • Garden City, NY 11530 www.DangeloLawAssociates.com Nassau (516) 222-1122 Queens (718) 776-7475 ATTORNEY John E. Lavelle Law Firm P.C. Accidents: • Car Accidents • Construction Site Accidents • Trip/Slip and Falls • Train/Subway Accidents • Medical Negligence Claims • Workplace Injuries Appellate Practice: • Civil Appeals - Motion and Post-Trial John Lavelle,
Park Resident, Parishioner, St. Aidan’s Graduate
Proud SAS Parent 630 Willis Avenue Williston Park, NY
John.Lavelle@LavelleInjuryFirm.com
Proudly serving clients in New York & Pennsylvania ATTORNEY Family Care Connections, LLC • Nurse Geriatric Care Manager • Assistance with Aging at Home • Assisted Living & Nursing Home Placement • Elder Care Consulting & Counseling • Medicaid Application & Consulting Services • Real Estate & Housing Options for Aging Nassau (516) 248- 9323 (718) 470- 6300 Queens Dr. Ann Marie D’AngeIo, DNP, CNS Dr.
G. D’Angelo, JD, PhD 901 Stewart Ave., Ste. 230 • Garden City, NY 11530 www.FamilyCareConnections.com HEALTH CARE MANAGEMENT Call 516-294-8900 and let us begin listing you in our Professional Guide. Deadline is Monday, 12 Noon. Professional
Guide Advertising on this Page is Only Open to N.Y.S. Licensed Professionals. Call 294-8935 and let us begin listing you in our Professional Guide and Professional Services pages. Deadline is Monday, 12 Noon BOOST YOUR BUSINESS!
Williston
(‘93) and
11596 516-325-1175
www.JohnLavelleLaw.com
Frank
Services
professional?
results.
294-8900
rates
information.
Are you a
Our Professional Guide is sure to bring
for
and

THE OFFICE CAT

From page 25

shower steam.

Credit card points stolen

On May 20th a victim reported that travel mile points had been stolen from their credit card account.

Garage alarm

On May 20th the GCFD and GCPD responded to a fire alarm in a Franklin Avenue parking garage and determined it was set in error.

Panic alarm

Officers responded to a location for a panic alarm activation on May 20th and determined it was set in error.

Open door alarm

Upon investigating a residential alarm activation on May 20th, Garden City Police found an open door. The premises were inspected and appeared to be in order.

Drug arrest

As a result of an investigation at Parking Field #8, Garden City Detectives arrested a 30-year-old male for alleged Criminal Possession of a Controlled

Substance on May 21st.

Check fraud

On May 21st a victim reported that a check placed in the mail was stolen, altered, and cashed. The victim reports additional forged checks were written against her bank account.

Felony DWI arrest

A 49-year-old Clinton Road motorist was arrested for alleged felony DWI, excessive speed, unsafe lane use, and an open container of alcohol on May 21st.

Weight violations

A Clinton Road truck driver was charged with overweight violations and uncovered load on May 21st.

Parked cars damaged

A vehicle was reportedly damaged while parked in the street on Wellington Road on May 21st. In a separate incident, a vehicle was reportedly damaged while parked in Parking Field #8.

Excessive speed

A Clinton Road motorist was charged with unlicensed operation and excessive speed on May 21st.

THE MAYOR’S UPDATE

mcarterflanagan@gardencityny.net

From page 24

Recycling

Residents scheduled for recycling on Monday, May 27 are asked to put recyclables out on Monday, June 3.

Happening in Garden City

Monday, May 27th

9:00 a.m. Service at the Cathedral of the Incarnation

10:00 a.m. Memorial Day parade steps off from 10th Street and Franklin Avenue

11:00 a.m. Memorial Day ceremony at the Veterans Memorial on 7th Street

Wednesday, May 29th

6:30 p.m. Architectural Design

Review Board Meeting at Village Hall

7:00 p.m. Teen Paint Night at the Library. Must register.

7:30 p.m. Meet and Greet at the Senior Center with the Mayor and Trustees

Friday, May 31st

9:00 a.m. adult art classes at Cluett Hall. Must register.

Saturday, June 1st

11:00 a.m. Historian John Ellis Kordes presents “The Story of The Beach Boys” at the Library.

Soccer Players of the Week

Pre K Girls

Team 1 - Purple Butterflies

The Whole Team

Team 2 - Grasshoppers

Layton Lefler

Olivia Gomoka

Team 3 - Pink Roses

The Whole Team

Team 4 - Green Machine

The Whole Team Team 5 - Pink Bubblegum

The Whole Team Team 6

The Whole Team

Team 7 - Purple Butterflies

Olivia Gnatowski

Leah He

Team 8 - Yellow Mermaids The Whole Team

Kindergarten Girls Team 1

Siena Bianchi

Jiniya Doshi Team 2

Caroline Doyle Charlotte Ferranti

Coco Connors

Mae Connors

Maura Coyle Morgan Coelen

Lila Groarke

Maddie Hook

The Whole Team

Team 8

The Whole Team

Kindergarten Boys

Red Bull Chiefs:

Aiden Emmel

Sean Turley

Dark Green Monsters: Leo He,

Patrick Alexander

Klller Whales:

James Gnatowski

Christian Fraser

Blue Dragons: Blake Whicher

Cheetah Sharks:

Henry Truesdell

James Donovan

Daniel Benitez

Ben Bellomo

Noah San Filippo

1st Grade Girls

Blue Waves: Whole Team

Cotton Candy Cuties: Whole Team

Green Unicorns: Whole Team

Grey Jaguars: Whole Team

Pinkie Pies: Lainey DAlessio

Nora Reilly

Margot Polcino

Purple Unicorns:

Meredith Garvey

Neave Smith

Teal Dolphins: Whole Team

Team Minarcik: Whole Team 1st Grade Boys

Team Iyer

Jack Becker

Tommy Vitez

Team Schrubbe

Gavin Manna

William Pellish

The Reds

Peter Collins

Vince LaDuca

Green Dragons

Rex Rundlet

Blake Schneider

Blue Devils

Alessio Calma

Conor DeBusschere

Paxton Foster

Orange Crush

Clayton Gallucci

Charlie Haunss

Team Zelaya

Sidharth Goyal

Brady Madden

Maroon Rockets

Carmine Adimando

John-Erik Strom 2nd & 3rd Boys

Team 1

Luke Ferrari

Christian Bentley

Team 2

Ryan Peeples

Ben Powers

45 Friday, May 24, 2024 The Garden City News
Team 3
Team
Team
The
Team
The
Team
4 The Whole Team
5
Whole Team
6
Whole Team
7
William Sessa James Kelly Team 3 The Whole Team Team 4 The Whole Team Team 5 The Whole Team Team 6 The Whole Team Team 7 Ronan Collins Timmy Ahern Anthony Constantino Leo Gianuzzi Team 8 The Whole Team
Get Results! Place an ad in our Classifieds for reasonable rates and prompt results. Call 294-8900 or visit us online www.gcnews.com to request information & rates Litmor Publishing's Community Newspapers Cluttered? Place an ad in our Classifieds for reasonable rates and prompt results. Call our main office 294-8900 to request information & rates. Visit our website to place classified Ads, to receive more information & our latest rates, www.gcnews.com The Garden City News, Bethpage Newsgram, Mid-Island Times & Levittown Times, Jericho-Syosset News Journal & The Syosset Advance! Along with Blank Slate Media Papers: Port Washington Times, Manhasset Times, Roslyn Times, Great Neck Times, New Hyde Park Herald Courier & The Williston Times! Get featured in all 11 newspapers!

Soccer Big Sisters

Two Centennials soccer teams took some time this week to develop their soccer and leadership skills on the field in a different way than usual.  The girls from the U12 Dynamite held a joint practice with the U9 Galaxy.  Each girl from the Dynamite was paired off with a "little sister" from the Galaxy.  They worked together on technical drills, relay races and small sided games.  As practice progressed, the girls got to know each other (what school they go to, what position they play, etc.) and the younger Galaxy players got a chance to see what focus and hard work can bring to their development in just a few short years.  The U12 Dynamite have been one of the top Centennials teams on the field since their inception.  The joint practice was an opportunity for them to inspire the younger girls and display their leadership skills. They

did a fantastic job!  All of the girls learned a little from each other in their own way and the Galaxy girls ended practice with friendship bracelets for their “big sisters.”  It was

a great bonding experience for both teams and each team will look for the other on the sidelines as they cheer on their continued success.  Great job by all the girls!

46 F riday, May 24, 2024 The Garden City News
Getting ready for the relay. Goal celebration competition. Dynamite and Galaxy together - We are GC! Working on technique together.
Let us help you promote your local business We'll personally create a customized ad campaign and run it in our papers to help boost your clientele! We get you sales! Call our GC office at 294-8900, or visit us online at gcnews.com for more info & questions

GC 3rd Grade Boys PAL Lacrosse season wrap-up

This past Sunday marked the final games of the 2024 Third Grade Boys PAL Lacrosse season. With over 60 participants this spring, we had three full teams competing against other towns for the first time following several years of in-house competition. The boys showed tremendous effort and improved on their skills and game awareness each week. The teams were coached by Garden City parents who graciously gave many hours of their time every week. The

dedication from the players and coaches was truly remarkable. We look forward to next season and taking the next step in their development as lacrosse players.

The coaches would like to thank the parents for their commitment to the season and for lining the sidelines each game day! We loved the enthusiasm, support and encouragement of all players.

Go GC LAX!

GC 3 White Team.

Coaches: Steve Kelly, Joe Brantuk, James Reynolds, John Nero.

Players: Timmy Ahern, JoJo Brantuk, Aiden Charchalis, Graham Hester, Jack Hinker, Grant Kelly, Jack Livingston, Coulter Manno, Michael Markovich, David McDermott, Charlie McInnis, Conor Miller, Maddox Minarcik, Leo Nero, Ben Nicholson, Hudson Overby, Brendan Reynolds, Stefan Rocha, Joe Sileo, Cristian Stankewicz, Johnny Watts, Jack Whitaker.

GC 3 Maroon Team.

Coaches: Dave Maher, Greg Doyle, Joe Baglio.

Players: Joseph Baglio, Christopher Cendan, Henry Crain, George Davidson, Jack Doyle, RJ Fioravanti, Joseph Foglio, Teddy Gallagher, Theo Ganas, Cash Leake, Liam Maher, Massimo Mannarino, Kellan Mastaglio, Brooks Mathers, Bert McCooey, Paul Milazzo, Luke Mooney, Michael Noto, Thomas Scarantino, James Schrubbe, James Trustey.

The GC 3 Gray Team.

Coaches: Chris Haunss, Greg Leder, Jason Burns, Neil Williamson.

Players: Wyatt Acquavito, Patrick Burns, Ollie Ferrucci, Brogan Hajart, Henry Haunss, Jackson Keller, Aidan Knapp, Tristan Leder, Joey Martorana, Freddie McGlynn, Sean O'Connor, Declan Rigano, Sam Rossi, James Ryan, Drew Saloy, Owen Sampson, Jackson Weber, Connor Willett, Jack Williamson, Ryan Williamson.

47 F riday, May 24, 2024 The Garden City News
One ad can go so far... Advertise your services in our Professional Guide or Service Directory today and be seen in these five newspapers: Call 516-294-8900 today to learn more!

Battlehawks wrap up season tied for fourth

Emilio Ciaravino worked around a couple of hits to shut down Bayville.

The Battlehawks were back on the field this past weekend for a pair of games. The first was a hard fought 16-14 loss in Glen Cove, a rematch of the battle the previous weekend where the Battlehawks were victorious. The team then faced off against top seeded and undefeated Bayville. The game started off strong but ultimately ended in a 7-2 defeat to finish the spring season tied for fourth at 2-3.

There was some real strong performances from a number of players over the weekend. Wyatt Acquavito had the team's first home run of the season, hitting a 3 run blast against Glen Cove. Jackson Weber went 2-2 on the weekend with a triple and the only two RBIs against Bayville. Matt Urban went a perfect 3-3 scoring 3 runs. Peter Callow and Luca Trapani chipped in with RBIs over the weekend while Emilio Ciarvino, Parker

Jackson Weber looks to get one of his two strikeouts against Bayville

Rundlet, Jack Doyle, Grant Michalak and Luke Barnet each scored at least one run. The pitching was also solid, Reid Brunner, Michalak, Ciaravino, Leo Nero and Weber each pitched at least one inning over the weekend. Ryan Donelan played stellar defense as he continues to work his way back into games.

While the season didn ’ t end the way the team had hoped, it was a great learning experience and the team got a chance to gel as it was the first time a number of these players played together. The boys will get a few weeks off before the summer season starts.

48 Friday, May 24, 2024 The Garden City News
Jack Doyle had a solid season at the plate. Wyatt Acquavito steals second base.

Battlehawks wrap up season tied for fourth

St. Joseph School CYO Champions

The 7th Grade Girls CYO team from St. Joseph School won its respective division. Congratulations to players Emily Bennett, Madeline Berroya, Lucia Dersch, Emily McDonald, Evangeline Ring, Reese Goettelmann, Hailey Benson, Olivia Coiro, Ella Regina, Ella Melendez, Grace Wheeler. Coaches: Dan Berroya (HC), Mike Regina (AC) and Greg Coiro (AC).

Congratulations to the St. Joseph School 5th Grade Girls CYO Lacrosse Team for winning its division 13-0.

Players: Lilian Coratti, Claire Coelen, Colleen Bennett, Ella Bianco, Tessa Borrelli, Holly Bremer, Markela Walsh, Millie Soper, Ava Rufrano, Hayley Regina, Emilia Cerrone, Erin Groarke, Molly McKay. Coaches: David Coratti (HC), Christie Coelen (AC) and Despina Walsh (AC).

Friday, May 24, 2024 The Garden City News 49
Leo Nero delivers a pitch against Bayville Matthew Urban throws out a base runner against Glen Cove.

Galaxy’s first LI Cup run ends

We are the Galaxy!

The Centennials U9 Galaxy's first run for the LI Cup ended this past Sunday in heartbreak following a double OT loss in the semi-finals.  On their way to the semi-finals, the Galaxy showed determination and grit besting top teams from all over Long Island including two teams playing in higher divisions and one unbelievable second round come-

back win after being down 2-0.

Playing their fourth game in the LI Cup, the Galaxy matched up against Carle Place, undefeated in the top age group division.   It was a tight defensive game with neither team giving up many opportunities.  Carle Place struck first taking a 1-0 lead.  Over the course of their inaugural season together, this

Galaxy team has learned to BELIEVE.  Believe in themselves, in each other and in their ability to give their best and match up with any team.  That drive led to the tying goal and to overtime.

The Galaxy had the better of the play throughout the OT, but as happens in sports, one bad break can decide a game.  With 90 seconds left before the

penalty kick shootout, Carle Place was able to put in a rebound off of a corner kick to end the Galaxy's Cinderella run.  It was a tough way to lose, but the LI Cup experience let the girls learn about perseverance, hard work and that you won't win them all.

Congrats to all the Galaxy players.  We are all very proud of you!

50 F riday, May 24, 2024 The Garden City News
This one's mine! Claire with the save. Amelia in hot pursuit. Hailey on the move.
LET OUR NEWSPAPER MAKE YOU MONEY! Advertise your business or service in the main pages of our papers, in our classifieds section, our Professional Guide, or our Service Directory, and increase your exposure while watching your clientele grow! Call our offices at 516-294-8900, or visit us at gcnews.com, to learn more!

Trojans dominate in playoff opener against Mepham

GC Varsity Lacrosse - Chasin’.

The Garden City Varsity Boys lacrosse team showcased a dominant performance in the first round of the playoffs, triumphing over Mepham with a resounding 17-2 victory. This win not only marked a significant milestone, bringing the Trojans’ series record to 25-0 since 1984, but also highlighted the depth and skill of their roster with eleven different players contributing goals.

In a spectacular display, eighth-grader Ben Smith emerged as a standout, netting four goals. Carson Kraus also delivered an impressive performance, contributing two goals and three assists. This victory extended Garden City’s winning streak to twelve games, advancing their season record to 15-2.

The Trojans’ offense was a well-oiled machine, with contributions from a diverse array of players. Anthony Asaro and Michael Berkery each added a goal and an assist, while Blake Cascadden, Luke Cascadden, Julian Galli, Charlie Meringolo, Brian Nolan, and Andrew Ottomanelli also found the back of the net. Ottomanelli scored three goals, adding to the team’s dominant offensive showing. Dan Mejdid had a balanced performance with two goals and two assists. Cooper Kraus had an assist and an aggressive showing on defense along with Aiden Considine Garden City's defense and goaltending were equally formidable. Matthew Cabana recorded three saves without allowing a goal in his

20 minutes of play, maintaining a perfect save percentage. Denis Fargione and Jake Schlipf also contributed, with Fargione making three saves and allowing two goals, while Schlipf made one save. Long pole starters Matt Kephart, Andrew Schlipf, Luke LaSeure, Andrew Dangler, Charlie Meringolo and Declan Wuchte added another chapter to their storied history of success.

The Trojans formidable lead allowed every team member to shine from the attack. Patrick Shirley, Timothy Prybylski, Ryan Cappello

and James Debusschere. Middies Gavin O’Donohue, Patrick Shirley, Taylor Minuto, James Ullrich, Kullen McDermott, Luke Webber, Owen Andersen, Jason Bremmer, and Merit Ruckh. Defense put on a show as well with great plays from Chase Kraus, Will Mattice, Dan Morizio, Garvis Toler, Gus Gali and Connor Schieck.

This amazing group of players, teammates and brother will be Chasin’  Manhasset next. Let’s Go Trojans!

51 F riday, May 24, 2024 The Garden City News
GC Varsity captains - last time on home field: Andrew Ottomanelli, Carson Kraus, Aidan Considine, Denis Fargione, and Matthew Kephart.
70 7th St, Garden City, NY 11530 | www.doctoremma.com Garden City’s Hometown Orthodontist for Over 20 Years 2024 Denise L. Emma, DDS where friends send their friends Orthodontist & Invisalign Specialist For Children & Adults Call for a FREE consultation! 516.741.7970 PLATINUM+ We’re looking for writers in our community to compose ar ticles on local topics, opinions, reviews, worthy places to visit on Long Island, and even pieces of fiction. We aim to feature at least one new article and writer each week in our Discovery magazine section. Love to write? Email submissions: editor@gcnews.com • Attach article and any photos (1MB), along with your name and contact info. • Articles must be between 1,500 - 3,000 words. • Each writer will be reimbursed a stipend of $25.⁰⁰

GC Youth Lacrosse 2nd Grade Hard Hat League

The seventh week of action in the Garden City 2nd Grade Hard Hat Lacrosse League showcased another thrilling round of games at Stewart Field. The young athletes displayed remarkable skill and teamwork as they competed fiercely across the board. This week’s matchups were especially intense, with players demonstrating not only their growing lacrosse abilities but also a strong sense of sportsmanship and teamwork.

Highlighting the week’s games, several players stood out, earning the coveted Hard Hat Award for their excep-

tional performance and leadership on the field. This award continues to motivate and inspire all players to embody the core values of teamwork, effort, and sportsmanship that the league promotes.

As the season progresses, the excitement only intensifies, with families and supporters eagerly looking forward to the next games. The hard work of these young athletes is evident in every pass and goal, promising even more competitive and exciting lacrosse in the years to come.

Will Sessa goes for a ground ball against the Cannons.

Stay informed about your community with a weekly subscription to our newspapers.

With current events, announcements, restaurant reviews, puzzles, and much more, there’s always something for everybody to enjoy!

52 F riday, May 24, 2024 The Garden City News
Liam Calderone (#11 Cannons) begins his dodge against Patrick Gomoka (Archers) as Connor McKay gets ready in goal. Luke Donnelly with the clearing pass for the Archers after a great save as Declan Ring (Cannons) defends. Week 7 Hard Hat Winners: Colin Thomas - Archers, Luca Lara - Atlas, Luca Plati - Cannons, Reed McAuliffe - Waterdogs, Ryan Riordan - Whipsnakes.
Get the news ever yone’s reading about!
(516) 294-8900 Litmor Publishing Your Community, Your Newspaper The Garden City News • Bethpage Newsgram Jericho-Syosset News Journal • Syosset Advance The Mid-Island Times & Levittown Times

GC Lacrosse plays during NCAA half time

This past weekend the 2034 GC youth lacrosse teams played each other during halftime of the NCAA quarterfinals between Maryland and Duke. The Garden City High School Varsity and GCMS 8th grade teams came to cheer them on.

53 F riday, May 24, 2024 The Garden City News
IN HONOR OF MEMORIAL DAY Barnwell Honors All Those Who Serve And Have Served Our Country Your Dealer & Chain-Store Alternative! Family Owned Since 1933 BOOK ONLINE: www.barnwelltireauto.com Open Mon–Fri: 7:30 AM to 5:30 PM | Sat: 7:30 AM to 3:30 PM (516) 746-3333 Info@barnwelltireauto.com 505 Jericho Turnpike, Mineola, NY 11501 Across from Panera. Owners always on premises. SHOP LOCAL • Fast, Old-School Customer Service • Convenient, Speedy & Stress-Free • A Unique Automotive Experience IS YOUR CAR READY TO TRAVEL THIS WEEKEND? Just 5 Minutes From The Heart Of Garden City “It’s A Trust Thing” Up to $200 Rebate Card For A Set Of 4 10% OFF FOR ALL MILITARY PERSONNEL (PAST & PRESENT) WITH THIS AD INCLUDING IMMEDIATE FAMILY MEMBERS

First round win and a Senior Day to remember!

Garden City Girls Varsity Lacrosse Team opened the first round of playoffs at home playing Herricks Highlanders with a win of 22-0. The senior game marked the last time the 2024 GCHS seniors would play on the Warren King field. The distinguished group of leaders took to the field with a light mist on their bag and the New York City Fire Department Emerald Society Pipes and Drums member Tom Behan driving their charge.

The last game on home turf had senior Maureen Arendt and Molly Nicholas securing hattricks along with freshman Grace Brantuk. Goals were also scored by: seniors Maureen Arendt and Kendal

Morris; juniors Katherine Clavin, Kyle Finnell, Arcangela Haffner, Tori Ottomanelli and Elizabeth Staub; sophomores Regan Backer, Ciara Hegarty, Kim Colucci, Katie Horn and Deanna Prisco. The team effort by all helped secure the win. The team moves on to play at Adelphi University in Garden City this week.

All eight seniors having been playing together from the days of PAL to the LISGYLL championships and many travel team tournaments in between. Every senior varsity lacrosse player was a member of the back to back LISGYLL Long Island Championship team.

At attack, the four year varsi -

ty and 2023 All County player, senior Maureen Arendt, dominates play around the cage and never gives up on groundball play.

Ms. Arendt will be attending the University of Florida and play for the Women’s Lacrosse team. She will be studying business in the fall. Ms. Arendt favorite lacrosse memory is winning the 2023 Long Island Championship.

Senior Tara Hollis is a defender for the Lady Trojans and is known the 2024 squad for her speed from end to end. Ms. Hollis works on the field and in the classroom receiving the Nassau county SHIELD award and

Scholar Athlete on field hockey for the past two years. The former field hockey captain will be attending Boston College in the fall and plans on studying biology.

Senior captain Kendal Morris has been a member of the varsity team for four years. She competes at the midfield and dominates at the draw. Ms. Morris was a member of the Varsity Soccer team at Garden City High School. She will be attending Arizona State University and playing for the Women’s Lacrosse team in the fall.

Senior Molly Nichols is coming off a hattrick at attack against Herricks in the Senior Day play -

54 Friday, May 24, 2024 The Garden City News
Senior Molly Nicholas drives to the cage. Senior Alexandra Walsh and Tara Hollis defend the Herricks offensive drive. Garden City Girls Varsity Lacrosse Class of 2024 and parents. Senior day led to the field with FDNY piper Tom Behan.

First round win and a Senior Day to remember!

National anthem sung by junior Ava Milone.

off game. Ms. Nichols is attending Scranton University in the fall and plans on studying early and primary education. She was a member of the track, cross country and soccer team as well as a member of Garden City High School Best Buddies.

Senior captain Mabel Overbeck is a 2023 Lacrosse All American, All County and All Long Island player. She has been varsity member for the past four years at defense and as a draw specialist at midfield. In addition to lacrosse, Mabel has been a member of the volleyball, track and tennis team at Garden City High School. Ms. Overbeck will be attending Duke University to study psychology and will be a member of the Women’s Lacrosse team in the fall.

Senior captain and goal keeper for the team Niamh Pfaff will be attending Yale University in the fall and plans on studying ethics, politics and economics. She marks her time in net with her favorite memory winning the Woodstick classic in overtime in 2024. Niamh is a member of the varsity tennis team and was awarded All County in lacrosse and winter track.

Senior Emily Romeo is a defender who plays soccer and runs track at Garden City High School. She is an All-Conference, All County and Player of the Year for the Garden City Varsity Soccer team. She will be attending Binghamton University

in the fall and plans on studying business. Ms. Romeo will be a member of the Binghamton Women’s Lacrosse team in the fall.

Senior defender Alexandra Walsh will be attending Salve Regina University and plans on studying political science and prelaw. Ms. Walsh will be playing on the University’s Women’s Lacrosse team in the fall. Ms. Walsh was a member of the field hockey team and an active member of Class of 2024 as a member of the Art, SADD, Economics, and Key Clubs.

The senior game was followed by an amazing celebration. The team sendoff proved to be a special day for all in attendance. The effort and thoughtfulness from each team member and junior parents, provided for a sendoff like no other!

A big thank you to all the of the Varsity Lacrosse girls and their parents for making the event so memorable.

The senior girl team would like to thank their families, teammates and coaches for their support and encouragement.

A huge shoutout and special thanks to the 2024 Flag Team, Coach John Nicholas and Andy Pfaff.

The girls continue to focus on the next game on the horizon! Please come out and support the GC Girls Varsity team… Go GC!!!

Photos by Ed Rotondo

If you would like to advertise please contact your advertising representative:

On June 28th the Garden City News will publish its annual salute to village and scholastic teams, including team photos, stats and profiles. It will be printed on durable white paper, so it will be a great keepsake! Susan Daly Peter Camp sdaly@gcnews.com pcamp@gcnews.com (516) 650 5722 (917) 861-4627 Don’t let us miss your team! Deadline is Monday, June 24th. Please send all submissions to

Sports Events

Friday, May 24, 2024 The Garden City News 55
Be a part of our award winning Sports Wrap-Up Friday, July 1, 2022 The Garden City News Friday,June30,2023 SportsWrap-Up 2023
Portraits
editor@gcnews.com

4-bath. MLS# 3552727. $875,000.

56 Friday, May 24, 2024 The Garden City News Mary Krener Fortune Heaney Lisa Heaney Lynn Puccio Joe
Julia
Rosado
Scianablo
Mastromauro
Arthur Anderson Jessica Brantuk Ann Collins Claudia Galvin Rene Blair Christine Cudahy Manager Patricia Costello
Eileen O’Hara Diane
Linda Mulrooney
Piscopo
Garden City and Wyndham Resale 102 Seventh Street, Garden City, NY | 516.248.6655 | danielgale.com Each office is independently owned and operated. We are pledged to provide equal opportunity for housing to any prospective customer or client, without regard to race, color, religion, sex, handicap, familial status or national origin. danielgale.com Stephanie Marchan Scan here for info
Daureen Hausser
Garden City, NY 5-bedroom, 4-bath. MLS# 3528687. $1,775,000. Garden City, NY 5-bedroom, 4.55-bath. MLS# 3547140. $1,995,000. Wyndham East , #M33 Garden City, NY 3-bedroom, 3-bath. MLS# 3491207. $1,400,000. Rockville Centre, NY 5-bedroom, 3-bath. MLS# 3548213. $1,725,000. Garden City, NY 2-bedroom, 2-bath. MLS# 3520156. $449,000.
Aimee Escher Kathleen McCarthy Patrick Gibbons Matthew Minardi Kathy Lucchesi Susan MacDonald Brigid Marmorowski
Garden City, NY 5-bedroom, 4.5-bath. MLS# 3512879. $3,100,000. Kathleen Lichtman SOLD PENDING Garden City, NY 5-bedroom,
MLS#
Garden City, NY 3-bedroom,
MLS#
$849,000. Wyndham West, #606 Garden City, NY 2-bedroom, 2.5-bath. MLS# 3539008. $895,000. remember and honor Memorial Day PENDING Garden City, NY 1-bedroom, 1-bath. MLS# 3548977. $439,000. Wyndham East, #908 Garden City, NY 1-bedroom, 1.5-bath. MLS# 3549856. $699,000. Garden City, NY 1-bedroom, 1-bath. MLS# 3549663. $3,700/mo. Garden City, NY 2-bedroom, 2-bath. MLS#
$549,000.
PENDING PENDING SOLD RENTAL PENDING
Patricia Dickson
3.55-bath.
3534858. $1,899,000.
2-bath.
3539764.
3551133.
Rockville Centre, NY 4-bedroom, 3-bath. MLS# 3551229. $1,498,000.
West Hempstead, NY 3-bedroom,
Scott Wallace Cheryl Trimboli

Turn static files into dynamic content formats.

Create a flipbook
Issuu converts static files into: digital portfolios, online yearbooks, online catalogs, digital photo albums and more. Sign up and create your flipbook.