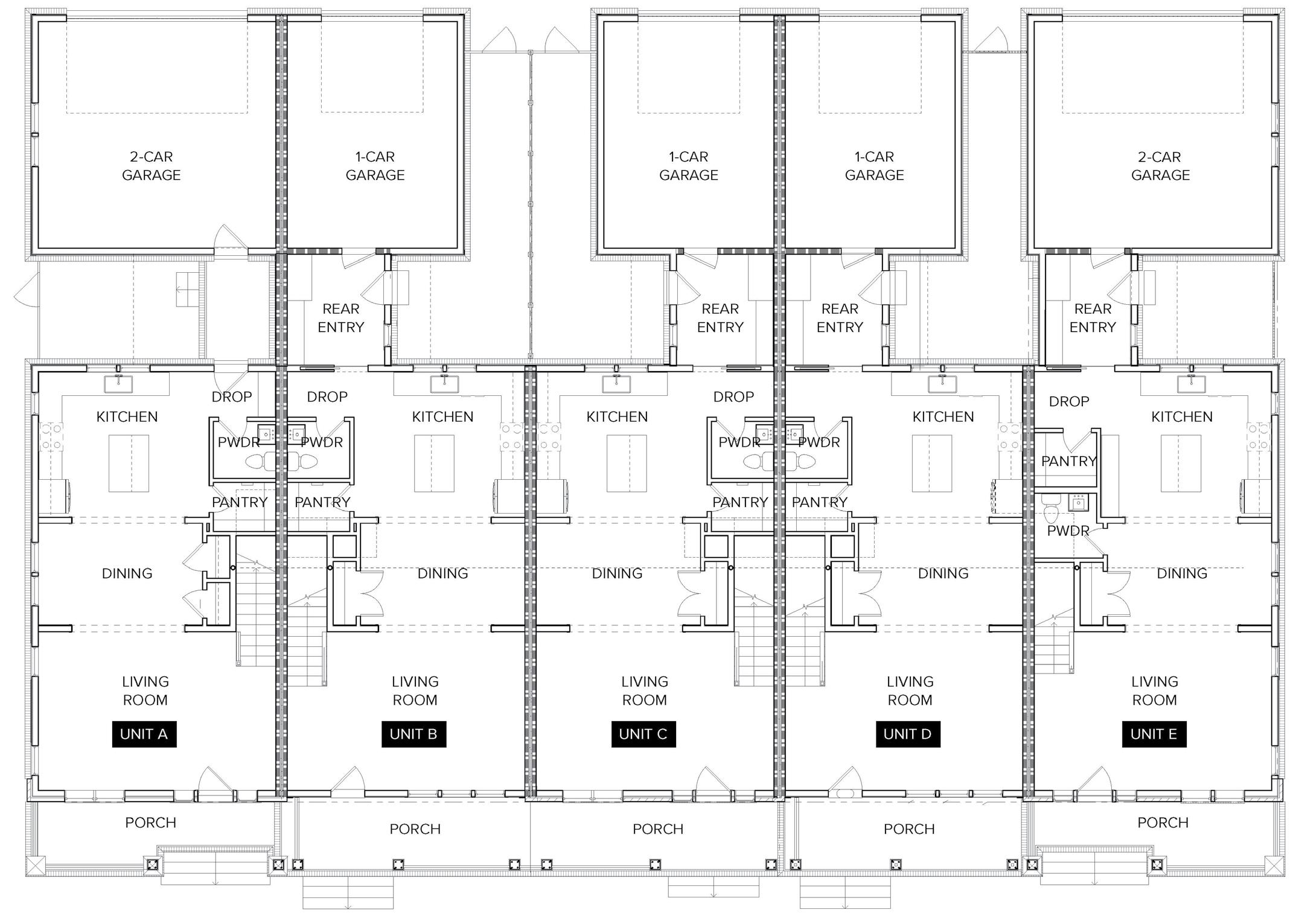
4064 PENFIELD DR, UNIT D
LOT 93 | FRANKLIN, TN
3 BED | 2/1 BATH | 2,084 SQ FT TOWNHOME

![]()
4064 PENFIELD DR, UNIT D
LOT 93 | FRANKLIN, TN
3 BED | 2/1 BATH | 2,084 SQ FT TOWNHOME






UPPER LEVEL










TRIM, FRONT & BACK PORCH CEILINGS, REAR SIDING PAINT COLOR
Brand: Sherwin Williams Code: SW 7014 Color: Eider White
FRONT SIDING, DORMER, COLUMNS, SECONDARY DOORS PAINT COLOR
Brand: Sherwin Williams Code: SW 9130 Color: Evergreen Fog
METAL ROOF



WINDOWS

BRACKET Color: Black Size: Height: 23.5” Width: 11” PED BRACKETS Color: Black Size: Height: 14” Width: 4.5”


GUTTERS

GARAGE BRACKET
HARDWOOD FLOORS
Brand: BPI Prestige
Series: Essence Oak
Color: Sedona
BONUS ROOM
ACCENT WALL
42” TALL PANEL MOLDING WITH 1X4



INTERIOR WALLS, CEILING, TRIM, & LIVING, DINING, & BONUS ROOM
ACCENT WALLS PAINT COLOR
Brand: Sherwin Williams
Color: Heron Plume Code: SW-6070
PRIMARY BEDROOM, LIVING & DINING ROOM
ACCENT WALL
PAINT COLOR
Brand: Sherwin Williams
Color: Accessible Beige Code: SW-7036

PRIMARY BEDROOM ACCENT WALL
CARPET
Brand: Dwellings
Style: Groundworks Plus
Color: Flax Beige
LIVING & DINING ROOM TV WALL
VERTICAL SHIPLAP

CUBBIES
1x6 on top, no crown with vertical shiplap behind
CUBBIES
PAINT COLOR
Brand: Sherwin Williams Code: SW 9130
Color: Evergreen Fog


LIVING ROOM

BEDROOMS 2, 3 & BONUS ROOM


PRIMARY BEDROOM

DINING
Brand: Montra
Style: Omni
Color: Snow


Brand: Montra
Style: Omni
Color: Mineral
KITCHEN ISLAND LIGHTS

Material: Quartz
Color: Super White


Cloud, Matte, Horizontal 1/3 offset

SINGLE HANDLE
PULL-DOWN FAUCET
Brand: Delta
Series: Trinsic | 9159-CZ-DST
Color: Champagne Bronze



MICROWAVE
Brand: Samsung Model: MA-TK8020T
3-DOOR FRENCH DOOR COUNTER DEPTH REFRIGERATOR
Brand: Samsung Model: RF27CG5400SR

CHIMNEY WALL-MOUNT HOOD
Brand: Frigidaire
Model: FHWC3055L S

DISHWASHER
Brand: Samsung Model: DW80CG4021SR
FRONT CONTROL SLIDE-IN GAS RANGE
Brand: Samsung Model: NX60T8111SS




Brand: Montra
Style: Omni
Color: Sahara
SCONCE

SHOWER WALL TILE
Marlo Desert, Glossy
Material: Quartz
Color: Super White



MONITOR 14 SERIES
SHOWER TRIM
Brand: Delta
Series: Nicoli | 142749-CZ
Color: Champagne Bronze

BATHROOM
FLOOR TILE
Calacatta Sky 1/3 offset


TWO HANDLE WIDESPREAD FAUCET
Brand: Delta
Series: Trinsic | 3559-CZMPU-DST-R
Color: Champagne Bronze

Material: Quartz Color: Super White
Brand: Montra Style: Omni Color: Beachwood


SINGLE HANDLE FAUCET
Brand: Delta

TUB SURROUND WALL TILE
Lia Purity 3x12 Vertical 1/3 offset


BATHROOM FLOOR TILE
LIA Luster collection, Calacatta 12x24 | Grout Alabaster



Series: Nicoli | 15749LF-CZ
Color: Champagne Bronze

MONITOR 14 SERIES TUB/SHOWER
Brand: Delta
Series: Nicoli | 144749-CZ
Color: Champagne Bronze

Brand: Montra
Style: Omni
Color: Admiral
WIDESPREAD FAUCET
Brand: Delta
Series: Trinsic | 3559-CZMPU-DST-R
Color: Champagne Bronze



Material: Quartz
Color: Carrara Royal


