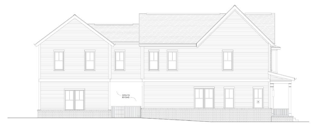
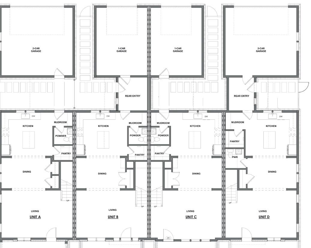
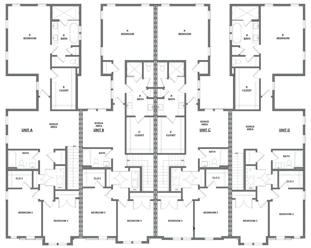
4004 PENFIELD DR, UNIT C LOT 107 | FRANKLIN, TN
3 BED | 2/1 BATH | 2,183 SQ FT TOWNHOME

![]()
4004 PENFIELD DR, UNIT C LOT 107 | FRANKLIN, TN
3 BED | 2/1 BATH | 2,183 SQ FT TOWNHOME






FRONT VIEW

REAR VIEW

RIGHT VIEW LEFT VIEW



UPPER LEVEL











SIDING & DORMER PAINT
Brand: Sherwin Williams Code: SW 9625

Color: Grey Mist WINDOWS White
RAILS, TRIM, COLUMN, BRACKETS & DORMER TRIM PAINT

Brand: Sherwin Williams Code: SW 6147
Color: Panda White





HARDWOOD FLOORS
Brand: BPI Prestige
Series: Essense Oak
Color: Sedona
LIVING ROOM
ACCENT WALL
PAINT COLOR
Brand: Sherwin Williams
Color: Evergreen Fog
Code: SW-9130


CARPET
Brand: Mohawk
Style: Reactivate / BP56C
Color #: 749 | Birdbath
INTERIOR WALLS
CEILING, TRIM & BONUS ROOM ACCENT WALL
PAINT COLOR
Brand: Sherwin Williams
Color: Heron Plume
Code: SW-6070

BONUS ROOM
ACCENT WALL
42” tall panel molding with 1x4
LIVING ROOM
EXTERIOR TV WALL
OPPOSITE
WALL OF STAIRS
Vertical shiplap
PRIMARY BEDROOM
ACCENT WALL PAINT COLOR
Brand: Sherwin Williams
Color: Accessible Beige Code: SW-7036
PRIMARY BEDROOM
ACCENT WALL
Horizontal shiplap

INTERIOR DOOR HANDLES


CUBBIES
1x6 on top, no crown with vertical shiplap behind
CUBBIES PAINT COLOR
Brand: Sherwin Williams
Color: Foxhall Green
Code: SW-9184


DINING

STAIR SCONCES

BEDROOMS 2, 3

BONUS ROOM

PRIMARY BEDROOM

LIVING ROOM
Brand: Montra
Style: Omni
Color: Snow


COUNTERTOPS
Material: Quartz
Color: Carrara Royal


BPI Lugarno London Metro Hampstead dew
Brand: Montra
Style: Omni
Color: Beachwood
KITCHEN ISLAND LIGHTS


CABINET HARDWARE
Color: Matte Black

SINGLE HANDLE PULL-DOWN FAUCET
Brand: Delta
Series: Trinsic | 9159-CZ-DST
Color: Champagne Bronze


DISHWASHER
Brand: Samsung Model: DW80CG4021SR
3-DOOR FRENCH DOOR COUNTER DEPTH REFRIGERATOR
Brand: Samsung Model: RF27CG5400SR

HOOD
Brand: Frigidaire
Model: FHWC3055L S

FRONT CONTROL SLIDE-IN GAS RANGE
Brand: Samsung Model: NX60T8111SS

Brand: Montra
Style: Omni
Color: Admiral

HARDWARE
Color: Satin Bronze

Brand: Delta
Series: Trinsic | 3559-CZMPU-DST
Color: Champagne Bronze

Material: Quartz
Color: Carrara Cloud



CABINET HARDWARE
Color: Satin Bronze
Brand: Montra
Style: Omni
Color: Snow
SHOWER WALL TILE
Pace vintage Grey 4x16 Matte
Back wall herringbone, side walls horizontal straight stack

MONITOR 14 SERIES TUB/SHOWER
Brand: Delta
Series: Nicoli | 144749-CZ
Color: Champagne Bronze

Material: Quartz
Color: Super White



BATHROOM FLOOR TILE
Argent Onyx Crystallo Matte 12x24 Bricklay


SHOWER FLOOR TILE
Argent Onyx Crystallo 2” hex
TWO HANDLE WIDESPREAD FAUCET
Brand: Delta
Series: Trinsic | 3559-CZMPU-DST
Color: Champagne Bronze

Brand: Montra Style: Omni Color: Beachwood

COUNTERTOPS
Material: Quartz
Color: Super White


CABINET HARDWARE
Color: Satin Bronze

SINGLE HANDLE FAUCET
Brand: Delta
Series: Nicoli | 15749LF-CZ
Color: Champagne Bronze
TUB SURROUND TILE
Pace vintage White 4x16 Matte Vertical stack


BATHROOM FLOOR TILE
Tavella Hex, Bianco

Brand: Delta
Series: Nicoli | 144749-CZ
Color: Champagne Bronze