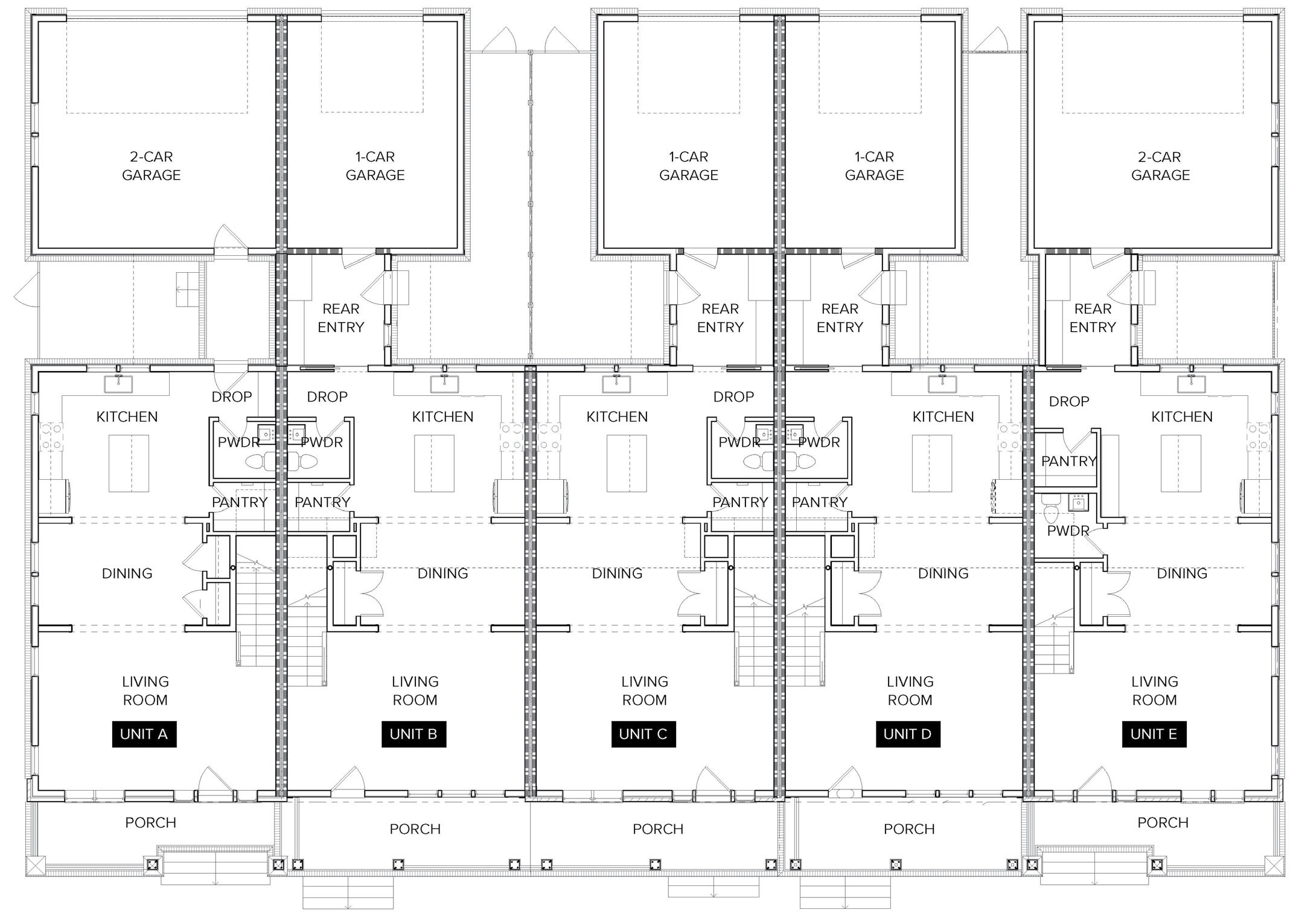
4060 PENFIELD DR, UNIT E LOT 94 | FRANKLIN, TN
3 BED | 2/1 BATH | 2,324 SQ FT TOWNHOME

![]()
4060 PENFIELD DR, UNIT E LOT 94 | FRANKLIN, TN
3 BED | 2/1 BATH | 2,324 SQ FT TOWNHOME






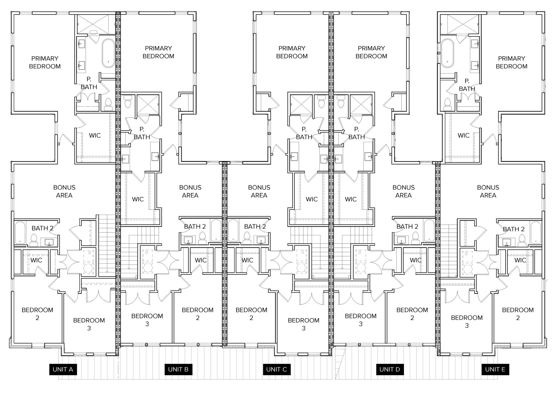
UPPER LEVEL











TRIM, FRONT & BACK PORCH
CEILINGS, REAR SIDING PAINT COLOR
Brand: Sherwin Williams Code: SW 7014
Color: Eider White


BAY WINDOW, COLUMNS, SECONDARY DOORS PAINT COLOR
Brand: Sherwin Williams Code: SW 6188
Color: Shade Grown

WINDOWS

FRONT BRACKET Color: Black
Height: 17.5” Width: 7”

COURTYARD & PED BRACKETS Color: Black Size: Height: 14” Width: 4.5”

GARAGE BRACKET Color: Black
Height: 13” Width: 11”
HARDWOOD FLOORS
Brand: Mohawk
Series: Harboulin
Color: Sand Dollar Oak


BONUS ROOM ACCENT WALL

CEILING, TRIM & BONUS ROOM ACCENT WALLS
PAINT COLOR
Brand: Sherwin Williams
Color: Pure White
Code: SW-7005
CUBBIES, LIVING & DINING ROOM
ACCENT WALL
PAINT COLOR
Brand: Sherwin Williams
Color: Peppercorn Code: SW-7674


PRIMARY BEDROOM ACCENT WALL
CARPET
Brand: Dwellings
Style: Groundworks Plus
Color: Sawgrass
LIVING & DINING ROOM TV WALL

CUBBIES
1x6 on top, no crown with vertical shiplap behind
PRIMARY BEDROOM
ACCENT WALL
PAINT COLOR
Brand: Sherwin Williams
Color: Evergreen Fog
Code: SW-9130



BEDROOMS 2, 3 & BONUS ROOM



DINING
PERIMETER
CABINETS
Brand: Montra
Style: Omni
Color: Snow


Material: Quartz
Color: Super White


Cloud, Matte, Horizontal 1/3 offset
Brand: Montra
Style: Omni
Color: Mineral


SINGLE HANDLE
PULL-DOWN FAUCET
Brand: Delta
Series: Essa | 9113-BL-DST
Color: Matte Black



MICROWAVE
Brand: Samsung Model: MA-TK8020T
3-DOOR FRENCH DOOR COUNTER DEPTH REFRIGERATOR
Brand: Samsung Model: RF27CG5400SR

CHIMNEY WALL-MOUNT HOOD
Brand: Frigidaire
Model: FHWC3055L S

DISHWASHER
Brand: Samsung Model: DW80CG4021SR
FRONT CONTROL SLIDE-IN GAS RANGE
Brand: Samsung Model: NX60T8111SS


SCONCE
SHOWER WALL TILE
Lia Purity 3x12
Vertical 1/3 offset
Brand: Montra
Style: Omni
Color: Beachwood



Material: Quartz
Color: Carrara Royal



BATHROOM FLOOR TILE
LIA Luster collection, Calacatta 12x24 | Grout Alabaster

MONITOR 14 SERIES
SHOWER TRIM
Brand: Delta
Series: Saylor | T14235-BL Color: Matte Black


SHOWER FLOOR TILE
Lia Luster Collection | Mosaic
Color: Calacatta
TWO HANDLE WIDESPREAD FAUCET
Brand: Delta
Series: Nicoli | 35749LF-BL
Color: Matte Black

Material: Quartz
Color: Super White
Brand: Montra
Style: Omni
Color: Graphite





Marlow | Smoke Gray 1/3 Offset Vertical


BATHROOM FLOOR TILE
Daltile | Costar Empire 1/3 Offset

SINGLE HANDLE FAUCET
Brand: Delta
Series: Modern | 581LF-BLGPM-PP
Color: Matte Black

MONITOR 14 SERIES
TUB/SHOWER
Brand: Delta
Series: Modern | T14467-BL-PP
Color: Matte Black

Brand: Montra
Style: Omni Color: Graphite

Material: Quartz
Color: Super White

Brand: Delta
Series: Nicoli | 35749LF-BL
Color: Matte Black


