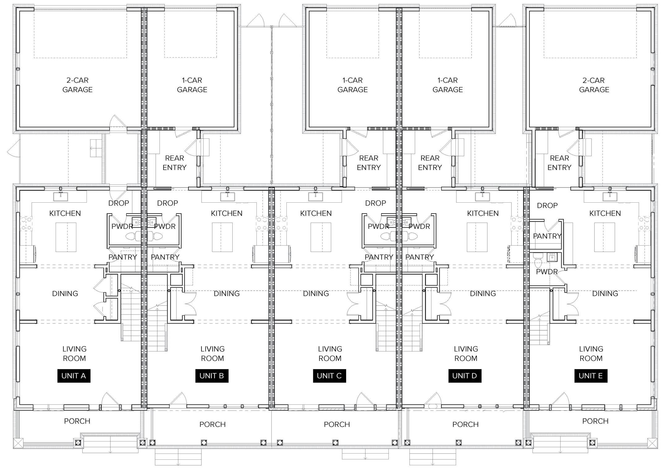
4072 PENFIELD DR, UNIT B LOT 91 | FRANKLIN, TN
3 BED | 2/1 BATH | 2,179 SQ FT TOWNHOME

![]()
4072 PENFIELD DR, UNIT B LOT 91 | FRANKLIN, TN
3 BED | 2/1 BATH | 2,179 SQ FT TOWNHOME






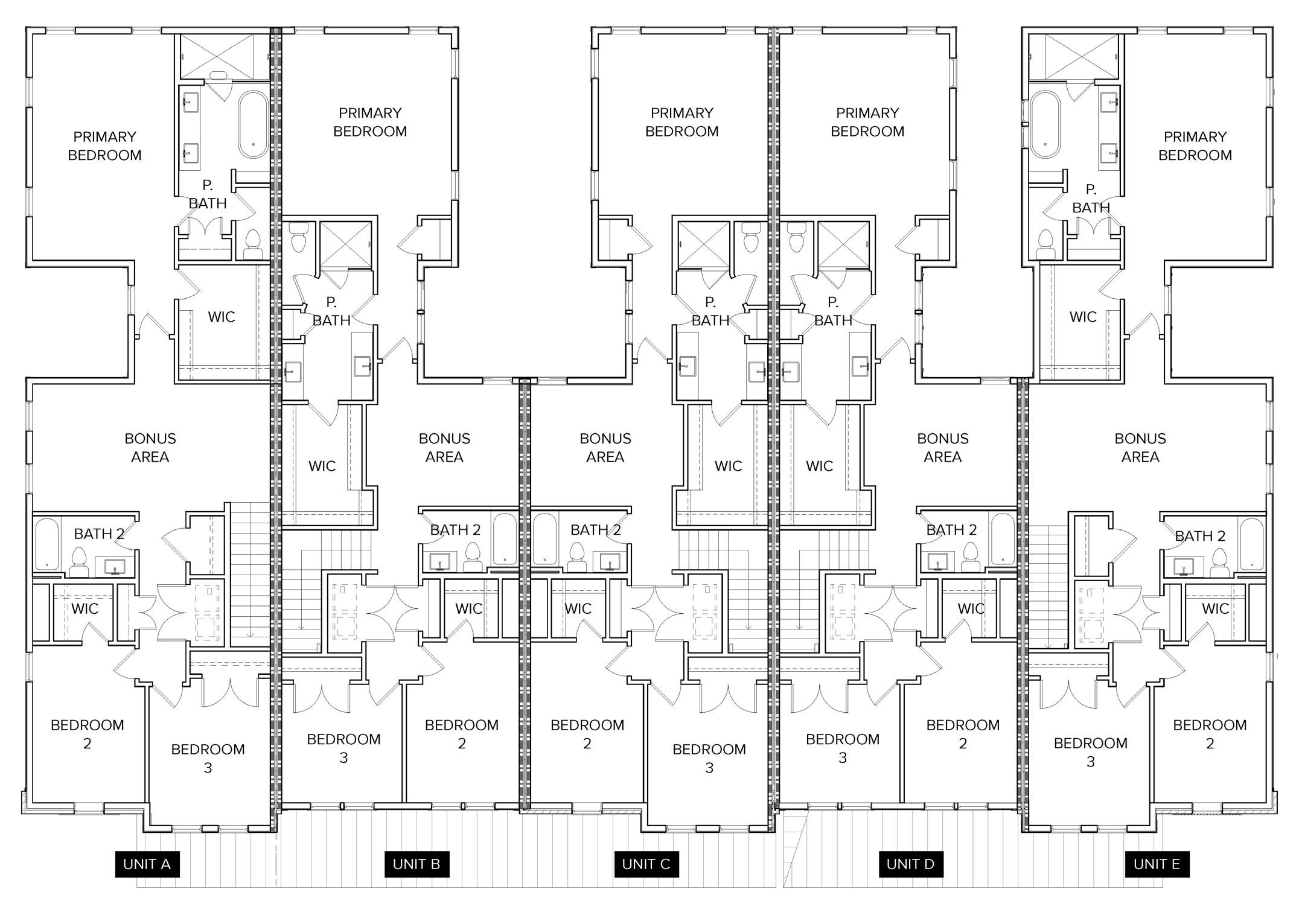
UPPER LEVEL










TRIM, FRONT & BACK PORCH CEILINGS, REAR SIDING, COLUMNS PAINT COLOR
Brand: Sherwin Williams Code: SW 7014
Color: Eider White
FRONT SIDING, DORMER, SECONDARY DOORS PAINT COLOR
Brand: Sherwin Williams Code: SW 6184

Color: Austere Gray METAL ROOF




GUTTERS

GARAGE BRACKET
HARDWOOD FLOORS
Brand: BPI Prestige
Series: Essence Oak
Color: Sedona
BONUS ROOM
ACCENT WALL
42” TALL PANEL MOLDING WITH 1X4



WALLS, CEILING, TRIM, & LIVING, DINING, & BONUS ROOM
ACCENT WALLS
PAINT COLOR
Brand: Sherwin Williams
Color: Heron Plume Code: SW-6070
PRIMARY BEDROOM
ACCENT WALL
PAINT COLOR
Brand: Sherwin Williams
Color: Agreeable Gray Code: SW-7029

INTERIOR DOOR HANDLES

PRIMARY BEDROOM ACCENT WALL
CARPET
Brand: Dwellings
Style: Groundworks Plus
Color: Cameo 174
LIVING & DINING ROOM TV WALL
1X2 STRIPS WITH 1X6 AT BOTTOM AND 1X4 AT TOP. SPACED 12-14” IN BETWEEN SPACED EVENLY ON WALL

1x6 on top, no crown with vertical shiplap behind
PAINT COLOR
Brand: Sherwin Williams
Color: Iron Ore
Code: SW-7069




BONUS ROOM DINING


Brand: Montra
Style: Omni
Color: Snow


Brand: Montra
Style: Omni Color: Graphite

Material: Quartz
Color: Super White


SINGLE HANDLE PULL-DOWN FAUCET
Brand: Delta
Series: Essa | 9113-BL-DST
Color: Matte Black



MICROWAVE
3-DOOR FRENCH DOOR COUNTER DEPTH REFRIGERATOR
Brand: Samsung Model: RF27CG5400SR
DISHWASHER
Brand: Samsung Model: DW80CG4021SR
Brand: Samsung Model: MA-TK8020T

CHIMNEY WALL-MOUNT
HOOD
Brand: Frigidaire
Model: FHWC3055L S

FRONT CONTROL SLIDE-IN GAS RANGE
Brand: Samsung Model: NX60T8111SS





SCONCE
Brand: Montra
Style: Omni
Color: Mineral
Material: Quartz
Color: Super White

SHOWER WALL TILE
Lia Purity 3x12
Vertical 1/3 offset

MONITOR 14 SERIES
SHOWER TRIM
Brand: Delta
Series: Saylor | T14235-BL
Color: Matte Black


BATHROOM FLOOR TILE
Lia Luster Collection
Color: Calacatta
12x24 | 1/3 offset


SHOWER FLOOR TILE
Lia Luster Collection | Mosaic
Color: Calacatta
TWO HANDLE WIDESPREAD FAUCET
Brand: Delta
Series: Nicoli | 35749LF-BL
Color: Matte Black

Brand: Montra
Style: Omni Color: Graphite





SINGLE HANDLE FAUCET
Brand: Delta
Series: Modern | 581LF-BLGPM-PP
Color: Matte Black
Material: Quartz Color: Super White

WALL TILE
Marlow, 3x12, Cloud Glossy 1/3 offset, Horizontal


BATHROOM FLOOR TILE
Series: Shaw | Tessuto Color: 125 12x25

MONITOR 14 SERIES TUB/SHOWER
Brand: Delta
Series: Modern | T14467-BL-PP
Color: Matte Black

Brand: Montra
Style: Omni
Color: Graphite

Material: Quartz
Color: Carrara Cloud
Brand:
Series: Nicoli | 35749LF-BL
Color: Matte Black



