Arrington, TN | Williamson County

First Level

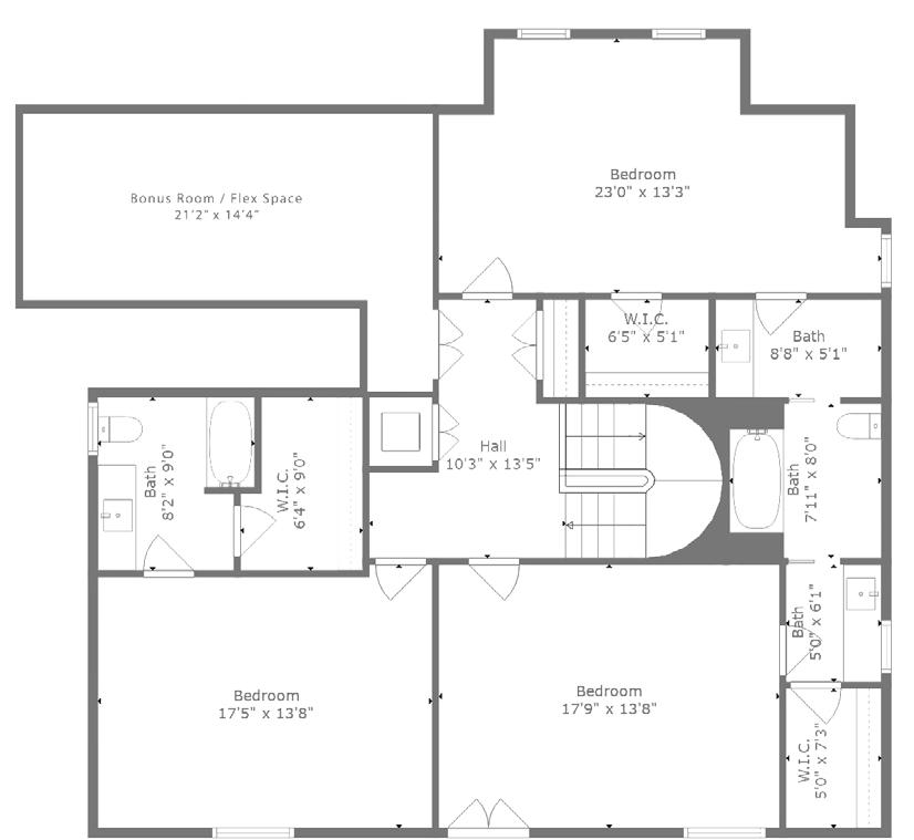
Second Level


![]()
Arrington, TN | Williamson County




This gated Arrington, Tennessee estate is a perfect blend of elegant and beautiful, yet also homey. The extensive renovation has made this 3.39-acre property with a private creek and resort-style amenities a true showstopper.
A grand foyer with checkered tile and wainscoting welcomes you into the home. The main level is perfect for entertaining, with elegant formal living and dining rooms featuring rich hardwood floors. Throughout the home, arched doorways, custom millwork, and striking designer lighting add timeless character. The coffered-ceiling living room has built-in shelving and a stone fireplace, and flows into a true chef’s kitchen.
The kitchen is a culinary dream, complete with an oversized island, wet bar, dual sinks, and top-of-the-line appliances. These include Fisher & Paykel refrigerator and freezer columns, an Italian dual-fuel range from ILVE with elegant gold accents and two dishwashers for added convenience. The space also features a stainless steel vent hood, a walk-in pantry, and a fluted glass built-in buffet.
The main-level primary suite is a true retreat. It boasts dual walk-in closets, a marble shower, soaking tub, and double vanities. There is even a space to add a morning or evening bar. On one side of the upstairs, you’ll find a media room with 11.2 surround sound with a flexible storage space. On the other upstairs side there are three additional bedrooms, two baths, and flexible bonus space.
Outdoor living is exceptional and offers a true resort feel. A covered porch, dining patio with a fireplace, and garden boxes lead to a sprawling, fenced yard. The in-ground pool features a sun shelf, spa, and fire features. At the rear of the property, a separate firepit area overlooks the peaceful creek, providing a private escape. The gated drive, flanked by mature trees for a secluded feel, also offers a three-car garage and extra parking. The estate is just minutes from Arrington Vineyards, a short drive to historic downtown Franklin, and an easy commute to Nashville.












































































