Lindal Modern: Iconic Plans & Signature Spaces

Page 1


Lindal Modern Iconic Plans and Signature Spaces

Krios, OM Studio - 42084 CO
Cover: Hestia, OM Studio - 41873 CA

CUSTOM HOMES DESIGNED AND DELIVERED

With Lindal Homes, you don’t just design a house. You achieve the lifestyle you always imagined.

Lindal Homes—North America’s largest manufacturer of upscale home packages crafted with our exclusive building system—provides an unrivaled structural warranty, quality building materials and spacious post-and-beam designs that are customized for each homeowner and the unique spaces outside their door.

Feel confident knowing that 80 years of experience goes into designing your custom home. QUALITY, EFFICIENCY,

AND

Signature Style: Lindal offers a distinct home that showcases personal style and brings the outdoors in. Every home is designed to embrace individuality, sustainability, and the surrounding environment.

Strength and Quality: Lindal provides premium-grade materials, and a house that’s engineered to last a lifetime. Your completed Lindal home is backed by an unrivaled Lifetime Structural Warranty.

Expert Guidance: Working together, Lindal’s team of in-house experts, architectural design professionals, and independent local dealers offer a collaborative process with expert and personalized guidance for each client, every step of the way.

Vandervort 2270 - 41388 WA
Crystal Springs, Imagine Series - 42006 NC

Dune Falls Avalon Aura

Como One* Como Two*

Vandervort 2270

Dowling 2230

Evolve 1990

Evolve 2370, Evolve 1750, Evolve 1530

Evolve 1180, Evolve 1821, Evolve 2238

LINDAL MODERN

Teton Modern* Chalet Modern* Rainier

Ash, Aspen, Cascade

Cedar, Sargasso, Bayside SPECIAL PROJECTS

Krios* Mirabel Haven Agra*

Mirror Lake Three*

Silverton, Willoughby, Crystal Springs Laurel Gable

Design Program Options

Endless Possibilities, Personalized Design DESIGN

PROGRAM OPTIONS

Many companies offer a limited selection of house plans and options to personalize your home. With Lindal, you can create a home that fits your lifestyle and includes the features you have always wanted. Our step-by-step design process and multiple design program options make it easy to bring your personal vision to life.

Throughout the process, your independent Lindal dealer is your trusted partner, providing expert information and guidance to ensure that you feel confident and prepared to design your dream home.

Choose one of our design program options to create a Lindal home that reflects your signature style.

1. Personalize an Existing Plan

Browse our huge selection of house plans and use your favorite one as the inspiration for creating an original home. A few changes can have a great impact on the style of your home. Modify exterior materials and accents, or the shape or placement of windows.

Lindal

Begin with one of Lindal’s house plans or design your own Lindal from the ground up. Discuss budget parameters and design options with your dealer – including floor plan layout, siding, style of windows and doors, etc. Based on information and personal specifications you provide, your dealer will work with Lindal’s design team to create a sketch of your new home and provide an accurate price estimate for the Lindal exterior materials package that can be quickly updated if changes are made during the design phase.

3. Custom Design Services

For a custom-fit solution to your new home, collaborative custom design services with OM Studio is an excellent choice. We partner with you, your Lindal dealer and OM Studio designer Aris Georges, who uses advanced visualization methods in an engaging and efficient manner to craft the home of your dreams.

See more about custom design services with OM Studio on the following page.

2. Lindal Sketch Services
Transform your dream from concept (top), to 3D visualization (center) to a beautiful completed home.
Hestia, OM Studio - 41664 TX

COLLABORATIVE CUSTOM HOME DESIGN

With Aris Georges of OM Studio Design

Aris Georges founded OM Studio to practice the design principles that he studied and taught at the Frank Lloyd Wright School of Architecture for nearly 30 years. Aris' love of architecture began at a young age when he worked in his mentors' design studio in his native Greece. He studied architecture at the University of Florence, and moved to Wisconsin to earn his Master of Architecture degree at The Frank Lloyd Wright School of Architecture. Aris was drawn to Lindal's highly customizable modern Elements system and its ability to provide a strong structural framework for interconnected and well-proportioned living spaces.

Interactive Design Sessions

Through meetings arranged by their local Lindal dealer, Aris collaborates directly with clients to create one-of-a-kind modern homes. He offers interactive online sessions where he uses 3D graphics—massing models, renderings, and walk-throughs—to help clients visualize, create, and become familiar with the design well before the project is built.

OM Studio and the Lindal Imagine Series

In addition to creating beautiful designs for the OM Studio Collection (see pages 16-23), Aris works with clients who want to build a Frank Lloyd Wright - inspired home from the Lindal Imagine Series (see pages 70-79).

Aris’ open and interactive working style makes the design process both engaging and positive. OM Studio’s work is proof that great custom designs can be created without sacrificing the efficiency and cost predictability of the modern Lindal Elements system.

Collaborative Design Process

• Design Services Agreement signed

• Client virtual video meetings to create a beautiful custom design

• Full set of plans to Lindal for pricing

• 3D modeling and rendering

• Optional site visits

To get started, contact your local Lindal representative: lindal.com/dealers

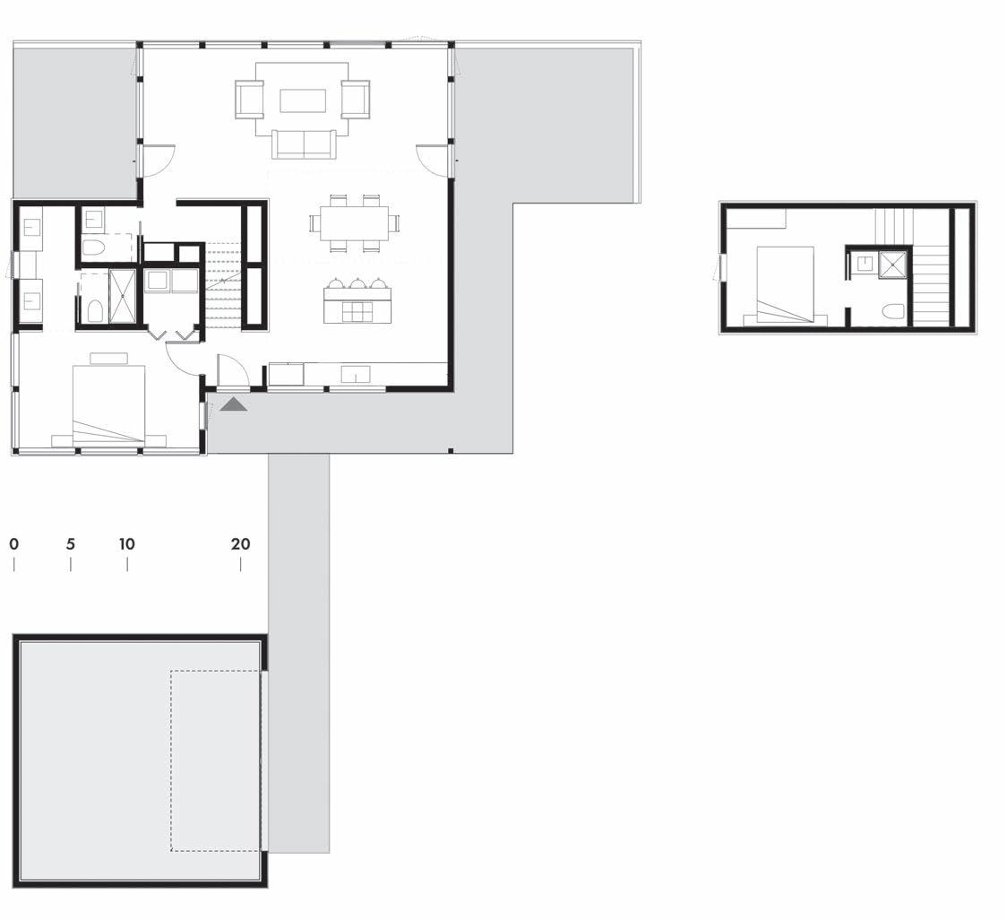
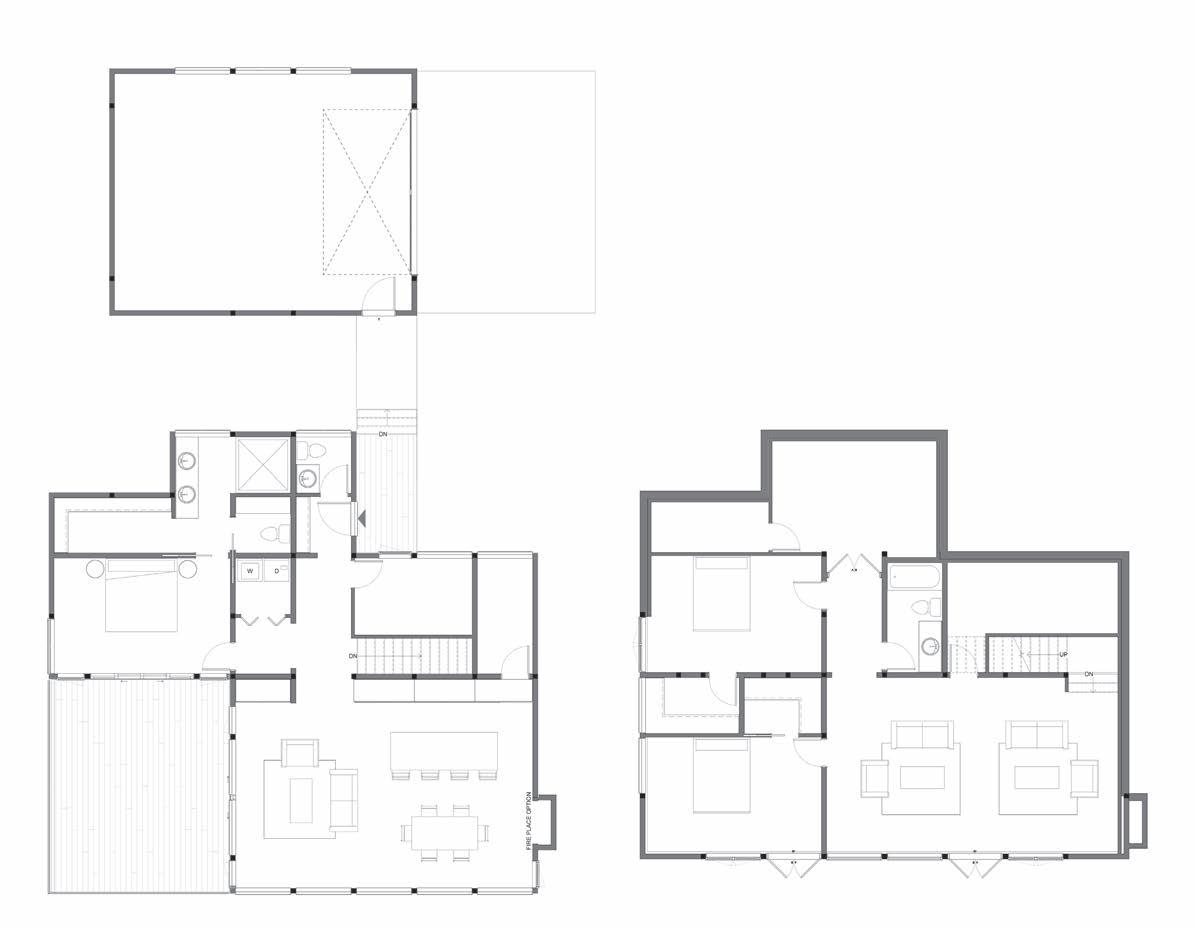
A TALE OF TWO HESTIAS

One Original Design, Two Distinct Custom Homes

The Hestia (meaning Inner Court), a design by OM Studio, wraps around an open, intimate courtyard surrounded by glass corridors. The bedrooms and office are located off the courtyard. Indirect lighting on the decks generates a comforting atmosphere at night. You can easily add an optional basement and double-car garage. While the inner courtyard in the Texas version is more like a sculpture garden, the one in California is designed as a series of concrete paths sprinkled in a garden. Read on to learn how site considerations and homeowner preferences influenced the design, creating two unique homes from the one original plan.

1. The clients added a cantilevered deck and screened porch to the design. 2. In the great room, a band of clerestory windows elevates the ceiling and creates a varied roof line.

3. A broad material palette includes a glasspaneled entry door, clear cedar soffit liner, charred wood siding, and copper accent walls.

The clients wanted their home as close to the Pedernales River as possible, but the site grew steeper the closer they got. To mitigate the steeper site without the use of a basement, OM Studio worked with a concrete contractor to create a cantilever concrete deck and slab.

The clients wanted to elevate the main level to capture views of iconic Morro Rock out in the bay. To accomplish this, OM Studio removed the upper band of clerestory windows and gave the home a more streamlined profile. The clients chose very different siding and finishings.

1. The California Hestia has a single flat roof. 2. A band of upper clerestory windows was removed, elevating the home to encompass the view of Morro Rock. 3. The clients opted for a glass-paneled entry door, black trim, and vertical clear cedar siding and soffit liner.

ARCHITECTURAL DESIGN PORTFOLIO

Celebrating Excellence in Modern Home Design

Explore a curated collection of innovative Lindal homes, crafted in collaboration with renowned architects and designers for unparalleled quality and style. These design virtuosos create exceptional modern Lindal homes that combine the functionality and efficiency of the modern Elements system with the look and feel of a one-of-a-kind architect-designed home. Lindal is uniquely positioned to offer architect-designed homes faster and more affordably, without sacrificing either quality or style. lindal.com/architectural-house-plans

OM Studio Design
Homes
Dune Falls, OM Studio - 41944 MI

A beautifully realized home design, Dune Falls features a combination of fiber cement and stone siding on the exterior and a dramatic monopitch roof. Clear wood liner makes a statement in the entry area. A two-car garage is connected to the house. The deck is placed to the side of the great room so as not to obscure the view of the water and sand dunes from the floor-to-ceiling windows. A lower level can easily be added on a sloped lot.

41944 MI

In a luxurious use of space, the voluminous entry in the Avalon – with clear cedar siding and a 4-foot front door with two side lights – creates a stunning first impression. The great room has a dropped ceiling in the kitchen and a separate dining nook. A mudroom off the back deck includes a laundry area. The primary bedroom is located on the main floor and includes deck access and a walk-in closet. Two bedrooms upstairs share a bathroom and small balcony off the hallway. Mono-pitched rooflines add interest and a midcentury modern flair to this beautiful family residence.

41845 MI

The Aura (meaning Breeze) includes two discrete volumes for day- and night-time, connected by an enclosed breezeway and entry. Aura’s dramatic use of our modern building system generates two different, low-pitched roofs that crown the day/night spaces. This gives the composition the look of two wings soaring in the breeze. Three bedrooms and two-anda-half baths, all on one level, with an attached two-car garage.

3 Beds I 2.5 Baths
Living I 3100 SF
Footprint I 38' X 86'

Designed for an urban setting, Como One is optimized for smaller spaces with a limited footprint and setbacks. This thoughtful design promotes the concept of private backyard exterior space with intimate rather than long views, and privacy on the sides from neighbors. The monopitch single roof is designed to satisfy HOA requirements for a quiet profile. The home is divided into public and private zones, with two-bedroom suites on the upper level.

Como Two offers an expanded and more dramatic version of Como One. The broken roofline with a butterfly design makes it more contemporary and playful than its smaller sibling. A primary bedroom suite and two additional bedrooms with a shared bath are located on the upper level, with the main level devoted to a spacious great room and kitchen.

This modern farmhouse design by Pacific Northwest-based Vandervort Architects is clad in black steel siding for dramatic effect. It boasts a great room of unmatched transparency, with glass walls that wrap the space to a fireplace centered on the gabled end. Laminated girders enable the openness of the plan while maintaining human scale. Modern dormers flood the center of the space with natural light.

VANDERVORT 2270

This bold but calming design by architectural firm Dowling Studios contrasts transparency and opacity. The large central great room is framed front and rear by full-width walls of glass with deep roof overhangs, flanked by solid walls that complete the symmetrical elevations. Fully glazed recessed end-walls flood the bedroom with light.

Two-level living in the primary volume of Evolve 1990 gives great flexibility to this design. A second story provides ample room for two private offices, or a children’s bedroom and study area. A portion of the great room is two stories high under the Lindal wood-lined roof. The post-and-beam above the breezeway provides a welcome natural shelter even in inclement weather. This fresh air great room provides the valued separation and privacy for the office or guest suite, and can be enclosed, if desired.

EVOLVE 2370

2369 SF

3 Beds | 2.5 Baths

Designed for a sloping site, this house has three separate living zones. The main floor of the primary volume is proportioned for a young family. A lower level built into the hillside is an ideal kid’s zone. Across the open breezeway a generous one or two office suite could also function as private quarters for guests or aging parents.

EVOLVE 1750

1747 SF

2 Beds | 2.5 Baths

This is an ideal design for a pair of empty nesters who work from home. The primary volume features two glass gables to maximize the view and the daylight. The living breezeway adds another 350 square feet of communal space. The private side includes two large offices and a conference room or a two-bedroom suite for visiting kids and grandkids or a suite apartment for aging parents.

EVOLVE 1530

1533 SF

3 Beds | 3 Baths

The simplicity of the Lindal post and beam roof form lends an air of calm and spaciousness, with every room rising to the ridge of 15 feet. The primary volume features a second bedroom, ideal for a quiet office. The private zone can be a two-office suite or a large guest suite.

EVOLVE 1180

1179 SF

2 Beds | 2 Baths

The smallest of the Evolve series is an ideal retreat, suburban ADU or seaside escape. The covered deck provides a panoramic view of the natural environment. A second bedroom provides a quiet retreat for guests or a sunny home office.

EVOLVE 1821

1821 SF

2 Beds | 3 Baths

Portfolio Plan: The Lindal Portfolio Design process enables you to personalize portfolio plans and incorporate Evolve design features in an iterative and cost-predictable method. We’ve taken the everpopular Cedar 1148 house plan and refined it by converting the interior entry into a larger covered outdoor space. The expanded communal wing adds enough space under the monopitch roof for a semi-private upper level with access to its own private roof deck.

EVOLVE 2238

2238 SF

4 Beds | 3 Baths

One-of-a-Kind: This Evolve design was created for a family with adult children and grandchildren who visit frequently. The owners still work and want offices that are remote from their leisure spaces. The owners’ relaxed home is separated from two zones of privacy with a living breezeway. Steps away a second volume provides a two-bedroom suite with dedicated family space, separated from a weekday two-office suite by a landscaped courtyard.

LINDAL MODERN

A System-Built Approach to Custom Home Design

A Flexible Grid System with Limitless Variations

The Lindal modern Elements building system developed as a solution for today’s complex and demanding environments and lifestyles. By designing a grid system that works both horizontally and vertically, is endlessly scalable, and accommodates a broad palette of material options as well as any roof on any floor plan, we enhanced the flexibility of the original Lindal homes.

The Best of Both Worlds: Lindal Classics, Reimagined

Our specially marked Classic Reimagined designs bring our beloved classic Lindal homes into the modern Elements system. We've added height and width and a more contemporary look and feel, while retaining the charm.

Efficient Pricing and Premium Affordability

The Lindal Elements system enables us to quickly price even the most custom designs with a client's personalized material selections, and to repeat that process with every modification. lindal.com/modern-homes

Classic Reimagined: The Chalet has a lot in common with the Teton, including the size and floor plan, but with its own distinct features and a streamlined profile. A simpler roof construction with no flare allows for more space in the upstairs loft area. The wall of glass on the view side is flat rather than pointed. Perfect for a small family or a vacation getaway.

Classic Reimagined: The Rainier is an iconic Lindal design that has been beautifully incorporated into the modern system. The wall of windows follows the distinctive, two-pitched roofline. The Rainier plan offers an expanded version of the popular Teton for a larger family, either as a vacation home or primary residence. The home has a larger footprint, with two bedrooms on the main level, but a more intimate loft area.

Classic Reimagined: This is a full-time family home with large glass walls. Contemporary spaces, simplified rooflines and dormers provide a pleasing showcase for the geometry of modern windows, while a traditional gable roof creates the best of both worlds.

Perfect for clients who want a modern home but must comply with HOA restrictions on roof styles. The living room has a cathedral two-story ceiling with a balcony that includes flexible auxiliary spaces for a playroom or office space.

BRUNSWICK MODERN

Just over 3000 square feet, the Sirius is an ideal home for entertaining, with a full guest suite for friends or family. On the view side, a 15-foot lift-and-slide door leads from the living room to the deck. Clerestory windows on both sides of the home ensure privacy while the living, dining, and primary bedroom provide ample views with corners of glass and walls of windows. The primary bedroom on the main level has private access to a reading loft or office space directly above the sleeping area.

As in the original Tucana design, the Zeno includes a large, covered porch on the view side, but features a traditional gabled roof and redesigned floor plan. An interior balcony looking out over the cathedral great room can be accessed from the upstairs bedrooms. The light trim and window package shown in the rendering give the home an East Coast coastal look. For a traditional modern palette, clients can opt for walnut brown, dark grey, and black.

The Garda is a three-bedroom house with a flexible floor plan that borrows from the Como Two concept (see page 23) with a split butterfly roof. This home is designed for a site without privacy restrictions and with open landscapes. The lower level includes flexible spaces that could be divided into one or more bedrooms, offices, or studios.

SMALL HOMES, BIG POSSIBILITIES

Effortless Living in Stylish, Space-Smart Designs

Discover the charm and practicality of Lindal’s small homes and accessory dwelling units (ADUs). Perfect for maximizing a small lot or embracing the simplicity of compact living, our designs offer low maintenance, energy efficiency, and inviting, airy spaces.

Browse our collection of small home plans, and take the first step toward creating a space that fits your lifestyle. lindal.com/small-homes

These cute side-by-side studios were built as writer’s retreats, but could also serve as guest cabins, small rental units, or living quarters for extended family. The kitchen and living room are located in one of the units. Clerestory windows wrap around the structure, filling it with natural sunlight. The second unit contains the sleeping quarters and a working area with an expansive view through the large window.

Cottage One - Living/Kitchen Cottage Two - Bedroom/Bath

SPRUCE

1100 SF

2 BEDS | 3 BATHS | 1 OFFICE

A wonderful one-level weekend retreat. The monopitch roof gently rises to the great room with sweeping views in three directions and a covered deck. There are two bedrooms with compact ensuite baths and a private office space. OM Studio Design.

lindal.com/spruce

ELM

990 SF

2 BEDS | 2 BATHS

Simple and striking, a sweeping monopitch roof creates interior spaces of varying volumes. Two private bedroom suites share a central communal area. The Elm is an ideal second home or accessory dwelling unit.

lindal.com/elm

ALDER

485 SF

1 BED | 1 BATH

As a freestanding carriage house or attached to your home with a breezeway connector, the Alder provides a private suite for live-athome college students or guests, an artist studio or professional office. The post-and-beam roof can be rotated to catch the sun.

lindal.com/alder

Cute and compact, the onebedroom, one-bathroom Sage is the perfect backyard accessory dwelling unit. Ample windows allow for natural light to fill the living room. Decks and exterior overhangs expand the living area. lindal.com/sage

42011 VA
42011 VA

QUICK SHIP PROGRAM

The Most Efficient Way to Build Your Dream Home

The Quick Ship program is a popular option for clients who want to start with a pre-planned design and personalize it. Choosing a Quick Ship home reaps dividends in terms of lower cost and shorter time frame.

Lindal's Quick Ship base specification—with pre-defined layouts, materials, and engineering —allows for faster pricing, enables easy comparison of designs and reduces drafting and engineering expense.

The shape and dimensions of the building envelope cannot be changed. However, interior layouts can be modified to suit your needs (including moving exterior windows and doors), and you may opt for any of the Lindal material options to personalize your design.

lindal.com/quickship

These homes are designed for ultimate flexibility. By allowing for an optional second level, each model comes in at least two size options. Images shown here may include custom options that differ from the original Lindal plans.

Poplar

Our new Quick Ship Poplar comes in two different sizes and offers great style, comfort, and versatility. The great room is divided into zones for dining, cooking and relaxing, while the optional lower level offers flexible spaces that can be designed to suit the needs of your family and lifestyle.

3 Beds I 2.5 Baths

Main Level 1267 SF

Lower Level 1490 SF

Living I 2757 SF

Footprint I 44' X 31'

The larger Poplar 2757 is the perfect option for a family who need a flexible layout with room on the lower level for guests, a workout area, studio, or additional bedrooms.

Poplar 1302 is ideal for a single person or small family. A spacious deck and walls of glass open the space to the outdoors and make it feel much larger than 1,300 square feet.

ASH

2129 SF

3+ BEDS | 2 BATHS | 1 OFFICE

ASH is a modern home with a classic profile. The design nods to farmhouse style with a series of connected barn-like structures. This is one of our most popular homes, with walls of glass on the view side, a single-story layout, and a flat-roofed entry separating the public and private spheres.

ASPEN

1283 SF

3 BEDS | 2 BATHS

CASCADE

3511 SF

4 BEDS | 3.5 BATHS

ASPEN brings the best of Lindal and the Elements design system together in a simple but striking small home. Just shy of 1,300 square feet, this compact home feels spacious due to its low-pitched roof, open-beamed ceilings, and walls of windows that open the space to the outdoors. These homes are designed for

CASCADE has a dramatic butterfly roof as the ultimate design element. Both aesthetic and functional, this feature provides visual interest and allows for higher perimeter walls and a band of clerestory windows for greater light penetration through the interior. A studio sits above the garage. This home easily adapts to country or urban living.

CEDAR

1283 SF

3 BEDS | 2 BATHS

CEDAR offers one-level living in a modest-sized residence. This home is zoned beautifully to accommodate a variety of lifestyles. The communal zone and private master suite are linked by a central entry. Stairs leading to a lower daylight basement level may be added, as well as an optional garage.

SARGASSO

2254 SF 3 BEDS | 2.5 BATHS

SARGASSO is a ranch-style house with an efficient one-level floor plan. This home exudes a spirit of comfort and ease. A large open gathering area allows for informal seating and relaxing or eating before a roaring fire. The expansive wall of windows and glass sliding door offers easy access to the deck areas from the living room and allows family and guests to enjoy the outdoors, day or night, rain or shine.

BAYSIDE

1621 SF

3 BEDS | 2 BATH S

BAYSIDE features a dramatic prow front of glass in the open great room/dining/kitchen area. The side wing is dedicated to a private primary bedroom suite. Modest in size at just over 1,600 square feet, the one-floor design feels much bigger due to its high ceilings and lightfilled interior.

lindal.com/floor-plans/quick-ship/

SPECIAL PROJECTS

Tailored Designs That Turn Challenges Into Opportunities

Whether you're building on a steep slope, designing to capture a private view, or meeting state and local regulations for flood or fire safety, our architectural design professionals create innovative solutions. The following home designs showcase how we address client needs, navigate site restrictions, and overcome design challenges with creativity and expertise.

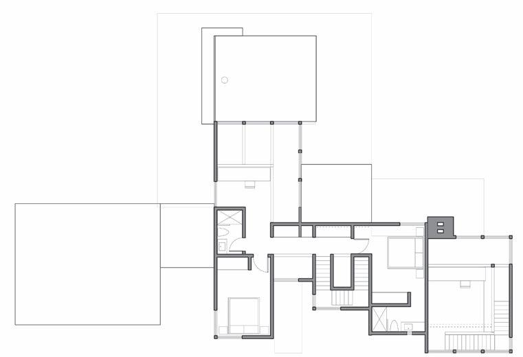
Krios, OM Studio - 42084

Krios: An Intimate Connection to Unique Surroundings

The Krios is built on a 100-acre lot, but the clients wanted the house sited right next to the creek that flows along the back of the property, with intimate views of the surroundings. Designed to evoke the mountain ranch architecture common to the area of Colorado in which it was built, the roof stretches in a long trajectory from the gable to the bedrooms, with all the height in the central space.

OM Studio Design worked with the clients to keep the axis of garage, mudroom, pantry, kitchen, and porch in one bookend of the house, with two bedrooms on the main floor on the other side. Upstairs is a study and two more bedrooms, with a balcony that looks down into the great room.

Mirabel: A Net Zero Smart Home for Sustainable Living

An energy efficient, modern Net-Zero home with a private-entry workshop/ADU next to the garage. Large expanses of glass and upper clerestory windows in the great room make the Mirabel feel large and spacious despite its modest size. Exposed wood beams reveal the structure and add warmth to the living/dining area. The homeowner designed the residence with in-floor radiant heat throughout, solar panels on the standing seam metal roof, and a smart home system. Openable windows in the main rooms and strategically placed ceiling fans allow for passive cooling of the home via natural breezes.

Haven: Shelter from the Storm

This beautiful house is built in a hurricane-prone area of Long Island. It’s a great example of how Lindal homes can be built and engineered to handle any environmental and climatic conditions. The garage has concrete blowout walls, not attached to the house, so that they can wash away in a hurricane. On the view side, the area under the covered sunporch is open so water can flow through it, creating a functional space for relaxing in the shade. The entire structure is raised up on pilings to take the primary dwelling areas safely out of the flood zone. A 15-foot wide sliding glass door leads to the three-season porch, which draws air in from the outside – an integral part of making this design green and energy efficient.

This Northern California home was built after a devastating fire destroyed many homes in the area, and is specially designed to meet California’s WUI (Wildland Urban Interface) code, making it extremely fire-resistant. Large overhangs at the entry and off the back patio provide protection from the elements. A seamless transition between indoors and out is achieved by the extension of the beams through the home’s envelope to support the deep patio overhang, and the continuation of the indoor flooring out to the patio area. The exterior siding is made of fire-resistant fiber cement, a popular, low-maintenance choice that comes in a large variety of pre-stained colors.

Agra: A Fire-Resistant Home

LINDAL IMAGINE SERIES

Frank Lloyd Wright-Inspired Homes for Modern Living

In an exclusive partnership with the Frank Lloyd Wright Foundation, Lindal created a line of homes inspired by the Usonian designs of America's greatest architect, Frank Lloyd Wright. The Imagine Series unites the enduring design principles of a Usonian home with current developments in technology, construction and design theory. The result is a harmonious synthesis—a beautiful, functional home that accommodates and expresses the way people live today.

Designed by Aris Georges and Trina Lindal, the homes are spacious, energyefficient, filled with light, and positioned to integrate seamlessly with their surroundings. They reflect Frank Lloyd Wright’s belief that the buildings we live in affect the kinds of people we become. lindal.com/imagine

This beautiful three-bedroom, two-and-a-half bathroom home, built in the Usonia Historic District of Pleasantville, NY, accommodates a family in ease and style. The upstairs is devoted to a spacious great room with panoramic views through a wall of glass. A private office off the great room has its own deck and could easily be converted into a primary bedroom suite for aging in place. Downstairs includes three bedrooms, a bonus room for a home gym or office, the laundry and other utilities, and a mechanical room that leads out to a workshop.

Lindal’s translation of Wright’s Seth Peterson Cottage continues to evolve in Mirror Lake Three. This contemporary home is significantly larger than the original, while retaining its primary architectural features. A second bedroom is added to the core, with its own small bathroom. The entry moves to the kitchen side of the main level, allowing for the cathedral side to be devoted to the living room. The detached garage could be linked to the main house by a flat roof.

SILVERTON

3010 SF

4 BEDS | 4 BATHS

Translated from Gordon House, one of the last Usonian designs in Frank Lloyd Wright’s career, Silverton commands a flexible design in a T-shaped layout. The great room can be flipped to the views while the stacked bedroom wings can adjust for size without losing the essential beauty of the design.

WILLOUGHBY

2725 SF

3 BEDS | 2.5 BATHS

Translated from Penfield House, the Willoughby design grows in linear geometry and can be ideal for a narrow/long lot. The striking exterior wood feature, shown on the left, is offered as an option to the standard design.

CRYSTAL SPRINGS

2490 SF

3 BEDS | 2.5 BATHS

Inspired by Wright’s Bachman-Wilson House, Crystal Springs stacks two bedrooms above the kitchen/dining/utility core, giving the living room a generous double-height ceiling with a wall of glass that makes the home seem larger than its 2490 square feet.

LAUREL GABLE ROOF

2125 SF

3 BEDS | 2.5 BATHS

The Laurel is a modern translation of Duncan House, a Usonian home designed by Wright in the 1950s. This Laurel design includes a pitched gable with a clerestory over the living room This comfortable threebedroom, two-and-a-half-bathroom family home has a sunken living and dining room. Additional features include a carport/garage and a back porch, and the option to add a partial walkout basement.

LAUREL FLAT ROOF

2125 SF

3 BEDS | 2.5 BATHS

This comfortable three bedroom, two-and-a-half-bathroom family home has a sunken living and dining room. Additional features include a carport/garage and a back porch, and the option to add a partial walkout basement. This Laurel design features a cascading flat-roof.

MADISON TWO

2163 SF

2 BEDS | 2 BATHS

The Madison is a wonderful one-level retreat. The monopitch roof gently rises to the great room with sweeping views in three directions and a covered deck. There are two bedrooms with compact ensuite baths and a private office space.

LANSING

1431 SF

2 BEDS | 1 BATH

The Lansing is a translation of Goetsch-Winckler House, one of the early Usonian houses built in Okemos, Michigan, in 1940. This cozy house features an ample living and dining room with a fireplace nook, integrated kitchen, two bedrooms, one bath, a carport and a private walled garden.

MIRROR LAKE ONE

1256 SF

1 BED | 1 BATH

Mirror Lake One is a close translation of Wright’s original Seth Peterson Cottage design and floor plan, with a small, centralized kitchen and expansive great room. The open floor plan in Mirror Lake is ideally suited to creating a spacious, livable home in just 1256 square feet. Lindal offers several versions of this cottage design.

MIRROR LAKE TWO

1256 SF

1 BED | 1 BATH

In Mirror Lake Two, the kitchen and dining area are integrated into the spacious great room, allowing for larger bathroom, storage, and utility areas in the home’s core.

HIGHLAND PARK

1002 SF

1 BED | 1 BATH

This compact linear plan is suited for any size lot, including a small urban infill, while still maintaining privacy. The street side of the Highland Park design is buffered by the carport with a roofline that extends to shelter the entryway.

MESQUITE ONE

900 SF

1 BED | 1.5 BATHS

An original Usonian-inspired studio home with one ensuite bedroom. The living area has taller ceilings and clerestory windows to bring in abundant natural light. Circulation is on the perimeter of the design to allow for an efficient use of the central core, in keeping with the classic Usonian layouts.

MESQUITE TWO

1335 SF

2 BEDS | 3.5 BATHS

The Mesquite two-bedroom is an original Usonian-inspired studio home with ensuite primary bedroom, and another ensuite smaller bedroom that creates a cozy space open to the landscape. The great room has taller ceilings and clerestory windows to bring in abundant natural light.

Lindal delivers homes to clients throughout the US, Canada, and internationally.

North Carolina
Washington
Japan
California

NEXT STEPS

Below are links to further information and resources as you start planning your Lindal home. Contact our internal sales support team anytime at sales@lindal.com, or by calling 1-800-508-1833.

View All Home Styles

lindal.com/floor-plans

Lindal has hundreds of floor plans and home styles available. Choose or modify an existing home design, or start from scratch and create your own.

Custom Home Design Services

lindal.com/om-studio-design

Work with architectural design professional Aris Georges of OM Studio to create a unique custom home.

Frank Lloyd Wright-Inspired Homes

lindal.com/imagine

In an exclusive partnership with the Frank Lloyd Wright Foundation, Lindal presents the Imagine Series: Home designs inspired by architect Frank Lloyd Wright’s original masterpieces, updated for modern living.

View Our Digital Plan Books

lindal.com/ebooks

Register to to gain access to all Lindal’s online plan books, including our portfolio of architect-designed homes, our classic designs, our small homes and ADU series, a look at the Alpha A-frame, and much more.

Purchase a Plan Book

planbooks.lindal.com

Our plan books and calendars are available for sale in our online store.

Attend a Webinar

lindal.com/events

Lindal offers introductory webinars on modern homes design, custom home design, and our Lindal Imagine Series.

Find Your Local Lindal Representative

lindal.com/dealers

For pricing estimates, site visits and experienced guidance throughout your new home project, your local Lindal dealer is an invaluable resource. Contact the Lindal dealer closest to you for personalized, one-on-one support.

The architectural designs, drawings, and images in this book will give you new ideas about how your Lindal home will look. All of the designs, drawings and images belong to Lindal Homes, Inc. They are protected by copyright law, and you may use them only to design and construct a home using Lindal’s premium building materials. Any other use of the designs, drawings, photographs and images in this book, including without limitation the preparation of new plans based on Lindal’s plans, is strictly prohibited. Renderings and photographs may show premium upgrades available from Lindal. Due to individual customization some photographs may vary from the floor plan. Plan scale varies due to the graphic design and printing process. All detached garages and decks are optional. Consult your local independent Lindal dealer for updates and pricing. All rights reserved. Photography on the back cover and pages 26, 27, 55-57, 59, 66, 67, 72, 73 by John Muggenborg.

Poplar - 42140 NY

Turn static files into dynamic content formats.

Create a flipbook
Issuu converts static files into: digital portfolios, online yearbooks, online catalogs, digital photo albums and more. Sign up and create your flipbook.
Lindal Modern: Iconic Plans & Signature Spaces by Lindal Cedar Homes - Issuu