Skip to main content

Yuanqingzi Ni Portfolio

Page 1


Collective Workflow

Selected Architectural Works

/ Contents

02 / HOUSING AND INTEGRATED DESIGN

Mixed-use Housing

12 / CULTURE CONNECTION

Civic and Cultural Project

30 / DEAFSPACE

Inclusive, sensory & Culture Space

20 / BIODIVERSITY ODYSSEY

Environmental Studio

46 / Other works

48 / RESUME

Design Position

I approach housing as a framework for everyday interaction rather than a formal object. Sections, circulation, and shared thresholds are my primary tools for shaping collective life.

01 / Housing and Integreted Design

Mixed-use Housing Project

Project Statement

This mixed-use housing project explores how architectural organization can foster everyday social interaction within a dense urban context. Structured around a central courtyard, the building integrates a range of unit types with shared circulation and communal spaces, encouraging visual and physical connections among residents. The project emphasizes clear structural logic and constructability, using repetition, modular systems, and legible circulation to balance social engagement with efficient housing organization. Rather than relying on formal expression alone, the design prioritizes spatial clarity and human-scale relationships to support collective living in an urban environment.

Program Distribution & Vertical Strategy

Number of Units:

Studio 24

One bedroom 34 Two bedroom 12

Total: 70

Fig
Unit Typology Variations
Fig 10
Fig 08
Fig 11
Fig 09
Fig 14
Fig 15
Fig 16
Fig 17
Fig 21
Fig 18
19
20
15

Rather than representing culture symbolically, I was interested in how structure, enclosure, and circulation could produce cultural interaction. This project reflects my tendency to work through tectonics and spatial thresholds as social instruments.

02 / Culture Connection

Civic and Cultural Project

Project Statement

Culture Connection is an interactive cultural center in San Francisco’s Fillmore District, shaped by the layered histories of Japanese, African American, and American communities. The project translates cultural exchange into spatial relationships rather than symbolic form alone. Elevated platforms, shared voids, and visual connections link exhibitions, workshops, performances, and public gathering spaces. A modular timber structure and patterned envelope reference traditional construction techniques while allowing flexibility and openness. By blurring boundaries between public and semipublic zones, the project encourages everyday interaction, collective memory, and community engagement.

Material and spatial references informing the project’s structural expression and communal atmosphere.

The massing evolves through stacking, shifting, and structural articulation to respond to

Fig 11
Fig 12
Fig 13
Fig 17
Fig 18

03 / DEAFSPACE

Inclusive, Sensory & Culture Space Course

Semester Spring 2025 & Fall 2025

Project Statement

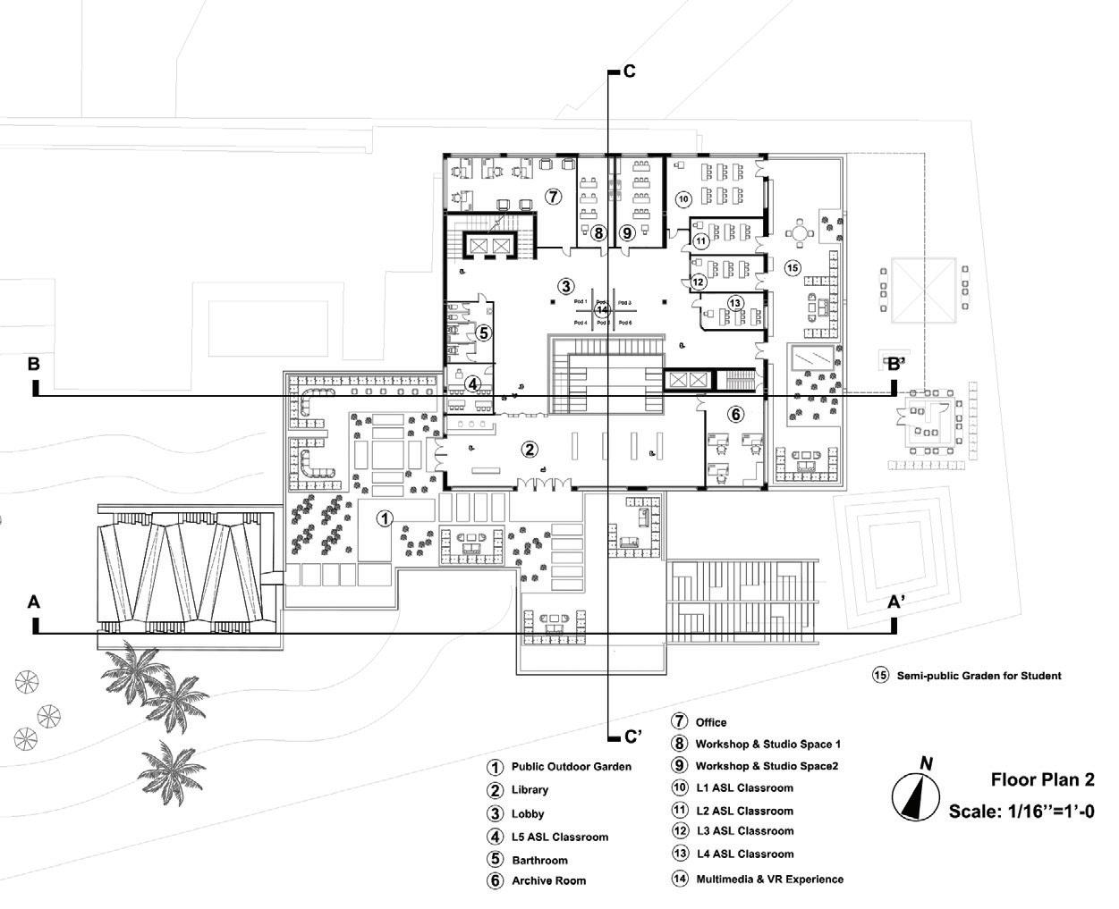
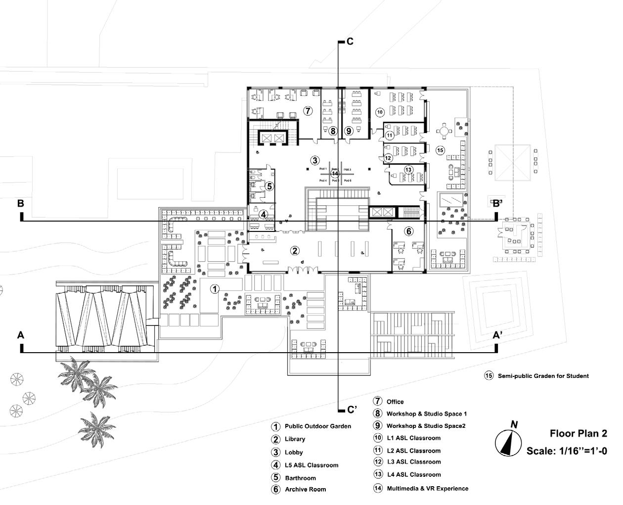
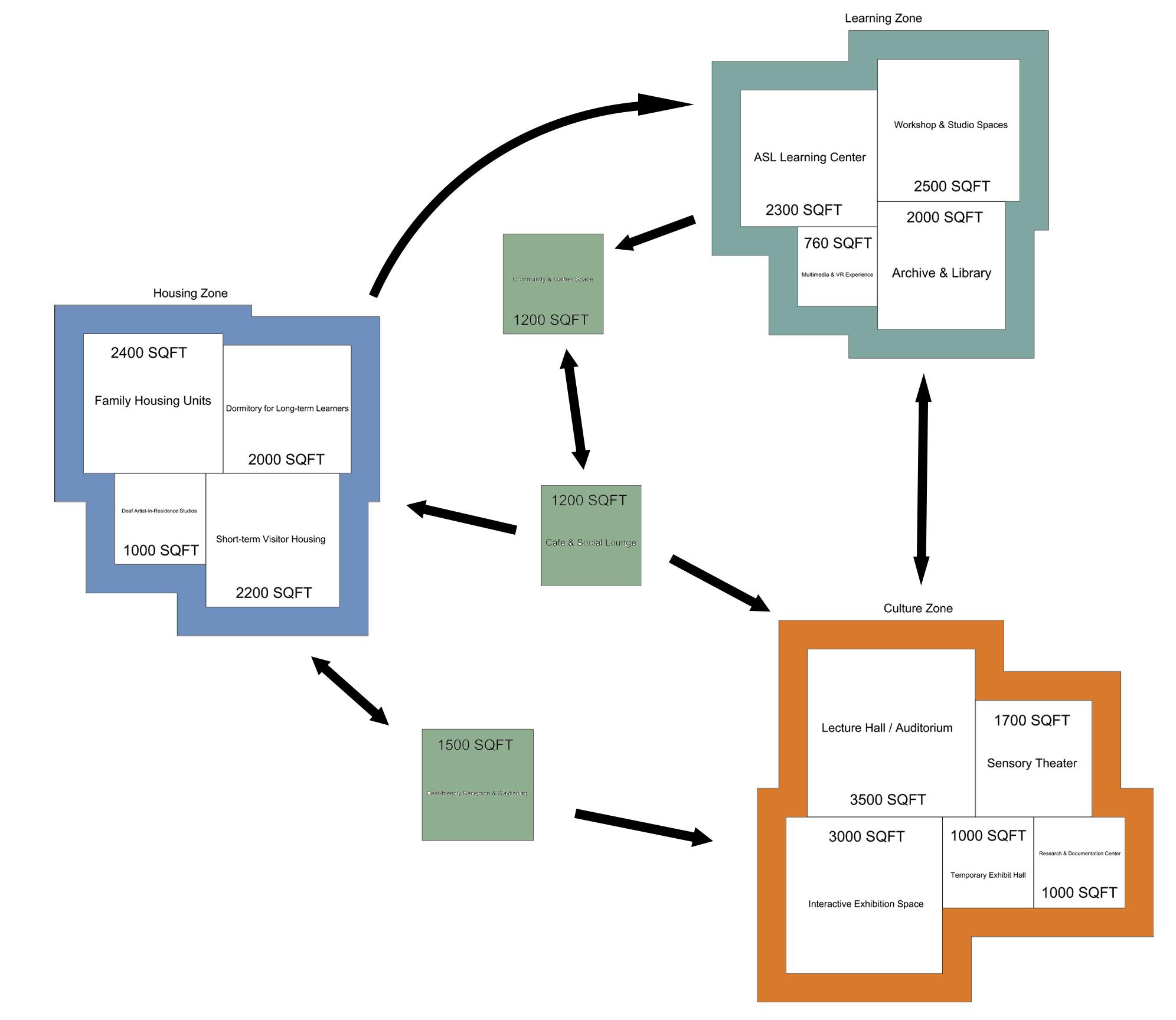
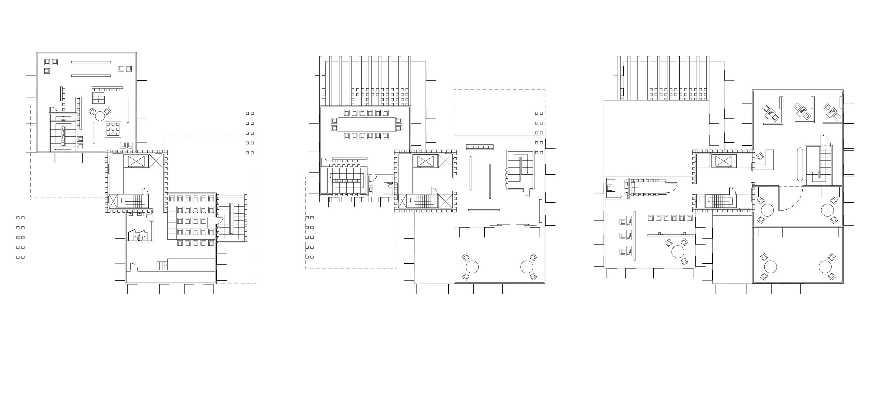
This project explores how architecture can move beyond accommodating Deaf users to actively supporting visual communication and sensory equity. Drawing from lived experiences in sound-oriented spaces with limited sightlines and visual access, the thesis positions DeafSpace principles as fundamental spatial strategies that prioritize visibility, orientation, and shared awareness rather than sound-based cues.

Located at 1 Ferry Plaza in San Francisco, the project applies these principles to an urban mixed-use building through adaptive reuse. Open sightlines, curved circulation, layered public-to-private organization, and sound-dampening material systems support signed interaction and intuitive navigation, integrating cultural, educational, and residential programs into a cohesive Deaf-centered environment.

DeafSpace principles guide the project’s spatial decisions by prioritizing visual communication, spatial awareness, and sensory clarity.

Conventional architectural layouts often rely on sound-based cues, which can create spatial barriers for Deaf users. In response, this project rethinks enclosure, circulation, and thresholds to support face-to-face communication, clear sightlines, and intuitive orientation. Curved edges, visual transparency, and controlled boundaries reduce blind spots and visual interruption, allowing space to actively support signed interaction rather than obstruct it.

A site-based decibel study reveals distinct acoustic conditions across the Ferry Plaza waterfront.

Areas adjacent to traffic corridors and public gathering zones register higher noise levels, while interior and waterfront-facing zones remain relatively quieter. These acoustic variations inform the project’s program distribution, placing louder public and cultural functions in high-noise areas, while locating learning, residential, and visually focused spaces within acoustically buffered zones. Sound data is used not as a technical constraint, but as a spatial driver shaping program hierarchy and sensory comfort.

Fig
Fig

Ground and upper-level plans illustrate the spatial organization of public, learning, and support programs.

This semester’s spatial development refines the mass into a layered system of public, educational, and residential programs. Through stacking, shifting, and interlocking volumes, the design prioritizes accessibility, visual connectivity, and clear spatial hierarchy.

Fig
Low-Reflection Laminated Glass Panel
Exterior Acoustic Absorption Panel
Exposed Concrete Wall with Acoustic Treatment
Perforated Wood Acoustic Panel
Fig 12
Fig 14
Exposed Concrete Wall with Acoustic Treatment Exterior Acoustic Absorption Panel
Fig 18
Fig 20
Fig 19
Fig 23
Fig 25

Project Statement

Biodiversity Odyssey is a visitor center and environmental exhibition located on Angel Island, designed to reconnect people with the island’s evolving ecological systems. Inspired by natural cycles of decay, excavation, and regeneration, the project embeds architecture within the landscape rather than imposing upon it. Elevated platforms and lightweight structures minimize ground disturbance while framing immersive views of water, vegetation, and terrain. Through transparency, sectional layering, and adaptive circulation, the project creates a continuous dialogue between interior and exterior spaces, encouraging visitors to experience biodiversity as a living, dynamic process rather than a static display.

Steep topography and existing trees informed a sectional strategy that minimizes ground disturbance and elevates the program above the landscape.

The massing strategy begins as a linear shoreline intervention that minimizes ecological disturbance. A central programmatic node is then introduced to anchor circulation and gathering functions. The final configuration emerges through intersecting spatial shifts, creating moments of pause, orientation, and architectural integration within the landscape.

Personal Design Approach

I tend to begin projects by asking how little architecture is needed, rather than how much can be added. In this project, massing became a tool for restraint, orientation, and ecological respect.

Fig 1
Fig
Fig
Fig 6
Fig 7
Fig 8
9
Fig 12
Fig 15
Fig 16
Fig 17
Fig

Contact

San Francisco Califonia, USA

Phone

415-606-7422

Email Libertflyer_Ni@outlook.com

Linkedin

linkedin.com/in/davidni-278537253

Languages English, Mandarin

Work Status

OPT Eligible / 2025 Graduate

Yuanqingzi Ni

Statement

I am a Bachelor of Architecture graduate with a strong interest in section-driven design, massing logic, and material clarity. I approach architecture as a spatial system shaped through structure and restraint, focusing on how built form supports everyday interaction, accessibility, and collective life. Through academic projects in housing, community-oriented architecture, and environmental design, my work emphasizes clear spatial organization, thoughtful tectonic expression, and a close relationship between architecture, people, and context.

Education

Bachelor of Architecture (B. Arch)

School of Architecture Academy of Art University San Francisco. CA | 2018 ~ 2025

Academic Project

— Thesis Project - DeafSpace

— Multi-Family Housing Studio Project - Housing and Integrated Design

— Community Library Project - Culture Connection

— Environmental Visitor Center- Biodiversity Odyssey

Skills

Design & Visualization

Rhino / Revit / AutoCAD / Sketchup

Adobe Photoshop CC / Adobe Indesign / Adobe illustrator Lumion / Twinmotion

Environmental & Analysis Climate Consultant

Fabricarion & Representation

Handmade physical models (wood, chipboard and concrete)

Art & Drawing

Painting 10+ years: Sketch / oil painting / Chinese ink painting / watercolor and colored pencil / Hand-drafting 3+ years

Colophon

Title Collective Workflow

School

Academy of Art University, School of Architecture

Instructor Kotting Luo / Paul Adamson / Simon Mckenzie / Eva Chiu / Sameena Sitabkhan / Ross McCarthy

Publisher Blurb

Paper Stock Mohawk Superfine Eggshell 100# Text

Cover Stock Hardcover, Imagewrap

Typography

Roboto Regular / Bold / Black Lato Regular / Bold / Black

Software

Adobe Indesign, Photoshop, Illustrator

Design & produced by Yuanqingzi Ni

San Francisco, California Portfolio © 2025

Turn static files into dynamic content formats.

Create a flipbook