Giovanni Maciocco. Abitare il territorio

Page 1

Comitato scientifico

Edoardo Dotto (ICAR 17, Siracusa)

Nicola Flora (ICAR 16, Napoli)

Antonella Greco (ICAR 18, Roma)

Bruno Messina (ICAR 14, Siracusa)

Stefano Munarin (ICAR 21, Venezia)

Giorgio Peghin (ICAR 14, Cagliari)

ISBN 978-88-6242-814-9

Prima edizione marzo 2023

© LetteraVentidue Edizioni

© Antonello Marotta

© Giovanni Maciocco

È vietata la riproduzione, anche parziale, effettuata con qualsiasi mezzo, compresa la fotocopia, anche ad uso interno o didattico. Per la legge italiana la fotocopia è lecita solo per uso personale purché non danneggi l’autore. Quindi ogni fotocopia che eviti l’acquisto di un libro è illecita e minaccia la sopravvivenza di un modo di trasmettere la conoscenza. Chi fotocopia un libro, chi mette a disposizione i mezzi per fotocopiare, chi comunque favorisce questa pratica commette un furto e opera ai danni della cultura.

Progetto grafico: Stefano Perrotta

LetteraVentidue Edizioni Srl

Via Luigi Spagna 50 P

96100 Siracusa, Italia

www.letteraventidue.com

142

GIOVANNI MACIOCCO ABITARE IL TERRITORIO

Antonello Marotta
INDICE Prefazione Dino Borri La città in ombra Il telaio, il muro, il basamento Il giardino archeologico Un baluardo permeabile Macchine della memoria Il progetto delle lacune e delle stratificazioni La ricerca territoriale e i nuovi processi spaziali La dimensione ambientale come inerenza reciproca tra città e territorio Basamenti urbani e ambientali La costruzione di una scuola Una casa per l’uomo Un ponte tra culture Paesaggi dell’acqua La crisi del rapporto tra figura e sfondo 06 12 28 40 44 54 64 74 86 102 118 128 136 148 154
Gli spazi della educazione: i contenuti formativi del territorio Una scuola nel bosco La memoria come ricostruzione spaziale Un bosco di statue nuragiche La riscrittura di un testo L’archeologia come radicamento La casa come morfologia del territorio Il territorio come paleoecologia La ricerca dello spazio ambientale attraverso il disegno Territori della conoscenza Riferimenti bibliografici Crediti 168 192 198 206 208 214 224 238 246 254 264 270

Entrare e muoversi nel labirinto concettuale del progetto ambientale architettonico e urbanistico allestito via via da Giovanni Maciocco, in cui in un circolare continuum come nella mitologia greca (Mendelsohn 2020) il peculiare logos dell’autore si sviluppa, transitando per spazi e funzioni di volta in volta rilevanti rispetto alle opere realizzate o solo progettate [pensate?], significa ritrovarsi immersi in una multifonica coralità in cui si distinguono le voci dell’antropologia, dell’architettura, del calcolo, della biologia, della geologia, della filosofia e della logica, e della teologia, quali componenti di una ibrida e intrigante fisicità in un divenire senz’altro tempo che non sia quello di una infinità di situazioni (McCarthy 1963) degli spazi di vita delle popolazioni umane. Muovere nello spazio complesso, ad alta densità relazionale, delle operazioni concettuali e progettuali di Giovanni Maciocco significa compiere un viaggio alla ricerca di strutture fondamentali e generative degli insediamenti umani cui eccessive luci e certezze analitiche non si addicono e si affollano invece ombre e possibilità (Maciocco 1996; Maciocco, Tagliagambe 1997), contraddizioni in cui la completezza della analisi e della costruzione lascia continuamente il passo alla incompletezza e all’indistinguibile. Si tratta di una religione della realtà che, come nelle oscurità delle Bibbie Scandinave (Monod 2001), rifiuta l’assertività e privilegia l’incompletezza. Si tratta di uno spazio di contaminazione, di ibridazione, in cui si affollano quali riferimenti quasi astratti del progetto e del suo metodo figure ascetiche dell’architettura del Movimento Moderno assieme a figure capaci di evocare poderose tettoniche formali (Kahn 1980), ai profeti di nuovi spazi ambientali più che territoriali dell’architettura (Clemente

PREFAZIONE
6 GIOVANNI MACIOCCO | ABITARE IL TERRITORIO

1964), ai cantori della terra desolata che avanza (Eliot 1982), in accordo a logiche assai più che binarie.

Entra in campo attorno al progetto e all’oggetto di architettura e di trasformazione del paesaggio-ambiente, non importa di quale misura o funzione, una sovrastante massa di fenomeni e oggetti di natura, entro cui quell’architettura umana si adagia e al tempo stesso acquista senso. Difficile spiegare questo processo progettuale che è analitico e sintetico al tempo stesso. Si tratta di un’attività reticente e silente trattenuta come i suoi scenari ambientali, spaziali e paesaggistici e che si dispiega fino al limite della comprensibilità, nella evocazione di scene di realtà non lontane dalla tradizione pittorica delle nature morte mistiche e misteriche affollate di segni significanti di un De Chirico o di un Morandi per citare solo l’Italia del secolo XX (De Chirico 1985; Longhi 1990). Il progetto e l’oggetto di architettura hanno evidenti reminiscenze della nuova tecnologia ascetica del Movimento Moderno in quel suo laboratorio esplicito e grandioso che fu la Bauhaus di Weimar nei brevi anni in cui questa visse piuttosto che reminiscenze delle costruzioni basate sui contesti dello storicismo Germanico (per il dominio urbano, Berlage 1996), con scene ambientali del tutto nuove in cui le città divengono irrilevanti proiettandosi nel futuro delle strutture fondamentali che le hanno generate e le spiegano.

Si tratta di un progetto di spazi adattati dagli agenti umani con grande difficoltà innanzi al peso del non-umano, in cui lo stile del segno di architettura diviene irrilevante, le contingenze sono assenti, innanzi alla complessità delle scene ambientali assunte da Maciocco come dominanti e generative, scene di grandi beni comuni che si fa fatica a definire territoriali visto che la territorializzazione è invece in genere minacciosa patrimonializzazione e artificializzazione a base umana degli spazi di vita per fini di dominio e pratici. Maciocco opera, dunque, una rara e preziosa transizione-transazione, superando la strutturale angustia del progetto di architettura di fenomeni e oggetti a base territoriale schiacciato come è di solito dalla imponenza tradizionale della città e dei metodi

7 PREFAZIONE

Negli anni Ottanta la città, nella lettura postmoderna, entra in crisi rispetto al modello di quella storica. Nella distanza temporale e di significato la postmodernità ha ricercato figure spaziali appartenenti da un lato alla forma classica e storica della città, fatta di piazze, di assi generatori, di invasi decretati dalla continuità dell’urbano, dall’altro rivolti alla cultura vernacolare, ricercando dimensioni legate alla casualità degli insediamenti preindustriali. L’indagine mimetica aveva creato una attenzione non più rivolta alla città, con le sue complessità, quanto ad una ricerca effimera sugli elementi che componevano l’oggetto architettonico, perdendo di vista il ruolo istituzionale dell’architettura. Parallelamente la città si scomponeva, con una dimensione sempre più estesa delle periferie, che spesso mostravano i limiti di una assenza di pianificazione articolata, in cui la separazione delle funzioni

12 GIOVANNI MACIOCCO | ABITARE IL TERRITORIO
La città in ombra

vinceva sull’idea di costruire porzioni di città. I quartieri, già a partire dagli anni Settanta, avevano generato il limite di periferie dormitori, in cui era assente la città con le sue stratificazioni sociali, in mancanza di prospettive di lavoro. A livello internazionale lo sprawl urbano mostrava la crisi che attraversa la costruzione della città in quegli anni. Una delle maggiori trasformazioni, in quegli anni, investe proprio il territorio. È un passaggio epocale. Se negli anni Ottanta Christian Norberg-Schulz proponeva una lettura del sito come genius loci, un’identità in cui la divinità del luogo imprimeva un carattere definito (Norberg-Schulz 1979), negli anni Novanta, grazie alle acquisizioni filosofiche dagli scritti di Foucault e di Deleuze, il paesaggio è inteso come un palinsesto, come luogo delle stratificazioni archeologiche (Foucault 1980; Deleuze 2004b). Si crea un cambio di rotta: il luogo non rappresenta più una condizione stabile, ma si apre a un campo processuale. Dentro questa stratigrafia anche il ricordo non può essere congelato, necessita di una reinterpretazione (Maciocco 2010). Giovanni Maciocco ha elaborato una ricerca internazionale, una personale visione del progetto ambientale. Il territorio è una cartografia che rileva dati, informazioni, tracciati, orti e giardini storici, infrastrutture, siti archeologici e insediamenti industriali, curve di livello, dominanti ambientali, stratificazioni geologiche e idrogeologiche. L’insieme di tutti i fattori dell’evoluzione naturale e antropica forma il telaio complesso, di cui ogni contesto porta con sé tracce della storia, delle crisi e delle potenzialità di cui è dotato. Compito del progetto è selezionare e rivelare le tracce di natura ancora presenti, per costruire le traiettorie del progetto. Tali strutture complesse, ora rivelate, vengono definite strutture generative, quelle che stanno all’origine di ogni insediamento, e che orientano le scelte insediative e spaziali del progetto. Nel suo lavoro il territorio è la carta del progetto, nella convinzione che ogni intervento non si rivolga a valori di prossimità, ma sia espressione delle dinamiche ambientali, quelle che consentono alla città di stabilire nuovi valori spaziali e sociali. La finalità è quella di considerare i grandi segni territoriali

13 LA CITTÀ IN OMBRA
Nuovo Cimitero di Sassari

Interno dell’edificio

22 GIOVANNI MACIOCCO | ABITARE IL TERRITORIO
Pianta
23
Copertura LA CITTÀ IN OMBRA
Prospetto sud

Il progetto delle lacune e delle stratificazioni

Il vuoto è la lacuna, lo spazio in cui ricostruire il nostro passato, proiettato in avanti. Ma questo implica la necessità di leggere il corpo della città e in parallelo il corpo sociale in radiografia, per poter vedere la nostra natura interna. Su questo uno dei momenti di massima intensità è rappresentato da un evento che vi descrivo. Il pittore Jean-François Millet, nel 1859 aveva dipinto il quadro The Angelus, in cui una coppia di contadini con il capo chino guarda, con un dolore indicibile nell’anima, la terra. La critica ha visto in questa rappresentazione un carattere simbolico, legato alla fertilità dei suoli, alla ricchezza dei raccolti: un legame che univa la cultura materiale alla terra. Questa intima relazione, che si traduce in ansia e dolore, viene percepita da Salvador Dalí come una sostanza da scavare, da disvelare, da comprendere. L’artista catalano percepisce un carattere nascosto, criptico in quell’opera. Suggerisce al

64 GIOVANNI MACIOCCO | ABITARE IL TERRITORIO

Chiesa di Nostra Signora di Sivvaru. Vista della facciata Planimetria del progetto e sezione

direttore del museo che il quadro, localizzato nel Louvre, venga sottoposto a una lettura a raggi x. Intuisce che sotto un cumulo di terra sia stato coperto qualcosa. I rilevamenti fanno scoprire che Millet aveva cancellato la presenza di una piccola bara che conteneva un bambino: il figlio dei due contadini. La motivazione che aveva spinto a tale scelta era dettata, in quel momento storico, da un disinteresse verso i temi legati alla ritualità e al tragico. Ma in questa occlusione il quadro, nascondendo i meccanismi che avevano provocato l’evento tragico, entra in una nuova dimensione, complessa, inattesa.

Dalí nel 1935 ne ripropone una nuova versione Archaeological Reminiscence of Millet’s Angelus, in cui le due figure si trasformano in ruderi, come una memoria archeologica

65 IL PROGETTO DELLE LACUNE E DELLE STRATIFICAZIONI

Sede per la Facoltà di Architettura dell’Università di Sassari.

Pianta, prospetti e sezioni

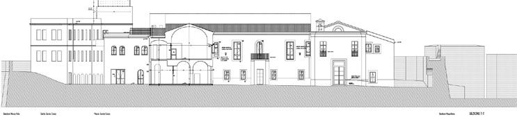
La costruzione di una scuola

Un sito è sempre strategico nel progetto di architettura, un sito ha una storia o forse tante. Quella di Alghero, antica piazzaforte catalana certamente incarna il luogo per eccellenza che nella mente di un viaggiatore rievoca l’intreccio culturale, la presenza di un’identità che si è radicata in questo territorio del nord Sardegna.

Nel primo nucleo insediativo, area della comunità ebraica, poi luogo della fortezza difensiva, con la presenza della casamatta, si succedono nei secoli costruzioni, culture, presenze diversificate. Un complesso stratificato di monumenti composto dal convento delle Isabelline, dalla chiesa seicentesca di Santa Chiara, oggi non più consacrata, e ancora dal settore delle mura, dove un porticato scavato ricorda che in quel luogo avvenivano scambi legati a un mercato.

Nel Novecento un corpo di fabbrica compatto e lineare ne

118 GIOVANNI MACIOCCO | ABITARE IL TERRITORIO
119 LA COSTRUZIONE DI UNA SCUOLA

Un bosco di statue nuragiche

Il Museo del Restauro a Sassari di Giovanni Maciocco nasce, come detto, dalla trasformazione di una struttura destinata a comprensorio psichiatrico. Spazi anonimi, un tempo magazzini, sono pensati come luoghi dell’esporre e laboratori del restauro. Archeologia antica e industriale si combinano in un progetto che interroga le tracce del territorio. La materia del mattone a faccia vista viene conservata come a difendere questa teca della memoria, mentre nella grande corte viene innestato un corpo trasparente, che si apre interamente. È una sala espositiva, alta 14 metri, con una sezione segnata da un muro inclinato e da una passerella che consente di utilizzare lo spazio a doppia altezza, esaltando la percezione interna. Nel 2011 nella galleria affiora un bosco di statue nuragiche, ritrovate nella campagna di scavi di Mont’e Prama a Cabras (Or) intorno alla metà degli anni Settanta. I numerosi frammenti,

206 GIOVANNI MACIOCCO | ABITARE IL TERRITORIO

Mostra delle sculture di Mont’e Prama. Immagini della esposizione

rinvenuti in una necropoli, sono stati ricomposti dopo una delicata fase di restauro. L’istallazione ricerca una ricchezza spaziale. Il visitatore è immerso nell’esplorazione dei reperti nuragici, dove le statue poste ora in posizione frontale, ora laterale, ora di scorcio, richiedono una riconoscibilità e un ascolto. Sono blocchi arcaici che, con il loro peso, segnano un percorso catartico. Giovanni Maciocco ricerca e produce uno spazio interattivo tra il corpo preistorico dei giganti e l’osservatore, che si tramuta in un viaggiatore del tempo. Il mito riemerge da un passato lontano in un presente rallentato. Il problema progettuale è come restituire la dimensione dello scavo e del ritrovamento. Viene evitata una condizione passiva in cui i reperti sono localizzati in vetrine, posti lungo le pareti della sala: al contrario i supporti, in grigio antracite, sono come blocchi di marmo possenti da cui emergono le statue, le cui masse creano un paesaggio differente. I supporti costruiscono una linea invisibile che traguarda l’orizzonte, mentre il visitatore scopre nell’attraversamento, con l’immersione lenta e compressa, il peso della storia. Oggi il museo vive in questo attraversamento: da una partecipazione magica e interattiva dello spazio alla presa di coscienza dei processi complessi che stanno alla base della teoria archeologica e del restauro.

207 UN BOSCO DI STATUE NURAGICHE

Turn static files into dynamic content formats.

Create a flipbook
Issuu converts static files into: digital portfolios, online yearbooks, online catalogs, digital photo albums and more. Sign up and create your flipbook.
Giovanni Maciocco. Abitare il territorio by LetteraVentidue Edizioni - Issuu