Portfólio - Letícia Bazete

Page 1


portfólio

letícia bazete de souza

letícia bazete de souza

22 anos

Ilha do Governador, Rio de Janeiro (21) 99785 - 4066

linkedin.com/in/leticia-bazete leticia.bazete@gmail.com

softwares

archicad autocad enscape

formação acadêmica

fev/21 - jun/26

8º semestre experiência

fev/23 - atualmente

1a 7m

mar/24 - atualmente

set/24 - dez/23 4m

mai/19 - jan/21 1a 9m

Graduanda de Arquitetura e Urbanismo, atualmente cursando o 8º período, busco colocar em prática meu conhecimento e absorver os que ainda não possuo.

Tenho como principais características o trabalho em equipe, a organização e a proatividade, alémm de um aprendizado rápido e eficiente.

indesign layout office photoshop revit sketchup

illustrator

Arquitetura e Urbanismo - Universidade Federal do Rio de Janeiro

Coordenadora do Processo Seletivo, Gerente de Projetos e Consultora de Projetos - Fluxo Consultoria (Empresa Junior de Engenharia)

Execução de projetos arquitetônicos, design de interiores e paisagismo

Monitora Bolsista - Laboratório Gráfico - UFRJ

Suporte aos alunos na utilização dos computadores, softwares e impressora a laser. Manutenção das maquinas.

Monitora Bolsista - Matéria Projeto Arquitetônico I - UFRJ

Orientação aos alunos do 3º período correlacionando o pensamento projetual, consepção estrutural, diagramação, apresentação do conceito e sua teoria

Jovem Aprendiz - IT Support | Nexans Brasil

residência 36

pág. 06

águas do Rio Pavuna

pág. 28

design de Interiores - catecast

pág. 42

habitar carioca

pág. 60

Comendador Soares, Nova Iguaçu
7º semestre, 2024 part. Mayron Passos

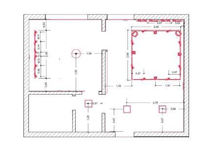
A Residência 36, localizada em Comendador Soares, Nova Iguaçu, na Baixada Fluminense do Rio de Janeiro, é uma residência unifamiliar projetada originalmente para acomodar um casal e sua filha. No entanto, com o nascimento dos irmãos gêmeos em 2022, a dinâmica da casa, que antes abrigava três membros, tornou-se inadequada para cinco pessoas. Além disso, a residência apresenta diversos problemas, como estar localizada no segundo pavimento de uma casa vizinha, ter acesso compartilhado por outra casa ao lado, problemas de ventilação e iluminação, presença excessiva de armários de gesso que limitam o espaço, mofo, entre outros. Diante desses desafios, o objetivo da intervenção é solucionar essas questões. O conceito principal do projeto é criar um novo pátio ao sul da residência para melhorar a captação de ar.

No térreo, as paredes internas foram demolidas, mantendo apenas a estrutura existente e adicionando uma nova estrutura em alguns trechos. Com essa abordagem, criamos espaços arejados e integrados, proporcionando um melhor convívio e aproveitamento do espaço.

Para solucionar a falta de espaço, foi desenvolvido um se gundo pavimento destinado à área privada da casa. Neste pavimento, estão presentes os três dormitórios e o banheiro, garantindo privacidade aos moradores. Essa solução permitiu a criação de quartos confortáveis, com boa ventilação e iluminação natural. Além disso, o projeto busca uma solução racional e econômica. Optamos por não demolir os pilares existentes e adicionar uma nova estrutura em aço para conferir leve-

za e criar poucas aberturas na laje existente. Dessa forma, ampliamos o ambiente sem alterar significativamente a estrutura preexistente, integrando o novo ao existente. As novas vedações serão em tijolos ecológicos, conferindo dinamismo e estética ao recinto. Por fim, o projeto busca resolver as problemáticas de maneira positiva e significativa, mantendo os desejos e preferências dos moradores. As vegetações existentes são protagonistas no projeto de paisagismo dos pátios, que se tornam ambientes versáteis conforme as necessidades dos moradores. Com isso, a reforma da Residência 36 proporciona uma melhor qualidade de vida para os seus habitantes, trazendo soluções inovadoras e funcionais para os desafios apresentados.

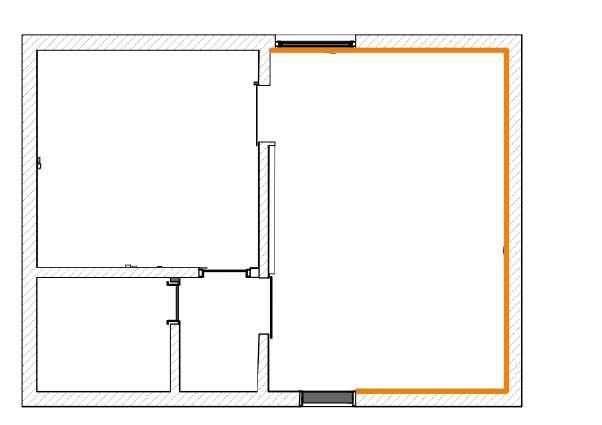
planta 1ºpav - pré-existência

planta 1ºpav - transformação ativa

planta 2ºpav - pré-existência

planta 2ºpav - transformação ativa

pré-existência

transformação

pré-existência

- tranformação

Primeiro Pavimento (27)
Segundo Pavimento (14)
corte AA -
corte BB
corte AA -
corte BB -
Segundo Pavimento (14)
Primeiro Pavimento (27)

1

TELHA SANDUÍCHE

TELHA SANDUÍCHE

VIGA METÁLICA - PERFIL "i''

JANELA ALTA

BASCULANTE

VIGA METÁLICA - PERFIL "i''

JANELA ALTA BASCULANTE

PORTA CARMARÃO MULTIPAINEL

PORTA CARMARÃO MULTIPAINEL

GUARDA CORPO

GUARDA CORPO

CAMADA DE PISO E CONTRAPISO

DETALHE 2 - 1/10 DETALHE 1 - 1/10

DETALHE 1 - 1/10

TELHA SANDUÍCHE

TERÇAS METÁLICASPERFIL ''U''

TELHA SANDUÍCHE

TERÇAS METÁLICASPERFIL ''U''

VIGA DE BORDA PERFIL ''I'' w300

VIGA DE BORDA PERFIL ''I'' w300

CANTONEIRA SOLDADA DET 1 DET 2

CANTONEIRA SOLDADA E APARAFUSADA

VIGA METÁLICA PERFIL ''I'' w200

CANTONEIRA SOLDADA E APARAFUSADA

VIGA METÁLICA PERFIL ''I'' w200

GUARDA CORPO

2 DETALHE 2 - 1/10

CAMADA DE PISO E CONTRAPISO

JANELA ALTA BASCULANTE

JANELA ALTA

BASCULANTE

PORTA CAMARÃO MULTIPAINEIL STEEL DECK

PORTA CAMARÃO MULTIPAINEIL STEEL DECK

GUARDA CORPO

PISO

CONTRA PISO

IMPERMEABILIZAÇÃO

PISO

CONTRA PISO

IMPERMEABILIZAÇÃO

CHAPA SOLDADA

CHAPA SOLDADA

VIGA DE BORDA PERFIL ''I'' w250

VERGALHÃO

STEEL DECK

VIGA DE BORDA PERFIL ''I'' w250

VERGALHÃO

STEEL DECK

CANTONEIRA SOLDADA

Legenda: 1 - Viga em concreto

3 - Placa de cisalhamento soldada e chumbada no Pilar

em concreto

3 - Placa de cisalhamento

5 - Cantoneira

6 - Pilar pré-existente em concreto armado

Legenda:

Legenda:

1 - Viga em concreto

- Viga em concreto 3 - Placa de cisalhamento soldada e chumbada no Pilar 5 - Cantoneira 6 - Pilar pré-existente em concreto armado

5 - Cantoneira 6 - Pilar pré-existente em concreto armado

3 - Placa de cisalhamento soldada e chumbada no Pilar

COMO FECHAMENTO TIJOLOS COMO COBOGÓ

TELHAS SANDUÍCHE

projeto realizado no Archicad renders e pós-produção realizados no Enscape e InDesign

águas do rio pavuna

Pavuna, Rio de Janeiro
6º semestre, 2023
part. Mariana Gaia e Marinna Portilho

Água do Rio

O Rio Pavuna recebe contribuições de diferentes afluentes, como o Rio Botas e o Rio Pavuninha. O despejo de esgoto doméstico e resíduos industriais nesses afluentes pode levar à poluição do Rio Pavuna. O aumento da carga de poluentes impacta a qualidade da água, tornando-a imprópria para consumo humano e prejudicando o ecossistema aquático. Além disso, durante chuvas intensas, a falta de sistemas eficientes de drenagem pode resultar em enchentes e alagamentos, agravando os problemas ambientais e urbanos na região. Solucionar essas questões exige ações coordenadas de saneamento básico e gestão ambiental.

Água do Esgoto

A presença de despejos clandestinos de resíduos no Rio Pavuna são uma preocupação significativa. Esse tipo de prática contribui diretamente para a poluição do rio, afetando negativamente a qualidade da água e o ecossistema aquático. Esses registros clandestinos muitas vezes envolvem despejo ilegal de resíduos industriais, esgoto doméstico e outros poluentes, resultando em danos ambientais significativos. Esse fato interfere diretamente na ambiencia do local, em impactos na saúde pública e na poluição da Baía de Guanabara.

Água Pluvial

Outro fato são os registros de alagamento no local que podem ser atribuídos a diversos fatores, como urbanização desordenada, falta de infraestrutura de drenagem pluvial e acúmulo de lixo nas vias. Esses problemas podem agravarse durante períodos de chuvas intensas, resultando em transtornos para a população local e destacando a necessidade de investimentos em medidas preventivas e infraestrutura urbana adequada.

ÁGUA PLUVIAL

RIOS QUE DESAGUAM NO RIO PAVUNA

RIOS QUE DESAGUAM NO RIO PAVUNA

ÁREAS SUSCETÍVEIS À ALAGAMENTOS

ÁREAS SUSCETÍVEIS À ALAGAMENTOS

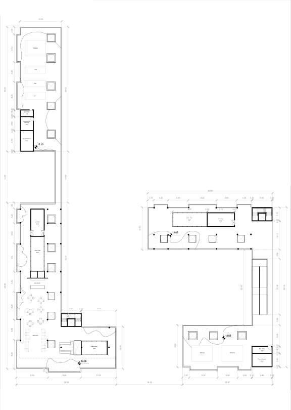
planta baixa - 2ºpavimento

planta baixa - 1ºpavimento

ESTAÇÃO DE TRATAMENTO DA ÁGUA DO RIO captação: bocas de lobo às margens do rio; devolução da água tratada: diretamente ao rio.

captação: redirecionamento dos dutos de esgoto já existentes;

captação: através de calhas e drenagem urbana; devolução da água tratada: alimentando as piscinas e, posteriormente, voltando ao rio.

corte AA

VARIAÇÕES DO SISTEMA

USINAS DE TRATAMENTO HÍDRICO

PROGRAMAS DE LAZER (PISCINAS)

EDIFÍCIO DE APOIO AO PROGRAMA DE LAZER

projero realizado no SketchUp e Autocad pós-produção no Photoshop e InDesign

habitar carioca

Saúde, Rio de Janeiro

5º semestre, 2023

part. Carolina Barros, Carolina Yuki e Daivyd Lescaut

HABITAR

A região do bairro Saúde contém marcas e memórias de diferentes épocas. Casinhas coloridas neoclássicas, com suas cadeiras na porta, caracterizam o cenário visto no Morro da Conceição e em nada se assemelha à paisagem da Rio de Janeiro que avistamos na zona sul, ou nos locais mais visitados da região central. O Morro faz parte da história, não só da cidade, como da Brasil também. É em seu limite que localiza-se a Pedra do Sal. A Pedra do Sal faz parte da região conhecida historicamente por Pequena África, que se estendia do entorno da Praça Mauá até a Cidade Nova.

Apesar do trabalho escravo que caracterizava o lugar e que marcou negativamente a história, as festas nas casas destes escravos e forrós tocavam choro com flauta, cavaquinho e violão. Na rua acontecia samba rural, batido na palma da mão, no pandeiro, no prato-e-faca; e dançado com sapateados, peneiradas e umbigadas. Foi ali que nasceu o samba urbano carioca, que surgiram sambistas populares e antigos ranchos carnavalescos. Esse modode vida mais para fora das resedências persistiu durante o tempo na região. Já o terreno localizado entre a rua Sacadura Cabral e a Avenida Venezuela onde projetamos, é um grande lote assim como os outros na parte aterrada logo em frente ao Morro da Conceição. Muitos prédios modernistas ali presentes são de maior escala e acabam se isolando do entorno. Esse isolamento acaba tirando a vitalidade presente no Morro e trazendo um desenho mais “limpo” para a cidade.

Foi importante entender que a figura humana, a diversidade, vitalidade, mistura de classes sociais, de usos, de conflitos e tensões caracterícticos da região da Saúde são os pontos mais fortes do local e são eles que trazem dinamicidade e direcionamento para o projeto.

RUA SACADURA CABRAL
AVENIDA VENEZUELA

SÁBADO - PRATOS DO DIA

Strogonoff de Carne ................................................R$19,90

Parmegiana................................................................R$19,90

Bife com fritas............................................................R$24,90

Omelete........................................................................R$14,90

planta baixa - pavimento tipo

fachada - rua tia ciata

corte - prédio em U

LAJE VENEZIANA CAMARÃO VIGA

PORTA DE VIDRO

GUARDA CORPO

FORRO DE GESSO

PORTAS E FECHAMENTOS DE VIDRO

corte detalhado 1: fechamento das lojas do térreo e das janelas das unidades

CONEXÃO VISUAL COLETIVO PRIVADO PÚBLICO
“Pesado, pesado passando!”

corte detalhado 2: configuração dos prismas no térreo

fachada - rua coelho castro
corte - rua sacadura cabral

projeto realizado no Revit pós-produção no Photoshop e Illustrator

Hidropônica, uma forma alternativa de produção de alimentos.

Vindo dos radicais gregos hydro = água e ponos = trabalho, hidropônica consiste em um sistema de cultivo sem o uso do solo, onde os nutrientes - como nitrogênio, potássio e fósforo - são fornecidos por uma solução nutritiva que circula em um sistema hidráulico.

COMO FUNCIONA

A solução, guardada em reservatórios, é bombeada para os perfis específicos, colocados 80 cm acima do solo. Entre as formas hidropônicas de cultivo, a mais econômica é construída com canos PVC de 50 e 100 mm e sustentadas por perfis de madeira.

FASES:

Germinação (piscina): as sementes são plantadas e germinadas em placas de espuma fenólica.

Berçário: momento em que o cultivo passa a receber a solução nutritiva. Fase de controle de qualidade.

Fase final: período até o ponto de colheita

Passagem da solução nutritiva pela tubulação.

VANTAGENS E DESVANTAGENS

Vantagens:

Plantas mais saudáveis, sem entrar em contato com contaminantes do solo - como bactérias, fungo e insetos; Maior controle da produção; Redução da mão de obra; Pode ser feita em qualquer local, desde que tenha em torno de 8 horas diárias de sol.

Desvantagens:

Exige conhecimentos técnicos; Uma planta doente pode infectar toda a produção; Requer cuidados detalhados diariamente.

Mesa com fase de geminação. Localizada na cobertura.

Esquema das fase de berçario e fase final.

TECNOLOGIA E CONFORTO

Existem diversos tipos de janela camarão. É uma escolha inteligente, podendo separar espaços internos como cozinha e churrasqueira ou, no caso das uni dades de kitnet do projeto Habitar Carioca, o quarto e sala. Entre ambientes internos e externos, é comumente utilizada em duas camadas: uma de esquadria de vi dro e uma de veneziana. Dessa forma, é possível criar diferentes relações entre ambos os recintos. Usando apenas a camada de vidro, a transparência permite a entrada de luz solar, enquanto usando a veneziana, permite a privacidade do ambiente interno, podendo dozar essas caracteristicas ao mexer nas portas.

A escolha desse tipo de esquadria, combinada com portas altas e estreitas, lembram a disposição de sobrados antigos, como as casas do Morro da Conceição., como mostra os exemplos de fachadas da Ladeira João Homem.

SIBIPIRUNA

Nome científico: Caesalpinia pluviosa; Nativa da Mata Atlântica, possui altura média de 20 metros e copa de 15 a 20 metro de diâmetro. Sua taxa de crescimento é de 3 metros em 2 anos,

IPÊ-AMARELO

Nome científico: Handroanthus albus; Comum em áreas de serrado, é considerada simbolo nacional do país. Pode atingir 15 metro de altura, prefere solo bem drenado e fértil e sol pleno. Não precisa de poda frequente, mas deve ser regada regularmente nos primeiros anos de vida.

CHORÃO

Nome científico: Salix babylonica; Diretamente do norte da China, pode alcançar de 20 a 25 metros de altura. É pouco exigente de solo, precisando de água suficiente, além de não ser um espécie muito duradora. Não devem ser instalada perto de tubulações de água e esgoto, e se desenvolve em sol pleno.

COSTELA DE ADÃO

Nome científico: Monstera deliciosa; É uma planta trepadeira nativa das florestas tropocais da América Central e América do Sul. Possui facil manutenção e se adapta facilmente aos ambientes. Gosta de temperaturas quentes e muito umidade.

PALMEIRA RAFIS

Nome científico: Rhapis excelsa; De crescimento lento, pode alcançar até 4 metros de altura. Deve ser cultivada em sol pleno, meia sombra, sombra ou luz direta, em solo fértil e bem drenável. Aprecia umidade, mas não gosta de ambientes muito secos.

MEIO AMBIENTE

design de interiores - catecast

Copacabana , Rio de Janeiro
fluxo consultoria, 2024
part. Gabriela de Oliveira e Isabella Gaidão

Alexandre e Viviane, um casal da mídia catolicista, desejavam retomar suas gravações de podcast após aproximadamente 10 anos, só que dessa vez podcast com vídeo. Pretendendo trazer uma identidade única para a sua sala de gravação, além de personalizar e harmonizar outra sala para recepção de convidados e edição dos vídeos.

A proposta desenvolvida para o ambiente consiste na execução de um projeto de Design de Interiores para uma área de recepção, uma sala para podcast, uma área de estar e uma copa, a partir da concepção de layout e decoração do espaço. Os materiais adotados foram escolhidos a partir da paleta de cores elaborada, considerando o uso de cores pertencentes à identidade visual da marca O Catequista e materiais que contribuiriam para a melhor qualidade acústica.

planta baixa - humanizada

Planta baixa - Técnica

planta de páginação de placa acústica - humanizada

planta de páginação de placa acústica - técnica

de rodapé

detalhamento 1

detalhamento 2

detalhamento 3

planta de iluminação
planta elétrica
planta
vista frontal
tinta
logo acrílica personalizada
tinta
tinta
objetos decorativos
vista frontal
perspectiva gavetas abertas

vista frontal - humanizada

vista frontal - portas fechadas vista frontal - portas abertas isométrica indicando a intervenção no movél pré-existente

projero realizado no SketchUp e LayOut pós-produção no Enscape

LETÍCIA BAZETE

Graduanda de Arquitetura

leticia.bazete@gmail.com (21) 99785-4066

www.linkedin.com.br/leticia-bazete

www.issu.com.br/leticia_bazete

Turn static files into dynamic content formats.

Create a flipbook
Issuu converts static files into: digital portfolios, online yearbooks, online catalogs, digital photo albums and more. Sign up and create your flipbook.