Portfolio2024

Page 1


LEONARDO

LITTLE

WING

SELECTED WORKS

CAREER

2019-2022

CURRICULUM

2022ACTIVITIES

20212022-2024

Bach. Degree Civil Engineering University of Trento Architecture University of Trento

POPLAR Festival (Organization)

Engineering student association Leonardo (President)

SKILLS

CAD-BIM-3D

RENDERING

ADOBE CC

CALCULUS

AutoCAD | REVIT | Sketchup | Blender | Tekla

TheaRender | Lumion

Illustrator | Photoshop | Indesign | Lightroom | Premiere MatLab | Mathematica

TABLE OF CONTENTS

BIVACCO L3132

SAT competition to design three Alpine shelter in the iconic location of Pale of San Martino

MAISON SAPHIR

A modern reinterpretation of the typical Vietnamese Tube house

CASCINA LOSSANO

Terraviva compettion for an adaptive reuse of an old farmhouse in Padana rice field

RIFUGIO GRAFFER

Expansion of the present lodge for a new kitchen and a dining room

Bivacco L3132

CONCORSO DI PROGETTAZIONE

PER LA RICOSTRUZIONE DEI TRE

BIVACCHI GESTITI DAL C.A.I.

SEZIONE “FIAMME GIALLE”

L’ambiente montano resiste impassibile alla travolgenza della contemporaneità, conservando principi e valori che il vivere di oggi sembra avere confinato in un passato lontano, al limite tra l’esistito e la favola. Ma la montagna, fedele custode, sa restituire questo spirito a chi è disposto ad assecondarne i ritmi e con fatica ed umiltà abbandona la frenesia per abbracciare la lentezza.

Il concetto di lentezza implica un recupero dell’essenziale, del semplice e del minimale.

Impone di spogliare ciò che è importante da ciò che è futile sovrastruttura. Recuperata la propria natura, le cose si presentano all’uomo con immediatezza e l’emozione e il coinvolgimento si amplificano. Questo concetto ha guidato la progettazione del prototipo L3132, un ritorno all’essenziale che punta a recuperare l’originale natura del bivacco. La struttura architettonica si fa involucro di uno spazio sicuro e confortevole, limitato nei volumi ma funzionale alle necessità degli occupanti.

Le tecnologie e la scelta dei materiali guardano al futuro, con attenzione all’efficienza in tutte le condizioni, mentre elementi come il rivestimento interno in legno mantengono un’atmosfera calda e ospitale. Le vetrate connettono gli occupanti con l’ambiente circostante ed il loro orientamento è calibrato per regolare l’ingresso della luce naturale durante la giornata.

Le linee esterne ricalcano idealmente i contorni spigolosi dell’orizzonte e richiamano la texture rocciosa che circonda il bivacco.

L’integrazione con l’ambiente è resa quasi totale se non per il colore che richiama la tradizione di queste strutture e le rende visibile all’alpinista.

Il bivacco L3132 è una bolla tra le montagne che racchiude la storia di oltre un secolo di alpinismo e la tecnica di domani.

1 - Galvanized Sheet
2 - XLam Shell
3 - Insulation
4 - Furniture
5 - Foundations

PORTFOLIO

“In un mondo che corre vorticosamente, con logiche spesso incomprensibili, il problema della lentezza si affaccia alla mente con prepotenza, come una meta del pensiero.”

(L. Maffei, Elogio della lentezza, 2014, Il Mulino)

MAISON SAPHIR

Architectural Design 1

ATELIER SAIGON

Steel marks the void

Concrete guides the path

Wood welcomes the rest

Water reflects, feeds, lights

Void fills

Complexity, duality, contraddiction

1 - Bamboo Sunshades

2 - Steel Shell

3 - Steel Frame

4 - Precast Concrete Blocks

5 - Swinging Windows

The internal spaces, open and airy, are stamped by multiple differences in level that give movement to daily transit

The sleeping areas develop by overlapping in a staggered manner, leaving space for vegetation externally

The entire house is protected by a shell, made up mostly of a double frame of bamboo with a filtering function

This creates play of light during the day and a lantern effect at night

Deduction

Shape

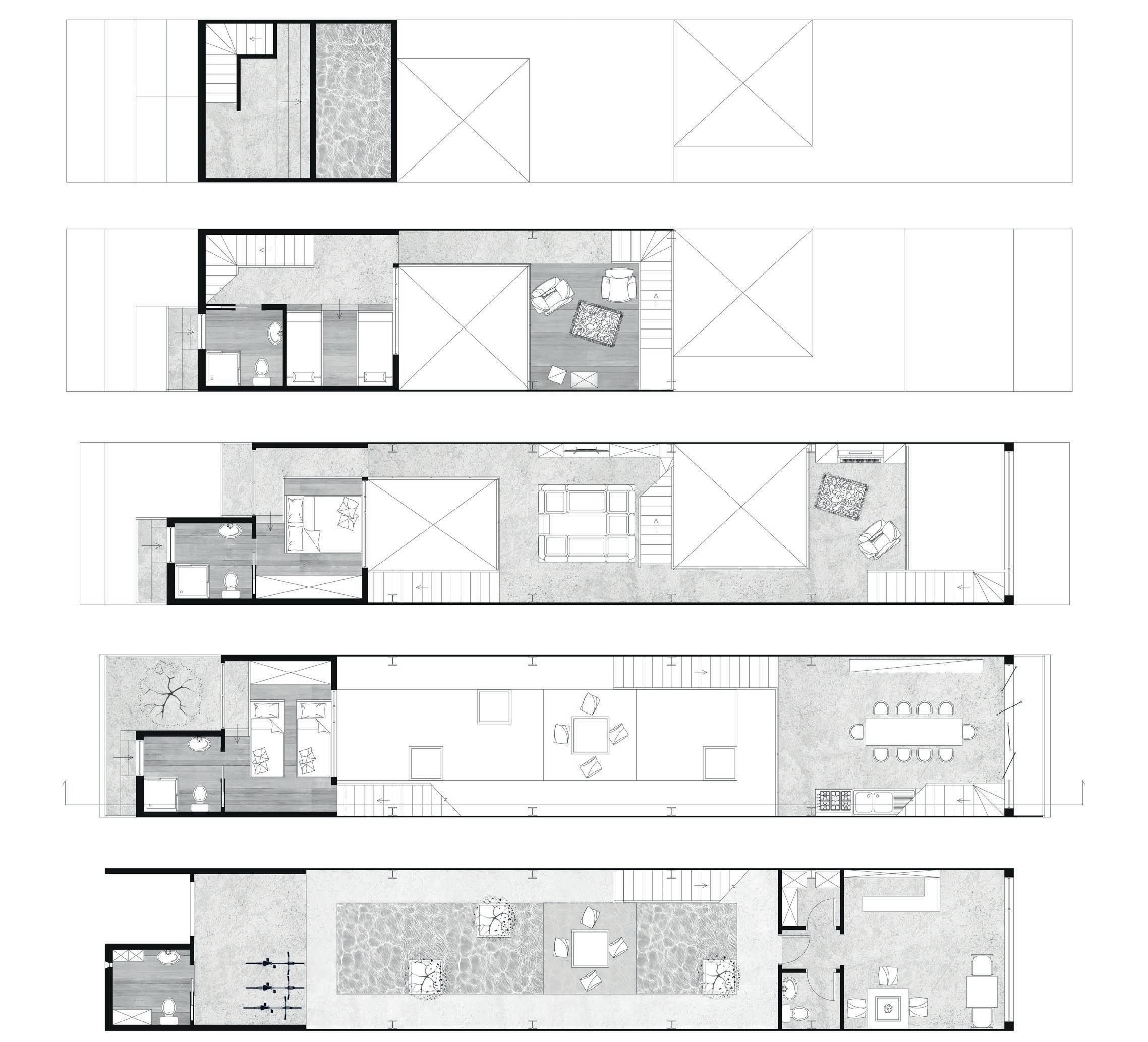
CASCINA LOSSANO

TERRAVIVA COMPETITION

“REUSE CASCINA LOSSANO”

THE STABLE

+Two three storeys flats

Visiting inhabitants (6 months research)

+Co-working area/Photo set

PAVILION

+Hammocks

+Projection Area

+Re-combinable furniture

FARMERS HOUSE

+Two double deck flats

Permanent inhabitants

+Co-working area/Photo

THE PORCH

+Two single storey flats

Visiting inhabitants (6 months research)

+Two fabric lab

MANORS HOUSE

+Three storeys flat

Permanent inhabitants Head of Atelier

Public Path and Common area

Water Network Green and local herb garden

FARMERS HOUSE THE STABLE

MANORS HOUSE

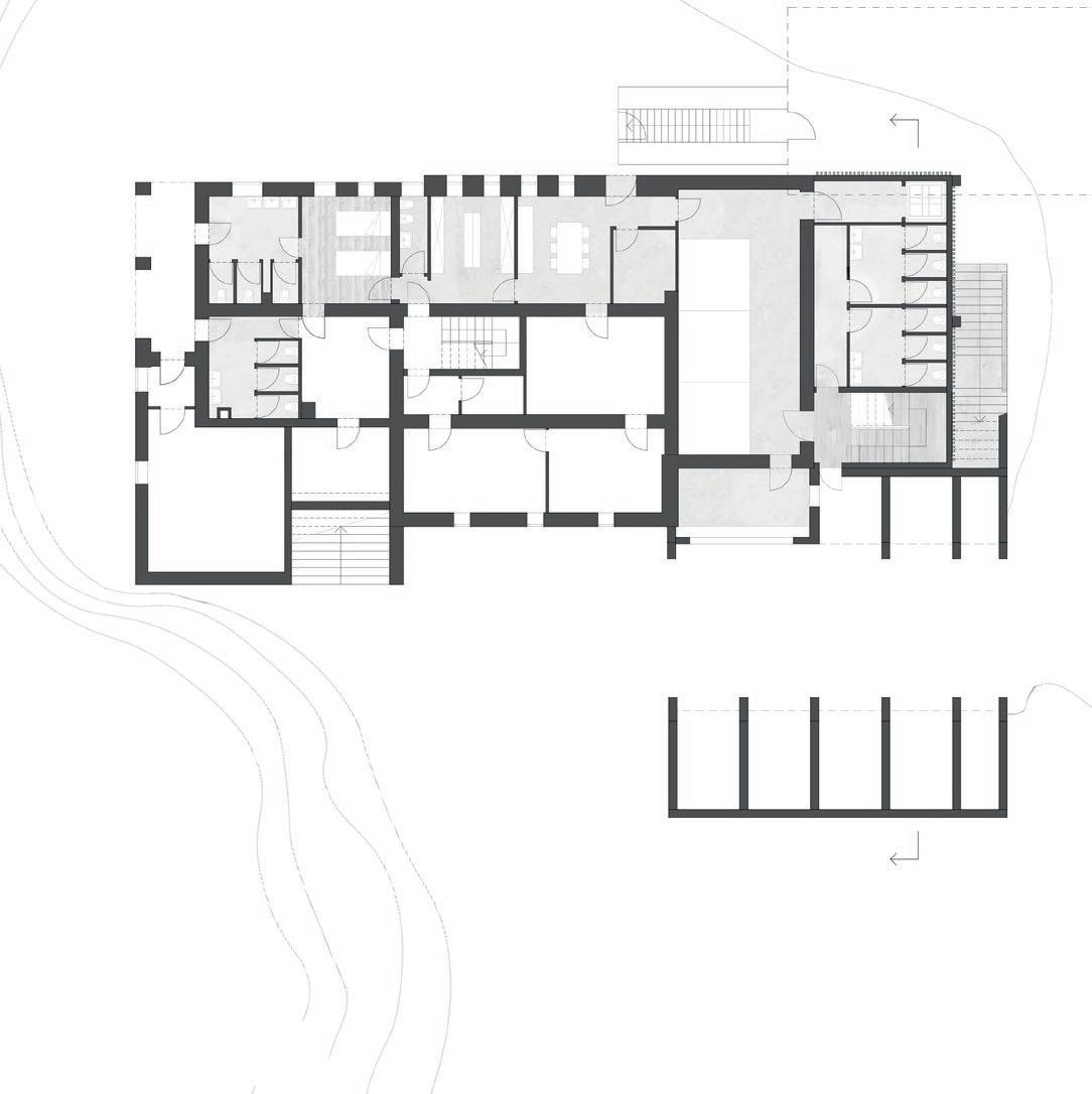
RIFUGIO GRAFFER

CONCORSO PER LA

RIQUALIFICAZIONE E AMPLIAMENTO

DEL RIFUGIO G. GRAFFER AL GROSTÈ

Individuazione flussi
Unificazione flussi
Generazione del volume
Bilanciamento del prospetto

Turn static files into dynamic content formats.

Create a flipbook
Issuu converts static files into: digital portfolios, online yearbooks, online catalogs, digital photo albums and more. Sign up and create your flipbook.