


![]()






Oct. 2017- Oct. 2024
(Regards to Country’s Instability)
Sep. 2023- Nov. 2023
University of Khartoum Bachelor of Science (B.Sc.) Architecture
Oxford University |Con nueing Educa on Online Course, Islamic Art & Architecture
Nov. 2021- Dec. 2021
Mortada Mouaz Consultancy, Khartoum, SD internship.
CAD
Revit . Archicad
Render Twinmo on
Adobe CC
MS Office
Photoshop . Illustrator . Indesign
Word . Powerpoint
Arabic Na ve
English
Proficient
































































SITE RESIDENTIAL COMMERCIAL INDUSTRIAL EDUCATIONAL






• THE ROADS WERE DIRECT EXTENSIONS OF THE EXISTING NEIGHBOURHOOD.
• COMMERCIAL, HEALTHCARE AND EDUCATIONAL FACILITIES WERE PLACED AMIDST THE SCHEME AND THE EXISTING NEIGHBOURHOOD TO FOSTER COMMUNITY CONNECTIONS.




• IMPLEMENTING COURTYARDS IN THE DESIGN OF RESIDENTIAL BUILDINGS SUPPORTS A COMMUNITY BOND AND SENSE OF INCLUSION BESIDES IT’S ENVIRONMENTAL BENEFITS.






































































































































































MARKETS & WORKSHOPS
















HEALTHCARE CENTRE (MATERNITY & CHRONIC DISEASES)
PRIMARY & ELEMENTARY SCHOOLS











































































































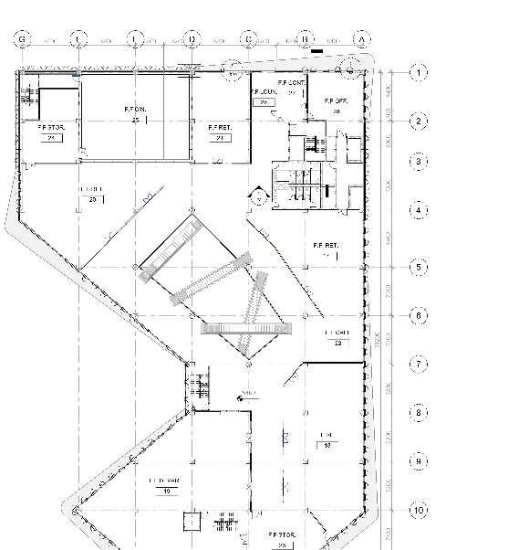
I. Loading Trucks
II. Staff’s Building
III. Water Treatment Plants
IV. Gas & Water Trucks
V. Underground Gas Tanks
VI. Solar Panels’ Ground
VII. Loading Trucks
VIII. Adminstra on & Exhibi ons
1. Raw Materials’ Warehouse
2. Waste Collec on Room
3. Box Feeders & Ball Mills
4. Spray driers & Slurry Tanks
5. Pressing, Glazing, Drying, Prin ng & Collec ng.
6. Temporary Storage
7. Kilns
8. Quality Check & Packing
9. Final Products’ Warehouse
10. Packing Material Storage
11. Storage Water Tanks
12. Mechanical Room
13. Electric Room
14. Maintenance Room
15. Dye Storage
16. Glaze Material Storage
17. Prin ng Control

a. 1st Aid Sta on 1
b. Fire Figh ng Sta on
c. 1st Aid Sta on 2





































PUBLIC PARK FISH MARKET
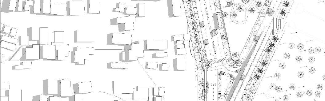
SHOPPING MALL SITE
AS THE SITE IS LONGITUDINAL FROM NORTH TO SOUTH, IT’S MORE EXPOSED TO SOLAR RADIATION FROM THE EAST AND WEST. THE BUILDING’S LAYOUT IS MADE TO MATCH THE SITE’S, EXCEPT TO MINIMIZE EASTERN AND WESTERN FACADE AREA AND INCREASE SHADING, ANGLES WERE CUT OUT FROM SITE’S LAYOUT.







































































































































10.











































































OXFORD UNIVERSITY, DEPARTMENT OF CONTINUEING EDUCATION, ONLINE COURSES