The title of your publicationLAAAAA

Page 1

URBANISMO II DOCENTE:
? ? ?
- VICTOR JAIR LEON PANTAR
URBANISMO II DOCENTE:
1 Alzamora Romero, Leila Roxany COD: 20207721 2022 – CICLO VI 2 3 4 Paucar Bellasmin, Gianela COD: 20206820. Amaya Carrasco, Danyer COD: 20233524 Carreño Altamirano, Maricielo COD:20201522
- VICTOR JAIR LEON PANTAR
PROPUESTA DE INTERVENCIÓN URBANA INTEGRADA Y CONECTADA CON LOS ESPACIOS PÚBLICOS Universidad Tecnológica del Perú ESTUDIANTES: GRUPO 05 URBANISMO ÁREAS VERDES La propuesta para la diversión como punto importante los habitantes propuestas y propuesta arquitectónica en crear espacios vegetales que INTERVENCIÓN MOBILIARIOS INCLUSIVOS BANCAS DINAMICAS CONCRETO -

INTERVENCIÓN ÁREAS VERDES

consiste en el tratamiento de áreas verdes, los parques diversión sana y el centro polideportivo "El Complejo" tomando importante el medio ambiente Crear un ambiente apto para habitantes del sector y para una mejor conexión visual para las así mismo garantizar la presencia de la naturaleza La arquitectónica parte con la idea de priorizar a la población, espacios para el hombre. para las especies animales y que ven en estas grandes áreas verdes dentro de la ciudad

OBJETIVO GENERAL

Ejecutar la recuperación de zonas verdes y embellecimiento de parques o áreas verdes de la comunidad, para disfrutar de la mejor manera estas zonas

MOBILIARIOS INCLUSIVOS

DINAMICAS ECHAS DE - MADERA

OBJETIVOS ESPECIFICOS

• Recuperar espacios sanos y seguros.

• Crear ambientes familiares.

• Crear ambientes culturales y recreativos.

• Mejoramiento ambiental.

• Incentivar a la población a la cultura ciudadana.

JARDIN CULTURAL

puede incorporar tanto materiales naturales como hechos por el hombre (Paisajismo) Los jardines occidentales están casi universalmente basados en las plantas

Universidad Tecnológica del Perú

ESTUDIANTES: GRUPO 05 URBANISMO

PROPUESTA DE INTERVENCIÓN URBANA INTEGRADA Y CONECTADA CON LOS ESPACIOS PÚBLICOS

ACCESIBILIDAD CICLOVÍA

se propone la implementación de una CICLOVíA a lo largo del sector de Santa Sara dando una red de conexión con los equipamientos de salud, dado que esta tendrá un comportamiento segregado. Sobre esta vía existirán carriles específicos para los buses de transporte público, además de los peatones sobre vereda amplia y por el centro, para no generar impactos con los automóviles.

CICLOVÍA

Universidad Tecnológica del Perú

GRUPO 05 URBANISMO

ESTUDIANTES:

MERCADO CENTROS DE SALUD AREAS VERDES PARADEROS ROTONDAS CICLOVÍA

OBJETIVO GENERAL

Ofrecer un espacio gratuito para el aprovechamiento del tiempo libre con actividades tales como actividad física, recreación, el arte y la cultura.

OBJETIVOS ESPECIFICOS

. Recuperación de los espacios públicos y áreas verdes con un tratamiento adecuado para la naturaleza.

• La inclusividad: no habrá clases sociales, estará apto para personas con discapacidad y preferencias recreativas.

• Tendremos una ciudad más sostenible y saludable.

• La reactivación económica por los espacios verdes que

•forman parte del recorrido de la ciclovía."Contribuye a mejorar la calidad de aire, al disminuir el número de vehículos y sus niveles de ruidos.

• Ofrecer un espacio para la recreación gratuita y el aprovechamiento del tiempo libre. Posibilita el mejoramiento de la Convivencia en el ámbito social.

Universidad Tecnológica del Perú

ESTUDIANTES: GRUPO 05 URBANISMO

VISUALES 3D DE INTERVENSION

Universidad Tecnológica del Perú

ESTUDIANTES: GRUPO 05 URBANISMO

Pistas, Ciclovías, Paraderos, Jardinéeles Pistas, Intersecciones, integraciones de áreas verdes Pistas señaladas Mobiliario urbano

Integración de espacios públicos

Mercados (Equipamiento Urbano)

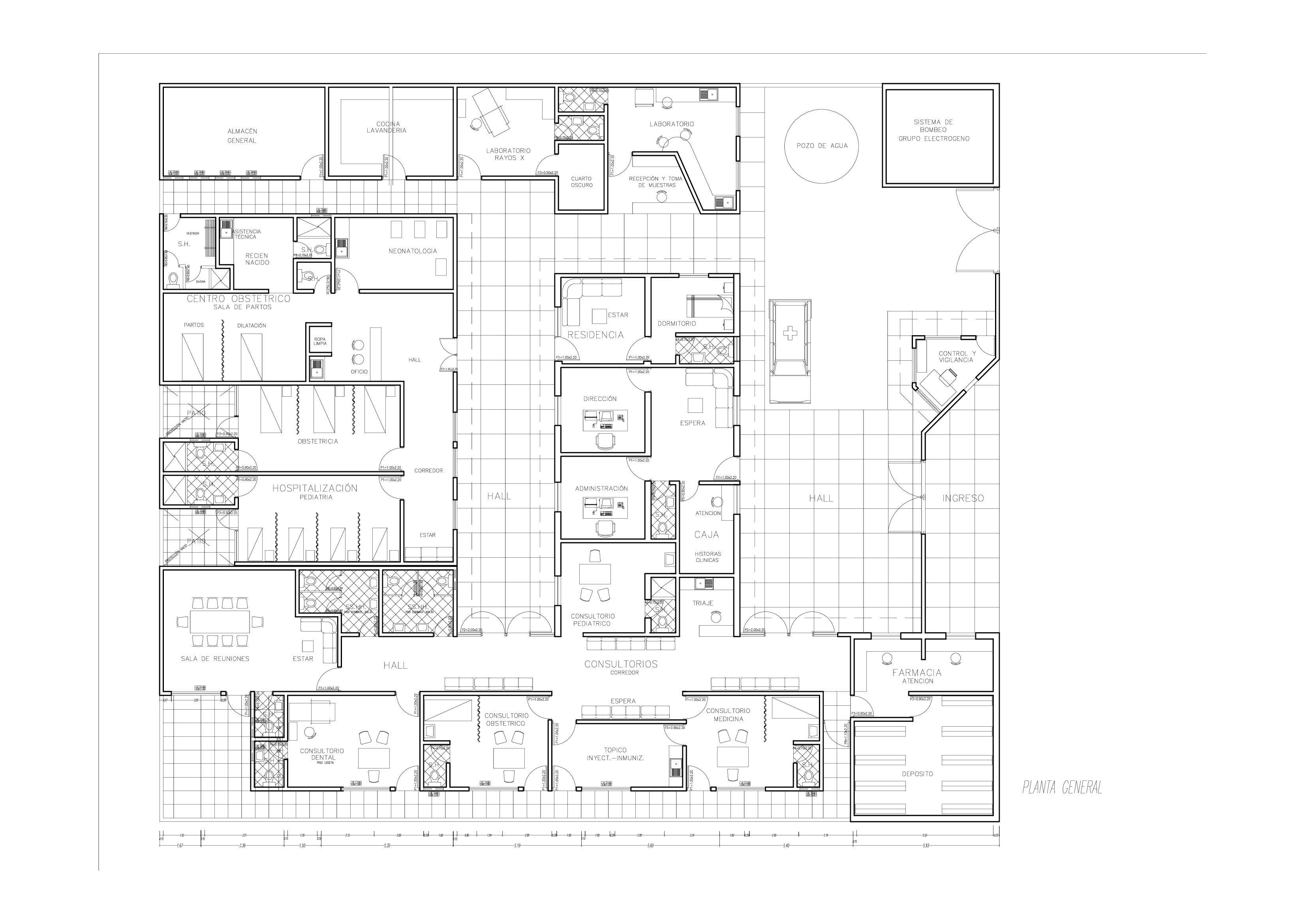
Centro de Salud (Equipamiento Urbano)

Áreas verdes (Equipamiento Urbano)

Universidad Tecnológica del Perú ESTUDIANTES: GRUPO 05 URBANISMO

Tecnológica

PLANOS DE INTERVENSIÓN
Universidad
del Perú ESTUDIANTES: GRUPO 05 URBANISMO M E R C A D O

Universidad Tecnológica del Perú

ESTUDIANTES: GRUPO 05 URBANISMO

A R Q U E

Universidad Tecnológica del Perú

URBANISMO

GRUPO

PLANOS DE INTERVENSIÓN
ESTUDIANTES:
05
P

Universidad Tecnológica del Perú

ESTUDIANTES:
P O S T A M É D I C A
GRUPO 05 URBANISMO

SECCIONES VIALES

Universidad Tecnológica del Perú ESTUDIANTES: GRUPO 05 URBANISMO

Universidad Tecnológica del Perú ESTUDIANTES: GRUPO 05 URBANISMO

INTEGRACIÓN URBANA
Universidad Tecnológica del Perú ESTUDIANTES: GRUPO 05 URBANISMO

DISEÑO DE VÍAS

Universidad Tecnológica del Perú ESTUDIANTES: GRUPO 05 URBANISMO

REFLEXIONES SOBRE EL IMPACTO E IMPORTANCIA

Dado el objetivo propuesto en este trabajo, entre otros ya explicitados, de generar nuevos espacios de interacción para los distintos actores en Santa Sara, se destaca la importancia de desarrollarlo con un agente externo al proceso que permitió la investigación acercarse a la estrategia de la investigación acción que de otro modo no hubiera podido explicitarse como tal en el ámbito académico del cual participan

Universidad Tecnológica del Perú

ESTUDIANTES: GRUPO 05 URBANISMO

04
ETAPA
Universidad Tecnológica del Perú ESTUDIANTES: GRUPO 05 URBANISMO

VISUALES 3D DE INTERVENSION

Mobiliario urbano

La importancia de las áreas verdes en las ciudades radica en los efectos positivos que tienen sobre la población residente, efectos que pueden manifestarse en la salud física y mental, en la conciencia ambiental o ecológica; en el proceso de empoderamiento de las comunidades, en el sentimiento de seguridad.

Universidad Tecnológica del Perú

ESTUDIANTES: GRUPO 05 URBANISMO Pistas, Ciclovías, Paraderos, Jardinéeles Pistas, Intersecciones, integraciones de áreas verdes Pistas señaladas

Integración de espacios públicos

La gran importancia del equipamiento urbano reside en que determina en buena medida la organización del espacio metropolitano y sus corrientes de movilidad, al atender casi la totalidad de las necesidades ciudadanas extra-hogareñas.

Centro de Salud (Equipamiento Urbano)

Áreas verdes (Equipamiento Urbano)

Universidad Tecnológica del Perú

ESTUDIANTES: GRUPO 05 URBANISMO

Turn static files into dynamic content formats.

Create a flipbook
Issuu converts static files into: digital portfolios, online yearbooks, online catalogs, digital photo albums and more. Sign up and create your flipbook.