MMMNNN

Page 1

ARTIFICIALEZASTALLER DE DISEÑO ARQUITECTONICO VI (CURSO INTEGRADOR I) DOCENTES: ARQ. KARLA PATRICIA PALACIOS GONZALES ARQ. RENSO RODRISH CARRASCO JOCOPE Alzamora Romero, Leila Roxany COD: 20207721 1

R

N

TOMA DE PARTIDA1 CONCEPTO + LAND ART

C O N C E P T O

F O R M A L

Se busca que el la arquitectura cumpla un rol social, y con ello una integración con los usuarios. La idea parte en integrar exitosamente el proyecto con su entorno, ello mediante el uso de la forma de la catarata El proyecto se regirá en base a los principios ordenadores identificados en la forma como también el land art propuesto pero de manera más abstracta y en su materialidad

UNIVERSIDAD TECNOLÓGICA DEL PERU | UTP ALUMNOS: Leon Panta Nallely Agustina COD: 20228630 Alzamora Romero, Leila Roxany COD: 20207721 DOCENTES: ARQ. KARLA PATRICIA PALACIOS GONZALES ARQ. RENSO RODRISH CARRASCO JOCOPE UBICACIÓN Y LOCALIZACION: PAIS PERÚ DEPARTAMENTO: PIURA CHULUCANAS QUIRPON CHULUCANAS ANALISIS DE T E R
E
O
PROPUESTA
SE RAMIFICA CREANDO DISTINTOS CAMINOS Al final tiene un punto de remate 2 1 Ramifica la corriente del agua del terreno • Camino • Distribución • Espacios • Geometrización RAMIFICAR LA CORRIENTE DEL AGUA EN EL TERRENO: • Camino • Distibucion Espacios • Geometrizacion Catarata de
citan
01. ESTRATEGIA, CONCURRENCIA DE LOS TURISTAS

La

Excelente

Variedad

Presencia

Insuficiencia

guías

bilingües a nivel

No cuenta con suficientes vías vehiculares, estas son angostas y están de forma independiente.

Falta mayor equipamiento de recreación

OPORTUNIDADES AMENAZAS

El entorno natural es un potencial turístico para los visitantes

El proyecto traerá mejores plazas laborales para los pobladores

Facilidad de transporte para llegar al destino

Ausencia de planificación estratégica para el desarrollo turístico.

Posible abandono de las actividades económicas tradicionales por el turismo.

Poco conocimiento del distrito y sus atractivos

USUARIOS

TURISMO EN PAREJA

Exploren nuevos lugares con tours y experiencias románticas para 2 personas

TURISMO DE AVENTURA

Para los amantes de la naturaleza y lo salvaje, con actividades extremas en catarata, acantilados, bosques, senderos, etc...

TURISMO DE CULTURAL

Para los que disfrutan de la cultura de otras ciudades, ¡estos paquetes son ideales!

FORTALEZAS DEBILIDADES
reserva natural, catarata de citan y recursos turísticos
de
turísticos
turístico
ubicación geográfica, topografía, flora y fauna
de atractivos turísticos
de guías turísticos
FOTO DEL TERRENO
ECO HOTEL - SPA: COMPLEJO TURISTICO QUE RESPONDE A LA TURISTAS PARA LA VISITA DE LA CATARTA DE CITAN, BRINDANDO ESPACIOS DE RELAJACION, ENTRETENIMIENTO Y ESTADIA. ZONIFICACIÓN BUNGALOWS SIMPLES ESTACIONA MIENTO MINI GRANJA MINI GRANJA ZONA DE INGRESO RECEPCIÓN + ADMINISTRACIÓNRESTAURANTE CAMPING Respetar el entorno inmediato, considerando todos sus componentes agua, suelo, flora y fauna, es paisaje, lo social, cultural y económico CRITERIOS A TOMAR EN CUENTA: Palo santo ÁREA: Libre, aproximado de 8 hectáreas RIESGOS: Terreno irregular, no cuenta con riesgo a inundación ÁREA INFLUYENTE: 80% recurrente ACCECIBILIDAD: Carretea Piura la vieja Morropón TEMPERATURA PROMEDIO: 32°C/ 15°C. VIENTOS: 13 km/h PRECIPITACIONES: 80% recurrente HUMEDAD RELATIVA: 21 % HORAS DE SOL: 12 horas y 25 minutos BUNGALOWS SIMPLES BUNGALOWS SIMPLES

un proyecto familiar que surge en el año 2010, el propietario Juan Carlo Espinosa Norori destino el uso de sus tierras para la construcción de un hotel eclógico, cuyo objetivo fundamental era lograr un aprovechamiento sustentable del sitio que integrara al hombre con la naturaleza.

DENTRO DE SU INFRAESTRUCTURA CUENTA CON:

Restaurante

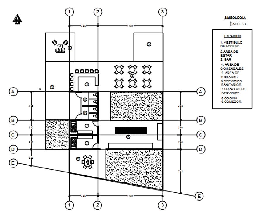
Cuenta con los siguientes espacios, posee son una zona pública y privada; zona publica se encuentra un lobby, un bar, área de comensales con vista al volcán Masaya, área de hamacas, mirador con una hermosa vista hacia la laguna y volcán Masaya, y baños públicos; en la zona privada se encuentra la cocina, en ella están 2 cuartos de servicio, lavandería, área de tendederos y el área de almuerzo de los trabajadores Este restaurante cuenta con un área de 180 m2

ANÁLISIS DE FORMA

Casa Hacienda

Posee dos cuartos con camas convertir en cama matrimonial), con están al lado de la Sala principal la mejor vista del Parque Nacional tienen un área de 19 m2 con un 11 5’

de la reserva Natural Volcán Masaya UNIVERSIDAD TECNOLÓGICA DEL PERU | UTP ALUMNOS: Leon Panta Nallely Agustina COD: 20228630 Alzamora Romero, Leila Roxany COD: 20207721 DOCENTES: ARQ. KARLA PATRICIA PALACIOS GONZALES ARQ. RENSO RODRISH CARRASCO JOCOPE “Hacienda Puerta Del Cielo Ecolodge & Spa” UBICACIÓN Y LOCALIZACIÓN: ÁREA DEL TERRENO: 8.452.8 h PROPIETARIO: Juan Carlos Espinosa Norori AÑO DE CONTRUCCION: 2010 TIEMPO DE CONTRUCCION: Año y medio MODELO A N A L O G O Venecia, Nimboja 2
Limite del terreno del proyecto En el municipio de Masatepe Nicaragua ESTILO ARQUITECTÓNICO: Es una mezcla de estilos tradicionales, techos se aplicaron estructura de cabañas que posee la hacienda Es
• Lobby casa Hacienda área de fumado • Restaurante (multifuncional) • Mirador • Cabañas • Spa • Viveros • Mariposario • Arboretum • Senderos
Mirador Sauna Senderismo Arboretum
Restaurante • • • • Casa • • • •

unipersonales (que se pueden con baños privados Estos cuartos de Casa Hacienda, la cual tiene Nacional Volcán Masaya Estos cuartos área de dormir de 12 m2 o 12’ x

Es la Casa más grande que posee la hacienda, tiene acceso directo a rio piscina entre sus áreas se destacan una terraza de madera, un baño privado y mini bar, y un Jacuzzi. Posee una vista increíble del Parque Nacional Volcán Masaya y del entorno existente Casa Linda posee un área de 45 m2 de los cuales 19 m2 son de dormitorio y 54 m2 pertenecen al área de Patio y deck

ANÁLISIS ESTRUCTURAL

Restaurante:

Cerramiento: Mampostería confinada de ladrillo de barro cocido

Estructura de techo: De madera

Cubierta de techo: Conformado por paja y tejas de barro

Acabados: detalles de madera, puerta y ventanas de madera, cielo raso de petates Paredes de adobe

Casa Hacienda y cabañas :

Cerramiento: Mampostería confinada con divisiones en su interior de durock Ladrillo de cerámica rojizo Estructura de techo: De madera Cubierta de techo: Está conformado tejas de barro y cielo falso de caña de castilla

Acabados: Detalles de madera, puertas y ventanas de madera, cielo raso de caña de castilla Paredes de concreto y divisiones de durock

Turistas

locales.

Pasadía.

hacienda posee 6 modelos habitaciones

bajo el mismo concepto:

Casa bela

Casa cayo

Casa blanca

Casa gabi

Casa juanca

Casa linda vista

Cada una de ellas cuenta con mini bar y patios privados (excepto LINDA VISTA) y todas gozan de una

Y FUNCIÓN tradicionales, con una combinación de sistemas constructivos; desde mampostería confinada, adobe, paja, bambú; en los madera cubiertas de tejas, pajas, como cielo se incorporó la aplicación de la caña de castilla en todas las MATERIALES
Hacienda Casa Linda Mampostería Bambú AdobePaja Madera Caña de castilla
Teja La
diseñados
MODELOS HABITACIONALES USUARIOS: •
extranjeros. Turistas
vista maravillosa de parque Nacional Volcán Masaya Poseen un área total 36 m2, distribuidas de la siguiente manera: • Dormitorio: 19 m2 • Áreas verdes privadas y deck: 29m2 • Servicio sanitarios: • Terrazas: Con respecto al modelo de la casa linda vista, esta varia en el dimensionamiento propuesto ya que posee un área de 32 mts2. cuenta con los siguientes ambientes; Minibar, servicio sanitario, terrazas, dormitorio Esta localizado junto a casa hacienda y tiene la mejor vista del sitio

P R O G R A M A

UNIVERSIDAD TECNOLÓGICA DEL PERU | UTP ALUMNOS: Leon Panta Nallely Agustina COD: 20228630 Alzamora Romero, Leila Roxany COD: 20207721 DOCENTES: ARQ. KARLA PATRICIA PALACIOS GONZALES ARQ. RENSO RODRISH CARRASCO JOCOPE

C O H O T E L

S P A

El camino orgánico que serpentea través de espacios abiertos conecta todas las áreas construidas y brinda una experiencia interesante diferentes usuarios en todo el sitio

En este terreno planteamos lo que un ECO HOTEL y SPA, un lugar recreacional con estadía tanto para turistas como los mismos pobladores, brindando así lo que es un ambientes agradable y sostenible, apoyando a la economía y medio ambiente del lugar

Sistema de baterías con paneles solares

Bioconstrucción

el ahorro

de sistemas

recuperación

de

equipos

UNIVERSIDAD TECNOLÓGICA DEL PERU | UTP ALUMNOS: Leon Panta Nallely Agustina COD: 20228630 Alzamora Romero, Leila Roxany COD: 20207721 DOCENTES ARQ. KARLA PATRICIA PALACIOS GONZALES ARQ. RENSO RODRISH CARRASCO JOCOPE 1 Enfoque paisajista Enfoque sustentable Buen manejo del espacio abierto y los elementos que lo conforman (pendiente y camino hacia la catarata de citan) ARQUITECTURA BIOCLIMÁTICA, ECO AMIGABLE Y SUSTENTABLE, basado en : • Aprovechamiento de energía solar • Captación de agua pluvial • Aprovechamiento del recurso natural principal (la catarata) • Medio natural ecológico que se integre con la naturaleza 2 Piso base de barro cocido Pared a base de botella PET Columna de concreto para sistema confinado Estructura de soporte de cubierta de techo a base de entramado Captación de agua pluvial
PLAN ESTARTEGICO E
-
Sistema constructivo pared a base de botella PET
MATERIALIDAD: Empleo de materiales saludables, biocompatibles e higroscópicos. Bambu Paja Madera Caña Adobe
• Adecuada ubicación Integración en su entorno mas próximo Diseño personalizado Adecuada distribución de espacios Optimización de recursos naturales Implantación
y
para
• Incorporación de sistemas y equipos de producción limpia • Programa de
de residuos y depuración
vertidos • Manual de usuario para su utilización y mantenimiento
6 GRAFICO DE FLUJO DE RESTAURANTE 5 GRAFICO DE FLUJO DE BUNGALOWS DUPLEX 4 GRAFICO DE FLUJO DE BUNGALOWS 2 Matriz General 1 DIAGRAMACION E C O H O T E L - S P A Matriz General ZONA DE HABITACION SIMPLE HALL SS.HH DORMITORIO CLOSET TERRAZA MENOR FLUJOMAYOR FLUJO ZONA RESTAURANTE HALL SS.HH COMEDORRECCEPCION BARRA BARCOCINA ALMACEN MENOR FLUJO MAYOR FLUJO 3 GRAFICO DE FLUJO DE HABITACIONES ZONA DE BUNGALOWS DUPLEX HALL SS.HH DORMITORIO 1 CLOSET TERRAZA MENOR FLUJO MAYOR FLUJO SALA KITCHENETTE DORMITORIO 2 ZONA DE BUNGALOWS HALL SS.HH DORMITORIO CLOSET TERRAZA MENOR FLUJOMAYOR FLUJO KITCHENETTE Recepción ZONA ADMINIST RATIVA ZONA INGRESO ZONA ECOLOGICA ZONA DE RECREACIO N ZONA HOSPEDAJE SERVICIOS GENERALES Lobby Mini granja Marketing Contabilida d Gerencia Habitación simple Habitación doble Cuarto de basura Comedor de servicios GYM Camping Zona cultural Oficinas Almacén Sala de espera Sala de espera Recursos humanos Bungalow simples Bungalow dúplex ESTACIOMA MIENTO Estaciona miento publico Estaciona miento privado SERVICIOS COMPLEME NTARIOS SPA segundo nivel SUNA SPA
UNIVERSIDAD TECNOLÓGICA DEL PERU | UTP ALUMNOS: Leon Panta Nallely Agustina COD: 20228630 Alzamora Romero, Leila Roxany COD: 20207721 DOCENTES: ARQ. KARLA PATRICIA PALACIOS GONZALES ARQ. RENSO RODRISH CARRASCO JOCOPE MASTER PLANZ O N I FI C A C I Ó N MATERIALES DE TECHO TECHO INCLINADO CARACTERISTICAS • Aislamiento Acústico:.Regular Aislamiento Térmico: BuenoResistencia a variación de clima Bueno • pero requiere de mantenimiento periódico • Resistencia al fuego: AceptableMantenimiento Bajo Aislamiento Acústico:. Medio Aislamiento• Térmico: BuenoResistencia a variación de clima: Muy• bueno ya que es tallo seco resiste todas• los °C Resistencia al fuego: No aceptableMantenimiento: Bajo • Aislamiento Acústico: Bueno Aislamiento Térmico: Muy Bueno Resistencia a variación de clima: Bueno• pero requiere de mantenimiento periódico • Resistencia al fuego: AceptableMantenimiento: Bajo TECHO 2 AGUAS TECHO CURVO ADOBE O TAPIAL BAMBU LADRILLO ARTESANAL IDEAS SPA GYM HABITACIONES BUNGALOWS BUNGALOWS BUNGALOWS BUNGALOWSZONA DE INGRESO RECEPCIÓN + ADMINISTRACIÓN ESTACIONA MIENTO ZONA CULTURAL RESTAURANTE MINIGRANJA PISCINA PISCINA
CATARATAVIVIENDASCARRETERA

Turn static files into dynamic content formats.

Create a flipbook
Issuu converts static files into: digital portfolios, online yearbooks, online catalogs, digital photo albums and more. Sign up and create your flipbook.