LEILA TALLER

Page 1

UNIVERSIDAD TECNOLÓGICA DEL PERU | UTP ALUMNA: Alzamora Romero, Leila Roxany COD: 20207721 DOCENTES: ARQ. KARLA PATRICIA PALACIOS GONZALES ARQ. RENSO RODRISH CARRASCO JOCOPE ALLER VI ARTIFICIALEZASTALLER DE DISEÑO ARQUITECTONICO VI (CURSO INTEGRADOR I) DOCENTES: ARQ. KARLA PATRICIA PALACIOS GONZALES ARQ. RENSO RODRISH CARRASCO JOCOPE Alzamora Romero, Leila Roxany COD: 20207721 1
UNIVERSIDAD TECNOLÓGICA DEL PERU | UTP ALUMNOS: Leon Panta Nallely Agustina COD: 20228630 Alzamora Romero, Leila Roxany COD: 20207721 DOCENTES: ARQ. KARLA PATRICIA PALACIOS GONZALES ARQ. RENSO RODRISH CARRASCO JOCOPE MASTER PLAN PUNTO DE INICIO PUNTO FINAL 1 MALECON RIO ÑACARA PARQUE TEMATICO YAPATERA Y LA ENCANTADA 2 2 CALLE FERIAL GASTRONOMICO TELEFERICO ANFITEATRO, SALA DE EXPOSICIONES Y MIRADOR 5 6 MUSEO 0OVNI RESTAURANTE 7 8 9 10 11 12 PLANETARIO PARQUE AVENTURERO TORRE ESCÉNICA ECO HOTEL SPA LUGAR ESPIRITUAL 3 4 INICIO DE TELEFERICO 4 CATARATA DE KILOMETRO 50 CERRO VIVUS MIRADOR CHULUCANAS 10 11 12 PUNTO DE PARTIDA CHULUCANAS ZOOM A A ZOOM B B ZOOM A- A ZOOM B B MIRADOR PUNTO DE INICIO DE TELEFERICO MALECON RIO ÑACARA MUSEO AFROPERUANO CENTRO AGRICOLA CALLE GASTRONOMICA MIRADOR PUNTO FINAL MUSEO OVNI PLANETARIO PARQUE AVENTURERO PLANO ACTUAL Centro Chulucanas Kilometro 50 Catarata de citan CENTRO AGRICOLA EJE CULTURAL EJE COMERCIAL EJE TURISTICO CAMPING EJE VIAL REMODELACIÓN 1 MALECON RIO ÑACARA 2 MUSEO AFROPERUANO CENTRO AGRÍCOLA 3 CALLE FERIAL GASTRONOMICO BOULEVARD COMERCIAL 4 TELEFERICO 5 ANFITEATRO, MIRADOR Y PARQUE INFANTIL 6 RESTAURANTE 7 MUSEO OVNI 8 PLANETARIO 9 PARQUE AVENTURERO 10 TORRE ESCÉNICA 11 ECO HOTEL 12 SPA LUGAR ESPIRITUAL PLANO Vial Plan de Ciclo vía
Objetivo y metas: Diseñar un centro cultural que promueva un ambiente de información, buscando revelar al publico el significado del legado cultural e histórico de los bienes que se expone en Chulucanas y Yapatera pueblo cercano y lleno de historia y un centro de agrícola UBICACIÓN: Inicios de la ciudad, accediendo por la carretea principal, vía Ramon Castilla ÁREA Y PERIMETRO: 1000 m², 128m TOPOGRAFIA: Llano ACTIVIDADES: Información Exposición venta Objetivo y metas: Diseñar una estructura costera que resguarde la ciudad protegiéndola del avance del agua proporcionando a la vez un escenario abierto, que cuente con espacios confortables UBICACIÓN: Antes del mirador Ñañañique en toda la carretea principal Ramon Castilla. ÁREA Y PERIMETRO: 748.88 m², 122.81m. TOPOGRAFIA: Llano con una leve pendiente. ACTIVIDADES: Recreacional Avistamiento Paseo Objetivo y metas: Diseñar una feria gastronómica, en toda la calle del KM50 que permita la exhibición y venta de la riqueza gastronómica UBICACIÓN: En el km 50 . ÁREA Y PERIMETRO: 800 m², 162m. TOPOGRAFIA: Llano. ACTIVIDADES: Ventas Objetivo y metas: Diseñar un espacio comercial, que permita la exhibición y venta de cerámica y recursos naturales propios del lugar UBICACIÓN: Cruce con el km 50 ÁREA Y PERIMETRO: 423 50 m², 150 91m TOPOGRAFIA: Llano ACTIVIDADES: Ventas 1 E J E C O M E R C I A L F L O R A Y F A U N A M A T E R I A L E S MAL ESTADO • Ciclo vía • Paraderos • Vías de transporte pesado ESTADO ACTUAL ESTADO ACTUAL ESTRATEGIASESTRATEGIAS ESTADO ACTUAL ESTADO ACTUAL ESTRATEGIAS ESTRATEGIAS BOULEVARD COMERCIAL ARTEZANAL Y DE RECURSOS NATURALES CALLE FERIAL GASTRONOMICA KM 50 MALECON FRENTE AL RIO PARQUE TEMATICO / CENTRO AGRICOLA 2 E J E V I A L SECCIONES PROPUESTAS 22PROPUESTAS PARADEROS E J E C U L T U R A L
UNIVERSIDAD TECNOLÓGICA DEL PERU | UTP ALUMNOS: Leon Panta Nallely Agustina COD: 20228630 Alzamora Romero, Leila Roxany COD: 20207721 DOCENTES: ARQ. KARLA PATRICIA PALACIOS GONZALES ARQ. RENSO RODRISH CARRASCO JOCOPE Se tomo en cuenta este medio de transporte, para poder observar la naturaleza que nos rodea desde cada punto OBJETIVO Fomentar un recorrido atractivo por toda la zona agrícola + rio Diseñar uno de los puntos turísticos mas atractivos. RECORRIDO: Cerro ñañañique cerro citan TOPOGRAFIA: Montañoso Consiste en un espacio con vocación de mirador plaza en forma de anfiteatro; que aprovecha el desnivel entre la terraza inferior. Fue conceptualmente planteado como un punto de vista del entorno en el que se encuentra emplazado, se ubica en el cerro vicus en una ladera con vistas a las montañas TELEFERICO ESTADO ACTUAL Mirador contempla una historia, tanto haciéndole alusión a las manos de los artesanos, como la gran vista desde lo alto Al norte del anfiteatro mirador y el área de juegos se encuentra un área plana en la que se ha emplazado el parque infantil La proyección de espectáculos relacionados con la astronomía, llegada de los ovnis un gran ejemplo es el gran parque de ovnis en cusco. Se plantea generar un emocionante viaje cuenta abajo en la montaña rusa + teleférico que va a conectar con el cerro pilan Actividades ecoturísticas, se enmarcan en destinos especialmente de naturaleza Efectos físicos y espirituales del contacto con la naturaleza, cabañas y retiros CERRO ÑAÑAÑIQUE Cerro Vicus MIRADORCASA DE CERAMICA RESTAURANTE TEMATICO ZONIFICACIÓN REFENCIAL CERRO VICUS ESTRATEGIAS ANFITEATRO, SALA DE EXPOSICIONES Y MIRADOR ESTADO ACTUAL RESTAURANTE ESTRATEGIAS ESTRATEGIAS ESTADO ACTUAL ESTRATEGIAS ESTRATEGIAS 2 CERRO PILAN MUSEO OVNI ESTRATEGIASESTADO ACTUAL PLANETARIO PARQUE AVENTURERO OBJETIVO • Fomentar un recorrido atractivo por toda la zona. • Diseñar uno de los puntos turísticos mas atractivos en el cerro. Ubicación: Cerro Pilan muy famoso por los sucsos de avistamiento de ovnis Se plantea generar un planerario con temática de ovnis, es un punto interesande para los turistas y los mismos pobladores para que tengan un conocimiento acerca de este ESTADO ACTUAL ESTRATEGIAS TORRE ESCENICA CATARATA CITAN ESTADO ACTUAL ECO HOTEL SPA LUGAR ESPIRITUAL Espacio de gran altura en el cual el turista puede observar los alrededores, como la catarata, ESTRATEGIAS ESTRATEGIAS ESTADO ACTUAL ESTADO ACTUAL 1 4 5TOMAMOS EN CUENTA LOS SIGUIENTES PUNTOS: FLORA FAUNA MATERIALIDAD DE LA ZONA E J E T U R U S T I C O ESTRATEGIAS ESTRATEGIASESTADO ACTUAL ESTRATEGIAS

Este terreno esta ubicado muy cerca a la catarata de citan que será nuestro principal atractivo turístico.

Datos Generales

ÁREA: 4 hectáreas

Guanábana

RIESGOS: Terreno irregular, no cuenta con riesgo a inundación

ÁREA INFLUYENTE: 80% recurrente

ACCECIBILIDAD: Carretea Piura la vieja Morropón

El camino orgánico que serpentea a través de espacios abiertos conecta todas las áreas construidas y brinda una experiencia interesante a diferentes usuarios en todo el sitio

HOSPEDAJE

ZONAS DE VEGETACIÓN

CULTIVOS

ZONAS REUNION SOCIAL JARDINES

HABITACIONES

AREAS COMUNES

MIRADORES

CICLORUTA

Palo santo

Bambú

Enfoque paisajista

Buen manejo del espacio abierto y los elementos que lo conforman (pendiente y camino hacia la catarata de citan)

Medio natural ecológico que se integre con la naturaleza

Enfoque sustentable

Arquitectura bioclimática, eco amigable y sustentable, basado en :

• Aprovechamiento de energía solar

• Captación de agua pluvial

Plantas silvestres

• Aprovechamiento del recurso natural principal (la catarata)

Enfoque formal

Buen manejo del espacio abierto y los elementos que lo conforman (pendiente y camino hacia la catarata de citan)

Objetivo: ser un acceso y paseo para los turistas, sitio de estadía por días

TOPOGRAFIA
ANALISIS DE T E R R E N O
1 2 3 2 TERRENO 02 3 Planetario 4 Torre escénica 2 MUSEO1 Eco Hotel 2
CAMINOS TERRAZAS

En el municipio de Masatepe Nicaragua

DENTRO DE SU INFRAESTRUCTURA CUENTA CON:

• Lobby casa Hacienda área de fumado

• Restaurante (multifuncional)

• Mirador

• Cabañas

• Spa

Viveros

• Mariposario

• Arboretum

• Senderos

Restaurante

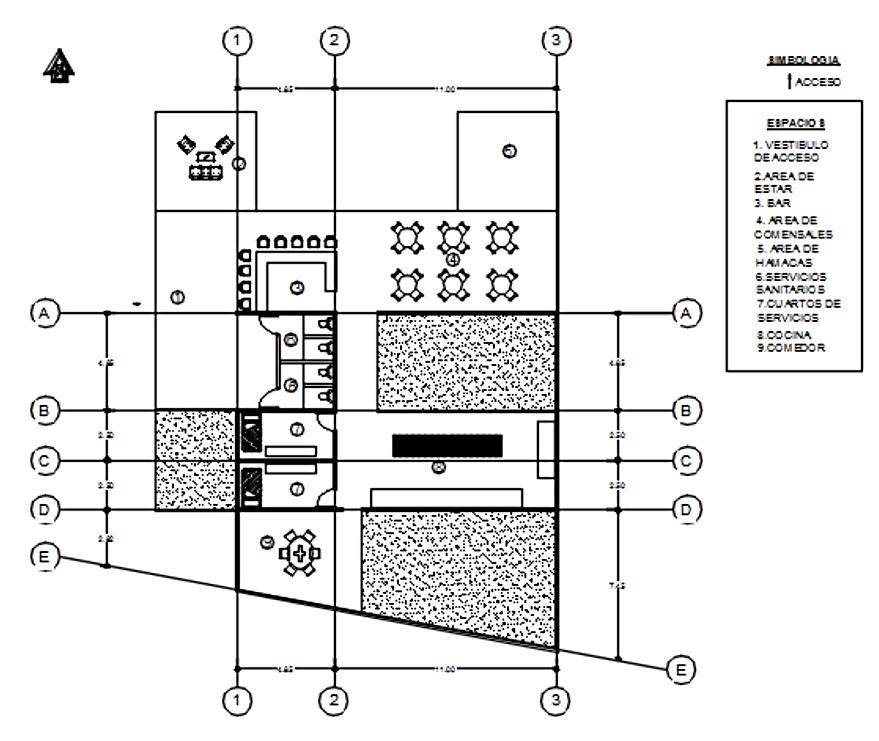
Cuenta con los siguientes espacios, posee son una zona pública y privada; zona publica se encuentra un lobby, un bar, área de comensales con vista al volcán Masaya, área de hamacas, mirador con una hermosa vista hacia la laguna y volcán Masaya, y baños públicos; en la zona privada se encuentra la cocina, en ella están 2 cuartos de servicio, lavandería, área de tendederos y el área de almuerzo de los trabajadores Este restaurante cuenta con un área de 180 m2

ESTILO ARQUITECTÓNICO:

mezcla de estilos tradicionales,

cabañas

ANÁLISIS DE FORMA

Posee dos cuartos con camas convertir en cama matrimonial), con están al lado de la Sala principal la mejor vista del Parque Nacional tienen un área de 19 m2 con un 11 5

Es un proyecto familiar que surge en el año 2010, el propietario

Carlo Espinosa Norori destino el uso de sus

para la construcción de un hotel eclógico, cuyo objetivo fundamental era lograr un aprovechamiento sustentable del sitio que integrara al hombre con la naturaleza.

de la reserva Natural Volcán Masaya UNIVERSIDAD TECNOLÓGICA DEL PERU | UTP ALUMNOS: Leon Panta Nallely Agustina COD: 20228630 Alzamora Romero, Leila Roxany COD: 20207721 DOCENTES: ARQ. KARLA PATRICIA PALACIOS GONZALES ARQ. RENSO RODRISH CARRASCO JOCOPE “Hacienda Puerta Del Cielo Ecolodge & Spa” UBICACIÓN Y LOCALIZACIÓN: ÁREA DEL TERRENO: 8.452.8 h PROPIETARIO: Juan Carlos Espinosa Norori AÑO DE CONTRUCCION: 2010 TIEMPO DE CONTRUCCION: Año y medio MODELO A N A L O G O Venecia, Nimboja 2
Limite del terreno del proyecto
Es una
techos se aplicaron estructura de
que posee la hacienda
Juan
tierras
Casa Hacienda
Mirador Sauna Senderismo Arboretum
Restaurante • • • • Casa • • • •

FUNCIÓN

unipersonales (que se pueden con baños privados Estos cuartos de Casa Hacienda, la cual tiene Nacional Volcán Masaya Estos cuartos área de dormir de 12 m2 o 12

Es la Casa más grande que posee la hacienda, tiene acceso directo a rio piscina entre sus áreas se destacan una terraza de madera, un baño privado y mini bar, y un Jacuzzi. Posee una vista increíble del Parque Nacional Volcán Masaya y del entorno existente Casa Linda posee un área de 45 m2 de los cuales 19 m2 son de dormitorio y 54 m2 pertenecen al área de Patio y deck

ANÁLISIS ESTRUCTURAL

Restaurante:

Cerramiento: Mampostería confinada de ladrillo de barro cocido Estructura de techo: De madera Cubierta de techo: Conformado por paja y tejas de barro

Acabados: detalles de madera, puerta y ventanas de madera, cielo raso de petates Paredes de adobe

Casa Hacienda y cabañas :

Cerramiento: Mampostería confinada con divisiones en su interior de durock Ladrillo de cerámica rojizo Estructura de techo: De madera Cubierta de techo: Está conformado tejas de barro y cielo falso de caña de castilla

Acabados: Detalles de madera, puertas y ventanas de madera, cielo raso de caña de castilla Paredes de concreto y divisiones de durock

USUARIOS:

• Turistas extranjeros. Turistas locales.

• Pasadía.

MODELOS HABITACIONALES

La hacienda posee 6 modelos habitaciones diseñados bajo el mismo concepto:

• Casa bela

• Casa cayo

• Casa blanca

• Casa gabi

• Casa juanca

• Casa linda vista

Cada una de ellas cuenta con mini bar y patios privados (excepto LINDA VISTA) y todas gozan de una vista maravillosa de parque Nacional Volcán Masaya Poseen un área total 36 m2, distribuidas de la siguiente manera:

• Dormitorio: 19 m2

• Áreas verdes privadas y deck: 29m2

• Servicio sanitarios:

• Terrazas:

Con respecto al modelo de la casa linda vista, esta varia en el dimensionamiento propuesto ya que posee un área de 32 mts2. cuenta con los siguientes ambientes; Minibar, servicio sanitario, terrazas, dormitorio Esta localizado junto a casa hacienda y tiene la mejor vista del sitio

Y
tradicionales, con una combinación de sistemas constructivos; desde mampostería confinada, adobe, paja, bambú; en los madera cubiertas de tejas, pajas, como cielo se incorporó la aplicación de la caña de castilla en todas las MATERIALES
Hacienda Casa Linda
’ x
Mampostería Bambú AdobePaja Madera Caña de castilla Teja

DE

CONCEPTO + LAND ART

C O N C E P T O

F O R M A L

Se busca que el la arquitectura cumpla un rol social, y con ello una integración con los usuarios. La idea parte en integrar exitosamente el proyecto con su entorno, ello mediante el uso de la forma de la catarata El proyecto se regirá en base a los principios ordenadores identificados en la forma como también el land art propuesto pero de manera más abstracta y en su materialidad

UBICACIÓN Y LOCALIZACION: PAIS PERÚ DEPARTAMENTO: PIURA CHULUCANAS QUIRPON CHULUCANAS ANALISIS DE T E R R E N O TOMA
PARTIDA1
PROPUESTA
SE RAMIFICA CREANDO DISTINTOS CAMINOS Al final tiene un punto de remate 2 1 Ramifica la corriente del agua del terreno • Camino • Distribución • Espacios • Geometrización RAMIFICAR LA CORRIENTE DEL AGUA EN EL TERRENO: • Camino • Distibucion Espacios • Geometrizacion FACTORES DE DISEÑO FOTO DEL TERRENO Catarata de citan 01. ESTRATEGIA, ECO HOTEL - SPA: COMPLEJO DE LOS TURISTAS PARA LA VISITA DE LA CATARTA DE CITAN, BRINDANDO ESTADIA. BUNGALOWS SIMPLES ESTACIONA MIENTO MINI GRANJA ZONA DE INGRESO RECEPCIÓN + ADMINISTRACIÓN
BUNGALOWS
SIMPLES RESTAURANTE PATIO DE MANIOBRAS CENTRO CULTURAL CAMPING BIOHUERTO ZONIFICACIÓN POR ZONAS GRAFO RECTOR

EN PAREJA

FORTALEZAS

DEBILIDADES

FORTALEZAS DEBILIDADES

OPORTUNIDADES

OPORTUNIDADES

AMENAZAS

AMENAZAS

USUARIOS TURISMO
Exploren nuevos lugares con tours y experiencias románticas para 2 personas TURISMO DE AVENTURA Para los amantes de la naturaleza y lo salvaje, con actividades extremas en catarata, acantilados, bosques, senderos, etc... TURISMO DE CULTURAL Para los que disfrutan de la cultura de otras ciudades, ¡estos paquetes son ideales! Bambú MINI GRANJA Plantas silvestres ÁREA: Libre, aproximado de 8 hectáreas RIESGOS: Terreno irregular, no cuenta con riesgo a inundación ÁREA INFLUYENTE: 80% recurrente ACCECIBILIDAD: Carretea Piura la vieja Morropón TEMPERATURA PROMEDIO: 32°C/ 15°C. VIENTOS: 13 km/h PRECIPITACIONES: 80% recurrente HUMEDAD RELATIVA: 21 % HORAS DE SOL: 12 horas y 25 minutos COMPLEJO TURISTICO QUE RESPONDE A LA CONCURRENCIA ESPACIOS DE RELAJACION, ENTRETENIMIENTO Y UNIVERSIDAD TECNOLÓGICA DEL PERU | UTP ALUMNOS: Alzamora Romero, Leila Roxany COD: 20207721 ARQUITECTOS: ARQ. KARLA PATRICIA PALACIOS GONZALES ARQ. RENSO RODRISH CARRASCO JOCOPE FACULTAD: ARQUITECTURA TALLER DE DISEÑO ARQUITECTONICO VI T ALLER DE DISEÑO ARQUITECTONICO VI L-01
La reserva natural, catarata de citan y recursos turísticos Insuficiencia de guías turísticos bilingües a nivel turístico Excelente ubicación geográfica, topografía, flora y fauna No cuenta con suficientes vías vehiculares, estas son angostas y están de forma independiente. Variedad de atractivos turísticos Falta mayor equipamiento de recreación Presencia de guías turísticos
El entorno natural es un potencial turístico para los visitantes Ausencia de planificación estratégica para el desarrollo turístico. El proyecto traerá mejores plazas laborales para los pobladores Posible abandono de las actividades económicas tradicionales por el turismo. Facilidad de transporte para llegar al destino Poco conocimiento del distrito y sus atractivos
01 02
Catarata de citan CAMPING BUNGALOWS
SIMPLES JUEGOS RECREATIVOS CANCHA DEPORTIVA SPA + GYM CIRCULACIÓN RAMIFICACIÓN DE AGUA HABITACI ONES

USUARIOS:

Turistas extranjeros.

Turistas locales.

Pasadía.

ESTILO ARQUITECTÓNICO:

Es una mezcla de estilos tradicionales, con una combinación de sistemas constructivos; desde mampostería confinada, adobe, paja, bambú; en los techos se aplicaron estructura de madera cubiertas de tejas, pajas, como cielo se incorporó la aplicación de la caña de castilla en todas las cabañas que posee la hacienda

MASTER PLANMODELO A N A L O G O de la reserva Natural Volcán Masaya UBICACIÓN Y LOCALIZACIÓN: ÁREA DEL TERRENO: 8.452.8 h PROPIETARIO: Juan Carlos Espinosa Norori AÑO DE CONTRUCCION: 2010 Venecia, Nimboja 2 Limite del terreno del proyecto En el municipio de Masatepe Nicaragua DENTRO DE SU INFRAESTRUCTURA CUENTA CON: • Lobby casa Hacienda área de fumado • Restaurante (multifuncional) • Mirador • Cabañas • Spa • Viveros • Mariposario • Arboretum • Senderos
Mirador Sauna Senderismo Arboretum
MATERIALES
Mampostería Bambú AdobePaja Madera Caña de castilla Teja
1 Enfoque paisajista Buen manejo del espacio abierto y los elementos que lo conforman (pendiente camino hacia la catarata de citan) • Medio natural ecológico que se integre con la naturaleza Enfoque sustentable ARQUITECTURA BIOCLIMÁTICA, ECO AMIGABLE Y SUSTENTABLE, basado en : • Aprovechamiento de energía solar • Captación de agua pluvial • Aprovechamiento del recurso natural principal (la catarata) 2 Sistema de baterías con paneles solares Sistema constructivo pared a base de botella PET Captación de agua pluvial CLIMATIZACIÓN DE LA PISCINA 2.2 2.2 2.3 PLAN ESTARTEGICO E C O H O T E L - S P A 3 Enfoque Tecnológico 2.1 4 Materialidad UNIVERSIDAD TECNOLÓGICA DEL PERU | UTP ALUMNOS: Alzamora Romero, Leila Roxany COD: 20207721 ARQUITECTOS: ARQ. KARLA PATRICIA PALACIOS GONZALES ARQ. RENSO RODRISH CARRASCO JOCOPE FACULTAD: ARQUITECTURA TALLER DE DISEÑO ARQUITEC TONICO VI T ALLER DE DISEÑO ARQUITECTONICO VI L-01

G R A M A

P R O
UNIVERSIDAD TECNOLÓGICA DEL PERU | UTP ALUMNOS: Alzamora Romero, Leila Roxany COD: 20207721 ARQUITECTOS: ARQ. KARLA PATRICIA PALACIOS GONZALES ARQ. RENSO RODRISH CARRASCO JOCOPE| FACULTAD: ARQUITECTURA TALLER DE DISEÑO ARQUITEC TONICO VI T ALLER DE DISEÑO ARQUITECTONICO VI L-01 2 Matriz General 1 DIAGRAMACION E C O H O T E L - S P A Matriz General 6 GRAFICO DE FLUJO DE RESTAURANTE 5 GRAFICO DE FLUJO DE BUNGALOWS DUPLEX 4 GRAFICO DE FLUJO DE BUNGALOWS ZONA DE HABITACION SIMPLE HALL SS.HH DORMITORIO CLOSET TERRAZA MENOR FLUJOMAYOR FLUJO ZONA RESTAURANTE HALL SS.HH COMEDORRECCEPCION BARRA BARCOCINA ALMACEN MENOR FLUJO MAYOR FLUJO 3 GRAFICO DE FLUJO DE HABITACIONES ZONA DE BUNGALOWS DUPLEX HALL SS.HH DORMITORIO 1 CLOSET TERRAZA MENOR FLUJO MAYOR FLUJO SALA KITCHENETTE DORMITORIO 2 ZONA DE BUNGALOWS HALL SS.HH DORMITORIO CLOSET TERRAZA MENOR FLUJOMAYOR FLUJO KITCHENETTE Recepció n ZONA ADMINI STRATIV A ZONA INGRESO ZONA ECOLOGIC A ZONA DE RECREAC ION ZONA HOSPEDAJ E SERVICIOS GENERALE S Lobby Mini granja Marketin g Contabili dad Gerencia Habitació n simple Habitació n doble Cuarto de basura Comedo r de servicios GYM Campin g Zona cultural Oficina s Almacé n Sala de espera Sala de espera Recursos humanos Bungalow simples Bungalow dúplex ESTACIO MAMIEN TO Estacio namien to publico Estacio namien to privadoSERVICIO S COMPLE MENTARI OS SPA segund o nivel SUNA SPA

TECHO INCLINADO

CARACTERISTICAS

AGUAS

TECHO CURVO

UNIVERSIDAD TECNOLÓGICA DEL PERU | UTP ALUMNOS: Leon Panta Nallely Agustina COD: 20228630 Alzamora Romero, Leila Roxany COD: 20207721 DOCENTES: ARQ. KARLA PATRICIA PALACIOS GONZALES ARQ. RENSO RODRISH CARRASCO JOCOPE MASTER PLANZ O N I FI C A C I Ó N MATERIALES DE TECHO
• Aislamiento Acústico:.Regular Aislamiento Térmico: BuenoResistencia a variación de Bueno • pero requiere de mantenimiento periódico • Resistencia al fuego: AceptableMantenimiento Bajo Aislamiento Acústico:. Medio Aislamiento• Térmico: BuenoResistencia a variación de clima: Muy• bueno ya que es tallo seco resiste todas• los °C Resistencia al fuego: No aceptableMantenimiento: Bajo • Aislamiento Acústico: Bueno Aislamiento Térmico: Muy Bueno Resistencia a variación de clima: Bueno• pero requiere de mantenimiento periódico • Resistencia al fuego: AceptableMantenimiento: Bajo TECHO 2
ADOBE O TAPIAL BAMBU LADRILLO ARTESANAL VISTA EN PLANTA + EMPLAZAMIENTO ESTADO ACTUAL 8 BIOHUERTOBUNGALOWS DUPLEX SERVICIOS COMPLEMENTARIOS SPABAR 11 12
UNIVERSIDAD TECNOLÓGICA DEL PERU | UTP ALUMNOS: Alzamora Romero, Leila Roxany COD: 20207721 ARQUITECTOS: ARQ. KARLA PATRICIA PALACIOS GONZALES ARQ. RENSO RODRISH CARRASCO JOCOPE FACULTAD: ARQUITECTURA TALLER DE DISEÑO ARQUITECTONICO VI T ALLER DE DISEÑO ARQUITECTONICO VI L-01 INGRESO PRINCIPAL 1 ZONA DE INGRESO RECEPCIÓN + ZONA ADMINISTRATIVA 2 3 4 5 9 7 ZONA DE ESTACIONAMIENTO ZONA DE ESTACIONAMIENTO 6 5 BUNGALOWS SIMPLES GYN + AREA DE CAMPING PISCINA GRANJAZONA CULTURAL JUEGOS RECREATIVOS VÍA PRINCIPAL CATARATA DE CITAN RESTAURANTE 10 11

Tierra

Lo ideal es utilizar la propia tierra que haya en el terreno, aunque es posible que tengamos que añadir alguno de los componentes para generar una mezcla óptima para la construcción.

Cal

Ya los romanos construían con cal y cualquier tipo de tierra. La cal es el resultado químico de la piedra caliza calcinada a temperaturas de entre 850 y 1100° C

ARQUITECTURA

SISTEMA

UNIVERSIDAD TECNOLÓGICA DEL PERU | UTP ALUMNOS: Leon Panta Nallely Agustina COD: 20228630 Alzamora Romero, Leila Roxany COD: 20207721 DOCENTES: ARQ. KARLA PATRICIA PALACIOS GONZALES ARQ. RENSO RODRISH CARRASCO JOCOPE MASTER PLANZ O N I FI C A C I Ó N VIENTOS ASOLEAMIENTO
VERNACULAR
8H TERRENO •LIGEREZA, facilidad en Su montaje, aminora las cargas sobre la demasiados daños •AISLANTE TÉRMICO, debido a su elevada inercia térmica, cualidad barro •AISLANTE ACÚSTICO, permite proporcionar una protección al recinto •CONSERVACIÓNAMBIENTAL, ya que no genera la cantidad de desechos •FÁCIL DE MODIFICAR futuras reformas de muros y muy versátil INGRESO PRINCIPAL
UNIVERSIDAD TECNOLÓGICA DEL PERU | UTP ALUMNOS: Alzamora Romero, Leila Roxany COD: 20207721 ARQUITECTOS: ARQ. KARLA PATRICIA PALACIOS GONZALES ARQ. RENSO RODRISH CARRASCO JOCOPE FACULTAD: ARQUITECTURA TALLER DE DISEÑO ARQUITECTONICO VI T ALLER DE DISEÑO ARQUITECTONICO VI L-01 SISTEMA CONSTRUCTIVO SISTEMA CONTRUCTIVO 01 CIMENTACIÓN 02 MANGAS 03 RECUBRIMIENTO • SUPER ADOBE la edificación y en caso de colapso no provoca cualidad que es proporcionado por el recubrimiento del recinto contra la penetración del ruido desechos que producen otros materiales para en las instalaciones de tuberías y red eléctrica. CONCEPTOS CUALITATIVOS LEYENDA INGRESO PRINCIPAL CIRCULACIÓN CIRCULACIÓN + PRIVADA INGRESO PRINCIPAL INGRESO SECUNDARIO

BUNGALOWS

UNIVERSIDAD TECNOLÓGICA DEL PERU | UTP ALUMNOS: Leon Panta Nallely Agustina COD: 20228630 Alzamora Romero, Leila Roxany COD: 20207721 DOCENTES: ARQ. KARLA PATRICIA PALACIOS GONZALES ARQ. RENSO RODRISH CARRASCO JOCOPE MASTER PLANZ O N I FI C A C I Ó N
SIMPLES BUNGALOWS DUPLES
UNIVERSIDAD TECNOLÓGICA DEL PERU | UTP ALUMNOS: Alzamora Romero, Leila Roxany COD: 20207721 ARQUITECTOS: ARQ. KARLA PATRICIA PALACIOS GONZALES ARQ. RENSO RODRISH CARRASCO JOCOPE FACULTAD: ARQUITECTURA TALLER DE DISEÑO ARQUITECTONICO VI T ALLER DE DISEÑO ARQUITECTONICO VI L-01 DUPLES

DENSIDADES

A.020

ARTICULO 1: constituyen edificaciones para fines de vivienda aquellas que tienes como uso principal o exclusivo la residencia de las familias, satisfaciendo sus necesidades habitacionales y funciones de manera adecuada

ARTÍCULO 5: para el calculo de la densidad habitacional, el numero de habitantes de una vivienda es en función del numero de dormitorios según lo siguiente: (el # de habitantes de una vivienda, esta en función al # de dormitorios)

ARTÍCULO 2: toda vivienda deberá contar cuánto meno, con espacios para las funciones de aseo personal, descanso alimento y recreación

ALTURA DE EDIFICACION

• La altura máxima de edificación medida sobre el frente de vereda de la línea municipal (cota más baja de la vereda) En caso de edificaciones ubicadas en esquina con frente a vías de diferentes norma de altura máxima de edificación, se podrá adoptar la mayor altura sobre la vía de menor norma de altura de edificación en una longitud igual a la sección vial de esta última, medida a partir de la esquina del lote

ARTÍCULO 3: las viviendas pueden edificarse de los siguiente tipos: edificio multifamiliar, cuando se trate

mas viviendas

donde

común

CIRCULACIONES NORMA A.010

CIRCULACION VERTICAL, ABERTURAS AL EXTERIOR, VANOS Y PUERTAS DE EVACUACION

Articulo 26 de evacuación: al interior de las escaleras de evacuación, son permitidas únicamente en instalaciones de los sistemas de protección contra incendios

• En caso de edificaciones ubicadas en esquina con frente a vías de diferentes norma de altura máxima de edificación, se podrá adoptar la mayor altura sobre la vía de menor norma de altura de edificación en una longitud igual a la sección vial de esta última, medida a partir de la esquina del lote.

ESTACIONAMIENTO

• En las nuevas habilitaciones de zonas R3 se exige 01 estacionamiento en los proyectos de vivienda unifamiliar o bifamiliar, se determinará según condicionantes de diseño En áreas consolidadas R4 no será exigible

En los casos indicados el estacionamiento será resuelto dentro del área del lote

Los procesos de habilitación urbana que consideren lotes con frente a calles peatonales, deberán proveer de áreas comunes para estacionamiento según lo estime la autoridad municipal competente

• Los proyectos de edificación y/o habilitaciones que involucren edificios multifamiliares deberán prever mínimo 2 plazas de estacionamiento

ZONIFICACION RESIDENCIAL

URBANÍSTICOS EDIFICATORIOS)

UNIVERSIDAD TECNOLÓGICA DEL PERU | UTP ALUMNOS: Leon Panta Nallely Agustina COD: 20228630 Alzamora Romero, Leila Roxany COD: 20207721 DOCENTES: ARQ. KARLA PATRICIA PALACIOS GONZALES ARQ. RENSO RODRISH CARRASCO JOCOPE NORMA
Artículo 1 Toda edificación residencial, en los aspectos de Habitabilidad Funcionalidad, Dotación de Servicios, Seguridad y otros, estará regida por lo dispuesto en el Reglamento Nacional de Edificaciones, Normas TH 010 A 010 A 020 A90 A 100 A 110 A 120 A 130 A 140
CUADRO N.º 187: ZONIFICACIÓN RESIDENCIAL (CUADRO RESUMEN DE PARÁMETROS
de dos o
en una sola edificación y
el terreno es de propiedad
ARTÍCULO 4: Las viviendas deben estar ubicadas en zonas residenciales establecidas en el plano de zonificación, en zonas urbanas con zonificación compatible o en zonas rurales VIVIENDA N° de habitantes De un dormitorio 2 De dos dormitorios 3 De tres dormitorios A mas 5 • Interiores 1 20m • Exteriores 2.70 m vacíos NORMATIVA DE EDIFICACION
USOS
GENÉRICOS: vivienda USOS RESIDENCIALES • En las R4 menor, conocimiento • Cuando área asimilar inferior USO MULTIFAMILIAR construcción máximo construcción normas USO COMERCIAL aquellos señalados
Zonificación normas VIVIENDA para artesanía de zonificación, en seguridad

DENSIDADES NORMATIVAS

DIMENSIONES DEL LOTE

• SUBDIVISIÓN DE LOTES CON ÁREAS DIFERENTES A LAS NORMATIVAS: En áreas consolidadas, podrá autorizarse la subdivisión en lotes con áreas y frentes menores a los normativos teniendo en consideración los patrones predominantes

LOTES NORMATIVOS: Para los efectos de habilitación urbana y subdivisión de lotes

GENÉRICOS: Se permite la edificación de una vivienda en un lote.

MULTIFAMILIAR: En las Zonas R3 se permitirá la construcción de edificios multifamiliares con máximo 3 pisos En las Zonas R3 se permitirá la construcción de Conjuntos Residenciales según las

RESIDENCIALES DE MENOR DENSIDAD:

las zonas habilitadas con zonificación R3 y se permitirá la construcción de densidad menor, siempre y cuando el propietario acuse conocimiento de la zonificación existente Cuando los lotes de estas zonas tengan un área menor al 50% del área normativa, podrán asimilar las normas de zonificación inmediata inferior correspondiente

COMERCIAL: Se permitirá el uso comercial en aquellos lotes habilitados como comerciales y no señalados específicamente en el plano de Zonificación General, debiendo ajustarse a las normas de zonificación comercial correspondiente

VIVIENDA TALLER: en zonas R3 y R4 Será admisible artesanía en lotes no especificados en el plano zonificación, previa opinión del área competente seguridad y mitigación de riesgos

COEFICIENTE DE EDIFICACION RETIROS

En las nuevas habilitaciones el retiro será de 3 00m En áreas consolidadas se aplicarán los retiros predominantes sobre los frentes de la cuadra en que se ubique el proyecto Los retiros delanteros en esquina, en ningún caso tendrán una dimensión menor a cuatro metros, medida sobre la perpendicular a la bisectriz del ángulo formado por las líneas de propiedad (municipales) correspondiente a cada vía que conforma la esquina

NORMA TH010

UNIVERSIDAD TECNOLÓGICA DEL PERU | UTP ALUMNOS: Alzamora Romero, Leila Roxany COD: 20207721 ARQUITECTOS: ARQ. KARLA PATRICIA PALACIOS GONZALES ARQ. RENSO RODRISH CARRASCO JOCOPE FACULTAD: ARQUITECTURA TALLER DE DISEÑO ARQUITEC TONICO VI T ALLER DE DISEÑO ARQUITECTONICO VI L-01
Área libre mínima dentro del lote 30%
NORMA GH0.20

Turn static files into dynamic content formats.

Create a flipbook
Issuu converts static files into: digital portfolios, online yearbooks, online catalogs, digital photo albums and more. Sign up and create your flipbook.