Interior Architecture Works

Page 1

FREELANCE WORK

I’ve got 2 years experience as Interior Architecture freelancer from 2019 to 2021 while I’m in BA and continue after graduated from BA till Aug 2021. I had experience designing residential and commercial including bars, karaoke, shops, landed housing and I tend to get very hands on with the construction site, working closely contractors and builders to discuss design that best suit the site condition.

My working experience as an interior architecture and on-site supervisor for a landed house project, which is already on a handover stage today. I worked hand-inhand with the contractor and builders, this experience has given me insight into the reallife situation.

e: ning.lee.21@ucl.ac.uk / leening08@gmail.com

LEE NING

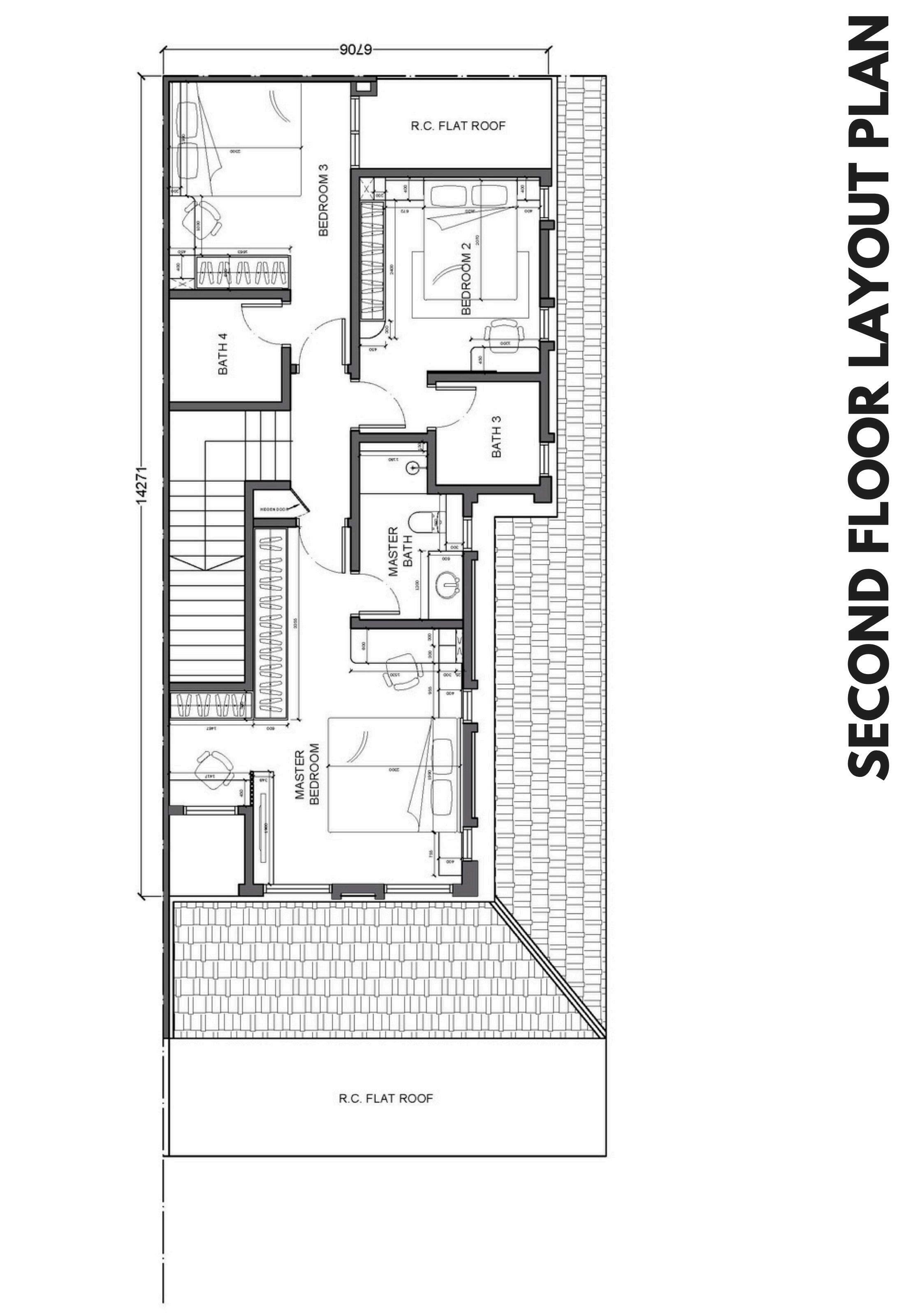
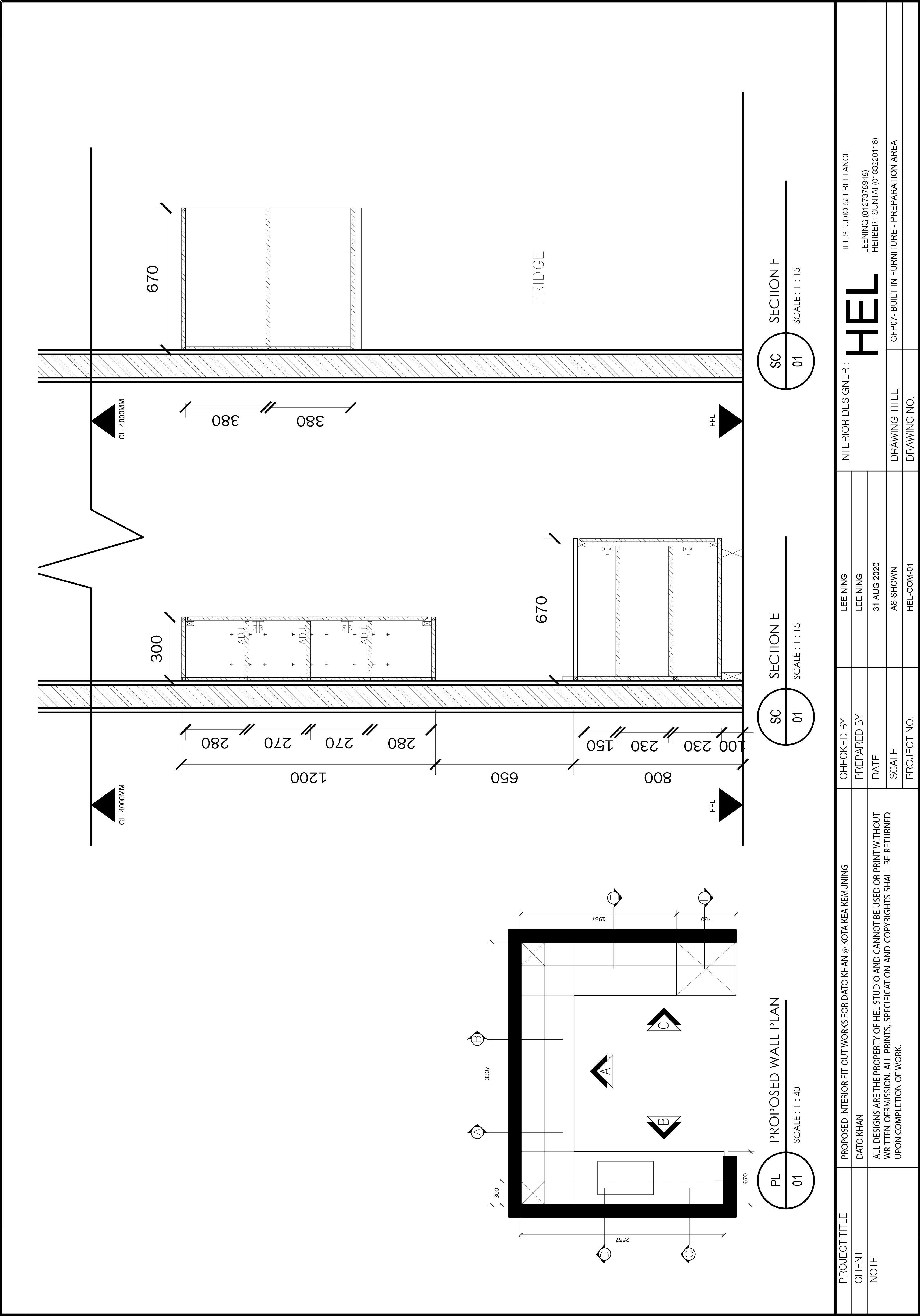
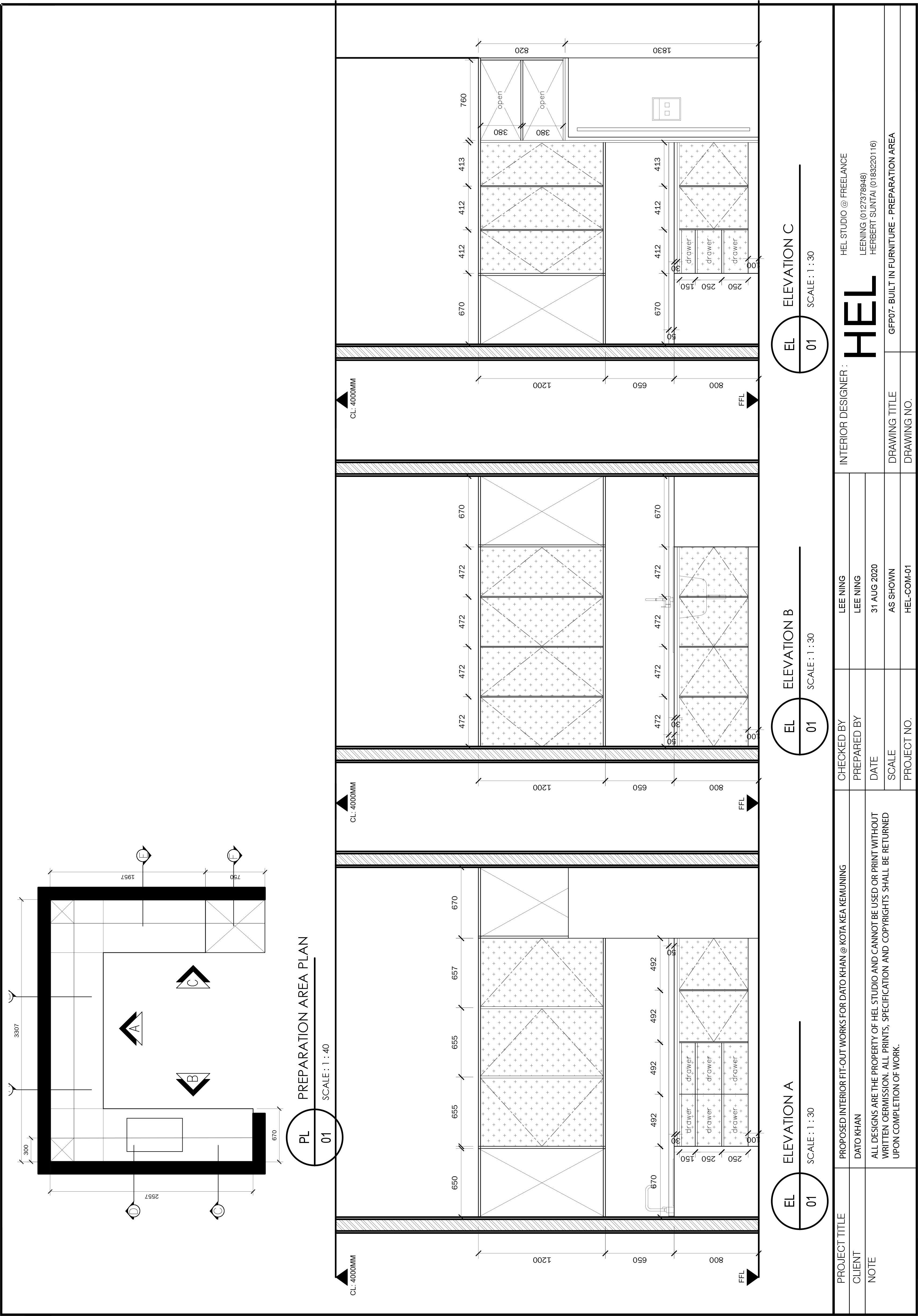
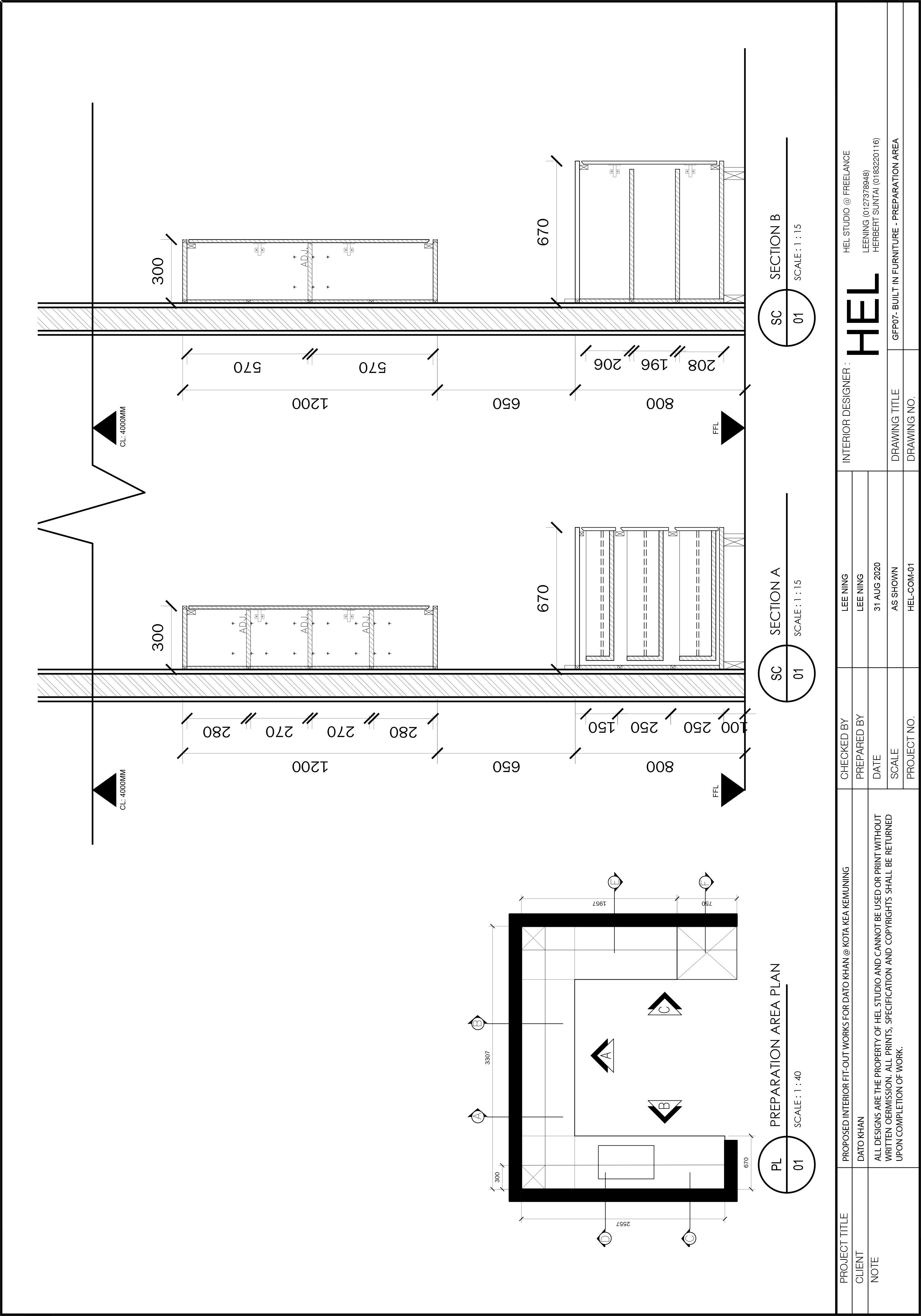
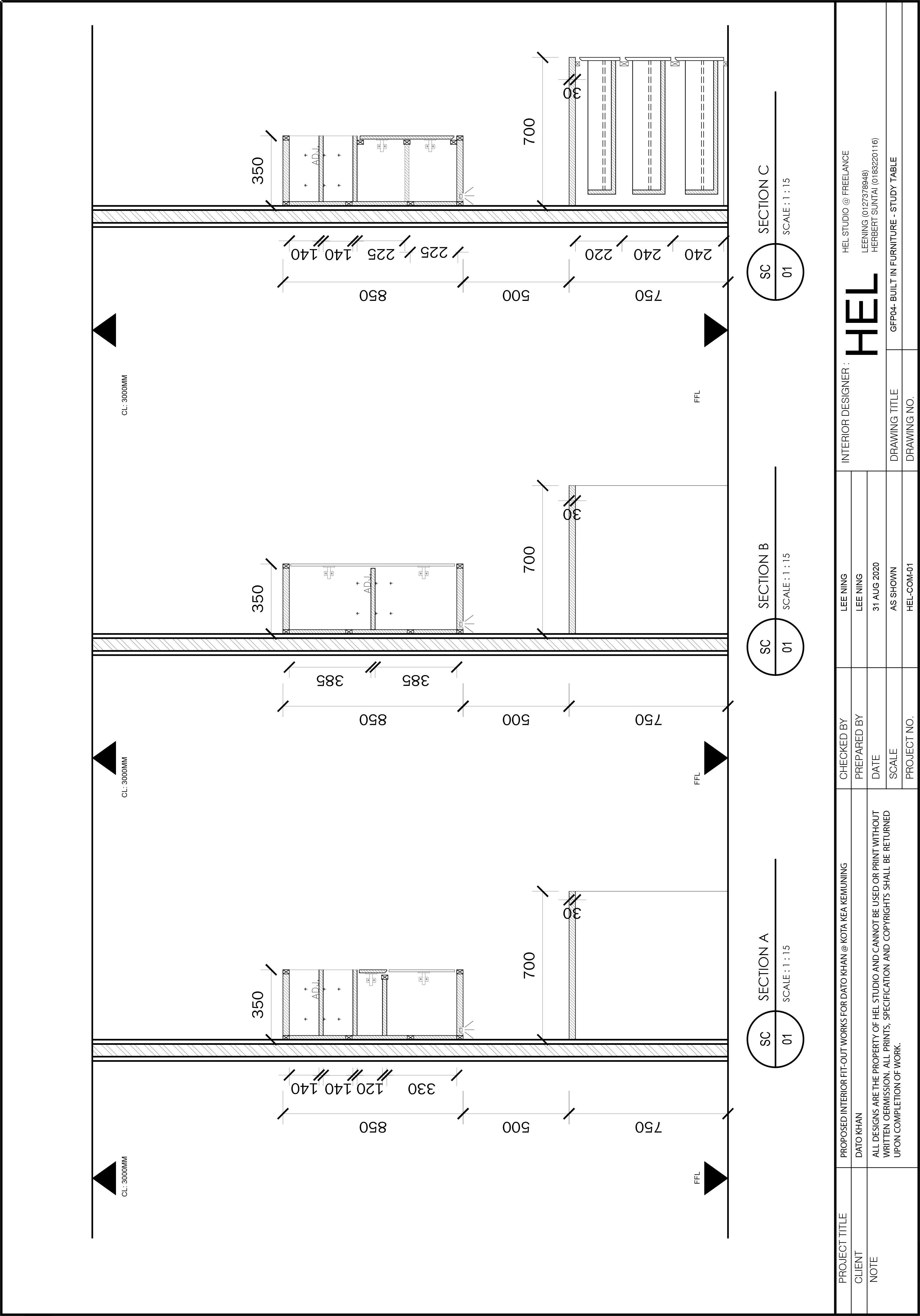
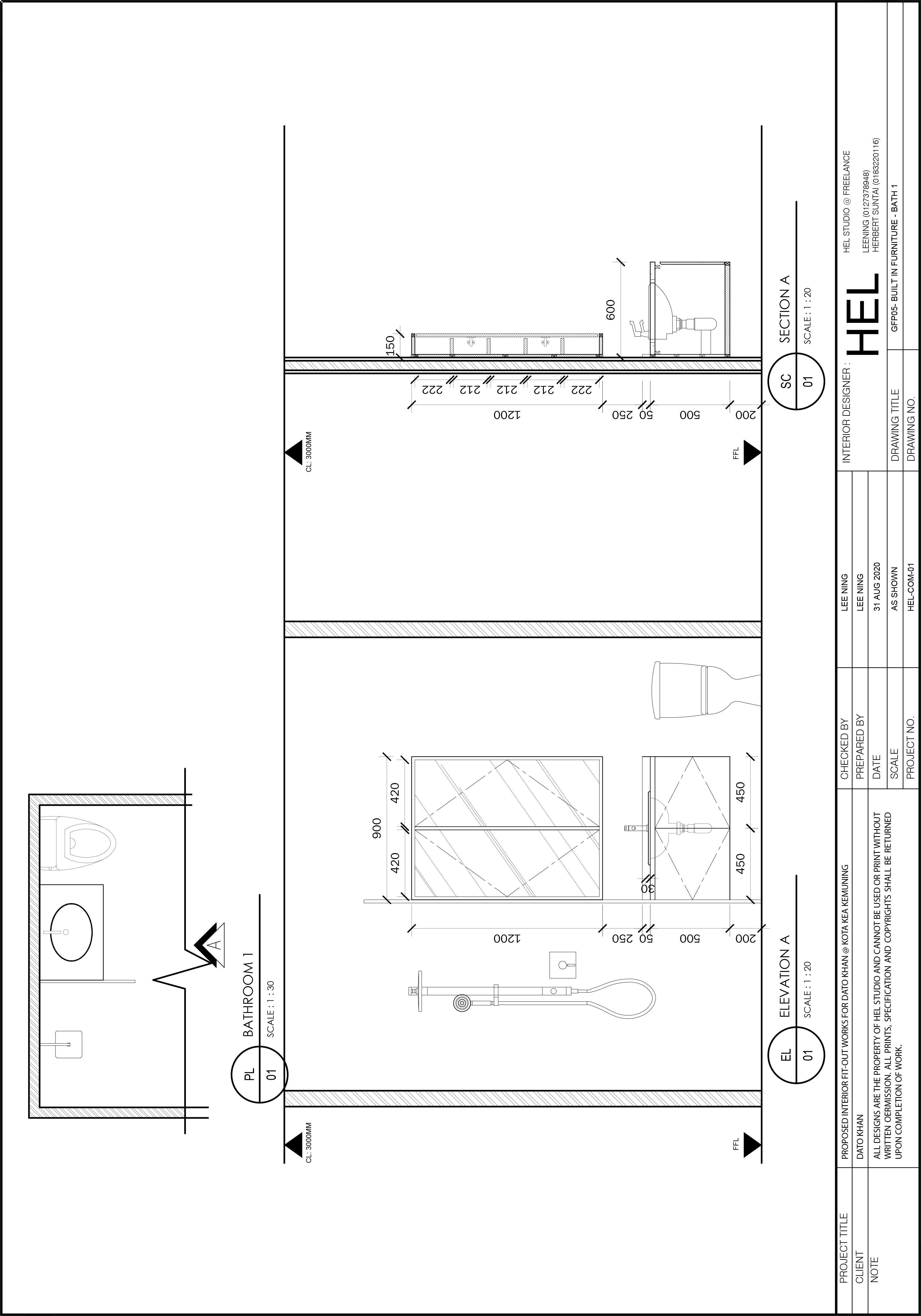
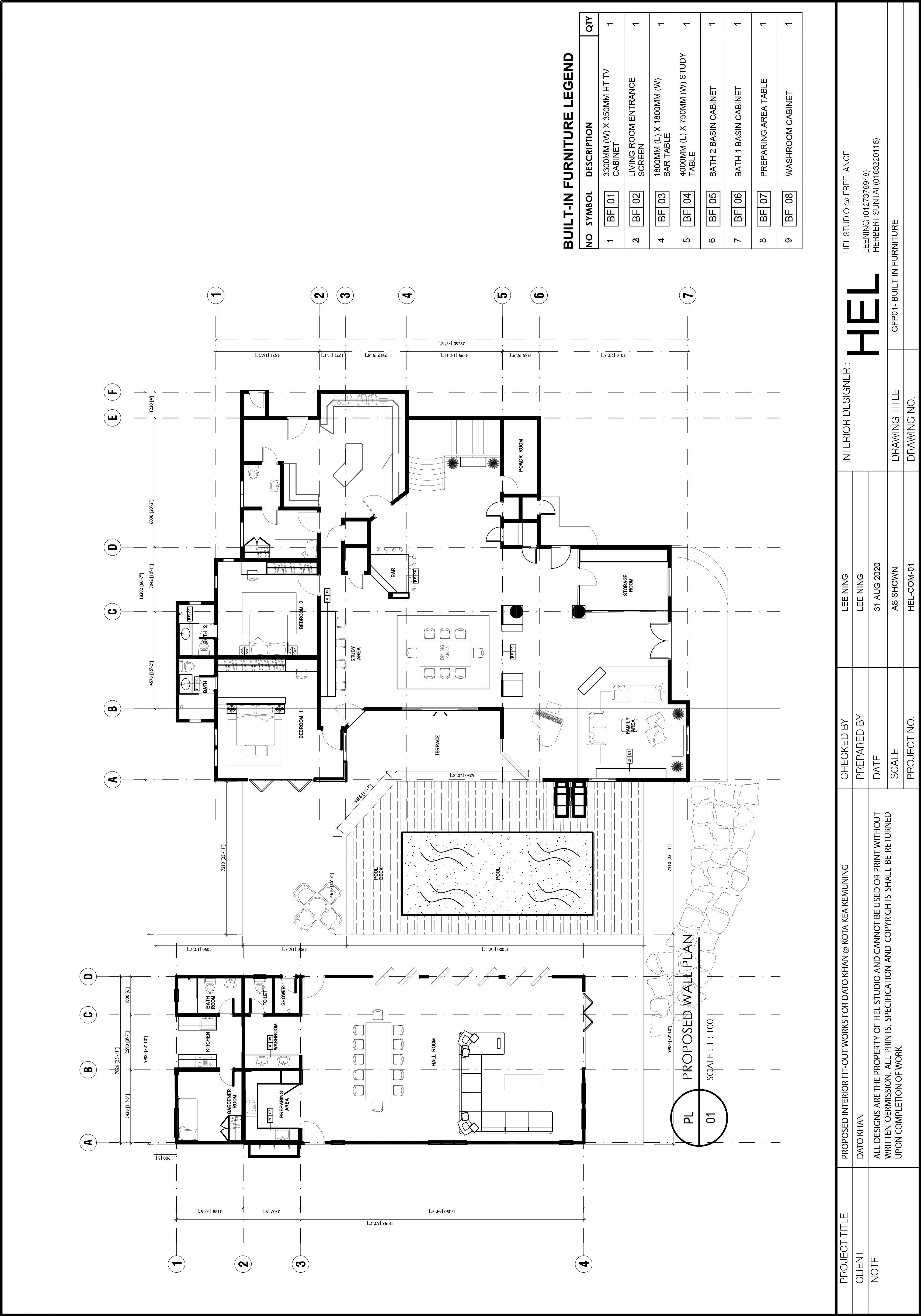
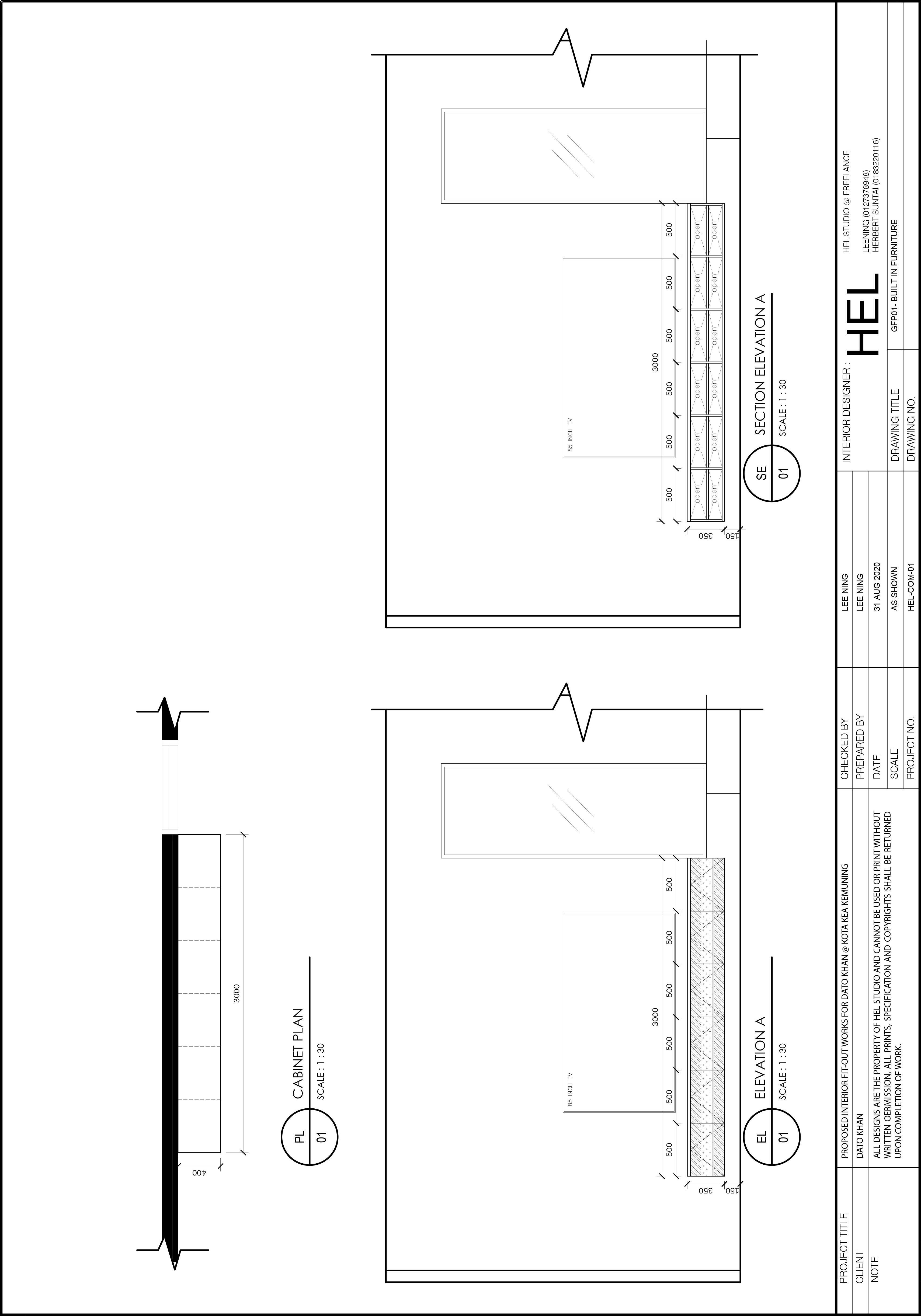
DATO KHAN BUNGALOW @ KOTA KEMUNING

A 70 percent renovation is required at the existing house, where new hall and pool are newly build. This project took about 9 months to complete. Designing, drawing, site supervising, material choosing were done by me.

EXTENDED LIVING AREA 1
2
Design . Site Supervisor
Dato Khan Bungalow at Kota Kemuning Dining Area Stairs Porch
3 Dato
at
Design . Site Supervisor
Living Area
Living Area
Khan Bungalow
Kota Kemuning
Dining Area
4 Dato
Design . Site Supervisor
Rest Space
Khan Bungalow at Kota Kemuning
5
Design . Site Supervisor
Extend Living Area Extend Living Area
Dato
Khan Bungalow at Kota Kemuning
6 Dato Khan Bungalow at Kota Kemuning Design . Site Supervisor
Extend Living Area
7 Dato Khan Bungalow at Kota Kemuning Design . Site Supervisor
8 Dato Khan Bungalow at Kota Kemuning Design . Site Supervisor
9 Dato Khan Bungalow at Kota Kemuning Design . Site Supervisor
10 Dato Khan Bungalow at Kota Kemuning Design . Site Supervisor
11 Dato Khan Bungalow at Kota Kemuning Design . Site Supervisor
12 Dato Khan Bungalow at Kota Kemuning Design . Site Supervisor
13 Dato Khan Bungalow at Kota Kemuning Design . Site Supervisor
14 Dato Khan Bungalow at Kota Kemuning Design . Site Supervisor
15 Dato Khan Bungalow at Kota Kemuning Design . Site Supervisor
16 Dato Khan Bungalow at Kota Kemuning Design . Site Supervisor
17 Dato Khan Bungalow at Kota Kemuning Design . Site Supervisor
18 Dato Khan Bungalow at Kota Kemuning Design . Site Supervisor

DIVA KARAOKE @ ONE SHAMELIN MALL, 56100

This karaoke bar located at the 4th floor of One Shamelin shopping mall. It has 2 lots which targetting for malay customers. Only the exisiting storage needed to renovate to a bar in existing shop. Drawing and design were done by myself, where the rendering done by one intern. This project has stop at the construction stage due to the pandemic.

FACADE 19
20 DIVA KARAOKE @ ONE SHAMELIN MALL, 56100 DESIGN
21 DIVA KARAOKE @ ONE SHAMELIN MALL, 56100 DESIGN
22 DIVA KARAOKE @ ONE SHAMELIN MALL, 56100 DESIGN
23 DIVA KARAOKE @ ONE SHAMELIN MALL, 56100 DESIGN
24 DIVA KARAOKE @ ONE SHAMELIN MALL, 56100 DESIGN
25
DIVA KARAOKE @ ONE SHAMELIN MALL, 56100 DESIGN
Frontage Shop Exterior
26
DIVA KARAOKE @ ONE SHAMELIN MALL, 56100 DESIGN
Shop Exterior

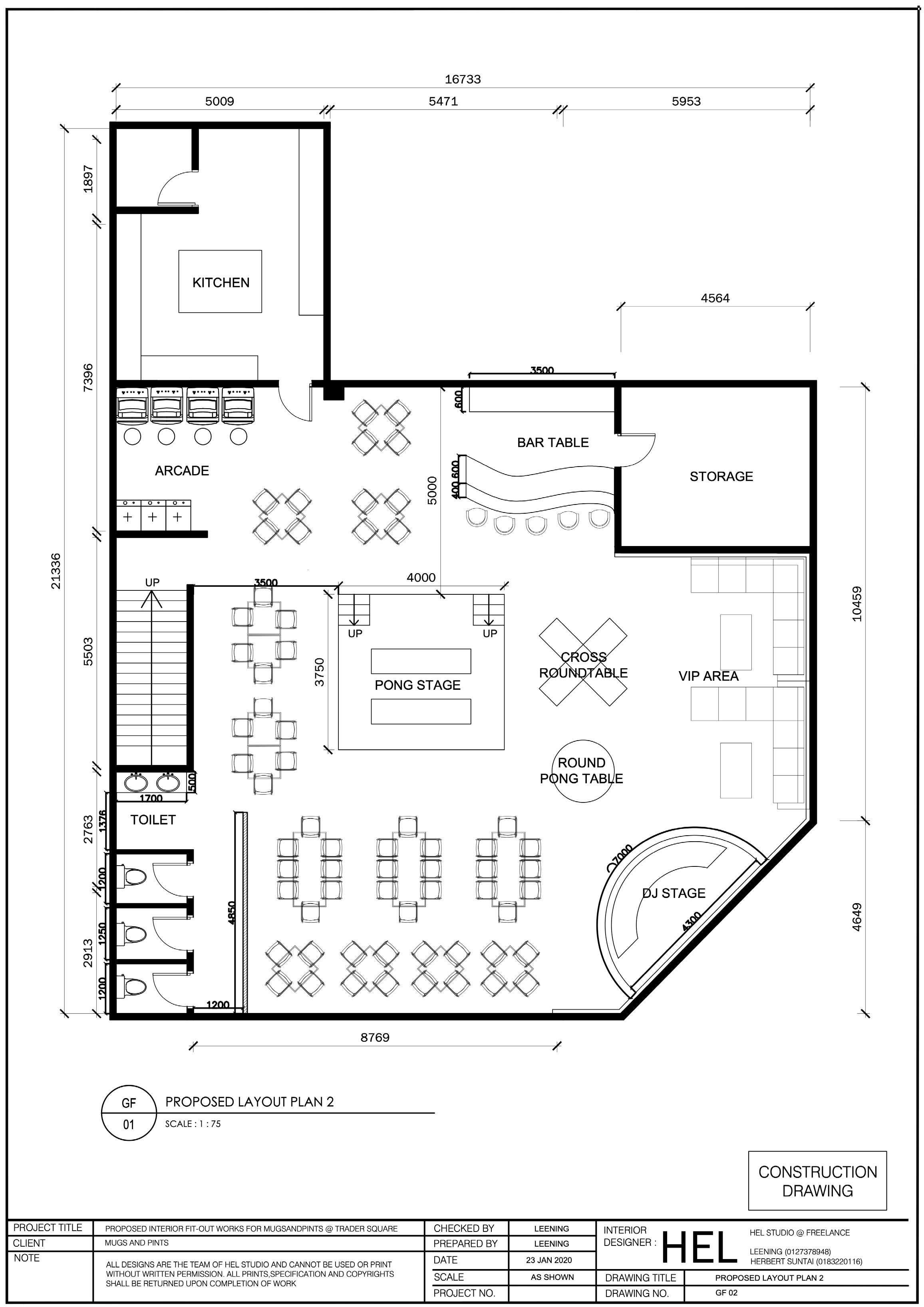
MUGD AND PINTS @ TRADER SQUARE, 43200

This bar is about 2500sqft, located at second floor of a double storey shop lot. Beer pong, also known as Beirut, is a drinking game in which players throw a ping pong ball across a table with the intent of landing the ball in a cup of beer on the other end. Hence, ‘Game’ theme was introduced. This project currently stop at stage designing due to the pandemic.

INTERIOR 27
28 MUGD AND PINTS @ TRADER SQUARE, 43200 DESIGN
29
Shop Exterior
MUGD AND PINTS @ TRADER SQUARE, 43200 DESIGN
Shop Exterior
30
Shop Exterior
MUGD AND PINTS @ TRADER SQUARE, 43200 DESIGN
Shop Exterior
31
Shop Exterior
MUGD AND PINTS @ TRADER SQUARE, 43200 DESIGN
Shop Exterior

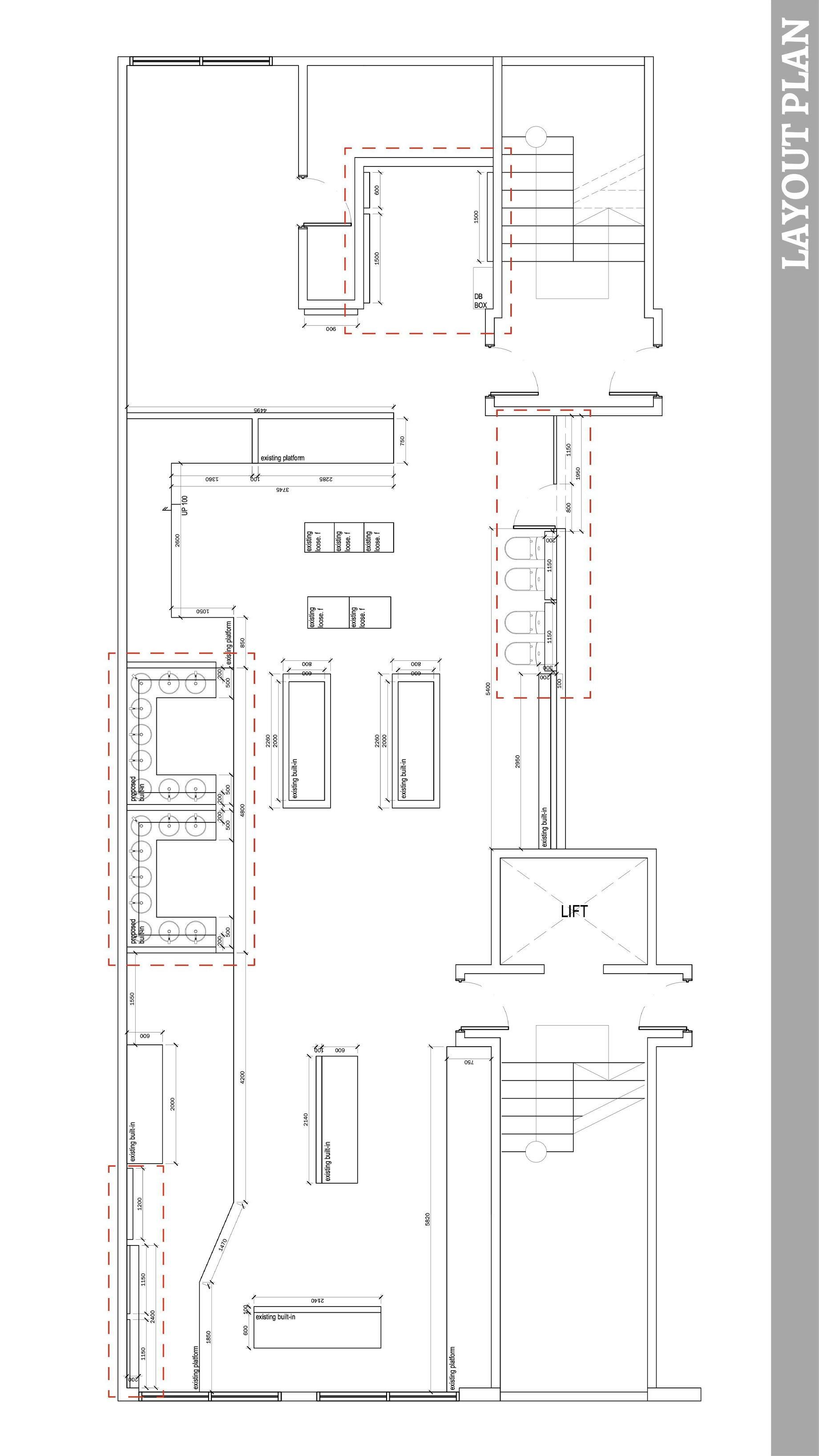
RACING

Z @ SEKSYEN 51A, 46100

Racing Z is a tyre dealer and vehicle repair service centre.Only construction drawings were done by me. This shop has already done construct.

32
INTERIOR
1090 WAITING ROOM OFFICE 3 20700 2910 14890 2910 32940 3853 6637 4350 10430 7089 OFFICE 2 OFFICE 1 680 4768 2725 4100 2743 speed up three four five two one 1 2 3 4 5 6 PROJECT NO DRAWING NO : REVISION NO DRAWN BY CHECKED BY DATE SCALE DRAWING TITLE : PROPOSED INTERIOR RENOVATION WORKS FOR RACING-Z TYRE SERVICE ( PJ ) SDN BHD 11/11/2020 AS SHOWN LEE NING PLAN IMPORTANT NOTE: ALL DIMENSIONS SHALL BE VERIFIED ON SITE BY CONTRACTOR PRIOR TO CONSTRUCTION AND WHEN REQUIRED. PLAN SCALE : 1 : 125 01 PL 33 RACING Z @ SEKSYEN 51A, 46100 DESIGN
EXISTING STORE ROOM EXISTING DB ROOM OFFICE 1 OFFICE 2 WAITING ROOM OFFICE 3 1 2 3 4 5 6 PROJECT NO DRAWING NO : REVISION NO DRAWN BY CHECKED BY DATE SCALE DRAWING TITLE : PROPOSED INTERIOR RENOVATION WORKS FOR RACING-Z TYRE SERVICE ( PJ ) SDN BHD 26/09/2020 AS SHOWN LEE NING ELEVATION INDICATION PLAN
NOTE: ALL DIMENSIONS SHALL BE VERIFIED ON SITE BY CONTRACTOR PRIOR TO CONSTRUCTION AND WHEN REQUIRED. ELEVATION INDICATION PLAN SCALE : 1 : 40 01 EL 34 RACING Z @ SEKSYEN 51A, 46100 DESIGN
IMPORTANT

ACRYLIC LETTER SIGNAGE IN SEL. WHITE POWDER COATED FIN. TO DESIGNER APPROVAL 30MM THK. FIXED CLEAR TEMPERED GLASS. CORRUGATED PANEL IN SEL. POWDER COATED FIN TO DESIGNER APPROVAL.

ACRYLIC LETTER SIGNAGE IN SEL. BLACK POWDER COATED FIN. 30MM THK. FIXED CLEAR TEMPERED GLASS. STAINLESS STEEL PANEL IN SEL. POWDER COATED FIN.

ACRYLIC LETTER SIGNAGE IN SEL. BLACK POWDER COATED FIN. 30MM THK. FIXED CLEAR TEMPERED GLASS. STAINLESS STEEL PANEL IN SEL. POWDER COATED FIN.

ACRYLIC LETTER SIGNAGE IN SEL. WHITE POWDER COATED FIN. TO DESIGNER APPROVAL CORRUGATED PANEL IN SEL. POWDER COATED FIN TO DESIGNER APPROVAL.

'' STAFF ONLY '' " COUNTER '' '' THE BEST IS YET TO COME '' RACING Z-TYRE SERVICE (PJ) SDN. BHD. '' VROOM VROOM '' TIME TO GO FOR A RIDE XXX BRAKE SDN. BHD. '' BRANDED '' OPENING 2325 75 75 2325 75 75 1115 235 50 925 75 CH 3665MM F.F.L 1 2 3 4 5 6 PROJECT NO DRAWING NO : REVISION NO DRAWN BY CHECKED BY DATE SCALE DRAWING TITLE : PROPOSED INTERIOR RENOVATION WORKS FOR RACING-Z TYRE SERVICE ( PJ ) SDN BHD 26/09/2020 AS SHOWN LEE NING ELEVATION L & M IMPORTANT NOTE: ALL DIMENSIONS SHALL BE VERIFIED ON SITE BY CONTRACTOR PRIOR TO CONSTRUCTION AND WHEN REQUIRED. ELEVATION
: 1 : 45 01 EL
E SCALE
35 RACING Z @ SEKSYEN 51A, 46100 DESIGN
EXISTING STORE ROOM EXISTING DB ROOM OFFICE 1 NO TRESPASSING 102 102 50 50 75 1 2 3 4 5 6 PROJECT NO DRAWING NO : REVISION NO DRAWN BY CHECKED BY DATE SCALE DRAWING TITLE : PROPOSED INTERIOR RENOVATION WORKS FOR RACING-Z TYRE SERVICE ( PJ ) SDN BHD 26/09/2020 AS SHOWN LEE NING OFFICE 1 ELEVATION F & G IMPORTANT NOTE: ALL DIMENSIONS SHALL BE VERIFIED ON SITE BY CONTRACTOR PRIOR TO CONSTRUCTION AND WHEN REQUIRED. ELEVATION F SCALE : 1 : 30 01 EL ELEVATION G SCALE : 1 : 30 01 EL CORRUGATED PANEL IN SEL. POWDER COATED FINISH. EXISTING WINDOW 75MM THK. BOX UP PANEL BOX UP PANEL TO DESIGNER
50MM
KEY PLAN
36 RACING Z @ SEKSYEN 51A, 46100 DESIGN
APPROVAL
THK. LINING TO DESIGNER APPROVAL 60MM THK. PAINT TO DESIGNER APPROVAL 650MM WIDTH CONCEALED DOOR
WHITE COLOUR STICKER TO DESIGNER APPROVAL

235MM (W) OPENING 50MM THK. COUNTER TOP

EXISTING STORE ROOM EXISTING DB ROOM OFFICE 1 OPENING 200 200 300 0 1078 400 1078 400 539 539 539 539 50 50 2400 100 1000 85 75 3378 75 1350 75 75 2295 900 350 50 50 100 600 85 75 1 2 3 4 5 6 PROJECT NO DRAWING NO : REVISION NO DRAWN BY CHECKED BY DATE SCALE DRAWING TITLE : PROPOSED INTERIOR RENOVATION WORKS FOR RACING-Z TYRE SERVICE ( PJ ) SDN BHD 26/09/2020 AS SHOWN LEE NING OFFICE 2 ELEVATION H & I IMPORTANT NOTE: ALL DIMENSIONS SHALL BE VERIFIED ON SITE BY CONTRACTOR PRIOR TO CONSTRUCTION AND WHEN REQUIRED. ELEVATION H SCALE : 1 : 30 01 EL ELEVATION I SCALE : 1 : 30 01 EL CORRUGATED
KEY PLAN
37 RACING Z @ SEKSYEN 51A, 46100 DESIGN
PANEL IN SEL. POWDER COATED FINISH. 20MM THK. CLEAR TEMPERED GLASS 75MM THK. SKIRTING IN SEL. POWDER COATED FINISH. CORRUGATED PANEL IN SEL. POWDER COATED FINISH 20MM THK. CLEAR TEMPERED GLASS 75MM THK. SKIRTING IN SEL. POWDER COATED FINISH
OFFICE 2 ADJ ADJ ADJ ADJ ADJ ADJ ADJ ADJ ADJ ADJ ADJ ADJ ADJ ADJ OPENING OPENING OPENING 560 470 470 470 270 266 402 402 419 419 402 402 ADJ ADJ ADJ 560 470 470 470 270 266 75 75 900 2220 1 2 3 4 5 6 PROJECT NO DRAWING NO : REVISION NO DRAWN BY CHECKED BY DATE SCALE DRAWING TITLE : PROPOSED INTERIOR RENOVATION WORKS FOR RACING-Z TYRE SERVICE ( PJ ) SDN BHD 26/09/2020 AS SHOWN LEE NING OFFICE 2 ELEVATION J & K IMPORTANT NOTE: ALL DIMENSIONS SHALL BE VERIFIED ON SITE BY CONTRACTOR PRIOR TO CONSTRUCTION AND WHEN REQUIRED. ELEVATION J SCALE : 1 : 30 01 EL ELEVATION K SCALE : 1 : 30 01 EL CORRUGATED PANEL IN SEL. POWDER COATED FINISH. 20MM THK. CLEAR TEMPERED GLASS 75MM THK. SKIRTING IN SEL. POWDER COATED FINISH. WALL FINISHES TO DESIGNER APPROVAL 470MM HT. OPENING CONCEALED WARM ORANGE LED KEY PLAN CABINET DOOR FINISHED TO DESIGNER APPROVAL 600MM (W). BOX UP 600MM (W) CABINET 38 RACING Z @ SEKSYEN 51A, 46100 DESIGN
OFFICE 2 1350 2030 BOX UP ADJ ADJ ADJ OPENING OPENING DRAWER DRAWER DRAWER BOX UP 2100 50 50 1 2 3 4 5 6 PROJECT NO DRAWING NO : REVISION NO DRAWN BY CHECKED BY DATE SCALE DRAWING TITLE : PROPOSED INTERIOR RENOVATION WORKS FOR RACING-Z TYRE SERVICE ( PJ ) SDN BHD 26/09/2020 AS SHOWN LEE NING OFFICE 2 ELEVATION L & M IMPORTANT NOTE: ALL DIMENSIONS SHALL BE VERIFIED ON SITE BY CONTRACTOR PRIOR TO CONSTRUCTION AND WHEN REQUIRED. ELEVATION L SCALE : 1 : 30 01 EL ELEVATION M SCALE : 1 : 30 01 EL WALL DESIGN TO DESIGNER APPROVAL CORRUGATED PANEL IN SEL. POWDER COATED FINISH 20MM THK. CLEAR TEMPERED GLASS 75MM THK. SKIRTING IN SEL. POWDER COATED FINISH KEY PLAN WALL PAINT TO DESIGNER APPROVAL 600MM (W) BOX UP 39 RACING Z @ SEKSYEN 51A, 46100 DESIGN
WAITING ROOM 50 50 BOX UP OPENING OPENING OPENING OPENING BOX UP " SNEAKER '' 500 500 500 500 500 Racing Z 1 2 3 4 5 6 PROJECT NO DRAWING NO : REVISION NO DRAWN BY CHECKED BY DATE SCALE DRAWING TITLE : PROPOSED INTERIOR RENOVATION WORKS FOR RACING-Z TYRE SERVICE ( PJ ) SDN BHD 26/09/2020 AS SHOWN LEE NING WAITING ROOM ELEVATION N & O IMPORTANT NOTE: ALL DIMENSIONS SHALL BE VERIFIED ON SITE BY CONTRACTOR PRIOR TO CONSTRUCTION AND WHEN REQUIRED. ELEVATION N SCALE : 1 : 30 01 EL ELEVATION O SCALE : 1 : 30 01 EL WALL DESIGN TO DESIGNER APPROVAL WHITE LETTER SIGNAGE CONCEALED LED IN WARM ORANGE 75MM THK.BOARDER LINING IN SEL. POWDER COATED FINISH KEY PLAN WALL FINISHES TO DESIGNER APPROVAL 75MM THK. SKIRTING IN SEL. POWDER COATED FINISH 75MM THK. CORRUGATED PANEL 30MM THK. SLIDING MIRROR GLASS DOOR 40 RACING Z @ SEKSYEN 51A, 46100 DESIGN
WAITING ROOM 1000 50 50 BOX UP OPENING OPENING OPENING OPENING BOX UP 2795 55 2325 75 75 75 75 75 75 75 75 75 75 30 30 30 30 2048 50 2048 1 2 3 4 5 6 PROJECT NO DRAWING NO : REVISION NO DRAWN BY CHECKED BY DATE SCALE DRAWING TITLE : PROPOSED INTERIOR RENOVATION WORKS FOR RACING-Z TYRE SERVICE ( PJ ) SDN BHD 26/09/2020 AS SHOWN LEE NING WAITING ROOM ELEVATION P & Q IMPORTANT NOTE: ALL DIMENSIONS SHALL BE VERIFIED ON SITE BY CONTRACTOR PRIOR TO CONSTRUCTION AND WHEN REQUIRED. ELEVATION P SCALE : 1 : 30 01 EL ELEVATION Q SCALE : 1 : 30 01 EL KEY PLAN CORRUGATED PANEL IN SEL. POWDER COATED FINISH 75MM THK. CORRUGATED PANEL 30MM THK. SLIDING MIRROR GLASS DOOR CONCEALED LED IN WARM ORANGE 75MM SKIRTING IN SEL POWDER COATED FINISH 75MM THK.SKIRTING 30MM THK. SLIDING MIRROR GLASS DOOR 20MM THK. CLEAR TEMPERED GLASS 41 RACING Z @ SEKSYEN 51A, 46100 DESIGN
OFFICE 3 50 50 BOX UP OPENING OPENING OPENING OPENING 50 BOX UP OPENING OPENING OPENING OPENING BOX UP 75 ADJ ADJ ADJ ADJ ADJ ADJ 560 470 470 470 270 266 ADJ ADJ OPENING OPENING OPENING 50 600 50 1007 1007 50 BOX UP 75 30 30 30 30 ADJ ADJ ADJ 560 470 470 470 270 266 1 2 3 4 5 6 PROJECT NO DRAWING NO : REVISION NO DRAWN BY CHECKED BY DATE SCALE DRAWING TITLE : PROPOSED INTERIOR RENOVATION WORKS FOR RACING-Z TYRE SERVICE ( PJ ) SDN BHD 26/09/2020 AS SHOWN LEE NING WAITING ROOM ELEVATION R & S IMPORTANT NOTE: ALL DIMENSIONS SHALL BE VERIFIED ON SITE BY CONTRACTOR PRIOR TO CONSTRUCTION AND WHEN REQUIRED. ELEVATION R SCALE : 1 : 30 01 EL ELEVATION S SCALE : 1 : 30 01 EL KEY PLAN CORRUGATED PANEL IN SEL. POWDER COATED FINISH 30MM THK. SLIDING MIRROR GLASS DOOR CONCEALED LED IN WARM ORANGE 75MM SKIRTING IN SEL POWDER COATED FINISH CONCEALED LED IN WARM ORANGE CABINET FINISH TO DESIGNER APPROVAL WALL FINISH TO DESIGNER APPROVAL 42 RACING Z @ SEKSYEN 51A, 46100 DESIGN
OFFICE 3 50 50 BOX UP OPENING OPENING OPENING OPENING 50 BOX UP OPENING OPENING OPENING OPENING BOX UP 75 50 BOX UP 873 1000 75 75 30 30 30 30 ADJ ADJ ADJ 560 470 470 470 270 266 1 2 3 4 5 6 PROJECT NO DRAWING NO : REVISION NO DRAWN BY CHECKED BY DATE SCALE DRAWING TITLE : PROPOSED INTERIOR RENOVATION WORKS FOR RACING-Z TYRE SERVICE ( PJ ) SDN BHD 26/09/2020 AS SHOWN LEE NING WAITING ROOM ELEVATION T & U IMPORTANT NOTE: ALL DIMENSIONS SHALL BE VERIFIED ON SITE BY CONTRACTOR PRIOR TO CONSTRUCTION AND WHEN REQUIRED. ELEVATION T SCALE : 1 : 30 01 EL ELEVATION U SCALE : 1 : 30 01 EL KEY PLAN CORRUGATED PANEL IN SEL. POWDER COATED FINISH 30MM THK. SLIDING MIRROR GLASS DOOR CONCEALED LED IN WARM ORANGE 75MM SKIRTING IN SEL POWDER COATED FINISH 75MM THK. SKIRITNG IN SEL. POWDER COATED FINISH 20MM THK. CLEAR TEMPERED GLASS 30MM THK. SLIDING MIRROR GLASS FOOR 43 RACING Z @ SEKSYEN 51A, 46100 DESIGN
2000 620 50 50 50 50 OPENING 50150 800 50 800 50 280 250 40 555 555 40 700 2000 620 1 2 3 4 5 6 PROJECT NO DRAWING NO : REVISION NO DRAWN BY CHECKED BY DATE SCALE DRAWING TITLE : PROPOSED INTERIOR RENOVATION WORKS FOR RACING-Z TYRE SERVICE ( PJ ) SDN BHD 26/09/2020 AS SHOWN LEE NING TYRE RACK ELEVATION V IMPORTANT NOTE: ALL DIMENSIONS SHALL BE VERIFIED ON SITE BY CONTRACTOR PRIOR TO CONSTRUCTION AND WHEN REQUIRED. ELEVATION V SCALE : 1 : 30 01 EL PLAN SCALE : 1 : 15 01 PL ITEM QTY TYRE RACK 11 ALL TYRE RACK DETAIL TO BE VERIFIED BY MANUFACTURER 44 RACING Z @ SEKSYEN 51A, 46100 DESIGN
2126 1532 180MM 500 510 650 500 650 510 2300 732 300 1 2 3 4 5 6 PROJECT NO DRAWING NO : REVISION NO DRAWN BY CHECKED BY DATE SCALE DRAWING TITLE : PROPOSED INTERIOR RENOVATION WORKS FOR RACING-Z TYRE SERVICE ( PJ ) SDN BHD 26/09/2020 AS SHOWN LEE NING WASHROOM IMPORTANT NOTE: ALL DIMENSIONS SHALL BE VERIFIED ON SITE BY CONTRACTOR PRIOR TO CONSTRUCTION AND WHEN REQUIRED. BLOW OUT WASHROOM SCALE : 1 : 20 01 PL YELLOW PAINT TO DESIGNER APPROVAL METAL PANEL TO ELEVATION DETAIL CONCRETE BASIN TO ELEVATION DETAIL 650MM WIDTH DOOR 45 RACING Z @ SEKSYEN 51A, 46100 DESIGN
2420 1245 3665 1532 2326 OPENING 2100 830 1500 320 1110 60 60 190 60 1082 " WASHROOM '' 150 1976 2930 180MM 1 2 3 4 5 6 PROJECT NO DRAWING NO : REVISION NO DRAWN BY CHECKED BY DATE SCALE DRAWING TITLE : PROPOSED INTERIOR RENOVATION WORKS FOR RACING-Z TYRE SERVICE ( PJ ) SDN BHD 26/09/2020 AS SHOWN LEE NING ELEVATION W,X IMPORTANT NOTE: ALL DIMENSIONS SHALL BE VERIFIED ON SITE BY CONTRACTOR PRIOR TO CONSTRUCTION AND WHEN REQUIRED. ELEVATION W SCALE : 1 : 30 01 EL KEY PLAN SECTION ELEVATION X SCALE : 1 : 30 01 SE RECTANGULAR HOLLOW SECTION ALUMINUM IN BLACK POWDER COATED FINISH ACRYLIC LETTER SIGNAGE IN WHITE POWDER COATED FIN 46 RACING Z @ SEKSYEN 51A, 46100 DESIGN
250 150 300 ''wash your hands'' 250 250 150 300 250 120 330 50 VOID 60 2220 60 460 540 20 550 20 550 20 540 2930 1980 1980 2930 180MM 250 150 300 250 120 330 50 1980 2930 60 60 190 60 1 2 3 4 5 6 PROJECT NO DRAWING NO : REVISION NO DRAWN BY CHECKED BY DATE SCALE DRAWING TITLE : PROPOSED INTERIOR RENOVATION WORKS FOR RACING-Z TYRE SERVICE ( PJ ) SDN BHD 26/09/2020 AS SHOWN LEE NING ELEVATION Y IMPORTANT NOTE: ALL DIMENSIONS SHALL BE VERIFIED ON SITE BY CONTRACTOR PRIOR TO CONSTRUCTION AND WHEN REQUIRED. ELEVATION Y SCALE : 1 : 25 01 EL KEY PLAN 30MM THK. MIRROR W CONCEALED LED STICKER LETTERING IN WHITE RECTANGULAR HOLLOW SECTION IN BLACK POWDER COATED FINISH 47 RACING Z @ SEKSYEN 51A, 46100 DESIGN
1980 600 350 1358 100 1363 3020 2930 180MM 1 2 3 4 5 6 PROJECT NO DRAWING NO : REVISION NO DRAWN BY CHECKED BY DATE SCALE DRAWING TITLE : PROPOSED INTERIOR RENOVATION WORKS FOR RACING-Z TYRE SERVICE ( PJ ) SDN BHD 26/09/2020 AS SHOWN LEE NING ELEVATION Z
ALL DIMENSIONS SHALL BE VERIFIED ON SITE BY CONTRACTOR
TO CONSTRUCTION AND WHEN REQUIRED. ELEVATION Z SCALE : 1 : 25 01 EL KEY PLAN EXISTING WINDOW WALL FINISH TO DESIGNER APPROVAL 48 RACING Z @ SEKSYEN 51A, 46100 DESIGN
IMPORTANT NOTE:
PRIOR

HIKMAT DUTA SDN BHD OFFICE @ SEMENYIH, 43500

A renovation for Hitmat Duta, consist two floors. Floor Layout plan, 3D design and render required for this project.

49
INTERIOR - ENTRANCE
OFFICE 1 OFFICE 2 OFFICE 3 OFFICE 4 MANAGER OFFICE 1 CONFERENCE ROOM MANAGER OFFICE 2 MANAGER OFFICE 3 ADMIN DEPARTMENT PURCHASING DEPARTMENT PURCHASING MANAGER SURAU 50 HIKMAT DUTA SDN BHD OFFICE @ SEMENYIH, 43500 DESIGN
ACCOUNT OFFICE DIRECTOR ROOM 2 DIRECTOR ROOM 3 QS MANAGER ROOM QS OFFICE DIRECTOR ROOM 1 ACCOUNT MANAGER HR MANAGER 51 HIKMAT DUTA SDN BHD OFFICE @ SEMENYIH, 43500 DESIGN
52
Working Space HIKMAT DUTA SDN BHD OFFICE @ SEMENYIH, 43500 DESIGN
Entrance
53
Rest Space HIKMAT DUTA SDN BHD OFFICE @ SEMENYIH, 43500 DESIGN
Printing Space
54 Office 1 Office 2 HIKMAT DUTA SDN BHD OFFICE @ SEMENYIH, 43500 DESIGN

RIVAL PHYSIO @ PETALING

JAYA, 47810

A Rival Physio Centre at Wisma Bentley Music, Mutiara Damansara. 3D design and render required for this project.

55
INTERIOR - MAIN HALL AREA
1 2 3 4 5 6 A B C D E F G H I 31347 4277 4140 687 10594 927 2595 3712 4415 18905 2514 2084 2847 3826 7734 LOCKER LOCKER FEMALE TOILET MALE TOILET PANTRY AREA ROOM 3 RECEPTION AREA ENTRANCE OFFICE ROOM 1 ROOM 2 MAIN HALL AREA WATT BIKE RUNNING MACHINE KEISER MACHINE MAKEUP AREA TANKSTANKS TANKS 4876 5949 MAKEUP AREA BENCH W/STORAGE BENCH W/ STORAGE 4127 2478 2453 2503 1215 1215 1272 1322 1272 1224 1810 307 333 1049 950 100 2445 1780 764 2812 950 2210 950 1243 800 138 1718 607 252 1781 859 1781 859 820 1781 890 800 800 800 859 1757 859 1511 1757 800 800 800 200 FP SCALE 1: 120 FURNITURE LAYOUT PLAN PROJECT TITLE: DRAWING TITLE: SCALE: DRAWN BY: DATE: CLIENT NAME: AS SHOWN CHRISTINE CHECKED BY: DRAWING NO: FURNITURE LAYOUT PLAN REVISIONS DATE AMENDMENTS (SIGNATURE) NAME: DATE: (COMPANY NAME & CHOP) THIS DRAWING IS AGREED & CONFIRMED AS PER INDICATED 30 JUNE 2020 RIVAL PHYSIO NOTE* DIMENSIONS MAY DIFFER SLIGHTLY AFTER FABRICATION 56 RIVAL PHYSIO @ PETALING JAYA, 47810 DESIGN
57
Main Hall Area
RIVAL PHYSIO @ PETALING JAYA, 47810 DESIGN
Main Hall Area
58
Main Hall Area Reception Area
RIVAL PHYSIO @ PETALING JAYA, 47810 DESIGN
Reception Area

Changing Room 01

59
RIVAL PHYSIO @ PETALING JAYA, 47810 DESIGN
Changing Room 02

PHOMI MALAYSIA GROUP @ KUALA LUMPUR, 56000

This is a bathroom tiles desing project. Helping Phomi Malaysia Group to promote their tiles by makeover selected bathroom.

60
TOILET INTERIOR - TILES DESIGN
61
03 PHOMI MALAYSIA GROUP @ KUALA LUMPUR, 56000 DESIGN
Toilet
Tiles Render 01 Toilet Tiles Render 02 Toilet Tiles Render
62
Tiles Render 04
Tiles Render 05 PHOMI MALAYSIA GROUP @ KUALA LUMPUR, 56000 DESIGN
Toilet
Toilet

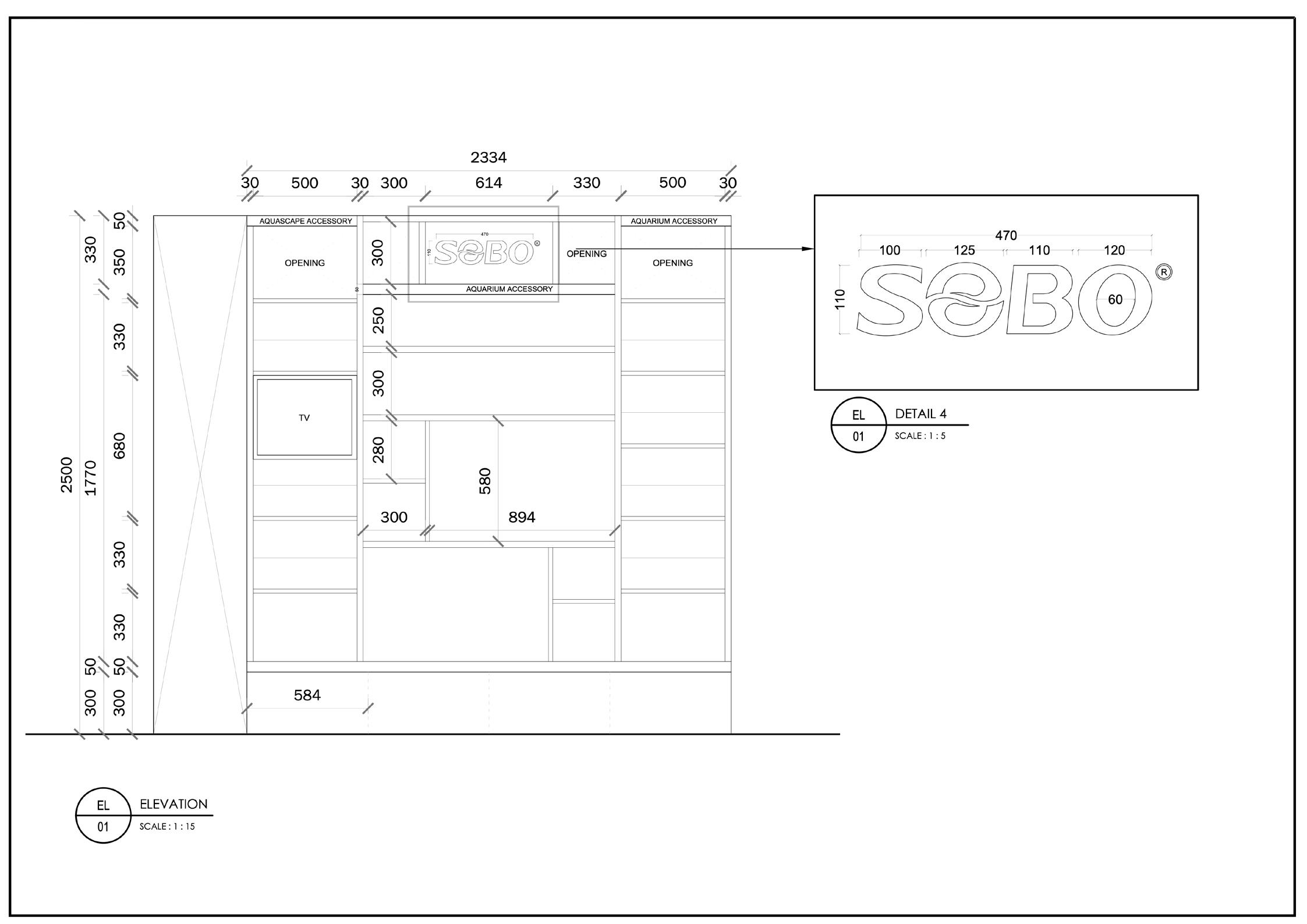
BIG AQUARIUM @ SUNWAY DAMANSARA , 47810

Helping BIG Aquarium and Vanotech to design thier new shop lot located at Sunway Damansara. Vanotech taking the corner of the lot while BIG Aquarium took the centre. This project started from scratch - facade design, exterior, interior and office.

63
FACADE
64
Facade Frontage
BIG AQUARIUM @ SUNWAY DAMANSARA , 47810 DESIGN
Facade Side Elevation
65 BIG AQUARIUM @ SUNWAY DAMANSARA , 47810 DESIGN
66 BIG AQUARIUM @ SUNWAY DAMANSARA , 47810 DESIGN
67 BIG AQUARIUM @ SUNWAY DAMANSARA , 47810 DESIGN
Racks Design
68 BIG AQUARIUM @ SUNWAY DAMANSARA , 47810 DESIGN
Portable Trolley Portable Trolley
69 BIG AQUARIUM @ SUNWAY DAMANSARA , 47810 DESIGN
70
Office - Reception
BIG AQUARIUM @ SUNWAY DAMANSARA , 47810 DESIGN
Office - Reception
71
Office - Reception
BIG AQUARIUM @ SUNWAY DAMANSARA , 47810 DESIGN
Office - Working desk
72
Office - Working desks
BIG AQUARIUM @ SUNWAY DAMANSARA , 47810 DESIGN
Office - Working Desks

JINGDIAO

BOOTH DESIGN @ MITEC , KL

This project helps JINGDIAO Metaltech grouop to design exhibition booth at MITEC, KL.

73
EXHIBITION BOOTH DESIGN
74 JINGDIAO BOOTH DESIGN @ MITEC , KL DESIGN
75 JINGDIAO BOOTH DESIGN @ MITEC , KL DESIGN
76 JINGDIAO BOOTH DESIGN @ MITEC , KL DESIGN
77 JINGDIAO BOOTH DESIGN @ MITEC , KL DESIGN

PLUS XNERGY BOOTH DESIGN @ KL

This project design kiosk booth for PLUS XNERGY.

78
EXHIBITION BOOTH DESIGN
79 PLUS XNERGY BOOTH DESIGN @ KL DESIGN
80 PLUS XNERGY BOOTH DESIGN @ KL DESIGN

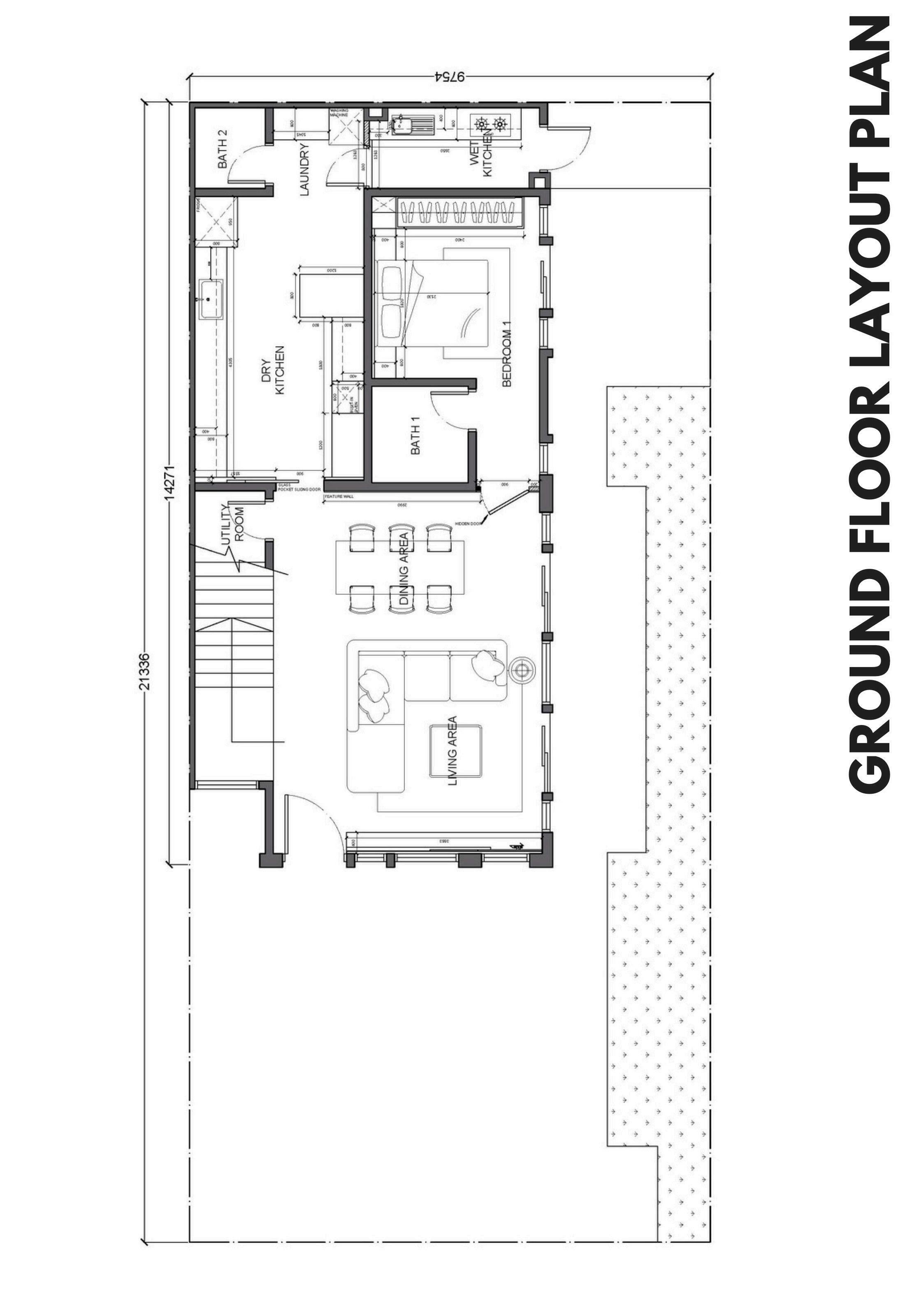
INTERIOR DESIGN @ TAMAN ECO BOTANI, JOHOR

Interior design for residential housing at Johor, including floorplan layout, built-in furniture plan and 3D render.

81
RESIDENTIAL INTERIOR DESIGN
82 INTERIOR DESIGN @ TAMAN ECO BOTANI, JOHOR DESIGN
83 INTERIOR DESIGN @ TAMAN ECO BOTANI, JOHOR DESIGN
84 INTERIOR DESIGN @ TAMAN ECO BOTANI, JOHOR DESIGN
85 INTERIOR DESIGN @ TAMAN ECO BOTANI, JOHOR DESIGN
86 INTERIOR DESIGN @ TAMAN ECO BOTANI, JOHOR DESIGN
87 INTERIOR DESIGN @ TAMAN ECO BOTANI, JOHOR DESIGN
88 INTERIOR DESIGN @ TAMAN ECO BOTANI, JOHOR DESIGN
89 INTERIOR DESIGN @ TAMAN ECO BOTANI, JOHOR DESIGN

SHOWROOM DESIGN @ WISMA KING KOIL

Interior design for Ideal Standard group›s showroom. Work included layout plan and 3D rendering.

90
INTERIOR - SHOWROOM DESIGN
91 SHOWROOM DESIGN @ WISMA KING KOIL DESIGN
92 SHOWROOM DESIGN @ WISMA KING KOIL DESIGN
93 SHOWROOM DESIGN @ WISMA KING KOIL DESIGN
94 SHOWROOM DESIGN @ WISMA KING KOIL DESIGN
95 SHOWROOM DESIGN @ WISMA KING KOIL DESIGN
96 SHOWROOM DESIGN @ WISMA KING KOIL DESIGN
97 SHOWROOM DESIGN @ WISMA KING KOIL DESIGN

INTERIOR AND EXTERIOR DESIGN @ TMN GAN SWEE CHOO DETACHED HOUSE

This project included floor layout plan and 3D rendering for interior and exterior.

98
EXHIBITION AND INTERIOR RESIDENTIAL
99 INTERIOR AND EXTERIOR DESIGN @ TMN GAN SWEE CHOO DETACHED HOUSE DESIGN
100 INTERIOR AND EXTERIOR DESIGN @ TMN GAN SWEE CHOO DETACHED HOUSE DESIGN
101 INTERIOR AND EXTERIOR DESIGN @ TMN GAN SWEE CHOO DETACHED HOUSE DESIGN
102 INTERIOR AND EXTERIOR DESIGN @ TMN GAN SWEE CHOO DETACHED HOUSE DESIGN
103 INTERIOR AND EXTERIOR DESIGN @ TMN GAN SWEE CHOO DETACHED HOUSE DESIGN
104 INTERIOR AND EXTERIOR DESIGN @ TMN GAN SWEE CHOO DETACHED HOUSE DESIGN
105 INTERIOR AND EXTERIOR DESIGN @ TMN GAN SWEE CHOO DETACHED HOUSE DESIGN
106 INTERIOR AND EXTERIOR DESIGN @ TMN GAN SWEE CHOO DETACHED HOUSE DESIGN

THANK YOU

e: ning.lee.21@ucl.ac.uk / leening08@gmail.com

Turn static files into dynamic content formats.

Create a flipbook
Issuu converts static files into: digital portfolios, online yearbooks, online catalogs, digital photo albums and more. Sign up and create your flipbook.