Architecture Portfolio_ Leen Ksebati_ 2023

Page 1

ARCHITECTURE PORTFOLIO LEEN KSEBATI LEEN KSEBATI SELECTED WORKS 2016 Address: Toronto, ON, Canada Mobile: +1 (647) 530-5593 Email: leen.ksebati@yahoo.com

LOCAL EXPERIENCE

01

SIMCO MID-RISE

Toronto 2021

Plot Area: 1539 sqm

Role: Intern Architect

Applications: Rezoning application

Responsibilities:

- Prepared schematic plans & elevations for client review.

- Prepared massing & 3d views for client review.

- Coordinated with rendering consultant.

- Prepared demolition set.

- Prepared coordination sets with civil, traffic & landscape consultants.

- Prepared complete rezoning set for city approval.

- Coordinated rezoning set with engineering consultants.

- Envelope study for different types of wall assemblies for window wall system.

GROUND FLOOR/ SITE PLAN

RESIDENTIAL / RENOVATION
A & ARCHITECTS INC. 01
Existing Building

35 DIVISION MID-RISE

Toronto 2021

Plot Area: 1426.32 sqm

Role: Intern Architect

Applications: Rezoning application

Responsibilities:

- Prepared schematic plans & elevations for client review.

- Prepared massing & 3d views for client review.

- Coordinated with rendering consultant.

- Prepared coordination sets with civil, traffic & landscape consultants.

- Prepared complete rezoning set for city approval.

- Coordinated rezoning set with engineering consultants.

- Envelope study for different types of wall assemblies for window wall system.

RESIDENTIAL / COMMERCIAL
GROUND FLOOR/ SITE PLAN A & ARCHITECTS INC. 02

RESIDENTIAL / COMMERCIAL

SHEPPARED AVENUE MID-RISE

Plot Area: 1426.32 sqm

Role: Intern Architect

Applications: Building permit - Working Drawings

Responsibilities:

- Converted SPA autocad drawings into revit to produce working drawings.

- Assisted in OBC study and assisted in coordination with consultant.

- Assisited in coordination with mechanical and electrical consultants.

- Assisted in coordination with landscape consultants.

- Envelope study for different types of wall assemblies of window wall system.

- Draw plan details and section details.

03 FD FD--A404 4a 1a 1b 3a 3b PJa PGa PCa PB PB PC PC PD PE PF PG PH P1 P6 P7 P9 P10 P10 P12 P12 P2 P3 A C D E 12 17 P8 2b 14 Cx PFa P11 P11 A5-01 1' A5-01 8 A6-02 10 A6-02 10 A6-03 195.900 A7-02 ELEVATOR ELEVATOR F.F.E. No. ELEVATOR No. EXIT "A" 1STA EXIT STAIR 1STB EXIT "C" EXIT "D" VAULT 125 RETAIL WASTE STORAGE 117 ENTRY 101 196.050 EXIT CORRIDOR 139 PET WASH FITNESS ROOM 123 CONCIERGE RESIDENTIAL ENTRY RETAIL ENTRY GAS METER 6 P4 PDa PHa PFb PFb PDb 3 STORAGE 104 LONG TERM BICYCLE PARKING 119 129 MEETING RM #2 CACF ROOM MOVING ROOM (VESTIBULE) 108 RES. GARBAGE 109 BULKY ITEMS ROOM 114 MAIL CANADA POST 106 JANITOR'S CLOSET 118 UNIVERSAL WC 113 VESTIBULE 127 COFFEE 130 SEATING AREA 131 OFFICE 135 MULTIPURPOSE ROOM 137 RESIENTIAL LOBBY 102 ELEV LOBBY SEATING AREA 140 117 134a 127b 128 1STD INTERCOM /DIRECTORY 120 5 5 0 6 6 0 6 P6a P6b By F G Ax Bx 13 15 10 16 P 11 5 SLO @ 5% TOS 195.900 195.900 195.820 195.900 195.900 195.860 195.860 195.600 195.350 196.050 195.650 TOS TOS TC 195.960 BC 195.930 TC BC 195.780 TC 195.940 BC 195.350 TOS 195.050 195.810 195.950 BC 195.850 TC BC 195.350 195.350 TOS BW 195.760 BW 195.800 BC BC TC 195.640 AD AD 13m (L) 4m (W) 6.1m (H) 1 A7-02 A7-02 19.9m @ 15% 150 HT 116 195.750 195.600 195.650 195.800 SLOPE N 5 m @ 5% DUFFERIN ST SHEPPARD AVE. WEST A7-03 196.050 4 SIAMESE CONNECTION 6 A6-04 195.641 OPENING SANITARY CONTROL MH ACCESS SAMPLING PROPOSED TTC PAVILLION WALL REMOVAL LINE OF UNIT PERIMETER AMENITY TERRACE ABOVE MTL GATE & FENCE, REFER TO LANDSCAPE GRABAGE CHUTE 2ND CANOPY RAIN WATER LEADER CANOPY RAIN WATER LEADER CANOPY RAIN WATER LEADER CANOPY RAIN WATER LEADER LINE OF CANOPY ABOVE LINE OF CANOPY ABOVE FOR ACOUSTIC FLOORING PR ER E PROPERTY LINE OPER LIN RO R O P L N OP N LA S O ON ED O HE ROUGH-IN PLUMBING ONLY ROUGH-IN PLUMBING ONLY 103 3 4 6 7 5 0 4 195.975 FF 196.050 FIREFIGHTER ENTRANCE 1 OPEUP 0 0 PROPOSED HYDRANT SIAMESE CONNECTIO EXISTING HYDRANT -OH WC 111 ROOM MECH CLOSET LIBRARY/ 120 STAIR "C" 1STC MECH CLOSET 121 122 WC WC 126 MECH CLOSET 132 MECH CLOSET MECH CLOSET 196.050 DOUBLE STACKED (24 SPACES) 1.5 HR. FIRE SHUTTER ON FUSIBLE LINK WINDOW SPRINKLER TC AAMTL FENCE, REFER TO LANDSCAPE VESTIBULE 115 JANITOR CLOSET 110 118 PARCEL LOCKERS (10 UNITS) CS01 V01 195.800 AC1 AC2 AC2 AC2 AC2 AC2 AC2 AC1 AC1 AC1 MAINTENANCE MH ACCESS 5 A7-03 HANDS FREE ENTERPHONE HANDS FREE ENTERPHONE PEDESTAL MOUNT ARM GATES C M CONVEX MIRROR SLAB DRAIN FH 195.800 SHAFT AIR INTAKE SHAFT PFb DRAIN N Drawing Title Project drawing, and all associated documents are instruments servic the Architect. The drawing, and the information contained therein, may not be reproduced whole part without prior written permission the Architect. the property the Architect. Architect bears no responsibility for the interpretation of the documents by the Contractor. pon written application the Architect will provide written/graphic clarification supplementary regarding the intent the Contract Documents. The Architect will review Shop Drawings submitted by the Contractor for design conformance only. Drawings are not scaled construction. The Contractor verify all existing conditions and dimensions required the work and report and discrepancie with the Contract Documents the Architect before commencing any work. Positions exposed finishes for mechanical or electrical devised, fitting and fixtures are indicated on architectural The location shown the architectural drawing govern over the mechanical and electrical drawings Those items not clearly cated These drawings are not to be used construction unless oted work be carried out conformance with the Code and Bylaws the Authorities having jurisdiction. The Architect these plans and specifications gives no warranty representation any party bout the constructability th building(s) represented by them. contractors or subcontractors must satisfy themselves when dding and all times ensure they can properly construct the work represented these plans GREENWIN 1050 SHEPPARD AVE. LEVEL 01 FLOOR PLAN SITE PLAN PERMIT A2-03 S 1 0 LEVEL 01 FLOOR PLAN1 GENERAL TYPICAL FLOOR NOTES TD J K PGb S T L15-02 9' 0" 11' 0" 10'0" 3'8" 5' 10" 9' 0" 5' 0" 8' 3" 9'11" LIVING BEDROOM TERRACE KITCHEN ISLAND (2'X4') BATH W/D QUEEN QUEEN 3' 1" P4.1a P4.3a P5.2e P4.1a P4.1a P4.3a P4.4a P5.2e P5.2e P5.2e P4.1a P5.2e P4.3a P4.1a P5.2e P5.4a P5.1a P5.1a P5.1a P5.2e P4.4a P4.1a S1506 S1507 A3 A3 A2 A3 A2 CL1 A0 P12 17 PHa 16 202.550 T.O.S. T.O.S. T.O.C. T.O.C. T.O.C. 201.700 T.O.C. 202.165 202.600 T.O.C. T.O.C. T.O.C. T.O.S. 225 201.950 REFER TO REFER TO NOTE REFER TO T.O.C. T.O.S. 325 7501575 201.700 201.700 T.O.C. T.O.C. T.O.C. 201.450 201.450 201.150 T.O.C. 201.050 T.O.C. 201.400 COLUMN, WALL AND BEAM DETAILS AND SIZES. NOTIFY THE ARCHITECT OF ANY DISCREPANCIES BETWEEN STRUCTURAL SHAFT SIZE, OPENINGS AND DETAILS. CONTRACTORS TO CONFIRM STAIR LOCATIONS WITH PRECAST STAIR DETAILS. REFER TO GARBAGE CHUTE SHOP DRAWINGS SLEEVING AND OPENINGS TO BE COORDINATED WITH MECH/ELEC DWGS. REFER TO LANDSCAPE DRAWINGS FOR 10. REFER TO WINDOW WASHING SHOP DRAWINGS FOR CONCRETE EMBED LOCATIONS FOR ALL ANCHORS AND N Project Drawn by Checked by Project No. Date Drawing No. the Architect. The drawing, and the information contained therein, may reproduced whole part without prior written These Contract Documents the property Architect. The Architect bears responsibility for interpretation these regarding the intent the Contract Documents. The Architect review Shop Drawings submitted the Contractor for design Drawings scaled construction. The Contractor verify existing conditions and dimensions required perform Positions exposed finishes mechanical electrical will located directed Architect. The Architect these plans and specifications gives warranty representation any party about the constructability As indicated PROJECT ADDRESS 17-14 GREENWIN A9-06A 1050 SHEPPARD AVE. W. L2 SLAB EDGE NORTH DETAILED SUITE LAYOUT L2 SLAB EDGE PLAN GROUND FLOOR/ SITE PLAN
Toronto 2020 WALLMAN ARCHITECTS
Bx 9 METAL PANEL BELOW DOUBLE GLAZING IN PREFINISHED ALUM. FRAME. REFER TO WINDOW SCHEDULE DOUBLE GLAZING IN PREFINISHED ALUM. FRAME. REFER TO WINDOW SCHEDULE SPANDREL GLASS IN PREFINISHED ALUM. FRAME REFER TO WINDOW SCHEDULE STRUCTURAL CONCRETE COLUMN; AS PER STRUCTURAL DRAWINGS P5.1a P5.1a W3.1 SPRAY FOAM INSULATION INTERIOR (SUITE) EXTERIOR 8 10 W3.1 P5.1a W5.1 1 5 50 150 26 EDGE OF SLAB DOUBLE GLAZING IN PREFINISHED ALUM. FRAME. REFER TO WINDOW SCHEDULE GLASS SLIDING DOOR REFER TO WINDOW SCHEDULE SEALANT AND BACKER ROD; TYP. PREFINISHED METAL PANEL PREFINISHED METAL PANEL GLASS GUARDRAIL IN PREFINISHED ALUM. FRAME W5.1 WALL BELOW STRUCTURAL CONCRETE WALL INTERIOR (SUITE) EXTERIOR (BALCONY) EXTERIOR D 2 HR RATED FIRE STOP CONTINUOUS GYPSUM P3.3b P3.3b P5.2e P5.1a P5.1a SUITE CORRIDOR SUITE FILL CONCRETE TIE HOLES WITH MINERAL WOOL (TYPICAL WHERE APPLICABLE) (FIRE STOP TO MAINTAIN 2HR FIRE SEPARATION) ACOUSTIC SEALANT (TYP) ACOUSTIC SEALANT (TYP) SD TD SD TD SD TD SD SD SD SD SD TD SD TD TD TD TD TD TD TD TD TD TD TD TD TD TD TD TD TD FD A4-02 A403 1 A404 1 1a PA P12 P12 P3 A B C D E H J K L N Q R 1 2 12 17 14 M Cx 1 A5-02 1 A5-02 1 A5-01 1' A5-01 8 A0-05 8 A0-05 2 A6-03 11 A6-03 2 A7-02 P4 PDa PHa PGb 3 A7-02 3 A7-02 By F G O S S T U V Ax Bx 5 4 3 7 8 9 6 13 15 1575 100 8240 1670 8240 14 9 75 4 47 9 5 23 0 85 36 0 5 44 5 0 18 7 0 34 8 0 47 4 5 16 7 5 125 775 5745 2900 22 0 120 1200 466 1253751675 2963 3642 2650 190520305301820 3110 2000 902 3369 2831 1475 3725 1000 1400 2200 2600 6200 86 3806 4742 12 5 125 529 2815 2535 6400 6400 6400 2002 10 16 149 P 11 201.400 201.400 SUITE 214 2 BD SUITE 215 2 BD SUITE 216 2 BD SUITE 201 BD SUITE 202 1 BD SUITE 203 2 BD SUITE 204 1 BD SUITE 205 1 BD SUITE 206 1 BD SUITE 207 2 BD SUITE 208 2 BD SUITE 210 2 BD SUITE 211 2 BD SUITE 212 2 BD SUITE 213 2 BD CORRIDOR 201 EXIT STAIR "C" 2STC EXIT STAIR "D" 2STD 2STD 2STC ELEVATOR No. 2 ELEVATOR F.F.E. No. 1 ELEVATOR No. 3 1 A7-02 1 A7-03 SCUPPER DRAIN SCUPPER DRAIN RAISED GREEN ROOF PLANTE R RIVER STONE 202.600 TYPE "G" LOADING 13m (L) x 4m (W) x 6.1m (H) 4 A7-02 4 A7-02 6 A6-04 TOC +/4800 1 41 WC 206 JAN. CLST 205 BF WC 204 387 1600 GARBAGE DROP 203 CORRIDOR 201 ELEC CL 202 AMENITY TERRACE (REFER TO LANDSCAPE DWGS) AIR EXHAUST SHAFT FROM UNDERGROUND SMOKE SCREEN TO UNDERSIDE OF CONCRETE SLAB L01 CANOPY L01 CANOPY REFER TO A6-04 1945 19 4 4 L01 CANOPY REFER TO A6-04 HATCH AREA DENOTES 2790 HT FROM FINISHED FLOOR TO STRUCTURE ABOVE. PROPERTY L NE PROPERTY LINE PROPERTYLINE PROPERTY L NE PRO PER T Y L I N E PROPERTY LINE LANDS TO BE CONVEYED TO THE C TY 201.500 202.600 202.600 202.600 202.600 202.600 202.550 202.550 202.550 201.400 202.550 202.550 202.600 202.600 202.600 202.600 202.600 201.050 201.050 201.050 201.050 6 A7-02 SCUPPER DRAIN DISCHARGE TO CANOPY BELOW SCUPPER DRAIN DISCHARGE TO CANOPY BELOW 27081 1 795 34280 SCUPPER DRAIN DISCHARGE TO CANOPY BELOW SCUPPER DRAIN DISCHARGE TO CANOPY BELOW SCUPPER DRAIN DISCHARGE TO CANOPY BELOW SCUPPER DRAIN DISCHARGE TO CANOPY BELOW 1525 208b 207b 207a 1017 3 A7-03 R R R R R R R R R R R R 2 A7-03 FIRE SPRINKLER SIDELIGHT 1600 1600 201.400 T.O. SLAB 208c INDOOR AMENITY 208 208a A4- 1 2 A4-01 1 SCUPPER DRAIN REFER TO DETAIL A10-07 @ 201.250 ELEV SCUPPER DRAIN REFER TO DETAIL A10-07 @ 201.250 ELEV R R 800 200 R R A -03a 1 A4-03a 2 A403a 3 MECH CLOSET 209 5 A7-03 FHVC FIRE HOSE VALVE IN CABINET A4-02 1 A403 1 PA P12 P12 A B C D K L N Q R 12 17 14 M Cx 1 A5-02 1 A5-02 1' A5-01 8 A0-05 3 A6-03 P4 PDa PGb 3 A7-02 3 A7-02 By O S T U V Ax Bx 7 8 9 6 13 15 10 16 1575 100 8240 1670 8240 14 9 75 4 47 9 5 23 0 85 36 0 5 44 5 0 18 7 0 34 8 0 47 4 5 16 7 5 125 775 5745 2900 2200 1 0 1200 4 6 190520305301820 3110 2000 6400 6400 2013 P 11 204.550 204.550 EXIT STAIR "D" ELEVATOR F.F.E. No. 1 ELEVATOR No. 2 ELEVATOR No. 3 EXIT STAIR "C" 3STC 3STC SUITE 301 1 BD SUITE 302 1 BD SUITE 304 BD SUITE 305 2 BD SUITE 306 1 BD SUITE 307 1 BD SUITE 308 1 BD SUITE 309 2 BD SUITE 316 BD SUITE 317 2 BD SUITE 318 2 BD CORRIDOR 301 ELEC CL 302 GARBAGE DROP 303 DENOTES 2540 FINISHED FLOOR ABOVE. HATCH AREA DENOTES 2540 HT FROM FINISHED FLOOR TO STRUCTURE ABOVE. HATCH AREA DENOTES 2540 HT FROM FINISHED FLOOR TO STRUCTURE ABOVE. 16 0 0 R R R R R R R R R R A4-01 2 620 1050 A4-0 a 1 A4-03a 2 A403a 3 N Drawing Title No Issued For Date 2. These Contract Documents are the property of the Architect. The Architect bears no responsibility for the interpretation of these documents by the Contractor. Upon written application the Architect will provide written/graphic clarification or supplementary information regarding the intent of the Contract Documents. The Architect will review Shop Drawings submitted by the Contractor for design conformance only. 3. Drawings are not to be scaled for construction. The Contractor to verify all existing conditions and dimensions required to perform the work and report and discrepancies with the Contract Documents to the Architect before commencing any work. 4. Positions of exposed finishes for mechanical or electrical devised, fitting and fixtures are indicated on architectural drawings. The location shown on the architectural drawing govern over the mechanical and electrical drawings. Those items not clearly located will be located as directed by the Architect. 5. These drawings are not to be used for construction unless noted below as "Issued for Construction". 6. All work is to be carried out in conformance with the Code and Bylaws of the Authorities having jurisdiction. 7. The Architect of these plans and specifications gives no warranty or representation to any party about the constructability of the building(s) represented by them. All contractors or subcontractors must satisfy themselves when bidding and at all times ensure that they can properly construct the work represented by these plans. LEVEL 02 & 03 FLOOR PLAN A2-04 Sca e 1 100 LEVEL -02 FLOOR PLAN 3 A2-04 Sca e 1 : 100 LEVEL -03 FLOOR PLAN 4 1ISSUED FOR TENDER & BUILDING PERMIT 2020-09-21 STRUCTURAL DEMISING WALL @ CORRIDOR METAL PANEL CORNER AT BALCONY SPANDREL PANEL AT STRUCTURAL COLUMN (TYPICAL) LEVEL 2 FLOOR PLAN
N Drawing Title Project Scale Drawn by Checked by Project No. Date Drawing No. No Issued For Date Copyright of this drawing reserved by the Architect. The drawing, and all associated documents are instruments service by the Architect. The drawing, and the information contained therein, may not be reproduced whole or in part without prior written permission the Architect. These Contract Documents are the property of the Architect. The Architect bears no responsibility for the interpretation these documents by the Contractor. Upon written application the Architect will provide written/graphic clarification or supplementary information regarding the intent the Contract Documents. The Architect will review Shop Drawings submitted by the Contractor for design conformance only. Drawings are not to be scaled for construction. The Contractor verify all existing conditions and dimensions required to perform the work and report and discrepancies with the Contract Documents the Architect before commencing any work. Positions of exposed finishes for mechanical or electrical devised, fitting and fixtures are indicated on architectural drawings. The location shown on the architectural drawing govern over the mechanical and electrical drawings. Those items not clearly located will be located directed by the Architect. These drawings are not be used for construction unless noted below as "Issued for Construction". All work be carried out conformance with the Code and Bylaws the Authorities having jurisdiction. The Architect of these plans and specifications gives no warranty representation any party about the constructability the building(s) represented by them. All contractors or subcontractors must satisfy themselves when bidding and at all times ensure that they can properly construct the work represented by these plans. 17-14 1050 Sheppard Ave.W_ Architectural_lksebatiYGGWV 2_detached.rvt PROJECT ADDRESS 17-14 02/28/20 GREENWIN A4-05 1050 SHEPPARD AVE. W. 3D VIEW 1ISSUED FOR TENDER BUILDING PERMIT 2020-09-21 LEVEL 02 201.400 LEVEL 03 204.550 LEVEL 04 207.500 LEVEL 08 218.160 LEVEL 09 220.825 LEVEL 10 223.885 LEVEL 13 231.880 PEb SUITE 204 1 BD P316 SUITE 306 1 BD 209 2665 TYP 4TH -8TH FL 2665 HT TYP 10TH -13TH FL DOUBLE GLAZING IN PREFINISHED ALUM WINDOW SYSTEM PREFINISHED METAL PANEL DOUBLE GLAZING IN PREFINISHED WINDOW SYSTEM (LOUVER AT EXHAUST LOCATION) DOUBLE GLAZING IN PREFINISHED ALUM WINDOW SYSTEM PREFINISHED METAL PANEL DOUBLE GLAZING IN PREFINISHED WINDOW SYSTEM (LOUVER AT EXHAUST LOCATION) SUITE SUITE SUITE SUITE TERRACE SUITE 1560 305 1560 300 150W CONC CURB 1750 1950 600 REFER TO FLOOR PLANS FOR GUARDRAIL TYP 550 600 1750 600 600 1200 METAL CANOPY 400200600 2 A10-06 2 A10-07 5 A10-06 1 A10-06 600 7 A10-06 RETAIL SPACE 125 LEVEL 02 25 1950 TO PROPERTY LINE 250 SLOPE TO GUTTER PLY MODIFIED BITUMINOUS MEMBRANE 16MM ROOF SHEATHING ON CONC. TOPPING 2% SLOPE DN TO GALV STEEL GUTTER MECHANICALLY FASTENED TO STEEL DECK ON STRUCT. BEAM PREFINISHED ALUM. FLASHING ON PARAPET CAP FLASHING 150x150 GALVANIZED STEEL GUTTER GALV. STEEL ROD HANGERS SCUPPER DRAIN PREFINISHED ALUM PANEL FURRING CHANNELS ON GALV METAL STUDS PREFINSHED ALUMINUM SOFFIT 44 GROUND FLOOR RET. 195.900 P1 1 GROUND FLOOR RES. 196.050 150 250 STRUCT. CONC. SLAB/BEAM REFER TO STRUCT. DWGS. CONCRETE SIDEWALK. REFER TO LANDSCAPE JOINT FILLER PARKING P1 F2c SLOPE BOARD OVER APPROVED LEVEL 03 204.550 600 SUITE SUITE DOUBLE GLAZING IN PREFINISHED ALUM. FRAME REFER TO WINDOW SCHEDULE METAL PANEL INSERT BY WINDOW SUPPLIER DOUBLE GLAZING IN PREFINISHED ALUM. FRAME REFER TO WINDOW SCHEDULE W3.3 0'1" 25 22 311 200 W3.1 W3.1 C1b 9015075 LEVEL 02 201.400 SUITE ALUM. LOUVER IN PREFINISHED ALUM. FRAME CURTAIN WALL SYSTEM REFER TO WINDOW SCHEDULE CAP VERTICAL MULLION AT TOP END, TYPICAL CONT. SEALANT & BACKER ROD CONT. SEALANT DOUBLE GLAZING IN PREFINISHED ALUM. FRAME REFER TO WINDOW SCHEDULE METAL PANEL INSERT BY WINDOW SUPPLIER HEAT TRACED DRAIN PIPE REFER TO STRUCT. FOR METAL CANOPY FRAMING 2 PLY MODIFIED BITUMINOUS MEMBRANE 16MM ROOF SHEATHING ON CONC. TOPPING 2% SLOPE DN TO METAL GUTTER MECHANICALLY FASTENED TO STEEL DECK, RETAIL SPACE PREFIN. ALUM. PANEL. METAL SOFFIT SOFFIT LIGHTING FIXTURE (REFER TO ELECT. DWGS.) 90170 300 600 22mm FURRING CHANNELS ON 65 Z-GIRTS STRUCT. CONC. SLAB/BEAM REFER TO STRUCT. DWGS. 740 400 LEVEL 16 MPH SEMI-RIGID INSULATION & AIR/VAPOUR BARRIER MEMBRANE 100 +/-CONCRETE TOPPING SLOPE TO DRAIN STONE BALLAST FILTER FABRIC 150mm RIGID INSULATION SEPARTION SHEET ROOFING MEMBRANE CONC. SLAB SLOPE TO DRAIN PPREFINISHED ALUM. CAP FLASHING ON BLOCKING TYP. CAULKING PPREFINISHED METAL PANEL ON GALVANIZED STEEL FRAMING DOUBLE GLAZING IN PREFINISHED ALUM. FRAME REFER TO WINDOW SCHEDULE 600 250 425 300 W5.1 W3.2 W3.1 AC3 R2.b C1a P5.4a ALUM. LOUVER IN PREFINISHED ALUM. FRAME REFER TO WINDOW SCHEDULE 150 125 SUITE LEVEL 04 17 TERRACE PREFINISHED ALUM. FLASHING ON WATER PROOFING MEMBRANE GUARDRAIL SHOE POST GLASS GUARD RAIL IN PREFINISHED ALUM. FRAME. PRE-FINISHED ALUM. TOP RAIL SLOPE PRIVACY SCREEN BEYOND DOUBLE GLAZING IN PREFINISHED ALUM. FRAME REFER TO WINDOW SCHEDULE 13mm GYPSUM BD. 64mm METAL STUDS AIR SPACE 77mm BATT INSULATION SEALANT SEMI-RIGID INSULATION & AIR/VAPOUR BARRIER MEMBRANE 50 +/-CONCRETE TOPPING SLOPE TO DRAIN SEALANT BI-LEVEL TERRACE TERRACE DRAIN BEYOND REFER TO MECH. DWG. SUITE SUITE CLEAR DBL. SLIDING DOOR IN PREFIN. ALUM. FRAME REFER TO WINDOW SCHED. PPREFINISHED METAL PANEL ON GALVANIZED STEEL FRAMING PPREFINISHED ALUM. CAP FLASHING ON BLOCKING TYP. CAULKING R2c C1b STEP @ SLIDING DOOR LOCATIONS WINDOW SILL SEALANT 600 600 1" FINISH FLOORING ON ACCOUSTIC UNDERLAYMENT & BASEBOARD IN RES. UNITS (REFER TO INTERIOR DESIGN DWGS.) 13 22 41311 200 SLOPE SLOPE 49 20 45 1070 150 125 W5.1 90 150 50 TERRACE GUARDRAIL DETAIL PARAPET DETAIL CANOPY SIDE DETAIL CANOPY SIDE DETAIL CANOPY DETAIL DETAIL @CONCRETE SIDEWALK WALL SECTION

STEELS AVENUE MID RISE

Thornhill 2018

Plot Area: 4800 sqm

Role: Full design & Presentation

Applications: Feasibility Study

Responsibilities:

- Massing & shadow studies.

- Full preparation of facades & presentation drawings using Revit.

- OBC analysis: travel distance, egress & exit requirements.

- Site analysis to comply to: the client desired program/efficiency rates, the city’s zoning by law requirements & the city’s mid rise developments guidelines.

- Review survey to identify any road widening, easements, right of ways, datums & principle floor finish elevations.

- Prepare site statistics including units counts and ratio for client review.

PERSPECTIVES 04 Kohn Partnership Architects Inc. 116 Spadina Avenue, Suite 501, Toronto ON M5V 2K6 Tel 416.703.6700 www.kohnarchitects.com PERSPECTIVE 01 36-48 STEELES AVENUE EAST DENIX CORPORATION THORNHILL, ONTARIO 17-110 Kohn Partnership Architects Inc. 116 Spadina Avenue, Suite 501, Toronto ON M5V 2K6 Tel 416.703.6700 www.kohnarchitects.com PERSPECTIVE 01 36-48 STEELES AVENUE EAST DENIX CORPORATION THORNHILL, ONTARIO 17-110 RESIDENTIAL
KOHN ARCHITECTS 04 First Level 3D Perspective

WARDEN AVENUE MID-RISE

Toronto 2017

Plot Area: 4900 sqm

Role: Intern Architect assisting Senior Architect

Applications: SPA - Design Development

Responsibilities:

- Modeling of Revit model.

- Assist in preparing SPA drawings set.

- Assist in coordination with landscape, traffic & civil consultants.

- Site and mass analysis to comply with zoning by-law. regulations & city of Toronto mid-rise guidelines.

- participate in code research in regards to fire protection and life safety requirements.

- Review SPA city comments and revise drawings accordingly.

- Space planning for suites layouts as part of Marketing package.

RESIDENTIAL
H G F E D B 12 11 1 15 L K A N M O D R D K G @ 7 %2 5 % L O E CLEANSIDE STREET DEANS DRIVE MENDELSSOHN STREET WARDEN AVENUE 2 3 4 5 6 7 10 8 13 m COMMERCIAL 3 101 m INDOOR AMENITY 102 8 m 0 COMMERCIAL 2 103 COMMERCIAL 107 CONDO LOBBY 620 MOVE IN ROOM Y O E R 9 14 M RES. GARBAGE C G G A H A W H M A D S W W A S U E R B D U W H O O W W P D G m O T A M R E O C C M M O m LOADING RETAIL GARBAGE STORAGE AREA R C D E E O C OUTDOOR AMENITY 6 0 6 0 6 0 6 0 6 0 6 0 9 1 0 1 2 0 2 A 1 A 7 6 E E F 4 F W W C W W W W W CS CS S C W C M U M A W N M A N E W N G A N E E C H C E M M M H H N W O B G S H W A A O C P B P M R N M E A O O M O R N S S M R N H M C E A N 5 % 0 R E P G N C D O G C P U E O - O O N E E O E - O O N E E O E - O U E O - O C R B A A G D R A D P M M A G A D O A A P Y 0 T P S U D S U N C O N U E O - O U E N FB 27 SURFACE PARKING SPACES H G F E D B 12 11 1 15 L K A N BD+D 210 2 3 4 5 6 7 10 8 13 m 3 BD 221 m 3 BD 206 7 3 BD 207 m 1 BD+D 202 5 m BD+D 204 m BD 208 3 m BD+D 209 BD+D 211 m BD+D 212 m BD 213 m BD 214 m BD 215 1 BD+D 217 2 BD+D 218 2 BD+D 219 2 BD+D 220 7 1 BD 201 B W C m BD+D 216 9 14 M J C 3 m BD+D 205 m BD+D 203 4 0 2 5 2 0 0 7 6 A 0 4 1 0 7 DO NOT SCALE DRAWINGS. ARCHITECT AND CONSULTANTS BEFORE PROCEEDING. CONFORM TO ALL APPLICABLE CODES AND THE ARCHITECT BEARS NO RESPONSIBILITY INFORMATION REGARDING THE INTENT OF OVER THE MECHANICAL AND ELECTRICAL LOCATED, TO BE LOCATED AS DIRECTED BY REGARDS TO THE ENVIRONMENTAL CONDITIONS COPYRIGHT OF THIS DRAWING AND THE DESIGN CONTAINED THEREI MAY NOT BE REPRODUCED REQUEST. Project: Drawing Title: Drawn By: Date Plotted: Checked PROJECT NORTH TRUE NORTH Note ISSUE DATES AND DISTRIBUTION No. Date 116 Spadina Avenue, Suite 501, Kohn Partnership Architects Tel 416.703.6700 www.kohnarchitects.com C:\Users\kbell\Documents\17 130_743 Warden Block 20_Site_kbell@kohnarchitects.com.rvt 2018-04-05 4:56:45 PM LEVEL 1, 2 FLOOR THE GOLDMAN GROUP LK 743 WARDEN AVENUE 743 WARDEN TORONTO KB 117.08.28 ISSUED FOR 218.04.05 ISSUED FOR FLOOR PLAN -LEVEL 1 FLOOR PLAN -LEVEL 2 2 H G F E D B 12 11 1 15 L K A N R U R U P 2 C L A R @3 0 CLEANSIDE STREET DEANS DRIVE MENDELSSOHN STREET WARDEN AVENUE 2 3 4 5 6 7 10 8 13 COMMERCIAL 101 INDOOR AMENITY 102 m COMMERCIAL 103 9 m COMMERCIAL 1 107 m CONDO LOBBY 620 MOVE IN ROOM B M A 9 14 M J RES. GARBAGE C A U S U E A W P O K A W M N O N H W A O O m R F D C E C C N C O O M LOADING RETAIL GARBAGE STORAGE AREA H C O O G S A O N P N E H G E m OUTDOOR AMENITY 0 6 0 6 0 6 0 6 0 6 0 6 0 6 9 5 1 0 1 2 5 4 1 4 1 5 F F H W W S W W C C C C W W W W W W W H F K P O N A N E G B N A G B M M C C E B C X H E H C M E H M N B D U W H O O W W O N O 1 5 4 R S CO M R C A N R E M M Y B B O C O E C G 0 1 0 C H C O S S N D A - A - A - A D A - A O E U D M U G G O K G A G D R G K G M 2 0 0 0 6 0 1 0 D R D B W R U D A - A DE 27 SURFACE PARKING SPACES H G F E D B 12 11 1 15 L K A N 2 BD+D 210 2 3 4 5 6 7 10 8 13 BD 221 BD 206 BD 207 m BD+D 202 1 BD+D 204 2 BD 208 1 BD+D 209 2 2 BD+D 211 5 2 BD+D 212 5 2 BD 213 2 BD 214 m 0 2 BD 215 BD+D 217 9 m BD+D 218 m BD+D 219 BD+D 220 m BD 201 P O m BD+D 216 9 14 M J C 2 BD+D 205 m 1 BD+D 203 7 6 7 0 6 0 6 0 6 0 6 0 6 0 6 0 6 9 5 1 0 1 2 5 0 7 6 2 5 2 5 7 0 3 0 3 0 2 A A 0 ALL DIMENSIONS ARE GIVEN MILLIMETRES UNLESS OTHERWISE CONTRACTOR SHALL VERIFY AND CHECK ALL DIMENSIONS AND CONFORM TO ALL APPLICABLE CODES AND REQUIREMENTS OF THE ARCHITECT BEARS NO RESPONSIBILITY FOR THE INTERPRETATION DOCUMENTS BY THE CONTRACTOR. UPON WRITTEN APPLICATION LOCATED, BE LOCATED DIRECTED BY THE ARCHITECT. REGARDS TO THE ENVIRONMENTAL CONDITIONS OR POLLUTIONS COPYRIGHT OF THIS DRAWING AND THE DESIGN INTENT RESERVED CONTAINED THEREI MAY NOT BE REPRODUCED IN WHOLE OR PRIOR WRITTEN PERMISSION THE KOHN ARCHITECTS INC. REQUEST. Project: Drawing Title: Drawn By: Date Plotted: Checked By: PROJECT NORTH TRUE NORTH Note ISSUE DATES AND DISTRIBUTION LOG No. Date 116 Spadina Avenue, Suite 501, Toronto ON Kohn Partnership Architects Inc. Tel 416.703.6700 www.kohnarchitects.com 2018-04-05 4:56:45 PM LEVEL 1, 2 FLOOR THE GOLDMAN GROUP LK 743 WARDEN AVENUE 743 WARDEN -BLOCK TORONTO KB 117.08.28 ISSUED FOR CLIENT REVIEW 218.04.05 ISSUED FOR SPA FLOOR PLAN -LEVEL 1 1 FLOOR PLAN -LEVEL 2 9 - 6 11 - 2 6 - 2 2 30 LIVING/DINING BEDROOM DEN KITCHEN FOYER BATH W/D BALCONY 94 59 1 50 SUITE TYPE 1G 51.47sm (554sf) CONDO
KOHN ARCHITECTS 05 First Level Second Level Suite Layout

Toronto 2018

Plot Area: 6000 sqm

Role: Full design & Presentation

Applications: Feasibility Study

Responsibilities:

- Full design of massing, facades, presentation drawings & Revit model.

- OBC research: travel distance, egress & exit requirements.

- Site analysis to comply to: the client’s desired program /efficiency rate - the city’s zoning by law requirements & guidelines: i.e. car parks - set backs - angular planes - sight triangles - entrance & cores - garbage rooms.

- Space planning for suites layouts.

Second Level / Living space

MIXED USE
WARDEN AVENUE WORK/ LIVE UNITS
A1 01 SCA E PERSPECTIVE 2 2 A1 01 SCALE PERSPECTIVE 1 1 A1 01 SCALE PERSPECTIVE 2 2 A1 01 SCALE PERSPECTIVE 1 1 A11 109 46 m² 1178 ft² UNIT 7 217 109 46 m² 1178 ft² UNIT 4 214 109 46 m² 1178 ft² UNIT 5 215 109 46 m² 1178 ft² UNIT 6 216 109 46 m² 1178 ft² UNIT 2 212 113 19 m² 1218 ft² UNIT 1 211 109 46 m² 1178 ft² UNIT 3 213 109 46 m² 1178 ft² UNIT 10 220 109 46 m² 1178 ft² UNIT 9 219 109 46 m² 1178 ft² UNIT 8 218 GARB AGE ROOM (BELOW)
6750 6000 6000 6000 6000 6000 6000 6000 6000 6000 6000 8686 TERRACE 24sm 128 04 m² 1378 ft² UNIT 10 210 TERRACE (24sm) TERRACE (24sm) TERRACE E s A (24sm) TERRACE (24sm) TERRACE (24sm) TERRACE 17sm 250 BALCONY RAILING, TYP BALCONY RAILING, TYP LEVEL MEZZANINE T/O ROOF C D H E F B G T/O PYLON 9 0 3 0 3 0 4 4 0 A LEVEL MEZZANINE T/O ROOF A11 A10 A9 A8 A7 T/O PYLON A6 0 A5 A4 A3 5 0 0 0 A2 A1 B13 B11 B10 B9 B8 B7 B6 B5 B4 B3 B2 B1 B12 0 0 6 Q LEVEL MEZZANINE T/O ROOF C D H E F B G T/O PYLON 4 A LEVEL MEZZANINE T/O ROOF A11 A10 A9 A8 A7 T/O PYLON A6 A5 A4 A3 6 5 0 0 0 0 A2 A1 B13 B11 B10 B9 B8 B7 B6 B5 B4 B3 B2 B1 B12 LEVEL MEZZANINE T/O ROOF B4 B3 B2 B1 9 2 Q Q LEVEL 1 MEZZANINE T/O ROOF A10 A9 0 0 0 FILE NAME: A0 ALL DIMENSIONS ARE GIVEN MILLIMETRES UNLESS OTHERWISE INDICATED. DO NOT SCALE DRAWINGS. PRIOR TO STARTING ANY OF THE WORK AND REPORT ANY DISCREPANCY TO THE ARCHITECT AND CONSULTANTS BEFORE PROCEEDING. CONSTRUCTION MUST JURISDICTION PERTAINING TO THIS APPLICATION. DOCUMENTS BY THE CONTRACTOR. UPON WRITTEN APPLICATION THE ARCHITECT WILL PROVIDE WRITTEN OR GRAPHIC CLARIFICATION AS SUPPLEMENTARY LOCATIONS OF EXPOSED MECHANICAL OR ELECTRICAL DEVICES, FITTINGS AND OVER THE MECHANICAL AND ELECTRICAL DRAWINGS. THOSE ITEMS NOT CLEARLY LOCATED, TO BE LOCATED AS DIRECTED BY THE ARCHITECT. NO INVESTIGATION HAS BEEN UNDERTAKEN OR REPORTED ON THIS OFFICE REGARDS TO THE ENVIRONMENTAL CONDITIONS OR POLLUTIONS OF THIS ITE. COPYRIGHT 2005 KOHN ARCHITECTS INC. ARCHITECT. THE DRAWINGS AND ALL ASSOCIATED DOCUMENTS ARE AN INSTRUMENT OF SERVICE BY KOHN ARCHITECTS INC. THE DRAWINGS AND THE INFORMATION PRIOR WRITTEN PERMISSION OF THE KOHN ARCHITECTS INC. REQUEST. Project No. Scale: Project: Drawing Title: Drawn By: Date Plotted: Drawing No.: Checked By: SEAL PROJECT NORTH TRUE NORTH Note ISSUE DATES AND DISTRIBUTION LOG No.Date 116 Spadina Avenue, Suite 501, Toronto ON M5V 2K6 Kohn Partnership Architects Inc. Tel 416.703.6700 www.kohnarchitects.com C:\Users\kbell\Documents\17 130_743 Warden_Block 21-22_kbell.rvt As indicated 2017-11-14 9:49:01 AM ELEVATIONS OPTION 1 17 130 THE GOLDMAN GROUP DRW A4 00 743 WARDEN AVENUE 743 WARDEN BLOCK 21-22 TORONTO ONTARIO CHK 117.08.28ISSUED FOR CLIENT REVIEW A4 00 SC L 0 WARDEN AVE ELEVATION 5 A4 00 SC L 0 CLEANSIDE ELEVATION 3 A4 00 CA E 1 2 0 EAST ELEVATION 4 A4 00 SC L 0 NORTH ELEVATION 6 A4 00 CA E 1 5 DETAILED ELEVATION 1 A4 00 CA E 0 DETAILED ELEVATION 2
B10 B9 B8 B7 B6 B5 B4 B3 B2 B1
KOHN ARCHITECTS 06

ELLESMERE AVENUE WORK/ LIVE UNITS

Plot Area: 6500 sqm

Role: Full design & presentation / Intern Architect

Applications: Feasibility Study

Responsibilities:

- Full design of massing, facades & preparation of presentation drawings using Revit.

- OBC analysis: travel distance, egress & exit requirements.

- Site analysis to comply to: the client’s desired program/efficiency rates and the city’s zoning law requirements.

- Space planning for suites layouts.

SCALE: PERSPECTIVE 2 1 2 3 4 5 6 7 8 9 10 11 12 13 14 15 17 1 8 7 0 1 9 60 0 6 00 6 00 6 0 6 0 00 00 00 0 0 60 0 60 0 60 0 6 00 6 00 6 00 8 5 89 82 9 16 ROOF 40 LEVEL 1 0 0 LEVEL 2 3 4 LEVEL 3 6 6 A E B D 1 0 2 50 12 0 25 89 60 9 3 4 0 0 3 2 1 0 6 6 1 0 C T/O ROOF 9 8 2 00 3 39 18 0 2 5 LEVEL 1 0 0 LEVEL 2 3 0 LEVEL 3 6 1 A E B D 1 4 5 0 3 2 1 0 3 2 1 0 3 4 0 0 C T/O ROOF 9 2 18 25 2 25 22 0 1 7 2 08 2 0 8 00 2 38 8 22 0 1 1 2 7 0 LEVEL 1 0 0 LEVEL 2 3 4 LEVEL 3 6 6 1 2 3 4 5 6 7 8 9 10 11 12 13 14 15 17 1 0 0 6 00 6 0 00 00 00 0 0 0 0 60 0 60 0 6 00 6 00 6 00 6 0 6 0 98 5 3 4 0 0 3 2 1 0 2 7 9 0 1 6 7 2 16 ROOF 9 4 1 1 0 7 2 1 0 0 2 5 5 7 0 4 5 0 0 ALL DIMENSIONS ARE GIVEN IN MILLIMETRES UNLESS OTHERWISE INDICATED. DO NOT SCALE DRAWINGS. CONTRACTOR SHALL VERIFY AND CHECK ALL DIMENSIONS AND CONDITIONS ON PRIOR TO STARTING ANY OF THE WORK AND REPORT ANY DISCREPANCY TO THE ARCHITECT AND CONSULTANTS BEFORE PROCEEDING. CONSTRUCTION MUST CONFORM TO ALL APPLICABLE CODES AND REQUIREMENTS OF AUTHORITIES JURISDICTION PERTAINING TO THIS APPLICATION. THE ARCHITECT BEARS NO RESPONSIBILITY FOR THE INTERPRETATION OF THESE DOCUMENTS BY THE CONTRACTOR. UPON WRITTEN APPLICATION THE ARCHITECT WILL PROVIDE WRITTEN OR GRAPHIC CLARIFICATION AS SUPPLEMENTARY INFORMATION REGARDING THE INTENT OF THE CONTRACT DOCUMENTS. LOCATIONS OF EXPOSED MECHANICAL OR ELECTRICAL DEVICES, FITTINGS AND FIXTURES ARE INDICATED ON ARCHITECTURAL DRAWINGS. WHICH SHALL GOVERN OVER THE MECHANICAL AND ELECTRICAL DRAWINGS. THOSE ITEMS NOT CLEARLY LOCATED, TO BE LOCATED AS DIRECTED BY THE ARCHITECT. NO INVESTIGATION HAS BEEN UNDERTAKEN OR REPORTED ON THIS OFFICE IN REGARDS TO THE ENVIRONMENTAL CONDITIONS OR POLLUTIONS OF THIS SITE. COPYRIGHT 2005 KOHN ARCHITECTS INC. COPYRIGHT OF THIS DRAWING AND THE DESIGN INTENT IS RESERVED BY THE ARCHITECT. THE DRAWINGS AND ALL ASSOCIATED DOCUMENTS ARE AN INSTRUMENT OF SERVICE BY KOHN ARCHITECTS INC. THE DRAWINGS AND THE INFORMATION CONTAINED THEREIN MAY NOT BE REPRODUCED IN WHOLE OR IN PART WITHOUT PRIOR WRITTEN PERMISSION OF THE KOHN ARCHITECTS INC. ALL DRAWINGS ARE THE PROPERTY OF THE ARCHITECT AND MUST BE RETURNED REQUEST. Project: PROJECT NORTH TRUE NORTH 116 Spadina Avenue, Suite 501, Toronto ON M5V 2K6 Kohn Partnership Architects Inc. Note ISSUE DATES AND DISTRIBUTION LOG No.Date Tel 416.703.6700 www.kohnarchitects.com 1001 ELLESMERE AVE. THE GOLDMAN GROUP 1001 ELLESMERE AVE. 117.10.30ISSUED FOR REVIEW A4 00 SCALE 1 : 200 NORTH ELEVATION 2 A4 00 SCALE 1 : 200 SOUTH ELEVATION 3 A4 00 SCALE 1 : 200 EAST ELEVATION 4 34' 0" 11' - 7" 25' 8" 18'6" DN UP LIVING/DINING KITCHEN DEN BEDROOM 2 BEDROOM 1 DN As indicated SUITE TYPE 2A 1001 ELLESMERE AVE. 1001 ELLESMERE AVE. LEVEL 2 LEVEL 3 23' 8" 18' 6" LIVING/DINING KITCHEN 34' 0" 15' 11" UP DN BEDROOM BEDROOM DEN 13' 4" 9'0" 9'2" 13' 4" 19' - 5" DN As indicated SUITE TYPE 2B 1001 ELLESMERE AVE. 1001 ELLESMERE AVE. LEVEL 2 LEVEL 3
KOHN ARCHITECTS 07 MIXED USE
Toronto 2018
LEVEL 2 LEVEL 2 LEVEL 3 Street Elevation LEVEL 3 KEY PLAN KEY PLAN

STACKED TOWNHOUSES

Brampton 2019

Plot Area: 27300 sqm

Role: Intern Architect assisting Project Manager

Applications: Building permit

Responsibilities:

- Draft plans and wall sections for 60% and 90% building permit architecture set.

- Assist in drawings coordination with mechanical consultants to identify bulkheads locations, louvers, plumbing walls and furring walls.

- Assist in coordination with structural engineers to identify locations of columns, foundation walls & sheer walls.

- Draw assemblies of walls, floors, roofs & ceilings in schedules and tag each element in plans and sections accordingly.

- Identify drainage system components: roof slopes, roof drains, building scuppers & canopy scuppers.

RESIDENTIAL
1 1 2 2 A B C 2B 2A 2B 2B 2A 2B Ax Cx 7X 7X 1X 1X 8 9 8 3 1 7 1 9 1 0 1 5 9 5 4 U U P P U U U U U D N D D N D 4 5 11 D1 D1 0 D1 D1 D0 D4 7 D 1 D 09 D9 D1 D1 D 1 W W W W W W W W Y 2 U D ME S ON Y A A U M NS ON2 - 0 A - - --A5AG SMOKE CARBON DROPPED SA CMD WILL PROVIDE WRITTEN GRAPHI CLARIFICATION NO INVESTIGATION HAS BEEN UNDERTAKEN REGARDS THE ENVIRONMENTAL CONDITIONS PRIOR WRITTEN PERMISSION THE KOHN Project: Drawing Title: Drawn By: Date Plotted: PROJECT NORTH TRUE NORTH Note ISSUE DATES AND DISTRIBUTION No. Date 116 Spadina Avenue, Suite Kohn Partnership Architects Tel 416.703.6700 www.kohnarchitects.com C:\Users\lksebati\Documents\15 131_Heart Lake Residential_40_lksebati.rvt 2019-04-18 11:16:50 FLOOR PLAN (L) VANDYK GROUP Author HEART LAKE ROAD HEART LAKE BRAMPTON HEATED PLENUM UNDERGROUND PARKING 3210 1100 WALKWAY LANDSCAPE RETAINING VENTED METAL SOFFIT VENTED METAL SOFFIT VENTED METAL SOFFIT ALUMINIUM SLAB COVER TEMPERED GLASS GUARDRAIL TOP TEMPERED GLASS GUARDRAIL TOP TEMPERED GLASS GUARDRAIL TOP THERMALLY BROKEN ALUMINUM FRAMES WITH 25mm INSULATED GLASSSCHEDULE EXTERIOR INSULATION AND FINISH SYSTEM (EIFS) 247.20 MAIN LEVEL 246.97 247.37 247.47 D,E,G,H,J,K 247.17 M 247.27 C,F 247.07 T/O SLAB 243.99 PODIUM LEVEL 243.76 244.16 244.26 D,E,G,H,J,K 243.96 M 244.06 C,F 243.86 T/O SLAB 250.41 LEVEL 250.19 250.58 250.68 D,E,G,H,J,K 250.39 M 250.48 C,F 250.28 T/O SLAB 253.62 LEVEL 253.39 253.79 253.89 D,E,G,H,J,K 253.59 M 253.69 C,F 253.49 T/O SLAB 256.83 TERRACE LEVEL 256.60 257.00 257.10 D,E,G,H,J,K 256.80 M 256.90 C,F 256.70 T/O SLAB VARIAS RIGID INSULATION A7-010 A7-010 HEATED PLENUM 25mm INSULATED GLASSTHERMALLY BROKEN ALUMINUM FRAMES WITH 25mm INSULATED GLASSDOOR SCHEDULE LANDSCAPE DWG ALUMINIUM SLAB COVER TOP MOUNTED TO CONC. SLAB ALUMINIUM LOUVERS WINDOW WALL SYSTEM EDGE OF EIFS WALL BEYOND 25mm INSULATED GLASSTOP MOUNTED TO CONC. SLAB WINDOW WALL SYSTEM EDGE OF EIFS WALL BEYOND 25mm INSULATED GLASSTOP MOUNTED TO CONC. SLAB WINDOW WALL SYSTEM TEMPERED GLASS GUARDRAIL ANCHORED CONT. 75X650 RIGID INSULATION ALUMINIUM SLAB COVER VENTED METAL SOFFIT 2% SLOPE 1.5% SLOPE TYP. TYP. 150 TYP. 540 1.5% SLOPE 247.20 MAIN LEVEL 246.97 N 247.37 247.47 D,E,G,H,J,K 247.17 247.27 C,F 247.07 T/O SLAB 243.99 PODIUM LEVEL 243.76 N 244.16 244.26 D,E,G,H,J,K 243.96 244.06 C,F 243.86 T/O SLAB 250.41 LEVEL 250.19 N 250.58 250.68 D,E,G,H,J,K 250.39 250.48 C,F 250.28 T/O SLAB 253.62 LEVEL 253.39 N 253.79 253.89 D,E,G,H,J,K 253.59 253.69 C,F 253.49 T/O SLAB 256.83 TERRACE LEVEL 256.60 N 257.00 257.10 D,E,G,H,J,K 256.80 256.90 C,F 256.70 T/O SLAB VARIAS CONCRETE CURB WALKWAY LANDSCAPE RETAINING A7-010 A7-010 25mm INSULATED GLASSALUMINUM FRAMES WITHSEE ELEVATIONS AND WINDOW SCHEDULE ALUMINIUM SLAB COVER TOP MOUNTED TO CONC. SLAB ALUMINIUM LOUVERS WINDOW WALL SYSTEM EDGE OF EIFS WALL BEYOND 25mm INSULATED GLASSTOP MOUNTED TO CONC. SLAB ALUMINIUM LOUVERS EDGE OF EIFS WALL BEYOND 25mm INSULATED GLASSTOP MOUNTED TO CONC. SLAB WINDOW WALL SYSTEM TEMPERED GLASS GUARDRAIL ANCHORED VENTED METAL SOFFIT VENTED METAL SOFFIT VENTED METAL SOFFIT VENTED METAL SOFFIT REFER STRUCTURE 2% SLOPE 1.5% SLOPE 247.20 A MAIN LEVEL 246.97 247.37 247.47 D,E,G,H,J,K 247.17 247.27 C,F 247.07 T/O SLAB 243.99 A PODIUM LEVEL 243.76 244.16 244.26 D,E,G,H,J,K 243.96 244.06 C,F 243.86 T/O SLAB 250.41 A LEVEL 250.19 250.58 250.68 D,E,G,H,J,K 250.39 250.48 C,F 250.28 T/O SLAB 253.62 A LEVEL 253.39 253.79 253.89 D,E,G,H,J,K 253.59 253.69 C,F 253.49 T/O SLAB 256.83 A TERRACE LEVEL 256.60 257.00 257.10 D,E,G,H,J,K 256.80 256.90 C,F 256.70 T/O SLAB VARIAS CONT. 75X650 RIGID INSULATION CONT. 170X250 CONCRETE CURB INFORMATION REGARDING THE INTENT THE CONTRACT DOCUMENTS. Scale: Project: Drawing Title: Date Plotted: Drawing No.: Checked By: SEAL Note ISSUE DATES AND DISTRIBUTION LOG No. Date 116 Spadina Avenue, Suite 501, Toronto ON M5V 2K6 Kohn Partnership Architects Inc. 25 2019-04-18 11:47:48 AM WALL SECTIONS 15-131 VANDYK GROUP Author A5-010 HEART LAKE ROAD HEART LAKE RESIDENTIAL BRAMPTON ONTARIO Checker A5-010 SCALE: 25 TYPICAL SECTION AT EIFS WALL A5-010 SCALE: 25 TYPICAL SECTION THROUGH WINDOW A5-010 SCALE: 25 TYPICAL SECTION THROUGH BALCONY WINDOW 1.5% SLOPE 1.5% SLOPE KOHN ARCHITECTS 08 Main Level Wall Sections Section Details LEVEL 3 TERRACE LEVEL LEVEL 3 TERRACE LEVEL LEVEL 2 LEVEL 3 TERRACE LEVEL TYP. 350 TYP. 150 TYP. 540 LEVEL 2 LEVEL 3 TERRACE LEVEL

Plot Area: 12800 sqm

Role: Intern Architect assisting Project Manager

Applications: SPA

Responsibilities:

- Mass modeling and facade design according to Mazda’s heads office design guidelines.

- Assist in coordination with Autoplan consultants for space planning.

- Preparation of SPA submission drawings.

- Assist in drawings coordination with engineering consultants: landscape, traffic, civil consultants and Interior designers.

- Review Toronto green standards and coordinate requirements with landscape consultants.

- Prepare site statistics to comply with city regulations.

- Review SPA city comments round 1, revise architectural drawings accordingly.

- Design roof slopes for drainage / Identify locations of overflow scuppers.

- Assist in preparing code compliance diagrams, Identify fire ratings for walls and floor assemblies. analyze travel distances and identify locations of exits.

(ISSUED FOR TENDER)

COMMERCIAL
KOHN ARCHITECTS 09 FILE NAME: A0 16 109_Gyro Mazda_Phase 40_A-Mazda_detached_detached.rvt GYRO MAZDA 139 LAIRD DRIVE SHEET NUMBER 40-Construction Construction A0-00COVER A0-01OBC A0-02WALL A0-03DOOR A0-30WINDOW A0-31WINDOW A0-32WINDOW A0-34INTERIOR A1-00SITE A1-01TEMPORARY A2-00GROUND A2-01LEVEL A2-02ROOF A2-03CANOPY A4-00BUILDING A4-01BUILDING A4-10OVERALL A4-11OVERALL A5-01WALL A5-10STAIR A6-00PLAN A6-01PLAN A6-02PLAN A6-10SECTION A6-11SECTION A6-12SECTION A6-20TYPICAL A7-00DETAILED A7-01DETAILED A7-02SERVICE A7-03SERVICE A7-10INTERIOR A7-11INTERIOR A7-12INTERIOR A7-13MILLWORK A7-14MILLWORK A7-30RCP A7-31RCP A9-00LEVEL A9-01LEVEL
CAR DEALERSHIP Toronto 2018
S-100 S-202GRADE S-301A-MEZZANINE S-302A-T/O M-1 M-2 M-3 M-4 M-5 E0.1GENERAL E0.2 E2.1 E3.1 GYRO GROUP 16061-SS1SITE ARCHITECTURAL CONSULTANT: KOHN PARTNERSHIP ARCHITECTS INC. 116 SPADINA AVENUE. SUITE 501 TORONTO. ONTARIO M5V 2K6 T: 416-703-6700 F: 416-703-6704 MECHANICAL CONSULTANT: BRUMER ENGINEERING SERVICES LTD. 120 WEST BEAVER CREAK RD., UNIT 25 RICHMOND HILL. ONTARIO L4B 1L2 T: 905-771-7798 F: N/A ELECTRICAL CONSULTANT: HUDSON ENGINEERING 2901 STEELES AVENUE, UNIT 26 TORONTO, ONTARIO M3J 3A5 T: 416-663-5470 F: 416-661-6885 CIVIL CONSULTANT: URBAN WATERSHED GROUP LTD. 15955 AIRPORT RD. SUITE 304 CALEDON EAST, ONTARIO L7C 1H9 T: 905-584-1458 F: 905-584-1461 STRUCTURAL CONSULTANT: AJW ENGINEERING 100 MATHESON BLVD EAST, UNIT 201 MISSISSAUGA, ONTARIO L4Z 2G7 T: 905-840-0530 F: N/A AUTODEALERSHIP CONSULTANT AUTOPLAN PLUS INC. 4042 MAINWAY BURLINGTON, ONTARIO L7M 4B9 T: 905-331-8454 F: 905-331-6263 SPRINKLER CONSULTANT: DISANO SPRINKLER DESIGN LTD 80 TIVERTON CT. SUITE 700 MARKHAM, ONTARIO L3R 0G4 T: 905-477-4474 F: N/A SHEET NUMBER S-303A-U/S S-304A-T/O S-305A-LEVEL S-400A-ELEVATIONS 00SURVEYOR'S SP1SPECIFICATIONS SP2PROPOSED SP3 S-200FOUNDATION E2.1 E4.1 S-201GRADE S-203GRADE S-401A-ELEVATIONS S-501DETAILS S-402A-ELEVATIONS AA AA AD AD VESTIBULE 106 134 STAIR 126 135 GARBAGE ROOM 140 SERVICE DEPARTMENT IMMEDIATE SERVICE 142 AB AB AN AN A1 A1 A2 A2 A3 A3 A4 A4 A5 A5 A6 A6 A7 A7 A9 A9 A10 A10 120 STAIR 108 WOMEN'S WR 119 MEN'S WR 118 UNIVERSAL WR 110 109 GENERAL MANAGER 115 AH AH STORAGE 132 AND WARRANTIES 133 AE AE AF AF AM AM AL AL PARTS MANAGER A8 A8 F&I 131 F&I 130 TECHNICAL PARTS 129 143 AG AG RETAIL PARTS 128 A11 A11 A12 A12 A13 A13 AJ AJ A14 A14 AK AK SALES TOWER 144 SALES MANAGER 145 AI AI ZOOM 107 COMPONENT WORK AREA 136 A6' A7' A13' SPRINKLER ROOM 137 STAIR C 139 MECHANICAL/ ROOM 138 APPTM CLERKS 123 SALES SALES SALES 125 SALES OPEN AIR SHOWROOM SIAMESE CONNECTION AC AC A0 Project No. Project: Drawn By: Drawing No.: Checked SEAL PROJECT NORTH TRUE NORTH Building No.: 116 Spadina Avenue, Suite 501, Toronto ON M5V 2K6 Kohn Partnership Architects Inc. C:\Users\lksebati\Documents\16 109_Gyro Mazda_Phase 20_Site Model_lksebati.rvt 100 2018-07-11 5:51:08 PM GYRO MAZDA LEVEL 1 FLOOR PLAN 16-109 GYRO GROUP LK A2 00 139 LAIRD DRIVE GYRO DEALERSHIPS TORONTO ON KB A A2 00 GROUND FLOOR PLAN A -LEVEL A -MEZZANINE A -T/O HIGH PARA. AA AD AB AN AH AE AF AM AL AG AJ AK A -T/O PORTAL A -U/S CANOPY A -T/O LOW PARAPET AI 0 0 1 3 1 VM TG SP SP TG D WALL MOUNTED EXTERIOR 4 SP TG/FG TG/FG SP TG/FG SP AC -LEVEL -MEZZANINE -T/O HIGH PARA. A1 A2 A3 A4 A5 A6 A7 A9 A10 A8 A11 A12 A13 A14 -T/O PORTAL -U/S CANOPY -T/O LOW PARAPET 3 5 A6' A7' A13' 3 1 VM TGTG VM VM TG TG VM VMVM TG TG TGTG VM VM 6 WALL MOUNTED EXTERIOR LIGHT FIXTURE TYP. CUSTOM ETCHED PATTERN: 5mm DOTS ON 50mm (2") CENTERS NOTE: DIAGRAM BASED ON AVIPROTEK CUSTOM PATTERN BIRD SAFE GLASS. PROJECT WILL USE AVIPROTEK GLASS OR SIMILAR PRODUCT AND PATTERN (REFER TO ELEVATION FOR PATTERN LOCATION) -LEVEL -MEZZANINE -T/O HIGH PARA. -U/S PORTAL STEEL AA AD AB AN AH AE AF AM AL AG AJ AK -T/O PORTAL -U/S CANOPY -T/O LOW PARAPET AI 6 1 1 1 4 VMVMVMVMVMVMVMVMVM VM TGTG TGTGTGTGTG TGTG VMVMVMVM VM VMVMVMVMVMVMVMVMVMVMVM TG TG TG TG TG AC A -LEVEL A -MEZZANINE A -U/S CANOPY 0 1 0 1 2 8 6 VM TG VM TG VM VM VMVMVM VMVM VM VM TGTGTGTGTGTG VMVM TG/VM VM VM TG/VM VM VM TGTG VMVM TGTG VM VM VM TG TG TGTG TG TG TG TG TGTG D O G VM VM VM VM D H A0 C:\Users\lksebati\Documents\16 109_Gyro Mazda_Phase 20_Site Model_lksebati.rvt A4 00 C E 0 NORTH ELEVATION A4 00 C E 0 EAST ELEVATION A4 00 C E 0 SOUTH ELEVATION A4 00 C E 0 WEST ELEVATION COMMERCIAL ROAD LAIRD DRIVE INDUSTRIAL STREET BUILDING RECONDITIONING CENTER AND OPEN AIR PARKING GARAGE PROPOSED PARKING (SOUTH LOT) 57 SPOTS, TANDEM) No. 143 EX. STOREY BRICK BUILDING EX. STOREY BUILDING PROPOSED PARKING (NORTH LOT 60 SPOTS, 16 TANDEM) EX. GYRO HYUNDAI BUILDING C 3.2.2.83 STOREY BUILDING 8,398.4 sm 90,367 sf 158 PARKING SPACES IN GARAGE (63 TANDEM, EV PARKING SPACES) GYRO MAZDA BUILDING 2.2.2.60 EXISTING 2 STOREY BUILDING 1,544.6sm 16,620 sf 3.2.2.60 2 STOREY BUILDING 2,472.7 sm 26,606 sf PROPOSED PARKING (WEST LOT 29 SPOTS, 7 TANDEM)-FFE 130.65 FFE 130.15FFE 130.15 FFE 130.15 EX. STOREY BUILDING11 47 14 -ZONING DESIGNATION: LOT AREA:12,793.1 sm (3.35 acres) FRONTAGE:126.8m (Laird Dr.) 121.9 (Commercial Rd.) 106.0 (Industrial St.) GROSS FLOOR AREAAREA(sm)AREA (sf) BUILDING -MAZDA:2,504.9sm(26,953sf) BUILDING -HYUNDAI:1,544.6sm(16,620sf) BUILDING -GARAGE:8,398.4sm(90,367sf) 12,448.0sm(133,940sf) PROPOSED BUILDING INFORMATION: COVERAGE: 5,474.8sm43% Mazda Ground Floor Area2,140.8 sm Ex. Hyundai Ground Floor Area1,234.4sm Recond./Garage Floor Area2,099.6sm FSI 0.973 No. OF STOREYS (PROPOSED):4 STOREYS HEIGHT(PROPOSED): 15.8m SITE INFORMATION AREA (sm)AREA (%) 767.6 sm6% RATES BASED ON ZONING BY-LAW 141-2012: 3.5/100sm of automotive trade 3.5/100sm of motor vehicle repair shop TANDEM GFA (For parking and loading calculation. Note: excludes Mechanical Room, Garbage Room, Vertical Circulation, Parking Garage etc.) Hyundai 1,455.2 sm Reconditiong Centre 2,168.1 sm PARALLEL STALL DIMENSION2.6m 6.7m2.6m 6.7m DRIVE AISLE WIDTH 6m6m EXISTING HYUNDAI 5457 TOTAL SPACES: 214308 TANDEM: EXISTING HYUNDAI TOTAL TANDEM SPACES 95 TOTAL PARKING LESS TANDEM: EXISTING HYUNDAI 52 TOTAL PARKING LESS TANDEM SPACES 213 BARRIER FREE SPACES: MAZDA: RECONDITIONING CENTRE2 TOTAL: PER 141-2012(2) (ii)(vii)8EXISTING:TOTAL: LOADING SPACE RATES: LOADING RATES BASED ON ZONING BY-LAW 141-2012 GFA 2300sm SPACES EXISTING HYUNDAI: TYPE B1 TYPE SURVEY INFORMATION: PLAN SURVEY LOTS 632-641 REGISTERED PLAN 2120 PART OF BLOCK REGISTERED PLAN 2574 CITY OF TORONTO SURVEYOR ANNA AKSAN TORONTO, ONTARIO ALL FIRE ACCESS ROUTES PER TORONTO BYLAW, CHAPTER 880 HAVE BEEN PROVIDED. ALL FIRE ACCESS ROUTES NOTED ON THE SITE WILL BE SURFACED IN HEAVY DUTY ASPHALT AND SURFACED TO BE ACCESSIBLE UNDER ALL CLIMATE CONDITIONS. BUILDING PERMIT ISSUANCE SHALL SUBJECT TO THE CONTRAVENTION WITH THESE PLANS AND EXTERIOR DESIGN OF THE BUILDING AND EXTERIOR LIGHT STANDARD (EXTERIOR POLE FIXTURE) WALL-MOUNTED DOWNLIGHT ACCESSIBLE PARKING SIGNAGE FIRE ROUTE SIGNAGE ELECTRIC VEHICLE CHARGING STATION GENERAL NOTATION CPWCONCRETE PEDESTRIAN WALK CBCATCH BASIN STSTACKED PARKING LSLIGHT STANDARD TWSITACTILE INDICATOR FIRE ROUTE NRT NO RIGHT TURN WRONG WAY PEDESTRIAN CROSSING BY PERMIT ONLY ACCESSIBLE PARKING SPACE SIGN CIRCLE AND DIAGONAL WHITE REFLECTIVE FIRE ROUTE TE A A0 Project: PROJECT TRUE Kohn Partnership Architects Inc. C:\Users\lksebati\Documents\16 109_Gyro Mazda_Phase 20_Site Model_lksebati.rvt As indicated SITE PLAN AND STATISTICS 16-109 GYRO GROUP A1 00 139 LAIRD DRIVE GYRO DEALERSHIPS TORONTO ON 418.07.13RE-ISSUED FOR SPA A1 00 SITE PLAN A -T/O HIGH PARA. A9 A10 A11 A12 1 -LEVEL -MEZZANINE -T/O HIGH PARA. -U/S PORTAL STEEL A11 A12 A13 -U/S CANOPY -T/O LOW PARAPET A13' 4 OPEN AIR SHOWROOM LOW SEATING WALL BRANDING WALL EXTENSION OF CANOPY SHOWROOM PASSAGEWAY AE AF AG VM TG TG TG 4 1 7 2 7 2 A U O A U O R H M W O O C N A ELEVATION MATERIAL LEGEND ACM PANELS -LIGHT METAL PANEL WALL ANNODIZED ALUMINUM 85% MIN. BIRD FRIENDLY CHROME SIGNAGE SMOOTH CONCRETE VM TG FG CLEAR GLASS W/ mm DOTS ON 50 CLEAR GLASS W/ FROSTED GLASS ISSUE DATES AND DISTRIBUTION 116 Spadina Avenue, Suite Kohn Partnership Architects Tel 416.703.6700 www.kohnarchitects.com 118.07.13RE-ISSUED A4 01 S A 5 ELEVATION DETAIL -A-A A4 01 0 ELEVATION DETAIL -SOUTH ELEVATION 2 S A 1 SAMPLE MATERIALS MAZDA A -LEVEL 1 1 A -MEZZANINE 1 1 A -T/O HIGH PARA. 1 7 A -U/S PORTAL STEEL 0 A11 A12 A13 A -U/S CANOPY 1 6 A -T/O LOW PARAPET 1 3 A13' 2 4 4 4 8 2 7 0 3 2 9 7 1 4 7 0 7 1 1 2 4 3 7 OPEN AIR SHOWROOM LOW SEATING WALL BRANDING WALL EXTENSION OF CANOPY SHOWROOM PASSAGEWAY 5 A -LEVEL 1 0 5 A -MEZZANINE 3 5 A -T/O HIGH PARA. 7 7 A -U/S PORTAL STEEL 0 AE AF AG A -U/S CANOPY 4 2 A -T/O LOW PARAPET 5 3 1 2 2 0 3 9 6 2 VM VM VM TG TGTG VM VM VM TG TG TG TG TG TG 2 4 3 7 7 1 1 1 4 7 0 2 9 7 2 7 0 3 4 4 1 2 6 1 4 1 6 1 A UM UM OMP S E P E S OGH G E A UM NUM COM OS T P NE D R GR Y M T L A E WA GR R F N HE A UM N M W NDOW F ME NO ED 5 HR ME G AG 6 S AN RE AN S ELEVATION 1 2 3 4 5 6 7 GLAZING VM TG TN SP FG 8 ALL DIMENSIONS DO NOT SCALE DRAWINGS. CONTRACTOR SHALL PRIOR TO STARTING ARCHITECT AND CONFORM TO ALL JURISDICTION PERTAINING DOCUMENTS BY WILL PROVIDE WRITTEN INFORMATION REGARDING LOCATIONS OF EXPOSED FIXTURES ARE INDICATED OVER THE MECHANICAL LOCATED, TO BE NO INVESTIGATION REGARDS TO THE COPYRIGHT 2005 COPYRIGHT OF ARCHITECT. THE CONTAINED THEREIN PRIOR WRITTEN ALL DRAWINGS REQUEST. ISSUE DATES No.Date 116 Spadina Kohn Partnership Tel 416.703.6700 118.07.13RE-ISSUED A4 01 SCALE 1 50 ELEVATION DETAIL -A-A 3 A4 01 SCALE: 1 50 ELEVATION DETAIL -SOUTH ELEVATION 2 SCALE: 1 1 SAMPLE MATERIALS MAZDA Site Plan Elevation Detail South Elevation Car Dealership First Level

COMMERCIAL/ RENOVATION & INTERIOR RETROFIT SHARED WORK SPACE Toronto 2019

Plot Area: 15000 sqm

Role: Intern Architect assisting Senior Architect

Applications: Zoning Certificate/Variance, CofA, Building permit

Responsibilities:

- Create Revit model in both phases: existing & new construction.

- Create Existing and demolition drawings as per site visit measurements.

- Examine existing wall sections to comply to SB10 energy requirements: adding insulation to existing masonry walls - Replace corrugated metal panels with new metal siding wall systems.

- Research code requirements for unprotected openings, washrooms & travel distance requirements

- Preparing Building permit drawings set.

- Assist in drawings Coordination with mechanical, electrical & structural consultants.

- Attend coordination meetings with engineering consultants

39

LEVEL 1 ROOF MID ROOF LOWER ROOF 3 2 1 INTERNAL CEILING 3 3 8 0 4 0 4 4 1 4 9 4 E NG S R C U E 2 3 8 7 3 0 0 6 5 6 0 4 LOUNGE AREA HOT DESKS WOMEN WASH ROOM MEN WASH ROOM UNIVERSAL WASHROOM MEETING DEDICATED DESKS OPEN OFFICE LOUNGE 10 PERSONS OFFICE 1 2 8 0 8 8 9 1 3 9 1 LEVEL 1 0 MEZZANINE 0 ROOF 6 A OWSJ LEVEL 1 0 OWSJ MEZZANINE 9 8 FILE NAME: A0 C:\Users\lksebati\Documents\39 Advance Road_lksebati.rvt A5 SCA E 1 10 BUILDING SECTION -NORTH/SOUTH 1 A5 SCA E 1 10 BUILDING SECTION -EAST/WEST 2 LEVEL 1 0 ROOF 6 MID ROOF 5 LOWER ROOF 4 3 2 1 INTERNAL CEILING 3 3 3 8 0 4 0 4 4 1 4 9 4 X NG S UC U E 2 3 8 7 3 0 0 6 5 6 0 4 LOUNGE AREA HOT DESKS WOMEN WASH ROOM MEN WASH ROOM UNIVERSAL WASHROOM MEETING DEDICATED DESKS OPEN OFFICE LOUNGE 10 PERSONS OFFICE 1 2 8 0 8 8 9 1 3 9 1 8 12 PERSONS FILE NAME: A0 C:\Users\lksebati\Documents\39 Advance Road_lksebati.rvt A5 00 SCA E 1 0 BUILDING SECTION -NORTH/SOUTH 1 A5 00 E 1 0 BUILDING SECTION -EAST/WEST 2 Ax A B 3 4 2 1 A5-01 HUDDLE BOOTHS STORAGE ROOMS OPEN TO 1203 ft² DEDICATED DESKS (16) 1-37 PATIO LANDSCAPE TV/MEDIA WALL COFFEE BAR/VENDING CONNECTION TO 37 RECEPTION FEATURE WALL GROUND LEVEL 802.83 sm/ 8641.5 sf 23.68 m² 255 ft² 6 PERSON OFFICE 15.69 m² 1-24 16.10 m² 173 ft² 3 PERSON OFFICE 1-26 12.88 m² 139 ft² MEETING 19.63 m² 1-35 19.70 m² 1-34 15.80 m² 170 ft² 4 PERSON OFFICE 1-33 179 ft² 4 PERSON OFFICE 1-32 46.58 m² 501 ft² 12 PERSON OFFICE 1-30 1-29 1-23 1-22 9.66 m² 104 ft² SMALL MEETING 25.64 m² 276 ft² 167.26 m² 1-02 5 H O R T E R M P A R K N G 31 COPY STATION MAIN ENTRANCE E X T E X T MEETING ROOM 1-27 1 6 6 27100 22800 11985 1278 11811 7640 1290 4193 2506 1356 1889 924 924 924 924 8544 1219 600 R750 1509 1300 2381 3-1W W-06 W-02 W-02 W-01 W-02 W-07 W-08 W-10 W-11 W-12 5 A6-00 A5-01 W1 W4 W3 W3 W3 W3 W3 W3 1-00 3.37 m² 36 ft² ELEC 1-03 1-04 7.26 m² 78 ft² JANITOR/ MECH 1-16 5.69 m² 61 ft² WELLNESS ROOM 36 ft² SERVER 1-18 3.20 m² 34 ft² PHONE BOOTH 34.51 m² 371 ft² LOUNGE 3.20 m² 34 ft² PHONE BOOTH 3.71 m² 40 ft² B.F PHONE BOOTH 1-06 153 ft² WOMEN'S W/R 1-12 13.82 m² 1-14 6.38 m² 69 ft² UNIVERSAL W/R 22 ft² STORAGE 1-07 A6-03 2642 3934 2578 P2 P5 3068 A6-03 5461 1649 A6-03 2716 3593 6659 P4 3 A6-03 7 A6-03 P1 P2 P2 P6 P2 P6 P6 P1 P2 P5 P2 3695 3824 1.86 m² 20 ft² SPRINKLER 1-01 22 ft² STORAGE 1-08 2.08 m² 22 ft² STORAGE 1-09 1-10 2.22 m² 24 ft² STORAGE 1-11 BYCYCLE PARKING 1-28 D131 D130 D129 D126 D127 D125 D124 D136 D134 D133 D132 D135 D115 D123 D122 D121 D120 D119 D118 D116 D105 D112 D114 D111 D110 D107 D106 D102 D100 LOUNGE DESKS 1 9 A6-02 D113 A6-04 3 A 1 42 P7 2713 4131 1-38 RECESSED LIGHT IN CONCRETE E X T 2100 3663 2684 D137 D102B D102A 924 4594 4584 2967 3868 W-05 W-05 W-05 P5 10 A6-01 7 A6-01 4 6 11903 49935 18766 12214 P5 W-03 W-4 W-4 W-05 W-05 W-05 W-05 W2 W-05 33 97 0 59 0 5 3701 1800 7700 5300 1800 P2 1000 W-4 A B 3 4 3 SKYLIGHT E 2-04 2-06 1 3 6 6 9 14 1 2 0 2 4 5 1 7 4 1 4 4 0 2 5 4 6 4 7 1 5 8 4 5 210 ft² MEETING 2-01 INFILL EXISTING MATCH EXISTING 11.99 m 13088 A5-01 W3 W-06 W-08 W3 W3 W3 12.37 m² 133 ft² COFFEE BAR 56 ft² PHONE 2-02 P5 P2 P2 D206 1 2 A5-00 A6-01 1700 3861 1500 924 3661 806 3580 B 3 4 1 11985 Ax A B 1 65' 0" EXISTING MECHANICAL SHOP S G E O W O & N 13349 LOCATED, TO Project: Drawing Drawn By: Date Plotted: PROJECT NORTH ISSUE DATES No. Date 116 Spadina Kohn Partnership Tel 416.703.6700 5/3/2019 FLOOR THE DOWNING DRW 39 ADVANCE 39 ADVANCE RENOVATION ETOBICOKE 119.04.25ISSUED A2-00 SCALE: 1 : 100 PROPOSED FLOOR PLAN -LEVEL 1 1 PROPOSED FLOOR PLAN -MEZZANINE A2-00 SCALE: 1 100 -MEZZANINE 4 A2-00 SCALE: 1 100 EXISTING FLOOR PLAN -LEVEL 1 3
ARCHITECTS 10 DRAWING LIST (STRUCTURAL) M100MECHANICAL LEGENDS SCHEDULES AND DRAWING LIST DRAWING LIST (MECHANICAL) MECHANICAL DETAILS SITE PLAN FP/PD GROUND FLOOR AND MEZZANINE (DEMO) FP/PD GROUND FLOOR AND MEZZANINE (NEW) HVAC GROUND FLOOR AND MEZZANINE M101 M102 M200 M201 M300 ROOF PLAN M400 E100ELECTRICAL LEGEND, SPEC., DRAWING LIST, SCHEDULES DRAWING LIST (ELECTRICAL) SITE PLAN DEMOLITION PLAN GROUND FLOOR AND MEZZANINE POWER SYSTEMS GROUND FLOOR & MEZZANINE LIGHTING PLAN GROUND FLOOR & MEZZANINE E102 E200 E300 E400 ELECTRICAL ROOF PLAN E500 ELECTRICAL ELEVATIONS E600 A0 ALL DIMENSIONS ARE GIVEN MILLIMETRES WILL PROVIDE WRITTEN OR GRAPHIC INFORMATION REGARDING THE INTE LOCATIONS EXPOSED ECHANICAL COPYRIGHT THIS DRAWING AND ARCHITECT. THE DRAWINGS AND OF SERVICE BY KOHN ARCHITECTS CONTAINED THEREI MAY NOT BE Project: Drawing Title: Drawn By: Date Plotted: PROJECT NORTH TRUE NORTH ISSUE DATES AND DISTRIBUTION 116 Spadina Avenue, Suite Kohn Partnership Architects Tel 416.703.6700 www.kohnarchitects.com 40_buildingpermt_svanes@kohnarchitects.com.rvt 5/3/2019 11:27:06 COVER SHEET THE DOWNING STREET LK/VC 39 ADVANCE ROAD 39 ADVANCE RENOVATION ETOBICOKE
KOHN
ADVANCE
RENOVATION 37 ADVANCE ROAD, TORONTO, ONTAR O ARCHITECTURAL CONSULTANT: KOHN PARTNERSHIP ARCHITECTS INC. 116 SPADINA AVENUE. SUITE 501 TORONTO. ONTARIO M5V 2K6 T: 416-703-6700 F: 416-703-6704 EMAIL: info@kohnarchitects.com MECHANICAL AND ELECTRICAL CONSULTANT: THE AQUILA GROUP 40 UNIVERSITY AVENUE, SUITE 1300 TORONTO, ONTARIO M5J 1T1 T: 416-340-1937 x 256 F: 416-340-1022 www.theaquilagroup.com STRUCTURAL CONSULTANT: J.R. JONES ENGINEERING LTD. 51 JOHN ST. W. BRADFORD, ON L3Z 2A9 T: 905-778-8819 EMAIL: jrj@jrjoneseng.ca DRAWING LIST (ARCHITECTURAL) NUMBER SHEET NAME Issue#3 (Add Date) Issue#4 (Add Date) Issue#5 (Add Date) 40-Construction Documents Construction Documents A0-01OBC COMPLIANCE SCHEDULES A0-02WINDOW SCHEDULE A1-00SITE PLAN AND SITE STATISTICS A2-01ROOF PLANS A3-00RCP A4-00BUILDING ELEVATIONS A5-01WALL SECTIONS A6-00INTERIOR ELEVATIONS A6-01MILLWORK PLANS AND ELEVATIONS A6-02INT. ELEVS. WOMEN'S, MEN'S UNIV. WC A6-03INTERIOR ELEVATIONS- GLASS PARTITIONS A6-04STAIR AND LOUNGE AREA SECTION INTERIOR VIEWS (BUILD NG PERMIT AND CONSTRUCTION) THE DOWNING STREET GROUP
ROAD
LEVEL 0.00 MID ROOF 5.17 T.O. INTERIOR CEILING 190mm CONCRETE BLOCK (EXISTING) PAINTED EXISTING FOUNDATION EXISTING ROOF TO REMAIN LEVEL 0.00 MEZZANINE 6.56 OWSJ LEVEL OWSJ MEZZANINE 5.89 RECESSED LED LINEAR LIGHTING EXISTING CROSS BRACING TO REMAIN EXISTING BEAM AND JOISTS 30mm METAL SIDING SYSTEM C/W -GIRT CONNECTIONS GIRT SUPPORT AIR SPACE (25mm) 50MM RIGID INSULATION 16mm DENS GLASS SHEATHING 152mm METAL STUDS 610mm O.C. MAX. BATT INSULATION 13mm GYPSUM BOARD EXISTING CONCRETE FLOOR EXISTING BEAM AND JOISTS FLASHING ALUMINUM WINDOW SILL FLASHING 90mm PAINTED SMOOTH FACED STACKED BOND MASONRY BLOCK 50MM RIGID INSULATION AIR BARRIER 16MM GLASS MATT SHEATHING 152mm METAL STUDS 610mm O.C. MAX. BATT INSULATION 13mm GYPSUM BOARD SOLID BLOCK COURSE 190MM CONCRETE BLOCK FOUNDATION WALL(SEE STRUCTURAL) 1 90mm MASONRY (EXISTING) PAINTED 190mm CONCRETE BLOCK (EXISTING) 152mm METAL STUDS 610mm O.C. MAX. BATT INSULATION AIR VAPOUR BARRIER 13mm GYPSUM BOARD NEW CURTAIN WALL W/ CLEAR GLASS EXISTING OPENING EXISTING FOUNDATION EXISTING ROOF TO REMAIN -FINISHED METAL PANEL ON CONCRETE BLOCK 152 STEEL STUDS AIR/VAPOUR BARRIER 13MM GYPSUM BAORD LEVEL 0.00 MEZZANINE 6.56 OWSJ LEVEL MEZZANINE 5.89 PRIOR TO STARTING ANY THE WOR AND REPORT ANY DISCREPANCY TO THE CONTAINED THEREI MAY NOT REPRODUCED WHOLE OR PART WITHOUT REQUEST. Project No. Scale: Project: Drawing Title: Drawn By: Date Plotted: Drawing No.: Checked By: SEAL PROJECT NORTH TRUE NORTH ISSUE DATES AND DISTRIBUTION LOG 116 Spadina Avenue, Suite 501, Toronto ON M5V 2K6 Kohn Partnership Architects Inc. 10 5/3/2019 11:30:00 AM WALL SECTIONS 18-138 THE DOWNING STREET GROUP DRW A5-01 39 ADVANCE ROAD 39 ADVANCE ROAD RENOVATION ETOBICOKE ONTARIO CHK A5-01 SCALE: 10 Wall Section @ Existing Block Wall A5-01 SCALE: 10 Wall Section @ New Metal Panel and Masonry Wall A5-01 SCALE: 10 Wall Section @ New Glazing in Existing Wall Main Level Wall Sections Section Details LEVEL 0.00 MID ROOF 5.17 T.O. INTERIOR CEILING 190mm CONCRETE BLOCK (EXISTING) PAINTED 152mm METAL STUDS 610mm O.C. MAX. AIR VAPOUR BARRIER 13mm GYPSUM BOARD DROPPED DRYWALL CEILING EXISTING FOUNDATION EXISTING STRUCTURE EXISTING ROOF REMAIN LEVEL 0.00 MEZZANINE 6.56 LEVEL MEZZANINE 5.89 BLOCK LEVEL 0.00 LOWER ROOF 4.28 1 90mm MASONRY (EXISTING) PAINTED 190mm CONCRETE BLOCK (EXISTING) 152mm METAL STUDS 610mm O.C. MAX. BATT INSULATION AIR VAPOUR BARRIER 13mm GYPSUM BOARD NEW CURTAIN WALL W/ CLEAR GLASS EXISTING OPENING EXISTING FOUNDATION EXISTING ROOF TO REMAIN -FINISHED METAL PANEL ON CONCRETE BLOCK 152 STEEL STUDS AIR/VAPOUR BARRIER 13MM GYPSUM BAORD PRIOR TO STARTING ANY THE WOR AND REPORT ANY DISCREPANCY TO THE CONTAINED THEREI MAY NOT REPRODUCED WHOLE OR PART WITHOUT REQUEST. Project No. Scale: Project: Drawing Title: Drawn By: Date Plotted: Drawing No.: Checked By: SEAL PROJECT NORTH TRUE NORTH ISSUE DATES AND DISTRIBUTION LOG 116 Spadina Avenue, Suite 501, Toronto ON M5V 2K6 Kohn Partnership Architects Inc. 10 5/3/2019 11:30:00 AM WALL SECTIONS 18-138 THE DOWNING STREET GROUP DRW A5-01 39 ADVANCE ROAD 39 ADVANCE ROAD RENOVATION ETOBICOKE ONTARIO CHK A5-01 SCALE: 10 Wall Section @ Existing Block Wall A5-01 SCALE: 10 Wall Section @ New Glazing in Existing Wall
POST CONSTRUCTION
https://www.workco.ca/workcocommunity https://www.workco.ca/workcocommunity

INTERNATIONAL EXPERIENCE

02
MARINA CLUB P Page: Page: Page: Page: Page: Page: Page: Page: Page: Page: 1-4 5-7 8-9 13-14 15-16 17-18 19-21 22-24 25-26 27-30 A PROFESSIONAL INSIDE-OUT HOUSE BLOOMING HOUSE SOCIAL TOWNHOUSES MUSICIAN HOUSE PALM PANORAMIC HOUSE ARCHITECTURE UNIVERSITY EXTENSION SOCIAL HUB GREEN COMMUNITY PLATFORM DOWNTOWN PLAZA ACADEMIC P01 P02 P03 Page: 10-12 EXCLUSIVE GULF VILLAS P04 P05 P06 P07 A01 A02 A03 A04 CONTENTS

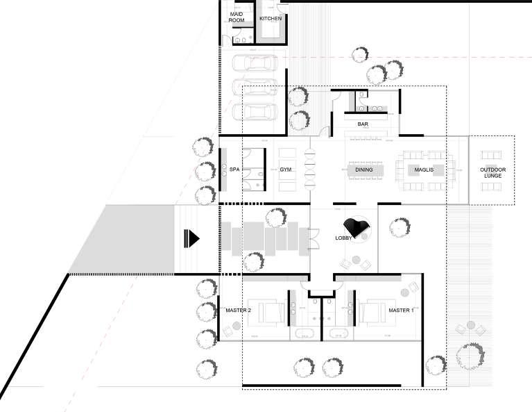
PRIVATE RESIDENCE

INSIDE- OUT HOUSE

Dubai, UAE 2015

DHE_Design Proposal 27-03-2016

VILLA TYPE B1

Plot Area: 2000 sq m

Role: Project designer Full design and presentation

Status: Issued for construction

Design Keywords:

- Privacy and Comfort

- Desert environment friendly

- Semi enclosed out door space as the main design focal point ( courtyard architecture)

- Modern and Simplicity

- Natural daylight and shading

- Blur boundary between inside - outside

- Integrate landscape in the architecture design

- Clear separation of guest area

- Free flow layout connecting indoor and out door spaces

1 2 3 5 6 7 8 9 10 11 12 13 14 15 16 17 18 19 20 21 4 22 1- ENTRANCE LOBBY 2- STAIRCASE LOBBY 3- GUEST LIVING/DINING 4- GUEST BEDROOM 5- GUEST POWDER ROOM 6- INDOOR CAR GARAGE 7- STORAGE 8- FAMILY POWDER ROOM 9- FAMILY DINING 10-FAMILY LIVING 11-PLAYING ROOM TOTAL AREA OF GROUND FLOOR 438 sqm 12-OUTDOOR LOUNGE 13-WASH ROOM 14-STORAGE 15-SHOW KITCHEN 16-INDUSTRIAL KITCHEN 17-STORAGE 18-LAUNDRY ROOM 19-MAIDS ROOM 20-DRIVER ROOM 21-OUTDOOR GARAGE 22-Storage 10M 5 Internal Experience Ground Floor Layout N 1 P01 1 2 3 5 6 7 8 9 10 11 12 13 14 15 16 17 18 19 20 21 4 22 10M 5 X:\PAUL\08 Other\Whitespace LOGO.jpg
NEIGHBOR STUDIES
View GROUND FLOOR STUDIES SUN & WIND STUDIES FIRST FLOOR STUDIES 2
Street
Ground Floor Horizontal Section Ground Floor Bubble Diagram
First Floor Bubble Diagram First Floor Horizontal Section
3
Isometric Final Model
Entrance View Internal View 4
POST CONSTRUCTION

PRIVATE RESIDENCE

BLOOMING HOUSE

2015 Dubai, UAE

DHE_Design Proposal 14-02-2016

VILLA TYPE B1

Plot Area: 1500 sq m

Role: Project designer Full design and presentation

Status: Issued for construction

Design Keywords:

- Integrating Landscape within internal spaces.

- Free flow layout connecting indoor and out door spaces.

- Journey experience throughout different spaces

- Integrating Double height spaces to provide constant visual links.

- Iconic architecture.

- Cantilevering volumes on first floor /Shaded outdoor on ground level.

- Contrasting materials.

- Maximizing orientation towards the north and the

1 3 7 6 5 13 14 15 12 2 art sculpture service stairscase patio basement covered car park 4 8 9 17 16 10M 5 A A B B 11 X:\PAUL\08 Other\Whitespace LOGO.jpg
Ground Floor Layout N 5 P02 1 3 7 6 5 13 14 15 1- LOBBY 12 2- FAMILY KITCHEN 3- DIRTY KITCHEN 4- FAMILY LIVING 5- STAIR CASE LOBBY 6- FORMAL DINING 7- FORMAL LIVING 8- CIGAR BAR 9- WASH ROOM 10- STORAGE 11-POWDER ROOM 12- SECOND ENTRANCE 13- LIBRARY/ OFFICE 14- GUEST LIVING 15- GUEST BEDROOM 16- DRIVER ROOM TOTAL AREA 480 SQ.M 2 art sculpture outside service stairscase patio basement covered car park 4 8 11 17 17- Storage 16 10M 5
Garden View
Section B-B
A-A 1 7 6 5 14 15 1- LOBBY 12 2- FAMILY 3- DIRTY 4- FAMILY 5- STAIR 6- FORMAL 7- FORMAL 8- CIGAR 9- WASH 10- STORAGE 11-POWDER 12- SECOND 13- LIBRARY/ 14- GUEST 15- GUEST 16- DRIVER TOTAL art sculpture covered car park 4 17- Storage 16 10M 5 A A B 1 7 6 5 14 15 1- LOBBY 12 2- FAMILY KITCHEN 3- DIRTY KITCHEN 4- FAMILY LIVING 5- STAIR CASE LOBBY 6- FORMAL DINING 7- FORMAL LIVING 8- CIGAR BAR 9- WASH ROOM 10- STORAGE 11-POWDER ROOM 12- SECOND ENTRANCE 13- LIBRARY/ OFFICE 14- GUEST LIVING 15- GUEST BEDROOM 16- DRIVER ROOM TOTAL AREA 480 SQ.M art sculpture 4 17- Storage 10M 5 A A B 6
Section
Entrance View 7

SOCIAL TOWNHOUSES

Tunisia 2015

Plot Area: 1920 sq m

Role: Project designer Design collaboration with senior architect and full presentation

Status: Design Development

Project Brief: Compact housing, able to accommodate the highest possible number of units. Therefor, the main challenge was to balance between functionality and healthy comfortable living.

Design Keywords:

- Essential and Functional

- Compact and Affordable

- Privacy and Comfort

- Natural Daylight and Shading

- Free flow layout/ Open plan

- Modern and Simplicity

- Void and solid study: Integrating Green Pockets through the model

- Cantilevering Elements/ Shaded outdoor underneath

HOUSING
Volumes Study
East Facade/ Garden Entrance 8 P03
Volumes Study
West Facade/ Main Entrance View Ground Floor Layout First Floor Layout Second Floor Layout Third Floor Layout 1 3 7 6 5 13 14 15 1- LOBBY 12 2- FAMILY KITCHEN 3- DIRTY KITCHEN 4- FAMILY LIVING 5- STAIR CASE LOBBY 6- FORMAL DINING 7- FORMAL LIVING 8- CIGAR BAR 9- WASH ROOM 10- STORAGE 11-POWDER ROOM 12- SECOND ENTRANCE 13- LIBRARY/ OFFICE 14- GUEST LIVING 15- GUEST BEDROOM 16- DRIVER ROOM TOTAL AREA 480 SQ.M 2 art sculpture outside service stairscase patio basement covered car park 4 8 11 17 17- Storage 16 10M 5 A A B B 1 3 7 6 5 13 14 15 12 2 art sculpture outside service stairscase patio basement covered car park 4 8 11 17 16 10M 5 A A B B 1 3 7 6 5 13 14 15 12 2 art sculpture outside service stairscase patio basement covered car park 4 8 11 17 16 10M 5 A A B B 1 7 6 5 14 15 12 art sculpture 4 10M 5 A A B 9

EXCLUSIVE GULF VILLAS

Dubai, UAE

Each Plot Area: 1200-1440 sq m

Role: Project designer Full design and presentation

Status: Issued for construction

Project Brief:

The initial goal was to develop a flexible functional smart layouts that can be reintroduced in different articulation methods according to market/ client demands: modern, modern arabesque, and classic.

I was responsible to create the layout to the right, which was then reintroduced in two types of articulation, modern, and modern arabesque. I was responsible to deliver the modern arabesque one fully.

Design Keywords:

- Bright and Spacious

- Essential and Functional

- Open & Flexible plan

- Connecting in- and outdoor (Gulf court views)

- Full transparency towards Gulf court views

- Privacy towards street side

- Inviting entrance

RESIDENTIAL / COMMUNITY DEVELOPMENT
1 3 7 6 5 13 14 15 1- LOBBY 12 2- FAMILY 3- DIRTY 4- FAMILY 5- STAIR 6- FORMAL 7- FORMAL 8- CIGAR 9- WASH 10- STORAGE 11-POWDER 12- SECOND 13- LIBRARY/ 14- GUEST 15- GUEST 16- DRIVER TOTAL AREA 2 art sculpture outside service stairscase patio basement covered car park 4 8 11 17 17- Storage 16 10M 5 A A B B
Roof plan (scale 1/200) (parapet height 1.6m) DHE_Design Proposal 14-02-2016 VILLA TYPE B1
Ground Floor Layout
Community Development Physical Model Villas Site Location
2016 10 P04
Modern Villas Physical Model
First Floor Layout Section 1 3 7 6 5 1- LOBBY 12 2- FAMILY KITCHEN 3- DIRTY KITCHEN 4- FAMILY LIVING 5- STAIR CASE LOBBY 6- FORMAL DINING 7- FORMAL LIVING 8- CIGAR BAR 9- WASH ROOM 10- STORAGE 11-POWDER ROOM 12- SECOND ENTRANCE 13- LIBRARY/ OFFICE 14- GUEST LIVING 15- GUEST BEDROOM 16- DRIVER ROOM TOTAL AREA 480 SQ.M 2 art sculpture outside service stairscase patio basement covered car park 4 8 11 17 17- Storage 16 10M 5 A B B Street Facade View/ Modern arabesque bedroom living room Light Weight Structure Area for mechanical equipment Glass Handrail Roof Layers Section Section Principle 11
community Perspective View Villa Perspective Garden Facade View/ Modern arabesque

COMMERCIAL & HOSPITALITY

MARINA CLUB

Abu Dhabi, UAE 2016

Plot Area: 4800 sqm

Role: Project designer

Full design and presentation

Status: Concept Design

Project Brief:

A Social club on a strategic location, at the marina waterfront,

Ground Floor Layout
SITE LOCATION N 00 GROUND & FIRST FLOOR PUBLIC FACILITIES/ SMOOTH ACCESSIBILITY SECOND & THIRD FLOOR VIP CLUB DETACHED MASSING/ LIMITED ACCESSIBILITY 01 02 HIGHLIGHTING VIP CLUB MASSMAXIMIZING MARINA VIEWS CENTRAL PUBLIC AREA EXTRA PUBLIC SPACESMOOTH ACCESSIBILITY BASIC ARRANGEMENT 01 02 03 04 13 P05
Water Front/ Marina Entrance View
Second Floor Layout
14 01 02 03
Third Floor Layout

MUSICIAN HOUSE

Plot Area: 2600 sq m

Role: Project designer

Full design and presentation

Status: Concept design

Design Keywords:

- Sense of place, Journey experience through spaces

- Blending nature within the architecture

- Solid & Void study: light & shadow/ inside & outside spaces

- Free flow layout / seamless relation between inside & outside

- Iconic / Unique

- Water bodies as a design focal feature

- “Floating” architecture

- Semi enclosed gardens/ Courtyards

- Privacy & Comfort

PRIVATE
1 3 5 1- LOBBY 2- FAMILY KITCHEN 3- DIRTY KITCHEN 4- FAMILY LIVING 5- STAIR CASE LOBBY 6- FORMAL DINING 7- FORMAL LIVING 8- CIGAR BAR 9- WASH ROOM 10- STORAGE 11-POWDER ROOM 12- SECOND ENTRANCE 13- LIBRARY/ OFFICE 14- GUEST LIVING 15- GUEST BEDROOM 16- DRIVER ROOM TOTAL AREA 480 SQ.M 2 art sculpture outside service stairscase patio basement covered car park 4 11 17- Storage 16 10M 5 A
RESIDENCE
Entrance Experience
Ground Floor Layout N 15 P06
2016 Sharjah, UAE
View Facade 16
Garden

PRIVATE RESIDENCE

PALM PANORAMIC HOUSE

2016 Dubai, UAE

Plot Area: 1256 sq m

Role: Project designer

Full design and presentation

Status: Schematic Design

Design Keywords:

- Marina skyline views as the main design focal point

- Full transparency towards beach side

- Privacy/ solid towards street side

- Free flow layout connecting indoor & outdoor spaces

- Iconic waterfront design

- Clear separation of guest area

ARRANGING MAIN SPACES ACCORDING TO VIEW GRID MARINA SKYLINE VIEW GRID
View
Beach Facade
Site Location/ Marina skyline views Plot Location/ Marina skyline views
N 17 P07
Marina skyline views
5940 5420 5560 10110 8500 6710 6470 5700 7970 2850 3420 5750 2150 3300 3320 1750 5100 4450 3950 First Floor BUA: 380m ² 10M 5 LEGEND 1. Bridge and corridor 2. Office 3. Pantry 4. Bedroom 1 5. Bathroom 6. Bedroom 2 7. Bathroom / Dressing 8. Bedroom 3 9. Bathroom / Dressing 10. Master Bedroom 11. His and Her Bathroom/dressing 12. Master bedroom / Living 13. Balcony OPEN TO BELOW 1 2 3 4 5 6 7 8 9 10 11 12 PLOT LIMIT 2M SETBACK 5M SETBACK 5M SETBACK 2M SETBACK 2250 2750 5940 5420 5560 10110 8500 6710 6470 5700 7970 2850 3420 5750 2150 3300 3320 1750 5100 4450 3950 First Floor BUA: 380m ² 10M 5 LEGEND 1. Bridge and corridor 2. Office 3. Pantry 4. Bedroom 1 5. Bathroom 6. Bedroom 2 7. Bathroom Dressing 8. Bedroom 3 9. Bathroom Dressing 10. Master Bedroom 11. His and Her Bathroom/dressing 12. Master bedroom Living 13. Balcony OPEN TO BELOW 1 2 3 4 5 6 7 8 9 10 11 12 PLOT LIMIT 2M SETBACK 5M SETBACK 2250 2750 1 3 7 6 5 13 14 15 1- LOBBY 12 2- FAMILY KITCHEN 3- DIRTY KITCHEN 4- FAMILY LIVING 5- STAIR CASE LOBBY 6- FORMAL DINING 7- FORMAL LIVING 8- CIGAR BAR 9- WASH ROOM 10- STORAGE 11-POWDER ROOM 12- SECOND ENTRANCE 13- LIBRARY/ OFFICE 14- GUEST LIVING 15- GUEST BEDROOM 16- DRIVER ROOM TOTAL AREA 480 SQ.M 2 art sculpture outside service stairscase patio basement covered car park 4 8 11 17 17- Storage 16 10M 5 A B B 1 7 6 5 13 14 15 1- LOBBY 12 2- FAMILY KITCHEN 3- DIRTY KITCHEN 4- FAMILY LIVING 5- STAIR CASE LOBBY 6- FORMAL DINING 7- FORMAL LIVING 8- CIGAR BAR 9- WASH ROOM 10- STORAGE 11-POWDER ROOM 12- SECOND ENTRANCE 13- LIBRARY/ OFFICE 14- GUEST LIVING 15- GUEST BEDROOM 16- DRIVER ROOM TOTAL AREA 480 SQ.M 2 art sculpture outside service stairscase basement covered car park 4 8 11 17 17- Storage 10M 5 A B Ground Floor Layout First Floor Layout Bird’s Eye View Entrance View 18

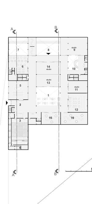
ARCHITECTURE UNIVERSITY EXTENSION

2011 Damascus, Syria

Role: Full design and presentation

Project Brief: This studio project aims to design an extension to our architecture university building, which should act as an activator to both the main building and the surrounding universities campuses. The program accommodates: exhibitions, auditorium, coffee shop, informal work shop spaces.

Design Key Concepts:

- Interactive & thought provoking design, able to activate and engage campus students.

- Respecting the main building massing and articulation, while representing it in a contemporary dynamic accent.

- Double functional massing (amphitheaters), in order to promote outdoor activities.

Emphasize visual links to city panoramic views on north elevation

CURRENT CONTEXT DOMINANT MODULE 5 3 6 4 SEMI ENCLOSED COMMUNAL SPACE MAIN AXES TO ACTIVATE SMOOTH CONNECTION TO SURROUNDING PANORAMIC VIEWS EDUCATIONAL/ CAMPUS WORKS
2 Section A-A Section B-B 10 20M 10 20M N 19 A01

EXHIBITIONS

AUDITORIUM

CAMPUS NORTH ENTRANCE BACKYARD GARDEN ENTRANCE

ENTRANCE TO EXHIBITION MASSING

Ground Floor Layout 1st Basement Floor Layout 2nd Basement Floor Layout First Floor Layout 10 20M
Communal stepped amphitheaters to activate both the north axial (the back yard of the building) and the south axial (the front of the building which links it to other universities buildings)
INTERNAL
Program Diagrams 01 Program Diagrams 02 20
ENTRANCE INFORMAL MEETINGS/ WORKSHOPS
21
University Front View/ North Panoramic Views

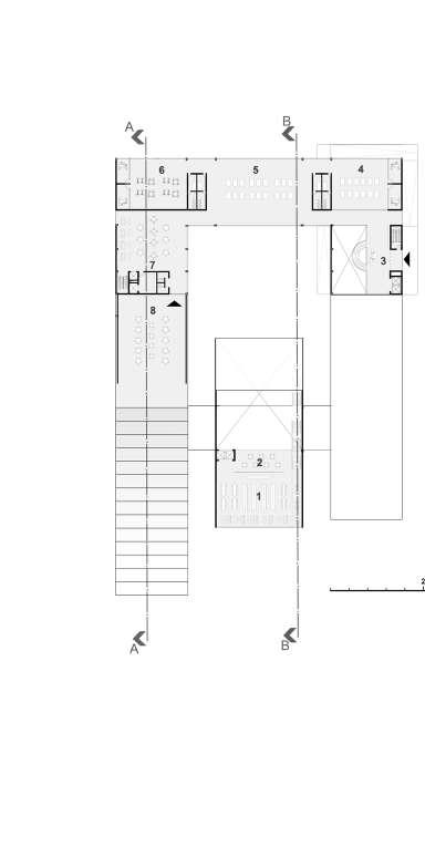
SOCIAL HUB

2010 Damascus, Syria

Plot Area 27000 sq m

Rule: Full design and presentation

Project Brief

This studio project aims to design an urban activator, within a residential neighborhood. Enhancing the scene of community and social interaction among the neighborhood residence as the main design goal. The program includes both cultural and sport facilities.

Design Key Concepts:

- Connecting the neighborhood urban fabric in one social communal space.

- Interactive architecture, where people, landscape, architecture interact with each other (amphitheaters, central courtyard, constant visual connection between different facilities)

- Human scale friendly design: reducing massing height by engaging the basement as an open floor plan, then creating smooth transition between massing and sur-

25 50M First Floor Layout PUBLIC SPACE/
CULTURE
25 50M Ground Floor Layout 25 50M First Basement Floor Layout 01 04 02 05 03 06 07 08 09 BASIC ARRANGEMENT OPEN BASEMENT BAR MASSING ENVIRONMENTAL STUDIES VISUAL CONNECTION ACCESS ROUTES INTERNAL COURTYARD VOIDS ARRANGEMENT FINAL DESIGN IMPRESSION N 22 A02
A-A
12.5 25M 12.5 25M 23
Section
Section B-B
CULTURAL EDUCATIONAL HEALTH CLUB RESTAURANTS/ COFFEE SHOPS ADMINISTRATION 24
Program Diagram
First Floor Perspective Ground Floor Perspective First Basement Perspective

GREEN COMMUNITY PLATFORM

2011 Damascus, Syria

Plot Area: 15000 sq m

Role: Full design and presentation

Project Brief:

This studio project aims to design an urban landscape platform. Enhancing the sustainable green infrastructure within dense city fabric was the main design goal.

Design Approach:

In such a high traffic noisy environment, a green platform should be physically protected from surrounding negative impacts. This protection is presented by creating four smooth transitional masses.

Design Keywords:

- Urban refreshing platform able to promote activities and social life within an urban context.

- Manipulating land topography, to achieve an interactive smooth indoor & outdoor spaces.

- Highlighting a central point, which can be used for temporary pavilions and cultural performances.

- Eco-friendly design.

PUBLIC SPACE/ CULTURE
25 50M WINTER
SUMMER GLARE PROTECTION HEATING COOLING PASSIVE AIR SYSTEM PASSIVE AIR SYSTEM WATER RESERVATION LAND TYPOGRAPHY RENEWABLE ENERGY Ground Floor Layout First Floor Partial Layout N 25 A03
NATURAL LIGHTING
25 50M Section 26

INTERIOR DESIGN & RENDER

Dubai, UAE 2016

ADDENDUM
F01
LEEN KSEBATI SELECTED WORKS 2016

Turn static files into dynamic content formats.

Create a flipbook
Issuu converts static files into: digital portfolios, online yearbooks, online catalogs, digital photo albums and more. Sign up and create your flipbook.
Architecture Portfolio_ Leen Ksebati_ 2023 by Leen Ksebati - Issuu