My first document

Page 1

Portfolio Leander Schmitz
Leander Schmitz 4 Hexagon Mehrparteinhäuser
Neumünster
in
Paramethrische
3. Semester
Trestles
Sporthalle in Berlin 5. Semester The Bow Filmprojekt über ein Fugenhaus 7. Semester Krankenhaus der Zukunft Krankenhaus auf Sylt 6. Semester Social Brick Nachverdichtungsobjekt in Lübeck 8. Semester Bachelor
1 2 3 4 5
Idee: Portfolio David Young
Selected Works 5

Hexagon

Jahr: Semester 3 im Rahmen eines Wettbewerbs

Typ: Mehrfamilienhäuser

Programme: Vectorworks, Fotoshop

Note: 1,7

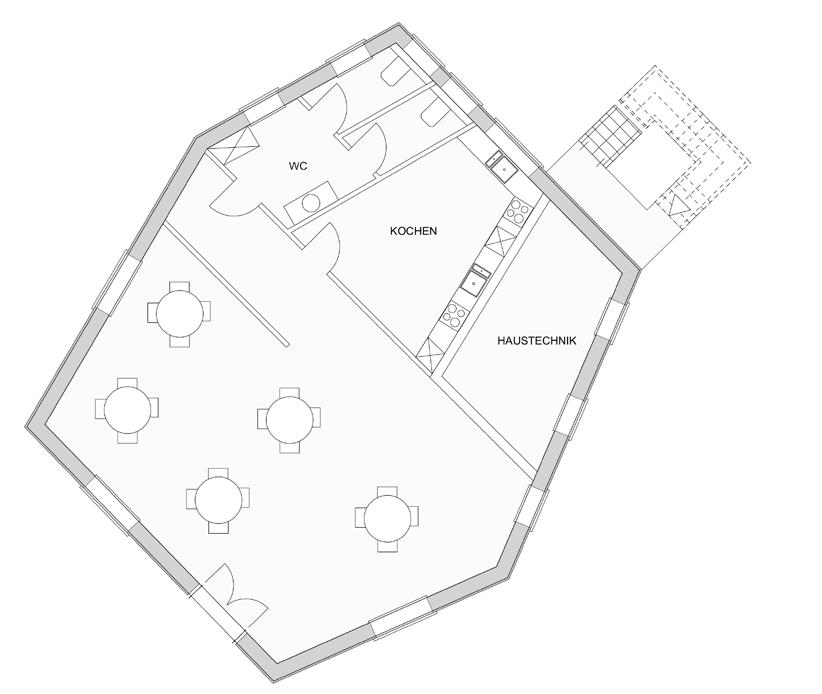
Projekt Hexagon

Das Projekt entstand im Rahmen einesvon der Hochschule organisierten Wettbewerbs. Aufgabe war es, zwei Wohngebäude mit einer BGF von ca. 150qm zu entwerfen. Besonderer Wert wurde auf Nachhaltigkeit, Variabilität und Freiraumgestaltung gelegt werden.

Die Form des Entwurfes entstand aus dem Baumbestand. Die Fassade besteht aus einer senkrechten Boden-DeckelFassade und soll so die unebene StammStrucktur eines Baumes widerspiegeln.

Im Erdgeschoss des einen Gebäudes befindet sich ein bio Laden, in dem anderen ein Cafe. Der Außenraum wurde adäquat für jung und alt entworfen.

Leander Schmitz 8
Selected Works 9

Der offen gestaltete Erdgeschossbereich vereint mithilfe eines Cafés privaten und öffentlichen Raum. Das Erdgeschoss wird zum Treffpunkt einer lebendigen Gemeinde

Die Wohnungstrennwände passen sich der Außenform an und schaffen einen spannenden Innenraum, der sich zum Wohnbereich und den Balkonen hin öffnet.

Das OG beherbergt lediglich eine Wohnung. Diese verfügt über eine Terrasse anstelle eines auskragenden Balkons und schafft so eine Auflösung der Kubatur im Dachbereich.

Leander Schmitz 10
Selected Works 11

Trestles

Jahr: Semester 5 im Kurs Baukonstruktion

Typ: Sporthalle

Programme: Revit+Rhino,Lumion, Fotoshop

Note: 1,7

Projekt Trestles

Der Entwurf orientiert sich am Referenzobjekt des Sportzentrums Mülimatt. Die Halle wurde unter Verwendung von parametrischen Tools wie Revit und Grasshopper entworfen. Durch eine großflächige Glasfassade und Oberlichter wird ein hoher Anteil an natürlichem Licht gewährleistet. Der Sportbereich befindet sich unterhalb der Geländeoberkante, um eine natürliche Kühlung der Halle zu ermöglichen.

Leander Schmitz 14

Das Tragwerk des Entwurfs leitet sich aus dem Faltwerk des Referenzobjekts ab. Die Träger bestehen aus Holz und falten sich in VForm, was sowohl die Stützenstruktur als auch das markante Fassadenbild bildet. Zwischen den Stützen wurden Lammellen eingesetzt, um einen effektiven Sonnenschutz zu bieten. Das Dach ist zum Schutz der städtischen Flora und Fauna mit einem Gründachsystem versehen.

Selected Works 15

Dachaufbau

100mm Systemerde

0,6mm Systemfilter SF

25mm Floradrain FD 25

5mm Speicherschutzmatte SSM

0,4mm Wurzelschutz WSF 40

- Bitumenbahn

- Dampfsperre

24mm OSB-Platte

200/140mm Balkenlage, Faserdämmstoff

40/60mm Querlattung

40mm Unterspannfilz

25mm Akustik Gipsplatte

Leander Schmitz 16
Selected Works 17

The Bow

Jahr: Semester 7 im Kurs Sonderthema der Architektur

Typ: Einfamilienhaus / Fugenhaus

Programme: Vectorworks, Lumion, Fotoshop

Note: 1,0

Projekt The Bow

Das Projekt „The Bow“ wurde von Henrik Rehmke und Nina Nevermann entworfen. Mithilfe von Lumion wurde ein Film über das Objekt erstellt, der eine hintergrundbezogene Geschichte erzählt.

Die Szenen im Film spiegeln einen Tag wider, wobei es immer dunkler wird, je näher man zum Schlafbereich gelangt. Schließlich endet der Film mit einer Szene im Außenbereich bei Nacht, in der ein Feuer brennt.

Der Film ist unter folgender Internetadresse abrufbar:

https://drive.google.com/file/d/1rhLryWlwRlEU0xyoJr8hbXcB2DCRyDTb/view?usp=sharing

Leander Schmitz 20
Selected Works 21
Leander Schmitz 22
Selected Works 23
Leander Schmitz 24
Selected Works 25

Das Krankenhaus der Zukunft

Jahr: Semester 6 im Kurs Entwerfen & Konstruieren 6

Typ: Krankenhaus

Programme: Vectorworks, Lumion, Fotoshop

Note: 1,0

Projekt das Krankekenhaus

der Zukunft

Aufgabe des Entwurfs war es, eine Kinderklinik auf Sylt zu gestalten. Das Gebäude erstreckt sich aufgrund der Zweigeschossigkeit über eine große Grundfläche.

Die obere Etage ist als eine Art Deck ausgeführt und beherbergt mehrere kleinteilige Satteldachstrukturen. Diese erinnern an Ferienhäuser und sollen so die Krankenhausatmosphäre abschwächen. In den verschiedenen Gebäuden befinden sich hauptsächlich Patientenzimmer, Personalräume und mehrere Spielewelten. Im UG alle relevanten Krankenhausräume wie Operationssäle, Diagnostik und Notfallambulanz.

Als Fassaden-Referenz wurden die Pfahlbauten von St. Peter-Ording herangezogen. Durch die gekreuzten Stützen, die leichte Glasfassade und das kleinere Obergeschoss entsteht ein Gefühl von Urlaub und Erholung.

Leander Schmitz 28
Selected Works 29
Leander Schmitz 30
Selected Works 31

Um die kleinteilige Bebauung im Obergeschoss modern und sauber zu gestalten, wurde die Entwässerung am Traufpunkt in die Fassade integriert. Die Regenrinne wird von der senkrechten Holzverschalung verdeckt.

An den bodentiefen Fenstern sind von innen steuerbare Schiebeläden geplant. Diese dienen als Sonnen- und insbesondere Sichtschutz.

Die thermische Hülle im Erdgeschoss wird durch die Pfostenriegelfassade gewährleistet.

Leander Schmitz 32
Selected Works 33

Die Stützen mit den Auskreuzungen sind so ausgeführt, dass sie die Entwässerung verbergen.

Die verschiedenen kleinen Innenhöfe gewährleisten ausreichende natürliche Belichtung auch im Untergeschoss.

Das gesamte Gebäude wurde in massiver Bauweise nach einem 18-Meterraster geplant. Durch die Verwendung von Holz- und Glaselementen wirkt es jedoch leichter und fügt sich in die Atmosphäre und das Erscheinungsbild von Sylt ein.

Leander Schmitz 34
Selected Works 35
Leander Schmitz 36
Selected Works 37

Social Brick

Jahr: Semester 8 im Rahmen der Bachelorarbeit

Typ: Mehr Partein Haus / Verdichtungsobjekt

Programme: Vectorworks, Lumion, Fotoshop, etc.

Note: 1,3

Social Brick

Das Ziel des Entwurfs bestand darin, ein Verdichtungsobjekt zu schaffen, welches sich harmonisch in die Umgebungsbebauung einfügt und einen Mehrwert für die vorhandenen Bewohner bietet.

Aus diesem Grund wurde ein frei stehendes Café als Solitär konzipiert, das als Katalysator für das Gebiet fungieren soll. Die Kubatur des Cafés ist ein quaderförmiger Bau, der vollständig aus Glasbausteinen besteht.

Die anderen Gebäudeteile orientieren sich sowohl in ihrer Höhe als auch in der Dachstruktur an der umliegenden Bebauung. Durch Laubengänge entstehen zusätzliche soziale Treffpunkte und die Gebäude wird miteinander verbunden.

Leander Schmitz 40
Selected Works 41

Die Wegeführung wird von den Bewohnern selbst gestaltet. Nach Fertigstellung der Bauten wird ein Kiessandgemisch auf den Freiflächen verteilt und mit Grassaat bestreut. Dort, wo die Bewohner häufig entlanggehen, entsteht ein natürlicher Weg.

Im Laufe der Zeit entsteht auf diese Weise eine selbst geschaffene Wegeführung, die nach etwa einem Jahr gepflastert wird. Nachdem die Parzellierung abgeschlossen ist, werden angepasste Spielgeräte und Sitzmöglichkeiten hinzugefügt.

Die Nutzungsanalyse zeigt, dass das Baugebiet am Rand eines Wohngebiets liegt, welches sich Richtung Nord und West erstreckt. Das Gebiet wird von gewerblichen Bauten eingerahmt.

Die Straße im Norden fungiert bereits als Hauptzufahrtsstraße für das Wohngebiet. Entsprechend wurden die Stellplätze und die Haupterschließung im Norden des Satteldachbaus platziert. Im Süden befindet sich eine kleinere Erschließung, um einen bequemen Fußgängerdurchgang zur im Süden liegenden Fackenburger Allee zu ermöglichen.

Leander Schmitz 42
Selected Works 43

Die Kubatur orientierte sich anfangs an der im Nordosten angrenzenden Tischlerei und der Umgebungsbebauung. Der nordöstliche Baukörper ist von der Wand zur Tischlerei ca. 3 m abgerückt, um natürliche Belichtung für die Wohnungen zu ermöglichen. Zwischen Baukörper und Tischlerei entstehen private Grünflächen für die Erdgeschossbewohner. Das Solitär zoniert den Innenhof und schafft öffentliche kommunikative Flächen, indem es sich an die Sichtachse des nordwestlichen Baukörpers und die südwestlichen Reihenhäuser anpasst.

Die Laubengänge dienen auch der thermischen Regulierung des Innenraums. Im Sommer (links) verhindert der hohe Sonnenstand, dass die Sonnenstrahlen den Innenraum erreichen. Im Obergeschoss entfällt die Verschattung des Laubengangs. Hier sorgen Raumhöhe und Fenster im Dachgeschoss für thermische Regulierung. Im Winter (rechts) dringt die Sonne aufgrund des niedrigen Sonnenstands bis in den hinteren Bereich des Raums vor und erwärmt ihn auf natürliche Weise.

Leander Schmitz 44
N
Selected Works 45

Aufgrund des historischen Kontextes und der Lage in Lübeck wurde sich für eine Ziegelfassade entschieden. Auf dem Baugebiet befand sich früher die Hansa-Meierei. Um den industriellen Charakter zu bewahren und die geradlinige Architektur zu unterstützen, wurde auch das Dach mit Fassadenziegeln gedeckt. Dadurch entsteht der charakteristische monolithische Eindruck einer Firma. An der Fassade wurden Stahlseile angebracht, um die Möglichkeit zu schaffen, einen Sichtschutz mit Rankpflanzen zu gestalten.

Leander Schmitz 46
Selected Works 47
Portfolio 2023 Leander Schmitz

Turn static files into dynamic content formats.

Create a flipbook
Issuu converts static files into: digital portfolios, online yearbooks, online catalogs, digital photo albums and more. Sign up and create your flipbook.
My first document by leander-schmitz - Issuu