Skip to main content

Drew & Amy 4000 Carman Dr. G106 Home Book

Page 1


County Name: Clackamas

APN / Parcel Number: 01801152

Current Ownership: Shannon Henry

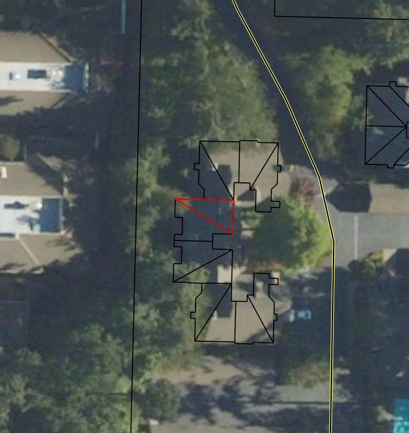
Site Address: 4000 Carman Dr Unit G106, Lake Oswego OR 97035

Mail Address: 4000 Carman Dr Unit 106, Lake Oswego OR 97035 *Owner Occupied

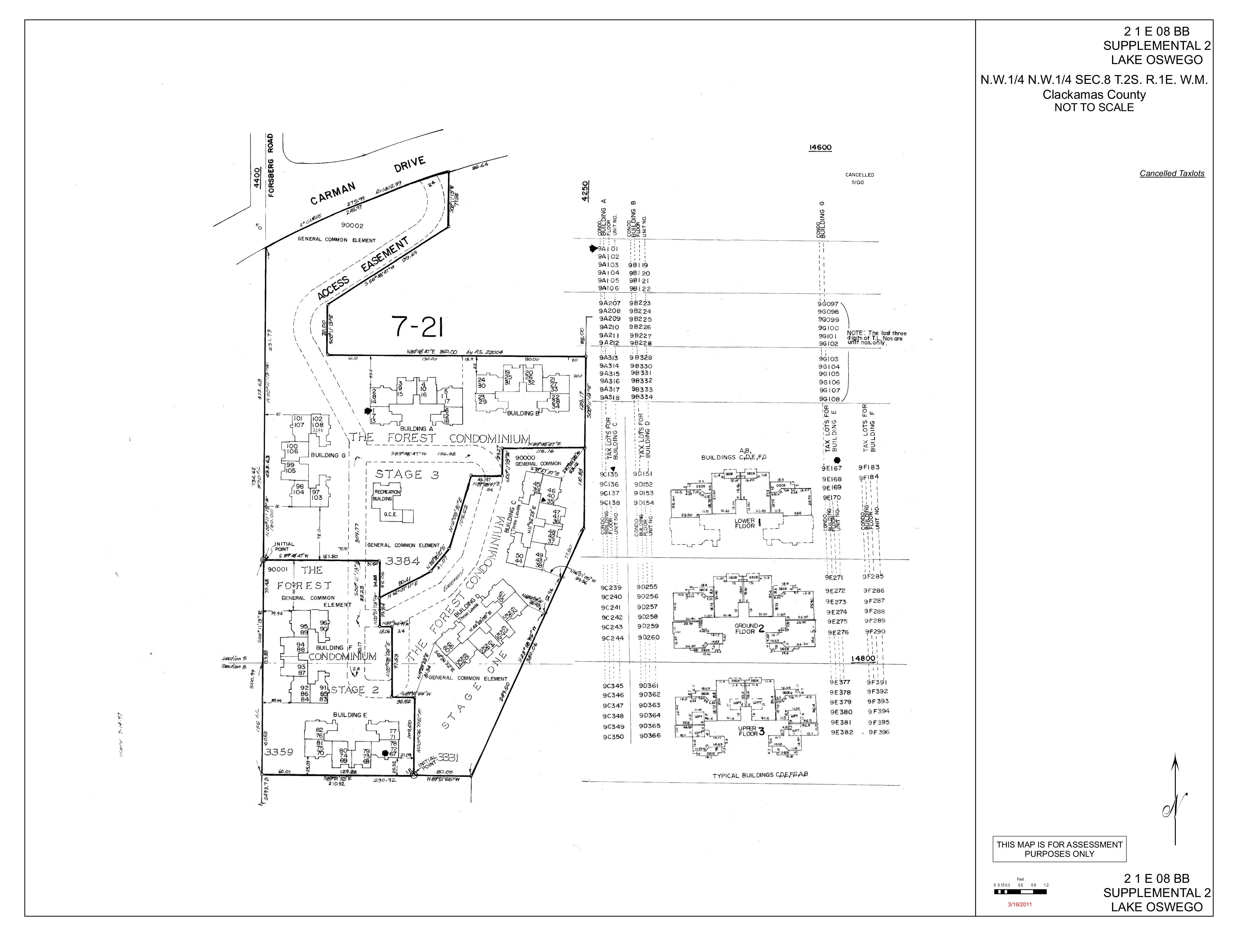
Tract / Subdivision: / Forest Condo Stage 03

Census Tract / Block: 020303 / 4003

Lot / Block:

Twn / Rng / Sec / Qtr: 02S / 01E / 05 / SW

SqFt: 993

Baths: 2

Fanno

ParcelID:01801152

SentryDynamics,Inc anditscustomersmakenorepresentations, warrantiesorconditions,expressorimplied,astotheaccuracyor completenessofinformationcontainedinthisreport

SentryDynamics,Inc anditscustomersmakenorepresentations,warrantiesorconditions,expressorimplied,astotheaccuracyorcompletenessofinformationcontainedinthisreport 03/03/2026Preparedby:TracyShea

ParcelID:01801152

SiteAddress:4000CarmanDrUnitG106

SentryDynamics,Inc anditscustomersmakenorepresentations, warrantiesorconditions,expressorimplied,astotheaccuracyor completenessofinformationcontainedinthisreport

ParcelID:01801152

SiteAddress:4000CarmanDrUnitG106

SentryDynamics,Inc anditscustomersmakenorepresentations, warrantiesorconditions,expressorimplied,astotheaccuracyor completenessofinformationcontainedinthisreport

Property Account Summary

GeneralInformation

AlternateProperty#

PropertyDescription 3384FORESTCONDOSTG3UNIT106

LastSalePrice $144,00000

LastSaleDate 02/25/2014

LastSaleExciseNumber

AV Exception

Parents

ParcelNo. Seg/MergeNo. Status FromDate ToDate Continued DocumentNumber No Parents Found

Children

ParcelNo. Seg/MergeNo. Status FromDate ToDate DocumentNumber No Children Found

ActiveExemptions No Exemptions Found

Events

Effective Date EntryDate-Time Type Remarks

09/18/2014 09/18/2014 17:48:00 The situs address has changed by HEIDIHAR

01/31/2014 02/25/2014 14:55:00 Taxpayer Changed Property Transfer Filing No.: 258402 01/31/2014 by CINDYSIM

01/31/2014 02/25/2014 14:55:00

Recording Processed Property Transfer Filing No.: 258402, Special Warranty Deed, Recording No.: 2014004786 01/31/2014 by CINDYSIM

01/29/2014 02/19/2014 14:50:00 Taxpayer Changed Property Transfer Filing No.: 258204 01/29/2014 by DROME

01/29/2014 02/19/2014 14:50:00

Recording Processed

Property Transfer Filing No.: 258204, Trustee Deed, Recording No.: 2014-004293 01/29/2014 by DROME

05/17/2007 05/22/2007 11:39:00 Taxpayer Changed Property Transfer Filing No.: 160396 05/17/2007 by ROMANSIE

05/17/2007 05/22/2007 11:39:00

Recording Processed

Property Transfer Filing No.: 160396, Warranty Deed, Recording No.: 2007-042799 05/17/2007 by ROMANSIE

08/24/2006 09/06/2006 11:10:00 Taxpayer Changed Property Transfer Filing No.: 147164 08/24/2006 by LYNNENEW

08/24/2006 09/06/2006 11:10:00 Recording Processed

Property Transfer Filing No.: 147164, Warranty Deed, Recording No.: 2006-078029 08/24/2006 by LYNNENEW

02/24/2004 03/01/2004 16:09:00 Taxpayer Changed Property Transfer Filing No.: 92081 02/24/2004 by LAURIEB

02/24/2004 03/01/2004 16:09:00 Recording Processed Property Transfer Filing No.: 92081, Warranty Deed, Recording No.: 2004-014707 02/24/2004 by LAURIEB

03/27/2002 03/27/2002 15:46:00 The situs address has changed by LINDAPET

07/01/1999 07/01/1999 12:00:00 Ownership at Conversion Warranty Deed: 98124321, 12/1/98, $ 129750

Receipts

00:00:00

SalesHistory

(ReceiptDetail.aspx? receiptnumber=5664450)

(ReceiptDetail.aspx? receiptnumber=5469025)

(ReceiptDetail.aspx? receiptnumber=5282432)

(ReceiptDetail.aspx? receiptnumber=5094942)

Details

Detailed Statement

Households Breakdown

Age Distribution

Area Schools

Assigned School

Primary School: Oak Creek Elementary School

Middle School: Lake Oswego Middle School

High School: Lake Oswego Senior High School

Primary School

Oak Creek Elementary School 1

Middle School

Lake Oswego Middle School 2

High School

Lake Oswego Senior High School 3

Other School

1. Oak Creek Elementary School

Distance: 0.65 mile(s)

Address: 55 Kingsgate Rd District: Lake Oswego Sd 7J Type: 1-Regular school

Charter: No

Title 1 Elig: 1-Yes

Male / Female: 209 / 197

2. Lake Oswego Middle School

Title 1: 5-Title I schoolwide school

Students: 406

Levels: Kindergarten - 5th Grade

0.97 mile(s)

Address: 2500 Sw Country Club Rd District: Lake Oswego Sd 7J Type: 1-Regular school

Charter: No Magnet: Students: 832

Title 1 Elig: 2-No

Male / Female: 477 / 351

3. Lake Oswego Senior High School

Title 1: 6-Not a Title I school

Address: 2501 Sw Country Club Rd District: Lake Oswego Sd 7J

Charter: No

Title 1 Elig: 2-No

Male / Female: 656 / 600

6th Grade - 8th Grade

1-Regular school

Students: 1,275

Title 1: 6-Not a Title I school Grade Levels: 9th Grade - 12th Grade

Scan QR Code for CC&Rs

CC&Rs: Forest Condominium Stage No.3

STEPS IN A REAL ESTATE TRANSACTION

1

What is an Escrow?

THE LISTING AGREEMENT

The property owner (Seller) initiates a contract, or a listing agreement, with a licensed Real Estate Agent.

2

THE SALE

Property owner (Seller) enters into a purchase contract, typically referred to as an Earnest Money Agreement, with a Buyer.

3

ESCROW

As part of the purchase contract, Seller agrees to purchase a title insurance policy for the Buyer and both agree to close the transaction with a licensed escrow company. In Oregon, most title insurance companies also offer escrow services to facilitate a convenient “one-stop” approach to closing real estate transactions.

An escrow is a neutral third party depository for legal documents and funds necessary to complete a real estate transaction. The escrow agent will disburse funds and record documents for the proper recipients according to their written instructions.

What title insurance and escrow costs are incurred in a real estate sale?

The fee for escrow services is based on the sales price of the property. This fee is typically split equally between the Seller and Buyer. However, Buyers should check with their lenders if financing is involved because some federally insured lending programs do not allow borrowers to pay this fee. The Seller typically pays for a standard owner’s policy of title insurance which names the Buyer as the insured. Charges for this policy are based on the sales price of the property. The Buyer typically pays for a lender’s policy of title insurance and any required endorsements if s/he is obtaining a new loan to purchase the property. Charges for this policy are based on the loan amount.

What services does an escrow agent perform on behalf of the Seller and Buyer?

• Upon opening of escrow, escrow agent will order a preliminary title report, which will be sent to all interested parties involved in the transaction. The report will detail the current ownership, liens and encumbrances of the property.

• Closing statements will be prepared for each party, showing all credits and debits. The escrow agent will schedule appointments for all parties to sign their final necessary documents, including any funds needed to be deposited, to complete the transaction.

• Signed loan documents are returned to the Lender, for final review and funding approval.

• Recordable documents are released to the County Clerk’s office for recording.

• Once recorded, all funds are disbursed per written instructions.

• Final title policies are issued to the insured parties.

FROM PENDING TO SOLD

ESCROW FLOW CHART

Receive and review Earnest Money Agreement and Broker’s instructions.

Open escrow. Order title report.

Determine financing.

Information gathering from Buyer and Seller.

Receive title report. Send copies to all parties in the transaction.

Resolve any title issues. Order any payoff demands.

Review file. Are conditions satisfied? Contingencies removed?

Prepare closing statement, closing instructions and transfer deed

Obtain signatures on all escrow and loan documents. Collect any funds due from Buyer and/or Seller

Record applicable documents with the County Recorder's office.

Close file. Prepare final statements. Disburse funds.

Forward final documents to all interested parties - Buyer, Seller, Real Estate Agents, Lender, Broker, Attorney, etc.

NEW LOAN

Notify Escrow with name of new lender and loan officer.

Send title report to lender.

Notification of final loan approval. Are repairs complete?

Deliver Seller & Buyer Closing Disclosures. Buyers’ consummation 3-6 days.

Loan documents delivered to escrow.

Return loan documents for final approval to fund and record.

Order loan funds.

Turn static files into dynamic content formats.

Create a flipbook