Skip to main content

PORTAFOLIO DE ARQUITECTURA 2022 | LAURA SAAVEDRA

Page 1

PORTAFOLIO PORTAFOLIO LAURA SAAVEDRA

ARQUITECTURA - 2022

CENTRO CULTURAL ARTÍSTI CO

Villa María del Triunfo, Lima, Perú. Ciclo 2020-II / Nivel 10.

CENTRO DE LA IDENTIDAD CULTURAL Lima, Lima, Perú. Ciclo 2020-I / Nivel 9.

Contenido ACADÉMICOS ARQUITECTÓNICA 01 02 03

MUSEO INTERACTIVO DE LA HISTORIA TRUJILLANA

Trujillo, La Libertad, Perú. Ciclo 2019-I / Nivel 7.

PROYECTOS
FOTOGRAFÍA

EDIFICIO DE COMERCIOVIVIENDA TEMPORAL

Barrio San Lázaro, Arequipa, Perú.

Ciclo 2017-I / Nivel 3.

CENTRO CULTURAL CASA BALLENA

San José del Cabo, Baja Cali fornia del Sur, México. Proyecto de: RIMA Desing Group.

Ciclo 2020-II / Nivel 10.

PROYECTOS PERSONALES

“KIDS LAND” SALÓN DE JUEGOS

Pachacámac, Lima, Perú. Proyecto propio. Año 2021.

MODELADO 3D 04 05
06

Bachiller de la Facultad de Ar quitectura y Urbanismo de la Universidad Ricardo Palma. Creativa, persever ante y proactiva, con habilidades de diseño, capacidad de adaptación y trabajo en equipo. Eficiente, responsable y comprometida con el cumplimiento y desarrollo de encargos dem ostrando agilidad en el rápido aprendizaje.

LAURA SAAVEDRA GUERRA INFORMACIÓN IDIOMAS SOFTWARES Villa María del Triunfo, Lima, Perú. (+51) 926 876 190 26-09-1999 laurasaavedra58@gmail.com BACHILLER DE ARQUITECTURA
Español 100% 70% Inglés AutoCAD 2D Revit Architecture Sketchup V-Ray Enscape 3D Ad Photoshop Ad InDesing MS Office 100% 90% 90% 100% 90% 80% 60% Lumion 50% Ad Illustrator 80% 90% Microsoft Excel, Word, Power Point

FORMACIÓN ACADÉMICA

EDUCACIÓN SUPERIOR

2016/Marzo2021/Enero

EDUCACIÓN EN SOFTWARES

2019/Enero

Universidad Ricardo Palma

Quinto superior

2018/Enero 2017/Enero

Grupo GALK

Sketchup V-Ray Lumion

Adobe Photoshop

Universidad Nacional de Ingeniería

Autodesk Revit Architecture

Universidad Nacional de Ingeniería

Autodesk AutoCAD 2D (Nivel Avanzado)

EXPERIENCIA LABORAL

2021/Diciembre -Actualidad

Trabajo independiente

Independiente

• Diseño propio de es pacios interiores.

• Proyectos de remodelación.

• Levantamiento arqui tectónico y diseño de mo biliarios para viviendas.

• Elaboración de planos ar quitectónicos y detalles de los mobiliarios a medida.

• Modelado 3D y vistas renderizadas.

Arquitecta junior 2021/Abril2021/Noviembre

2020/FebreroMarzo

Practicante pre-profesional *Compromiso de prácticas por un mes.

Gestion AB S.A.C.

• Levantamiento de infor mación y medidas en campo.

• Desarrollo y diseño de planos arquitectónicos.

• Modelado en 3D y dia gramación de paneles.

• Desarrollo de planos as-built.

2019/EneroFebrero

Practicante pre-profesional *Compromiso de prácticas por un mes.

Grupo Abril S.A.C.

• Elaboración de metrados de los proyectos asignados.

• Desarrollo de planos as-built.

SEMINARIOS Y WORKSHOPS

2021/Agosto BIALIMA 2021

DIADIA Arquitectura

• Asistencia al diseño y desarrollo de propuestas de proyectos en Lima y concurso internacional.

• Elaboración de planos y memorias de arquitectura para expedientes.

• Modelado 3D, elaboración de maquetas conceptuales, dia gramación, edición y fotomontaje para presentación de proyectos.

2021/Agosto

I Bienal Internacional de arquitec tura de Lima Workshop Internacional Fu turos Posibles Lima 2021

“Un legado desde la arquitectura latinoamericana al Perú en su bicentenario”

Participación como tallerista prin cipal del workshop como miem bro del estudio DIADIA Arquitec tura con el tema de Bibliotecas modulares y móviles.

PROYECTOS
PROYECTOS ACADÉMICOS

Parque y centro culturalartístico

Villa María del Triunfo, Lima, Perú Ciclo 2020-II / Nivel 10.

El distrito de Villa María del Triunfo es uno de los más olvidados y carentes respecto a infraestructura cultural y espacios públicos de todo Lima, pero aún así, su po blación joven se caracteriza por la constante práctica de actividades culturales y recreativas en espacios poco apropiados para fomentar y apoyar dichos fines. Es así como el proyecto tiene el objetivo de brindar un equipamiento mixto de cultura y espacios públicos al aire libre que permitan acoger las actividades culturales que se vienen dando en el distrito y ofrecer una mejor calidad de vida a sus habitantes.

01

UBICACIÓN

Mapa del Perú señalando la provincia de Lima

Mapa de Lima señalando el sector de Lima-Sur

Mapa de Lima-Sur señalando el distrito de Villa María del Tirunfo

1 Vía arterial: Av. Pachacútec - Línea

Uno del Tren Eléctrico de Lima

2 y 3 Vías colectoras

PROGRAMA

DIFUSIÓN

• Galerías de arte

• Auditorio

• S.U.M.

• Cafetería temática.

• Tiendas artísticas.

• Talleres de ar tes escénicas.

• Talleres de ar tes manuales.

• Talleres de ar tes culinarias.

INTERÉS

SERVICIOS GENERALES

• Biblioteca.

• Videoteca digital.

• Administración.

FUNCIONAL
CULTURAL SERVICIOS COMPLEMENTARIOS FORMACIÓN CULTURAL
CULTURAL

PLANTAS

PISOS ÁRBOLES
Grass americano Ficus microcarpa Duranta Gold Haya de hoja amarilla Westringia Fruticosa Acacia de tres púas Ixora Coccinea Adoquines rectangulares grises Adoquines cuadrados rojos

PROCESO DE DISEÑO

MODULACIÓN

Elaboración de trama rectangular modulada como punto de partida para el ordenamiento de los volúmenes en el terreno.

EMPLAZAMIENTO m m

Los volúmenes se ubicaron en desnivel de manera que estos se acoplen a la topografía natural del terreno y el parque se ubicó en la zona más plana de esta.

5
5

PLAZAS CONEXIÓN

Se crean plazas ordenadoras conteniedas por los volúmenes que sirven como espacios de extensión al aire libre de la programación que se desarrolla en el centro cultural.

Con el tratamiento de espacios públicos por medio de plataformas en la zona elevada, se logra la conexión de las calles de las viviendas en altura con los ingresos al proyecto desde la zona de arriba.

CORTE AUDITORIO

DETALLE DE
Vista interior desde cafetería Vista exterior para el área de mesas Vista interior desde auditorio Vista exterior desde plaza de esculturas Vista exterior desde ingreso principal

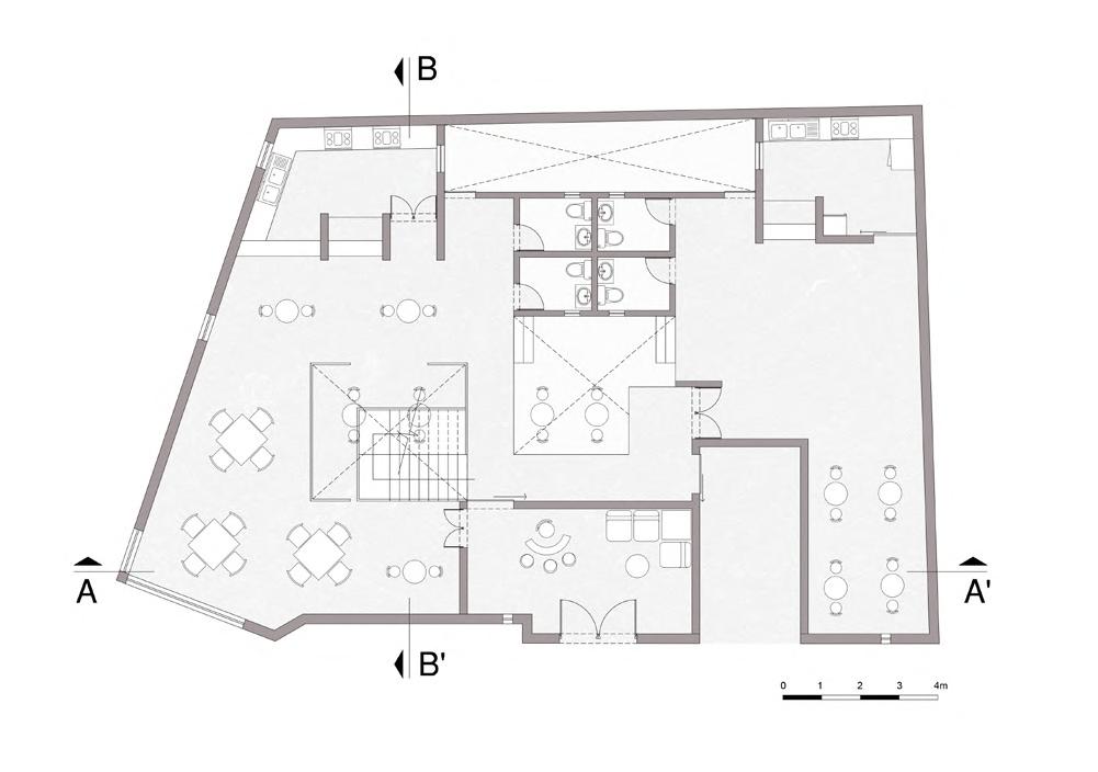
Centro de la Identidad Cultural en el CHL

Lima, Lima, Perú Ciclo 2020-I / Nivel 9.

El proyecto nace de la idea de generar un equipamiento cultural que potencialice la identidad de los usuarios con el Centro Histórico de Lima. Este está dirigido a jóvenes locales y extranjeros, de modo que la riqueza que se encuentra en el lugar sea expandida, difundida y aprovechada por ellos, así como los usos complemen tarios que se proponen como el de vivienda temporal y comercio, sirvan de facto res importantes para satisfacer las necesidades del usuario. La propuesta es ubicada cerca a la Plaza San Martín donde está, actualmente, el edificio Giacoletti, de modo que se propone restaurarlo y acoplar la construcción nueva a la antigua.

PROYECTO DESTACADO Diploma de 1er puesto Taller Vertical X, Nivel 9 2020-I
02

UBICACIÓN

Mapa del Perú señalando la provincia de Lima

1. EDIFICIO GIACOLETTI (1914)

Autor: Hnos. Masperri

Mapa de Lima señalando el sector de Lima-Centro

2. GRAN HO TEL BOLÍVAR (1924)

Autor: Rafael Marquina 3. TEATRO COLÓN (1914)

Autor: Claude Sahut

Mapa del sector de Lima-Centro señalando el distrito de Lima.

4. PLAZA SAN MARTÍN (1921)

Autor: Manuel Piqueras Cotolí

1 2 3 4
USUARIO Y PROGRAMA 60% CULTURA 30% COMERCIO 10% ALOJAMIENTO TURISTAS MOCHILEROS MILLENIALS

PRIMERA PLANTA

EXPOSICIONES

CAFÉ-BAR TIENDA DE CERÁMICAS TIENDA DE PINTURAS ARTÍSTICAS PLAZA A NIVEL AV. NICOLÁS DE PIÉROLA AV. CAMANÁ JR.QUILCA
TEMPORALES HALL DE INGRESO DE MUSEO HISTÓRICO CAFÉ AL PASO

PROCESO TENDENCIA DE REGIONALISMO

Conservar edificio Giacolletti

Se respeta el plomo y continuidad de las fachadas inmediatas.

Se preserva la horizontalidad ticalidad de trama de inmediatas y la del Giacoletti.

SALA POLIFUNCIONAL

SALA COLABORATIVA

TALLERES DANZA

2 S.U.M BIBLIOTECA
DE
PATIO GASTRONÓMICO PLAZA HUNDIDA
DE

REGIONALISMO CRÍTICO

DE DISEÑO

horizontalidad y ver de las fachadas Giacoletti.

Se mantuvo el promedio de alturas de edificaciones adyacentes.

Relación de colores monocromáticos

MUSEO HISTÓRICO

MUSEO HISTÓRICO

MUSEO HISTÓRICO

TERRAZA CULTURAL PLAZA MIRADOR
ESTACIONAMIENTO ESTACIONAMIENTO
Vista interior desde terraza cultural Vista exterior desde la Plaza San Martín Vista interior desde hostel

Museo Interactivo de la Historia Trujillana

Trujillo, La Libertad, Perú Ciclo 2019-I / Nivel 7.

El proyecto se ubica en Chan-Chan, donde actualmente, existe un museo de sitio cuya infraestructura y programa no aprovecha la variedad de información, historia, entorno inmediato y material arqueológico que hay por exponer. Por lo que este museo brinda todas las herramientas como parte de solución al problema, gen erando un hito que utiliza y resalta todo el material y riqueza cultural que existe alrededor del complejo de Chan-Chan, sumando a esto, que el nuevo museo es de tipo interactivo por lo que se usa la tecnología para contar de una manera difer ente la historia de Trujillo.

PROYECTO DESTACADO Diploma de 3er puesto Taller Vertical X, Nivel 7 2019-I

03

Mapa del Perú señalando el departamento de La Libertad.

Mapa de La Libertad señalando la provincia de Trujillo

Mapa de Lima-Sur señalando el distrito de Villa María del Tirunfo

UBICACIÓN

ESQUEMA PROGRAMÁTICO

NIVEL 0 NIVEL 1

Sala colonial Zona de evacuación

Sala pre-hispánica

Sala republicana

Zona de evacuación Sala conteporánea

Zona de transición

NIVEL 2
Vista interior desde museo histórico Vista exterior desde plaza de ingreso Vista interior desde mirador hacia Chan-Chan Vista exterior desde ingreso principal Vista exterior desde zona posterior

Edificio de comerciovivienda temporal

Barrio San Lázaro, Arequipa, Perú. Ciclo 2017-I / Nivel 3.

Siendo Arequipa una ciudad caracterizada por su arquitectura en sillar y el comer cio de chocolates, se toma como ubicación de proyecto el Barrio San Lázaro, el cual resalta por la peculiaridad de sus calles y viviendas antiguas, pero que a la vez, frente a una gran demanda turística presenta escazos lugares que brinden comercio y vivienda temporal a los usuarios.

Este proyecto nace como respuesta a dicho problema, de modo que la pro gramación contempla necesidades pensadas para los lugareños y los extranjeros.

El lote, por encontrarse al borde de la Plaza Campo Redondo, se convierte en un lugar muy accesible, a la vista de todos, haciendo posible la fluidez del comercio y oferta de viviendas temporales que se proponen en la edificación.

Diploma de 2do puesto Taller Vertical X, Nivel 3 2017-I

PROYECTO DESTACADO
04

UBICACIÓN

Mapa del Perú señalando el departamento de Arequipa.

Mapa de Areq uipa señalan do la provincia de Arequipa.

Mapa de la provincia de Arequipa señalando el distrito de Arequipa.

PLAZA CAMPO
CAMPO REDONDO
CAFETERÍA DEPARTAMENTO 4 DEPARTAMENTO 4 RECEPCIÓN/HALL DEPARTAMENTO 3 DEPARTAMENTO 3 PARQUEO DE BICICLETAS DEPARTAMENTO 2 DEPARTAMENTO 2 CHOCOLATERÍA DEPARTAMENTO 1 DEPARTAMENTO 1 DIAGRAMA PROGRAMÁTICO

La primera está destinada netamente a comercio y medi ante el hall se ingresa a la segunda planta donde se ubi can las entradas a los departamentos, todos ellos du plex con dobles alturas como se muestra a continuación.

DEPARTAMENTO 1

Sala, comedor, cocina, 2 baños, 1 estudio y 2 dormi torio.

DEPARTAMENTO 2

2Sala, comedor, cocina, 2 baños, 1 dormitorio y balcón.

1 persona

DEPARTAMENTO 3

Sala, comedor, cocina, 2 baños, 1 estudio y 1 dormi torio.

3 personas 2 personas

DEPARTAMENTO 4

Sala, comedor, cocina, 2 baños, 1 dormitorio y balcón.

2 personas

PLANTAS 3
1

FUNCIONALIDAD

La primera planta se encuentra destinada al comercio, por lo que es dividida en dos para ofrecer un ambiente de cafetería y otro de venta de chocolates artesanales, en el ingreso se encuentra el hall, el cual funciona como un espacio común para el ingreso a las zonas comerciales y departamentos en el segundo piso. Los departamentos son de área reducida pero muy bien utilizada para ofrecer todas las comodidades al usuario, peritiendo así también ser diseñados con dobles alturas y balcones con vista al exterior. INGRESO PARQUEO

CAFETERÍA HALL DE
CHOCOLATERÍA SALA - COMEDOR SS.HH.SALA - COMEDOR ESTUDIOESTAR

MATERIALIDAD

El perfil levantado de una de las calles del Barrio San Láza ro muestra las texturas y colores coordinados de las facha das de las viviendas, resaltando el uso de bloques de sillar en la construcción de estas. Es así como, en el proyecto, se proponen materiales tanto interiores como exteriores que van acorde al entorno adaptándose a este haciendo uso de los materiales locales y representativos del lugar.

Paredes interiores de albañilería con acabado similar al sillar. Piso de madera para planta de departamentos.

Piso de microcemento pulido para planta de comercio.

Fachada de sillar, material representativo de la ciudad de Arequipa.

Ventanas de vidrio templado con carpintería de madero cedro.

CALLE LOS CRISTALES

MODELADO 3D

Centro Cultural Casa Ballena

San José del Cabo, Baja California del Sur, México. Proyecto de RIMA Desing Group. Año 2019.

Casa Ballena es un centro cultural dedicado al arte y diseñado para un artista mex icano que tenía el propósito de crear un estudio para artistas tanto nacionales como internacionales. La obra concluida se ha convertido en el proyecto de diseño y construcción más prestigioso de RIMA hasta la fecha, debido a que abarca tanto el diseño exterior, interior y el del paisaje aledaño, donde el proyecto llega a formar parte de la pendiente topográfica por medio de niveles que generan vistas hacia el Puerto de Marina Los Cabos. Se realizó el modelado 3D para el análisis formal y constructivo del proyecto con el objetivo de utizarlo como referente arquitectónico para un proyecto académico.

05
SISTEMA CONSTRUCTIVO 1 1. Zapatas corridas 4. Sobrecimiento 2. Muros de contención 5. Viga de amarre 3. Muro portante de tapia apisonada 6. Losa de techo 7. Losa de piso 2 3 5 4 6 7

MATERIALIDAD EXTERIOR

Techos ligeros de ramas en trelazadas con estructura de metal negro.

Muros de tapia apisonada.

Mamparas y ventanas con marcos de metal negro y vidrio templado.

Sobrecimiento, muros de contención y escaleras de concreto expuesto.

Pisos de gravilla y concreto pulido.

Ventanas pequeñas de vidrio tipo espejo con marcos de met al negro.

PROYECTOS

PROYECTOS PERSONALES

“Kids Land” Salón de juegos

Pachacámac, Lima, Perú. Proyecto personal 2021.

“Kids Land” nace desde el encargo de convertir un antiguo local destinado a ser una cantina en un salón de juegos como negocio local del cliente enfocado en el entretenimiento, disfrute y aprendizaje de niños de etapa pre-escolar.

La combinación de una paleta de colores armoniosa para niños y padres, la ilumi nación, el mobiliario, diseño interior y exterior en general, convierten el espacio en un lugar de encuentro entre padres, cuidadores y niños dentro de un vecindario. El proyecto funciona como salón de juegos para niños y como pastelería hacia la parte exterior del local.

06
Vista en planta Recepción y atención Vista exterior de noche del proyecto Vista exterior de noche de la zona de mesas y juegos Vista exterior de día del proyecto

Salón de juegos

Terraza (zona de mesas)atención

Zona de las profesiones

Terraza (zona de juegos)

Jardín interior Vista interior del salón de juegos Vista interior del salón de juegos Repisa Gimnasio Paredes Piscina aberturas Pelíkano Paredes Pelíkano

Viniles decorativos

Repisa de MDF con enchape de madera, para fabricar

Gimnasio de madera hecho a medida, para fabricar

Paredes pintadas con blanco mate

Piscina de melamine con aberturas para almacenaje, para fabricar

Paredes pintadas con blanco mate

Mostrador de melamine Pelíkano Nácar a medida, para fabricar

Viniles decorativos

Mueble de melamine Pelíkano Nácar a medida, para fabricar

GIMNASIO

Cantidad: 1

Ubicación: Salón de juegos

Vista interior del salón de juegos

MÓDULO DE APOYO

Cantidad: 1

Ubicación: Recepción y atención

Vista interior de la zona de profesiones

Reja de OSB pintado

MÓDULO DE RECEPCIÓN

Cantidad: 1

Ubicación: Recepción y atención

Vista exterior de baño para chicos

FOTOGRAFÍA ARQUITECTÓNICA
ARQUITECTÓNICA

Techos Catedral de Ayacucho Ayacucho, Perú, 2020.

Portada Catedral de Ayacucho Ayacucho, Perú, 2020.

Torre Catedral de Ayacucho Ayacucho, Perú, 2020.

Iglesia Santo Domingo Ayacucho, Perú, 2020.

Techos Catedral de Ayacucho Ayacucho, Perú, 2020.

Portada Catedral de Cusco Cusco, Perú, 2019.

Portada Catedral de Cusco Cusco, Perú, 2019.

Macchu Picchu Cusco, Perú, 2019.

LAURA SAAVEDRA GUERRA laurasaavedra58@gmail.com (+51) 926 876 190

Turn static files into dynamic content formats.

Create a flipbook
PORTAFOLIO DE ARQUITECTURA 2022 | LAURA SAAVEDRA by Laura Saavedra Guerra - Issuu